The Project Gutenberg EBook of Recuerdos y bellezas de España; Córdoba, by 
Pedro D. Madrazo

This eBook is for the use of anyone anywhere at no cost and with
almost no restrictions whatsoever.  You may copy it, give it away or
re-use it under the terms of the Project Gutenberg License included
with this eBook or online at www.gutenberg.org


Title: Recuerdos y bellezas de España; Córdoba

Author: Pedro D. Madrazo

Illustrator: Francisco Javier Parcerisa

Release Date: October 1, 2011 [EBook #37590]

Language: Spanish

Character set encoding: ISO-8859-1

*** START OF THIS PROJECT GUTENBERG EBOOK RECUERDOS Y BELLEZAS DE ESPA¤A ***




Produced by Chuck Greif and the Online Distributed
Proofreading Team at http://www.pgdp.net (This book was
produced from scanned images of public domain material
from the Google Print project.)







En esta edición se han mantenido las convenciones ortográficas del original, incluyendo las variadas normas de acentuación presentes en el texto.
(nota del transcriptor)



RECUERDOS Y BELLEZAS
DE
ESPAÑA.

CÓRDOBA.

Es propiedad de F. J. Parcerisa.



Indice de las materias contenidas en este tomo.
Guia para la colocacion de las láminas.
Notas



MADRID.—IMPRENTA DE REPULLÉS.—1855.



RECUERDOS Y BELLEZAS DE ESPAÑA;
BAJO;
LA;
REAL PROTECCION DE;
S.S.M.M. LA REINA Y EL REY.;
obra destinada a dar a conocer sus monumentos y;
antiguedades, en laminas dibujadas del natural;
POR;
F.J. Parcerisa;
escrita y documentada por;
P. de MADRAZO.;
CORDOBA.;
RECUERDOS DEL MIRAHB.



barra decorativa

RECUERDOS Y BELLEZAS
DE;
ESPAÑA.;
SEVILLA, CÓRDOBA, CÁDIZ.;
INTRODUCCION.

D ORABAN los primeros rayos del sol las cumbres de Sierra Nevada cuando, próximos á empezar á escribir este viaje, quisimos gozar por última vez de la frescura que respiran las alamedas del Generalife y de la Alhambra. Apoderóse de nosotros una dulce melancolía, y no tardamos en dejar por veredas ocultas y solitarias los caminos deliciosos en que se confunden con el murmullo de las aguas los suspiros del viento entre los árboles. Llegamos involuntariamente al pié de la torre del Agua: nos detuvimos, contemplamos de nuevo aquel sombrío paisage donde no se destacan sobre el azul del cielo mas que torres silenciosas coronadas de almenas, y sentimos por instantes latir precipitadamente el corazon y concentrarse el alma en la tristeza. Un viajero no menos entusiasta, á quien servimos de guia en todas nuestras escursiones, estaba sentado á poca distancia de nosotros entre las ruinas de la torre: levantó la cabeza, pronunció algunas palabras que solo vimos errar entre sus labios, y volvió á caer en una meditacion profunda. Nos acercamos á él, y entonces dijo:

«¿Os conmueve mi dolor? ¡Ah! veo que brotan tambien lágrimas de vuestros ojos: teneis corazon y me comprendereis. He recorrido muchos paises, y no he visto una ciudad como Granada. Los rios que se enlazan á sus puertas corriendo entre orillas cubiertas de álamos y flores, la Vega que se estiende á sus piés como una alfombra de verdura, la pintoresca sierra sobre cuyas blancas vertientes se destacan sus arboledas y sus muros, los cerros en cuyas cumbres estan sentados su Albaicin y su Alhambra ceñidos de torreones, sus angosturas del Darro donde canta el agua en el fondo del follage, su cielo oriental en que he llegado á descubrir con los ojos de la imaginacion el fantástico paraiso del Profeta, el gorgear de las aves en el seno de sus deliciosas enramadas, la dulce armonía de sus brisas perfumadas por el aliento que despiden sus cármenes floridos, los caprichosos reflejos del sol en las verdes faldas de sus colinas, la melancólica luz de la luna que cruza su horizonte entre coros de estrellas como una reina de hadas entre las vaporosas ninfas de sus lagunas y corrientes, hasta esas mismas noches tenebrosas en que apenas cabe distinguir la silhueta de sus viejos monumentos, han escitado en mí sensaciones que nunca habia tenido, sentimientos que no habian hecho palpitar nunca mi corazon gastado, ideas que no me hubiera atrevido á concebir ni aun al desbordarse á torrentes mi loca fantasía. A todas horas, en todas ocasiones he contemplado con indefinible placer esa ciudad que brota de las orillas de dos rios como una hija del agua del fondo de su lago, esa cadena de montes que á la vaga luz del crepúsculo parecen colosos sentados en el espacio para guardar la Vega, ese cielo diáfano y trasparente prendido en las cumbres de esos cerros como una estrellada colgadura de seda en las cúspides de las palmeras que constituyen la tienda de un califa. Ora ligeramente recostado en uno de esos árboles sobre cuyos ramages han sacudido su manto de nieblas mas de cuatro siglos, ora entre los escombros de ese viejo alcázar que va desmoronando el tiempo, he recordado con la cabeza sobre el pecho la historia y las tradiciones de Granada; y al levantar la frente he mirado aun con mayor interes esa naturaleza que desplegaba á mi alrededor tanta riqueza y hermosura. En esa sierra coronada de nieves eternas no he visto mas que el sepulcro de un rey moro; en ese valle cubierto de flores, olas de garzotas y penachos flotando sobre relucientes armaduras; en esos rios que se deslizan mansamente bajo la sombra de los álamos, aguas destinadas á bañar las adelfas y cipreses que embellecen la tumba de los héroes muertos en ese vasto campo de batalla; en esos montes apartados, circuidos de precipicios, tiendas de reyes que vinieron á estender sus pendones de guerra sobre los muros de esta fortaleza; en esa ciudad que está aqui, á la estremidad del valle, reclinada sobre colinas pintorescas, una reina de torneo dispuesta á ceñir las sienes del vencedor con la corona de sus palacios y baluartes. He vuelto á inclinar la cabeza á meditar: ¡ay! y he sentido una amargura inmensa al observar que no eran los sentidos sino la imaginacion lo que habia puesto entre mi cuerpo y la naturaleza ese velo de la historia y la poesía. He recogido mi alma y escuchado en silencio. No he oido mas que el rumor del insecto sobre la yerba, el del tiempo entre las grietas de los torreones medio caidos, el de la brisa entre los escombros, el del agua sobre las guijas que cubren el fondo de su cauce. Deseaba oir acentos de vida, y no he oido sino voces salidas del seno de las ruinas, no he oido sino la voz de la muerte. Granada me ha parecido entonces un panteon, y he derramado sobre ella lágrimas que han abrasado mis megillas.

»¿Qué has hecho de tu gloria, le he dicho lleno de dolor? ¿de qué muro cuelgan las espadas de tus héroes? ¿dónde estan el trono de tus reyes y la silla de tus cadíes? ¿ninguno de tus libros pudo salvarse de la hoguera? ¡Ay! cada siglo va arrancando una hoja de la corona de tu gloria; y permaneces muda é impasible como un cadáver. Húndense las últimas casas de tus moriscos; desaparecen bajo la mano del embadurnador los bien labrados estucos de tus monumentos árabes; las columnas de marmol de tus alcázares rechazan ya los arcos festonados de tus misteriosas galerías; ¿cómo no corres á detener con tu mano la artesonada techumbre de tus antiguos salones, las fuentes que decoraban tus jardines, las murallas que sirvieron de escudo á tus guerreros, los voluptuosos patios en que soñaron tus sultanas, los encantados miradores en que distrajeron su melancolía las cautivas de tus reyes? Esa ciudad que miro cercada de viejos muros y torreones ¿será tal vez solo el sepulcro en que dormirá Granada? ¿será quizás solo una sombra de la espléndida corte de los árabes?

»He creido oir entonces á la ciudad diciendo: Sí, soy solo una sombra de lo que fuí algun dia: los que me levantaron estan para siempre proscritos, las joyas con que me engalanaron han sido entregadas al hierro y al fuego de mis enemigos, los vestidos que me dieron han sido desgarrados por el acero de los que ofendí con mis miradas. Me han dejado pobre y desnuda al margen de dos rios, han arrebatado de mis sienes la diadema que podia recordar los dias de mi grandeza, y han dicho al mundo: héla aqui á la orgullosa reina musulmana: héla aqui reducida á contemplar en sus aguas cristalinas su marchita hermosura. Manaba en oro y hoy está condenada á recoger el que contienen las arenas de sus rios; armábanse á su voz millares de soldados, y hoy se pierden en la cavidad de su boca sus palabras; mirábanla los reyes con envidia desde lo alto de sus cerros, y hoy pasa junto á ella el viajero preguntando con indiferencia por la mendiga que reflejan el Genil y el Darro. Sí, soy ya una sombra; pero, yo sombra, me rio aun de los que para afrentarme pusieron sobre mi cabeza la ceniza de mis monumentos y la de los hijos que perdí en la hoguera. ¿Quién podrá quitarme ese horizonte azul, mi cielo de oro? ¿quién mis colinas cubiertas de naranjos, mis paseos ocultos bajo las copas de los álamos? Esta esclava es aun reina á pesar de sus contrarios. Tiene aun lechos de flores en que descansar de sus fatigas, rios de aguas puras y trasparentes en que templar sus fuerzas, montes poblados de arboledas en que divertir sus ojos, cármenes que embalsamen el aire que respira, laureles que coronen su frente y le recuerden sus dias de ventura, estrellas que la rodeen de una esplendente aureola, auras apacibles que agiten su flotante cabellera. Levantaos sobre la mas alta de vuestras torres, ciudades españolas: miradme por encima de las cumbres que de mí os separan, miradme y ved si no trocariais la mejor de vuestras joyas por mis cerros de nacar y mis pintados valles, por la margen de mis arroyos y las orillas de mis rios, por el sol que tiñe de fuego mi horizonte y la luna que cubre mis bosques de misterio. Soy ya una sombra; pero el genio de la belleza y la armonía velan aun mi sueño como en los dias de mis reyes. La naturaleza no me ha sido nunca infiel: ciñó de flores mi cuna y está ciñendo de flores mi sepulcro; á cada paso que doy hácia la tumba hace brotar bajo mis pies una vegetacion mas caprichosa. No hay en mí desnudez que ella no compense con sus brillantes galas, no derramo una lágrima que ella no recoja con amor para fecundar mi vega, no exhalo un acento de dolor á que ella no conteste con la dulce voz de las brisas, el murmullo de las aguas y los melodiosos trinos del ave que canta en la enramada. ¡Gracias mil te sean dadas, naturaleza bienhechora! tú, tú eres mi reina y mi consuelo. Mis palabras mueren ya en mis labios; pero tú oyes la voz de mi corazon y sabes cuanto te amo: hasta el pie de mi ataud entonaré por tí cánticos de gloria y de alabanza. La hermosura y riqueza que nos dan los hombres perece bajo la espada de los hombres: solo tus inagotables tesoros sobreviven al furor de las armas, al tremendo empuje de los siglos, á la devastadora fuerza de las revoluciones que pasan como el huracan sobre la frente de los pueblos. Me siento morir, pero no temo: las ramas de mis árboles se mecerán aun sobre la losa de mi tumba, y tú dirás al viajero con la voz del aura que suspira entre sus hojas: dobla la rodilla sobre estas tristes ruinas, viajero; son las ruinas de Granada.

»Adoraba la naturaleza y gozaba en medio de los escombros; pero nunca como despues de haber creido oir en boca de esa ciudad estas palabras. La naturaleza es ahora mi único espectáculo, mi templo. Las mas sublimes armonías inspiradas por el arte me parecen frias ante el susurro del viento entre las hojas, el canto del arroyo entre las peñas, el eco del torrente en el fondo de los bosques, el rugido del viento sobre las cumbres de los cerros y el estallido del rayo entre las nubes. Las sombrías iglesias bizantinas, las misteriosas catedrales góticas, los risueños templos de la Grecia, las aterradoras profundidades de la India me parecen mezquinas ante ese inmenso santuario que lleva sobre haces de montes la estrellada bóveda del cielo. El sol es su lámpara de oro; los demas astros, sus lámparas de plata; prados cubiertos de flores, su pavimento; selvas frondosas, sus ricas colgaduras; colinas tapizadas de musgo, sus altares; todos los seres que existen son sus dioses. No, no hay otro templo como ese globo que rueda eternamente en el espacio envuelto en el torbellino de los mundos: la vida se transforma sin cesar, y hallan cada dia en él los sentidos un nuevo espectáculo, la razon nuevas alas para remontarse al origen de los seres, la reflexion nuevos motivos para las meditaciones mas severas. No solo siento amor por la naturaleza; siento entusiasmo y hasta delirio. ¿Cómo he de separarme sin dolor de estos lugares en que estan encerradas tantas y tan grandes bellezas? ¿Dónde he de volver á encontrar el horizonte de Granada? ¿dónde esas torres doradas que surgen del seno de las alamedas, esos cerros de nieve en que el sol refleja sus colores, esos arroyos que bullen entre el musgo de las ruinas? Amo tambien los monumentos en que está condensada la historia de los siglos: ¿dónde encontraré este alcázar cuya riqueza deslumbra aun al través del polvo que la cubre? ¿esas misteriosas galerías en que á la luz de la tarde se cree ver diseñadas las sombras de gallardas moras? ¿esos salones pintados de oro en que la imaginacion evoca la brillante corte de los antiguos reyes y los sangrientos espectros de los abencerrages muertos á traicion por la mano del verdugo? ¿esos patios encantados cuyos arrayanes plantados á las orillas de sus estanques salpica el agua de una que otra fuente? Os he seguido paso á paso en todos vuestros viajes; mas no me siento ya con fuerzas para seguiros en el de Córdoba y Sevilla. He dado con mi bello ideal: ¿cómo quereis que descienda de ese cielo donde los sentidos, el corazon, la fantasía se espacian sin encontrar límite alguno? Idos en paz y dejadme respirar aun el aire de Granada. Este suelo es ya el suelo de mi patria: dejadme contemplar en él desde los escombros de lo pasado el espectáculo de esa naturaleza siempre bella que rejuvenecen incesantemente el soplo de la eternidad y la mano de los hombres. Deseo vivir y espirar en medio de este vasto panorama: ¡ay! ¡ojalá que al cerrar mis párpados el dedo de la muerte haya quien me sepulte al margen de esos rios bajo la copa de esos álamos frondosos!»

Estuvimos por unos instantes en silencio. El entusiasmo con que este viajero habia hablado de la naturaleza acababa de herir una de las mas delicadas fibras de nuestra alma; y buscábamos en vano palabras con que pudiésemos dominar su exaltada fantasía. No las encontramos hasta que algo recobrados de la primera impresion, ¿amais le dijimos, la naturaleza y os encerrais en uno de sus cuadros? ¿Qué es todo este vasto espectáculo de Granada para el de ese inmenso Océano cuyas olas azotan sin cesar las murallas de Cádiz como legiones de combatientes que han jurado su ruina? ¿qué son estos rios de Genil y Darro para ese imponente Guadalquivir que despues de haber cubierto de flores las fecundas praderas de Córdoba y Sevilla baja precipitadamente á sepultarse en el fondo de los mares? ¿qué las alamedas de la Alhambra para los encantados jardines del Alcázar de Sevilla y los bosques de naranjos que circundan el palacio de S. Telmo? ¿Es acaso comparable esta vega con las dilatadas llanuras á que dan sombra los mas decantados olivos de la Andalucía? ¿con los pintorescos valles de Carmona, cuyos oteros y altozanos vestidos de mil colores sorprenden aun al que los contempla desde las desmoronadas torres de su antigua fortaleza? ¿con los feraces campos de Sevilla, donde se oculta el hombre entre las mieses? La naturaleza es aqui mas bella que grandiosa. Ni el bramido del mar, ni el eco del torrente llegan hasta la cumbre de estas alturas solitarias. Crecen en esas faldas el laurel y el álamo; pero no el castaño, el haya, el pino abeto, entre cuyas ramas ahulla el viento de una manera salvage y misteriosa. El agua no salta aqui en cascadas á lo profundo de los abismos. El fuego de la tempestad alumbra raras veces esos montes; la tierra no se estremece sino instantáneamente al impulso de horribles terremotos. No, no es Granada donde cabe admirar mas el poder de Dios y la grandeza del mundo. Hemos visto en Cádiz al sol sumergiéndose en las aguas del Océano con una aureola de tinieblas; hemos visto á ese mismo Océano invadiendo silenciosamente la playa y retirando despues con una calma aterradora sus hinchadas olas; hemos visto esas olas, altas como montes, arrojándose heridas por la luz del rayo sobre los muros de la ciudad sumida en duelo: alli es donde la naturaleza se ostenta con toda la sublimidad de que pudo revestirla su autor al hacerla brotar llena de vida de entre la confusion y el caos, alli es donde se ensancha el corazon, alli es donde la imaginacion cruza el espacio y rasga el velo que oculta á nuestros ojos lo infinito.

Bella, bellísima es Granada; mas ¿faltan acaso pueblos que rivalicen con ella en hermosura? Refléjase en las aguas del Guadalquivir una ciudad aun árabe que fue en otro tiempo corte de los califas. No es ya la rival de Bagdad ni el segundo santuario del Profeta; no cuenta ya en su recinto los palacios llenos de grandeza y de poesía que dejaron atrás la magnificencia del Oriente; no tiene ya los encantados vergeles ni los bosques de palmeras que perfumaron sus brisas y la defendieron de los ardores del verano; pero os cautivará aun, cuando la veais medio dormida al pie del rio, sobre una de las mas pintorescas faldas de Sierra Morena, á la sombra de frondosas arboledas cuyos ramages mece el viento sobre sus viejos muros. Circúndanla aun huertas deleitosas salpicadas de flores; báñanla arroyos cristalinos cuya sonora corriente se desliza entre campos de verdura; cércanla á distancia montes escarpados en cuyas cimas se destacan sobre el azul del cielo ruinas imponentes de antiguas fortalezas. Vastos olivares cuyas ramas sucumben al peso de los frutos cubren el suelo de su feraz campiña; álamos, naranjos, una que otra palmera solitaria verdean entre sus monumentos abrasados por los siglos. Tiene junto al rio un edificio grande, inmenso, coronado de almenas, circuido de ricas ventanas de herradura, adornado de hermosas celosías, dominado por una torre que arroja hoy á lo lejos la voz de sus campanas, edificio medio musulman, medio cristiano que ni bien presenta el aspecto de un templo, ni bien el de un castillo, construccion rara, heterogénea, híbrida, donde cada pueblo ha puesto su piedra y cada estilo ha pretendido imprimir su forma y su carácter: no cabe ya mas en arquitectura para subyugar la fantasía y turbar nuestros sentidos. Penetramos en él y nos creemos de repente trasportados á la region de los sueños. Centenares de columnas de marmol sostienen los arcos de sus bóvedas. Aquellas son todas de diferente color, estos de distinta curva. Vése al través del ultra-semicircular el de herradura, sobre el de herradura el de segmento, entre unos y otros la cimbra romana, la ojiva, el arco rebajado. Enlázanse entre sí los de segmento cruzándose, sobreponiéndose, formando varios y vistosos juegos; presentan en todas partes rasgos de originalidad y de hermosura. Capiteles que apenas parece haber tocado el cincel árabe, puertas de mosáico donde aparecen pintados de colores y oro los mas caprichosos adornos bizantinos, cúpulas levantadas sobre ligeras columnas, bóvedas de alabastro, ajimeces de elegante calado donde la naturaleza hace oir aun voces misteriosas, muros cubiertos de relieves de estuco, preciosos alicatados en que de las mismas leyes geométricas se ve brotar á raudales la armonía, objetos á cual mas bellos detienen por momentos los pasos del viajero, que apenas acierta á contemplarlos sin que en medio de la soledad y el silencio que le rodea crea percibir aun el dulce aliento de los genios que crearon tan vasto monumento. Está encerrada en medio de la mezquita árabe una catedral cristiana; y se pierde de vista entre aquellos inmensos grupos de columnas como una cabaña entre las hayas del bosque ó una pequeña nave entre las embravecidas olas del Océano.

CURVAS EMPLEADAS EN DIVERSOS ESTILOS ARQUITECTÓNICOS.

Lo que habeis visto en este alcázar árabe es bello, voluptuoso, rico; refleja perfectamente el sensualismo oriental, la suntuosidad de los reyes nazaritas, la imaginacion poética del musulman que siente latir su corazon por el amor ó por la gloria; mas no es siquiera comparable con lo de aquel templo, donde todo es magestuoso, donde todo respira ascetismo, donde en medio de la variedad se ve campear esa misma unidad que estableció el Profeta por base de su sistema religioso. La Alhambra fue empezada á construir en el siglo XIII, cuando acababan de humillar la frente bajo los estandartes cristianos las ciudades de Córdoba y Sevilla, cuando á no ser por la audacia y el talento de un jóven guerrero, descendiente de una de las antiguas dinastías[1], hubieran pasado los ejércitos de S. Fernando sobre el reino de Granada como las aguas del Mar Rojo sobre las tropas de Egipto; fue construida en una mala época, en una época en que todo estaba ya dividido, relajado, oscurecido por las tinieblas de la filosofía, medio destruido por el orgullo de las sectas y los hábitos de desorden que engendra la guerra civil y hasta las mismas luchas nacionales. El arte, que sigue la misma marcha que los pueblos, habia ido degradándose en medio de tan graves trastornos, y al encargarse de edificar este palacio, no supo hacer mas que cubrirse de brillantes velos para ocultar su decadencia. Las curvas de la Alhambra son ya vagas, exageradas, sin carácter: pasan del semicírculo y no son ultrasemicirculares; presentan mayor profundidad en los arranques, y no son, sin embargo, de herradura; han perdido la sencillez que debia constituir principalmente su hermosura, y han pasado de complicacion en complicacion hasta el arco festonado, el arco de onda, el arco estalactítico[A]. Enjutas irregulares y sin objeto han venido á sentarse sobre los arcos, y no constan aquellas sino de tablas de yeso labrado separadas y sostenidas por una armazon de madera que el tiempo va descubriendo á los ojos del artista. Las lineas geométricas van dominando, las tradicionales perdiéndose en un confuso mar de adornos, faltos absolutamente de sentido. Multiplícanse unos sobre otros los relieves, distribúyense caprichosamente acá y acullá las leyendas religiosas, repítese mil veces en las paredes de los salones y los patios un mismo verso del Coran, un mismo mote. Reina en muchas partes un gusto frívolo: hay en todo belleza, pero belleza de ejecucion, no esa belleza que el sentimiento inspira. La Alhambra es hija de la fantasía, es si se quiere un palacio encantado concebido en una noche de insomnio; mas está lejos de ser una de esas obras en que está retratada la vida interior no ya de una época, sino de todo un pueblo.

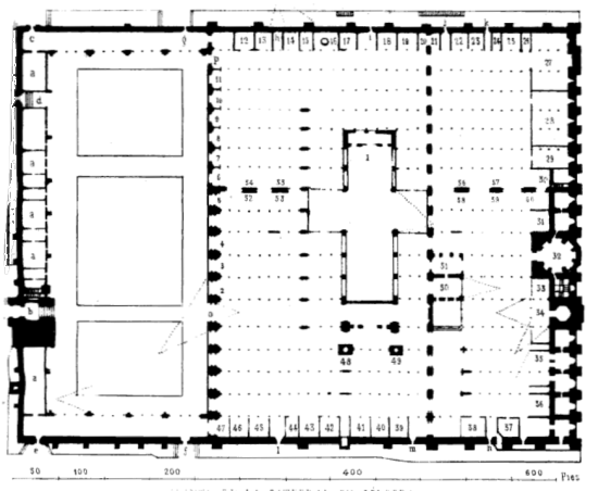
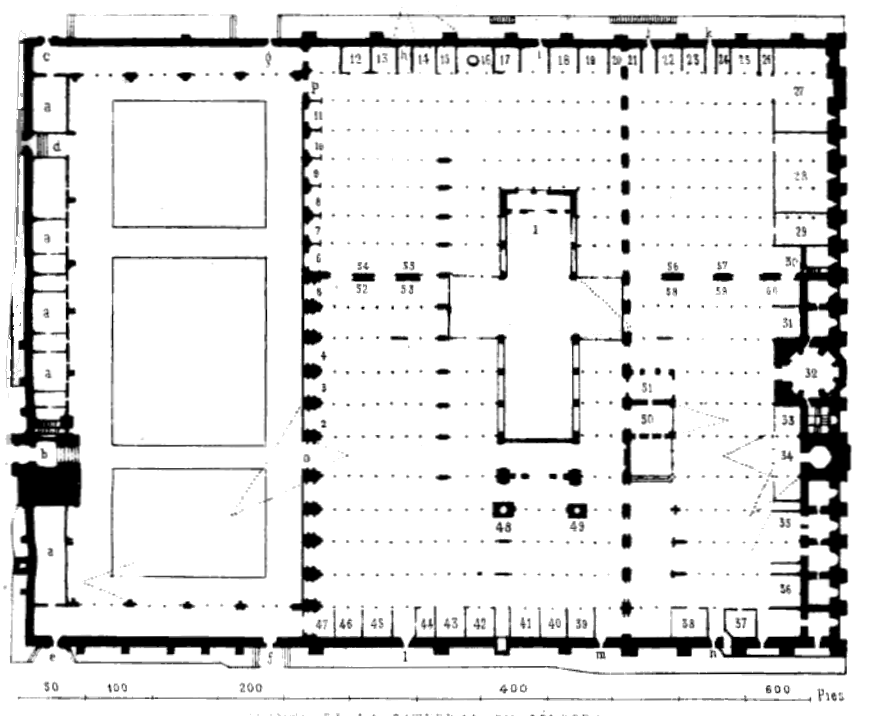
La mezquita de Córdoba fue empezada por Abd-el-rhaman, por aquel ilustre vástago de la familia de los Ommyadas á quien pareció haber salvado la Providencia del furor de los Abassydas para que viniera á cortar las discordias que ensangrentaban el suelo de la patria. El fanatismo religioso estaba á la sazon en todo su vigor entre los árabes: acababan de arrastrar consigo al grito de no hay mas Dios que Dios las naciones de Asia y Africa, y se sentian con entusiasmo para ir á clavar el estandarte del Profeta en los mas apartados límites de Europa. Eran antes que todo creyentes: invadian los imperios con el objeto de hacer preponderar su ley, y aun despues de mil derrotas persistian con tenacidad en sus empresas, seguros de que habian de encontrar en el campo de batalla el camino del Paraiso. Emancipados ya de la silla de Oriente los que aqui vivian, sentian mas que nunca la necesidad de recordar los templos y lugares en que estaban vinculados los recuerdos de Mahoma; suspiraban por no poder visitar Zahara, Meca, Medina, todos esos pueblos en que empezó á constituirse su nacionalidad y su independencia; no deseaban mas que ver reproducida de algun modo en Occidente la memoria de los hechos consignados alli en el pavimento de sus mezquitas, en las piedras de sus muros y en las praderas de sus fecundos valles. Abd-el-rhaman se propuso satisfacer esta necesidad; no levantó ya un templo para su corte, levantó un segundo santuario para el islamismo, levantó una mezquita que rivalizara con la de la Meca y fuese otro lugar de peregrinacion para todo el que creyese en el nuevo enviado de Alá sobre la tierra. Nada perdonó para que saliese su obra llena de magestad y de grandeza: derramó sobre ella á raudales mármoles, alabastro, cristal, oro; recogió con avidez de entre las ruinas del antiguo imperio las columnas que adornaron algun dia los templos de los ídolos; aprovechó todos los elementos que le ofrecia lo pasado; convocó á los artistas árabes, á los europeos, á los bizantinos; y logró que contribuyeran á la construccion de tan gran monumento las religiones vencidas, las que sostenian aun la lucha con la del Profeta, los imponentes restos de la antigüedad, la ciencia de su época. No pudo hacer prevalecer en ella la igualdad de ornamentacion ni la de formas; no pudo imprimir en todos sus detalles el sello de la originalidad; no pudo arrojarla á los ojos del mundo como una construccion puramente árabe; mas ¿quién duda que presentó en ella el mas fantástico y el mas acabado conjunto que cabia esperar de un siglo en que dominaba sobre vencedores y vencidos la barbarie?

Es preciso conocer á fondo la arquitectura árabe. La arquitectura árabe no es primitiva, es derivada; pero no es tampoco posible convenir en que sea una simple restauracion del arte antiguo. Desarrolló sobre las líneas romanas formas caprichosas, y logró hacer desaparecer sus plagios bajo la oriental armonía del conjunto. Adoptó, ademas de las líneas romanas, el capitel bizantino, el abaco de los egipcios, la ojiva de los cruzados, el ornato de los arquitectos del bajo imperio; mas combinó con tanto acierto y novedad estos confusos elementos, que identificada con ellos se presentó original como la mejor de las arquitecturas á que dió origen la edad media. La arquitectura árabe es indudablemente una paradoja: está compuesta de miembros heterogéneos y forma sin embargo un cuerpo del todo compacto y homogéneo; apenas tiene un detalle suyo, y es sin embargo suyo el conjunto. Es generalmente sensualista y caprichosa: se apodera hoy de un arco, de un adorno, de una forma cualquiera, y mañana hace ya con ella mil combinaciones; busca para mejor deslumbrar los mármoles mas preciados, dora los capiteles, pinta el fondo de los relieves, engasta ópalos y cornalinas en las celosías, forma con menuda piedra los mosáicos, distribuye con profusion y de la manera mas vistosa todos los elementos de que dispone, columnas, arcos, cúpulas y cupulinos, almocárabes, cintas, hojas, entrelazos, flores; procura que cada monumento tenga su perspectiva, estudia con detencion cómo ha de sorprender los sentidos, y apela para alcanzarlo no solo al arte, sino á la vegetacion, á la naturaleza. Llevó en su último período al estremo este sensualismo; mas no en el primero, en que procuró conservar siempre un carácter esencialmente religioso. Las columnas de sus mezquitas aparecen casi entre tinieblas; los ajimeces no derraman sobre ella mas que una luz dudosa. Sus techos de cedro son bajos y de sencillos artesones; sus ricas capillas de mosáico y oro estan cubiertas de misterio. Sus ostentosos mihrabs respiran la mayor magnificencia y hermosura; pero yacen tambien en la oscuridad y no es posible distinguir sus detalles sino á la luz de la lámpara que baja del centro de la bóveda. La mayor parte de los capiteles no estan mas que bosquejados; la ornamentacion es severa; las inscripciones escritas en las portadas encierran casi siempre un sentido muy profundo. Las paredes son muros almenados, ceñidos de torreones; los patios, vastos cuadros en que crece cuando mas el arrayan á las orillas de un estanque. Llevan las fachadas bellísimos relieves; pero está muy lejos de respirar la suntuosidad del interior, donde el arte desarrolla el inagotable tesoro de sus variadas y caprichosas formas.

El primer período de esta arquitectura corresponde á la época religiosa de la historia de los árabes: ¿cómo podia el artista, que vive de la vida de su siglo, dejar de inspirarse en los libros sagrados, ni dejar de obedecer á la irresistible fuerza de las creencias nacionales? Toda religion es en sus principios misteriosa y sombría: señala con la mano el cielo y hace olvidar la tierra; preocupa con la idea de una vida futura el entendimiento y arroja al hombre en el mas ascético estoicismo. Personifica en Dios mas el poder que el amor, mas la justicia que la misericordia; le presenta colérico y dispuesto á precipitar al fondo de los abismos á cuantos no hayan concentrado en él su corazon y su inteligencia; impone los ánimos por medio del terror, y convierte á los pueblos mas bien que en creyentes, en esclavos de la creencia. El mahometismo procedió del mismo modo; y el arte, aun disponiendo de elementos llenos de gracia y de belleza, no pudo menos de comunicar severidad á la mayor parte de sus obras. Relajóse algo despues el esclusivismo; mas la arquitectura lejos de sentir esta relajacion, fue aun mejorando y armonizando mas y mas sus formas, fue dulcificando su carácter, fue embelleciéndose y procurando con mayor ahinco cautivar los ojos y la fantasía. No decayó sino mucho mas tarde, cuando ya quebrantada la unidad política quedó minado por su base el sistema del Profeta, cuando no era ya la religion mas que un vano simulacro, cuando cada valí aspiraba á la corona y cada árabe se creía con derecho para levantar un rey sobre su escudo. Siguió aun entonces ataviándose; pero con adornos frívolos, con esos adornos de la Alhambra, bellos y brillantes, sí, pero falsos, poco artísticos, destituidos los mas, si no de gusto, de sentido. No es solamente en la Alhambra donde debe ser estudiado el estilo de los árabes; merece ser estudiado en Sevilla, y, mas aun que en Sevilla, en Córdoba, en esa Córdoba medio musulmana aun despues de haber pasado sobre ella la tea de las discordias civiles, la espada de los reyes cristianos, el hacha de las revoluciones y el pico de la ignorancia y la barbarie. El Alcázar de Sevilla es casi una reproduccion del de Granada; mas la mezquita de Córdoba, ademas de ser un monumento del todo original en su género, es el álbum en que está consignada toda la historia del arte árabe, es la obra en que cabe seguir paso por paso la infancia, la virilidad, hasta la decadencia de ese estilo oriental que tanto os habrá hecho gozar y soñar en medio de estos encantados salones que perfuma aun el aliento de las flores, anima el murmullo de las fuentes, poetiza el recuerdo de los hechos en ellos ocurrídos y cubre de interes la tradicion y la leyenda.

Ameis la naturaleza ó ameis el arte, conviene que dejeis ya estos lugares donde tanto habeis sentido el placer y la melancolía. En Granada apenas habeis admirado mas que el genio de los árabes: no habeis penetrado en el seno de ninguna de esas catedrales góticas en cuyas altas y oscuras bóvedas se pierden las miradas del hombre, ni atravesado el umbral de ninguna de esas capillas bizantinas creadas por la sombría imaginacion del sacerdote; no habeis recorrido en silencio ruinas de pueblos sepultados bajo sus escombros, no habeis encontrado monumentos donde os fuese licito evocar el espectro de esos temidos héroes del Imperio, cuyas figuras se destacan brillantemente sobre las nieblas de tan remotos siglos. Sevilla os mostrará una catedral gótica y templos bizantinos; Itálica ruinas de que estan brotando aun torrentes de poesía, ruinas medio cubiertas de musgo en que la fantasía cree distinguir aun la sombra de los emperadores cuyas cunas de marfil y oro rodaron dentro los muros de aquella ciudad famosa. Jerez os manifestará al través de una puerta del renacimiento sus ricas naves en ojiva, cuajadas de molduras desde el pavimento hasta la bóveda; Sanlucar, su castillo y los restos de un palacio donde murieron los últimos rayos del sol de la edad media. Marchena y Utrera no os hablarán ya de esas épocas lejanas sino en sus muros y en una que otra iglesia; pero os asombrarán con sus gigantescas fachadas del siglo XVI, páginas en que se presenta unido el misticismo del arte cristiano con la magestad y la grandeza del que floreció en tiempo de los Césares. Castillos, alcazabas, torres llenas de recuerdos se os ofrecerán á cada paso: á cada paso podreis volver los ojos á ese pasado por que sentís tanto entusiasmo. Veredas abiertas bajo las copas de árboles frondosos, dilatadas llanuras en que vereis ondear las mieses al soplo de las brisas, yermos en que podreis contemplar el mar por entre bosques de sombríos pinos, rios en cuyas orillas pacen innumerables rebaños y estan sentados pueblos risueños y pintorescos á la sombra de los naranjos, mares cuyas playas estan ocupadas por puertos y arsenales de antigua nombradía os conducirán á estas ciudades notables por sus monumentos; y admirareis alternativamente aqui la mano del hombre amontonando piedra sobre piedra, cortándola, cincelándola, dándole significacion, pensamiento, vida; alli la mano de Dios dirigiendo el curso de los rios y deteniendo las olas del Océano, cubriendo de vegetacion campos y colinas, haciendo brotar bosques hasta en el fondo de los arenales, prestando al viajero árboles que le defienden contra los ardores del verano y al marino puertos que le salven del furor de las borrascas. La industria está casi muerta en Granada: los árabes que la cultivaban estan para siempre proscritos y han llegado á perder hasta el recuerdo de ella en medio de su postracion y su miseria; en Cádiz, en Sevilla, en la Carraca la vereis como en Cataluña armada de sus cien brazos, aqui arrojando al mar buques que mas tarde han de imponerle silencio con la boca de sus cañones, alli fundiendo el hierro y haciéndolo bajar como una corriente de fuego desde lo alto de la fragua, acullá sujetando cien telares á la accion del vapor, agente universal de nuestro siglo. La industria es una lucha eterna entre el hombre y la naturaleza, es la aplicacion y la multiplicacion de las fuerzas ocultas en el seno del mundo, es la continuacion del mundo mismo, el complemento de la obra de Dios: si os sentís inspirado á la vista de un templo ó de un palacio, ¿cómo no ha de enardecerse vuestra fantasía y latir vuestro corazon al presenciar esos espectáculos sublimes en que la inteligencia humana subyuga y hace servir en su provecho todos los elementos que le rodean? Dejad estos silenciosos lugares en que el hombre yace en un triste abatimiento; seguid como habeis seguido hasta ahora nuestras huellas. El hombre, la naturaleza, Dios son el triple objeto de vuestra alma: romped el encanto que os detiene en esta bellísima comarca: quedan aun ciudades, paisages, talleres, monumentos donde podais ver la divinidad creando, la naturaleza obedeciendo á leyes inviolables, la humanidad arrancando el secreto de estas mismas leyes y utilizándolas hoy para surcar los mares, mañana para cruzar el espacio en alas de los vientos, al otro dia para disipar con una sola luz las sombras de la noche.

Oyónos al principio nuestro viajero como absorvido en una meditacion profunda; mas fue animándose poco á poco al eco de nuestras últimas palabras. Ya que hubimos concluido guardó aun algunos momentos de silencio: parecia que mil ideas contrapuestas luchaban en su frente y que no sabia por dónde empezar á desarrollarlas. «He visto tambien, dijo al fin, bajar el metal fundido en torrentes de viva lumbre; he visto inmensas máquinas de hierro moviéndose á la accion del vapor como á impulsos de una voluntad secreta y misteriosa; he contemplado de noche esas fantásticas locomotoras que atraviesan el espacio con la rapidez del rayo; he visto con asombro la electricidad disipando las tinieblas y trasmitiendo á largas distancias nuestros pensamientos; he visto la naturaleza reproduciéndose á sí misma en el oscuro fondo de una cámara; he seguido con los ojos al audaz viajero que se atreve á rasgar en un fragil globo el seno de las nubes; he sido espectador de todas las maravillas del siglo. He sentido en aquellos instantes entusiasmo, he concebido ideas de orgullo, he elevado el hombre á la altura de ese ser infinito que gobierna el mundo; mas no bien he vuelto á fijar las miradas en la creacion, cuando he conocido mi error y he adorado de nuevo la armonía de esos astros que ruedan eternamente dentro de sus órbitas, la de esta tierra que rueda, gira y oscila sordamente bajo mis plantas, la de ese mar prendido en ella como un manto, la de ese sol al rededor del cual siguen centenares de mundos su veloz carrera. Las obras del hombre me conmueven; las de Dios me imponen, me turban, me confunden. He subido con vosotros á los montes que levantan sus cúspides mas allá de las nubes; no he podido menos de doblar la rodilla sobre aquellas altas cumbres. El silencio que ha reinado en torno mio, los pueblos que he visto en la llanura parecidos á pequeños rebaños que estan paciendo entre la yerba de los prados, las lejanas nieblas, las sierras coronadas de nieve que han terminado mi horizonte, el mar, el cielo, todo ha anonadado mi espíritu y me ha hecho reconocer el dedo de un Ser superior ante el cual debia prosternarme y sentir la frivolidad de mi existencia. Me visteis ya al borde de los precipicios, junto á las cascadas, al pie de los torrentes: he pasado horas enteras sobre el musgo de una roca oyendo el murmullo de las aguas y contemplando el tenebroso fondo del abismo. Me he detenido involuntariamente al cruzar un bosque de abetos; me he estremecido sin querer al pasar por un bosque de pinos. El silbido del viento entre las ramas de esos árboles salvages ha tenido siempre para mi algo de siniestro y de profundamente religioso, que ha arrojado mi ser en la inquietud y la zozobra. He tenido ocasion de ver las copas de las hayas flotando sobre un mar de nieblas, he visitado las solitarias orillas de los sumideros, he recorrido cuevas donde jamas entró la luz del dia, he contemplado desde lo alto de los cerros las aguas silenciosas de las lagunas; y he creido distinguir aun en todos estos lugares los seres fantásticos de que los cubrió la poética imaginacion de la edad media. La tempestad me ha hecho reconocer á Dios cabalgando en la nube que lanza el rayo, en la ola que se encrespa y sube al cielo, en el huracan que troncha los árboles del bosque, en el témpano que rueda hácia el abismo arrastrando consigo cuanto encuentra al paso. Hasta la soledad, el páramo, el desierto me impresionan vivamente: la naturaleza es alli menos bella pero mas sublime. He cruzado en una de las mas claras noches de verano una llanura yerma y erizada de peñascos: he creido encontrarme en el imperio de la muerte. Cada peñasco me ha parecido una fantasma, y me he estremecido hasta al ver mi sombra apareciendo y desapareciendo sobre cada una de las rocas. No hay espectáculos como los de la naturaleza para que el hombre sienta: al revolver de cada encrucijada, al trasponer de cada monte esperimentan una revolucion el alma y los sentidos. En las verdes y risueñas colinas cuyo pie bañan las aguas de un arroyo, en esos dulces y apacibles valles á que dan sombra esbeltos álamos y ligeros chopos, al pie de esas fuentes que murmuran bajo los caidos ramajes de los sauces, en medio de la pradera y la enramada late el corazon de amor, el pensamiento vuela hácia los seres mas queridos, suspiramos por tenerlos á nuestro lado y gozar con ellos de aquellos paisages deliciosos. Vemos largas y dilatadas llanuras; y recordamos al punto hechos de guerra, batallas sangrientas, ejércitos que se estrellan contra otros ejércitos como las olas del mar contra la playa. Trepamos á la cumbre de los cerros, ensanchamos ilimitadamente el horizonte, dominamos aldeas, pueblos, ciudades; y si la idea de la grandeza de Dios no nos abruma, sentimos crecer por instantes la ambicion, lamentándonos quizás de no poder subyugar tan vasto espacio. Todo habla al hombre en la naturaleza: todo dispierta en él ideas que no se borrarán jamas de su memoria. Los monumentos hablan tambien y reflejan en sus piedras lo pasado; mas las obras de cada estilo tienen un mismo lenguaje y he oido ya la voz de todos los estilos. Dejaré esta encantada comarca de Granada; mas no ya para recorrer alcázares y templos, sino para ver ese Guadalquivir que fecunda los campos de Córdoba y Sevilla, ese Océano sin fondo que azota las murallas de la ciudad de Cádiz, ese sol que baja alli al fondo del mar ceñido de una corona de tinieblas. ¿Qué puedo ver ya en los monumentos de aquellas tres ciudades? He visitado en Ripoll el monasterio de los monasterios bizantinos, en Toledo la catedral de las catedrales góticas, en Granada el alcázar de los alcázares construidos por el moro: ¿qué significacion pueden tener al lado de esos colosos la catedral y el alcázar de Sevilla? Habeis hablado de castillos, de muros y torreones llenos de recuerdos: ¿dónde he de encontrar ya ni la sombra de los de Almería? Ve uno condensados alli los siglos sobre cada torre, escrita la historia de toda la edad media sobre cada almena. Hablásteis tambien de ruinas: ¿mas qué ruinas podrán compararse con las de Iliturgis, grandioso sepulcro de todo un pueblo de héroes, con las de Tarragona, en cuyos restos imponentes se descubre aun la que fue corte de la mitad de España?»

Cada monumento, le contestamos, tiene su vida propia; cada ciudad, su historia. Las obras de cada estilo tienen un mismo lenguaje; mas no hay una obra que en ese lenguaje no anuncie distintas ideas, no hay en ella elementos en que no esten consignados nuevos hechos. El arte está en un perpetuo movimiento: hoy no es lo que ayer, por mas que ayer y hoy obedezca á las mismas causas y no pueda apelar á otros recursos. No hay dos monumentos iguales sobre la faz de la tierra: aun los que ha concebido una misma imaginacion y producido un mismo sentimiento, tienen en sí algo que los caracteriza y los distingue. El alcázar de Sevilla es hijo de la misma época que la Alhambra, es una imitacion, es hasta cierto punto una reproduccion de la Alhambra misma; mas tiene un carácter peculiar, distinto, muy distinto del de su modelo. Hay algo en él de misterioso y sombrío que nos hace olvidar pronto el alegre y voluptuoso palacio de Granada, que nos preocupa, que se apodera de nuestra alma, que fija y absorve nuestra atencion en una historia lúgubre y sangrienta escrita por las tradiciones de cuatro siglos en las galerías, en los salones, en los patios, hasta en los jardines. El espectro de un rey que en medio de la exageracion de sus sentimientos llegó á confundir la crueldad con la justicia, las sombras de víctimas sacrificadas de una manera aterradora flotan aun á nuestros ojos en lo alto de las bóvedas; y no parece sino que lo vemos todo al través de un velo fúnebre. Hay en él mas variedad de arcos, mas perspectiva, mas efectos de luz, mas contrastes de claro-oscuro: hechos todos que contribuyen á aumentar la ilusion que al principio se concibe, á escitar mas y mas la fantasía, á dar un aire mas vago y misterioso á aquel palacio. Brillan entre los adornos árabes algunas líneas del arte cristiano: vése aqui un capitel medio corintio, alli una ojiva, mas acá una serie de retratos de reyes que corre como una orla al rededor de una techumbre ricamente artesonada, mas allá una figura de relieve que levanta sus miradas hácia un cráneo, simbolo al parecer de un suceso que ocultó la historia; y hasta esa mezcla de estilos sirve para darle mas originalidad y comunicarle un interes que buscariamos inútilmente en los mas tristes y mas apartados salones de la Alhambra. Al través de sus ajimeces se descubren por un lado jardines solitarios, por otro las caladas agujas y la torre de una catedral sombría: nada, absolutamente nada hay en él que pueda distraer la imaginacion del fantasma que ya al entrar se ha concebido.

La catedral no tendrá quizás el vistoso conjunto de otras catedrales; mas apenas la distingue desde las aguas del Guadalquivir el artista que va de Cádiz á Sevilla, cuando la contempla ya como una obra original en su estilo, y suspira por abarcar de cerca su misterioso y tétrico conjunto. Está adosada á una de las mas imponentes torres árabes, erizada de pirámides y agujas, perforada, calada, ataraceada, cubierta de fachadas y coronada de gárgolas, embellecida por un patio de naranjos que refleja aun el islamismo. Es en su interior grande y sencilla, sobria de adornos, mas llena de magestad que de delicadeza, homogénea, compacta, bella. No abunda en detalles; pero reune en sus capillas las mejores obras de pintura, en su presbiterio las mejores obras de escultura. Es toda ella un poema, un libro de piedra en que estan escritas con los mas brillantes caractéres la ley de Moisés y la de Cristo, las escenas de la vida de los patriarcas, los profetas, los apóstoles, la Vírgen, el Redentor del mundo. Los últimos rayos del sol mueren en otoño al pie del Crucifijo que corona su inmenso tabernáculo: no hay conjunto como el que entonces se ofrece al que está situado en una estremidad de su crucero. Los cristales de las ventanas son todos de colores; la luz que pasa por ellos ilumina de la manera mas fantástica aquel lúgubre madero. Uno que otro reflejo hiere desigualmente las bóvedas, los haces de columnas, el pavimento, el coro; aparece el tabernáculo en la oscuridad, lo demas del templo envuelto en vagas y confusas sombras. No es ya posible detener la imaginacion: vuela al Calvario y ve en todo su horror el final de aquel sangriento drama en que un hijo de Dios muere por la humanidad como un esclavo. En la parte posterior del presbiterio, allá en lo alto hay una doble línea de estátuas ennegrecidas por los siglos: se conmueve, se estremece el cristiano al verlas á la luz del crepúsculo suspendidas en el muro. Vuelve los ojos, y bajo una bóveda, cuajada tambien de figuras, ve un sepulcro, un cetro y una corona sobre la losa, una que otra bandera; comprende que está alli enterrado un héroe y dobla involuntariamente la rodilla. Yace dentro de aquel sepulcro S. Fernando.

No, no se ha cerrado aun para nosotros la historia del arte: no estan agotadas aun las impresiones que podemos recibir en el seno de los monumentos. Sentireis en la mezquita de Córdoba como no habeis sentido nunca. Andareis errante y lleno de entusiasmo por aquel bosque de columnas, os turbareis ante la espléndida magnificencia del santuario, dejareis el mihrab como un creyente del Profeta; y vos, sectario de la doctrina de Jesucristo, llegareis á maldecir al que se atrevió á derribar sus techos y á interrumpir la armonía de sus naves para levantar en ellas altares á vuestro Dios, altares á los que por él arrostraron el martirio. El puente que tiene la misma ciudad sobre el Guadalquivir, el castillo gótico que lo defiende, el humilde molino árabe sentado en la orilla del rio cautivaran vuestro corazon hasta el estremo de haceros pasar horas enteras al pie de aquellas aguas cristalinas. Las iglesias de Utrera os sorprenderán con sus portadas, altas, gigantescas, asombrosas para el que no haya visitado los monumentos que dejó en Italia el genio colosal de Miguel Angel. No constan estas fachadas mas que de un solo cuerpo cuya continuacion es la torre de las campanas, y se presentan á los ojos del que las observa á alguna distancia como pirámides inmensas. Una de ellas es gótica, otra greco-romana; mas producen ambas la misma impresion, admiran todas por la magestad de sus líneas y la grandiosidad de sus formas. Los reinos de Córdoba y Sevilla no son tan fecundos en obras monumentales como otras provincias; mas hasta en pueblos de segundo orden ofrecen páginas notables. Los castillos de Carmona y Moron son ruinas que seguireis con placer y terminarán por sumergiros dulcemente en la melancolía; la fachada de las antiguas casas consistoriales de Jerez es una de las flores mas delicadas del Renacimiento; la iglesia de S. Miguel en la misma ciudad, uno de los mas ingeniosos rasgos del goticismo en los primeros tiempos de su decadencia. ¿Deberé hablaros ahora de Cádiz? ¡Ah! la primera ciudad de España mentada por la historia apenas tiene una piedra que recuerde su pasado. De sus murallas fenicias, de su templo de Hércules, de los monumentos que le dejaron las repúblicas de Cartago y Roma quedan solo una tradicion vaga y oscura y uno que otro fragmento. Hubo un siglo en que fue la reina de los mares, hubo un tiempo en que manaba en oro, en que miraba cubierta su bahía de buques de cien naciones que codiciaban su riqueza: engalanóse entonces, levantó en sus plazas templos y palacios; y, sin embargo, nada, casi nada le queda ya tampoco de aquellos dias felices, de aquella época brillante. Su pasada grandeza solo está ya reflejada en una que otra iglesia y en el infinito número de mármoles que adornan hasta los umbrales de sus mas humildes edificios. ¡Cosa singular! tiene un solo templo verdaderamente notable; y este rico y suntuoso templo ha sido levantado hoy, en este mismo siglo, cuando han pasado ya sus dias de esplendor y gloria, cuando la ciencia ha empezado á estender las sombras de la duda sobre las creencias religiosas. Es greco-romano y está aun incompleto; mas gozareis en él cuando veais el tabernáculo solo y aislado en medio de tres anchas naves cuyo pavimento, cuyas columnas, cuyas capillas ostentan los mas ricos y bruñidos mármoles. Construido segun el orden corintio, presenta unidas la mayor opulencia y la hermosura. No, no parece de nuestra época aquella catedral soberbia; es en nuestra época un fenómeno, un verdadero anacronismo. Se presenta fria, tiene defectos ademas de los que son propios de su estilo; mas hasta en ella sentireis... sí, ¿quién no siente ni se inspira ante el monumento que ha ido creciendo piedra sobre piedra mientras no lejos de él iba desmoronando el huracan las casas levantadas al Señor por hombres de otros siglos, ya medio derribadas por la revolucion que llevan inoculada en sí las generaciones que viven hoy sobre el ensangrentado suelo de todas las naciones? No hay un solo monumento que no encierre interes para el que desee leer en la piedra los secretos de la historia y sepa enlazar con ellos la vida de los pueblos. Sois hombre de corazon, de sentimiento: nos lo revela vuestro mismo estado, vuestras mismas palabras, hijas del mas puro entusiasmo por todo lo que es grande y bello: habeis empezado con nosotros vuestros viajes, y estamos seguros de que con nosotros los concluireis: ¿á qué arredraros ni desmayar cuando solo estamos á la mitad de la jornada?

«Flaqueza de ánimo habrá parecido en mí, repuso entonces el viajero, la irresolucion que he manifestado para seguir como hasta ahora vuestras huellas; mas les debo tanto á estos lugares solitarios... dejé un dia el arte por la ciencia y ¡ay! no encontré mas que veneno en el fondo de esta engañosa copa. Desfallecieron mis creencias, entronizóse en mi espíritu la duda, y vagó por mis labios la blasfemia. Cuanto mas pretendí sondar el origen de las cosas, tanto mas se entenebreció mi alma, tanto mas fui impío. Cobré tedio á la sociedad, cobré tedio al mundo; me encerré en un egoismo fatal de que hoy mas que nunca me avergüenzo. Parecióme todo un juego de azar, y miré con indiferencia mi propio destino y el destino de los pueblos. En un estado tal, quise arrojarme desenfrenadamente á los placeres, quise ahogar el grito de mi dolor en el estrépito de la bacanal y de la orgía; mas en vano: mi corazon era ya la hoja que se desprende del árbol al soplo de las auras del otoño, mi actividad estaba muerta, muerta como mi alma. Supe que íbais á salir para el reino de Granada, y resolví seguiros. ¿Quién sabe, dije, si la vista de nuevos paises me restituirá la calma, si los grandes espectáculos de la naturaleza volverán á alumbrar mi fé estinguida, si las ruinas de los monumentos que nos legaron otros siglos encenderán de nuevo la llama de mi amor al arte? Atravése Sierra Morena, y al ver sus bosques, sus coronas de peñascos, sus abismos, sentí ya dentro de mí otro ser, otra personalidad, otro sentimiento. La idea de Dios hirió otra vez mi espíritu, levanté al cielo los ojos, y reconocí en la naturaleza el orden, en el orden á Dios. Cayó de repente el velo que habia entre mí y el mundo; mas solo por un breve plazo, solo por momentos. La sombra de la duda se alzó en mí como un espectro; y creí oirla echándome en cara la facilidad con que sucumbia al recuerdo de mis antiguas creencias. Continué el viaje siendo presa de la misma inquietud, sumergido por completo en la melancolía. Llegué á Iliturgis; y no me referísteis en aquellas tristes ruinas sino hechos sangrientos que hicieron estremecer aun mi corazon gastado: bajé á Arjonilla, á Arjona, á Martos; y solo oí de vuestra boca en aquellas pequeñas y silenciosas villas infidelidades de príncipes y de caballeros, raptos, asesinatos, injusticias de reyes: recorrí Jaen, Baeza, Úbeda; y vi en todas partes junto al suntuoso palacio la mísera cabaña, el brillo de los pasados encubriendo los vicios de los presentes, el sepulcro de los que ya murieron sirviendo de escudo á los que de ellos descienden para defender contra los demas hombres el fruto de su crímen. Vi en Guadix el tercio de la poblacion condenado á vivir y morir en el fondo de una cueva; crucé leguas de campos incultos y desiertos á poco de haber dejado pueblos sumidos en el abatimiento y la miseria; llegué en una de las horas de mas animacion á la ciudad de Almería, y entré en ella en medio del silencio mas profundo. Visité Motril, Velecillos, la Alpujarra; hallé donde quiera la quietud del sepulcro, la calma de la muerte. En vano me hicísteis observar perspectivas tan grandiosas como pintorescas: en vano llamásteis mi atencion sobre los templos que erigió la fé de otras generaciones: preocupado por los grandes problemas de la ciencia, no atendia mas que al estudio de los hombres con el objeto de reconocer por ellos la existencia y la naturaleza de esa causa de las causas, de esa incógnita que será tal vez un misterio eterno para la inteligencia humana. No encontré vestigios de bienestar sino en la ciudad de Málaga, que hoy animan á la vez la industria y el comercio; y aun alli ¡qué de funestas rivalidades! ¡qué de almas que lloran en secreto las calamidades que las afligen! ¡qué de crímenes cometidos á la sombra de la noche! Vine á Granada, al fin, desesperando de los hombres, desesperando de Dios. ¡Ah! decia yo para mí, ¿quién curará mi alma lastimada? ¿quién podrá levantar ya mi espíritu caido? ¿quién devolverme la paz de que gocé en mejores dias?

»Granada fue la que operó en mí esta revolucion benéfica. Su bella situacion, la grandiosidad de sus paisages, los recuerdos de su historia empezaron por subyugar mi razon y encender mi fantasía: revivió en mí el amor al arte: pensé, soñé de nuevo, y logré por de pronto olvidar, si no curar, mis males. La vista de esos valles y esos montes serenó mi espíritu; el espectáculo sublime que ofrecen aqui el cielo y la tierra me reconcilió con la idea de una divinidad coexistente con el mundo; el orden que observé en todos los fenómenos me hizo reconocer la Providencia; y al volver la vista á mis semejantes, me vi obligado á sospechar que aun en medio del desorden que reina en las sociedades obedecemos sin sentirlo á una ley por la que tarde ó temprano se ha de cumplir nuestro destino. Volvieron á aparecer entonces en mí la creencia y la esperanza; y me sumergí todos los dias mas y mas en esa naturaleza seductora y evidentemente poética, único medio por el cual puedo llegar á unirme con lo eterno y lo infinito.

»¿Cómo quereis que no deje con sentimiento esta comarca? Mas os ofreceis á dirigirme por los reinos de Córdoba y Sevilla, decís que vais á ponerme frente á frente con una naturaleza, si no mas bella, mas rica aun y mas grandiosa, con mezquitas árabes que respiran mas el arte, con monumentos que tienen un carácter mas severo y sombrío, con templos cuya grandeza ha de imponerme: mis ojos estan sedientos de nuevas impresiones, de nuevas sensaciones mi alma: partamos, suspiro ya por hallarme en la corriente del Guadalquivir, en las olas del Océano. La plateada serpentina de los rios caudalosos, la inmensidad de los mares han cautivado siempre mi imaginacion y mis sentidos: partamos: quiero bañarme en las aguas de ese rio en que cayó roto y ensangrentado el manto de los califas, quiero surcar ese Océano sin fondo, bajo cuyas olas supusieron los poetas de la antigüedad el lóbrego reino de Pluton, las vastas profundidades del infierno. ¡Córdoba, Sevilla, Cádiz! ¡qué de recuerdos han agrupado alli los siglos! partamos: llevadme á estas ciudades llenas, como decís, de arte, de historia, de poesía. Llevadme donde quiera que pueda ver, donde quiera que pueda sentir, donde quiera que pueda soñar con lo pasado: necesito aun estar ébrio de arte para olvidar el dolor de mis heridas. Hablad, pero olvidando siempre las miserias de lo presente y la incertidumbre de lo futuro: ocupad por completo mi imaginacion con la memoria de lo que fue, exaltad mi corazon en amor á todo lo bello: la realidad, el porvenir estan ya por desgracia ante mis ojos.»

No dirigimos ni una palabra mas á nuestro viajero: reconocimos en él á la mayor parte de nuestros lectores; y no pudimos menos de convencernos de cuán necesarias son en nuestra sociedad las obras destinadas á ocupar principalmente el corazon y la fantasía de los que no pueden menos de vivir atormentados por las calamidades presentes y el deseo de preparar un porvenir mas halagüeño.





barra decorativa

RECUERDOS Y BELLEZAS
DE
ESPAÑA.

SEVILLA, CÓRDOBA, CÁDIZ.

Capitulo primero.

Primeras impresiones recibidas en Córdoba.—Ojeada general sobre su historia.



MEDIABA[B] ya la noche, cuando entramos por primera vez en esa ciudad de Córdoba, á que han comunicado tanto interes la historia y la poesía. Yacía la ciudad sepultada en silencio: apenas se percibia mas que el dulce susurro del viento entre sus frescas arboledas. La luna resplandecia en lo alto del horizonte; pero no alumbraba sino los techos de sus viejos monumentos: sus estrechas y tortuosas calles estaban casi todas cercadas de tinieblas.

Sentiamos una viva inquietud. Éramos aun niños cuando la leyenda nos habia hecho ver ya con los ojos de la fantasía esa segunda Damasco, sentada bajo la sombra de sus palmeras á orillas de un caudaloso rio. Agolpábanse á la sazon en nuestra frente las ilusiones de la infancia; y temiamos verlas deshojadas por el soplo de la realidad, soplo helado y funesto que pasa sobre nuestra imaginacion como el del cierzo sobre el caliz de las flores.

No distinguimos por de pronto nada que revelase la mano de los árabes; pero debimos reconocer á poco la antigua ciudad musulmana en lo desigual de sus calles y sus casas, en lo mezquino de sus portales, en la sencillez de sus fachadas. Vimos á trechos asomar por encima de estos, árboles frondosos que subian al parecer desde el fondo de los patios: recordamos que los orientales guardan para el interior la belleza que otros pueblos se complacen en desarrollar en el esterior de sus edificios; y no pudimos menos de concebir la esperanza de descubrir todavía, aunque desfigurada y rota, una ciudad morisca.

Esperábamos con impaciencia que rayase el alba: no veíamos llegada la hora de penetrar en esos templos donde tantos emires y califas adoraron al Profeta, en esos ricos alcázares donde fueron recibidas tan brillantes embajadas y perpetrados los mas negros crímenes, en esos ensangrentados muros de que colgaron los reyes moros las cabezas de sus enemigos, en esos encantados jardines donde languidecieron de amor tantas sultanas, en esos profundos acueductos, abiertos en las peñas, donde gimió sin ser oida tanta muchedumbre de cautivos.

Contemplamos en tanto gran parte de la ciudad desde un ajimez de la casa en que viviamos. El espectáculo que á nuestros ojos se presentaba no podia ser mas bello. Alzábanse acá y acullá de entre techos desiguales torres mas ó menos imponentes cuya negra silhueta se destacaba sobre los montes inmediatos ó sobre el azul del cielo. Brillaban á un lado las aguas del Guadalquivir; estendíanse al otro las faldas de Sierra Morena, sobre cuyas cumbres centelleaba una que otra estrella, como el ojo de un cíclope que está para conciliar el sueño. Ligeras nubes, blancas cual la nieve, recorrian el espacio en alas de suaves brisas embalsamadas por las flores: sutiles, transparentes, dejaban ver al través de sí la bóveda del firmamento, y no parecian sino aéreas gasas destinadas á realzar la hermosura de ese estrellado manto de los cielos. Murmullaba debajo de nosotros el follage de los naranjos y los álamos; allá á lo lejos, en el fondo, se distinguia una palmera; mas allá aun, ya fuera de las murallas, masas oscuras que parecian otras tantas arboledas. Ostentaba alli sus ricos dones la naturaleza; aqui sus ricas galas, el arte; y brotaba de todas partes una armonía indefinible que hablaba al corazon, dejaba cautiva el alma y suspensos los sentidos.

Apoderóse en breve de nosotros una dulce melancolía. Arrojó la historia sobre la ciudad un velo fúnebre; asaltaron nuestra imaginacion tristes recuerdos. Esta ciudad, ahora dormida, nos dijimos, ¡qué de veces no ha dispertado llena de sobresalto al grito de la rebelion y al rumor de los combates! Estalló un dia una guerra encarnizada entre César y Pompeyo. Vino César sobre Córdoba y la ganó: aqui fue donde recibió el homenage de casi todos los pueblos de la Bética, aqui donde vió rendido á sus plantas á su enemigo Varron, aqui donde terminó en medio de los aplausos de todo un reino la primera y la mas gloriosa de todas sus campañas. Retoñaron algun tiempo despues las discordias civiles. Ocupó Sexto Pompeyo la ciudad y César se vió obligado á cercarla. Era de un carácter benigno y generoso este soldado; mas, creyendo ver en este hecho una defeccion, cegó de cólera. Levantó el sitio apenas supo que Pompeyo habia salido de la ciudad, le derrotó en Munda, bajó de nuevo á Córdoba, y pasó á cuantos le opusieron la menor resistencia por el filo de la espada. ¡Qué dias aquellos tan aciagos! Estaban divididos los cordobeses en cesarianos y pompeyanos: los pompeyanos querian morir bajo las ruinas de la ciudad antes que entregarse á César; los cesarianos conspiraban sin tregua contra los pompeyanos; rompieron en un momento dado los dos bandos; y perecieron no solo los principales cesarianos, sino hasta sus hogares y sus hijos. Subian aun al cielo los vapores de la sangre y las llamaradas del incendio, cuando entró César para consumar la obra. La ley del talion fue aplicada en todo su rigor; el espíritu de venganza quedó completamente satisfecho. Murieron bajo el hierro del vencedor mas de veinte mil partidarios de Pompeyo; fueron echados los demas de sus albergues; condenados muchos á andar errantes por la tierra llevando en su frente el sello del proscrito. ¡César! ¡César! no era esta la mision que te habia confiado tu destino. ¿Cómo pudiste en un instante de ira venir á cubrir de luto una ciudad á que antes y despues consagraste tus recuerdos? ¿cómo no supiste acallar aqui tus pasiones, tú que acostumbrabas á levantar entre tus brazos al vencido, tú que no tuviste corazon para ver la cabeza de Pompeyo y dejar de verter sobre ella una lágrima de compasion y de ternura? ¡César! ¡César! hemos creido ver aun tu sombra airada pasando sobre esta ciudad de Córdoba: perdónanos si llevados por la fuerza del sentimiento hemos recordado con placer que fuiste á espirar bajo el puñal de Bruto.

¡Ah! fuiste indudablemente bien desgraciada, ó Córdoba. No habia caido aun la república en manos de los emperadores, cuando eras ya colonia y viste cubierto de monumentos tu recinto; de quintas, tu campiña. Viriato pasó junto á tus muros y no tuviste que sentir el peso de sus armas. Metelo dió en tu seno sus espléndidos banquetes: César, el mismo César, te coronó de gloria. Mas ¡cuán pasagera fue tu dicha para el dolor y la amargura que hubiste de devorar en medio de las tinieblas y el silencio! Casto Longino, gobernador en nombre de César, te arrancó tu libertad y tus tesoros: sufriste, lloraste; y cuando no pudiste ya con tus pesares, no encontraste otro medio para salvarte de su codicia que lanzarte al campo de batalla. Vino á poco el mismo César á herirte de muerte; cuatro siglos despues, los vándalos, ese terrible azote enviado por la mano de Dios para regenerar la embrutecida Europa. Te mostraste poderosa contra Agila, cuyo hijo anegaste en la sangre de sus tropas: fiera, romana siempre, llegaste entonces á reconquistar tus leyes municipales, á hacerte libre, á emanciparte, sola y sin mas que tus propias fuerzas, del imperio godo. Mas ¡cuán en breve tuviste tambien pendiente sobre tí el cetro asolador de Leovigildo! Destruyeron el hierro y el fuego tus soberbios monumentos: fueron tus mejores hijos sepultados en el fondo de tus ruinas. Cayó sobre tí la mas horrible tiranía; y ni libertad tuviste para quejarte de tus infortunios. Fuiste el sepulcro de tu pueblo, el monte en que sentaron sus trofeos tus implacables enemigos.

Cayó Córdoba en poder de los árabes poco despues de la batalla del Guadalete. Anocheció libre y amaneció cautiva. Fue asaltada de noche por las tropas de Mugueith; y cuando al dispertar se vió por todas partes cercada de invasores, no pudo hacer mas que doblar humildemente la cabeza y sufrir la ley de los vencidos. Corte á poco de los emires que gobernaban la España en nombre de los califas de Damasco, no tardó en recibir animacion y vida de las gloriosas espediciones militares dirigidas contra las fronteras de las Galias; mas no tardó tampoco en estar amenazada por esas funestas guerras de tribu á tribu que socavaron desde un principio los cimientos de este nuevo imperio sujeto á las banderas del Profeta. Vivió pronto no ya en medio de la animacion, sino en una agitacion febril alimentada sin cesar por odios y ambiciones personales: hoy vió entronizar á un emir, mañana le vió deponer por una muchedumbre insensata ó por una soldadesca ébria; precipitóse todos los dias mas á la anarquía y estuvo próxima á una completa ruina. Recobró aliento al entrar por sus puertas el jóven Abd-el-rhaman, último resto de la familia ommyada; mas hasta bajo esos mismos ommyadas tuvo dias de luto y de amargura. Encendióse sobre el sepulcro de Abd-el-rhaman una guerra fratricida que retoñó por mucho tiempo al fin de cada reinado y engendró los mas horrendos crímenes; subió pocos años despues al trono el vengativo el Hakem que tomó el terror por sistema de gobierno, y sumergió de nuevo esta ciudad en la sangre de sus hijos. El Hakem, sobre todo, fue para ella fatal: creó con objeto de oprimir á sus súbditos una milicia permanente, recargó de una manera escesiva los tributos, y sublevó contra sí los ánimos del pueblo. Irritado este, se arrojó á la calle y desahogó su ira contra los recaudadores. Súpolo el Hakem, rugió de cólera, y mandó empalar públicamente en una de las orillas del rio á diez de los rebeldes. Exaltado el pueblo á la vista de tan bárbaro espectáculo, no pudo ya contener sus ímpetus: lanzóse como un tigre sobre los soldados de la nueva guardia, descuartizó á cuantos pretendieron oponerle resistencia, se dirigió al alcázar, prorumpió en alaridos y amenazas, protestó enérgica y fieramente contra la tiranía de sus reyes. El hijo del emir, los altos funcionarios de palacio, cuantos rodeaban á el Hakem le suplicaban con instancia que les permitiese salir para aplacar el tumulto con palabras de paz y de concordia; pero el Hakem, sediento ya de sangre, no quiso escuchar mas que la voz de sus pasiones. Acometió de improviso la desarmada muchedumbre, alanceó, mató, desgarró las mal heridas victimas bajo los pies de sus caballos, mandó clavar vivos en las orillas del rio á trescientos prisioneros.

No estuvo contento aun: los fugitivos se habian retirado al arrabal: entregó por tres dias el arrabal á merced de sus soldados. No haya perdón, dijo, ni aun para las casas que han servido de asilo al delincuente; casas, hombres, mugeres, ancianos, niños, todo pereció por el fuego ó por la espada. Cansado ya de destruir, pregonó al cuarto dia un indulto: ¡oh! la sangre hierve en las venas al considerar tan grande ultraje. ¡Un indulto despues de cuatro dias de saqueo y de esterminio! ¡y qué indulto! Desterróse en él para siempre á centenares de familias, condenóse á mas de quince mil hombres á andar errantes y desnudos por las costas de Africa. ¡Pobres proscritos! Los hubo que tuvieron que ir á buscar un albergue en el Egipto, conquistando á fuerza de armas la ciudad de Alejandría. ¡Cuántos entre estos no perecieron en el camino de hambre y de fatiga! Las tribus que se internaron por España no hallaron descanso ni tregua á sus dolores hasta que, compadecida Toledo de tan amargas desventuras, les abrió sus puertas y les dió un lugar en su recinto. ¡Pobres proscritos! La muerte de sus hijos, la usurpacion de cuanto habian poseido, el incendio de las casas en que habian abierto por primera vez sus ojos á la luz del mundo, no eran aun bastantes para acibarar su vida: faltaba la emigracion, el desconsuelo de deber abandonar para siempre el suelo de su patria. Faltaba aun mas: faltaba que anduviesen de pueblo en pueblo mendigando un asilo y no encontrasen por mucho tiempo un corazon sensible; faltaba que debiesen los mas regar con nueva sangre el pais en que pretendian fijar su residencia; faltaba que echados de este por un gobernador de Egipto, tuviesen que armarse en corso y piratear por los mares de la Grecia hasta haber dado con una isla poco menos que desierta, donde pudiesen levantar sin necesidad de lucha sus míseras tiendas de campaña; faltaba que perseguidos hasta en aquella isla por la mano del destino, se viesen obligados á rechazar por dos veces las fuerzas del imperio griego y á sucumbir por fin á una dura servidumbre. Terrible, terrible fue su suerte: ¡ay! ¡y no hubo quien la vengara! Tú, Córdoba, te anonadaste y no hiciste mas que verter un llanto inútil. ¿Cómo no te alzaste y heriste la frente del malvado? ¿cómo no hallaste en medio de tu furor armas con que reducir á polvo á los impíos que abrieron con mano airada tu palpitante seno? Esperaste en Dios y venciste: confiaste tu venganza en la Providencia y la Providencia te la dió cumplida. Veo aun á el Hakem cruzando á pasos descompuestos los salones de su alcázar, lleno el corazon de pesares y de remordimientos. Las sombras de sus víctimas le siguen sin cesar y le precipitan á los mas violentos arrebatos de demencia. ¡Sangre! ¡sangre! grita á cada momento: sacadme de ese mar de sangre, esclama. Toda mi generacion está manchada con la que yo he vertido. Huid, huid de mí; dejadme solo con mis espectros y mi sangre hasta que esta sangre me ahogue. Desesperado, abatido, cae despues en una profunda melancolía: no puede ya con sus recuerdos, no puede ya con su dolor: vedle exhalando su último suspiro. Ha muerto, y no suena en todo el palacio ni un gemido; no hay quien derrame una lágrima siquiera. Todo es silencio en torno del cadáver: apenas hay quien se atreva á mirarle, y hasta sus mismos hijos se cubren el rostro por no verle. Solo el pueblo llora; pero llora de gozo, de gratitud al cielo por verse libre ya del monstruo que acuchilló á sus hijos. ¡Regocijaos, vosotros tambien, pobres proscritos!

Dias de tanto horror no se borrarán jamas de la memoria de los hombres. Buscamos en vano el lugar en que estuvo situado el arrabal; no quedan ya ni escombros. Brota aun sangre de tu profunda herida, desventurada Córdoba: ¿cómo en siglos mas felices no encontraste quien la cicatrizase? Recuerdo tiempos para tí dichosos, dias llenos para tí de magestad y gloria. Cien años despues ¿no tuviste aun en el trono de los califas á ese magnánimo Abd-el-rhaman III, que despues de haber llevado sus armas vencedoras al interior de Castilla, al Africa, al Egipto, construyó junto á tus muros los palacios de Medina Azarah y te arrulló al melodioso son de los sublimes cantos que inspiró á tus poetas? ¿No viste á poco brillar de nuevo la estrella de Augusto en la frente del generoso el Hakem, de ese el Hakem II de quien dijeron los árabes que habia logrado convertir en rejas de arar tus armas, en pacíficos labradores tus guerreros? ¿No viste entonces cubrirse de flores tu campiña; de numerosos rebaños, las cumbres de tus cerros; de una rica vegetacion, las faldas de tus colinas pintorescas; de sabios, tus alcázares dorados; de peregrinos, tu mezquita djehma; de oro, tus robustas arcas? Sucedió á Hakem el débil Hescham II; mas ¿no fue bajo el reinado de este que salió de entre la muchedumbre de tus soldados ese intrépido Almanzor, terror de los ejércitos cristianos, héroe que hizo morder el polvo de la tierra á cuantos se atrevieron á medir con él su lanza, varon tan celoso de su dignidad, que al sentirse herido en Calatañazor y al creer segura su derrota, rasgó los vendajes que detenian su sangre para morir sobre el campo de batalla? ¿Cuándo arrojó mas vivos resplandores el astro de tu fortuna y de tu gloria? Las ciudades del norte y del oriente de España te enviaron sus mas hermosas cautivas y espléndidos tesoros; Santiago de Compostela te mandó enormes campanas que sirvieron de lámparas para tus mezquitas; el Africa coronó tus sienes con las mejores palmas del Desierto. Fuiste la reina de las naciones, fuiste la luz del mundo. La ciencia tuvo en tí su templo; el arte, su logia; la industria, su taller; la poesía, su palenque. No solo los pueblos que adoraban al Profeta, la Italia, hasta la Grecia te cedieron en tributo sus mas grandes sabios. Los mas bellos monumentos de Europa estaban dentro de tu recinto; las mejores calzadas conducian á tus soberbios muros; los mas vistosos campos se estendian á tus pies como una alfombra. Huertas deleitosas, jardines encantadores matizaban la sierra donde estás sentada; bullian donde quiera entre los pomposos ramajes de tus árboles aguas cristalinas bajadas de lo alto de los cerros, estraidas de las mas hondas concavidades de la tierra. El Guadalquivir te traía aun en alas de sus ligeros buques los frutos de la feraz Sevilla; las opulentas regiones del Tarteso te regalaban aun el oro de sus fecundas minas. Una nacion entera estaba humillada á tus plantas y obedecia al menor de tus caprichos. Oía tu grito de guerra, y se lanzaba como un leon á la pelea; ordenabas la paz, y volvia al cinto su formidable espada. Ese mismo Almanzor, cuya imaginacion embargaban sin cesar sus espediciones militares, apenas sabia guardar para otra que para tí los laureles que recogia entre la polvareda del combate: te acariciaba al volver de sus audaces correrías como un cazador á su perro de caza, como un soldado á su corcel de guerra. Córdoba, Córdoba, ¿cómo no se cerraron entonces tus heridas?

¡Ah! con razon, con sobrada razon guardas silencio, desdichada Córdoba. No ignoramos quién era ese Almanzor. Sabemos bien que si te elevó á la cumbre de tu grandeza, fue tambien el primero en motivar tu caida. Almanzor no era tu califa; no era mas que un hadjib, un valido de tu soberano. ¿Qué hacia Hescham en tanto que él tenia aterrada la Península con el ronco fragor de sus batallas? Tu infortunado rey vivia en una eterna infancia ageno de los negocios del gobierno: no ejercia su imperio sino sobre las flores de su jardin, sobre el corazon de sus esclavas. Muerto Almanzor, tuvo que entregarse en brazos de otro hadjib; murió este segundo hadjib, y tuvo que entregarse en brazos de un tercero. Pertenecieron los tres á una familia; pero no todos le fueron igualmente fieles. Almanzor, celoso de la autoridad omnímoda que ejercia sobre la España Arabe, le distrajo de los negocios del gobierno, aunque no intentó nunca usurparle el trono á que hubiera podido subir llevado sobre el escudo de los ejércitos que habia conducido á la victoria; Abd-el-melek, hijo primogénito de Almanzor, siguió guardándole la lealtad jurada; Abd-el-rhaman Anasir, hermano de Abd-el-melek, le movió á impulso de su propia ambicion á que le declarara sucesor al trono. ¡Declaracion fatal, terriblemente fatal para tí, ciudad desventurada, sobre cuya cabeza fue desde entonces amontonando el Señor todo género de males: la guerra, el crímen, el hambre, la anarquía!

Duerme, duerme, ciudad: duerme tranquila tu tranquilo sueño. No quieras oir otra vez tus espantosos infortunios: no quieras recordar de nuevo tan sangrienta historia. Se estremecen de horror hasta los que la leen en el silencio de sus corazones: ¿qué no sufrirías tú que tienes aun impresa en tu cuerpo la roja huella de los que á la sazon le precipitaron al fondo de un abismo? La declaracion de Hescham armó á Mohammad su primo; y Mohammad y Abd-el-rhaman se batieron bajo tus murallas. Vencedor Mohammad, hizo morir en una cruz á su enemigo, encerró secretamente á Hescham, le dió por muerto á los ojos de tus hijos, y empuñó al fin teñidas en sangre sus manos el cetro de tus califas. Quiso desarmar á los berberiscos; y estalló una rebelion en que tu pueblo tuvo ya que tomar parte contra tan odiosos africanos. Salieron estos vencidos, abandonaron tus hogares; mas para volver pronto á desgarrar tu seno con sus armas y las armas de Castilla. Te ocuparon por segunda vez despues de haber derrotado á Mohammad en la batalla de Jabalquinto; y no te dejaron ya sin haber antes devastado y saqueado tus palacios de Medina Azarah. Mohammad, acompañado de un ejército cristiano que le enviaron los condes de Barcelona, invadió de nuevo el trono de tus antiguos reyes; mas para corto, para muy corto tiempo. Vencido á poco en un combate que tuvo con los berberiscos, falto del apoyo de sus aliados, enemistado con tus hijos, te puso al borde de un precipicio, del que solo pudo arrancarte la mano de su hadjib sacando del ignorado encierro á Hescham, tu legítimo califa. Mohammad vió alzarse ante sí á su primo Hescham como una sombra: quiso conjurar su enojo con humildes súplicas, pero inútilmente. Fue decapitado, entregado su cuerpo á la muchedumbre, llevada su cabeza sobre la punta de una lanza al audaz Soleyman, á quien Hescham trató de dar con esto ejemplo. Tuviste entonces restablecida la legitimidad sobre tu trono; mas ¿qué podias esperar de ese cobarde Hescham, que nunca aspiró mas aliento que el de sus jardines, ni conoció mas placeres que los de su serrallo? Estás condenada á languidecer y á morir; de tu suelo no brotan ya sino la ambicion y el odio para prolongar el horrible dolor de tu agonía. Duerme, duerme, ciudad: duerme tranquila tu tranquilo sueño.

Hescham no supo hacer mas que acelerar tu ruina. Tenía en todo el reino un solo hombre capaz de sostener su vacilante trono; y le entregó por meras sospechas de traicion al hacha del verdugo. Cercado por todas partes de berberiscos que devastaban sin cesar la Andalucía, se anonadó, y no pudo dar nunca un paso mas allá de tus murallas. Te vió con dolor abatida, devorada por el hambre, consumida por la peste; pero no fue capaz ni aun de procurarte pan teñido con la sangre de tus hijos. No se sintió con fuerzas ni aun para salvarte del poder de Soleyman, que cayó al fin sobre tí y vengó en tí las afrentas recibidas por sus feroces africanos. Afeminado, débil, dejó que su enemigo te tomara por asalto; desapareció á la hora del peligro tras los soldados que habian de velar por tu defensa; y te abandonó medio moribunda al furor de los que venian dispuestos á acabar contigo. No pereciste aun; mas ¿quién podia creer que no hubiese llegado ya tu última hora? Dueño de tí Soleyman, «robad, saquead, dijo á sus tropas: ahogad la voz en la garganta de los que os ultrajaron.» Por tres dias tuviste hundida en tu seno la lanza de los bereberes; por tres dias te viste condenada á asordar el aire con inútiles gemidos. Desencadenado contra tí el odio profundo de una raza que fue en todos tiempos el azote de tu pueblo, sola, aislada, no encontraste por eco de tus lamentos sino un contínuo grito de venganza, y llegaste hasta á perder la voz para quejarte de tus acerbos males.

Soleyman no se contentó ya con ser el general de tus ejercitos: levantó de las oscuras gradas del trono la espada de tus reyes. Orgulloso, intolerante, destituyó de sus destinos á los árabes y te sujetó por completo al dominio de sus soldados. Ejerció sobre tí una tiranía insoportable: te injurió, te oprimió, arrojó con desden sobre tu frente los restos de tu antiguo imperio. No contaba con simpatías, no contaba con mas apoyo que el de sus propias armas; mas estas armas eran fuertes en la pelea, él bravo y fiero como uno de esos leones del Desierto. Se hacia dificil quebrantar su poder, romper su lanza. En otro tiempo tú misma hubieras bastado á quebrantarlo; mas ¿cómo podias entonces tener fuerzas ni aun para levantar al cielo tus suplicantes brazos?

Hayran, hadjib que fue de Hescham, fue entonces el único que concibió la esperanza de salvarte. Habia sido herido en el asalto del Alcázar y recogido por un desgraciado que se compadeció de él y le ocultó en su casa. Cicatrizado apenas su cuerpo, no pudo mirar con indiferencia la suerte de su patria: salió de España, pasó al Africa, conjuró al valí de Ceuta Aly ben Hamud á que viniera con su ejército á rasgar las ataduras que te unian ya al sepulcro. El interes que tenia por tu pueblo le inspiró elocuencia para traer consigo al esforzado Aly. Entró; dirigióse al punto contra Soleyman que, temiendo esperar al enemigo en tu recinto, abandonó tus muros; le halló, luchó con él, y no paró hasta presentarle herido y maniatado al valí, que no pudo verle sin afearle sus hechos y cortarle la cabeza con su cimitarra. No pudo ser mas rápido ni mas eficaz el ausilio del hadjib; mas ¿qué podia sobrevenir que no fuese para tí un nuevo motivo de dolor y de amargura? Saludaste gozosa á Hayran y á ben Hamud, los aclamaste como tus libertadores: ¡ay! y no pasaron tres años sin que debieses ver á Hayran muerto por la mano de Aly, á Aly ahogado en un baño por los servidores del último califa. ¡Pobre Hayran! habia sido él quien habia entronizado principalmente al valí, él quien mas habia procurado arrancarte del borde de la tumba; y obtuvo en premio la muerte. Temeroso ben Hamud de su influencia, le alejó de sí apenas hubo tomado posesion del trono, le incitó á la rebelion, salió contra él, y no sintió temblar su espada al ir á sumergirla en el pecho de su antiguo aliado.

Hayran, al sublevarse contra Aly, habia hecho proclamar califa en la ciudad de Jaen al ommyada Abd-el-rhaman IV, biznieto del magnánimo Abd-el-rhaman III. Muerto Aly, vió ya el nuevo príncipe franqueado el paso para subir al trono; mas no tardó en deber luchar con otros dos rivales poderosos que hubiera quizás vencido á no haberse conjurado contra él su desdichada suerte y el rigor de tu destino. El-Khassem, hermano de Aly, vino á apoderarse de tu alcázar, al parecer solo para dictar decretos de proscripcion y de muerte contra tus mejores hijos; Yahhyay, primogénito del mismo Aly, reunió al momento cuantas fuerzas pudo para reclamarte como una herencia, como el patrimonio de su padre. Tres reyes se disputaron á la sazon en el campo de batalla los girones de tu solio. Volvió á recorrer la muerte tus ciudades y tus campos: volvió á estender de nuevo su fúnebre crespon sobre tu reino. Trémulo el-Khassem ante Yahhyay, se ofreció á compartir con él su imperio y entregarle por de pronto el gobierno de tu pueblo. Yahhyay aceptó y prometió guardar el pacto, mas ébrio á poco con tus homenages y sinceros aplausos, no pasó ni dias sin aspirar al dominio absoluto y violar la fé jurada. Irritóse el-Khassem, ya algo repuesto de su primer cuidado; regresó, cayó sobre tí con la celeridad del rayo, y le obligó á la fuga. Te alzaste entonces y le venciste: no mas tiranos, dijiste, no mas abatimiento; pero fue inútil tu cólera; vano, enteramente vano, tu generoso ardor contra tus rudos opresores. No pudiste ni aun muerto el-Khassem gozar de la vista de ese Yahhyay á quien amabas. Precipitáronse los sucesos de una manera espantosa, y en menos de dos años tuviste que obedecer á la voz de cuatro reyes. El que no murió bajo el puñal de los conjurados ni bajo la espada de sus enemigos, murió infamemente atosigado; y tú, huérfana de contínuo, de contínuo colocada entre el despotismo y la anarquía, rodaste con mas y mas velocidad á lo profundo del abismo sin encontrar otro apoyo en tu fatal caida que débiles arbustos, rocas apenas sumergidas en la tierra que se quedaban en tus manos ó se desplomaban al peso de tu cuerpo para apresurar tu ruina.

Habia sido ya destronado el-Khassem, cuando su ejército, que habia salido poco antes contra Abd-el-rhaman, entraba en batalla con el de este ommyada, en quien cifraban tantos la esperanza de su patria. Venció Abd-el-rhaman; pero murió de un flechazo al acabarse ya el combate. Arrojó este hecho en la consternacion todos los ánimos. Desesperaron los mas de la salud del reino, y tú fuiste la primera: dicen que lloraste al saberlo lágrimas de sangre. Hiciste, sin embargo, un esfuerzo que no era ya de esperar de un ente moribundo: soy yo quien me he de dar mis reyes, esclamaste; y levantaste sobre tu escudo á otro ommyada, á otro Abd-el-rhaman, hermano de aquel Mohammad que Hescham hizo decapitar al ascender por la segunda vez al trono. Era tu nuevo Abd-el-rhaman jóven de grandes dotes, de un porvenir brillante; mas ¿qué habia de poder ya ni aun el hombre de mayor genio con las bastardas pasiones que se agitaban en tu seno? Quiso enfrenar la licencia de tus soldados, arrebatar la dictadura á los guardias de tu alcázar, proteger á tus ciudadanos contra los escesos de la fuerza armada, reprimir el desorden... ¡ah! el desorden pudo mas que él y le denunció como su víctima. Morian un dia los últimos rayos del sol en tus montes de Occidente cuando tu palacio estaba cernido en todas partes por una horda de asesinos. Dáse el grito de alarma, é invaden tumultuosamente los salones del alcázar. Los esclavos del califa son los primeros en caer bajo la punta de los puñales. Se adelantan luego los agresores hasta el mismo Abd-el-rhaman; pelean con él unos instantes, le derriban al pavimento, le cosen á estocadas hasta oirle exhalar su último suspiro. Veo aun la luz del crepúsculo iluminando fantásticamente el ensangrentado cadáver: el silencio que reina en torno suyo me turba y me confunde. ¡Bandidos miserables! ¡raza inicua de hombres corrompidos á quienes no espanta verter la sangre humana para satisfacer vuestros deseos! ¿cómo no temblais ante vuestra propia obra?

Mohammad, primo del califa, habia sido el gefe de estos conjurados: muerto Abd-el-rhaman, fue proclamado rey. Encumbrado á tan alta dignidad solo por el favor de esos criminales llamados guardias del alcázar, ya tan codiciosos y perjuros como los que se atrevieron á poner un dia en almoneda la corona del Antiguo Imperio, no pensó ni pudo pensar durante su reinado sino en ir asegurando con inmensas dádivas la alianza que habia sido establecida entre él y ellos por tan infame alevosía. Consumió el tesoro del divan, disipó el tesoro público, agotó hasta las últimas rentas del Estado; mas nunca, en ningun tiempo pudo satisfacer la sed de oro que les devoraba. Vióse al fin privado de todo género de recursos. Empezó á temblar, pero no á retroceder, porque conoció que era imposible. Los puñales que hirieron á Abd-el-rhaman, dijo, estan asestados contra mí: las manos que los empuñan no los sueltan ya sino para recoger los escudos que les arroje desde lo alto de mi trono. Entregóse á la mas desenfrenada arbitrariedad, creó nuevos tributos, vejó todos los dias mas y mas á los hijos de tu pueblo. ¡Inútiles esfuerzos! las exigencias de esa turba de sicarios crecieron á proporcion de la generosidad que con ellos ejercia: no pudo ni aun con ese sistema de opresion encontrar medios para cumplirlas. Sintióse aislado, perdido; y no vió otro camino para escapar de la muerte que le amenazaba que el de abandonar secretamente los palacios de Medina Azarah en medio de las tinieblas de la noche. Alcanzó asi prolongar algunos dias mas su vida; mas ¡ay! ¿en tanto, qué fue de tí, ó desgraciada Córdoba, en poder de esas insolentes guardias pretorianas? Robáronte, saqueáronte, complaciéronse en ir agravando mas y mas tu bárbara agonía. Oyeron tus gemidos y los apagaron con el hierro de su lanza: «sufre y obedece, dijeron, á los que son hoy tus reyes. ¿No eres acaso tú la que contemplaste impasible la muerte de trescientos de tus hijos y la proscripcion de una gran parte de tu pueblo? La primera vez que salimos armados del alcázar de tus califas salimos ya para abrir y desgarrar tu seno: ¿callaste entonces, y te atreves á quejarte ahora de que ejerzamos en tí nuestros instintos? Sufre y muere no ya bajo el hierro, sino bajo el cuento de nuestras alabardas.»

¡Pobre ciudad! no bastaba que hubiese sufrido los horrores del hambre y la anarquía: faltaba aun que la insultasen sus verdugos. ¿Quién vendrá ya á salvarla? ¿quién podrá ya venir siquiera á dulcificar sus postreros instantes de amargura? Yahhyay reina aun en Ceuta y en Algeciras: ¿cómo no ha tomado las armas para reconquistar su codiciado imperio? ¿tan pronto se ha estinguido en él la llama de esa noble ambicion que le indujo en otro tiempo á venir á arrancar esta ciudad de la orilla misma del sepulcro? ¿tan pronto han dejado de resonar en sus oidos los vítores con que le acogió la muchedumbre, las afectuosas palabras con que le rindieron homenage los valíes? No le mueve ya á Yahhyay el deseo de alcanzar un reino; pero le mueve en cambio el amor á su Dios y á su patria. Córdoba, Córdoba, abre tus puertas á tu libertador: no hay ya en todo tu reino otro hombre capaz de contener las lágrimas que brotan á torrentes de tus ojos. Su prudencia y su desinteres corren al par con su bravura: su sola mirada basta para imponer á tus viles opresores. Aclámale por tu rey, aclámale por tu califa, aclámale por tu Dios sobre la tierra: nadie como él puede vengar ahora tus ultrajes; nadie sino él levantarse como la sombra de los Abd-el-rhamanes á la vista de tus enemigos.

Entró Yahhyay en esta ciudad sin la menor resistencia y entre los mismos aplausos que la vez primera. Su principal cuidado fue restablecer el orden. Tan cuerdo como severo, logró restaurarlo en breves dias. Sus palabras, dulces para unos, para otros amargas, producian todas el mismo efecto: no parecian sino hálitos de esas templadas brisas que vienen á serenar el cielo despues de las tempestades de verano. Asegurada ya la tranquilidad, trató de reconstituir la unidad de la monarquía, rota á pedazos por esa larga serie de revoluciones que habian removido este agitado suelo. Llamó á los valíes de las provincias para que fueran á jurarle obediencia según las prácticas del reino: escribió á todos sus funcionarios para que no retardasen un solo instante el cumplimiento de sus leyes. Lleno de fé en sus propias fuerzas, y sobre todo convencido de la necesidad de llevar á cabo su proyecto, se mostró no solo dispuesto á realizarlo echando mano de los medios que su autoridad le sugería, sino tambien decidido á ir á sujetar por sí mismo á los rebeldes. Esto fue lo que le perdió. Habia entonces en Sevilla un valí orgulloso y fiero que no reconocia otra autoridad que la de Dios y su Profeta, que no se arredraba ante ninguno de sus enemigos, que como los reyes escandinavos gustaba de beber en el cráneo de los que habia vencido en el campo de batalla. Yahhyay le escribió como á los demas valíes; pero no tuvo de él mas que un silencio, equivalente en un hombre de su carácter al desprecio. ¿Cómo podía dejar de irritarse Yahhyay? Tomó de improviso las armas y salió para Sevilla deseoso de castigar tamaño ultraje: dió en el camino con el valí, le acometió, luchó como una fiera con él, le puso en retirada, le obligó al parecer á llevar consigo la ignominia y el pesar de una derrota. Arrebatado por su brio, no se contentó con haber condenado á su contrario á volverle las espaldas; se precipitó tras él seguido de su escasa comitiva, corrió, voló, cayó en una celada, donde murieron bajo el hierro de los soldados del valí él y sus valientes caballeros. Llora, Córdoba, llora si es que lágrimas pueden brotar aun de estos tus ojos: ya no existe el que ha sido tu última esperanza; ya no podrá volver á desnudar por tí la espada. Llora, desdichada ciudad, llora porque no es ya solo el califa quien ha muerto, ha muerto tambien el califato. Acabas de perder tu corona de reina en esa fatal jornada: levanta como en otro tiempo la voz... nadie te escucha.

Sabida la desgracia de Yahhyay, reunióse el divan y eligió por sucesor á un ommyada llamado Hescham, que desde la decapitacion de su padre Mohammad vivia casi del todo ignorado en una fortaleza de Castilla. Libre de ambicion, y sobre todo severamente aleccionado por el trágico fin de su hermano y de su padre, rehusó por mucho tiempo la peligrosa dignidad que le ofrecian, sin llegar á ceder nunca sino ante la consideracion de que asi lo exigia la causa de su patria. Al fin aceptó y tomó la direccion de los negocios del gobierno. Propúsose en un principio conciliar todos los ánimos por medio de la persuasion y la dulzura: manifestó á los valíes la necesidad de restablecer la unidad del Imperio para detener la marcha de los ejércitos cristianos internados ya hasta el corazon de la Península; les puso por delante los intereses del Islam, el bienestar de los pueblos fatigados de tan largas y sangrientas guerras; apeló á los generosos sentimientos que debia abrigar todo buen muzlim, al recuerdo de las antiguas glorias, á lo que exigia por fin el cumplimiento de las leyes del Profeta. Todo en vano. Quiso despues recurrir á las armas: organizó ejércitos, nombró generales, les dió órdenes terminantes para que no perdonaran medio alguno á fin de reducir á su obediencia á los rebeldes... Todo en vano tambien. Confuso y desconfiado ya, apenas sabia adonde volverse: insistió en su antiguo sistema de moderacion, no porque lo creyese mas eficaz, sino porque le repugnaba derramar en luchas estériles mas sangre. Sufria en tanto el pueblo é ignoraba la causa de su sufrimiento. Cansado de padecer, la atribuyó como de ordinario á su califa y le depuso. Le depuso sin ira, y Hescham bajó del trono sin disgusto: todo estaba ya muerto en esta ciudad, todo era ya para ella un hecho indiferente.

Bajó por fin del trono de tus reyes el último de los Ommyadas, ciudad infortunada: ¿qué te quedó luego de tu grandeza de otro tiempo? Agesilao suponia las fronteras de su patria alli donde alcanzaba la punta de sus lanzas: ¿adónde alcanzan ya las tuyas, desdichada corte de los califas? Levántate y vuelve los ojos á tu alrededor: Sevilla obedece á Mohammad Abu-el-Khassem, el que perdió á Yahhyay en una pérfida emboscada; Carmona y Écija, á uno de tus mas intrépidos valíes; Málaga y Algeciras, á Edrys; Granada, al berberisco Hhabus; Almería, Murcia, las Baleares, al guerrero Zohayr, valí de Denia. Reina en Valencia A'mery; en Zaragoza, Almondhar; en Toledo, Ismail; Abdallah-Ben Moslemah en las dos Estremaduras y el Algarbe. Cataluña, Aragon, Navarra, los reinos de Castilla y de Leon estan contemplando tu ruina desde los montes en que tienen establecidas sus tiendas de campaña. Cada uno de tus antiguos valíes es un emir, un emir que dispone de ejércitos, acuña moneda, exige tributos, impone leyes á todo un pueblo con el hierro de su espada: cada uno de esos emires es uno de tus implacables enemigos. Háblales, y acogerán tus palabras con desprecio; recuérdales que eres su reina, y despues de llenarte de oprobio se dispondrán á la venganza. Eres aun reina; pero tus dominios no se estienden ya fuera de tus murallas; vendrá dia, y no está lejos, en que pierdas hasta esa independencia y llegues á ser la cautiva de otro pueblo.

Depuesto Hescham, fue elegido califa su wazir Gehwar-ben-Mohammad, hombre de talento, de severas costumbres, de tanta resolucion como prudencia, de mucho menos celo por su gloria que por la causa de su patria. Gehwar-ben-Mohammad conocia perfectamente la situacion de Córdoba: sabia que su papel de reina habia concluido, y que podia aspirar cuando mas á salvarse del furor de la anarquía. Procuró antes que todo asegurar su paz interior, tranquilizarla. Llamó al divan á los principales ciudadanos, abjuró en favor de este senado el poder absoluto de que gozaba como gefe supremo del Imperio, redújose de califa que era á ser el presidente de una aristocracia. Proscribió de sí el lujo, disminuyó el ejército, rebajó cuanto pudo los enormes gastos del Tesoro. Declaró gratuita la administracion de justicia, puso puertas á las calles para impedir los robos y asesinatos que se cometian con frecuencia á la sombra de la noche, distribuyó armas entre los vecinos para que pudiesen por sí mismos velar por la seguridad y mantener el orden. Facilitó la entrada de víveres y proveyó abundantemente los graneros públicos. Colocó inspectores en todos los mercados para evitar la mala fé en los contratos; no consintió por mas tiempo la tiranía que ejercian sobre los contribuyentes los recaudadores. Se obligó á presentar todos los años al divan una cuenta detallada de sus ingresos y sus gastos. Deseaba inspirar confianza y la inspiró; deseaba robustecer el poder y lo robusteció; deseaba cerrar el paso á todo género de turbulencias y lo cerró; pero no pudo hacer mas que mejorar el gobierno de la ciudad, como ciudad, no como corte del antiguo Califato.

Se acordó una que otra vez Ben-Mohammad de cuán necesaria era la sumision de los valíes que se habian proclamado independientes; mas ni siquiera para intentarla se sintió con fuerzas. Trató de conciliarlos, y encendió sin querer el fuego de la guerra. Quiso sujetar á fuerza de armas á los que coartaban mas de cerca la accion de los poderes públicos; y escitó contra sí á Ismail, el mas audaz de los rebeldes. Perdió en la lucha su reputacion, su ejército, su vida.

Murió Gehwar y volviste á caer en un abismo. Su hijo Mohammad, temeroso de Ismail, solicitó la alianza de los emires de Badajoz y de Sevilla. La obtuvo, y escitó con esto la cólera de tus enemigos. Vió en breve contra tí las tropas de Al-Mamun, mas belicoso que el mismo Ismail su padre; quiso hacerle frente, y salió vencido en la primer jornada. Lleno de sobresalto, imploró entonces por medio de su hijo Abd-el-Melyk el favor de Aben-Abed. Logró salvarte del furor de Al-Mamun; mas acabando para siempre con tu independencia.

Aben-Abed, emir de Sevilla, era á la sazon uno de los reyes mas temidos de la Andalucía. Llevado de una ambicion sin límites, no perdonaba medio para ir dilatando sus vastas posesiones: donde creía infructuoso el valor, empleaba la astucia y la perfidia. Entretuvo al jóven Abd-el-Melyk divirtiéndole con fiestas que afectaba darle como un homenage debido al heredero de un califa; dejó que se adelantara sobre tí Al-Mamun y esperó verte cercada. Ya que consideró inminente el peligro en que te hallabas, salió de Sevilla como un leon; mas no con el deseo de libertarte, sino con el de hacerte esclava. Favorecido por una salida que hicieron tus tropas se arrojó con ímpetu sobre Al-Mamun y le derrotó al primer encuentro. Logró escitar con su brillante victoria tu entusiasmo. Entró en tí primero que Abd-el-Melyk, cerró de improviso tus puertas, ocupó tus muros, se apoderó de tu alcázar, donde estaba medio moribundo tu califa, te impuso su voluntad desde el mismo solio de tus antiguos reyes. Encontró alguna resistencia en Abd-el-Melyk, que á las pocas horas vino del campamento enemigo cargado de despojos y trofeos; mas la venció sin dificultad dejando al desgraciado príncipe muerto á estocadas en la misma puerta por donde procuraba abrirse paso. Te habló luego de tu porvenir y tu pasado; dispertó en tí ilusiones y esperanzas; te embriagó con fiestas y espectáculos que recordaban tu grandeza de otros dias; y alcanzó que, degenerada por tus infortunios, tú misma llegases á aplaudir su infame alevosía. La sangre de Abd-el-Melyk estaba aun caliente, cuando, henchida de gozo, levantabas á Aben-Abed sobre tu escudo: ¿qué se habian hecho ya tus sentimientos? ¿ni una lágrima tenias siquiera para el nieto de Gehwar, de ese califa que habia sabido inmolar en tus aras todas sus pasiones? ¿qué creías poder aguardar de esos emires de Sevilla? no hicieron mas que cubrirte de vergüenza y de ignominia: no respetaron ni tu trono. El título de califa de Córdoba habia sido hasta entonces el sueño de oro de cuantos sentian en su pecho sed de gloria: Aben-Abed lo despreció, tal vez para hacer mas evidente tu miseria y acabar de sepultarte en el olvido. Hasta el nombre de reina has ya perdido: no es ya Sevilla tu rival, es tu señora.

Conservaste tu orgullo, te acordaste alguna vez de que habias sido la capital de una vasta monarquía; pero en vano: tus enemigos pasaron sobre tí, como pasa el hombre sobre todo miserable reptil que se atraviesa en su camino. Al-Mamun te sujetó sin perder un soldado de su ejército: Aben-Abed te recobró sin desnudar la espada. Vinieron los almoravides y te vencieron: te rebelaste contra ellos y no pudiste escitar ni su venganza. Aly, su gefe, se contentó con que restituyeras lo que en los dias de tu rebelion hubieses usurpado. Secundado tu movimiento por otras cien ciudades, intentaste por segunda vez sacudir el yugo de esos feroces africanos: lo sacudiste y volviste á caer en él apenas se presentaron frente tus muros las tropas aliadas de Ben-Ganya y el emperador Alfonso. Saliste del poder de los almoravides para entrar en el de los almohades: desplomóse el imperio de los almohades, y tampoco supiste reconquistar tu independencia. Formáronse en España varios reinos como á la caida de tus Ommyadas: ni voz tuviste para recordar tus derechos. Tú, cuyas órdenes habian sido obedecidas desde las orillas del Ródano al Desierto, te humillaste á recibir las de una ciudad hasta entonces desconocida, las de la ciudad de Baeza. Decapitaste á poco á Mohammad, tu nuevo rey; pero cuando habia entregado ya á Fernando III de Castilla la vecina Andújar y esa misma Baeza de que se habia hecho soberano, ¡Ay! ¡que se va acercando la hora de tu completa ruina! Ciudad de las ciudades musulmanas, Damasco del Occidente, segundo templo del Islam, vas á morir: el espíritu del Profeta va á abandonar para siempre tus mezquitas. Alza tu frente y observa: legiones de nazarenos estan ordenándose en batalla á la sombra de sus grandiosos estandartes, de esos estandartes con que vencieron en las Navas de Tolosa. El que las acaudilla es un rey que goza del favor del cielo: ángeles enviados por Cristo sostienen su bandera; palabras de bendicion estan escritas por la misma mano de Dios sobre la hoja de su espada. Hélas ya alli sobre la cumbre de tus montes: ¡ay del dia en que cierres al sueño tus cansados ojos! ¿Oyes? tus templos se estremecen; en tus alcázares no resuenan mas que hondos gemidos. Voces misteriosas conmueven de noche el aire que respiras; gritos de desolacion turban de contínuo la paz de tus hogares. ¿Qué remedio has de hallar para conjurar la tempestad que te amenaza? Tus armas estan melladas; tus reyes, dispersos y ocupados en luchas intestinas; tus intrépidos guerreros de otro tiempo, en el sepulcro. ¡Córdoba! ¡Córdoba! vas á luchar inútilmente contra ese ejército de infieles: sucumbirás, y no al hierro, sino al hambre y al desorden.

Acababa de salir S. Fernando de la villa de Andújar, cuando un hombre oscuro á quien habia conferido el gobierno de la plaza, sabiendo por algunos prisioneros que Córdoba dormia confiada en la inaccion de los cristianos, concibió el atrevido proyecto de ir á tomarla por sorpresa. Solia haber por aquellos tiempos en las fronteras de las dos Españas turbas de hombres medio salvages cuyo único placer era la guerra, cuyos únicos medios de subsistencia eran las sangrientas algaradas que hacian á cada paso en pueblos enemigos. Este hombre oscuro los llamó y les comunicó su intento. No tuvo que hablar mucho para decidirlos: los exaltó, organizó en secreto la espedicion, y vino á la primera oportunidad sobre estos muros. Era de noche: el cielo estaba cerrado; la lluvia azotaba los techos de la ciudad dormida. Lleno de fé en su empresa, se adelanta el audaz cristiano hácia el barrio de Oriente, escala en silencio los adarves, degüella las guardias, se estiende por las calles, se atrinchera, se prepara para resistir los ataques que le darán probablemente al asomar el alba. Seguro ya de su conquista, envía en tanto mensageros á Alvaro Perez, al rey, á cuantos podian hacer que no quedase ineficaz su temerario empeño.

Rayaba apenas el dia, cuando, sorprendidos los habitantes de la ciudad, tomaron las armas y acometieron á los invasores. Larga y reiterada fue la lucha, pero inútil. Las fuerzas cristianas lejos de menguar crecieron: crecieron por de pronto con el socorro de Alvar Perez, poco despues con el del rey, que, no bien tuvo noticia del suceso, dió la vuelta para esta ciudad sin aguardar á que se reuniese su ejército bajo sus banderas. ¿Cómo no habia de empezar á desfallecer una ciudad estenuada por tantos sacrificios? Disputábanse á la sazon el imperio de la España Arabe Abu Zeyan, Aben-Hud, Mohammad Al-hamar el fundador del reino de Granada: reconociéndose débil para luchar sola contra sus enemigos, dirigió los ojos á Aben-Hud, le escribió, le suplicó que no la dejase abandonada en medio de tan gran peligro.

Aben-Hud, aunque ambicioso, era de noble corazon: no se hizo ni pudo hacerse sordo al llamamiento de una de las primeras ciudades de su patria. Pospuesto todo interes personal, se dejó caer sobre la ciudad con el grueso de su ejército. La encontró medio cercada; mas no por esto cejó; antes se mostró dispuesto á combatir hasta que S. Fernando levantase el sitio. Iba á trabar el primer asalto contra los reales enemigos, cuando le ocurrió, sin embargo, un pensamiento que detuvo sus ímpetus guerreros. «Ciudades como Córdoba, dijo, no se sitian con escasas tropas ni sin esperanzas de buen éxito: ¿de qué servirá empeñar una lucha en que he de salir vencido? La ruina de la ciudad producirá la mia; Murcia caerá; el poder del Islam llegará al borde del abismo. Millares de creyentes confian en mi espada: ¿me espondré á perderla en defensa de una ciudad que salvaré hoy y morirá mañana? ¿en defensa de una ciudad sobre la cual pesa hace siglos la mano de un fatal destino?» Quiso cerciorarse de las fuerzas de que disponia S. Fernando, y aumentaron sus temores. Un caballero cristiano que militaba en sus filas y á quien confió esta mision, deseoso de reconciliarse con su rey, exageró el número de los enemigos, y pintó no solo peligroso, sino hasta quimérico el proyecto de atacarlos. «Vais á morir, le dijo á Aben-Hud: vais á sacrificaros en vano por una ciudad que está condenada desde mucho tiempo á los horrores de la servidumbre. Murcia os proclama emir; Valencia os ofrece una corona; si venceis á Al-hamar, es vuestro todo el pais de Andalucía: ¿qué puede importaros, atendido vuestro brillante porvenir, una ciudad que ya no es mas que un nombre? Id y recoged los restos del imperio de los Abd-el-rhamanes; restableced la unidad, agrupad en torno vuestro á cuantos se sienten aun decididos á sostener la causa del Profeta: no tardareis en derribar de un soplo la obra de Fernando ni en enarbolar vuestros estandartes vencedores hasta en el mismo alcázar de Toledo.» Aben-Hud, aunque con gran pesadumbre suya, cedió á las falsas palabras del cristiano. «¡Cuán triste es tu suerte! esclamó: ¡no te queda mas recurso que sucumbir, desdichada ciudad! pero confio en que han de brillar para ti mejores dias. No querrá Dios que yazga por mucho tiempo esclava la que ha sido el segundo templo del Profeta.»

S. Fernando, apenas se vió libre de Aben-Hud, no dudó un instante mas de la victoria. Multiplicadas de dia en dia sus fuerzas con las huestes que afluían á su campamento, comprendió cuán facil era triunfar de la ciudad sin verter sangre: estrechó el sitio, imposibilitó toda salida, y esperó con calma que los mismos cercados fuesen á sus pies á deponer las armas. Desmayó el pueblo cordobés; mas no perdió aun del todo la esperanza. Recordó sus antiguas glorias, su poder, el respeto que su nombre infundia á todas las naciones, y se resistia á creer que no hubiese siquiera quien por el interes general de los árabes pasase á socorrerle. Olvidaba el infeliz que ya no habia en toda la España musulmana ni un solo estado que pudiese aventurarse á luchar con las tropas de Castilla, ni un solo cadí que supiese acallar su ambicion en beneficio de su patria. Confió, pero sin fruto: vió que todos los dias se aumentaban sus enemigos, nunca sus soldados. Falto de víveres y sobre todo de un gefe, fue pasando de la abundancia á la escasez, de la escasez al hambre, del hambre á la anarquía. No pudo, al fin, sufrir mas: tuvo que apelar á la piedad del vencedor, y hasta en ese momento fue el mas desdichado de los pueblos. No obtuvo de él sino la vida, no obtuvo siquiera el derecho de permanecer en sus hogares, de conservar su hacienda. No quedó ni un solo musulman en Córdoba despues que hubo entrado en ella S. Fernando: todos, absolutamente todos fueron condenados á la proscripcion y á la miseria. El rey llevó el rigor hasta el estremo de no consentir que saliesen sino con lo que pudiese cada cual llevar consigo. ¿Qué hubiera hecho mas si hubiese debido conquistar la ciudad á fuerza de armas?

Estoy oyendo tus gemidos, Córdoba; estoy viendo las lágrimas que brotan de tus ojos, ¡Qué dia de desolacion para tí aquel terrible dia! Mientras tus árabes te dejaban en silencio, tus enemigos te ocupaban entonando cánticos de triunfo. Tus alcázares fueron saqueados; tus templos profanados; violados los hogares de tus hijos. Tu mezquita fue consagrada á otro Dios, invadida por soldados y sacerdotes de Cristo. La voz del muezin dejó de animar tus minaretes; la del rudo africano, tus torreones. Hablaste y no te comprendieron; te hablaron y no comprendiste. Tus escuelas quedaron para siempre cerradas; tus baños, secos; tus palacios, desiertos. Estabas aun radiante de hermosura; mas tu hermosura no bastó para conmover á tus vencedores. ¿Qué se hicieron tus encantados palacios de Medina Azarah ¿qué tus embalsamados jardines de la Rusafa, donde plantó su palma Abd-el-rhaman I[2]? ¿qué tu biblioteca de Merwan, tesoro de la ciencia y la poesía de tus ilustres hijos? Nada respetaron en tí los invasores: no satisfechos con haber despoblado y talado tu campiña[3], con haber desterrado á todos tus creyentes, con haber llevado la espada hasta el interior de tus santuarios, destruyeron uno á uno tus monumentos complaciéndose en hacer saltar á hachazos tus ricas techumbres de cedro y tus paredes de oro. Salvaste de la destruccion comun tus viejos muros[4]; mas para tu castigo: ¿quién entre los árabes se ha de atrever ya á venir sobre ellos para restituirte al seno del Profeta? Desciñe tu bello turbante, sultana del Guadalquivir: ni derecho tienes ya para llamarte mora. Te han hecho cristiana; y cristiana serás mientras dure en la tierra el poder de la cruz. Es inútil que alientes en tu pecho la esperanza: inútil que en el silencio de la noche cuentes tus pesares á las aguas del rio para que las refieran á tus hijos: inútil que pretendas leer en tu pasado un porvenir menos sombrío é infeliz que tu presente: verás construir en tu seno sinagogas para judíos, basílicas para cristianos, jamas una mezquita. No encontrarás eco ni en la ola que pasa ni en el corazon de tus proscritos: sufrirás hoy mas que ayer; sufrirás mas que hoy mañana. Has sido víctima de cuantos pueblos cayeron sobre tí: lo serás en adelante, de las sangrientas parcialidades que nacerán entre cristianos. No está cerrada aun la página de tus infortunios, desdichada Córdoba.

Apoderado S. Fernando de esta ciudad, no fijó ni pudo fijar su pensamiento sino en buscar medios para repoblarla. Redactó una carta de fuero mas ámplia que las que se habian hasta entonces concedido[5], la comunicó á todas las ciudades de Castilla, prometió y otorgó singulares mercedes á cuantos se resolvieron á pasar á vivir en Córdoba con su esposa y con sus hijos. Distribuyó tierras entre los principales caballeros que le habian acompañado en la conquista, dió al concejo los pueblos, aldeas y castillos que fueron sucumbiendo en la comarca[6]. Para mas animarla y asegurarla, convirtió la ciudad en centro de operaciones militares; restauró la silla de Osio, de aquel famoso prelado á quien cupo la gloria de haber presidido el primer concilio de Nicea. Comprendia S. Fernando la gran dificultad que habia en conservar una ciudad rodeada de enemigos; y estaba dispuesto á no perdonar sacrificio alguno para traer á ella cristianos que tuviesen un interes personal en defenderla. Logró irla poblando; pero lentamente, tan lentamente que tres siglos despues habian los reyes de conceder privilegios á los que prometiesen habitar en ella por espacio de veinte años[7]. Dícese que en tiempo de Abd-el-rhaman III contenia esta ciudad doscientos mil vecinos[8]: ni siquiera una décima parte ha llegado á contener despues á pesar de los esfuerzos hechos por los monarcas de Castilla.

La favorecieron muy poco los sucesos para que pudiese volver al estado en que la dejaron los Abd-el-rhamanes. D. Alfonso el Sabio vino con el rey de Marruecos á cercarla contra el infante D. Sancho, que había entrado pocos dias antes en ella con su esposa D.ª María de Molina: tuvo al fin que levantar el sitio, pero despues de haber talado sus alrededores[9]. Talólos años despues el rey D. Pedro, al ver que ni con el ausilio de Mohammad de Granada habia podido arrancarla á D. Enrique[10]. La peste diezmó horrorosamente á sus hijos al empezar el siglo XV: acabó con mas de veinte mil en el espacio de tres meses. Sobrevinieron graves disturbios en los reinados de Enrique III y Juan II; y fue sacrificada ya por el uno ya por el otro bando[11]. Siguieron tras aquellos tristes acontecimientos las escandalosas guerras civiles entre Enrique IV y sus hermanos; y se vió destruida y ensangrentada por los mismos habitantes. Los Reyes Católicos le arrebataron sus mejores soldados para la conquista de Granada; el tribunal del Santo Oficio consumió parte de la poblacion en los tormentos y la hoguera[12]. Los judíos, que ya en el siglo XIV habian sido inhumanamente acuchillados por el pueblo, la abandonaron á poco en virtud de una orden que solo pueden cohonestar las circunstancias especiales en que se encontraba á la sazon una nacionalidad, apenas constituida por otro principio que por el de la unidad de sentimientos religiosos. No sufrió poco bajo los reinados de Carlos y Felipe: el peso de los tributos llegó á hacerse insoportable; y hubo familias enteras que atravesaron para no volverlo á pisar el umbral de sus hogares. La emigracion voluntaria fue tan grande, que los reyes se creyeron obligados á otorgar nuevas mercedes á los que viniesen á poblarla. No podemos menos de recordar con dolor la terrible carestía que la afligió á mediados del siglo XVII: como si tantas calamidades políticas no bastasen aun para abatirla, castigóla Dios con este nuevo azote. El hambre llegó á tal estremo, que armados los ciudadanos en número de diez mil, se arrojaron á la calle y forzaron los graneros de los particulares. Cuentan que se encontraron casas donde habia hasta cuatro mil arrobas de harina corrompida: ¿con qué razon se hubiera podido castigar á un pueblo hambriento que á la vista de tan lamentable espectáculo hubiese desplegado todo el furor de su venganza?

Desangróla en el siglo XVIII la guerra de sucesion: en el XIX, la guerra con la Francia. En la última sobre todo padeció mucho esta ciudad de Córdoba. Supo apenas los sucesos del 2 de mayo en Madrid, cuando pretendió ya sublevarse. El 10 secundó abiertamente la insurreccion de Sevilla; el 11 estaba armándose; el 7 de junio batiéndose en el puente de Alcolea. Desdichada como siempre, tuvo que volver la espalda al enemigo. Cerró apresuradamente sus puertas; mas para capitular, no para defenderse. No bien vió á Dupont frente sus muros, le envió á uno de sus principales hijos para negociar su entrega. Temia ver pasar sobre sí la espada de un vencedor que debia sentir naturalmente el deseo de imponer con los horrores de un asalto á una nacion rebelde; y estaba en transigir bajo cualesquiera condiciones antes que esponerse á ser entregada al saqueo y la matanza. Fue tal su desventura, que ni aun asi pudo evitar lo que temia. Habia empezado á entrar en pláticas con los franceses, cuando, bajo pretesto de algunos tiros disparados desde la muralla, apuntaron aquellos sus cañones contra la Puerta Nueva, y entraron de repente en la ciudad hiriendo y matando sin compasion hasta á los indefensos que acertaban á cruzar las calles. Un cordobés, que no pudo mirar con sangre fria la entrada de los enemigos, hirió á Dupont desde uno de los balcones de su casa; encendiéronse mas y mas en ira los franceses; y saquearon templos, palacios, edificios privados, oficinas públicas, cuanto podia satisfacer su sed de oro y de pillage. Ha sufrido Córdoba en todos tiempos; pero raras, rarísimas veces como en esos tres dias de horror en que estuvo á merced de una soldadesca cuyo corazon estaba endurecido por las sangrientas escenas de cien campos de batalla. ¡Pobre ciudad! ¿cuándo será que concluyan para ella tan amargas desventuras? Idólatra, cristiana, mora, ¿siempre habrá de gemir abrumada por los infortunios? Los dioses del Olimpo no pudieron salvarla del furor de César: el Profeta la ha visto morir sin tenderle una mano desde su sepulcro: Cristo la ha entregado al hambre y á la peste cuando no la ha envuelto en los horrores de la guerra. Su destino ha sido el mismo bajo todas las religiones; y ella sin embargo ha sido bajo todas creyente.

No acabaron aun aqui sus tristes vicisitudes: las guerras civiles que han desgarrado posteriormente el seno de nuestra patria han sacudido sobre ella sus funestas alas; y la han cubierto tambien de luto, de dolor, de ruinas. Quisiéramos recordarlas; mas brota aun sangre de tus heridas, desventurada Córdoba, y tememos acibarar con negros recuerdos tus inmensos males. ¡Paz, Córdoba, paz! perdona si hemos venido quizás á interrumpir tu sueño con tan lúgubre historia.

Tenia ya tanto interes para nosotros lo pasado de esta ciudad de Córdoba, que sentíamos ir apurando los grandiosos hechos que lo constituían. Asomaba la aurora, y teníamos aun embargada la imaginacion por los recuerdos. Nuestra curiosidad artística habia llegado á desvanecerse: no buscábamos ya con los ojos esos monumentos en que ha de estar encerrado el genio de otros siglos; buscábamos los objetos en que podia estar vinculada una serie de acontecimientos; buscábamos la biblioteca de Merwan, la palma del primer ommyada, el plátano de César. La biblioteca, la palma, el plátano no existen: ¿cómo al convencernos de que habian desaparecido podiamos dejar de caer en el abatimiento y en la melancolía? Tantas calamidades, nos dijimos, habrán minado esta ciudad hasta por sus cimientos: ¡ay! ¿quién sabe si habrá siquiera vestigios de los pueblos que han venido á chocar y á destruirse en ella? Empezamos á distinguir las formas de las torres: en ninguna vimos ni el magestuoso sillar de los romanos, ni el ajimez esbelto de los árabes, ni la entallada cimbra bizantina, ni la aguja gótica. Teníamos á la espalda la mezquita de los Abd-el-rhamanes, y no nos era dado descubrirla: perdimos la esperanza. Entre los techos de la ciudad apenas aparecia mas que el estremo de algun roseton, uno que otro muro ennegrecido por los siglos y los árboles que dan frescura y sombra á algunos patios: ¡ah! repetimos con dolor: ¿nada de lo pasado guardará al fin esa Córdoba tan decantada por la historia y la poesía?

La inquietud se apoderó nuevamente de nuestra alma; y recorrimos con afan la ciudad. Nos hallamos por mucho tiempo en un laberinto de calles á cual mas estrechas y tortuosas que van, vienen y se cruzan en todas direcciones. La desigualdad del piso, el humilde aspecto de las casas, la escasa animacion que reinaba en todas partes llamaron por de pronto nuestra atencion: nos parecia que estábamos en una de esas villas puramente agrícolas en que los habitantes dejan la poblacion por la campiña al primer crepúsculo del alba. Levantábamos á cada paso nuestras miradas esperando siempre que en alguna de aquellas modestas fachadas habiamos de dar con líneas propias de otra civilizacion, hijas de otro pueblo; mas inútilmente, ni el color siquiera permitia apreciar en muchas la huella de los siglos. Hay en Córdoba, como en casi toda la Andalucía, la costumbre de blanquearlas: costumbre detestable para el que pretende leer en las piedras la historia del arte y el carácter general de las naciones.

Existen en apartadas y silenciosas calles palacios en cuyas paredes estan escritos grandes recuerdos y sangrientas tradiciones; mas estan lejos de respirar la severa grandeza de los que vimos en algunas ciudades del reino de Granada. Son casi todos frios, monótonos, sin colorido local, sin arte, sin poesía. Abandonados desde hace muchos años por las familias que los fundaron, unos estan ya medio caidos, otros amenazando ruina, los mas invadidos por la tristeza y el silencio. Del que suponen haber pertenecido al Gran Capitan no queda ya mas que una portada; de otros no menos notables han desaparecido hasta los restos. Los hay entre los que permanecen en pie que presentan aun brillantes líneas del Renacimiento; mas ni uno siquiera que refleje la mano de los siglos medios. Hemos buscado en vano los que fueron elegidos por los caballeros de la corte de S. Fernando: no hemos encontrado ni los sepulcros de tan ilustres héroes. Hablan poco á los ojos y menos aun á la imaginacion estos palacios: no llevan escritos en el esterior de sus paredes ni los hechos de su época. Una leyenda antigua nos hizo preguntar con interes por el de los condes de Cabra: esperábamos hallar en él algo de sombrío, de misterioso, de siniestro; mas nada, absolutamente nada vimos que pudiera traer á la memoria el horror de aquella noche en que ciego de cólera uno de los condes por la infidelidad de su esposa, pasó de una sola estocada á los adúlteros, mató á criados, pages, escuderos, doncellas, amas, y al fin hasta el negro que le acompañaba[13]. No solo no es ya posible distinguir en él la pálida y desencajada sombra del marido; no solo no es ya posible percibir el lastimoso eco de las víctimas; su fachada, sus patios, sus salones parecen estar encargados de desmentir á los que le han hecho teatro de tan espantosa escena. Es grande su soledad y aislamiento; pero ¿difiere acaso en esto de los demas palacios?

Hay pocas ciudades cuyo conjunto revele menos su pasada gloria que el de la ciudad de Córdoba. En otros pueblos, ya que no se conserven los palacios de los conquistadores, descubre á cada paso el viajero aun en las casas mas humildes, acá una hermosa ventana gótica por cuya entallada ojiva trepan las hojas de la enredadera y de la yedra, allá un lindo ajimez árabe tras cuya transparente celosía se cree distinguir aun el animado rostro de una gallarda mora, acullá un sillar romano donde estan entalladas en caractéres ya medio borrados las hazañas de los que mas engrandecieron el antiguo Imperio; en Córdoba se observa cuando mas á lo largo de sus calles una que otra galería construida en nuestros tiempos, uno que otro ventanage historiado, bello solo por su aspecto pintoresco. La arquitectura ojival no desarrolla algunos de sus encantos sino en las fachadas y rosetones de templos medio bizantinos edificados al parecer sobre un mismo prototipo; la arquitectura oriental no ostenta la belleza de sus formas sino en la mezquita, en parte de los muros, en el interior de un escaso número de edificios, en el fondo de costosos acueductos abiertos en la peña por manos de cautivos; la arquitectura romana no guarda sino algunas de sus piedras en los cimientos de la fortificacion y en el interior de algunos monumentos. Asoman en el esterior de una que otra torre algunas líneas árabes; pero no son mas que una imitacion no son mas que reminiscencias de otras épocas.

El viajero que recorra por primera vez la ciudad de Córdoba y desee apreciarla en conjunto apenas puede hacer mas que ir siguiendo sus murallas, cercadas aun de gigantescos torreones almenados entre los cuales se ocultan estrechas puertas defendidas por recias barbacanas. Álzase junto á ellas, en el interior, la vasta mezquita de Abd-el-rhaman, á cuya espalda abre un S. Rafael sus alas de oro sobre un monumento de bruñidos y esquisitos jaspes: corren, en el esterior, las aguas del Guadalquivir bajo el famoso puente reedificado por Hescham, á que sirven de apoyo el castillo de la Calahorra y la puerta de Sevilla; descuellan no lejos de aqui sobre el mismo adarve las macizas torres del alcázar de Alonso XI, edificado en 1328 al pie de las ruinas de otro palacio de que no existen sino tristes restos y fúnebres memorias[14]. Las frondosas y estensas alamedas del campo de la Victoria estienden algo mas allá las sombras de sus ramajes sobre gran parte de sus negros y elevados cubos; la torre de la Malmuerta[15], construida á fines del siglo XV, cubre otras mas allá con el misterioso velo de la tradicion y la poesía.

PUERTA DE SEVILLA.

(Córdoba.)
PUERTA DE SEVILLA.
(Córdoba.)

Crecen á espaldas de esta torre vastas y deleitosas huertas cuyos cuadros matizados de flores verdean agradablemente bajo la sombra de árboles frutales; estiéndese tras estas huertas la Arrizafa, el ameno vergel en que suponen lloró Abd-el-rhaman I recordando á la vista de una palma el suelo de su patria. Conserva ya este lugar escasos vestigios de lo que ha sido un dia; mas no deja de tener aun interes, ora se atienda á su pintoresca posicion en una de las vertientes de la Sierra, ora al realce que le dan las frondosas arboledas de los cerros de cuyo fondo se destaca, ora al espectáculo que desde alli presenta la ciudad cuando el sol no ha logrado disipar aun la neblina en que está ligeramente envuelta, ora á las ideas que inspira la memoria de haber sido enterramiento[16], ora por fin á que corren debajo de ella entre paredes de estaláctitas aguas puras y cristalinas que brotan gota á gota del seno de las peñas[17]. Detras de la Arrizafa corren á lo largo las faldas de la Sierra, coronada de pinos: allá en las faldas mismas blanquea entre los bosques una que otra ermita: ¡ah! el corazon se ensancha al ver tanta belleza, al contemplar tan deliciosa soledad, tan dulce calma. El arroyo de las piedras que corre por un áspero cauce entre orillas cubiertas de lozanos y fecundísimos olivos, la tranquila Fuen-Santa, pequeña capilla que alza sus modestos muros en medio del mas seductor paisage, la vista del imponente Guadalquivir que se desliza magestuosamente al pie de la ciudad besando sus murallas, una que otra escena campestre acaban de embellecer sus alrededores, donde pueden á cada paso espaciarse los sentidos descubriendo entre lejanos montes pueblos y castillos en cuyas coronas de almenas estan incrustados los recuerdos de diez siglos. Desde cada altillo puede uno considerar en conjunto la ciudad, puede verla levantando al cielo las torres de sus baluartes y sus templos, los álamos de sus paseos y sus patios, los desiguales techos de sus casas, sobre los cuales cree uno aun distinguir en pie las sombras de sus antiguos héroes. Descúbrese principalmente la ciudad desde algo mas allá del castillo de la Calahorra[18], á la otra parte del Guadalquivir, á corta distancia de su árida ribera. ¡Qué bello conjunto el que desde alli se ofrece! Figura en primer término la parte posterior del castillo: mas allá el puente[19]: al fin del puente la severa puerta de Sevilla, atribuida á Juan de Herrera[20]: á la derecha de la puerta el ábside de la gran mezquita, á la izquierda el palacio episcopal y el triunfo[21], en el fondo la Sierra, á nuestros pies el rio rugiendo entre las ruedas de un molino árabe: no puede darse ya en Córdoba un grupo que mas imponga, ni una vista que mas cautive.

CÓRDOBA DESDE EL CASTILLO DE LA CARRAHOLA
CÓRDOBA DESDE EL CASTILLO DE LA CARRAHOLA

Mas basta ya de generalidades: empecemos á describir los monumentos.

barra decorativa

Capítulo segundo.

Catedral de Córdoba.

Es ya sabido que Abd-el-rhaman, último resto de la familia de los Ommyadas, fué quien declaró la España independiente de los califas de Damasco. Deseoso de robustecer su nuevo imperio, no solo trató de romper las relaciones civiles y políticas que habian enlazado hasta entonces el oriente con el occidente, sino que hasta se propuso cortar las que los preceptos del Coran hacian hasta cierto punto indispensables. «La peregrinacion al templo de la Meca, dijo, es fácil que recordando constantemente á mis árabes su orígen, les haga suspirar un dia por volver á vivir bajo la sombra de los que se llaman descendientes del Profeta: urge que detenga esta peligrosa emigracion, concentrando sobre otra mezquita el ardor de mis creyentes. Los ya despedazados monumentos de Mérida acaban de llenarme de asombro: levantaré una djama con las ruinas de los antiguos templos, y dejaré atrás en grandeza y en magnificencia la de Jerusalen, la de Bagdad, la de la misma capital de los califas. Convertiré mi mezquita en una segunda Meca, y haré que el árabe devoto venga desde las mas apartadas regiones del Asia á adorar el libro santo que encerraré bajo la rica techumbre del santuario. Mi djama reclamará pronto un califa; tomarán mis hijos este título; y la cuestion entre oriente y occidente quedará para siempre terminada. Nuestra constitucion está basada toda sobre el principio religioso: mis pueblos se acostumbrarán á no ver mas allá de mis hijos sino el ojo de Alá y la espada del Profeta.»

Cuentan que Abd-el-rhaman concibió y estendió por sí mismo el plan de esta mezquita; que despues de haber mandado derribar un templo godo construido sobre las ruinas de otro gentílico consagrado á Jano, puso él mismo la primera piedra de la nueva fábrica y dedicó una hora diaria á levantarla con sus propias manos; que derramó el oro á manos llenas; que no perdonó sacrificio para que se la edificara con rapidez, con suntuosidad, con toda la riqueza con que se la habian hecho trazar su fervor religioso y su poética y brillante fantasía: todo revela la importancia que tenia á sus ojos una construccion que, á no ser creada como instrumento político, hubiera debido revelar las circunstancias de una época en que la nueva monarquía estaba aun vacilante, el poder de los emires era débil, la poblacion de Córdoba, recien convertida en capital, escasa é incoherente.

Empezóse la obra en 786. En 787, año del fallecimiento de su fundador, estaba ya muy adelantada. Hescham, hijo y sucesor de Abd-el-rhaman, la continuó: comprendió al parecer el pensamiento de su padre, y no alzó la mano hasta que la dejó concluida. Lo estaba ya en 796, diez años despues de haber echado sus cimientos. Ignórase cuáles fueron á punto fijo las cantidades invertidas; mas se sabe que Abd-el-rhaman llevaba ya gastadas á su muerte cien mil doblas de oro, que Hescham destinó á solo el embellecimiento del templo cuarenta y cinco mil que le tocaron del botin de una batalla, que la ciudad de Córdoba mantuvo á sus espensas los obreros, que otras ciudades contribuyeron con subsidios: no es difícil calcular á qué enorme total ascenderia la suma de sus gastos. Puede ser considerada con razon como la obra de todo un pueblo esta mezquita: es la primera que los árabes conciben y crean en España, es la en que por primera vez revelan su poder, su saber, sus sentimientos.

Constaba entonces el templo de solas once naves, diez menores y una mayor terminada al norte por una capilla llamada Mihrab donde entraba el creyente á la escasa luz de las lámparas para adorar el libro santo de Otman y dar siete vueltas al rededor, hincado de rodillas. No tenia aun ni bellos minaretes ni soberbios patios; no ostentaba aun en su interior esa magnífica capilla de Villaviciosa donde es fama que se reunian los imanes para interpretar las leyes del Profeta[22]; no deslumbraba ni imponia aun al fervoroso musulman con los mármoles, los mosáicos, los colores, la rica y caprichosa pedrería del santuario. Grave, severo como todo lo que lleva sobre sí el sello teocrático, no presentaba aun mas que calles de columnas con capiteles medio bosquejados, sobre cuyos arcos de herradura descansaban techumbres de madera. Ofrecia ya en el esterior el aspecto de una fortaleza: estaba circuido de muros y torreones almenados, tenia entre cubo y cubo puertas que abrian paso hácia otras tantas naves; mas no habia ocultado aun el adusto semblante de sus paredes bajo esa caprichosa decoracion que corre hoy en torno de sus ajimeces, y se estiende como una red sobre el area de sus arcos ultrasemicirculares, sobre los dinteles de sus puertas, sobre los suntuosos recuadros en que se desarrollan todas sus hermosas y elegantes curvas.

Abd-el-rhaman III fue el que levantó su mas gallardo minarete y embelleció su patio[23]: El-Hakem II, el que revistió el Mihrab de esos innumerables y riquísimos detalles que le constituyen hoy uno de los mas acabados y seductores conjuntos que puede presentar la arquitectura del oriente. Cuando el reinado de El-Hakem, habia ya tenido lugar en Córdoba la recepcion de aquellas brillantes embajadas enviadas por los emperadores de Bizancio: las huestes árabe-españolas habian hecho estremecer el Africa al sangriento choque de sus armas vencedoras; la Europa entera fijaba aqui los ojos conociendo que habia de partir de aqui la civilizacion de pueblos sumidos aun en la ignorancia y la barbarie. Las relaciones con todos los estados y sobre todo con el imperio de Constantinopla, el cambio recíproco de conocimientos á que habian dado orígen estas mismas relaciones, el lujo creado y fomentado por las incesantes victorias alcanzadas en dos vastos continentes, la inteligencia y el delicado gusto del monarca cuya mano estaba siempre abierta para coronar de favores á todos los que se acercaban á los umbrales de su palacio con los inmarcesibles laureles del arte ó de la ciencia, todo contribuyó entonces á que se fuese cubriendo de oro, de magnificencia, de hermosura, un monumento que por su naturaleza y por la del pueblo que lo habia construido estaba destinado á ser la espresion mas fiel y mas legítima de todos los adelantos de los árabes. Decoróse entonces no solo su Mihrab, sino sus puertas principales: el arte bizantino se apoderó de él como de un campo conquistado; y esplayó asi sobre el interior como sobre el esterior sus kaleidoscópicas y complicadas formas.

Era ya esta mezquita en el reinado de El-Hakem bella, arrogante, grandiosa como ningun otro monumento; mas no tardó, á pesar del vasto espacio que ocupaba, en ser incapaz de satisfacer las necesidades religiosas de aquel pueblo. Voló su fama por las naciones sujetas al poder del islamismo; y se llenó de peregrinos que vinieron á visitarla desde los mas apartados límites del mundo. Córdoba creció todos los dias mas y mas ya con la afluencia de árabes asiáticos, enemigos de los Abassydas, que deseaban acogerse bajo la sombra de sus antiguos reyes, ya con la de árabes españoles rechazados por la temible espada de los príncipes cristianos, ya con la de africanos enemigos de la paz que traspasaban el Estrecho aterrados por las luchas que ensangrentaban sin tregua el suelo de su patria, ya con la de hombres á quienes el amor al arte y á las letras traía á respirar el aire de esta universidad y este palacio, impregnado todo de ciencia y de poesía: no bastó la mezquita para tanta poblacion, y se hizo una necesidad absoluta el ensancharla.

Almanzor, hadjib de Hescham II, se propuso llenar este vacío. Mandó que se construyeran otras ocho naves: dispuso que junto á la mayor, á corta distancia del Mihrab se levantase una capilla en que pudiesen reunirse los imanes.—Es ya sabido quién era este Almanzor: casi todas las ciudades del norte y oriente de España conservan aun tristes recuerdos de su lanza irresistible: casi todos los campos de Castilla fueron removidos con furor por sus batallas. Llevaba encadenada á sus banderas la victoria: no regresaba á la corte sino cargado de botin, lleno de despojos, de tesoros.—Aumentaba asi en Córdoba la riqueza al mismo paso que el vecindario; y se hacia fácil la construccion de toda obra pública, por mas que exigiese grandes sacrificios.

Aconsejaba la euritmia del conjunto que se repartiesen por igual las ocho naves al uno y otro lado de las que ya existian; mas no lo permitió desgraciadamente la proximidad del alcázar de los califas, cuya inmensa mole se estendia tambien al pie del Guadalquivir, al occidente de esta gran mezquita. Tuvo que hacerse el ensanche solo por la parte de oriente; y esta circunstancia es fácil comprender cuánto no habia de quebrantar la unidad y la armonía. El Mihrab dejó de estar en el centro; la puerta principal dejó de ser el estremo del eje mayor del edificio; las ocho naves, por necesarias que entonces fuesen, no pudieron menos de parecer una añadidura, y, mas que añadidura, una superfluidad, una escrescencia. No ganó la mezquita en el ensanche: perdió: perdió en hermosura, en gracia, en buen efecto.

Perdió aun mucho mas en la construccion de lo que es hoy capilla de Villaviciosa. La falta de simetría, la interrupcion de la agradable perspectiva que presentarian desde cualquier punto de vista las columnas, la pérdida de la grave y religiosa sencillez que constituía antes el encanto de tan vasta fábrica, estan apenas compensados por las gallardas curvas y las acertadas combinaciones de líneas de la nueva obra. Templos tan inmensos y de tanta significacion para la historia de las artes desea el espectador abarcarlos en conjunto, verlos en toda su estension, admirar de una ojeada toda su grandeza. Cuanto perjudica la impresion total es una verdadera fatalidad para estos monumentos, lo es aunque reuna en sí las mas brillantes cualidades.

Dudan algunos de que esta capilla pueda ser atribuida ni aun al siglo de Almanzor, por quien la suponemos fundada; mas estamos íntimamente convencidos de que no cabe siquiera lugar á tales dudas. Júzgase generalmente de su época por las molduras interiores; y esto es á nuestro modo de ver una falta censurable. Las molduras interiores, del mismo modo que los alicatados, pertenecen cuando mas á la época en que fué edificado el alcázar de Granada[24]: las paredes, los grandes arcos de segmento abiertos en ellas, los ajimeces inferiores pertenecen evidentemente á la primera época de esta arquitectura. Un simple cotejo entre estas líneas y las del Mihrab bastarán mas tarde para demostrar hasta la evidencia esta idea, que es para nosotros una verdad incontestable.

Empezaron ya los mismos árabes á falsear el aspecto artístico de esta gran mezquita; mas ¿qué fueron estas ligeras innovaciones para las que hicieron algunos siglos despues, si no los conquistadores de Córdoba, sus infaustos sucesores?—S. Fernando se contentó con purificarla y levantar un altar provisional donde pudiese celebrar el triunfo de sus armas; el obispo Mesa con apoyar respetuosamente en las columnas de las naves occidentales una capilla cuyos restos han desaparecido sin dejar huella ni haber lastimado en nada el monumento. Dicen si el mimbar ó capilla de Villaviciosa sirvió en los primeros tiempos de sala de consejos y despues de sacristía; pero nada tuvo que sufrir tampoco ni de la mano de los concejales ni de los del cabildo. Tardó siglos en sufrir mutilaciones este singularísimo edificio; mas ¡ay! ¡fueron bien crueles los que ya por primera vez hizo en él la escuadra y el compás de los cristianos! Corria el año 1521 cuando el obispo D. Alonso Manrique, llevado esclusivamente de su celo religioso, concibió el fatal proyecto de levantar en medio de la mezquita una capilla que pudiese rivalizar con las mejores de aquel siglo. Comunicólo al cabildo, halló desgraciadamente en él no solo proteccion, sino entusiasmo, y puso dos años despues, en 7 de setiembre, la primera piedra de la nueva obra. Quiso oponerse la ciudad; pero inútilmente. El emperador, que no habia visto nunca la mezquita, tuvo que fallar la contienda; y falló... en favor de D. Alonso. Tres años despues que pasó el emperador á Andalucía, cuentan que al ver lo que se habia destruido dobló tristemente la cabeza y manifestó un profundo sentimiento por haber otorgado su permiso; mas ¿de qué podian servir entonces sus estériles é infundadas quejas? ¡era ya tarde![25]

Merece sin disputa alguna ser considerada esta capilla como una de las mas acabadas creaciones del estilo plateresco: es bella, suntuosa, abundante en riquísimos detalles, magestuosa, grande, obra llena de verdad y de poesía; mas ¿cómo han de bastar todas sus dotes para atenuar el dolor que producen en el ánimo del artista los recuerdos de lo ya destruido? Llega uno á perderla de vista en el seno de aquel estenso bosque de columnas: recorre el monumento, da con ella y siente palpitar de ira el corazon al ver tal sacrilegio. ¿Qué? ¿no habia otro local en Córdoba donde levantar esta capilla? ¿Cómo no fueron á sentarla sobre las ya dispersas ruinas de otros monumentos? ¿no advirtió Alonso Manrique que iba á profanar una mezquita respetada por las armas del mismo S. Fernando? ¿una mezquita, única en su género, sin igual no solo en España, sino en las opulentísimas ciudades del oriente? ¿una mezquita que encierra en sí sola toda la historia del arte árabe, una mezquita que es el mas bello álbum que nos legó un gran pueblo? ¡Ah! diria él: ¡es preciso que la cruz brille radiante de magestad y gloria en el último templo del Profeta! ¡es preciso que desaparezca el carácter marcadamente sensual del monumento! ¡es preciso que el viajero respire en él solo el aire de la religion cristiana! No fué todo esto mas que una ilusion; pero una ilusion funesta. No era posible, no lo es, no lo será nunca cambiar el aspecto eminentemente oriental de esta mezquita. La cruz del Redentor brillará siempre alli medio amortiguada por los vivos reflejos del mahometismo; el viajero oirá con asombro bajo aquellas bóvedas los cantos de la Iglesia. Acompañad á ese templo al mas fervoroso creyente en Jesucristo sin decirle que aquella es la catedral cristiana: entrará con la cabeza erguida y cubierta, levantará la voz, no doblará nunca la rodilla. Admirará la obra del arte; y embebido en la contemplacion de tantas maravillas, lo olvidará todo para pensar tan solo en el Profeta. Estrañará ver apoyados en aquellas columnas altares levantados á la memoria de los mártires: oirá con sorpresa los sonidos del órgano, si por acaso hieren sus oidos antes que haya llegado á descubrir la capilla de Manrique. Llegará á la capilla y maldecirá instintivamente la mano del que se atrevió á destrozar asi la unidad del templo. ¿Cómo podrá dejar de ver en ella un espantoso anacronismo, una planta exótica, un delirio artístico? ¡Que los que hayan tenido la suerte de visitar esta mezquita recuerden la primera impresion que recibieron! ¿Quién despues de haber visto las naves árabes, el mimbar, el santuario del Coran, ha podido fijar jamás los ojos en las innumerables bellezas que cuenta la capilla? Cuando ha querido hacerse cargo de ellas y estudiar uno á uno los detalles, ¿no ha debido acaso hacer abstraccion de la mezquita, y concentrar toda su fuerza de atencion en la obra de D. Alonso?

La mezquita de los Abd-el-rhamanes no era susceptible de modificacion: ó debia ser destruida ó conservada por el sacerdote cristiano en toda su pureza. Comenzó, empero, á inutilizarla un prelado tan lleno de celo religioso como de ignorancia artística; y desde entonces ¡qué de profanaciones! ¡qué de absurdos! ¡Ay! ¿quién sabe si la exagerada fé de otro prelado llegará un dia á querer destruir las paredes del santuario musulman para erigir un altar bajo su concha de alabastro? ¡Quién sabe si para acabar de hacer triunfar el cristianismo sobre el islamismo hará saltar los ricos mosáicos que cubren los brillantes muros del vestíbulo!

¡Mezquita para siempre célebre! ¡mezquita levantada y frecuentada por emires y califas! ¡mezquita por cuya pérdida lloran aun bajo su cielo oriental los que creen en Alá y en su Profeta! ¡mezquita á que han venido á inspirarse ya tantos poetas y á estudiar tantos artistas! ¡Salud! Un viajero desconocido va á atravesar con respeto tus umbrales y á revelar tus encantos á las generaciones presentes y futuras. Eleva su lenguaje al par de tu belleza, evoca ante él todas tus glorias y recuerdos, enardece hasta donde puedas su corazon, exalta hasta donde quepa su humilde fantasía. La pluma se estremece en su mano al contemplarte en toda tu grandeza, y necesita de todo tu favor para no sucumbir en tan árdua y aventurada empresa. ¡Que el genio de creacion y de armonía que te construyó dirija mis acentos! ¡que sea yo quien escriba! ¡que seas tú quien dictes![C]

Huyen á mi extasiada vista de repente todas las importunas construcciones, reformas y mutilaciones consumadas por el fervoroso celo de los cristianos triunfadores para convertir en templo del Crucificado la suntuosa aljama; renueva mi enardecida mente las deslumbradoras escenas de la dominacion del Islam en la mas florida region de España, y llegan á mi embelesado oido los mágicos acentos que Azazil[26] dirigió sin duda al hijo de los califas[27] Abde-r-rahman ben Moavia, cuando á los treinta y un años de haber derrotado al rebelde Jusuf el Jehri en la famosa batalla de Musara, robustecido ya su poder con otras insignes victorias, hechos tributarios los cristianos de Castilla[28], desarmados los sediciosos walís de las provincias, y dilatada la fama de su fortaleza, de su clemencia y de su justicia desde la aterrada Cairvan[29] hasta la amedrentada corte de Carlomagno[30], resolvió poner un espléndido sello á las obras aceptas al Todopoderoso, que hasta entonces habia llevado á cabo, erigiendo en su deliciosa Córdoba una casa de oracion que le asegurase un puesto en el Paraiso. Recorro aquel encantado bosque de columnas, silencioso y sombrío como las poéticas florestas del Eufrates; respiro la fragancia del ámbar y del aloe quemado bajo sus incorruptibles techumbres de alerce, suave al embriagado olfato como el aroma que exhala de sus verjeles la gran ciudad edificada sobre las ruinas de Seleucia y Ctesifon reunidas; báñome todo en la templada luz que por las naves difunden multitud de lámparas reflejando en el terso pavimento, en los bruñidos jaspes de las columnas y en las portentosas labores del santuario; no diviso ya ni aquella catedral, obra de nazarenos, que un momento há se alzaba en medio de la gran mezquita, interceptando mi vista ansiosa de abarcar su primitivo conjunto; ni aquella multitud de capillas y altares, obra indiscreta y confusa de todas las épocas y gustos reunidos, capillas y altares odiosos al fiel muslim que ve erigidos en ellos otros tantos ídolos; ni los infinitos sepulcros que profanaban la santa casa donde no osó mandarse enterrar ningun Califa: veo la gran rival de las mezquitas de Damasco, Bagdad y Jerusalen, restituida por ensalmo á su primitivo destino, y dando al olvido mi orígen, mi siglo y mi fé, me encuentro trocado en fervoroso y entusiasta islamita.

Por una rápida sucesion de recuerdos y sensaciones vive mi mente en pocos instantes un período de dos siglos, y desde el reinado del ilustre Omeya proscripto hasta el gobierno del altivo Al-Mansúr, todos los timbres de gloria y grandeza de los hijos de Moavia que tienen relacion con la célebre aljama pasan por ante mis ojos como fantásticos cuadros de un largo delirio de sensualismo que quizá no volverá á reproducirse en el mundo.

Oye, pues, amado lector, la historia probable de la gran mezquita, y acoge con tu benevolencia acostumbrada la restauracion descriptiva que te ofrezco de tan inestimable monumento, segun las tradiciones de los que lo conocieron, ó intacto, ó menos desfigurado que está hoy.

Hallábase Abde-r-rahman en su predilecto palacio de Ruzafa. Aunque veía por fin cumplidos los deseos de paz que siempre habia abrigado su magnánimo corazon, la tristeza hacia inclinar su gloriosa frente, porque en medio de uno de sus jardines se alzaba esbelta y gallarda una solitaria palma que, como nacida en el Occidente, lejos de la region de las palmeras, le traía á la memoria su propio destino.

Recordaba que él tambien vivia en un suelo estraño separado de sus mas queridos Coraixis, desterrado del dulce clima de la Siria donde tan alegremente habia trascurrido su primera juventud; deploraba el hado fatal que le hacia enemigos los parientes y deudos á quienes habia sacado de la proscripcion colmándolos en su reino de beneficios, hado sangriento que le habia obligado á quitar la vida á dos de sus sobrinos y á desterrar á Africa á su propio hermano Al-walíd, con cuyo auxilio, si no hubieran sido ingratos y rebeldes, habria podido tal vez invadir la Siria y lavar con la sangre de los aborrecidos Abbassides el polvo de la proscripcion que afrentaba á los hijos de Moavia; pensaba en suma que con la defeccion de los caudillos y tribus árabes no podria arribar en la colosal empresa de fundar en Andalucía un Califato para los Omeyas, á pesar de la lealtad y pujanza de sus asalariados Berberiscos, y aquel mismo Azazil, que fingiendo la voz del ángel Gabriel habia dictado el Koran á Mahoma, tomando ahora el acostumbrado disfraz, murmuró suavemente al oido de Abde-r-rahman El-Dakhel estas palabras:

—¿Es posible, descendiente de Merwan, que tan facilmente hayas perdido de vista el objeto con que el omnipotente Allah te salvó por mi mano del sangriento banquete en que fueron traidoramente inmolados tus parientes[31]? Ya has olvidado sin duda aquel beneficio: yo te le recordaré. Cuando despues de la usurpacion de As-Seffáh acudías diligente al llamamiento del pérfido Addullah Ibn Alí, gobernador de Palestina, fiado en la falsa promesa de paz y de perdon con que fueron engañados tantos Omeyas, un ángel, revistiendo la forma de un amigo tuyo, te salió al camino y te dijo:—«Obedéceme hoy, y en el dia del juicio hazme el cargo que quieras. Huye, huye de aquí: marcha al Occidente, donde te espera un reino: el convite de As-Seffáh es una traicion para aniquilar de un solo golpe á toda tu familia.» Ese ángel era yo. «¿Qué será de mí siguiendo tu consejo? me dijiste.»—Entonces te hice descubrir la espalda buscando en ella la señal que para reconocerte me habia dado tu tio Moslemah, el sabio versado en el libro de los sucesos futuros; mal podia yo engañarme, vi en efecto el gran lunar negro que matiza tu cuerpo, y te repetí: «¡huye, huye! vete al Occidente, donde te aguarda el reino de Andalucía: yo te acompañaré parte del camino: veinte mil dineros traigo para tí de orden de Moslemah: tómalos, y sígueme pronto.» La profecía del Kitábu-l-hodthán se ha cumplido; pero no te condujo Allah al Occidente para darte de por vida estériles conquistas. ¿Qué has hecho para asegurar á tu posteridad este nuevo imperio? ¿Qué podrán prometerse tus sucesores si decae la fé de los muslimes? ¿Te imaginas por ventura cumplido tu destino dejándote morir sepultado en el harém de tu Ruzafa sin haber dado á los andaluces una aljama digna en la corte de tu reino? No en vano, hijo de Moavia, mecían las feris tu cuna en los verjeles del Forat aquel año en que otro caudillo islamita de tu mismo nombre era derrotado en tierra de Afranc[32] por un rey de nazarenos. Medio siglo no ha transcurrido desde aquel ultraje, y has visto al nieto de ese mismo rey, al emperador mas grande de las gélidas regiones de algufia[33], amedrentarse al rumor de tus victorias, perder la color al asomar allende el Ebro tus campeadores, y solicitar tu amistad ofreciéndose á emparentar contigo. Pero entre el Islam y la Cruz la alianza es imposible, porque es preciso que el Occidente se prosterne bajo la ley del Profeta. Mira como por todas partes erigen templos á sus ídolos los sectarios de Jesus: sus reyes desafian tu poder fundando en sus estados basílicas y monasterios. Con ellos dan pábulo á su falsa religion y aumentan el número de los ilusos cenobitas que huyen los placeres y se imaginan hallar la felicidad en el propio sacrificio. No les bastan ya á los infieles los templos de ricos mármoles y vistosas pinturas de los vencidos godos, cuya mentida santidad ha seducido á los incultos bárbaros: á las fundaciones de Sisebuto, Chindasvinto, Wamba, y de los activos pastores del descarriado rebaño de Cristo, agregan hoy nuevas fundaciones los tenaces hijos de Pelayo[34]: el mismo impulso da la Iglesia en Afranc, en Italia, en Alemania, á los sucesores de Carlos Martel, y el infatigable Carlomagno, que ya se presume emperador de Occidente con afrenta tuya y de tu raza predestinada, presume levantar en la sombría Aquisgram un gigantesco domo revestido de pinturas y mosáicos[35] que rivalice con el que erigió Justiniano sobre el azulado espejo del Bósforo. Los infieles, que trabajan afanosos por cubrir la tierra de cruces, van estendiendo la colmena de la Iglesia, y como las abejas á la floresta acuden en tropel á Bizancio en busca de nuevas artes y fascinadoras invenciones. Antes que los domos de mosáico y las refulgentes manzanas de oro que intentan erigir los del Rhin cautiven el corazon de los pobladores de España, apresúrate á desplegar ante sus ojos el lujo seductor del Oriente; erige un santuario en que reunas á la disposicion perfecta que prescribe la Sunnah toda la belleza que la exaltada imaginacion de tus árabes sea capaz de concebir, auxiliada de las mas esquisitas formas del arte asiático, y una riqueza tal que cause maravilla á los infieles españoles, no familiarizados aun con las galas del imperio griego[36]. Carlomagno echará mano para su construccion de las columnas y esculturas de los edificios de Roma y de Ravena[37]: tú tienes para la tuya los suntuosos monumentos antiguos de Mérida, Itálica, Tarragona, Narbona y otras ciudades grandes. Dedica al santo libro de Othman una maravilla que haga acudir los cristianos convertidos á su recinto como las bandadas de palomas á los alminares, y que desde sus mimbares se reparta á esos incultos sectarios del Evangelio, obstinados en la mortificacion de los sentidos, el grano fecundo de la Sunnah[38], abriendo sus almas de hierro á las inefables delicias que promete á los fieles la única religion verdadera. Este obsequio debes á la mision civilizadora que te trajo á Andalucía, porque no fué tu destino el de conquistador solamente, sino tambien el de propagador del Islamismo: la Meka gime cautiva bajo el yugo de hierro de los usurpadores, y el alhige[39] á la Caaba es peligroso para tu autoridad: Allah consiente en favor tuyo la relajacion de aquel precepto, y el Profeta verá gozoso desde su etéreo trono que para preservar á tus súbditos del contagio de los pérfidos Schiitas sustituyes á la trabajosa peregrinacion impuesta á los de Oriente la visita á un nuevo santuario, á la casa cuadrada de Abraham una suntuosa aljama, y á la piedra negra de Gabriel[40] una copia del libro santo que le fué enviado del cielo en la mística noche del Al-Kadar[41]. ¡Animo, pues, hijo de Moavia! Acompañe al descanso de las espadas la obra de la predicacion; suceda al tráfago de la guerra y al clamor de los combates la agitacion pacífica de los ingenios; enmudezcan en buen hora los atabales, pero óigase por do quiera el rumor de la gente consagrada al trabajo de la palanca, de la fragua, del cincel y del martillo: para el grandioso objeto á que eres llamado Allah te permite tambien esplorar y remover las secretas entrañas de los montes: haz abrir las canteras de la vecina sierra, haz amasar la tierra regada con la sangre de los infieles y rebeldes, haz cortar los árboles de los bosques en que fueron clavados los caudillos traidores; yo te inspiraré la forma que has de ordenar para la Caaba del Occidente, y cuando ya la tengas erigida, la poderosa voz de los lectores y alkhatibes[42] arrullará el sueño de los leones africanos, y el armonioso concierto de los almuedanes[43] lanzado á los cuatro vientos desde el enhiesto alminar, hará enmudecer cinco veces cada dia el importuno clamor de las campanas de Cristo[44]. «Dios es grande. No hay mas Dios que Dios. Mahoma es su Profeta. Venid á orar; venid á adorarle. ¡Dios es grande, Dios es único!» entonarán con acordadas voces, y yo encomendaré á las auras la propagacion del sagrado llamamiento. Tú quizás no llegarás á ver la santa obra terminada, pero la verá tu amado Hixem, en quien sobrevivirán tu esfuerzo y tus virtudes; y cuando Allah fuere servido llamarte á juicio, pondré yo en la balanza de tus buenas obras tu piadosa fundacion, por sus méritos pasarás el Sirath como relámpago apenas visto[45], y llegarás feliz y triunfante al jardin de los eternos placeres, donde te saldrán á recibir los setenta almalekes encargados por Allah de darte la posesion de sus ansiadas promesas[46].

Estas palabras de Azazil avivan en el pecho del Coreixí la amortiguada llama del entusiasmo: hierve de nuevo en sus turgentes venas la sangre del impetuoso Merwan, y al pensar en las delicias del Genna[47], en la deleitosa sombra del granado inmortal plantado cabe el trono invisible del Eterno, en los cuatro místicos rios que brotan de su pié, y en las hurís etéreas nacidas de sus incomparables frutos[48]; al recordar que su muerte está tal vez próxima y que solo le falta emprender aquella grande obra para asegurarse la posesion del Paraiso y el don de la perpetua juventud en brazos de aquellas encantadoras vírgenes, sacude el letargo y la tristeza, y resuelve inmediatamente seguir la inspiracion del ángel que ha hablado á su oido.

Era la hora de adohar[49], y Abde-r-rahman, que á pesar de su edad avanzada solia dejar el blando lecho al alba para recrearse con sus favoritos en la caza de aves, no habia aun salido de su apartamiento. Cinco horas hacia que sus halconeros le esperaban con los caballos y los perros en el límite de la Ruzafa, cuando les despachó por uno de sus esclavos la orden de retirarse. Mandó á su eunuco Mansur, hagib á la sazon por muerte de Abde-r-rahman Ibn Mugheyth, que convocase á los jeques de su consejo[50] y á los secretarios de su mayor confianza, y despues de referirles la sugestion que aquella mañana le habia ocupado, les habló así en tono inspirado y solemne:

«Dos gigantes aspiran á dominar el mundo; el tercero que rivalizaba con ellos no lleva en sus entrañas corazon ni culto[51]. El dragon imperial que habia trabado alianza con la Cruz[52] está herido de muerte. ¿Quién dudará de la victoria del leon del desierto?

»El cristiano idólatra dice: Europa es la reina, Asia su sirviente. El fiel musulman esclama: del Oriente sale la luz, Algufia duerme en las tinieblas.

»La Iglesia y el Islam se miran frente á frente como el leon y el tigre despues de la primera embestida: dos barreras que antes los separaban ceden ya al poder de Allah clemente y misericordioso: en las montañas de Afranc deja el tigre cauteloso la presa por la vuelta[53]: en la ciudad de Constantino devoran las hogueras los monasterios, los monges y los ídolos, y á los golpes del martillo Isáurico se va desmoronando Santa Sofía[54].

»Los bárbaros de las regiones del hielo se estremecen de placer en sus pellizas esperando que un pontífice romano ponga en la diestra de Károloh[55] el globo de Constantino; pero las hermosas hijas del Yemen celebran con las zambras y cantares de sus alméas las victorias de los hijos de Ismael, que por la virtud del Koran se abren las puertas del Oriente y del Occidente.

»La perla de la Propóntide no pasará á ornar la sien del Franco, aunque la amedrentada Irene le brinde con su mano y su diadema[56]. Bizancio aborrece los ídolos y se entregará en brazos de los Emires.

»Los hijos de Odino se han cubierto de ignominia doblando las cervices bajo la maza Carlovingia: Witikindo se ha sostenido solo contra el bárbaro de Austrasia, los demas caudillos germanos han palidecido como mugeres y revestido en Paderborn las blancas túnicas de los Catecúmenos incircuncisos[57].

»Pero los hijos del Yemen han sombreado con el velo del Islam la parte mejor de la tierra, desde el Thibet hasta el Pirineo, y á impulso de la cimitarra de los fieles espiran el dragon imperial en los páramos de Sem[58], la escuela de Cristo en los verjeles de Japhet.

»Los Salvages, cubiertos de pieles, aullaron como lobos hambrientos con la esperanza del botin durante las disensiones de los hijos de Ismaël: vieron que sobre las orillas del Eufrates se cernia el fatídico cuervo, y que la blanca paloma habia desamparado su antiguo nido, y se imaginaron cebarse en las riquezas y placeres; mas estaba escrito que no sería para ellos la hermosa tierra del azahar y de la oliva, y el pastor del rebaño del Profeta los hizo rodar perniquebrados por las vertientes de sus ásperas montañas[59].

»Entonces cantaron las vírgenes y los ancianos del Hedjaz: no hay mas Dios que Dios, ¡Mahoma es su Profeta! Poderosa es la raza Coreixí: Dios clemente ha vinculado en ella el precioso collar de Cosroës y las veinte y cinco coronas de los reyes de Iberia[60].

»Se imagina el gigante idólatra ser el sucesor de César: no advierte que sobre el plátano se ha levantado la palma en el Andalús[61], y que á su gallardo columpio acuden hoy de Africa y Asia las aves vocingleras.

»Nuestro es en verdad lo mas aventajado de la tierra: en nuestro dominio se crian las aves de mas vistoso plumage, las piedras preciosas de mas valor, y las plantas de mas fragancia. Es el predilecto del sol que le da fuego fecundo, del mar que siempre le arrulla enriqueciéndole con el coral y la perla.

»El idólatra de algufia no ha abierto aun los ojos: la Iglesia le educa y ya le enseña á deletrear con su dedo[62]; pero el sucesor del Profeta ha gozado las delicias del saber y mojado el labio en las límpidas aguas de la elocuencia y de la poesía. No tiene, pues, que temer que el bárbaro rey de Afranc rivalice con él en virtud, magnificencia y cultura.

»No entregará Dios el mundo á los que se embriagan predicando penitencia, y se enriquecen ensalzando la pobreza, y se dan al libertinage recomendando la castidad[63]; mas nosotros, que buscamos la dicha en la tierra y la felicidad en el cielo, bendeciremos á Allah porque nos ha dado la miel dulce, la rosa balsámica, el rubí encarnado, la seda joyante y la muger hermosa.

»Para ellos los monasterios pobres y sombríos; para nosotros los verjeles, el harem, los baños y las aljamas: aljamas revestidas en lo interior de bruñidos jaspes y esplendorosos estucos, que con su luz y su fragancia transportan al fiel muslim á la casa celeste de la Adoracion[64] construida de jacintos rojos y cercada de lámparas inextinguibles.

»Para ellos claustros lóbregos y silenciosos, para nosotros las cristalinas fuentes y verdes arrayanes de los jardines; para ellos la vida triste y recelosa del castillo, llena de privaciones; para nosotros la existencia risueña y tranquila de la academia; para ellos la intolerante y suspicaz tiranía; para nosotros la monarquía clemente y paternal; para ellos la ignorancia popular; para nosotros la instruccion, pública y gratuita; para ellos los yermos, el celibato, el sacrificio, el martirio voluntario; para nosotros los campos fértiles, el amor, la fraternidad, la bienandanza, las comodidades y deleites; para ellos los penosos preceptos de la Iglesia, las enconadas disputas de los concilios; para nosotros los fáciles mandatos de la Sunnah y los entretenidos certámenes de los sabios y poetas.

»¡Gran contienda se inaugura entre la barbarie y la cultura, entre las sombras y la luz, entre Cristianos y Muslimes! Preparado está el mundo y dispuesto para grandes cosas, como el hierro que sale de la fragua enrojecido y solo espera la nueva forma que van á darle sobre el yunque.

»El Franco y el Arabe son la tenaza que le tiene asido, y cada cual levanta sobre él su martillo.

»Pero el Franco habrá de volver la maza á menudo contra otros bárbaros procedentes de los vastos páramos de hielo[65], y al Arabe le bastará sacudir con el ruido de sus corceles el indolente sueño del Ganges y del Indo que se mueren sobre las flores.

»No resta mas que vigorizar el brazo del forjador donde mas tenaz es la resistencia: un esfuerzo mas, y la vida del Oriente trasmigra al magestuoso Guadalquivir; un acto más de fé, y la magestad de Bagdad se humilla ante la reina del Andalús, y el Godo casto y salvage que hoy proclama rey la enriscada Asturias[66], hunde entre sus pobres templos de cal y piedra tosca[67] la férrea corona de puntas heredada de Pelayo.

»Alcemos, pues, á Allah que ha protegido nuestras armas; alcémosle sobre el gran rio del Andalús una aljama que supere en magnificencia á las de Bagdad y Damasco, solo comparable á la santa Alaksa de Jerusalem; y los legítimos sucesores en la herencia de Othman impíamente sacrificados, exultarán aunque insepultos.

»Levantemos la Caaba del Occidente[68] en el solar mismo de un templo cristiano que tengamos que derruir, para que caiga la Cruz entre escombros y sobre su polvo descuelle el Islam radiante.

»Ostentará la gran mezquita todas las galas del mediodia y del Oriente: su arquitectura será un espléndido compuesto de todos los estilos, para que en ella puedan leer los venideros todas nuestras conquistas.

»Sea su planta parecida á la de las basílicas del Crucificado, para que la casa de Dios oprima la casa de los ídolos: atrio, pórtico, naves y santuario; todo en un recinto de cuatro ángulos y cuatro lados, como la santa casa de la Meka[69].

»Sea el atrio vasto, espacioso, desahogado: con abundantes y puras aguas para tas abluciones: tal que despues de edificado no haya lengua que ensalce el atrio de Santa Sofía. Descanse todo él sobre una anchurosa cisterna de bóveda subterránea, de modo que el peregrino de tierras de Asur, al refrescarse á la sombra de sus naranjos se crea transportado á los pensiles de Babilonia.

»Ábrase paso el gentío de los creyentes al cuerpo de la mezquita por once puertas circulares que correspondan á otras tantas naves, tendidas del algufia á la quibla[70], y la nave central sea mas espaciosa que las laterales, descubriendo en su fondo á los extasiados ojos de los muslimes la maravilla nunca vista.

»El cuerpo de la aljama aventajará por lo sorprendente de su perspectiva á la famosa mezquita de Amrú y á la santa casa de Jerusalem[71], porque sus once naves estarán cruzadas en ángulo recto por treinta y tres mas angostas: todas sostenidas en ricas columnas de mármoles variados, que al que las mire le representarán la imágen de una lucida hueste en simétrica formacion y belicosa apostura.

»Verdaderamente se asemejarán esas mil columnas al bosque de lanzas que presentaban en el inolvidable dia de las Víctimas mis leales Zenetes[72], fundamento de mi poderío. Sobre esas columnas voltearemos arcos que imiten sutiles banderas henchidas por el viento de la fortuna, y sobre el conjunto descansará una rica techumbre de alerce incorruptible, así como en mis soldados descansa en España la incontaminada Sunnah, que á todos nos ampara.

»¿Qué espectáculo será semejante al de esos mil arcos ligeros descritos en el espacio, apenas sostenidos en sus arranques y dejando pasar la luz, como un bosque ornado de guirnaldas que sacude y levanta la brisa? No sabrán las gentes á qué compararlo, porque no habrá monumento antiguo ni moderno que ofrezca tan original combinacion.

»No profanarán nuestro templo simulacros groseros, no tendrán en él cabida los ídolos de los adoradores de los astros y del fuego, ni los emblemas impuros de la India y del Egipto, ni los perecederos dioses de Grecia y Roma. Ormuz y Siva, Venus y Rea, Jesus y María, no recibirán de los Muslimes idolátrico culto; el único símbolo que en nuestra aljama pondremos será esa gallarda curva sostenida en el aire, que recordará á los verdaderos creyentes la afortunada huida del Profeta á Medina.

«Esa es la mística forma que en aquella memorable noche dibujaron en el cielo la luna nueva que le iluminó el camino, y en la tierra el poderoso casco de su caballo[73].

»Como en la marea creciente dibuja la ola en la arena de la playa su círculo, pasando sobre la huella de la oleada anterior, así el dichoso flujo de nuestras conquistas fué pasando triunfante sobre los pueblos sojuzgados. Quiero, pues, que nuestro rápido crecimiento marque sus grados en esas suntuosas columnatas, y que los arcos que lleven la incorruptible techumbre se levanten sobre otros arcos inferiores.

»Espanto y lágrimas producirá en los Cristianos la amenaza de esa creciente marejada; pero los que se conviertan verán en esos arcos el iris de la paz y de la bonanza.

»Coronarán los pulidos fustes de mármol y jaspe elegantes capiteles en que alternen el gracioso canastillo corintio y el magnífico compuesto romano; los arcos de la nave central aparecerán ricamente ataviados, y en el vestíbulo del mihrab prodigará la exuberante imaginacion del Arabe las encantadoras y lujosas combinaciones de la ornamentacion asiria y griega. En él se elevará la magestuosa cúpula bizantina, que protegerá la tranquilidad del hijo de los Califas durante sus oraciones[74]. Cerrarán esta incomparable aljama cuatro altos y gruesos muros fortalecidos con torreones, cuya solidez desafiará á la de las insignes obras romanas de Africa y España, y cuyas endentadas almenas traerán á la memoria nuestras lejanas conquistas[75].

»Despues de terminada nuestra obra, vengan en buen hora á disputarnos los adoradores del hijo de María el predominio sobre el Occidente. El libro santo que tengo reservado[76] para el inimitable mihrab que ha de ser la maravilla del Andalús, conservará la unidad de nuestra fé: inalterable é inflexible nuestra creencia, crecerá el islamismo pujante en Europa arrollando esa multitud de leyes, sectas é instituciones que traen divididos á los incultos Godos y Germanos, y la Ley del Profeta, que es hoy el vínculo áureo de su pueblo predestinado, será con el tiempo la férrea argolla que fuerce á los rebeldes imperios idólatras á prosternarse ante la Quiblah de la grande aljama.»

Así habla Abde-r-rahman, y los jeques de su consejo, que con respetuoso silencio le han escuchado, aplauden su piadoso propósito, añadiendo que verdaderamente ha espuesto con elocuencia la situacion actual del mundo y predicho con tono de adivinacion el futuro engrandecimiento del nuevo Califato. Alguno de ellos, contagiado tal vez de las doctrinas que públicamente se enseñan en las iglesias y monasterios cristianos de Córdoba, baja la vista al suelo y guarda silencio, dudando del triunfo que el hijo de Moavia cuenta por seguro, y juzgando que este no ha comprendido la moral de los que siguen al Crucificado.

Umeya Ibn Yezid, secretario favorito de Abde-r-rahman, y que por su oficio de Katib era el encargado de estender las órdenes del soberano[77], y de la proteccion y seguridad de los Cristianos y Judíos de Córdoba, fué inmediatamente comisionado para tratar con el Obispo y con el Conde[78] de los Cristianos la compra formal del templo sobre cuyo solar habia de erigirse la nueva mezquita. Mandóle que llamase á sus arquitectos para comunicarles su plan y darles sus instrucciones, y añadiendo algunas órdenes para su tesorero y para el colector de los impuestos relativamente á las sumas que se proponia destinar á dicho objeto, despachó á sus consejeros. La hacienda de Abde-r-rahman se hallaba en estado floreciente á pesar de los cuantiosos gastos que habia tenido que hacer para dar esplendor al naciente Califato: sus prodigalidades con los hombres dedicados á la ciencia y la literatura, el numeroso ejército que habia constantemente mantenido en pié para sofocar en todas partes los gérmenes de la rebelion, las costosas obras que habia emprendido para que rivalizase Córdoba en lujo, magnificencia, palacios, jardines, alamedas, casas de recreo y de placer, con las ciudades de Bagdad y Damasco, habian agotado á veces sus arcas; pero estas se habian vuelto á colmar cuantas veces habia sido menester merced á la habilidad con que el descendiente de Merwan sabia hacer fecunda la estéril roca de la Sunnah. El impuesto legal prescrito por esta, denominado de la limosna (sadakah)[79], el que satisfacian los Judíos, el tributo del azaque, y el que pagaban los Cristianos por razon de sus personas, iglesias, monasterios y catedrales, no habian podido cubrir tan exorbitantes gastos; y habia sido necesario que el Sultan gravase á sus súbditos con contribuciones no autorizadas por su código religioso. Habíanse establecido nuevos impuestos despreciando las reverentes reclamaciones de algunos meticulosos Cadís contra la manifiesta violacion del texto de la ley, y habia recursos mas que suficientes para atender á la obra proyectada por dispendiosa que fuera. La sola compra del solar habia de costarle una gran suma.

Pero las primeras negociaciones encomendadas al katib Umeya fueron infructuosas. Los Cristianos, firmes en los artículos de la capitulacion que se les habia otorgado por los Sarracenos conquistadores de Córdoba, no querian vender á Abde-r-rahman el templo en que este habia fijado sus miras, y que era una espaciosa basílica cuya posesion compartian con los sectarios del Profeta[80]: pues los Musulmanes, en efecto, fieles á la práctica entre ellos establecida por consejo del Califa Omar, de dividir con los Cristianos las iglesias de las ciudades conquistadas, al tomar á Córdoba habian partido en dos la principal de sus basílicas, dejando una mitad á los naturales y apropiándose la otra, que habian al punto convertido en mezquita. Los Cristianos satisfacian religiosamente el tributo que se les habia impuesto para poder permanecer con sus iglesias, obispos y sacerdotes[81]: y si bien habian sufrido despojos y exacciones injustas de parte de los gobernadores nombrados por los Califas de Oriente en los años pasados, la justificacion y buen nombre del hijo de Moavia estaban interesados en que la deseada cesion ó venta se hiciese sin asomo de violencia. Conocia Abde-r-rahman con su natural talento, que el celo de los naturales estaba notablemente entibiado, que el fervor religioso era mayor en los conquistadores que en los conquistados; creía que el cautiverio y la afliccion habian domado la pasada entereza de los Cordobeses; que la Córdoba de su tiempo no era ya aquella heróica colonia patricia convertida, tan dispuesta al martirio y pródiga de su propia sangre, cuando guiaba el rebaño de Cristo el grande Osio bajo la persecucion de Diocleciano y Maximiano, ni la Córdoba ortodoxa que habia padecido guerras, hambres y peste, por no contaminarse con el arrianismo; sabia, por último, que á pesar de la enseñanza católica dada á la juventud cristiana en las escuelas y colegios de los monasterios, donde tanto se distinguian ya algunos abades y jóvenes seglares, formidables quizá á los Mahometanos para lo venidero[82], la iglesia de Córdoba ahora padecia dolorosas excisiones por las nuevas doctrinas de Migencio y de Elipando[83], y se imaginaba que sus pastores no seguian ya las huellas de aquellos primeros obispos tan ominosos á los Donatistas, á los Luciferianos, á los Gnósticos y á los Priscilianistas, y cuya vida habia sido una lucha continuada contra los enemigos de la Iglesia[84]. Sorprendióle, pues, sobremanera la repulsa de los Cristianos, pero la idea entre verdadera y falsa que se habia formado del pueblo sojuzgado y de los encargados de su gobierno, le hacia esperar que venceria su resistencia con solo insistir y encomendar al tiempo el resultado de las proposiciones entabladas en su nombre. Así realmente sucedió, pero quizás no por la causa en que él confiaba.

¿Cómo fué el conseguir Abde-r-rahman tan grande sacrificio de los Cristianos? ¿Cómo el resolverse estos á abandonar su basílica principal á los Mahometanos? ¿No habian sido aquellos santos muros testigos de sus promesas y juramentos en las épocas solemnes de la vida? ¿No habian ellos escuchado sus votos, los votos de sus hijos y los de sus esposas al recibir los divinos Sacramentos? ¿Por ventura les era ya indiferente ver profanada aquella tierra que santificaban las preciosas reliquias de sus mártires; removida la pila bautismal que les habia abierto la entrada al gremio de los fieles; derribado el santo tabernáculo que constante y amoroso habia habitado el mismo Jesucristo trasustanciado en pan de vida eterna; despojada, desnuda y despedazada, por fin, el ara santa donde diariamente desde pequeñuelos, ellos, sus padres y sus abuelos, habian presenciado el Santo Sacrificio de la Ley? ¿Era posible que no tuviesen apego y cariño al baptisterio donde al nacer habian recibido la blanca vestidura de la inocencia y las armas de soldados de Cristo, al altar ante el cual se habian desposado, á todo aquel recinto, en fin, centro de su vida moral, donde habian aprendido á orar y á merecer, donde habian temido y esperado, entonado himnos y vertido lágrimas de amor y de penitencia? «Solo Dios omnipotente lo sabe,» diremos nosotros segun la costumbre de los historiadores árabes cuando no aciertan á darse razon cabal de alguna cosa.

Es cierto que bajo Abde-r-rahman I los Cristianos de Córdoba no fueron jamás molestados por causa de su religion: pagaban, sí, como pueblo conquistado crecidos tributos, pero eran respetados en sus creencias, tenian sus iglesias y monasterios, donde celebraban públicamente su culto, y no se cuenta que sus ministros, simples sacerdotes ó prelados, sufriesen vejaciones de parte del primer rey Umeya del Occidente. Al contrario, si comparaban su estado presente con el pasado, podian considerarse ahora como muy dichosos, porque la tiranía que á sus padres habia afligido desde el cruel Alahor hasta el codicioso Toaba, no la habian conocido ellos[85]. Cierto que se alzaba en Córdoba, ominoso á la ley de Cristo, un nuevo imperio cuyo formidable crecimiento se palpaba, cuya dominacion se temia: no empezaba amenazando, por lo mismo era mas imponente; no revelaba todos sus instintos, pero estos se presentian. Los mas doctos y perspicaces veían aunque lejana cernerse ya sobre la iglesia de la Bética la hosca nube de una persecucion sangrienta; mas la generalidad gozaba de la presente tolerancia; no era pues el miedo por entonces motivo para ceder al capricho del intruso soberano, el cual, si bien significaria su deseo con el tono propio del dominador cuando se dirige al dominado, habia resuelto por lo visto no hacer uso de la fuerza en esta ocasion. ¡Y sin embargo el templo fué vendido![86]

A pesar de las sensibles reticencias de la historia respecto de este suceso, cuyos pormenores no pueden determinarse mas que los vagos contornos de una escena que se sueña, discurramos, lector amado, segun las probabilidades, y hagámoslo de manera que no resulte injurioso el relato de la venta de la basílica cristiana, ni calumniosa la semblanza del prelado que la consintió, si algun dia llegan á descubrirse documentos que aclaren el hecho. No imitemos la peligrosa práctica de muchos modernos novelistas y dramaturgos, que apoderándose de los personages históricos para entretener con sus hechos los ocios de los aficionados á aventuras prodigiosas, y fundando en la mera posibilidad sus invenciones, suplen el silencio de las crónicas acumulando sobre ellos á placer interesantes monstruosidades, esponiéndose al riesgo de que un ignorado y empolvado documento producido á nueva luz los deje como infamadores convictos. Sea diversa nuestra regla: creamos que donde hubo maestros para hombres tan insignes en letras y en virtudes como S. Eulogio y Paulo Alvaro, no pudieron faltar virtudes para proceder con conciencia pura, ni letras para obrar con pleno conocimiento de lo que permitia y vedaba la disciplina de la iglesia goda; tengamos por seguro que el clero de Córdoba fué siempre digno de la alta reputacion que supo granjearse en todas las épocas conocidas de nuestra historia sagrada, pues no haremos escesiva gracia al que en todos sus actos notorios procedió como santo, si en alguno de sus hechos ignorados le suponemos consecuente. Y si con este espíritu de justicia procedes, facilmente comprenderás si pudieron mediar causas que hiciesen la enagenacion de la basílica catedral de Córdoba no solo legítima y válida segun el derecho canónico de aquellos tiempos[87], sino tambien oportuna y beneficiosa.

Ocurriría quizás lo siguiente: recibido que fuese por el obispo de Córdoba el mensage del rey árabe, el prelado reuniria su cabildo, y al esponerle la voluntad y proposicion del mahometano, al punto, como en toda reunion numerosa acontece, se pronunciarian divididos los pareceres: no porque la oferta de Abde-r-rahman tentase la codicia de los que desde luego se hubiesen declarado por la cesion de la basílica, sino porque su propio celo les hiciese mirar como ventajosa su traslacion á otro punto. Acaso el mismo obispo sustentaria esta opinion y la esforzaria ante el cónclave ó cabildo canonical con las sólidas razones que hoy mismo podemos colegir de aquellas circunstancias; y aquellos piadosos presbíteros se convencerian de la necesidad de admitir el ofrecimiento del monarca infiel. Tal vez los mismos que al principio lo repugnaban, acabarian por reconocer que lo que ahora se les pedia en tono amistoso, mañana otro se lo podia exigir en son de amenaza, y que lo que ahora rehusaban entregar con ventaja, tal vez se lo quitarian mañana violentamente con gran profanacion y daño. ¿Qué podian prometerse de la resistencia? Que ese pagano poderoso que los toleraba, se convirtiese en tirano que los acosase y destruyese. ¿Quién les aseguraba que á la muerte de ese rey, ya anciano, habian de disfrutar la paz y libertad que ahora se les concedia? Los sucesores serian quizá de condicion menos apacible, y entonces caerian en poder suyo todos los edificios sagrados sin resistencia. Considerarian por otra parte la mancilla que llevaban desde que la secta de Mahoma habia ido á albergarse bajo la santa techumbre de su propia basílica; los males que de esta nefanda promiscuidad se seguian á su grey, en desdoro del pastor que toleraba permaneciese el rebaño de Cristo en el redil de que se habian apoderado los lobos; los grandes inconvenientes que esta odiosa cohabitacion llevaba consigo; la imposibilidad de celebrar dignamente sus santos ritos y adorables misterios en el angosto recinto á que se veían reducidos; lo mucho que retraía al pueblo de la asistencia á los divinos oficios de la catedral el temor del contacto con los impuros prosélitos del falso Profeta; finalmente, las ventajas que podian prometerse de trasladar á lugar mas decoroso las santas reliquias allí depositadas, erigiendo al propio tiempo á los tres gloriosos mártires Fausto, Januario y Marcial, cuyo templo veían lastimosamente derruido[88], una nueva iglesia que fuese su principal basílica; y tributando acciones de gracias y loores al Omnipotente que así mitigaba las tribulaciones de su Iglesia permitiéndoles edificarle nuevos templos durante su mismo cautiverio, abrazarian con resolucion el partido que su Divina Magestad les sugería tomando al rey infiel por instrumento de sus altos designios. ¡Solo, en efecto, el Dios todopoderoso é infinito sabia entonces si algun dia habian de exultar las venideras generaciones libertadas de la triste servidumbre en que vivian, plantando de nuevo la gloriosa enseña de la redencion sobre la soberbia mezquita que ahora consentía se erigiese en castigo de sus pecados!

Ya una vez habia descollado la cruz triunfadora sobre el magnífico cornisamento del templo de Jano cuadrifronte; ahora parecia eclipsarse el resplandor del santo Lábaro, derribado de la famosa basa antigua; y era que efectivamente le tenia reservado el Eterno como pedestal el monumento incomparable producido por el último esfuerzo de todos los genios del Oriente conjurados contra el cristianismo.

Resuelve el cabildo entregar el templo con la condicion de que se le permita reedificar la basílica de los tres mártires en los pasados años destruida, y admitido por el Sultan el pacto, autoriza el obispo la enagenacion. El árabe jactancioso manda al punto que se dé á los Cristianos el precio convenido, que reciben en dinares de oro, y les insta para que desocupen prontamente el local, porque Abde-r-rahman es ya de edad avanzada, y urge que los suntuosos despojos de Itálica, Mérida y otras ciudades monumentales de los orgullosos Romanos, reciban su providencial colocacion en el soberbio edificio que levanta á Mahoma junto al gran rio de la Bética la raza predestinada que avasalló á los antiguos dominadores del orbe en cuantas provincias reconocian la autoridad de Heráclio. Llenas todas las formalidades consiguientes al convenio celebrado, verifícase la traslacion de las reliquias, vasos sagrados, imágenes y demas objetos religiosos al lugar provisional en que debia celebrarse el culto mientras se hacia la nueva iglesia: los Cristianos mas fervorosos acuden á presenciar la remocion de aquellos amados objetos, á regar con lágrimas aquella tierra santificada con despojos de mártires, á dirigir una mirada de tierna despedida á aquel magnífico templo, bajo cuyos dorados artesones habia un tiempo circulado, como trueno de nube fecunda, la voz del santo confesor Osio repitiendo los artículos del Símbolo que su inspirado labio habia dictado en presencia de Constantino en la asombrada Nicea[89]. Despojado por fin el templo, desocupados los claustros de los eclesiásticos y de los niños ofrecidos al servicio del culto[90], hecha tambien la traslacion de la escuela y biblioteca[91], reúnense á hora desusada de la noche bajo las silenciosas y desnudas columnatas romanas, sentenciadas á inmediata demolicion, el prelado, los presbíteros con su arcipreste, los diáconos con su arcediano, los subdiáconos y todos los clérigos menores con su primicerio, el instructor de los clérigos, el presidente de la sacristía, el archiscrinario, por último el seminario de los oblatos con el docto y piadoso anciano que los educa y rige, los ostiarios, y todos los seglares consagrados al servicio subalterno de la basílica, con no pocos feligreses devotos; y en solemne y lúgubre cortejo, despues de dichas las preces oportunas, entonando á media voz con sigiloso modo el breve y elocuente salmo Usque quo, Domine, oblivisceris me in finem, tan adecuado á los sentimientos del alma atribulada que recurre á Dios con firme esperanza, en el cual sobresalen las argentinas voces de los descuidados é inocentes niños y algunos mal reprimidos sollozos de los apesarados feligreses, salen del profanado templo por su orden, sin iluminacion ni aparato, y van desfilando magestuosamente á favor de las nocturnas tinieblas hácia una de las parroquias de la Ajarquía, en cuyas angostas y tortuosas calles se pierde en breve la piadosa comitiva.

¡Con cuánta ansia aguardaba el hijo de Moavia este momento! No bien llega á su noticia la entrega de la basílica, manda cerrar la mezquita provisional á ella contigua, deja su quinta de la Ruzafa, trasládase al alcázar de la ciudad para dirigir mas de cerca la obra que proyecta, traza por su propia mano diversos planos segun las grandiosas ideas que habia comunicado á sus hijos y consejeros, y dispone que empiece al punto el derribo del antiguo edificio. Con prodigiosa actividad llévanse á efecto sus órdenes. Las adiciones que habian tenido que hacer los Sarracenos en su primitiva mezquita mayor habian sido tantas hasta entonces, y tantos los techados que sucesivamente habian tenido que ir añadiendo con la necesaria degradacion para facilitar los desagües, que apenas podia ya el pueblo musulman estar en pié bajo las últimas cubiertas del edificio, cuya capacidad obstruía por otra parte el gran número de pilares de madera en que aquellas se habian ido sosteniendo. En esta incómoda mezquita, como en terreno prestado, se habia celebrado el culto público de Mahoma en los años mas gloriosos, si no los mas felices, del reinado de Abde-r-rahman I; pero ahora en su venerada vejez anhelaba dilatar sus arrogantes miradas en nueva, espaciosa y magnífica aljama, haciendo una sola casa de adoracion de la mezquita y la basílica reunidas, sustituyendo al tabernáculo el libro del Profeta, al ara sagrada el lujoso mimbar, al ambon el púlpito de los khatibes, y á las nubes de incienso los fragantes pebeteros de aloe y ambar-gris. Ansioso de ver la obra terminada, constitúyese en ella diariamente el infatigable anciano, mira con placer rodar sobre el marmóreo pavimento romano los fustes y capiteles que habian sustentado la enseña de Cristo confundidos con los pilares en que se habia sostenido la glorificacion del sensualismo; píntase en su atezado y enjuto rostro la alegría cuando ve enteras las magníficas columnas corintias tendidas á sus piés; confundido con la turba de los obreros, entre cuyos variados trages, indicio inequívoco de diversidad de naciones, se divisa con frecuencia la blancura de su ámplia vestidura habitual y de su turbante de finísimo lino, dispone solícito la conservacion de aquellos preciosos fragmentos, los hace clasificar cuidadosamente, manda que se unan á los que sus walíes le van enviando de Itálica y Mérida, y al mismo tiempo que avanza la obra de demolicion, promuévense sin levantar mano los trabajos para la construccion nueva. ¡Qué actividad, qué movimiento en toda la ciudad y sus cercanías! Diríase que la ereccion de la aljama principal es el único negocio que ocupa á la corte del naciente Califato. No hay en el alcázar dependencia que no intervenga en la gran novedad que se inaugura, ni en la poblacion industria que no reciba impulso. Mientras en las fábricas y talleres, en los bosques y canteras de la sierra, en los caminos de la montaña á la ciudad, en las caleras y hornos de ladrillo, todos se agitan afanosos; mientras el arquitecto sirio medita sobre sus planos y los que ha trazado la mano misma del rey, y el Katib escribe pidiendo artistas útiles al Africa y al Asia, y los maulís y poetas protegidos por Abde-r-rahman se esfuerzan en merecer los agasajos del monarca colmándole de elogios por su grandioso pensamiento, el pueblo desocupado y curioso hormiguea á todas horas en torno de los espaciosos fundamentos, y todo presenta una animacion y un interés difícil de describir.

Presiente Abde-r-rahman que no verá concluida la grandiosa aljama, y anhela que con toda presteza queden cubiertas al menos las peregrinas arquerías que forman sus naves, para tener antes de morir el consuelo de inaugurar en la Caaba de Occidente el culto del Islam con una de aquellas sentidas y elocuentes arengas que tenia por costumbre dirigir á su pueblo en la mezquita antigua los dias de juma[92]. La rapidez con que avanza la obra solo es comparable á la que se observa en la ejecucion de todas las empresas que acomete el soberano, el cual, si bien procede con pausa y reflexion en sus determinaciones, cuando resuelve llevarlas á cabo no consiente demora. Alzanse como por encanto los gruesos muros, las torres que les sirven de estribos, los espaciosos machones de la gran cisterna: tiéndese sobre estos la espaciosa bóveda subterránea destinada á sostener el ameno pensil de las abluciones: elévase ya sobre cimientos de asombrosas dimensiones el cuerpo primero del alminar, de donde ha de partir cinco veces cada dia el sonoro clamoreo del aliden[93]: no parece, en fin, sino que los genios gigantes de las montañas de Kaf[94] hacen rodar hácia el Guadalquivir desde las canteras de la selvosa sierra de Córdoba los poderosos sillares cortados, y que las encantadas péris del Eufrates, jugueteando en las túmidas ondas del gran rio y sus cañaverales, dirigen en las nocturnas horas al son de las inefables armonías asirias la obra de los jines propicios que Azazil envía como invisibles auxiliares al creyente fundador. ¿Quién, en efecto, sino ellas puede inspirar á los ingeniosos artífices levantinos empleados en la decoracion de ese monumento, los inimitables y bellísimos adornos que traza su mano sin fatiga, y como trasladando á los planos de estuco y de mosáico los contornos de las flores y vástagos del jardin del Paraiso?

Apenas han transcurrido dos años desde que se empezaron á echar sus cimientos, y ya se levanta la cuadriforme ciudadela del Islam por encima de las alamedas del rio, emparejando en altura con el severo alcázar de Rodrigo[95], y descollando entre las construcciones de la antigua ciudad romano-visigoda, recientemente decorada con sutiles alminares en que tremola la bandera blanca de los Umeyas, á la manera que descuella el casco de un magestuoso navío aun no aparejado entre las empavesadas góndolas de un puerto de mar. Pocas lunas mas, y los muros interiores, las soberbias columnatas de gallarda é inusitada forma[96], las elegantes hileras de dobles arcos sostenidos en corintios capiteles, los anchurosos pórticos, la hermosa fachada de once atrevidas puertas, las riquísimas portadas laterales flanqueadas de recamados ajimeces, la incomparable techumbre, en fin, de madera incorruptible labrada y pintada, quedarán terminados; pocas lunas mas, y la hotba[97] por la salud de Abde-r-rahman leida al pueblo desde el mas lujoso mimbar[98] del Occidente, se repetirá por mas de doce mil creyentes á una voz, ahogando con las vibrantes oleadas de la inmensa y atronadora deprecacion los vergonzantes himnos de los vencidos Nazarenos. Pasan en efecto esas pocas lunas, y no solo aparece la mezquita en disposicion de poderse habilitar para que se celebren en ella las públicas ceremonias el primer dia de juma, sino que hasta se descubre ya en la estremidad de su nave principal dirigida al austro el umbral del santuario, revestido de rica y deslumbradora ornamentacion bizantina: el venerado trasunto de la santa casa de la Meca, centro y norte de la adoracion de todo fiel muslim, cuyo acceso solo es permitido á la augusta persona del Amir. La grande aljama no está concluida, pero supliendo con ricos tapices de Siria y de Persia la decoracion de las paredes y la labor de las columnas, apenas comenzada, los obsequiosos arquitectos del Sultan han hallado medio de satisfacer la impaciencia de su señor. Prodíganse en las naves principales los esbeltos capiteles corintios, los gallardos fustes marmóreos de los monumentos romanos, destrozados por los walíes de las provincias para agasajar con sus despojos al monarca; colócanse en las naves secundarias los capiteles aun no cincelados y las columnas mas comunes: cúbrese el pavimento de flores y yerbas aromáticas; inúndase el sagrado recinto de luz y de aromas, aquella difundida por centenares de candelabros provisionales, estos exhalándose de cien pebeteros improvisados... ¿Podrá ya al menos el dichoso Umeya dirigir en la aljama de sus ensueños una vez antes de morir, como Imam[99] de la Ley, los ritos de un culto á cuya propagacion ha consagrado tantos sacrificios, tantos afanes, tantas esperanzas?... No podrá, no, que el almaleke encargado de cumplir el decreto de Dios le ataja el paso en medio de su rápida carrera. Ayer el glorioso invasor[100], recorriendo tal vez segun su costumbre las obras, rodeado de sus consejeros y favoritos, se entregaba á la vanagloria de un éxito venturoso; ¡y hoy cunde por toda la ciudad la siniestra noticia de que el hijo de los Califas tiene sentado á su cabecera al ángel de la muerte! A las dulces armonías de bien acordados instrumentos que resonaban dentro del harem y en los apartamientos de las esposas, han sucedido desgarradores ayes y lamentos; los eunucos y los esclavos mesan sus cabellos á las puertas de la augusta morada; los médicos hebreos mas afamados han agotado los recursos de la ciencia esterilmente, y entregan cabizbajos el ilustre moribundo á los últimos y piadosos obsequios de la sultana favorita, la hermosa Holal, madre de Hixem, la de los ojos negros. Ella es la que recibe su postrer suspiro, ella la que con solícita ternura baña y lava su cuerpo, ella la que le amortaja en siete blancos y finísimos lienzos, ungiéndole con preciosos aromas la frente, las manos, los piés y las rodillas, ella, en fin, la que, asistida de sus esclavas, le deposita en su lecho mortuorio[101]. Allí yace, en una de las estancias de su alcázar, cubierto con las mismas blancas vestiduras que son el distintivo de su preclaro linage, el sabio, el virtuoso, el victorioso, el afamado Abde-r-rahman, llorado por sus mugeres, sus hijos, sus consejeros, sus oficiales, sus protegidos, sus soldados, sus servidores y esclavos, por todos los que ayer le cercaban respetuosos mostrándole en sus labios la sonrisa del afecto ó de la lisonja. El juez superior de la aljama de Córdoba, Ab-du-r-rahman Ibn Tarif, anuncia al pueblo el doloroso acaecimiento desde el mismo mimbar que estaba dispuesto para el glorioso príncipe, y salen las turbas de la mezquita esclamando: ¡Duerme el Amir en la sombra de la paz! Allah le sonreirá en la hora de las cuentas porque guerreó en su camino. Ha muerto Abde-r-rahman, hijo de Moavia, hijo de Hixem Ibn Abd-el-Malek. El halcon Coreixí[102] que vino de Damasco ahuyentado por la negra bandera de los Beni Abbas, plegó sus alas en la perfumada orilla del Guadalquivir; descansa de su largo y rápido vuelo en la bendecida tierra del Andalús, donde es el mejor rebato, y donde hay promesas del Annabí de que un dia de pelea en ella es mas ensalzado y meritorio que dos años en cualquier otra frontera[103]. Ábransele de par en par las puertas del Eden, pues verdaderamente edificó en la Genna al fundar esta gran mezquita en el pais donde contarán de él y de su posteridad los convertidos rumíes: mandóseles que nos combatiesen hasta que dijéramos «no hay mas Dios que Allah,» y cuando esto dijimos ganamos por su medio esperanza y hacienda. Estas y otras semejantes esclamaciones hacen, acordes en su sentimiento por tan dolorosa pérdida, todos los que acuden á visitar al Sultan difunto, y entre ellos se señalan por sus estremadas demostraciones los jeques de las tribus Modharitas[104], los caudillos de los Eslavos, los adalides Bereberes y Zenetes, todos los walíes, capitanes, alcaides, cadíes y alfaquís de las circunvecinas provincias, que sin distincion de partidos, y depuesta toda rivalidad de razas, acudieron á la Sede del naciente Califato atraidos por la fama de la nueva fundacion. Todos, despues de hecha en sus personas la purificacion que prescriben la Ley y la Sunnah, se acercan en respetuoso silencio á la regia cámara, y entre el numeroso tropel que rodea el lecho mortuorio distinguimos primeramente á un hombre de rostro lampiño y macilento, abultado de cuerpo y lujosamente ataviado: es el eunuco Mansur, primero entre los de su especie que alcanzó en la España árabe el honor de ser encumbrado al cargo de hagib, y en quien el mérito personal justifica lo que á los ojos de los varoniles Yemenitas solo la tradicion asiática puede hacer tolerable. Ceden á este el puesto de preferencia otros siete personages, jeques del consejo privado del Sultan difunto, que son los siguientes: Abú Othman, el impetuoso caudillo árabe que habia sido el primero en levantar el estandarte de Abde-r-rahman en Andalucía; Abdullah Ibn Khaled, yerno del rey; Abú Abdah, gobernador de Sevilla; Shoheyd, hijo de Isa, hijo de Shoheyd, descendiente de un bereber, segun algunos de un griego, que habiendo caido prisionero en las primeras guerras del Islam, fué esclavo de Moavia hijo de Merwan; Abdu-s-sellám Ibn Basil, griego tambien, y liberto de Abdullah Ibn Moavia; Thálebab Ibn Obeyd Ibn Annadhdhám Al-jodhamí, gobernador de Zaragoza; y por último, A'ssen Ibn Moslem Ath-Thakefí, que era uno de los mas celosos partidarios de Abde-r-rahman, y el que en la famosa batalla de Músarah dió á sus tropas el ejemplo de cruzar á nado el rio. Vemos luego presentarse en la fúnebre estancia, con rozagantes aunque enlutadas vestiduras, y haciéndole cortejo una lucida guardia de honor, al príncipe Abdullah, grave y taciturno, que viene á sustituir á su hermano Hixem, sucesor en el trono, y ausente en Mérida, en el oficio de Imam, y á quien el Cadí de los Cadíes deja respetuosamente el puesto junto al féretro. Después de algunos momentos de absoluto silencio, y pasada la hora de la primera azala, procédese á la conduccion del augusto cadáver al cementerio del alcázar: concédese entrada franca al pueblo que recibió de su rey en vida tantas pruebas de amor y de justicia, y entre los que corren presurosos á presenciar el solemne entierro formando apiñadas turbas, se mezclan y confunden el Egipcio de piel tostada, procedente de Beja ó de Lisboa, el Emeseno que olvida la tierra del Líbano por la de Sevilla ó Niebla, el Palestino, descendiente de Filisteos, que habita en Medina Sidonia ó en Algeciras, el Persa de voluminoso turbante arraigado en la antigua Julia[105], el Asirio morador de la montuosa Elvira, el Kinserita que disfruta las minas y los pastos de Jaen, y el Damasceno que goza las preeminencias de Cortesano; sobresalen por sus ricos trages y por el privilegio de llevar el cabello largo recogido á un lado, los Cadíes de la capital y sus aledaños, distínguense los turbantes amarillos de muchos Judíos, y llaman la atencion por los lineamientos de sus bermejos semblantes no pocos Españoles de orígen godo, que habiendo nacido en la grey de Cristo, renegaron ¡oh mengua! de su religion, y seducidos por el interés sirven como mulados en el ejército musulman. Todas las clases de la poblacion hallan cabida en los espaciosos patios del alcázar, donde junto al capuchon del jeque, se despliega el taylasan de la gente comun, luce la vistosa sobrevesta ó la limpia cota del soldado, y hace pardusco fondo el raido darwazah del mendigo. Abre calle el gentío á la prolongada hilera del acompañamiento fúnebre, y llegado el cadáver al lugar de su sepultura, comienza Abdullah con lentitud y magestad la oracion ritual que repiten á media voz los asistentes: "Allah ua aqbar, loores á Allah que mata y resucita: suyas son las gracias y las grandezas y los imperios, él es sobre toda cosa poderoso! Señor, haz gracia y merced á Mohammad y á los de Mohammad, apiádate de Mohammad y de los de Mohammad! Señor, este es tu siervo Adde-r-rahman, hijo de tu siervo Moavia: tú lo criaste y mantuviste y lo revivificarás; tú sabes lo que hay en él secreto y paladino; venímoste á rogar por él. Señor, á tí nos acercamos, que tú eres cumplido de homenage. Señor, defiéndele de la tentacion de la huesa y de las penas de la Jehenna. Señor, perdónale y hónrale su morada, y ensánchale su huesa, y límpiale de sus yerros y pecados, y dale compañía mejor que la que tiene. Señor, si es bueno, crécele en descanso, y si es que faltó en tu servicio, pásale sus pecados, que tú eres sobre toda cosa poderoso. Señor, afírmale la lengua al tiempo de la pregunta de la huesa, y no lo repruebes, ni le escandalices con que no tiene poder para defenderse de ello. Allah ua aqbar, Allah ua aqbar, Allah ua aqbar.» Y despues de breve pausa añade en tono de oracion, sin que repita sus palabras la comitiva: «Señor Allah! perdona á nuestros vivos y á nuestros muertos, á los presentes y á los ausentes, á los grandes y á los pequeños, hombres y mugeres, que tú sabes nuestros fines: y pues tenemos esperanza en tu piedad, perdona nuestros yerros y pecados. Señor, defiéndele del escándalo de la huesa y de las penas de la Jehenna, y danos buen fin en nuestros dias: amen." Abdullah da salam[106] á la concurrencia, en seguida es entregado el cadáver á los sepultureros, y al hundirle en la huesa, donde es cuidadosamente depositado de cara á la quibla, dice por última vez el príncipe: «Señor Allah! nuestro hermano dejó el mundo y va hácia tí. Señor, afírmale la lengua en la demanda de la huesa, que tú eres sobre toda cosa poderoso!»

¿Para quién reserva Dios la tremenda gloria de acabar la gran mezquita? Para Hixem, hijo predilecto de Abde-r-rahman, jurado ya por todos los walíes como sucesor en el imperio, á quien aclama hoy solemnemente la ciudad de Mérida, cuyas calles recorre con gran pompa y numeroso séquito de caballería. Por él se hace ya la hotba y se pregona desde todos los alminares de las principales mezquitas de España, y en todas partes repite el pueblo: ¡Dios ensalce y guarde á nuestro rey Hixem, hijo de Abde-r-rahman!—¿Sabeis por qué la mezquita mayor de Córdoba fué tambien objeto de particular solicitud del nuevo monarca? Os lo voy á referir.

Residia en Algeciras un astrólogo afamado, cuyo nombre era Adh-dhobí. No bien subió Hixem al trono, le mandó llamar para que le predijese su destino, lo que el astrólogo rehusó hacer al pronto temiendo desagradar al nuevo rey. Cediendo por fin á sus insistencias, le dijo Adh-dhobí: «Tu reinado, oh amir, será glorioso y feliz, y señalado con grandes victorias; pero, si mis cálculos no salen fallidos, su duracion será de unos ocho años solamente.» Hixem permaneció largo rato silencioso y meditabundo, mas luego alzó sereno la frente y esclamó: Oh Adh-dhobí, tu prediccion no me amedrenta, aun cuando sea sugerida á tu boca por el mismo Omnipotente, porque si el tiempo de vida que me concede logro pasarlo en su adoracion, cuando llegue mi hora diré resignado: ¡hágase su voluntad! Despidió el rey al astrólogo despues de remunerarle fastuosamente, y cuenta la tradicion que desde aquel dia se abstuvo de los placeres mundanales, siendo la piedad, la justicia y la benevolencia la única guia de sus acciones. Con esta elevada mira fué su breve reinado fecundo en grandes empresas, reprimió la rebelion de sus dos hermanos Suleyman y Abdullah, llevó la guerra santa hasta la Cerdaña, entró y saqueó á Narbona, imponiendo á los infelices cristianos la dura obligacion de llevar en sus hombros hasta Córdoba la tierra de sus demolidas murallas, para hacer en sus alcázares una mezquita[107], hízose ominoso á la España y á los Francos, y por último contribuyó poderosamente á cimentar el imperio del Islam en Andalucía engrandeciendo su capital, reparando su magnífico puente, creando institutos de pública utilidad, y terminando la grande aljama fundada por su padre, donde estableció y dotó escuelas y madrisas: todo con los recursos del azaque y de su legítima parte en las conquistas, sin exigir de sus muslimes tributo alguno estraordinario. Tanto fructificó en el corazon de este grande y temido rey el germen de seria meditacion que en él depositó el agorero.

La grande aljama quedó concluida el año 177 de la Egira (año 793 de J. C.), contribuyendo á sus obras, lo mismo que bajo el reinado de Abde-r-rahman, el Amir con su asídua proteccion y personal asistencia, los walíes de las provincias con ricos despojos de antiguos monumentos, los artífices con su ingenio, las victorias con su pingüe botin, la ciudad con ceder los operarios, las sierras de Córdoba y Cabra con suministrar los tesoros de sus canteras, Africa con prestar sus incorruptibles troncos de pino-alerce, Asia con inocular en el naciente arte árabe-hispano el genio de la ornamentacion, sus inspiraciones, su poesía, y Dios en fin con permitir, en castigo de las culpas de nuestros padres, que la moral bastarda de los hijos del Yemen impregnada de letal materialismo se entronizase en la Bética como regla suprema de una sociedad rebelde al luminoso y casto yugo del Evangelio.

CATEDRAL DE CÓRDOBA.
Puerta de las Palmas desde el patio.
CATEDRAL DE CÓRDOBA.
Puerta de las Palmas desde el patio.

Sí, la grande aljama está concluida: ¡tambien Hixem cree haber asegurado su puesto en el jardin eterno de las delicias! Ved esa nueva casa de adoracion magestuosamente asentada al confin meridional de la gran ciudad, junto á la verde orilla del mas ancho rio del Andalús, ocupando una estensa area regular de 460 piés del septentrion al mediodia, y de 280 de oriente á occidente, cercada de altos y gruesos muros almenados y bien guarnecidos, flanqueada en su recinto por robustos estribos de torres albarranas y un enhiesto alminar, abierta á los muslimes por nueve espaciosas y riquísimas puertas esteriores y once interiores, cuatro á cada lado de oriente y occidente, una principal al norte, y las once en la fachada interior, dentro del pensil de las abluciones, comunicando á otras tantas naves del templo. Contemplad la hermosa disposicion interna de ese insigne monumento, el gran patio que le sirve de atrio, con anchos pórticos en las tres bandas de norte, oriente y poniente, fuentes para el alguado[108] y las purificaciones, y frescas alamedas de naranjos y palmeras enlazados al pié por bien dispuestas plantaciones de flores; luego el magestuoso buque de la inmensa casa de oracion, sencillamente compartido en once largas naves, que dirigiéndose de norte á sur, se cruzan en ángulo recto con veinte y una naves menores que van de oriente á occidente; luego la elegante é ideal combinacion de esas arquerías en que las pilastras se sobreponen á las columnas, y unos arcos á otros arcos, dejando paso á la luz entre la columnata superior y la inferior, como remedando la arquitectura los atrevidos juegos gimnásticos de las ágiles caravanas del desierto; luego la sabia y ligera forma de esas once riquísimas techumbres de alerce, labradas, pintadas y doradas, que recuerdan al que las mira las sutiles armaduras de las voladoras naves sirias con que conquistó otro Moavia á las Cícladas, á Rodas y á Sicilia; luego, finalmente, el misterioso y recóndito santuario donde se guarda el Koran, en cuyo recinto ha agotado el arte oriental toda la riqueza de sus recursos fascinadores. Figuraos ahora realzada la imponente magestad de esa gran mezquita con las galas de que pueden revestirla el mas esquisito gusto y la riqueza, de consuno con las exigencias de una religion inventada para cautivar los sentidos, y se deslumbrarán vuestros ojos con la masa de luz de los candelabros, se embriagará vuestro olfato con las preciosas esencias quemadas bajo aquellos taraceados artesones, halagarán todo vuestro cuerpo las tibias auras primaverales impregnadas de azahar, que se deslizarán por vuestra sien trayéndoos deshechos en ráfagas los trinos de los ruiseñores con los brillantes globulillos del agua que se estrella en el duro mármol de las fuentes. Las once grandes puertas que conducen del patio á la mezquita estan abiertas: son once soberbios arcos ultra-semicirculares y dobles, todos en fila, sostenidos en esbeltas columnas de mármol que de cuatro en cuatro rodean á los recios machos de piedra en que se afirman, como lindas esclavas gemelas que dando la espalda al magestuoso diseño, se enlazan entre sí volteando dobles guirnaldas[109]. Estas once puertas muestran á los que cruzan el atrio el interior del templo como en combustion, y á los que ocupan el templo les descubren los jardines del suspirado Eden, donde bullen las aguas y los rayos del sol por entre las verdes ramas cuajadas de pomas de oro. Hé aquí la santa casa de adoracion que sobrepuja en suntuosidad, belleza y gallardía á las mas afamadas mezquitas de Arabia, Siria y Africa: oid lo que de ella canta el poeta Mohammed Ibn Mohammed Al-baluní[110]:

«Ha gastado Abde-r-rahman por amor á su Dios y en honor de su religion ochenta mil dinares de plata y oro.

»Los ha invertido en construir un templo para uso de su piadosa nacion, y para la mejor observancia de la religion del profeta Mohammed.

»En él vereis relucir el oro prodigado en sus artesones con la misma brillantez que el relámpago que atraviesa las nubes.»

No exageraba el poeta, porque realmente á la luz de las lámparas y candelabros, velada por la neblina de los aromas, debia parecer aquella rica techumbre lo que en enérgico lenguaje vulgar llamamos una ascua de oro.

¿Pues qué impresion no causaria el espléndido interior que contemplamos al ver algunos años despues el oro prodigado en los mismos capiteles de las columnas y en las pilastras de las arquerías? A medida que se va cimentando el Califato, va este soberbio templo creciendo en riqueza. Así como el famoso milímetro de Rhaudhá marca en Egipto las crecientes del desbordado rio que le hace fecundo, así la gran mezquita de Córdoba señala en Andalucía los progresos del arte arábigo invasor. Bien necesitan en verdad los descendientes de Moavia dar á la corte de su imperio esplendor y lustre; forzosamente han de ser grandes y magníficas las huellas de su dominacion, norma y estímulo para sus sucesores; porque sus émulos los Abassides estan resucitando en las bíblicas llanuras fertilizadas por el Eufrates y el Tigris las fantásticas creaciones de Belo y de Semíramis, reproduciendo las pasadas glorias de los Ninivitas y Babilonios, sobrepujando en fastosidad á los Persas, oscureciendo la cultura de los Griegos Seléucidas, y afrentando la artística voluptuosidad de los Sassanidas. El año mismo en que el ilustre vástago proscrito de los Umeyas abrió los fundamentos de la aljama de Córdoba, subia al trono del imperio musulman de Oriente el famoso Harun-al-Raschid, el Pericles de los Arabes, dirigido por su sabio wazir Yahia, de la preclara familia de los Barmácidas, á quien debe su reinado sus principales títulos de gloria. ¡Cuenta que este gran Califa, al fijar la planta en el trono de los Abassides, ostenta ya ceñida la sien con el lauro de la victoria; que las huestes de la emperatriz Irene han huido ante él despavoridas en los campos del Asia menor; que la Providencia le tiene reservado para hacer inmensas conquistas en el Asia y escarmentar el orgullo de Nicéforo; que no en vano parece haberle dotado la naturaleza de un corazon de hierro y de la mas esquisita sensualidad, puesto que para levantar la tiranía del Islamismo á la altura de sistema político capaz de contrabalancear la vigorosa accion del Occidente, es preciso que Harun pueda ver sereno espirar en horribles suplicios á muchos individuos de su propia sangre desde el asilo y templo de los placeres![111] El hijo de Harun se jacta de que sabrá mover el Oriente y el Occidente con la misma facilidad que si fueran piezas de ajedrez: bravata verdaderamente asiática, pero que compromete á los emancipados sultanes de Andalucía á sobrepujar, siquiera sea por arte satánica, en fasto, en gloria, en prestigio y poderío, á los que así presumen ser árbitros del mundo. Grande y hermosa es Córdoba, pero bella y grande es tambien la nueva ciudad de la paz, la rica y voluptuosa Bagdad, que Abu-Giaffar Al-mansur confió á las zalamas del Tigris en el asiento mismo de una poética quinta regalada por Cosroes Anuschirevan á su querida. Grande y próspero ha sido el reinado de Abde-r-rahman I: su hijo Hixem, continuador de su sabia política, ha logrado ruidosos triunfos que contribuyen á consolidar la mas preciosa conquista sarracena: Al-hakem asciende ahora á la suprema dignidad en Córdoba, y se anuncia como príncipe de incomparables cualidades para la obra que está llamado á secundar, porque ama el bélico tráfago y le devora el deseo de la ciencia y de los deleites; pero tal vez mas próspero y grande, mas victorioso, mas sabio, mas ilustrado y mas fecundo en goces de toda especie, va á ser el reinado de Harun, de ese genio singular en quien brillan reunidas las dotes de todos los sultanes de España juntos. ¡Qué terrible competencia, qué triste rivalidad la de los dos imperios musulmanes, la de las dos providenciales familias de los Beni Abbas y de los Beni Umeyas, para las infelices provincias ya medio amortajadas en los girones de púrpura y oro de los Isaurios, ó aun medio envueltas en los cendales de la barbarie godo-germánica! Como esos briosos caballos que en el circo de Bizancio se disputan el premio de la carrera, único espectáculo que hace latir el mezquino corazon de los degenerados Imperiales, así se lanzan á la conquista de la grande unidad islamita en el estadio del antiguo mundo romano esos dos gigantes enemigos de la civilizacion del Cristianismo, que para mejor cautivar á los amantes del progreso de la humana inteligencia, hacen resonar con acentos de armoniosa poesía las florestas de los dos rios históricos, Tigris y Betis, honran con magníficas fundaciones el tranquilo culto grato á Academo, ponen sobre su cabeza los libros de Aristóteles y Platon, y levantando en alto el gracioso canastillo corintio, tributan al arte de la Grecia el homenage de su admiracion y respeto.

Pero dirigiendo alternativamente nuestras miradas del Guadalquivir al Tigris, de la magestuosa Córdoba á la risueña Bagdad, advertimos en los dos colosos genio idéntico y temperamentos diversos. El de Oriente, ávido de lujo y de sensaciones, prodiga sus riquezas con frenética magnificencia: Al-Mamún el dia de su boda siembra mil gruesas perlas en el sedoso cabello de su amada, y pide setecientos porteros para su palacio, y árboles de oro y plata para sus jardines[112]. El de Occidente, igualmente pródigo de sus tesoros, asombra con sus rasgos de generosidad á los avaros hijos del Norte: Abde-r-rahman II para aplacar el justo enojo de su querida Tarúb hace tabicar la puerta de su aposento con sacos llenos de dinares, á fin de que al hacer la hermosa concubina las paces con su señor, sea una lluvia de oro la recompensa de su perdon[113]. Codicia el de Oriente la posesion de la ciencia y se esfuerza por alcanzarla, porque Mahoma habia dicho en su Koran: «Un entendimiento sin erudicion es como un cuerpo sin alma.» Harun llama á su corte á los médicos, á los filósofos, á los literatos, á los artistas, sin distincion de patria y de religion[114], los colma de agasajos y de honores, forma con su auxilio el vínculo moral único capaz de contener la disolucion de su imperio, y á su benéfico influjo las nociones antiguas, momentáneamente proscritas por la inexorable cimitarra de los Arabes conquistadores, renacen y reaparecen del mismo modo que vuelven á levantar sus vívidas corolas á los rayos del sol las tiernas flores envilecidas en el lodo durante la tormenta. Imposible es abarcar de una sola ojeada todos los timbres de gloria de los Califas Abassides: animados de la mas generosa tolerancia, encomiendan á los Cristianos de Bagdad la version de las obras de los filósofos griegos, fomentan entre los Sarracenos el estudio de la ciencia de la razon, protegen las escuelas judáicas fundadas en Sora y Pundebita para la propagacion de la filosofía alejandrina, no contentos con favorecer la investigacion de todos los manuscritos que se habian salvado de los desastres de la invasion, piden á los emperadores de Bizancio que les envien sus libros y sus sabios[115], enriquecen sus bibliotecas con los tesoros de la literatura persa, nombran comisiones que traduzcan las obras preciosas de la antigüedad, á Homero, á Tolomeo, á Aristóteles, crean academias é institutos científicos en Bagdad, en Ispahan, en Firuzabad, en Samarkanda, en Damasco, en Kuffah y Bassorah, con escuelas gratuitas y públicas, en una de las cuales[116] llegan á juntar hasta seis mil alumnos, y consiguen que sean la lengua árabe el idioma de la ciencia, y el Islamismo la religion general del Asia entera, que adopta gustosa la lengua de su Profeta. Y esa lengua que en sonoros versos de cantos antiguos habia cautivado á los apasionados Arabes cuando hijos del desierto, ¿de qué bellezas no será susceptible ahora que el círculo de las impresiones se ha dilatado tanto para los que viven entre las riquezas de la naturaleza domada por el arte, y á la benéfica sombra de un soberano que retribuye con cincuenta mil doblas un sencillo poema[117], y que premia al bardo vencedor en los certámenes de Ocadh con cien dinares de oro, un caftan bordado, un arrogante caballo, una linda esclava, y el título de príncipe durante un año? Figúrasenos estar viendo los caminos de la Meka á Bagdad, a Balk, a Samarkanda y á Nisapur, frecuentados á todas horas del dia y de la noche por tranquilas caravanas: ¿son por ventura los esclavos africanos, las sederías de la India, los perfumes del Cabúl el único comercio que alimentan esos ambulantes bazares conducidos en interminables y pulverulentas filas de camellos? No: sobre aquellas gibosas y pacientes acémilas se transporta tambien la riqueza intelectual, la ciencia, el arte, la poesía: ved esas blancas construcciones que de trecho en trecho asoman sus dilatadas terrazas por entre los grupos de palmeras tan gratos á la sedienta caravana; esas son las hospederías de los poetas y de los sabios, los depósitos de las letras, los paradores de la inteligencia, espresamente erigidos en obsequio de los sabios peregrinantes por los magnates que como Saïfed'dullah se disputan el honor de albergarlos y de recoger sus historias, sus dogmas, sus improvisaciones. ¿Por qué los Califas de Occidente no marchan con la misma rapidez que los afortunados Abassides hácia el fin glorioso que estos ya tocan con sus manos, de construir el mundo islamita sobre la poderosa base de la unidad de lenguaje y de creencias, convertido el Koran á pesar de sus errores en piedra angular del edificio social, intelectual y político? ¡Ah! porque los hijos de Beni Abbas gobiernan pueblos sosegados que pasaron ya del período de las conquistas, pueblos ademas criados en las tradiciones asiáticas, en quienes es índole peculiar el amor á la vida regalada, ociosa y contemplativa; y los Umeyas por el contrario rigen un pueblo conmovido y agitado aun por la fiebre de las invasiones, que aunque ansioso tambien de ciencias y de placeres, se ve contrastado por las rebeldes razas del Norte, tenaces en sus ideas de independencia y aleccionadas en una religion que hace de las fatigas y privaciones el ejercicio normal de la vida. Lo que en el Oriente es ingénito y espontáneo, es en el Occidente artificial é ingerto. Lo que allí es una improvisacion, tiene que ser aquí una formacion trabajosa, lenta y paulatina. Dia vendrá en que el Califato andaluz oscurezca con su brillantez las glorias de los Califas negros[118], y en que asombrados y llenos de maravilla los altivos reyes godos y francos, y hasta los mismos pontífices del Cristianismo[119], claven fascinados sus miradas en la sabia y magnífica Córdoba. Como águilas que beben la luz del sol, mirarán inciertos ya á los horizontes de la feliz Mesopotamia, ya á las cumbres de la rica Andalucía, sin saber cuál sea el verdadero astro del Oriente. Pero esto no será hasta que la perseverante lima de la cultura atenúe las punzantes antipatías de las razas, y la seductora vida asiática contamine y enerve los corazones de los discípulos de Cristo.

Por ahora la misma capital del Califato es tierra de rebato: los Umeyas no viven seguros ni en su propia corte. ¿Cómo ha de pensar Al-hakem en las glorias de las artes cuando la consolidacion de su Estado es una obra comenzada apenas? Harta ocupacion le darán los Francos que avanzan hasta Tarazona, los rebeldes de Toledo y Calatrava, los Cristianos de Galicia, y hasta los sediciosos de su misma sangre, que introduciendo la division en los súbditos musulmanes, abren las puertas á los enemigos esteriores. Energía en la guerra, economía en la administracion, imparcialidad en la justicia, sagacidad y cautela en el modo de vivir, son las dotes que distinguen á este Sultan. Veréisle aumentar su hueste de renegados hasta reunir mil mamelucos de infantería y cinco mil de á caballo, y la guarda de su persona hasta dos mil eunucos; oirá y juzgará por sí mismo las causas de los pobres, perseguirá severamente á los malhechores, será liberal con los necesitados, estrenuo y sabio en sus determinaciones. Tendrá constantemente á las puertas de su alcázar un numeroso cuerpo de caballería, y en ambas orillas del rio, junto al alcázar mismo, una guardia permanente de mil renegados. No invertirá sumas de consideracion en la mezquita mayor, pero construirá para sus tropas cómodos cuarteles y espaciosos establos. Mantendrá numerosos espías que le enteren del estado de la opinion pública: estallará mañana una insurreccion en el suburbio occidental, y al dia siguiente al rayar el alba aparecerán colgados en las alamedas del Guadalquivir trescientos cadáveres desfigurados!...[120] Al-haken enriquece la aljama de Córdoba con una joya de mucho mayor prez que el oro y el mosáico: confiere el cargo de su Justicia mayor ó Cadí de los Cadíes al sabio y virtuoso Mohammad Ibn Bashír, y con este solo acto ha hecho lo suficiente para que su nombre resuene siempre venerado en las aulas del templo. Ibn Bashír, teólogo profundo, despreciador filósofo de las mundanas pompas, justo y recto juzgador de las humanas intenciones, ¡cuánto vale el prestigio de tu ciencia y de tus virtudes para la tranquilidad de ese mismo pueblo orgulloso que te moteja escandalizado porque el primer Viernes despues de tu nombramiento entras en la aljama con el cabello suelto y tendido, un amarillento ridá[121] sobre tus hombros, y abarcas en los piés! Un dia, despues de orar y predicar al pueblo, siéntase Ibn Bashír en el tribunal anejo al templo, y llégase á él un forastero, que al verle tan singularmente vestido, despeinado y con la cara mal enjugada[122]: enséñame, le dice, dónde está el Cadí. Héle aquí, le responde señalando á Bashír uno de los que se hallan allí presentes.—No te diviertas conmigo, replica el forastero; te pregunto por el Cadí, y me diriges á un soplaflautas.—Convencido sin embargo de que no le han engañado, encamínase al Cadí, ruégale le disimule su desatencion, espónele luego el caso que le trae al tribunal, y obtiene el consejo mas justo é imparcial que podia jamás haberse prometido. Creereis tal vez que ese filósofo original es como muchos cortesanos, en la apariencia desinteresados é independientes, y en realidad tan flexibles al poder como solícitos en su propio negocio: todo al contrario, arrostrará por la verdad y la justicia la cólera de su rey. Cuando uno de sus leales amigos, receloso de los peligros á que le espone su escesiva rectitud, le escriba: «Si sigues como hasta aquí, mucho me temo que te cueste tu destino,» le contestará impávido: «¡Dios haga que cuanto antes me vea con mi mulita Ashshakrá en el camino de Beja!» y si ocurre alguna vez que un ciudadano cualquiera tenga que sostener un pleito contra el Amir, como le sucedió á un oscuro molinero, á quien quisieron arrebatar su propiedad para incorporarla al palacio los oficiosos cortesanos, ciertamente no se retirará del tribunal del Cadí desconsolado si la razon está de su parte. ¿Por ventura no se lisonjeaba ayer uno de los hijos de Adde-r-rahman I de que ganaria cierto ruidoso pleito por tener en favor de su accion el testimonio de su sobrino Al-hakem cuando príncipe heredero, y el íntegro Bashír sentencia contra él por no haber comparecido en su tribunal el Amir en persona á ratificarse en el testimonio dado antes de subir al trono? Pues notad otro insigne ejemplo de la justificacion de este notable funcionario, y meditad si avanzará camino en cualquiera pais del mundo una monarquía que se ostenta sostenida en principios tan seguros como la igualdad ante la ley y el amor á la justicia. Un oficial palatino de Al-hakem, gefe de sus caballerizas, llamado Musa Ibn Semáh, acude en una ocasion al Sultan en queja del Cadí, esponiendo que este se ha escedido de su autoridad y sentenciado contra él injustamente.—Pronto veré yo, dícele Al-hakem, si lo que me refieres es cierto. Vé inmediatamente al Cadí, y di que quieres hablarle: si te lo concede, te creeré, y él será castigado y destituido de su cargo; pero si te lo niega á pesar de tus instancias, mi estimacion hácia él será mayor, porque tengo por seguro que no es un tirano, sino un hombre probo y amante de la verdad.—Va Musa segun se le ordena á casa de Ibn Bashír, y manda al propio tiempo Al-hakem á uno de los eslavos de su guardia que sin ser visto espíe á Musa, y le dé cuenta de lo que ocurra entre su caballerizo y el Cadí. De allí á poco vuelve el eslavo y refiere al Amir, cómo al llegar Musa á la habitacion del Cadí le habia recibido un portero, el cual, despues de avisar á su amo, salió con este recado: «me manda el Cadí que te diga, que si algun asunto legal se te ocurre, mejor harás en dirigirte al tribunal en las horas en que administra justicia.» Al oir esto Al-hakem, se sonríe y esclama: bien sabia yo que Ibn Bashír era un juez recto sin parcialidad para ninguno. Un rey que tiene magistrados como Ibn Bashír no importa que no tenga en el Guadalquivir, como el hijo de Harun en el Tigris, cinco naves cubiertas de plata y oro, una en forma de dragon, otra en forma de caballo, otra en forma de leon, otra en forma de águila y otra en forma de elefante.

Puede decirse que si Abde-r-rahman II logra el descanso y gusto suficientes para consagrarse al mayor engrandecimiento de la mezquita y cubrir de oro sus labradas pilastras y capiteles, lo debe esclusivamente á la prudencia y sabiduría de su padre Al-hakem. Imitando sus cualidades bélicas, hace temido su nombre entre los enemigos del Islam, y siguiendo su acertada administracion prepara para los postreros años de su vida un reinado de paz y de esplendor. De paz y de esplendor, sí, porque los ayes de agonía de los humildes mártires cristianos no turbarán su sosiego, ni su inocente sangre copiosamente derramada mancillará á los ojos de la divertida corte mahometana los timbres y blasones del monarca. ¿No le proporciona este paz y riquezas para disfrutar las comodidades y placeres de la vida? Para Abde-r-rahman II tenia reservada el cielo la triste gloria de inaugurar en la España árabe la tiranía en nombre de la fé religiosa, y de establecer por medio de la fuerza la unidad islamita en sus dominios, lanzando en un dia de enojo á los cuatro ángulos de la escarnecida Iberia, en plena paz, aquella terrible intimacion que los sanguinarios Abu-Obei-dah y Khaled habian dirigido á los malhadados habitantes de Bosra: «¡Haceos Musulmanes, ó tended la cerviz bajo la cimitarra!» Es muy de notar, en efecto, que empiecen la persecucion de la intolerancia bajo el imperio de la justicia, los escesos de la inhumanidad con la afinacion de las costumbres, y que vayan desarrollándose paralelamente la prosperidad del Estado y el envilecimiento del individuo. ¡Ah! ¡por qué la crueldad y la sensualidad han de reemplazar tan facilmente con hipócrita disfraz á los dos ángeles tutelares de los tronos, la Justicia y el Amor! ¡por qué esos dos maléficos instintos han de ser los compañeros inseparables de la mundana felicidad y como las cariátides del lecho en que duerme la civilizacion prevaricadora y descuidada! ¿Qué ley fatal determina esa chocante contradiccion que hace al hombre rústico é incivil capaz de altos y nobles afectos, y al hombre culto insensible y desnaturalizado? La cultura que halaga y afemina es la misma que endurece el corazon, del propio modo que el martillo que bate y limpia de escorias el hierro es el que lo convierte en duro y liso acero.

Todos los grandes tiranos han tenido sus panegiristas, unos por el temor que inspiran, otros por la seduccion que ejercen. Abde-r-rahman II es un tirano fastuoso, galante, lleno de dotes y de ingenio para rendir voluntades. ¿Cómo no perdonarle las crueldades que contra los infieles cristianos comete, si posee el arte de representarlas como actos de estricta justicia? Ademas, á un rey valiente y enamorado, que en el campo de batalla triunfa como un héroe y en las florestas suspira como un afeminado doncel; á un rey que lisonjea el gusto de un pueblo amante del lujo, de la ostentacion y de la cultura, dándole escuelas y madrisas que le instruyan, jardines y casas de placer que le recreen, embajadores como Al-ghazal que le acrediten de grande y culto á los ojos de la corte de Constantinopla[123], maestros de música y de modas que le entretengan como Zaryáb[124], capitanes que le defiendan como Obeydallah[125], aliados como el emperador griego y el rey franco[126], y una consideracion superior á la que logran los Beni Abbás; á un rey, por último, que emplea un reinado de treinta años en labrar la prosperidad de sus vasallos haciéndolos cultos, vencedores, ricos, y á su manera felices, no es mucho que estos le celebren y le ensalcen aunque los míseros cautivos giman y lloren. Compréndese que su pueblo, fautor de sus placeres, le perdone, y no solo le perdone, sino que aplauda su severidad con los Cristianos, á quienes esa misma prosperidad agovia y aniquila. Lo que no se concibe si no se tiene muy en cuenta la natural perfidia del hombre, es que el Califa encontrase en vida panegiristas, aun entre los mismos alumnos de Cristo, y los mártires hallasen verdugos entre los que con ellos debian compartir las cadenas y el oprobio[127].

Almas afectuosas que amais la memoria de esas otras almas sublimes, y fuertes á la par que delicadas, que en vida fueron valerosos soldados de la fé, y alcanzaron muriendo la opinion de mártires santos entre la grey que con su fecunda sangre ilustraron[128], no os imagineis al repasar las páginas en que la piedad y la devocion consignaron sus gloriosos triunfos, que todos los perseguidores del nombre de Cristo son como furiosos y bárbaros asesinos sedientos de sangre y de tormentos. Leeis que en el año 824, cuando puede decirse que Abde-r-rahman II acababa de subir al trono, y en lo mas florido de su juventud puesto que solo tenia 34 años de edad, dos interesantes mancebos cristianos, llamados Adulfo y Juan, fueron martirizados solo por no querer abrazar la secta mahometana; y creeis quizá que el que esto autorizó tenia un corazon de tigre, inaccesible á todo humano afecto; os le figurais tal vez como un bárbaro fanático esclusivamente preocupado de la propagacion del Islamismo, encarnizado en el placer de los tormentos, y ciego de furor al solo anuncio de cualquier enemigo de su sanguinario error. ¡Cómo os engañais! Acercaos á ver á esa supuesta fiera en su caverna: no solo no hallareis en el semblante de Abde-r-rahman el ceño torvo y la pupila sangrienta, sino que su persona, su gesto, sus ademanes, sus palabras, su vivir y todo lo suyo, os cautivarán el corazon. Vereis á un ser nacido para cosas grandes y privado de alcanzar la verdadera grandeza, un corazon capaz de un amor casto y puro, esclavizado á un amor indigno, un entendimiento susceptible del mas alto vuelo sojuzgado por el error y la impostura; y seguramente al dar el tributo de vuestras generosas lágrimas á los egregios mártires que bajo su imperio fueron inmolados, no negareis un suspiro de compasion á ese príncipe que por los inescrutables designios de Dios alcanzó dotes de ángel y al desplegar sus alas las halló sujetas con una cadena.

Vedle, en efecto, á ese hombre inhumano, á ese implacable perseguidor que en los últimos años de su vida presumió anegar en sangre ortodoxa la valiente hueste evangélica; oidle mas bien, describiendo por su propio labio su existencia de guerrero enamorado y las penas de la ausencia[129]:

Tus brazos dejé, alma mia,El veneno de la ausencia
y al campo acudí velozme devora el corazon;
como flecha despedidalas mismas piedras al verme
por el arco zumbador.se apiadan de mi dolor.
Los horizontes que miroDel Islamismo el triunfo
desnudos páramos son;por mi brazo quiere Dios:
venzo un obstáculo, y hallo      cubre valles y montañas
otro obstáculo mayor.mi ejército vencedor.

Así escribe desde el campo de batalla á su amada Tarúb, y en estos sentidos, concisos y brillantes pensamientos, muestra bien claro el privilegiado temple de su alma. Como poeta y como enamorado, es ya conocido[130]; como político y como guerrero, harto le dan á conocer sus conquistas y las paces ajustadas con Teófilo y Cárlos el Calvo; como administrador, basta decir que utilizó sus victorias en proporcionar á su pueblo paz, ilustracion, riquezas y goces[131]. Dice Ibnu Said que antes de su reinado el producto de los impuestos no habia jamás escedido de seiscientos mil dinares, y durante él llegó á producir mas de un millon. Gastó sumas inmensas en construir palacios y quintas de recreacion, puentes y mezquitas en las principales poblaciones, y en ennoblecer su capital de nuevas maneras, empedrando sus calles y plazas con losas, y llevando á ella desde la vecina sierra abundantes y cristalinas aguas por medio de un largo y fuertísimo acueducto que como gigantesca serpiente ondulaba por aquellas hermosas llanuras atravesando repetidas veces las mismas entrañas de los montes[132]. A tal opulencia y gloria llegó la capital de Andalucía bajo este rey, que escribió de él S. Eulogio: «Córdoba, llamada antes la patricia, y hoy la ciudad real por tener en ella su asiento, le debe el hallarse en la cumbre de la grandeza, de los honores y de la gloria, colmada de riquezas, y convertida en emporio de las delicias del mundo entero hasta un punto inesplicable é increible.» ¿Creereis ahora que el sultan Abde-r-rahman II es una intratable y sanguinaria fiera? El que tanto ama el lujo, la magnificencia, las artes, los placeres, bien podeis asegurarlo, no tiene corazon de bronce. ¡Pobre sultan, mas desgraciado en medio de su aparente felicidad que esos inocentes mártires cristianos entre el horror de sus aparentes tormentos! La conciencia de su deber le arranca de los brazos de su amada Tarúb para volar al campo de batalla; esa misma conciencia le sugirió como actos agradables al Omnipotente dos leyes que fueron orígen de su suplicio y de nuestra gloria, con las cuales no se imaginó seguramente que dirigia el pié al ensangrentado camino donde en sus postreros años se encenagó. Pertenecen estas dos leyes al órden político, aunque el carácter de la una mas parece á primera vista religioso, y el de la otra de mera policía y buen gobierno; y cumple recordarlas aquí porque, aunque ominosas á nuestra fé cristiana, ellas contribuyeron poderosamente á cimentar el poder islamita en España, á fomentar el espíritu de proselitismo sin el cual la nacionalidad mahometana no puede existir, á hacer la monarquía musulmana una y compacta, y prepararon finalmente las vias al tremendo aluvion de conquistas con que cubrió despues los aniquilados restos de la España cristiana el impetuoso Almanzor. «Todo hijo de padre ó madre mahometano, será mahometano tambien, so pena de muerte,» decia la una[133]; la otra venia á ser una mera confirmacion de un artículo del fuero otorgado por Alboacem: «El que dijere mal de Mahoma ó de su Ley, sea muerto[134].» Con esta draconiana sencillez consignaba Abde-r-rahman el victorioso[135] su celo por el completo triunfo del Islamismo y su obsequio á la alta razon de Estado. Con este tristísimo preludio, sin mas de lo que estrictamente exigian de consuno la conservacion del órden social y las necesidades de la política musulmana, sin lujo alguno de tormentos accesorios[136], y como una cosa muy natural dentro del círculo del derecho penal mas escrupuloso, comenzó la sangrienta persecucion sarracénica como una verdadera lucha instestina entre el Estado que pugna por consolidarse y la conciencia que forcejea por la conservacion de su libertad, y en la cual, si bien los instrumentos del poder se encruelecieron al compás de la exaltacion en la santa protesta, el principio que guió al Estado al castigar inflexible el delito de subversion no dejó de ser por eso legítimo en la esfera de las ideas islamitas. Acabó para siempre la antigua tolerancia: si cristianos y muslimes procedieron en alguna época de concierto, cuando todavía no se hallaban bien penetrados del antagonismo de sus orígenes[137], ahora ya ambas religiones han avanzado mucho camino y se han separado para no volverse mas á encontrar. Ni el mahometismo de Bagdad y de Córdoba es el mahometismo del Yemen, ni el cristianismo de los Paulos, Eulogios y Perfectos, es aquel cristianismo desfigurado de los Nestorianos de Oriente[138]. Dos principios que aun no han producido resultados pueden parecer idénticos, así como en su orígen nadie diferenciará el manantial destinado á ser magestuoso rio del manantial que corre á perderse en inmundos lodazales; pero cuando esos dos principios han arrojado ya de sí todas sus consecuencias, cuando cada uno de ellos ha apurado por decirlo así el sueño de la crisálida para estender libremente sus alas á la luz, no es posible que se amalgamen y confundan. El mahometismo desarrollado ha ofrecido al mundo como legítimo producto la mas refinada voluptuosidad; el cristianismo, vuelto á sus genuinas aspiraciones despues de la breve escursion que sus malos intérpretes han hecho por el dominio gentílico, proclama por la voz de los penitentes y contritos que la perfeccion de la vida solo se encuentra en la ley del sacrificio, de la caridad y de la propia abnegacion. ¡Guerra implacable, pues, á los que condenan la cómoda religion del Profeta! ¿Qué mayor honor, qué mayor obsequio puede tributarse á la Ley escrita en las portadas y columnatas de la gran mezquita, que inmolar á su ciego acatamiento á todo el que la desobedezca, ridiculice ó contradiga? ¡Compareced á nuestra vista, sombras augustas y queridas de tantos mártires incontaminados: desfilad, santos y puros sacerdotes, nobles mancebos, vírgenes bellas y pudorosas que componeis la sagrada hueste de víctimas á quienes hoy la Iglesia de España tributa agradecido culto; deslizaos como leve legion de espíritus por entre esas crepusculares naves que fueron un tiempo teatro de vuestra generosa y heróica confesion, y podamos al menos con el dolor y la compasion de ver correr vuestra inmaculada sangre bajo el hierro de los verdugos, fortalecernos contra la seduccion que hizo sucumbir á los que fueron indignos hermanos vuestros en la fastuosa corte de ese sultan! ¡Ah! mientras vosotros recibís en el tribunal del Cadí la terrible sentencia; mientras entregais á los sayones ya vuestros piés y manos para que os sean cortados, ya vuestras cervices para morir de un solo golpe, ya vuestras espaldas para que con crueles azotes os las destrocen; mientras gemís en tenebrosas cárceles y derramais lágrimas más sobre la apostasía de vuestros hermanos que sobre vuestros propios hierros, la gran corte de los Umeyas se entrega placentera al flujo de las mundanas prosperidades, y viento en popa navega la nave del Estado cordobés hácia el ansiado puerto de la paz, de la bienandanza y de los placeres. Vosotros sucumbís como flores modestas é ignoradas que caen bajo la hoz del segador; pero el próspero sultan que causa vuestro martirio no percibe siquiera el eco de vuestras desinteresadas esclamaciones. Allá en la orilla del rio, al pié de su mismo altivo alcázar, y junto á sus deleitosos baños, donde tan sabrosas trascurren para él las soñolientas horas del estío, es donde se ejecutan como comunes y saludables escarmientos de una recta justicia esos sangrientos castigos; vuestros opresores en tanto se solazan en las frescas alamedas, en las huertas y jardines que abre á su querido pueblo la magnificencia del Amir, á costa tal vez del despojo y de la desesperacion de vuestras familias[139], agoviadas por los tributos; alguno de vosotros alcanzará quizás el triste privilegio de verse inmolar sirviendo de espectáculo á las despiadadas turbas[140], mas no lograreis todos que vuestra constancia y resignacion sirva de fecunda enseñanza á los poderosos estraviados. ¿Por ventura no tiene mas en que pensar el prepotente sultan que en recibir caritativas amonestaciones de las pobres víctimas que mueren perdonando? Sabed que á sus ojos no sois sino despreciables reos de sedicion, y que no hay en vuestro martirio lances estraordinarios que merezcan interrumpir las ocupaciones ni los ocios favoritos de los magnates. ¿Es acaso mas interesante vuestro suplicio que una batida en la sierra, ó una partida de ajedrez en palacio, ó que la recepcion de una embajada importante y lujosa como la de los legados de Teófilo, ó que la discusion de un caso de conciencia[141] en plena reunion palatina, ó que la consulta sobre una innovacion en la etiqueta real[142], ó que el grato entretenimiento de escuchar los cantos, las historias, los versos y lisonjas de un Zaryab?

Hartas calamidades han llovido sobre la trabajada Andalucía para que vengais ahora vosotros con vuestras siniestras predicciones á conturbar el reposo que empieza apenas á disfrutar la España islamita. Pocos años há vísteis repentinamente invadidas las hermosas orillas del Guadalquivir por las formidables hordas de los Normandos, que sedientos de sangre y de botin, de incendio y destruccion, asestaron contra la opulenta Sevilla las proas de sus terribles dragones[143], asolaron la tierra de Sidonia y maltrataron la costa de Niebla. ¡Aquella sí que fué tribulacion grande! Los bárbaros se burlaban de los elementos: lo mismo se deslizaban en sus voladoras naves por los mas caudalosos rios, corriente arriba, que se burlaban de la furia de las tempestades en el Océano, donde con razon eran denominados los reyes del mar; dejábanse caer como nube de langostas sobre las ciudades y los campos, á su contacto ardian de súbito las mieses, las casas quedaban reducidas á humeantes escombros, los moradores á dura servidumbre, y los ganados y riquezas pasaban á sus naves! ¡Grande turbacion padecia la cristiandad durante aquella invasion sangrienta, pagana, encarnizada! Sin embargo vosotros, cristianos de Córdoba y Sevilla, ¿no debísteis entonces á este mismo rey Abde-r-rahman la seguridad y defensa de vuestras haciendas, de vuestras hijas y esposas, de vuestros hogares y de vuestra fé? Poco há tambien que afligida esta tierra, que os obstinais en fecundar con vuestra sangre, por la gran sequía con que á Dios plugo castigarla, perecian vuestros ganados de sed, se abrasaban vuestros árboles y viñas, y se frustraban vuestras cosechas sin que quedase en vuestras heredades planta verde; en lo cual no se manifestaba el Omnipotente mas misericordioso con vosotros que con los muslimes; y merced á la liberalidad y á la generosa proteccion de este mismo rey que os dió abrevaderos, y aguas cristalinas, y otros bienes de los cuales disfrutais lo mismo que los mahometanos, no siguió la mortandad en vuestros ganados, ni la esterilidad en vuestros campos. A Abde-r-rahman se lo debeis todo. No ofendais pues sus ocios con vuestra desobediencia, ni sus oidos con las injurias que contra el profeta sumo proferís: tributadle el honor y alabanza debidos, y reverenciad en él á uno de los reyes mas justos y grandes de la tierra. ¿Qué exige de vosotros? ¿Os pide por ventura que abjureis vuestras creencias y que le ofrezcais el sacrificio de vuestras íntimas convicciones? No en verdad. Solo quiere que públicamente vivais como vasallos obedientes y sumisos, que no hableis mal de Mahoma y de su Ley, y que no hostigueis con vuestras temerarias confesiones á los jueces para que os entreguen á los verdugos. Seguid el ejemplo de vuestro metropolitano Recafredo, el cual condena ya ese falso celo que os lleva desalados al suplicio, y obedeced tambien los decretos que este justo prelado acaba de dictar para desengañaros de vuestras falsas doctrinas[144]. No busqueis la muerte, no corrais con ciego afan al suicidio, pues no sereis mártires, sino malhechores y temerarios, si en ello os obstinais: sabed que presentándoos á los jueces sin ser violentados, estais excomulgados, y que como infames sereis quemados despues de muertos, dejando á vuestros hermanos y descendientes el baldon del castigo, y no la aureola de la glorificacion. ¡Oh mezquinas consideraciones humanas!

Vosotras, empero, almas sublimes que formais esa gloriosa legion de mártires, rechazais con santa indignacion los cobardes pensamientos que sugieren á los corazones tibios el egoismo ó la seduccion, firmes en vuestro propósito evangélico os lanzais á predicar públicamente la verdad, y devoradas por la santa sed de la salvacion de las pobres almas ignorantes y obcecadas, llevais vuestro amor hasta el inconcebible estremo de sellar con la propia sangre, para que se convenzan y conviertan, el testimonio que ya les habíais dado con vuestra irreprensible vida y luminosa predicacion.

Y ¿cómo paga el divertido monarca los esfuerzos de vuestra heróica caridad? ¡Ah! Mejor que nosotros lo dirá la piadosa leyenda. Óyese rumor de turbas hácia la plaza del alcázar, y va creciendo por grados en direccion á la gran mezquita. Los artesanos dejan sus obradores, salen los vecinos á las puertas de las casas, los devotos que estaban en el nuevo templo haciendo sus annefilas[145] acuden á las puertas esteriores del atrio: asoma por la parte de occidente una apiñada muchedumbre, y distínguese á intérvalos una voz aguda á la que sigue una algazara estraña de aplausos, silba y descompasados ahullidos. Aproxímase el gentío, y percíbese con claridad un pregon que va diciendo: «Así será castigado quien se burlare de nuestro profeta y de su religion.» El objeto del triste anuncio es un hombre á quien conducen en medio de aquella frenética multitud, desnudo, montado en un asno con el rostro vuelto á la cola del animal, cargado de cadenas, y tan estropeado á fuerza de azotes, que mas parece muerto que vivo. Llévanle por las calles principales hácia el barrio de los cristianos, en cuyas iglesias le presentarán para escarmiento á la conturbada y casi dispersa grey de Jesus, despues de lo cual será encarcelado hasta que le llegue la hora de volver á la plaza del alcázar á recibir la muerte.

Mientras el confesor Juan, que tal es el nombre del azotado, sufre este inícuo trato por amor de Cristo, y mientras á este santo mártir siguen otros quince, entre los cuales descubren nuestros ojos horrorizados y atónitos la mas varonil fortaleza en las mas delicadas criaturas, en el lindo page[146] y la tierna doncella[147]; el rey Cordobés vive entregado á los placeres de la poesía, de la música y del amor, y no consiente siquiera que los Cadíes molesten á sus consejeros sometiendo á su conocimiento las causas de los infelices cristianos.

Quiero, oh tú que revuelves conmigo los anales de estos lejanos tiempos, que conozcas al hombre privilegiado que embellece los dias pacíficos del reinado de Abde-r-rahman II, al genio incomparable que preside á todas las grandes innovaciones de la corte de Córdoba, á todas sus nuevas instituciones y á su progreso, para que juzgues si en un corazon entregado á semejante valido y al vértigo que él produce, pueden hallar acogida las doctrinas de abnegacion y sacrificio que los valerosos mártires cristianos estan llamados á mantener y propagar.

La España árabe se iba, como decimos hoy[148], civilizando: es decir, iba progresando en la via del desarrollo material; íbase puliendo, aumentando su riqueza, sus goces, su esplendor, y perdiendo su primitiva rusticidad, su sobriedad y sencillez de costumbres. Ali Ibn Nafí, por otro nombre Zaryab, era en este tiempo el mas celoso promovedor de la cultura de los árabes andaluces. Versado en la astronomía y en la geografía, sabía la division de la tierra en siete climas, las varias producciones peculiares de cada uno de ellos, su temperatura, sus mares, y el órden y poblacion de cada pais; poseía ademas todos los ramos del arte que tienen relacion con la música, y era tan prodigiosa su memoria, que podia ejecutar mil canciones distintas con sus correspondientes palabras y tonadas, y repetir otras tantas historias de reyes y califas amenizadas con sentencias de los sabios de todo el Oriente. A este candoroso retrato, añaden los historiadores árabes que era Zaryab como un manantial inagotable de tradiciones, leyendas y aventuras, y que su elegante, entretenida y sabrosa verbosidad solo podia compararse á un golfo sin fondo. Sobresalia principalmente en la música y el canto, y desde su llegada á Córdoba en el año primero del reinado de Abde-r-rahman, pues él era natural de la Iraca, habia fundado una escuela de música vocal con la que estaba haciendo una total revolucion en este arte. Si como artista y hombre científico le habia cobrado afecto el Sultan, que se pasaba las horas muertas oyéndole referir anécdotas é historias, no era menos agasajado y querido entre los nobles y potentados de la corte por la elegancia de sus costumbres y la amena novedad de sus traeres. El Amir le honró con su intimidad; los grandes adoptaron sus usos y estilos; su privanza llegó hasta el estremo de vivir y comer con el rey, y disfrutar una crecida pension él y sus hijos, y ser el confidente de todos los secretos del monarca, y tener en el aposento de este una puerta secreta para entrar á verle siempre que se le antojára; su popularidad subió hasta el punto de imponer á toda la corte sus modas y caprichos, en tales términos, que no era posible en ella ser hombre de gusto delicado no imitando en todo las invenciones de Zaryab. Era este en suma el Antinoo de Abde-r-rahman, y este sultan era el Adriano de Zaryab.

Conocido el personage con sus dotes intelectuales, vas á verle con sus atavíos esteriores y en el pleno ejercicio de sus hábitos y costumbres. Si te conduce la piedad en pós de alguno de esos olvidados y pobres mártires, al abrigo de las nocturnas sombras, á la temerosa orilla donde los sayones de los Cadíes acaban de suspender como bárbaro trofeo los cadáveres de sus víctimas, tal vez herirán tus oidos los melodiosos acentos de mágicos laudes, que de uno de los macizos muros del alcázar se elevan á deshora como ténue vapor mezclándose al murmullo del agua en las azudas. No pasarán muchos años sin que los mismos coros celestiales desciendan con sus inefables armonías sobre el mutilado cadáver de un gran santo, que hallará en las melancólicas ondas del profanado Bétis la piedad que no alcanzó de los hombres; mas por ahora son esos acentos puramente humanos, y los produce el célebre cantor de Iraca que ahuyenta la melancolía de la noche con sus dos esclavas favoritas Gazzalán é Hindah, á quienes concede el privilegio de alternar con él en el ejercicio de su instrumento predilecto por la gracia y destreza con que sus lindos dedos recorren las cinco sonoras cuerdas combinando sus diversos tonos[149]. Dícese que los jines[150] le enseñan en las horas del misterio y del silencio ese arte encantador con que tiene embelesada á la corte, y que suele pasar la noche entera con esas dos hermosas esclavas ejecutando las inspiraciones que de ellos recibe, refiriendo cuentos y escribiendo versos hasta dibujarse en el oriente la primera hebra de plata y rosa de la aurora. Entonces las dos esclavas vuelven á sus aposentos si él se recoge en su harem, ó permanecen con él si se lo manda, y Zaryab se entrega á la deliciosa vision de las fantásticas imágenes que la poesía, la música, el amor y las libaciones de vino de palma y aromático Sahbá[151] van produciendo en su exaltado cerebro hasta hundirse completamente en la nada del sueño. A la hora en que el respetado señor reposa en su blando lecho de bien preparado cuero, del cual está proscrita la manta de algodon de la antigua usanza, los eunucos y esclavos se emplean en su servicio. Su vestir, su mesa, su método de vida son enteramente escepcionales: todo en su morada respira comodidad, voluptuosidad y molicie; todo es allí peregrino é inusitado. Zaryab muda de vestidos en las cuatro estaciones del año, cosa antes nunca vista, porque los andaluces, hasta que se introdujo esta novedad, llevaban ropa de invierno ó de color hasta el dia 24 de junio (dia de mahraján), en que empezaban á usar el trage blanco ó de verano, y con este continuaban hasta el dia primero del mes solar de octubre, en que volvian á vestirse de invierno. En la estacion media entre el aterido invierno y el abrasado estío, lleva aljuba de joyante seda ó de vistoso mulham, y jubon ceñido, de estofa ligera sin forro; en la otra estacion intermedia en que cede el calor y encalvecen las florestas, usa el mihshah persa[152], trage de un solo color, y otras prendas de varias formas y tintas, acolchadas para preservarse del viento frio de la mañana. En invierno abandona el trage de otoño, y se reviste de ropas de abrigo de varios colores, forradas de pieles si el tiempo lo requiere. Sus trages blancos de lino no se lavan segun la antigua costumbre con agua de rosas y otras flores que las manchan con sus jugos: lávanse en agua de rosas con sal, que pone el lino como el ampo de la nieve. La vagilla en que come no es de plata ni de oro, es de trasparente, fino y brillante cristal, materia que no se afea ni se desforma, y que imita los objetos etéreos en que los almalekes sirven los banquetes del Paraiso. Su comida no se sirve en mesas de madera, sino en elegantes bandejas de terso cuero; en su cocina, finalmente, nunca se aprestan manjares comunes, sino platos esquisitos, el at-tafayá[153], la takalliyah, y otros que escitan el apetito con su sabor peregrino halagando el olfato con las especias de la India y el aromático cilantro.

Este profundo maestro de la vida muelle y regalona ejerce en la corte y palacio una seduccion irresistible: desde que él, sus hijos y mugeres se presentaron peinados como los eunucos y concubinas, ya todos han proscrito la pristina usanza del cabello crecido sobre la frente; pártenlo ahora por el medio, sin cubrirla, y recógenlo detrás de las orejas con afeminacion y estudio[154]. El Sultan que se deleita en tenerle de contínuo á su lado, va insensiblemente contagiándose de su refinado sensualismo, y por lisonjear los gustos del Sultan se contagia toda su corte. Las bellas artes, las nobles hijas de la inspiracion, ceden el puesto á las artes del deleite: la gran mezquita no nos descubre mejora alguna de importancia debida á este reinado; lo único que le debe son dos pórticos[155] y el oro con que se cubren unos cuantos capiteles. Casi diríamos que al influjo de la refinacion de las costumbres se va amortiguando la llama del genio...

Así es en efecto. Los pueblos son como los niños: la aspereza y la contradiccion los aviva y estimula, y acariciándolos se los duerme. Las artes del pensamiento, noble ejercicio del humano anhelar combatido entre las esperanzas y dolores de la vida, desarrollan y enaltecen los sentimientos morales; las artes de los sentidos, ministros solícitos de la voluptuosidad, los enervan y degradan. Parece á primera vista que hay contradiccion entre la decadencia del espíritu religioso[156] y el encono en la persecucion del cristianismo; no la hay sin embargo, porque el móvil de esta persecucion no es la fé, sino la razon de Estado. Con ser el celo religioso de Abde-r-rahman II menor que el de sus progenitores, es mayor su intolerancia, porque es el Estado mas exigente, y mas despiadado el corazon del que le rige. Un gemido de dolor, una lágrima sola, traspasan una coraza de hierro cuando el corazon que late debajo de ella es varonil y generoso; pero no hay coraza mas impenetrable á las saetas de la caridad que un pecho embriagado de perfumes, avezado á femeniles afeites y cubierto de lustrosa seda. El pecho del hombre estragado en los deleites es la losa de un sepulcro vacío.

Cuando en el campo de la moral luchan la verdad y el error, si el Estado destruye la posibilidad del equilibrio prestando al error su apoyo, el antagonismo necesariamente ha de formularse en persecucion; y cuando la verdad perseguida renuncia al derecho natural de la resistencia, el vencimiento se ha de formular necesariamente en martirio. Ahora bien, ¿podia el Estado no prestar su brazo al mahometismo, siendo este el que le habia formado? ¿Y podia por otra parte el cristianismo no protestar de contínuo contra la ley funesta del Koran, sancionando con su aquiescencia el retroceso del estado normal al estado de imperfeccion? ¿Habia de contemplar la España cristiana con rostro sereno y ojo enjuto la ruina de todas las grandes conquistas del evangelio; destruida la familia con la vergonzosa concesion de la poligamia y del divorcio; desmentida la divina regeneracion del hombre por la asquerosa lepra de la servidumbre, que el Redentor habia lavado con su propia sangre; desfigurada la santa nocion de la justicia por transigir con la venganza, y restablecida la monstruosa pena del talion por deferencia al espíritu material y grosero del pueblo sarraceno? Efectivamente, la poligamia con todos sus tristes adherentes, la deslealtad, la seduccion, el concubinato, el adulterio; la esclavitud con sus legítimas consecuencias, el envilecimiento del ser racional y las sediciones; el justiprecio de la sangre derramada por el homicida; y el talion por último con su horrible desigualdad retributiva, son las facciones características de ese Estado musulman que con un barnizado antifaz de prosperidades y placeres materiales se anuncia al mundo como émulo de la civilizacion de la cristiandad y su superior en el cultivo de la humana inteligencia.

No al acaso he tocado el delicado punto de la poligamia, cáncer destructor de la familia musulmana, porque siendo la familia la norma del Estado, pueda comprenderse por aquí hasta qué punto es ruinosa la basa en que estriba esa vanagloriosa sociedad. Acompañadme en una breve escursion por fuera de la gran mezquita. Grato es de vez en cuando esplayar el pensamiento, como es grato al ave nacida bajo la magnífica cornisa de piedra de su espacioso atrio, pasar volando sobre las casas circunvecinas para volver á posar despues entre las grandiosas ménsulas donde fabricó su nido. Abarcaremos con una rápida mirada toda la vida doméstica del pueblo mahometano, y luego regresaremos al interior de su templo, donde fortalecidos con el convencimiento de que el progreso y esplendor de las artes es por desgracia compatible con el deshonor de las leyes y de las costumbres, no nos dejaremos alucinar como muchos fanáticos partidarios de la cultura arábiga por las deslumbradoras maravillas que su arquitectura tiene que realizar todavía en un monumento que es el prototipo mas acabado de su genio. No me acuseis de parcialidad: voy desapasionadamente á poneros ante los ojos la vida doméstica segun el Koran. Apartaremos la vista de los escesos y desórdenes que la ley condena y castiga. Sabemos que todos los pueblos los cometen, y que hay una edad en la vida de las naciones en que las costumbres presentan la corteza de la barbarie. Pero vamos á observar cómo vive la familia mahometana dentro de la permision de la Ley, para deducir cómo vivirá con la trasgresion, inevitable en toda humana sociedad.

Recorramos el interior del hogar doméstico en cualesquiera gerarquías, desde el tugurio hasta el palacio. Estudiemos la condicion verdadera de la muger, ya bajo el dorado arteson, donde para endulzar su cautiverio se la embriaga de placeres, haciéndola pasar del tocador al divan, del divan á la danza, de la danza á la música y á los cuentos, de la música al perfumado baño, del baño á la mesa, de la mesa al palanquin y del palanquin al lecho; ya bajo las tejas del pobre zaquizamí, donde á la dura servidumbre de su sexo se reune la brutal inconsideracion de su marido. Veamos, é interroguemos, y recojamos con atencion las respuestas.—Dime, hermosa africana, ¿por qué estás triste? ¿por qué palidece el ébano en tus lánguidas megillas y se estingue el fuego en tu mirada? ¿No se deslizaban felices tus dias en este encantado y magnífico recinto, descuidados como esas cuentas de coral que por el roto hilo de tu gargantilla caen á ese tapiz de flores? El sol abrasador de Tunez marchitaba tu juventud en los aduares: caiste en poder de los enemigos de tu tribu, fuiste vendida como esclava, y ahora disfrutas las delicias del harem y el cariño de tu dueño.—¡Ay mi sol de Africa! ¡Ay mi libertad! ¿Te imaginas por ventura que una esclava no es una muger? Fuí vendida, es cierto; pero amé con toda mi alma al dueño que me compró, y el ingrato ahora me abandona por una muger de linage, porque el profeta le autoriza á tener á un tiempo mugeres y esclavas[157]; y no contento con arrancarme un corazon que la ley natural habia ya hecho todo mio, me vende á un hombre que aborrezco pudiéndome tener consigo[158]!

Vuélvome á otro lado, y pregunto:—Linda damascena, tú pareces completamente feliz: huérfana en Siria, hallaste en Andalucía un jóven esposo que te sirve de padre, cuya opulencia te proporciona cuantos goces puedes apetecer. La ventajosa posicion de tu marido debe llenarte de orgullo, y cuando la edad te permita aparecer en público con el rostro descubierto, brillará en tus ojos la satisfaccion de ver honrados y aventajados á tus hijos.—¡Cuánto te engañas! Ahora que soy jóven nada me halaga, porque la riqueza de mi esposo solo sirve para dorar las prisiones en que vivo. Su desconfianza me humilla, y la vida de esposa me es mucho mas insoportable que la horfandad. No gozo un solo instante de libertad: mis siervas espían mis mas inocentes acciones; los eunucos que de noche velan mi sueño, las almeas que tú crees destinadas tan solo á divertirme con sus bailes, las tellaks[159] que te imaginas consagradas esclusivamente á mi servicio en el baño, son, sin sospecharlo tal vez, los ciegos instrumentos de la tiranía marital. Oyes susurrar el aura entre las flores, no sabes si gime ó si rie; así son mis suspiros. Oyes cantar al pájaro entre sus dorados alambres, no sabes si está alegre ó si llora; así es mi canto.—Tu esposo es fiel sin embargo al mandamiento del profeta, y no te niega su cariñoso homenage, ¿para qué quieres la libertad?—Di mas bien para qué quiero ese homenage forzado si hay otras esposas que lo obtienen igualmente, y no soy yo la que impera en su corazon. Ese obsequio legal me repugna: el profeta le consiente darme hasta tres rivales, de modo que su obligacion se limita á envilecerme una vez cada cuatro dias[160] renovando en mi corazon la herida de los celos. Mira lo que dice nuestro libro sagrado al hombre: «No contraigas matrimonio sino con dos, tres, ó cuatro mugeres. Elige las que mas te agraden. Si no puedes mantenerlas, cásate con una sola ó conténtate con tus esclavas[161].» Tambien te engañas si te figuras que el renombre y la gloria del marido pueden ennoblecer á la esposa sepultada en vida, y que el velo que ahora cubre mi semblante[162] caerá con los años para otra cosa que para hacer manifiesto el rubor de mis megillas cuando mis hijos sean postergados á los de una advenediza preferida.

¿Cómo suceden tan repentinamente en esa otra vivienda al son de los laudes, inhumanos latigazos, y agudos lamentos á las dulces modulaciones de los cantares? ¡Ah! Una jóven yemenita acaba de ser azotada por su marido de resultas de una infame delacion.—Pobre muger: ¿es posible que el hombre que parte contigo el pan y el lecho te trate tan bárbaramente? ¿Qué ley puede autorizarle á ser juez de su propio agravio si eres culpada, y á ser el ejecutor de tu castigo?—¡Ay de mí! el profeta se lo concede. He sido acusada de desobediencia: mi culpa era bien leve por cierto; pero no hay quien me defienda contra el brazo de mi irritado esposo, porque la ley declara que «los maridos agraviados por la desobediencia de sus esposas pueden castigarlas, dejarlas solas en el lecho, y aun golpearlas[163]

Veo á la puerta de la vivienda de un jeque poderoso un crecido acompañamiento de caballos y camellos. Pasó la hora de alatema[164], y entran y salen los esclavos con gran recato y silencio sacando de aquella casa fardos y lios que colocan sobre las acémilas. Parece de pronto que se dispone algun largo viaje. A poco sale al zaguan, apoyada en dos mugeres, con la frente inclinada al suelo y sollozando amargamente, precedida de dos jóvenes de semblante ceñudo, hermanos suyos, una esbelta Kinserita, toda velada de la cabeza al pié: al colocarla en un camello vuelve los ojos llenos de lágrimas á los arrayanes y cipreses que se descubren por entre los arcos del patio que acaba de atravesar, y esclama:—¡Adios para siempre, objetos queridos que me acompañásteis en un breve sueño de felicidad ya disipado!—¿Adónde vas, jóven hermosa, ayer tan feliz y hoy tan afligida?—¡Me han repudiado!—¡Te han repudiado, y no hace un año se cubria de rosas y de mirto el suelo de esa morada para recibirte, y resonaban los adufes alzando las mugeres tu nombre en gritos de alegría[165] hasta las nubes!—¡Ah! bien lo recuerdo: encendidas mas que aquellas rosas estaban mis megillas cuando al pedirme para ese gallardo jeque, á quien yo secretamente amaba, me dijeron mis testigos: el noble walí de Jaen te ha pedido para esposa y te dá de acidaque[166] presente una gran riqueza. Si estás contenta, calla y no respondas, y tu callar es señal cierta que consientes. Mi padre acababa de morir en guerra de frontera, y mis dos hermanos se holgaban de mi buena estrella... ¡Todo acabó para mí! El cielo no ha querido dar hijos á mi esposo en su Kinserita antes tan querida, y me repudia por estéril. ¡El profeta permite romper por esterilidad un vínculo que la naturaleza hace indisoluble! «Esperad tres meses antes de repudiar á las mugeres que han perdido las esperanzas de concebir[167]

—Tú al menos, digo á otra bella mora á quien veo salir de su elegante retiro llevando de la mano dos niñas, no serás repudiada por estéril; y sin embargo tus ojos hinchados, el velo que tambien te cubre, el atavío de tus hijas, indican que te dispones á dejar la casa conyugal.—No soy estéril, no, pero tambien me veo repudiada. La causa apenas yo misma la sé: sé tan solo que perdí el corazon de mi marido, y que el ingrato juró que me repudiaba. Cuatro meses hace que pronunciando él su juramento, me cubrí con este velo y me retiré á ese aposento. Sostúvome la esperanza de la reconciliacion, mas esperé en vano; nuestro vínculo está disuelto, y yo recobro mi libertad[168]. ¿Qué digo mi libertad? ¡La muger lo deja todo donde tuvo el primer tálamo, y solo el hombre recobra despues del divorcio su primer estado! Llévome mis hijas, único bien del alma de que no se me despoja; mis hijos quedan aquí, y es fuerza separar á los hermanos unos de otros como se separan las ramas que crecieron entretegidas, cuando el hacha despiadada hiende á muerte el tronco. Pasarán los años, y si llegan á encontrarse se desconocerán, lo mismo que se desconocen la viga de una dorada techumbre y su hermana la viga que se pisa enterrada en un pavimento.

Sorprendo en otra casa á una muger meditando con el Koran en la mano el modo de cometer un delito para obtener la atalca[169] de su marido.—¿Qué estás pensando en este recóndito y solitario paráge, atrevida cordobesa? El libro del profeta está abierto en tus manos, y la espresion de tu semblante denota sin embargo que tu espíritu vaga incierto sobre el araf[170] entre el cielo y el infierno.—El crímen que medito me brinda con la suprema felicidad en la tierra. Estoy estudiando si puedo volver á los brazos de un marido que me amaba y á quien yo entregué toda mi alma.—Pues ¿y el marido que hoy tienes?—No le amo: prendado de mi hermosura me pidió en casamiento, y yo solo consentí con la esperanza de ser repudiada.—No comprendo á qué fin te has envilecido pasando por el tálamo de un hombre á quien no dabas tu fé.—Toma este libro, y lée: «El que repudie tres veces á una muger, no podrá volverla á hacer suya sino despues de pasar por los brazos de otro hombre que tambien la haya repudiado[171].»—¿Y prefieres al marido que tienes ahora el que por tres veces te repudió?—Le prefiero sin duda puesto que solo á él amo; él tambien me prefiere á sus demas esposas, y la tristeza le devora desde que me perdió. Ambos somos infelices por esa ley que hace la tercera atalca irredimible con la reconciliacion; pero afortunadamente ella misma nos ofrece el remedio en un cuarto repudio, á costa de un sacrificio que consentido por el primer esposo pierde su vileza. Mi actual marido es de genio apacible, y sin embargo le detesto; mi primer marido era irascible y arrebatado, y sin embargo le adoro: misterios del corazon que no ha comprendido el que al tercer repudio verbal hace la separacion forzosa.

La triste condicion de la muger mahometana me conduce á examinar la condicion de los hijos y de los siervos. Veo declarado impune al padre que prostituye á la sierva de su hijo[172]; impune tambien al que prostituye á la muger de su siervo[173]; veo que el amo casa á sus esclavos sin consultar su voluntad[174] como se unen los animales para que encasten; veo que la condicion de mercancía, sujeta á las alternativas de la estimacion y del desprez, empieza para la muger en la misma infancia, porque el padre casa á la hija desde niña sin contar con su parecer[175], y el tutor casa á su pupila si entiende que así le conviene, prescindiendo de que ella entienda lo contrario[176].

Tal es la constitucion de la familia bajo esa secta dominadora. La poligamia, destructora de todo órden doméstico y público, que produce la opresion de un sexo y la mutilacion del otro[177], que hace que el matrimonio no sea un vínculo, ni la familia una sociedad, introduce costumbres totalmente contrarias á la naturaleza del hombre social; estas á su vez originan hábitos opuestos á la naturaleza del hombre físico; y de este modo se verifica que una religion que prohija como inocentes las inclinaciones naturales corrompidas, condena á perpetua barbarie al pueblo que la observa. No hay progreso donde no se señala á las humanas acciones un tipo ideal y sublime á que aspirar, donde el hombre llega sin esfuerzo, sin lucha, sin sacrificios, al que se supone estado normal de la ley religiosa y civil.

¡Cuán de otro modo comprende la humana perfeccion la religion del pueblo dominado! ¡Cuán diversa es bajo sus santas leyes la familia! «Nuestro matrimonio, pudieran haber esclamado los perseguidos cristianos, no es la promiscuidad de los irracionales, sino un consorcio indisoluble elevado por Jesucristo al carácter augusto de Sacramento. No juzgueis nuestra ley por nuestras acciones: sabemos que somos débiles y prevaricadores, pero se nos manda que seamos perfectos. Dios que conoce al hombre y sus inclinaciones, porque conoce su obra y la obra del hombre, no nos dió leyes débiles, cómplices de nuestras pasiones como las vuestras y testigos impotentes de nuestros desórdenes, sino que nos puso un freno, y este freno escluye de nuestra familia la poligamia y el divorcio, restableciendo entre nosotros el matrimonio edénico, de dos espíritus en una sola carne, inviolable en su pacto, legítimo en su fin, vivificador por su pudicicia. Nuestro matrimonio no reconoce por fin legítimo el placer: su objeto es la formacion de una sociedad eventual, blanco de las bendiciones de la religion como Sacramento. Lejos estamos de la perfeccion que como un deber se nos inculca, porque la perfeccion se halla en el complemento natural de las cosas, y nosotros empezamos á vivir. La perfeccion de la simiente es la planta, la perfeccion del feto es el hombre, la perfeccion del pueblo bárbaro es el pueblo civilizado; pero ¿cómo habeis de civilizaros vosotros mas de lo que exige vuestra ley? Tolerad, pues, que os enseñemos lo que no sabeis, y si no lo tolerais matadnos en buen hora; pero nosotros no podemos en conciencia menos de advertiros que vais descarriados, porque es tambien deber nuestro indeclinable amaros como á nosotros mismos aunque nos aborrezcais. Podia el imperfecto paganismo, vanaglorioso con la virtud privada de Arístides y Caton, satisfacerse con que estos se abstuvieran de los infames juegos de Olimpia y de la diosa Flora; pero el cristianismo no se contenta con la tolerancia del pagano, ni con el olvido del levita, sino que exige la caridad solícita del samaritano[178].» No era otro en verdad el móvil que impulsaba á los mártires españoles, porque cuanto mas se acercaba el estado musulman á su pleno desenvolvimiento, mayor tenia que resultar el contraste entre las dos religiones tan opuestas en sus principios. De este contraste resultaba el escándalo, del escándalo el celo, del celo la pugna, de la pugna la persecucion y la muerte. Como serenas estrellas que en una noche de bulliciosa y espléndida orgía mandan á la tierra su vívido resplandor por entre las negras nubes de un cielo de tormenta, así vosotros, mártires purísimos, brillais con hermosa claridad en los sangrientos anales de la perseguida Iglesia de España, contrastando la divinidad de vuestra doctrina y testimonio con la falsa brillantez de esa corte corrompida que tan á costa vuestra estais evangelizando.

¡Oh valor incomparable! Saben esos humildes y generosos confesores que la persecucion arrecia, que el desacato de la profesion de fé es ya mirado como asunto digno de ocupar al consejo del rey[179], que la estirpacion completa de la religion cristiana va á ser en breve el negocio capital de la gobernacion interior del Estado; ven aumentarse el número de los apóstatas, entibiarse el celo de sus afligidos hermanos, dilacerarse con nuevas heregías el seno de la Iglesia perseguida, ceder los débiles á la opresion y al oprobio, los tímidos á las amenazas, los codiciosos á la agravacion de los tributos, los ambiciosos á las liberalidades y promesas; dícenles que sus prelados mismos los obligan á jurar que no comparecerán ante los jueces á hacer pública confesion de su fé, que en el consejo del Amir se ha acordado conceder á todo musulman permiso para quitar la vida á cualquier cristiano que hable en desdoro de su profeta y secta; y sin embargo nada les arredra. ¡Allá va la gloriosa falange! En ella la dama de esclarecido linage que hasta ahora habia vivido ocultando su verdadera fé, y que, depuesto ya todo humano respeto, ha consumado el sacrificio para una madre mas costoso, cual es el abandono de sus cariñosos hijos[180]; en ella el rico hacendado, hijo de mahometanos, que tomando de su heróica esposa ejemplo de abnegacion y fortaleza, y aleccionado en la provechosa escuela de los justos perseguidos y encarcelados, reparte su riqueza entre los pobres y las iglesias, y confia su prole ¡ya en breve huérfana! al tranquilo amparo de un humilde claustro de religiosas[181]; en ella el mendicante peregrino de lejanas tierras enseñoreadas por los infieles, que nacido en la gloriosa Belen y profeso en el célebre monasterio de S. Sabas, termina su trabajosa cuestacion por Africa y España, pidiendo en Córdoba al consejo de Abde-r-rahman el eterno descanso á la sombra de la palma de los mártires[182]; en ella numerosos monges, unos nacidos de noble linage, otros nobles por sus hechos y virtudes; en ella finalmente ricos y pobres, sabios é ignorantes en las humanas letras; versados en los estudios y trato de los árabes, y extraños de todo punto á su lengua y comercio; aventajados en la corte, y oscuros mozárabes de la Ajerquía; casados, célibes, eunucos; los unos criados entre parientes mahometanos, y sin embargo cristianos desde la infancia; los otros hijos de cristianos, pero tenidos por musulmanes hasta el momento de recibir de Dios el don de caridad y fortaleza, que los convierte de repente de tibios y meticulosos en paladines declarados de la fé, sedientos de la salvacion de las almas y de las salutíferas aguas de la tribulacion. La edificacion de sus hermanos, la conversion de sus obcecados dominadores, la espiacion de la pasada prevaricacion de España[183], reclaman ese sacrificio. Allá van, pues, gozosos y tranquilos: los mancebos renunciando á sus doradas esperanzas, á su brillante porvenir, á la ciencia, á los honores, á la gloria, al amor, á todo lo mundano; las madres despidiéndose para siempre de sus inocentes hijuelos, en quienes se compendian para ellas todos los placeres de la tierra, y estampando en sus rosadas megillas el último beso, que reciben dormidos, ignorantes de su próxima horfandad. Allá van, animosos y decididos, á dar su sangre por su fé, por el cristianismo, por la verdadera civilizacion del mundo, por la gloria del Criador, y á dejarse sepultar cadáveres desangrados en ese hondo rio, momentáneamente agitado y luego otra vez magestuoso y sereno. No podrán decir sus enemigos que los impulsa la vanagloria, porque saben que sus nombres serán execrados prevaleciendo los apóstatas partidarios de Recafredo, y que el culto de los mártires es severamente castigado por los musulmanes y por los obispos prevaricadores[184]. Ese es el premio que esperan de los hombres, esa la recompensa que les tiene reservada el mundo, que los moteja de fanáticos y alucinados, en pago de lo que ellos se afanan y sufren por su emancipacion y progreso. ¿Vivirán al menos sus nombres en la memoria de la España restaurada? Vivirán, sí, en los corazones de la gentecilla humilde y oscura, que es la que ama las tradiciones piadosas y los recuerdos de sus santos; perpetuaránse en las leyendas, en los martirologios y santorales, que, fuera de las iglesias y monasterios, solo manejarán el devoto madrugador que vive ignorado del mundo, y el solitario campesino que solo ve de la gran ciudad las azuladas torres; pero los poderosos, los cortesanos, el Estado, nada creerán deberles ni se cuidarán de ellos, porque la memoria, peso abrumador para la vida de los grandes, es como un mar de plomo en que se hunden todas las antiguas glorias y escarmientos. El calor de las nuevas impresiones le hace hervir un instante, y luego gradualmente recobra la inmobilidad de la masa inerte. En él las cosas de quilate se sepultan, y solo sobrenadan cañas huecas y espumajos.

Pero si los hombres son ingratos con los mártires, el Omnipotente al menos se les declara propicio, y armado con todos sus horrores y prodigios, atestigua por ellos, conturbando á los jactanciosos dominadores. Corria el mes de setiembre, delicioso en la tierra de Córdoba, y en uno de sus mas claros y serenos dias, los consternados cristianos veían clavar en la ribera del Guadalquivir los cuerpos de dos mancebos, nobles por su sangre y afamados por su ciencia, que acababan de ser degollados, durando aun la ceniza de la hoguera encendida para quemar los cadáveres de otros dos mártires. Oscurecióse de repente el cielo; cubrióse de negras nubes sin que precediese anuncio de tempestad, rompió esta con grandes truenos y relámpagos y granizo, y mientras los hombres ofendian á la naturaleza con la muerte de aquellos dos justos, con tanta crueldad sacrificados, esta demostró hacer por ellos sentimiento enlutándose en medio de su mas esplendorosa gala[185]. Insensible el orgulloso Amir á tan evidente testimonio, jura lleno de furor que raerá de sus vastos dominios la cizaña de la fé cristiana. Ya el valor de los mártires le conturba y le quita el sosiego, ya la poblacion mozárabe le ocupa y le causa insomnios; la poesía, la música, las artes, los cuentos y relaciones de Zaryab y de sus favoritos no le desenojan; conoce el valor de los buenos cristianos, el prestigio que entre ellos alcanzan los prelados como Saulo, los doctores como Eulogio, pero fia demasiado en la intimidacion que ejercen los malos obispos con sus decretos y él con sus edictos, y desconoce la fecundidad de la sangre derramada. El año 852 se halla en su tercio final: veintiocho cristianos han muerto á manos de los verdugos del Amir; su obispo y su mas caro maestro conocen ya el rigor de las prisiones. ¡Ay de los que se atrevan en lo sucesivo á desafiar su saña! Dos eunucos cristianos, sin embargo, uno natural de Granada y otro venido del Oriente, llamados el primero Rogelio y el segundo Serviodeo, aquel monge y anciano, este mozo y de estado á nosotros desconocido, penetran denodadamente en la mezquita mayor un viernes, en ocasion de hallarse el templo todo lleno de gente allí congregada para hacer su azala. Sabida es la escrupulosa y nímia atencion con que observan los musulmanes viviendo entre cristianos hasta las mas pequeñas prescripciones de su ritual, porque los sectarios de Mahoma son esclavos de su religion como de su gobierno: no hay creyente que antes de entrar en la mezquita á orar, ya sea en dia juma, ya en otro dia cualquiera, no haga en las fuentes del atrio sus purificaciones ó abluciones, con todos los requisitos prevenidos por la Ley y la Sunnah; ni hay quien se atreva á penetrar en el recinto sagrado sin dejar en el pórtico el calzado con que anduvo por las calles y plazas; ni quien una vez dentro de la casa de adoracion, no ocupe el parage asignado á su edad y sexo, no haga mirando á la kiblah las incurvaciones y postraciones á que estan obligados los fieles, y no siga en todas las oraciones y actos de su ceremonial al Imam con aquel órden, regularidad mímica y afectada compostura, propios de una religion de meras formas. Rogelio y Serviodeo, despreciándolo todo, se entraron en el templo con ímpetu extraño, sin ablucion, sin despojarse del calzado inmundo, sin hacer acto alguno de los que el culto musulman impone. Debieron los servidores de la mezquita mirarlos al pronto como dementes; al verlos atravesar con infraccion de todas las reglas establecidas, á paso precipitado, por las hileras y departamentos de hombres, niños, hermafroditas[186] y mugeres, fijarian en ellos los muslimes sus ojos atónitos sin esplicarse la causa de tan punible desacato. Pero antes de presenciar el gran delito que se prepara, cúmplenos observar, aunque sea de ligero, esas singulares ceremonias de que hemos hecho mérito, para comprender mejor el sangriento escándalo, la alarma y el enojo, que los dos osados cristianos debieron producir en los musulmanes cordobeses y su gobierno. Un poco de paciencia, buen lector: luego terminaremos el cuadro de los furores de los Amires, y de las justas venganzas del cielo.

Los musulmanes dan una importancia suprema á todos los actos exteriores, porque las grandes promesas de Mahoma se libran en ellos. «Al que se lava el cuerpo segun manda la Sunnah, y va temprano al templo, y se pone cerca del Imam para oirle con atencion sin hablar palabra, le escribe Dios nuestro señor, dicen los doctores del Koran, por cada paso que dá, el premio correspondiente á un año de adoracion, y á un ayuno de todos los dias.» «El dia del juicio, añaden, se le aparece la Aljama en forma de hermosa figura ataviada con vistosos arreos: él pregunta: ¿quién eres? y ella le responde: soy la Aljama, que vengo á atestiguar delante de Dios cómo acudiste al cumplimiento[187].» Ceremonias exteriores tan poderosas, que sirven de espiacion y justificacion, y que equivalen en mérito á la mas rigorosa penitencia, escusado es decir si se observarán escrupulosamente. Verdad es que estas fórmulas se consideran nulas sin la recta intencion, así que «la azala, dicen los teólogos árabes, es una estátua que figuró Dios lo mismo que figuró los animales, poniéndole por alma la intencion[188].» Pero como la mera intencion es fácil de formar, no por eso la religion mahometana resulta menos cómoda. La pureza del corazon se recomienda, pero no se dá medicina para lograrla: no importa: todo va bien mientras el cuerpo aparezca puro de inmundicia exterior, y mientras las azalas obligatorias se hagan en los tiempos y con las posturas, lecciones y jaculatorias requeridas, siguiendo al Imam con precision automática, y como si dijéramos á golpe y medida de resorte: exactamente de la misma manera que hacen la carga á once voces los héroes de oficio que entretienen las naciones para un caso de guerra, y sus habilidades los perros sabios que en teatrillos ambulantes los imitan en casos de paz. Hé aquí pues cómo se santifica el pueblo que rige el poderoso Abde-r-rahman II. Estamos en plena festividad, dia de viernes, dia juma: dia por cierto en que sufrió un solemne desaire el gran profeta Mahoma mientras estaba predicando en la mezquita de Medina. Hallábase en lo mas crítico de su peroracion, cuando sonaron de repente los tambores que anunciaban la entrada de la caravana de mercaderes en la ciudad; y todos entonces, escepto doce fieles de fé tenaz y aguerrida, abandonaron el templo dejando al predicador con la palabra en la boca. Esta falta de respeto le sugirió la feliz idea de hacer bajar del cielo la Sura ó capítulo LXII de su Koran, titulada el viernes, y cuya aleya undécima dice así: «Cuando el interés los estimula, corren los hombres al punto adonde su voz suena, y abandonan al ministro del Señor. Diles pues: los tesoros con que Dios os brinda son mas preciosos que todo bien perecedero. Dios es el mas generoso de los bienhechores[189].» Este pesado chasco no quita que sea el viernes el mas dichoso dia que alumbra el sol, y que en él (los muslimes al menos así lo suponen) criase Dios á nuestro padre Adan; que en él lo pusiese en la gloria, y luego lo bajase á la tierra, y que en él muriese; que en él deba ser el juicio, y que no haya en él animal que no esté en confusion desde que amanece hasta ponerse el sol esperando la hora de la comparecencia, esceptuadas las gentes y espíritus[190]. En este dia al que hace la azala le son perdonados todos los pecados que tenga sobre su alma.

Siendo por consiguiente la azala del viernes tan eficaz, es claro que no se descuida el hacer con toda minuciosidad la purificacion que á ella precede, y que es como la raiz y fundamento de la Ley musulmana; porque está escrito que no recibirá Dios la oracion sin la purificacion[191], y Mahoma ha pronunciado que la religion está cimentada sobre la limpieza[192]. «Oh vosotros los que creeis, antes de comenzar vuestra oracion lavaos el rostro, y las manos hasta los codos, y restregaos la cabeza, y los piés hasta los talones, y purificaos si hubiéseis tenido polucion. Si estuviéseis enfermos, ó hubiéseis tenido coito, tomad á falta de agua polvo limpio, y frotaos con él la cara y las manos. No quiere Dios angustiaros, sino haceros puros y derramar sobre vosotros sus gracias para que seais agradecidos.» Así se espresa el Profeta en la Sura quinta de su Koran, y sobre estas palabras arman los musulmanes toda la artificiosa y ridícula máquina de su purificacion y abluciones.

Amanece, pues, el gran dia, y empieza en las casas de los fieles muslimes la faena de los lavatorios, que no concluye sino en el atrio de la mezquita; porque los viernes es obligatoria la asistencia á la azala del templo, y obligatoria tambien una ablucion general de todo el cuerpo, la cual no puede hacerse cómoda y decentemente sino en el propio hogar. Esta ablucion general, llamada tahor, ó tahara, es tambien de precepto en las dos principales festividades de pascua de Ramadan y pascua de Carneros, en la peregrinacion á la casa santa de la Meca, y en ciertos casos de natural impureza[193]. El que hace tahara no solo tiene que lavar todo su cuerpo, enjuagarse, limpiarse la dentadura, espeler las mucosidades, y raerse el bello, sino que está obligado á observar el órden y la forma establecidos para estas diversas operaciones; de tal manera, que no le sirve la ablucion, si en vez de concluir lavándose los piés, segun está prescrito, acaba lavándose las manos ó la cabeza, y si en lugar de mojarse el cuerpo tres veces, como es tambien precepto tradicional, se lo moja dos ó cuatro. Los requisitos de la tahara son varios: se empieza lavándose las manos, siguen los demas miembros por su órden, y se concluye por los piés. Ademas debe hacerse en lugar limpio, y empezarse el lavatorio del cuerpo desde la cintura abajo, invocando al Criador, echándose luego el agua por la cabeza, restregándose el casco con los dedos, sin necesidad de que deshagan sus trenzas las mugeres, y finalmente, mojándose primero el hombro derecho y despues el izquierdo; todo esto con agua limpia de rio ó de mar, de pozo ó fuente, ó llovediza, con tal que no haya caido en ella cosa muerta por pequeña que sea. Como sin embargo de la ablucion general se requiere para antes de orar la purificacion ceremonial ó sagrada, llamada alguado, que consiste solamente en lavar la cara, las manos hasta los codos, la cabeza, y los piés hasta los tobillos, con el aditamento de enjuagarse la boca, sonarse sorbiendo el agua y frotarse los oidos, que ha establecido la Sunnah, es claro que el que se propone cumplir religiosamente estas ceremonias tiene bastante en que entretenerse antes de principiar la oracion pública. Esta segunda ablucion, ó purificacion sagrada, cuya virtud se pierde segun los expositores de la ley y tradicion por veinte causas (que omitimos especificar por poco decentes)[194], y que por lo tanto es forzoso repetir con mucha frecuencia, tiene sus requisitos y prácticas que la hacen bastante curiosa á los ojos de los profanos. Llega el muslim al atrio de las abluciones, y antes de visitar la casa donde se custodia y venera su Koran, hace una visita oficial á la letrina: lava luego sus manos, vuélvese de cara á la quibla, se sienta, enjuaga su boca, descarga sus narices, y entre tanto pronuncia la fórmula: «En nombre de Dios.» Mientras se hace esta ablucion se suspende todo coloquio: cada cual va por su órden cumpliendo con las ceremonias establecidas sin curarse de lo que hacen los demas. A la locion de la cara, con la cual pide el creyente á Dios que la emblanquezca el dia del juicio, sigue la del brazo derecho, por la que pide que le dé su carta aquel dia en su diestra; luego la del brazo izquierdo, con lo que intenta significar que no se la dé en la siniestra; luego sigue la frotacion de la cabeza, para que Allah le cubra con su piedad y le conserve sus cinco sentidos; luego la de los oidos para que le haga oir Allah su divina palabra y el pregon de Bilel[195] en el Paraiso; luego la locion del pié derecho para que se le afirme en el puente del Sirath, y la del izquierdo finalmente para que no le sirva de embarazo al atravesarlo. Si reparas bien en los actos de los que van acudiendo al hermoso patio de los naranjos, llamados por el aliden[196] á la azala de adohar, observarás que los ritos para hombres y mugeres son los mismos, que unos y otros comienzan la ablucion con la mano derecha, que jamás ayudan con la izquierda á la absorcion del agua por la boca y narices, que la mano izquierda se destina á otros usos menos nobles, que todos repiten las abluciones hasta tres veces, ni mas, ni menos, que todos se abstienen de consumir en esta operacion demasiada agua, de frotarse los piés desnudos, de echarse el agua en la cara de golpe, y de ensuciarla con salivas y otras inmundicias. Habrás advertido tambien que á medida que van entrando en el patio los muslimes van dejando bajo los pórticos el calzado con que andan por la calle, y que para penetrar en la mezquita usan otro calzado limpio, sobre el cual hacen la locion de los piés. Verás á los hombres descubrirse la cabeza para la frotacion que impone la Ley, y á las mugeres no, porque la tradicion les consiente que cumplan esta ceremonia por debajo del velo ó manto que las cubre todas, con tal que puedan llevar las manos al colodrillo sin deshacer la mata de sus cabellos. Ultimamente, no verás hombres y mugeres juntos ni en el atrio ni dentro del templo: cada sexo tiene asignadas sus puertas para entrar en uno y otro, y sus departamentos ó secciones en el interior de la mezquita: la muger recoge el manto sobre su rostro dejando solo destapado un ojo[197], y hace sus abluciones separada de los hombres, porque en ella todo es pudendo, hasta los brazos y el cuello: todo, á escepcion de las manos, los piés y la cara. Entiéndase esto de la muger libre, porque en la esclava no se consideran pudendas mas partes que las que el hombre mismo está obligado á ocultar, á saber, desde la region umbilical hasta las rodillas. En cuanto á la costumbre de taparse la cara con el velo ó manto, propiamente llamado almalafa[198], ya dejamos apuntada la disposicion legal en que se funda esta que de pronto parece señal de esquisita pudicicia[199], y que en realidad es solo cebo artificioso y pretesto hipócrita del lenocinio, segun muy autorizados votos[200]. Mahoma la recomienda sin duda porque la halló establecida en el Oriente, donde era el manto considerado como ornamento para las casadas, y como adorno y velo para las doncellas. Las almalafas eran de lino por el estilo de las que se tejian en Galilea, ó de seda como las usaban las Fenicias, unas blancas, otras de diversos colores: muchas veces finísimas, sutiles y trasparentes como el theristro griego, cuyo nombre, así como el de palio y caliptra, le dan algunos historiadores del Bajo-Imperio y otros escritores de la Iglesia; y en esta forma la usaban las meretrices en el mundo antiguo, las cuales se envolvian en un theristro diáfano como el ambiente para poder presentarse en público desnudas[201].

En el atrio de la mezquita, donde hay aguas abundantes, no puedes gozar el espectáculo de los que con mucha fé y entusiasmo se restregan los miembros con polvo, tierra, y aun barro, imaginándose quedar muy curiosos y aseados. La ley musulmana exige que á la hora de la azala se haga siempre la purificacion ceremonial, y que donde falte el agua, como puede muchas veces acontecerle al caminante, al encarcelado, al que esté escondido huyendo de fieras ó de enemigos, se eche mano de la tierra, de la arena, de la yerba, de las piedras, del césped, del barro, de todo lo que la naturaleza haya criado sin intervencion humana[202]. Esta singular purificacion se llama el tayamun; ya puedes figurarte si será edificante y hermosa la figura de un devoto muslim apeado de su caballo en medio del campo, haciendo sus incurvaciones con la cara tiznada de lodo, vuelto hácia la Meca[203]. No deliraron tanto jamás las naciones paganas que mas materializaron la razon de las purificaciones; no digamos los Romanos, que hacian sus decorosas y solemnes lustraciones, en manera alguna ridículas, antes bien interesantísimas por el sacrificio de las víctimas; pero ni los Baneanos del Mogol[204], ni los Bracmanes, de quienes se cuenta que todos los dias antes de salir el sol van al rio y en él se meten, unos hasta el pecho, otros hasta la garganta, creyendo quedar allí limpios de sus pecados; ni la gente india vulgar, que, persuadida de que las aguas limpian el alma, corre desalada á los grandes estanques de las Pagodas, y á los dos sagrados rios Ganges y Cason, en cuyas ondas purificadoras aman muchos dejar la vida[205]. De estos al menos no se refiere que se hayan entretenido ó se entretengan en hacer objeto de ceremonias la inmundicia natural, cotidiana, y aun necesaria, del organismo animal, ni que sean tan materiales y nímios que se crean obligados á repetir la ablucion si omitieron en ella alguna pequeñez, ó si al lavarse los brazos empezaron v. g. por los codos, en vez de empezar por las puntas de los dedos[206].

Cesaron las abluciones de los creyentes, óyese dentro de la mezquita la alicama ó convocacion que los llama á orar. «Ya está levantada la azala, ya comienza la oracion[207];» es la hora de adohar, el sol está en la mitad exacta de su carrera, el Imam ocupa el mimbar, entra el pueblo con paso grave y mesurado por las espaciosas y elegantes puertas que conducen á las once naves mayores. Los hombres entran por unas puertas, las mugeres por otras, á fin de que cada sexo ocupe su respectivo compartimiento[208]. Todos al pisar el umbral sagrado levantan en señal de admiracion las manos, esclamando en voz baja: «¡Dios es el mas grande!» Este primer acto no creas que es espontáneo; es de ritual. «El que entre á orar magnifique á Dios, y levante sus manos de modo que sus pulgares se hallen á la línea de sus oidos: aplique luego la mano derecha sobre la izquierda, y ambas debajo del ombligo, y diga alabando á Dios: bendito sea, oh Dios, tu nombre, exaltada tu dignidad, glorificada tu alabanza; no hay mas Dios que tú[209].» Así lo verifican todos: á la magnificacion sigue la estacion; durante la estacion, en la cual no le es permitido al muslim separar las manos de la postura referida, ni doblar las rodillas, ni cargar el peso del cuerpo sobre una pierna mas que sobre otra, se implora el auxilio del Altísimo contra Satanás apedreado, y luego se pronuncia la célebre invocacion Besm ellah elrohman el rahim (en nombre de Dios clemente y misericordioso), que para los mahometanos es como para nosotros los cristianos la señal de la cruz, y con la cual principian todos los actos importantes de la vida. Las dos últimas palabras se dicen secretamente. Refiere uno de los mas famosos comentadores del Koran, que cuando esta invocacion bajó del cielo, las nubes huyeron al oriente, los vientos se calmaron, la mar se conmovió, los animales empinaron las orejas para oir, y los demonios cayeron precipitados de las esferas celestes[210]. Empieza el Imam en seguida, á la cabeza de todos los creyentes formados en hileras, la lectura del proemio ó Sura primera del Koran, y ellos en secreto le van siguiendo. Magnífica en verdad es esta primera oracion, despues de la cual puede decirse que en la azala no hay otra. Dice así:

¡Gloria á Dios, Señor de los mundos!
La misericordia es su atributo:
Él es el rey del dia del juicio.
Adorámoste, Señor, é imploramos tu auxilio.
Dirígenos por los caminos de aquellos á quienes has colmado de beneficios,
De aquellos que no provocaron tu cólera y se preservaron del error.

Al proferir el Imam estas últimas palabras, los asistentes dicen: Amen. Sigue inmediatamente otra magnificacion con la fórmula conocida «Dios es el mas grande» (Allah ua aqbar), y despues tienen lugar las incurvaciones y postraciones y asentaduras, interpoladas con jaculatorias, y dispuestas por la tradicion y los teólogos musulmanes con tantos requisitos, tanto subir y bajar, tanto encorvar la espalda y enderezarla, tanto sacar y remeter el vientre, tanto jugar de piernas y de cuello, y tanto agitar de piés encogiendo uno y estirando otro, y volviendo los dedos á la quiblah, que ni tengo yo paciencia para írtelo desmenuzando, ni tú la tendrias para seguir atendiéndome[211]. Observemos, si te place, que desde el comienzo de la azala hasta el fin van siguiendo los asistentes toda la mímica del Imam que la rige, exactamente lo mismo que siguen en sus movimientos los reclutas al cabo instructor, ó como en ciertos juegos de los niños (¡oh recuerdo agridulce!) sigue todo el corro al que dirige la farsa repitiendo sus palabras é imitando sus gesticulaciones[212]. Mejor que pudiera yo hacerlo, te esplicará el dibujo que aquí te pongo lo que es incurvacion y postracion[213]. Mira en él reproducidas estas dos posturas capitales: el que hace la incurvacion (rucúz) pone las manos sobre las rodillas, y las espaldas al nivel de la cabeza; en esta posicion pronuncia las esclamaciones de ritual, y ó bien vuelve á enderezarse, ó bien se postra en tierra, segun el estado y período de la oracion. Al postrarse para hacer su adoracion (çuchud), procura con todo esmero que toquen en la tierra la frente, la nariz, los codos, las manos abiertas, las rodillas y los dedos de los piés. Al sentarse procura tambien no hacerlo sobre ninguno de los dos piés, sacándolos por el lado derecho, o juntando con el muslo derecho la planta del pié izquierdo.

INTERIOR DE LA MEZQUITA DE CORDOBA.
INTERIOR DE LA MEZQUITA DE CORDOBA.

Ocupados en este ejercicio mas propio de jimios que de seres racionales estaban los muslimes cordobeses, y la soberbia mezquita de bote en bote, cuando penetraron resueltamente en ella los dos cristianos Rogelio y Serviodeo. El pueblo suspende sus ritos, álzase un imponente murmullo, señal segura de un grave escándalo; el Imam enmudece asombrado; al murmullo sucede una amenazadora gritería, como siguen en la mar los bramidos de las olas á la susurrante brisa que anuncia las tempestades. ¿Qué intentan esos dos hombres temerarios que abriéndose paso por las apiñadas hileras se adelantan forcejeando hasta cerca del Santuario? ¿Qué palabras son las que vienen á proferir en este venerando recinto, interrumpiendo solemnes ceremonias, infringiendo leyes y tradiciones, desafiando las mas terribles prohibiciones[214] y esponiendo la vida al justo furor de la escandalizada muchedumbre? ¡Oh abominacion! ¡oh delito monstruoso y nefando! El magestuoso y sonoro idioma del Hedjaz consagrado por el profeta de Dios á la promulgacion del Koran, es prostituido y vilipendiado por sus atrevidas lenguas en obsequio del profeta nazareno[215]: nada menos intentan esos criminales alucinados que convertir con una insensata predicacion los corazones de tantos miles de creyentes, fieles y fervorosos, al culto del Hijo de María, escarneciendo la doctrina y nombre de Mahoma. ¡Pobres insensatos! Como si no supiéramos distinguir el bien del mal, vienen ellos á predicarnos que son males los bienes de la tierra, que miente y nos engaña el que nos prometió el placer en este mundo y la felicidad en el otro[216]. ¡Perezcan esos dementes, acabemos con todos ellos, estíngase en el Andalús la abominable peste de la Palestina! Así claman los mas celosos, y arremolinándose en torno de los dos indefensos cristianos, emprenden con ellos á golpes, los derriban á bofetadas y empellones, y de buena gana los habrian muerto dentro del mismo templo como en desagravio de su[217] profanacion; mas acudiendo el Cadí de la Aljama, se los entregan para que les aplique la pena de muerte y mutilacion de manos y piés, á que se hicieron acreedores por su delito, y excitan á sus regidores á concluir de una vez con el nombre de cristianos por medio de una persecucion sangrienta y sin tregua. El fuego de la ira popular prende en el corazon del sultan, y el monarca que en su juventud blasonaba de justo abandonando á los jueces las causas de los cristianos sediciosos, se jacta en la vejez de cruel, consagrándose personalmente á discurrir penas atroces y medios escepcionales de intimidacion. Pero conociendo que la crueldad le ahuyenta los vasallos, y que la misma razon de Estado que manda castigar la rebeldía le aconseja no trasformar en héroes á los rebeldes, imagina que es preferible poner á los confesores la mordaza de la obediencia, robusteciendo el decreto del desautorizado Recafredo con un solemne canon conciliar, al cual no puedan oponer los cristianos objecion alguna. Cosa fué pensada y hecha la reunion de metropolitanos y obispos llamados á secundar tan satánica invencion. Celebróse el concilio convocado por el tirano islamita[218]: el miedo y el rigor luchó en los pechos de los prelados con el amor á la justicia: querian no faltar á esta, ni exasperar mas al rey. Ofrecióseles conciliar lo uno con lo otro disponiendo el decreto artificiosamente, de suerte que la corteza de la letra, á que habian de mirar los infieles, sonase á prohibicion de presentarse al martirio, pero que bien mirado el sentido, cual podian conocerle los prudentes cristianos, no incluyese ofensa de los mártires[219]. Pero esta resolucion causó escándalo entre los cristianos ignorantes, desagradó á los mas ilustrados, y fué objeto de severas impugnaciones; causa tambien de reprobaciones y persecuciones nuevas. Saulo y Alvaro la censuraron: créese que S. Eulogio hizo lo mismo[220]. El obispo fué segunda vez encarcelado: el sabio doctor tuvo que ocultarse: los seglares nobles y conocidos temian por instantes la misma pena: todos andaban acobardados, atribulados, huidos. Abde-r-rahman al ver frustradas sus esperanzas se entrega de nuevo á su delirante saña. Una infernal complacencia le conduce á una alta galería de su alcázar, desde donde espera cebar la ansiosa mirada en un espectáculo horrible, pero adecuado á su sed de venganza. ¡Ah, que el infeliz no cuenta con que en favor de los desvalidos mártires está ya armado el cielo!... Penden de sendos árboles allá abajo, reflejándose siniestramente en las claras aguas del gran rio[221], dos objetos denegridos que se destacan sobre el verde pardusco de las alamedas: la brisa que mueve las hojas mueve tambien en ellos una especie de copo de leve crespon que á veces se desvanece como una bocanada de negro humo. Fija bien en ella tu vista, cruel anciano. ¿Qué descubres entre las copas de la arboleda? ¡Oh intenso y bárbaro placer! Son los cadáveres de Emila y Jeremías, tostados y desecados por el sol de otoño, con sus cortadas cabezas clavadas en los troncos ó hincadas en las puntas de las ramas. Allí cerca se mueve alguna gente: óyense, soplando el viento de mediodia, algunos martillazos que dobla el eco de los vecinos collados, y á poco aparecen clavados tambien otros dos cuerpos horriblemente mutilados. Sin manos, sin piés, sin cabeza, bañados en su propia sangre, aun fresca, que brilla cuajada á gran distancia, presentan un cuadro espantoso que hiela el corazon y hace cerrar los ojos á los que por allí transitan descuidados. Solo Abde-r-rahman puede contemplarlo sin horror, y no solamente sin horror, sino con esa terrible sonrisa propia de los placeres que asesinan. Ha reconocido los cadáveres de los dos últimos mártires, y esclama como fuera de sí: ¡Aquí mis hijos, aquí mis consejeros y mis maulis! ¡Aquí todos los mios! Vedlos dónde asoman aquellos dos temerarios que profanaron nuestra Aljama con sus cuerpos impuros: parecióles buena la suerte de los otros dos insensatos cuyos despojos denegridos son hoy pasto de los cuervos, sin duda porque vieron que despues de degollados les hacian duelo las nubes y los vientos: id, y mandad en mi nombre que á los cuatro les pongan fuego, para que sus inmundos cadáveres no causen mas espanto á mis muslimes; y ahora verán los obstinados secuaces del Hijo de María, que así como su Dios no envió á esos un ángel que los librase de la cuchilla del verdugo, tampoco les envía ahora lluvias para apagar la hoguera que ha de reducirlos á ceniza. Comunícase velozmente el mandato; pero ¿qué acontecimiento inesperado ha turbado de súbito al glorioso Amir? Inclina mústio la frente sobre el pecho, y su semblante se cubre de una palidez mortal: su pié vacila, acuden los suyos á sostenerle, todos le preguntan, y á nadie responde. ¡Ah! el Dios de quien acaba de blasfemar ha anudado su lengua, y el ángel esterminador ha estendido sobre él sus alas invisibles[222]. El rey altivo que habia subido á los altos miradores á gozarse en la ejecucion de su bárbaro decreto desafiando la cólera del cielo, baja á su lecho de muerte convertido en insensible tronco en brazos de sus esclavos. Acudan presto los médicos y los astrólogos; lloren las hijas, mesen sus cabellos Tarúb y Kalam[223], Ashifá y las concubinas[224], las esclavas y los eunucos; enmudezcan Algazzal y Ben Xamrí[225] y todos los cortesanos y maulis lisonjeros; abandone Zaryab su laud enriquecido, y olvide por ahora sus entretenidas aventuras... ¡Paso al cadáver del Amir, conducido al sepulcro mientras consumen las hogueras los restos de sus cuatro últimos mártires[226]!

Su hijo Mohammed ocupa el trono: para él y para todos sus consejeros son tambien meras coincidencias casuales las señales tremendas con que el Omnipotente ha hablado á los opresores. El sistema de Abde-r-rahman II continúa en pié, pero sus resultados van siendo cada vez de mas bulto: mas culto á la razon de Estado, alma de la política pagana, y mas víctimas en el hogar doméstico; mas bondad y complacencia con los sumisos, y mas tiranía con los que disienten; mas cobardía y envilecimiento en los malos cristianos, y mas entereza y heroismo en los confesores (si es posible que fuera de los límites de lo ordinario haya grados en lo maravilloso) Recafredo, Bodo, Samuel, Esteban Flaco, Hostigesio, Servando[227]: prelados sacrílegos, cristianos apóstatas, ¡cuánto llanto costais vosotros á la dilacerada Iglesia de España! Vosotros, unidos á los perseguidores, atizais la hoguera en que se purifica la fé; mas ¡ay, que entre tanto fomentais la ruina y la despoblacion, contribuís á ahuyentar á los buenos, introducís el cisma entre los perseguidos, corrompeis á los sencillos, avergonzais á los doctos, escandalizais la cristiandad! Vosotros sois los únicos autores de muchas abominaciones que la posteridad no podrá ver escritas sin rubor y confusion. No los satisface ver á los pobres cristianos echados de palacio[228], privados de estipendio los que militan, y todos en general agoviados con los tributos; ni ver derribados por tierra los templos y monasterios[229] donde quizás vosotros mismos celebrásteis el sacrosanto sacrificio. Sacrílegos, blasfemos, apóstatas, hereges, réprobos ante Dios y ante los hombres, maldecís de vuestros propios hermanos, confesores y mártires, infamais y calumniais á sus mas dignos prelados, inventais satánicos ardides para esquilmar y desustanciar á los atribulados mozárabes, haciendo tributarias las iglesias y altares para enriquecer el erario del tirano con las sagradas oblaciones del templo, y consumais con inicua farsa la deposicion de los buenos obispos. ¡Oh qué tiempos! ¡qué angustia y turbacion! «Las cárceles están llenas de clérigos; las iglesias privadas del oficio de sus prelados y sacerdotes; los tabernáculos divinos en horrenda soledad; las arañas estienden sus telas por el templo; el aire calma en un total silencio; no se entonan ya en público los cánticos divinos; no resuena en el coro la voz del Salmista, ni en el púlpito la del Lector; el Levita no evangeliza en el pueblo; el sacerdote no quema incienso en los altares, porque herido el pastor, se desparramó el rebaño: esparcidas las piedras del santuario, faltó la armonía en sus ministros, en los ministerios, en el santo lugar. ¡Y en tanta confusion solo resuenan los Salmos en lo profundo de los calabozos[230]!» Y sin embargo, ¿qué preciosa no será la fé cuando se mantiene á toda costa? ¿Qué viva cuando no se apaga en tal tormenta? Es que la fé se asemeja mas al ascua que á la llama, y mas arde mientras mas la combaten los vientos de la tribulacion.

Dios por otra parte sigue alentando á sus fieles y correspondiéndoles amoroso con recíprocos testimonios. ¡Pero cuán tremendo para sus enemigos es el modo de atestiguar del Señor de los mundos! El monarca que al estampar la huella en el solio causa una especie de frenesí de júbilo en su corte; que al año siguiente de su entrada en Córdoba en medio de entusiastas aclamaciones pudo decir con orgullo á sus enemigos «la gracia del sultan hace llover beneficios sobre las casas de los buenos vasallos, pero su cólera es capaz de coronar ochocientas almenas de sus murallas con ochocientas cabezas de rebeldes[231]; finalmente, ese rey tan halagado de la suerte en las batallas, que difundiendo el terror del nombre agareno por los estados de D. Ordoño lleva sus armas victoriosas hasta las orillas del Garona[232], no es mucho que embriagado por el incienso de las lisonjas, sea ciego como su padre á los patentes avisos del cielo. Un dia del año 871 estaba el Amir en su cámara entretenido con un esclavillo muy lindo y gracioso que tenia sobre sus rodillas. Era un dia cubierto de pardas nubes, con gran tempestad de truenos y relámpagos. El katib Abdallah ben Aasim entró para despachar, y el rey le pregunta: ¿á qué vienes en semejante dia? ¿qué podemos hacer hoy?—Señor, responde Abdallah, dicen las gentes que es bueno estar con niños cuando truena, y yo digo lo mismo:

Bueno es estar con niños—cuando retumba el trueno,
de copas y convite—el estrépito oyendo:
que gira á la redonda—el escanciano bello
mientras nubes coronan—los árboles del huerto.
¿Ves las ramas engadas—del dulce y grato peso,
que el viento las menea,—que brillan en el suelo?

Tanto agradó al rey esta improvisacion, destello genuino del materialismo horaciano, que mandó traer dulces y colacion, copas y licor Sahbá, y que viniesen los músicos y cantores. Durante el convite hacia el rey que el esclavillo provocase la verbosidad de su katib: díjole al oido que le tirase una copa á la cabeza, y el niño lo ejecutó al punto: felizmente Abdallah acertó á evitar el golpe, y esclamó: Oh linda cara, no seas cruel, que no está bien la crueldad con la hermosura: el cielo hermoso cuando sereno es muy apacible, y ahora su saña nos horroriza y espanta[233]. Sus palabras parecian un agüero. Aquel mismo dia fué Mohammed á la mezquita á la hora de la azala, y hallándose en ella arreció la tormenta: ya el trueno y el relámpago se percibian juntos, y á poco con horrísono estruendo cayó un rayo en el soberbio edificio de Abde-r-rahman I, sobre la alfombra misma en que oraba el sultan, dejando instantáneamente sin vida á dos personas de su comitiva[234].—¡Justo castigo del cielo! pensarian espantados algunos de los cristianos ocultos, que por temor de la persecucion fingian seguir de grado la vida y costumbres de sus opresores[235].—¡Allah está por el sultan! prorumpirian los muslimes mas fervorosos al ver que el rayo habia dejado ileso á Mohammed matando á su mismo lado á dos hombres. ¿Dirán estos lo mismo cuando lleguen á la envanecida corte las tristes nuevas de calamidades mayores?

El año 873 toca á su término: en Córdoba no se reciben mas que noticias de infortunios y desastres. Ha sido tan grande la sequía en todas las tierras dominadas por los islamitas, en Arabia, Siria, Egipto, África y España, que han fallado los manantiales y las fuentes, los campos no han producido frutos, y la esterilidad y carestía han sido como fabulosas. Ha muerto de hambre la gente pobre, el hambre y las aglomeraciones de cadáveres han producido una horrible pestilencia, causa á su vez de una gran despoblacion. En Arabia va quedando la madre de las ciudades desierta de sus vecinos; apenas se ve en ella mas que gente pasagera, y la Caaba está cerrada á naturales y peregrinos[236]. Viene el año 874, y con él nuevos escarmientos. El dia veintidos de la luna de Xawal, habiendo amanecido el sol claro como de costumbre, empieza hácia la hora de almagréb á moverse la tierra, con espantoso ruido y estremecimiento. Acompañan al terremoto ráfagas violentas que desploman muchos edificios, torres y alminares; envuelven la ciudad rápidas y densas nubes oscureciéndola de repente; los estampidos del trueno suenan tan terríficos y repetidos, que el pueblo congregado en la mezquita mayor se siente sobrecogido de invencible espanto. Seis musulmanes caen en pocos instantes muertos; los demas, cediendo al terror, huyen en encontradas direcciones dejando la azala interrumpida. Solo el Imam y unos pocos devotos permanecen en sus puestos. Entre tanto el huracan arranca de cuajo las arboledas seculares, la tierra se abre, desmorónanse los peñascos, muchas fortalezas y palacios quedan nivelados con el polvo: las aves abandonan sus nidos, las fieras salen de sus madrigueras, y los habitantes, temiendo ser sepultados vivos entre sus desquiciados muros, buscan en el campo abierto un refugio donde implorar la clemencia del Eterno[237].

Nunca los hombres han visto ni oido cosa semejante. Para colmo de infortunio, este mismo año sufre Mohammed una gran derrota en sus huestes toledanas y cordobesas que le obliga á solicitar la paz del rey leonés. Las armas cristianas empiezan á adquirir nuevo brillo: Alfonso III fortifica á Zamora y á Toro, funda á Porto y restaura á Chaves y Viseo; y Mohammad muere disertando como filósofo[238], mientras sus vasallos rebeldes desafian su poder como guerrero. A no ser por las enojosas disensiones ocurridas entre los cristianos, quizás el imperio islamita occidental se hubiera disuelto bajo los dos inmediatos sucesores de este Sultan.

Es muy de observar cómo se refleja en la famosa mezquita cordobesa la suerte de cada reinado. Abde-r-rahman II y Mohammad, menos afortunados con los cristianos y con los muslimes sediciosos que sus antecesores, solo dejan en ella un leve recuerdo de su pasagera grandeza. No son monarcas que conquistan y fundan: esta gloria solo pertenece á Abde-r-rahman I é Hixem; pero son monarcas conservadores, obsequiosos con la razon de estado, celosos de su autoridad, amantes del fausto y de la magnificencia; y es sabido que los reyes llamados á conservar son mas espléndidos que creadores, mas propensos al lujo y á los placeres que á los goces de las grandes innovaciones. Todo el tributo que un personage rico de medios y sin mision innovadora puede ofrecer al genio de su siglo, se reduce á derramar sus tesoros sobre las obras de los artistas. Así literalmente lo ejecutan Abde-r-rahman II y Mohammad, á cuya oriental prodigalidad debe la gran mezquita el oro que aun hoy ostenta en muchos de sus capiteles. Sus sucesores Al-Mundhir y Abdullah alcanzan el mismo destino: enérgicos y resueltos cuando se trata de hacer la guerra y de administrar justicia, nada hacen por el progreso del arte. ¿Ni cómo es posible que consagren al mundo de la belleza sus meditaciones un príncipe como Al-Mundhir, que apenas brilla cual fugaz metéoro pasando en dos años escasos de su proclamacion en Córdoba á su muerte en el campo de batalla, y un príncipe como Abdullah, su hermano, que aunque llamado á encanecer bajo el solio, vive siempre envuelto en una atmósfera de sangre y de esterminio? Ambos fueron justos, ambos valientes y generosos, piadosos y clementes, en ambos lucieron las dotes que distinguen á los grandes reyes, y sin embargo ni el uno ni el otro lograron hacer época en los anales de la civilizacion árabe-hispana. Tal vez por lo mismo que fueron mas humanos con los vencidos, mas tolerantes con los infelices cristianos mozárabes que sus jactanciosos predecesores; por lo mismo que mantuvieron con religiosidad las paces que con los reyes de Asturias y Leon ajustaron, y porque fué menos visible bajo su imperio el antagonismo de las dos civilizaciones; por eso mismo quizá palidece en cierto modo la arábiga cultura á su sombra, y á pesar del incremento que durante su administracion alcanza la riqueza pública, ningun monumento grande marca la huella de las bellas artes en sus dominios. Porque no es precisamente el oro el fomento de la noble arquitectura; no son las épocas de mayor riqueza ni los estados mas prósperos los que escogen las varoniles doncellas hijas predilectas del genio para hacer sus apariciones en la tierra: muchas veces por el contrario se complacen en visitar á las generaciones mas trabajadas por las públicas calamidades, mas menesterosas y mas faltas de sosiego, como para hacer ver á los mortales que los goces de la inteligencia no se compran, sino que solo se obtienen cuando á Dios place dispensarlos.

No busquemos, pues, en la suntuosa Aljama recuerdos de la grandeza de los sultanes despues de los tiempos de persecucion y de escándalo, de lucha y de encono, que personifican Abde-r-rahman y Mohammad, hasta que llegue el dia en que el primer Califa cordobés ponga el complemento al proyecto gigantesco del primer Amir. Diríase que al desaparecer de la escena de horrores y protestas las colosales figuras de S. Eulogio, Alvaro, Saulo, Samson y Valencio, gloriosos maestros de mártires, desaparecen con ellos los esfuerzos del islamismo fascinador. Cristianos y muslimes parecen olvidados de sus respectivos destinos: malgastan aquellos en sus discordias intestinas el fecundo calor que solo debian emplear en la santa empresa de la reconquista, y embotan en luchas fratricidas el noble sentimiento de religion y patriotismo que inspiró á sus mayores la generosa protesta de Covadonga; los mahometanos por su parte desperdician tambien en interminables guerras de partidos la energía que comunicaba antes á sus corazones el precepto de la guerra santa, y ocupados en sofocar sediciones, celebran paces cuando á sus reyes conviene con los enemigos del Islam. Cristianos y musulmanes viven por espacio de medio siglo como vecinos tranquilos, con mas paz aun de la que entre sí se conceden los hijos de una misma religion y de una misma sangre. Pero el hombre no es dueño de alterar los decretos de la Providencia, y muslimes y cristianos tienen que terminar forzosamente la obra para que fueron conducidos á acampar frente á frente en las fértiles llanuras de España. Llegará la época en que recobrando los dos antagonistas sus instintos primitivos, y ambos interiormente impelidos á ventilar la secular contienda iniciada en el Oriente, se determinen á declararse implacable guerra, aspirando cada cual á quedar dueño esclusivo del campo; y entonces volverán nuevamente á pronunciarse las facciones genuinas de los dos opuestos principios. Y entonces tomarán de cada parte el templo y el palacio, en que se reflejan la vida civil y religiosa del magnate y del pueblo, su fisonomía especial y privativa, para no volverse á confundir[239] hasta que en uno ú otro campo la soberbia mole de la civilizacion se desplome y quede reducida á escombros.

El arte musulman ha iniciado su carrera admirablemente al abrigo de las asiduas meditaciones de los dos primeros amires. ¿Cómo no habia de salir una cosa grande de un nido calentado por águilas caudales? Pero hé aquí reproducida la fábula de Leda[240], porque tambien el arte cristiano comienza á desplegar vistosas alas, cobijado por los Alfonsos y Ordoños, no menos respetables que los Abde-r-rahmanes y los Hixemes, y este, lo mismo que su émulo, aspira á la inmortalidad. Los dos fueron engendrados en la hermosa reina griega, porque en realidad es la misma musa que inspiró á los arquitectos de Pericles y de Alejandro la que revela ahora sus graciosos y nobles contornos bajo el tosco paludamento visigodo y bajo la abigarrada vestidura siria; los dos se jactan de haber sido producidos por un aliento divino, los dos se llaman hijos de Júpiter, y efectivamente tan egregias dotes ostentan á porfia cada cual por su lado, que muchos dudan cuál sea la verdadera obra inspirada por la Divinidad. Pero cuenta que el uno es Cástor, y el otro Pólux, es decir, que el uno es mortal y el otro no. El arte arábigo, formado por el consorcio de la belleza griega con la fantasía oriental, como Cástor engendrado en la union de Leda con Tíndaro, perecerá lo mismo que pereció el héroe griego, al paso que el arte cristiano, producto de la belleza antigua desarrollada en Atica y Corinto y del espíritu fecundo que la gracia de Dios comunicó á la humana mente por mediacion del Verbo, durará cuanto dure el mundo, así como es inmortal tambien el hermoso Pólux, hijo de Júpiter y Leda. Los dos artes gemelos, pues, son aventajados en belleza: los dos crecen y se desenvuelven paralelamente ricos de medios y de seduccion; y ha de llegar el dia en que á fuerza de trato y de comunicacion, se identifiquen tanto en sus gustos, que llore el uno con inestinguible llanto la prematura muerte del otro, así como Pólux lloró la muerte de su hermano y le amó hasta el estremo de cederle la mitad de su inmortalidad para que los dioses le restituyesen por intervalos á la vida.

Es muy curioso ver cómo se dispone el Cástor musulman á disputar la palma de la inmortalidad, mientras el Pólux cristiano crece bajo su sombra. ¿A quién mejor que á los tres califas cuyas imágenes van ahora á deslizarse por ante nuestros ojos, pudiera estar encomendado el desarrollo de ese poderoso vástago oriental? Ved á Abde-r-rahman el Grande, á ese esclarecido príncipe que encadena con una mano el Africa á España y con la otra sofoca las añejas rebeliones, dando al cabo de dos siglos unidad é independencia al imperio mahometano de Occidente. Es el primer Califa andaluz, el primero que toma el nombre de Miramamolin (Amiru-l-mumenin) ó gefe de los cristianos, y de defensor de la religion (An-nasir lidin-illah), y que consigue dar á su corte una magnificencia y un esplendor que igualan, si no esceden, á la pompa y gala desplegadas por los soberanos de la estirpe de Abbás. Nada faltó á su educacion para hacer de él un príncipe modelo segun las ideas de su secta. A la edad de ocho años ya sabia las máximas del Koran y las tradiciones de la Sunnah, la gramática, la poética, los proverbios árabes, las biografías de los príncipes, la política y el arte de regir los imperios. Monta á caballo con gallardía, maneja con destreza el arco y el dardo, sabe hacer uso de toda clase de armas. La fama de su grandeza se dilata por el mundo, y solicitan su amistad los soberanos de Constantinopla, de Alemania, Francia, Esclavonia, Italia, Navarra y Barcelona; los embajadores estrangeros regresan á sus córtes admirados de la cortesía y suntuosidad con que fueron recibidos: un rey cristiano destronado[241] refiere como obtuvo de él agasajadora hospitalidad, y confiesa que por su mediacion recobró la perdida salud y el trono. Con razon esclama un inspirado poeta al contemplar su grandeza: Empieza una nueva luna; ¡oh tú que por la gracia de Dios imperas, dime quién es capaz de sobrepujar tu gloria[242]! Verdaderamente se inaugura tambien para el arte una nueva era de progreso y esplendor bajo la proteccion de este Augusto de los califas: la arquitectura arábigo-bizantina llega por su impulso al cenit en su atrevida carrera: la elegante y rica ornamentacion neo-griega acaba de cubrir los garbosos lineamientos latino-pérsicos, á la razonada distribucion del ornato se agrega la magnificencia y gala de los colores y esmaltes, de los estucos y mosáicos, de los nuevos procedimientos introducidos en Córdoba por los artistas de Constantinopla, que con habilidad mágica convierten la dura pasta del vidrio y de los metales en deslumbrador brocado de oro y terciopelo[243]. Llegó ya la época de cultura y grandeza que habian soñado Abde-r-rahman II y Al-hakem I, y que ellos á pesar de su ardiente anhelo no habian podido disfrutar por no consentírselo las indómitas razas cristianas. Acabó la superioridad de Bagdad: la corte de Abde-r-rahman III brilla como brilló la corte de Al-Raschid, y la misma capital del imperio griego ha de envidiar á Córdoba sus maravillas despues de haberla ayudado á crearlas. ¡Oh siglo afortunado para los hijos del Islam! En pós de la colosal figura del Augusto cordobés vienen igualmente benéficos para su pueblo y formidables á los cristianos otros dos gigantes: Al-hakem III y Almanzor. Despues de ellos, rápida será la decadencia del Califato, porque á ningun Estado pagano le fué dado jamás clavar la estrella de su fortuna en el punto culminante de su órbita; pero en tanto que trascurren para los muslimes las bonancibles lunas de estos tres reinados, y para la España cristiana los dias de llanto y luto á que la condenan enconosas rivalidades y sangrientas escisiones; en tanto que el décimo siglo consuma su temida evolucion entre ruinas y siniestros presagios en que la cristiandad acobardada lée la sentencia de muerte de la humanidad y del mundo[244], ¡qué de prodigios, qué de fantásticas escenas va á realizar el arte sarraceno! Como un misterioso nigromante que por arte satánica evoca de la region de las sombras, contrastando con el general espanto, deliciosos cuadros que mienten los placeres del Paraiso, así la arquitectura sarracena, ese Cástor valiente é impostor de la España árabe, hace surgir antes de entonar el Califato su himno de muerte, creaciones incomparables, tales que despues de volverse á hundir en la sima de la nada, las han de tener por fabulosas las generaciones venideras.

Al pié de la quebrada sierra, al abrigo de los helados vientos del norte, y sobre una alfombra de esmeralda, lecho regalado para una sultana viciosa y mimada, nace consagrada al amor y á los placeres del mas ostentoso Califa, la peregrina Medina Azzahra: poblacion mágica en que el caprichoso arte oriental parece agotar sus tesoros, como para demostrar que la arquitectura puede con sus fábricas igualar las mas fantásticas descripciones de la poesía. A su lado, y formando con ella como un broche de dos perlas gemelas con que adorna su cinto de torres la reina de Andalucía, descuella la encantada Medina Azzahírah, magestuosamente asentada en la ribera del Guadalquivir, rodeada de deleitosas quintas y vergeles, que gozan los wazires, katibes, generales y favoritos de Almanzor, como prenda y testimonio de su liberalidad. Azzahra y Azzahírah ocupan con la galana y soberbia Córdoba, cúpula del Islam, tienda de sus guerreros, trono de los sultanes, una extension de diez millas de tierra florida, en que brotan sin cultivo el azahar y la rosa, y esas diez millas de paraiso terrenal estan de noche iluminadas por una sola hilera de fanales, tan unidos entre sí, que forman una zona de deslumbradora luz. En estas dos poblaciones y en todos los veintiun suburbios de la gran ciudad, erígense como por encanto mezquitas, mercados, baños y bazares, en que acumula el arte sus bellezas. Prodíganse sus primores, y máquinas ingeniosas de juegos hidráulicos y otros entretenimientos, en las casas de campo propias del Sultan y de los ciudadanos poderosos, notables todas por la magnificencia de su estructura ó por su deliciosa situacion[245]. Para aumentar sus seducciones el arte islamita, prohija con infraccion de la ley religiosa los recursos de la escultura como medio de reproduccion de la naturaleza animada, y aunque este poderoso auxiliar no entra declaradamente con todas sus facultades sino como un mero accesorio de la ornamentacion monumental, sin embargo los muslimes timoratos ven con escándalo campear sobre la fachada del palacio de Azzahra una estátua de muger, figuras de animales en las fuentes de sus jardines[246], en la puerta principal del palacio de Córdoba una figura de hombre, y finalmente, en el acueducto que une la sierra con la parte occidental de la ciudad, un leon colosal revestido de láminas de oro puro con dos piedras de inestimable valor en los ojos, el cual vierte por la boca las aguas traidas de la montaña en el gran depósito de la poblacion.

Observemos la accion del arte en la Aljama bajo los tres Califas, y veamos si se justifica el entusiasmo del que escribió esta jactanciosa sentencia: Córdoba sobrepuja á todas las ciudades de la tierra por cuatro cosas: por el puente que tiene sobre el Guadalquivir; por su gran mezquita; por su Azzahra, y por las ciencias que en ella se cultivan[247].

Vemos primeramente á un sabio é intrépido arquitecto del califa An-nasír[248] demoler el antiguo alminar, y levantar en su lugar otro cuya mole de considerable altura no tiene igual en el mundo por su distribucion y proporciones. Empléanse en echar sus cimientos cuarenta y tres dias, profundizándolos hasta encontrar agua. Trece meses dura la construccion de la soberbia torre, toda de piedra franca y mortero, y de tan singular artificio por dentro, que conteniendo dos ramales de escaleras en una sola caja, pueden las gentes subir por uno y otro sin verse hasta llegar arriba. Ciento siete peldaños tiene cada ramal. Esta elegante almenara que el pueblo cordobés contempla absorto, mide cincuenta y cuatro codos desde su arranque hasta la parte superior del domo abierto, al cual vuelven la espalda los almuedanes que convocan á la oracion girando por el balcon saliente, cuya graciosa balaustrada ciñe en derredor los cuatro muros como un ligero anillo; y desde este balcon corrido hasta el remate, levanta otros diez y ocho codos[249], coronándose con tres hermosas manzanas, dos de oro y una de plata, de tres palmos y medio de diámetro cada una, de las cuales parten dos gallardos lirios de seis pétalos que sostienen una granada de purísimo oro. Presenta en sus cuatro frentes catorce ventanas, la mitad con dos claros y la otra mitad con tres, formados con columnas de jaspe blanco y encarnado, y sobre las ventanas un coronamiento de arquitos macizos sustentados en columnillas del mismo jaspe. Estas ventanas comparten admirablemente el macizo de los muros, todo cubierto interior y esteriormente de preciosa tracería relevada, cuyos lindos dibujos es imposible describir. Al recibir la noticia de que está terminada la obra, acude An-nasír presuroso desde su predilecta mansion de Medina Azzahra, sube á lo alto de la torre por una escalera bajando por la otra, y despues de examinar cuidadosamente el edificio, pasa al Maksuráh de la mezquita, hace dos arracas, y se retira complacido. Con razon puede estarlo, porque la mezquita Aljama de su Córdoba es ya un verdadero tesoro del arte arábigo-bizantino. El emperador Constantino porfirogénito, cuya corte dirige la marcha del arte en Oriente y Occidente, se esmera en proporcionar á la capital del Califato nuevas seducciones, sin creer desdorada su dignidad por convertirse en joyero de la Sultana del Bétis[250]. Todos los demas emperadores y reyes que directa ó indirectamente reciben de Constantinopla ideas de buen gusto y magnificencia, trasmiten tambien á la poderosa corte de Andalucía los frutos hermosos de aquellos trasplantados gérmenes[251]. Hoy es una de las primeras dignidades de la Iglesia Bética el encargado de trasladar desde el asiento de la reina del Bósforo al encantado palacio de Azzahra, las primorosas esculturas que admiran con mezcla de placer y de escándalo los rígidos observadores del Koran[252]; mañana es nada menos que un santo, procedente de uno de los mas austeros cenobios de Alemania, el comisionado para llevar al temido Califa los esquisitos productos del arte germánico[253]; un obispo Eliberitano, mandado consagrar por el mismo Abde-r-rahman, es luego el elegido para promover y fomentar ese comercio y correspondencia mútua de las dos civilizaciones cristiana é islamita[254]; finalmente, la Córdoba de An-nasír es el emporio de las artes, los ingenios de los paises mas adelantados acuden á ella poniendo á competencia sus creaciones, y todo lo grande, todo lo bello, todo lo primoroso del arte monumental en Asia, en Africa y en Europa, deja su sello, su ofrenda y su tributo en la soberbia Caaba de los Umeyas.

PUERTA DE LAS PALMAS.

Catedral de Córdoba.
PUERTA DE LAS PALMAS.
Catedral de Córdoba.

Y sin embargo el fervoroso entusiasmo de Al-hakem encuentra todavía nuevos medios de embellecimiento: resuelve prolongar las once naves ciento cincuenta piés más hácia el mediodia, construyendo un santuario que no tenga igual en el orbe. Dejemos á un historiador árabe[255], cuya autorizada voz suena hoy por primera vez en nuestro idioma vulgar, referir la meritoria reforma de este Sultan. «Lo primero que hizo Al-hakem, luego que sucedió en el Califato, fué ocuparse en aumentar y hermosear la mezquita Aljama de Córdoba. Fué este el primer acto de su gobierno, encargando la inspeccion de las obras á su hagib y espada de su estado Chaâfar ben Abde-r-rahman, el Eslavo, por decreto espedido á cuatro dias por andar de la luna de Ramadhan del año 350 (961 de J. C.) al dia siguiente de haber sido jurado Califa. En el decreto se prevenia al mencionado Chaâfar que comenzase por hacer los acopios de piedra necesarios para los cimientos; y así fué que el acarreo comenzó en la misma luna de Ramadhan. Habíase el alcázar de Córdoba llenado de gente[256], de manera que á las horas de la azala la mezquita no podia contenerla, y los asistentes se apretaban y atropellaban por falta de espacio. Al-mustanser[257], pues, se dió prisa á la construccion del nuevo edificio que se habia de añadir, y salió en persona de su alcázar para hacer las mediciones y trazar la construccion, llamando para que le asistiesen en dicha operacion á los maestros y geómetras, los cuales trazaron el nuevo edificio desde la quibla de la mezquita hasta lo último del atrio, cogiendo esta añadidura en su longitud las once naves. Tenia de largo lo añadido noventa y cinco codos de norte á mediodia, y de ancho de oriente á occidente otro tanto, como el ancho de toda la mezquita. De esto cortó el pasadizo del alcázar, destinado para la salida del Califa á la azala, al costado del mimbar, dentro de la Maksuráh, con lo cual el nuevo edificio llegó á ser la mas hermosa añadidura jamás hecha á mezquita alguna.»

«En el año 354 se terminó la obra de la cubba[258] que coronaba el mihrab en la parte de la mezquita que añadió Al-hakem. Fué esto en la luna de chumada postrera.»

«En el mismo año se comenzó á colocar el sofeysafá[259] en la mezquita Aljama de Córdoba. Habia el emperador de los griegos regalado á Al-hakem una porcion de aquella manufactura, y este le habia escrito rogándole le enviase tambien operarios, tomando ejemplo de lo hecho en una ocasion semejante por Al-walid ben Abde-l-malek, cuando estaba construyendo la mezquita de Damasco. Volvieron, pues, los embajadores que Al-hakem envió al emperador griego, trayendo consigo un artífice y ademas trescientos veinticinco quintales de sofeysafá que aquel príncipe le mandaba de regalo. Al-hakem mandó luego hospedar convenientemente al artífice griego, y proveerle de todo lo necesario con la mayor abundancia; lo cual hecho, dispuso que varios de sus esclavos trabajasen con él á fin de instruirse en su arte. Hiciéronlo así, ayudándole en la colocacion del sofeysafá traido del Oriente, y aprendiendo con aquel maestro hasta lograr perfeccionarse en dicha industria y trabajar por sí solos, como lo verificaron luego que el maestro se volvió á su tierra, pues Al-hakem le despidió por no necesitar mas de él, con muchos regalos de vestidos y otros objetos. Por lo demas, en la añadidura de Al-hakem compitieron y rivalizaron los maestros mas afamados de toda la tierra.»

«Del 10 al 20 de Xagüel del citado año cabalgó Al-hakem de Azzahra á la mezquita de Córdoba, y entró en ella, y examinó detenidamente las obras, y lo que ya estaba concluido. Luego mandó recoger las cuatro columnas que estaban antes sirviendo de jambas á la puerta del antiguo mihrab, y que se custodiasen en lugar seguro para colocarlas en el nuevo, que por su mandato se construía á la sazon con la mayor perfeccion y solidez. Eran las cuatro columnas de incomparable hermosura en su género.»

La historia de lo construido por órden de Al-hakem es en todo notable. Mientras se estaba haciendo la obra, se suscitó una acalorada disputa entre los arquitectos respecto del punto hácia el cual debia mirar la quibla, con objeto de colocar el nuevo mihrab ó santuario donde debiese estar realmente. Unos pretendian que debia estar al sur como habia estado siempre, y como la habia situado An-nasír en su mezquita de Azzahra; al paso que los mas entendidos en matemáticas y astronomía sustentaban que debia fijarse un tanto inclinada hácia el oriente[260]. Divididos así los pareceres, el faquíh Abú Ibrahim se presentó á Al-hakem, y le dijo: ¡Oh príncipe de los creyentes! Todas las gentes de esta nacion han vuelto constantemente sus rostros al sur al hacer sus oraciones: los Imames que te precedieron, los doctores, los cadíes y todos los muslimes en general, dirigieron siempre sus miradas al sur desde los tiempos de la conquista hasta hoy: al sur inclinaron siempre todos los tabíes como Musa Ibn Nosseyr y Haush As-san'aní (¡Dios los perdone!) las quiblas de cuantas mezquitas erigieron en esta region. Recuerda, oh príncipe, aquel proverbio que dice: mejor es seguir el ejemplo de los otros y salvarse, que perderse por no seguir la senda trillada. Oido lo cual, esclamó el Califa: ¡Por Allah, dices bien! Seguiré el ejemplo de los tabíes, cuya opinion en esta materia es de gran peso. Y mandó que la quibla se pusiese donde el faquíh proponia.

Erigióse entonces el santuario al estremo de la prolongacion de las naves, en la central como habia estado siempre, mirando exactamente á mediodia. Entre el muro interior del sur y el muro esterior reforzado con torreones, se dejó un espacio de unos quince piés, que se dividió en once compartimientos correspondientes á las once naves de la mezquita; el del centro se destinó al santuario, y los de los lados se reservaron para habitaciones de los ministros del culto y otros usos. Quedaba de este modo el Mihrab en la mitad justa del lado del sur, con dos alas iguales una á cada lado. En el ala de occidente habia un pasadizo secreto, que conducia desde la mezquita al alcázar por medio de un arco que unia ambos edificios, pues el palacio que habitaban en Córdoba los califas se dilataba hasta muy cerca del templo por el lado de poniente. Este pasadizo, cuyas puertas estaban artificiosamente dispuestas[261], sin duda para la mas completa seguridad del alcázar y de la mezquita, abria paso á lo interior de la Maksurah, recinto suntuoso y reservado, que por los tres lados de oriente, norte y poniente, comunicaba con las naves cortando tres de estas en su longitud, y por el mediodia formaba cuerpo con el muro interior de la mezquita. Era la Maksurah un lugar privilegiado, cerrado en contorno por una especie de cerca ó verja de madera, primorosamente labrada por ambas haces interior y esterior[262]: estaba coronada esta preciosa cerradura de almenas, para que por su destino de cortar toda comunicacion entre el Califa y el pueblo imitase mas propiamente la forma de una muralla. Esta magnífica armazon, de veinte y dos codos de altura hasta su remate, daba su nombre á la parte de fábrica que ocupaba, mas magnífica aun que su contenido y que el nuevo trozo de la nave central que iba desde la antigua hasta la moderna quibla, que era rico en sumo grado por las labores y dorados de sus capiteles y pilastras[263]. La fábrica en que se armaba la Maksurah propiamente dicha formaba en su planta un gran rectángulo partido en tres, casi cuadrados, sobre los cuales se levantaban tres domos bizantinos de peregrina esbeltez. El domo de enmedio servia como de vestíbulo al santuario, y era de los tres el mas sorprendente por sus proporciones, perfiles y decoracion. ¿A qué deciros lo que era? Esta parte de la mezquita se conserva en lo principal; mejor pues os referiré lo que todavía es para asombro y mengua del arte moderno. Figuraos un recinto donde la solidez de la construccion, las dificultades mas grandes del arte y los cálculos de la ciencia, se hallan tan admirablemente disfrazados, que el conjunto que se ofrece á la vista aparece como una concepcion fantástica que no puede subsistir. Nueve siglos de existencia tiene ya, sin embargo, esta especie de creacion poética, que mas que una construccion de piedras, mármoles y mosáicos, columnas, arcos, impostas, zócalo y cúpula, se creeria una morada encantada, aérea é impalpable, labrada por las fadas del Oriente; y no hay el menor indicio de que tan maravillosa fábrica no pueda durar aun otros nueve siglos en igual estado. Estriba toda la mole en una especie de cámara claustreada con una tan sutil arquería, que las columnas parecen las varas del pabellon de una princesa tártara, y los arcos inferiores que de unas á otras voltean, festones de recamadas cintas, primero apretadamente arrolladas, y dispuestas luego en forma de aspa, entregadas á sus naturales ondulaciones, solo prendidas por las estremidades. Digna hubiera sido esta peregrina decoracion del vestíbulo del palacio de Malek Johanna en Susa aun para el dia de boda de una de sus hijas[264]. Sobre los arcos de festones, ó propiamente hablando angrelados, que se cortan como queda dicho formando un aspa dentro de cada intercolumnio, se elevan siete graciosos y leves arcos de herradura, que muriendo en el muro de mediodia, cierran el cuadro y terminan el cuerpo bajo del suntuoso vestíbulo que describo. Encima de esta doble arquería, en que las esbeltas columnillas superiores se representan como lindos y ágiles mancebos circasianos encaramados en hombros de esclavos indios con las ballestas levantadas, corre una imposta, labrada y ligera, que abraza y corona los cuatro frentes y divide la fábrica del domo en dos zonas, alta y baja, esta cuadrangular, aquella de distinta forma, segun vas á ver. Sobre esta imposta que acabo de mostrarte descansan gráciles columnillas emparejadas, volteando grandes y atrevidos arcos semicirculares, con tal arte dispuestos, que parecen imitar sus curvas guirnaldas entrelazadas de un corro de hermosas odaliscas, porque los arcos voltean, no desde cada columna á la correspondiente de la pareja inmediata, sino dejando la pareja inmediata en claro: de este modo, siendo dos las parejas de columnillas que estriban en la imposta en cada frente, se forman en el espacio ocho arcos torales, en dos grandes cuadriláteros contrapuestos, sus arranques se cruzan formando ocho puntas de estrellas (prosáicamente diriamos pechinas), y en el centro resulta un anillo octógono con ocho graciosas caidas como prendidas á los capiteles de las ocho parejas de columnas. Entre punta y punta, un elegante arco ultra-semicircular, al cual se adapta una tabla de alabastro calada, deja á la vista paso dudoso al azul del cielo; con esto, ostentando la cúpula que sobre el octógono y sus pechinas se levanta un verdadero prodigio del arte mosáica por los dibujos y vivos esmaltes con que en ella se fingen las mas preciadas estofas del Asia, el domo bizantino reproduce á la imaginacion del que absorto lo mira una ligera tienda de campaña de sedas, lino y oro, fija en tierra con ocho varas dobles colocadas en círculo, henchida por un recio viento, y como tirando para desprenderse y alzarse rápida á la region de las nubes. Parecida á esta concibe la mente enardecida con las maravillosas descripciones de las leyendas orientales, las tiendas de Baharam Gur y de los ostentosos reyes del Catay.

CAPILLA DEL MIHRAB, desde un angulo (Catedral de
Cordoba)
CAPILLA DEL MIHRAB, desde un angulo
(Catedral de Cordoba)

CAPILLA DEL MIHRAB.; (Catedral de Cordoba.)
CAPILLA DEL MIHRAB.
(Catedral de Cordoba.)

Por entre la elegante arquería que mas que sostener el domo parece pender de él, como penden de un chal de Persia sus entretejidos caireles, y que á los ojos esperimentados de un famoso viajero del siglo XII era superior por la delicadeza de su ornato á las mas esquisitas producciones del arte griego y musulman[265], aparece al fondo la sorprendente fachada del Mihrab[266], que cuando recibe los reflejos del sol poniente brilla como un paño de brocado cuajado de pedrería, y que debia deslumbrar como la vision de un palacio encantado de lapislázuli, oro, carbunclos, rubíes y diamantes, cuando en el mes de Ramadhan ardian bajo aquella esmaltada cúpula las mil cuatrocientas cincuenta y cuatro luces de la lámpara mayor y el gran cirio de sesenta libras que lucía al lado del Imám[267]. Esta fachada, á pesar de su imponderable riqueza, no presenta la menor confusion: todas sus líneas estan trazadas para servir de ornato y realce al arco que dá entrada al santuario, pues no tiene mas partes que estas: el arco con su espaciosa archivolta, sus jambas lisas con columnillas entregadas en su grueso, su arrabá[268] contornado de grecas, y una ligera arquería sin vanos en la parte superior, sobre cuyo macizo descansa la imposta que divide los dos cuerpos alto y bajo del domo[269]. Pero es tal la profusion y galanura del ornato de cada una de estas partes, que es preciso renunciar á pintarla con la pluma. ¡Qué dovelas, qué archivolta, qué enjutas, qué tableros, qué recuadros, qué arquería trebolada, qué tímpanos, qué entrepaños! Y despues, ¡qué deliciosa combinacion de las grecas con los follages persas y bizantinos, y con las figuras geométricas! No son estas últimas, sin embargo, las que mas campean, como sucede luego en la degenerada ornamentacion propiamente musulmana; lo principal ahora son las grecas, mas ó menos sencillas, unas de garbosos vástagos con sus hojas formando postas, otras de caprichosas ajaracas en que los troncos y las folias, la palmeta griega y el loto asirio, el lirio y el tulipan, las piñas, las flores de ojos y los contarios, se combinan de mil diversos modos, trazando siempre los tallos y las hojas las mas graciosas curvas, y el todo reunido las mas elegantes cenefas, la mas caprichosa tracería. Añádase que esta ornamentacion está toda ejecutada sobre mármol delicadamente esculpido, ya desnudo y blanco, ya revestido de menudísimo mosáico de diversos colores cuajado con vidrio y oro; que las inscripciones cúficas que se leen en ella alternando con el luciente sofeysafá son tambien de oro sobre fondo encarnado ó azul ultramarino; finalmente, que las columnillas de los dos cuerpos alto y bajo son de mármol con los capiteles dorados; y si ademas teneis á la vista el dibujo de este bellísimo vestíbulo, os podreis formar una leve idea de la creacion mas maravillosa que existe del arte árabe-bizantino, y del arrobo que produce en el alma del que en su original la contempla. En el grueso de cada jamba del arco de entrada al santuario hay dos columnillas, una de mármol negro y otra de jaspe, con capiteles de mármol blanco prolijamente esculpidos. Si no le engañó á Al-Makkarí su ciego entusiasmo, estas cuatro columnillas fueron antiguamente dos de jaspe verde y dos de lapislázuli. Sobre ellas asienta á modo de cimacio una imposta de donde arranca el arco, y en ella se lée en caractéres cúficos de oro sobre fondo encarnado una inscripcion partida en tres cenefas ó listones. Unidos ambos lados, dice así: «En el nombre de Dios clemente y misericordioso: dése alabanza á Dios que nos dirigió á esto, á que no podríamos por nosotros ser dirigidos si no nos hubiera dirigido Dios, á cuyo fin vinieron á nosotros los legados de nuestro Señor con la verdad. Mandó el pontífice Al-mostanser Billah Abdallah Al-hakem, príncipe de los creyentes (favorézcale Dios), á su presidente y prefecto de su cámara Giafar ben Abde-r-rahman (complázcase Dios en él) añadir estas dos columnas, despues que lo fundamentó en el santo temor de Dios y su beneplácito. Concluyóse esta obra en el mes de Dhilhagia, año 354 (965 de J. C.).» Esta inscripcion parece dar á entender que de las cuatro columnillas que hoy se ven entregadas en el grueso de las jambas que sostienen el arco de sofeysafá, dos fueron mandadas poner por Al-hakem, y las otras dos pertenecian al antiguo Mihrab que se habia demolido para prolongar la mezquita; pero ¿quién es capaz de decir hoy si fueron las de mármol negro ó las de jaspe las que se añadieron por órden de tan magnífico Califa, ó si realmente podrian ser de lapislázuli, juzgándose este inestimable congiario digno de perpetuarse en caractéres de oro? Solo Dios lo sabe.

(Córdoba.);
ÁNGULO DE UNO DE LOS TABLEROS DEL ZÓCALO DEL MIRHAB.;
Piezas de marmol de siete pies.
(Córdoba.)
ÁNGULO DE UNO DE LOS TABLEROS DEL ZÓCALO DEL MIRHAB.
Piezas de marmol de siete pies.

El santuario es un pequeño recinto heptágono con pavimento de mármol blanco, zócalo formado por siete grandes tableros de lo mismo, arquería ornamental, y bóveda tambien de mármol, labrada de una sola pieza en figura de concha, orillada de una elegante moldura. Los seis lados de fábrica del heptágono, pues el sétimo lo ocupa el vacío que sirve de ingreso, estan decorados con preciosos arcos trebolados sostenidos en columnillas de mármol con capiteles dorados de esquisito trabajo; y estas columnillas descansan en una cornisa bajo cuyos módulos corre una faja de caractéres dorados esculpidos en el mismo mármol de las tablas que componen el zócalo ó subasamento. Dentro de este santuario se custodiaba el famoso mimbar de Al-hakem II, que era una especie de púlpito ó reclinatorio, al cual aseguran los historiadores árabes que no habia otro en el mundo que se igualase, por la materia de que estaba construido y por su trabajo. Era de marfil y de las maderas mas preciosas, como ébano, zándalo rojo y amarillo, bakam, aloe de la India, limonero y otras; costó 35,705 dineros y 3 adirhames[270]. Tenia nueve escalones ó gradas. Asegúrase tambien que estaba compuesto de treinta y seis mil piececitas de madera, unidas entre sí y realzadas con clavos de plata y oro, y con incrustaciones de piedras preciosas. Su construccion duró siete años, empleándose en él diariamente ocho artífices. Este púlpito, que por lo visto era de mosáico de madera, pedrería y metales, de gran prez, estaba reservado al Califa, y en él se depositaba tambien el objeto principal de la veneracion de todos los muslimes de Andalucía y Almagreb[271], que era una copia del Koran que se suponia escrita por Othman, y aun manchada con su preciosa sangre. Guardábase este ejemplar en una caja de tisú de oro sembrada de perlas y rubíes, cubierta con una funda de riquísima seda encarnada, y se ponia en un atril ó facistol de aloe con clavos de oro. Su peso era estraordinario, tanto que apenas podian entre dos hombres sostenerlo; colocábase en el mencionado púlpito para que el Imám leyese en él el Koran á la hora de la azala, y concluida la ceremonia se sacaba de allí y se llevaba á otro parage, donde permanecia cuidadosamente guardado con los vasos de oro y plata destinados á la iluminacion del mes de Ramadhan[272]. El parage que segun las ligeras indicaciones de Edrisí servia de tesoro era una especie de capilla que hoy se levanta en sitio inmediato al antiguo Mihrab al norte de la actual Maksurah, parte de otro espacioso y magnífico recinto que interceptaba la nave central y las dos laterales adyacentes, y donde se armó sin duda la Maksurah antigua por disposicion de Al-hakem. De este modo puede suponerse que quedando el cuarto mas noble de la mezquita completamente cerrado al pueblo por ambos lados de norte y sur con las dos Maksuras, y ocupada esta seccion por los principales personages de la corte y oficiales palatinos, no sería fácil que se cometiese ninguna irreverencia en la persona del Imám ni en el venerado Mushaf[273] cuando este era sacado ó restituido al tesoro por dos ministros y un tercero delante llevando un cirio encendido[274]. Quedaban las dos Maksuras una enfrente de otra, y ambas á dos comprendian el mismo espacio, al menos en su longitud de oriente á poniente, puesto que interceptaban las tres naves del medio de las once que la mezquita tenia. Ambas Maksuras ó canceles se han perdido: hoy ni siquiera podemos formarnos una idea cabal de su dibujo; lo que se conserva casi intacto de aquel tiempo es ese suntuoso recinto de tres capillas que ocupaba la Maksurah de Al-hakem; y del recinto que ocupaba la Maksurah antigua, que el propio Califa mandó armar, solo existen dos capillas desfiguradas, la de la nave mayor y la de la contigua á oriente[275]. Esta última se hallaba dividida en dos partes, alta y baja, por un piso de unos cuantos piés de elevacion sobre el suelo de la mezquita: en lo alto se hacia la alicama ó pregon interior para la oracion, y en la parte baja, que hoy aun se conserva en forma de covacha ó capilla subterránea, estaba el tesoro. En la capilla del centro, hoy capilla de Villaviciosa, tenia su sitio reservado el Califa cuando no hacia de Imám, y en la de Occidente, que ya no existe[276], se veía el puesto del Cadí de la Aljama. De la decoracion interior de estas tres capillas cerradas por la antigua Maksurah, nada puedo, benigno lector, referirte, porque ni la soberbia sacristía de Villaviciosa, ni mucho menos la capilla de nuestra Señora de este nombre, eran en tiempo de Al-hakem lo que son ahora: por la decoracion del Mihrab que ligeramente te he bosquejado, podrás forjarte á tu gusto ó dejar en tinieblas las bellezas que yo suprimo. De la decoracion esterior tan solo se conserva de aquella época la arquería que hace frente al Mihrab, semejante en un todo á la de la fachada de su vestíbulo, donde si te place volverás á representarte una atrevida suerte gimnástica de esclavos indios y saeteros circasianos, ó lo que mas te cuadre segun los recuerdos que se despierten en tu mente.

Obras de este género en ninguna parte se construían mas que en Córdoba: nunca, cristianos ni muslimes, habian visto creaciones artísticas semejantes; así que, unos y otros contemplaban absortos el Mihrab y sus mosáicos cuajados de cinabrio, lapislázuli y oro, el vestíbulo y sus tres elegantes cúpulas lanzadas gallardamente al espacio, el domo principal reverberante y deslumbrador suspendido en el aire sobre un sutil anillo de puntas, la nueva Maksurah y su soberbia talla, las encintadas arquerías de los dos recintos coronados de cimborios, las puertas de oro, el pavimento de plata[277], la nave de tracería dorada, el mimbar de maderas aromáticas. Todos confesaban que ni en Constantinopla, ni en Damasco, ni en Aquisgran habia maravillas semejantes... Y sin embargo el poderoso Titan mahometano no se dá por satisfecho. Parécele á Al-hakem que las fuentes del patio de las abluciones no corresponden á la grandiosidad de la mezquita, y manda colocar en él cuatro magníficas pilas de una sola pieza, dos para las mugeres á la parte de oriente, y dos mayores para los hombres á occidente; pero quiere que estas pilas mayores asombren por su tamaño y vengan labradas de la misma cantera de la sierra. Empleáronse en esta obra digna de romanos mucho tiempo, mucha gente, muchísimo dinero; mas se ejecutó con felicidad, y la muchedumbre atónita vió llegar lentamente por un plano inclinado, espresamente construido, hasta el lugar destinado en el atrio de la mezquita, las dos enormes pilas, una tras otra, en fuertes carras de roble hechas al intento, y tiradas cada una por setenta robustos bueyes. Tomóse para los cuatro pilones el agua del acueducto erigido por Abde-r-rahman II, depositándola en un gran recipiente revestido de mármol: corria dia y noche, y lo que sobraba, despues de empleada en los menesteres de la mezquita, se distribuía por tres cañerías que iban á surtir otras tantas fuentes públicas en los tres muros de norte, oriente y poniente del edificio.

Con estas grandiosas empresas se entretenia el arte musulman en España cuando espiraba el décimo siglo para la cristiandad y con él el entusiasmo artístico en los reyes y pueblos del Occidente. ¿Y qué mucho? La Europa cristiana se hallaba ceñida como por un anillo de hierro y fuego: por el norte los normandos, por mediodia y oriente los mahometanos, la estrechaban con nueva furia. Los monasterios se trocaban en fortalezas, y al divisar de lejos en el horizonte la polvareda de los escuadrones ó los dragones de los bárbaros, los pobladores se guarecian entre sus muros; cerrábanse las puertas, acudíase á las armas, y todos se aprestaban á la defensa ó á las salidas. Para elegir un abad se echaba mano del personage mas temido de la comarca; por otra parte los magnates ambicionaban los bienes de la iglesia, la mitra y el báculo, y los conseguian en cambio de su protectorado. De aquí desórdenes irremediables, violacion de reglas, desprecio de los cánones, olvido de los estudios, depravacion del clero, ignorancia universal. Abandono de las ciencias, de las letras, de las artes, de la oracion y del recogimiento, que son sus fuentes fecundas, todo se esplica perfectamente en el décimo siglo, y bien se comprende que en vista de la desorganizacion presente concibiese la humanidad temores de ruina general y muerte. Lo único que humanamente no se esplica es que el espíritu cristiano, el espíritu de regeneracion y vida, resistiese á tantos embates, y que en el momento de hacer lugar aquel caos al primer crepúsculo de luz, aun hubiese santos en la tierra.

Va pues á cerrarse el primer milenario del cristianismo. La cristiandad, semejante á Israel al pié del Horeb y del Sinaí, espera la voz de Dios prosternándose con vagos terrores y estremecimientos. El mahometismo gárrulo y triunfante se arma de nuevo contra la cruz: al sabio y pacífico y sensual Al-hakem sucede el intrépido, osado y duro Almanzor; y con él nuevas desolaciones para los cristianos de España, nuevas derrotas, nuevas cadenas; y nuevas conquistas, nuevos trofeos para los sectarios del Islam. La monarquía asturiana y leonesa, tan llena de gloria antes, cubierta de oprobio ahora por el forzado reconocimiento de Castilla como condado independiente, y por haber trabado alianza con los infieles para domar á sus vasallos sediciosos, cree llegada su hora postrera: el victorioso Almanzor pasea por ella sus banderas triunfadoras y nunca humilladas, invade las marcas españolas, apodérase de Barcelona, conquista á Leon forzando sus montañas y obligando al enfermizo Bermudo á refugiarse en Oviedo con sus tesoros y reliquias, entra en Galicia asistido de caudillos cristianos traidores que reciben del pródigo hagib pingües remuneraciones[278], alarga la pujante mano á Santiago de Compostela, á la famosa Caaba de los bautizados de Occidente, y vuélvese á Córdoba á ocupar con magestad el usurpado trono, haciendo que los míseros vencidos acompañen á sus veloces ejércitos llevando en hombros las campanas bendecidas del gran templo profanado. Cataluña, Leon y Galicia, sufren alternativamente el tremendo azote: no hay año en que el Atila del décimo siglo no alcance contra los reyes de la trabajada España una ruidosa victoria. Todos los años al abrirse en los campos los rojos botones de las primaverales amapolas, tiene tambien que abrirse á impulso de las lanzas y saetas bereberes la ancha vena de la fecunda sangre cristiana; y hay años en que sobre la misma nieve dura el rojo matiz en el campo desde una á otra primavera, si por acaso al recogerse sus huestes á cuarteles de invierno, se encuentran con bandas enemigas asaz temerarias para cerrarles el paso de los montes[279]. ¿Quién creerá, sin embargo, que no es la monarquía cristiana la que sucumbe, sino el Califato cordobés? ¿Quién podrá imaginarse que no va á ser el Catolicismo sino el Islam el que salga herido de muerte en los campos de Calatañazor? Este resultado, no obstante, podia preverse: la molicie de la vida oriental iba enervando insensiblemente á los árabes andaluces. No es ese terrible Almanzor, no, la verdadera personificacion del Estado cordobés: advertid que no es él el Califa, sino un mero hagib; el Califa es el afeminado é impotente Hixem II. Vedle ahí, y no confundais al uno con el otro, que son hombres de temple muy diverso. Ese que por única vez en muchos años quizá se presenta hoy á vuestros ojos saliendo de Córdoba á una hora insólita, cabalgando en compañía de algunas mugeres, entre una numerosa escolta de guardianes mas que guardias de honor, que so pretesto de dejarle espedito el camino ahuyentan á todos los viandantes y gente curiosa para que no se acerquen á su persona, ese es el Califa reinante, último vástago de los degenerados Umeyas. Observad como él y sus mugeres van para no ser conocidos encubiertos con ámplios albornoces, con los capuchones calados sobre los ojos. La escolta entre la cual va como preso, aunque satisfecho el menguado, no obedece mas voluntad que la del déspota Almanzor, y cuando le haya dejado solazarse unas cuantas horas entre los arrayanes y cipreses de la quinta regia, adonde ahora le conduce, volverá á depositarlo en su alcázar, como se deposita en su joyero una rica insignia de que se ha hecho el uso oportuno en una pública ceremonia. De todos los atributos de la soberanía no conserva ya ese desdichado mas que el de estampar su nombre en la moneda y en la franja de su vestidura. Desentendiéndose del belicoso tráfago que repugna á sus instintos, y desconociendo la índole de la agitacion que causan en su Estado los numerosos ejércitos de berberiscos, egipcios, mamelucos, esclavos y renegados, que dirige el usurpador de su autoridad, pasa la indolente é inútil vida en los brazos de sus sultanas y concubinas, encerrado en sus palacios y jardines. ¡Cuán diverso su omnipotente ministro! Ceñido siempre el arnés de batalla, no dá punto de reposo á los enemigos del Islam, y mientras el Califa se hunde con la gloria de los Umeyas en su lecho de flores, hace él que sus soldados recojan cuidadosamente despues de cada refriega el polvo de sus arreos militares para que á su muerte no le sepulten en otra tierra que la recogida en sus innumerables victorias. Mas, ay, que la sangre africana, aunque enciende la pupila y ennegrece las manos[280], es impotente para regenerar lo que los vicios asiáticos han corrompido. Las victorias de Almanzor solo significan que el poder pertenece momentáneamente á las razas bereberes, pero que el astro del Islam, antes deslumbrador, se aproxima á un ocaso preñado de tempestades. Sus terribles invasiones y conquistas son los sacudimientos convulsivos de un moribundo que se cree lleno de juventud y vida porque rompió unas miserables ligaduras. Sujétenle como es debido, unan sus esfuerzos renunciando á mezquinos odios esos príncipes cristianos que separados son nada, y cuyos brazos juntos pueden encadenar á ese rabioso gigante, y se verá repetida en la última batalla que este les presente la lucha de Hércules con Anteo.

Tambien el arte musulman tiene que espirar sofocado por el arte cristiano, como muere, cuando el grano de mostaza se convierte en árbol robusto, la débil planta que al brotar le daba sombra. Pero antes de que esto se verifique hará nuevos esfuerzos para asegurarse la vida: se trasformará, intentará seducir como fantástica decoracion, y para perpetuarse al amparo del engaño, fingirá que renuncia á la condicion de monumental y que solo aspira, fiel compañero de los refugiados en Granada, á permanecer con ellos sirviéndoles de leve y lujosa tienda real el tiempo que tarden en verse repelidos allende el estrecho.

Esfuerzos de un arte que declina, sacudimientos de un Estado moribundo, todo lo personifica Ben Abi Aamir Almanzor, cuyo anhelo es sellar una gloriosa protesta contra la inevitable decadencia del Califato, entre los cristianos con sus triunfos, entre los muslimes con sus grandes construcciones. Sus magníficos palacios y dorados pabellones igualan, si no sobrepujan en riqueza, á los construidos por los sultanes Umeyas. Azzahira se levanta en pocos años en la frondosa ribera del Guadalquivir emulando las portentosas construcciones de Azzahra; agrúpansele en torno las deliciosas quintas de los wazires, katibes, generales y cortesanos; puéblanse de torres, granjas y jardines, todos los terrenos hasta ahora no cultivados de la sierra y de la campiña, y la Aljama de la capital, notablemente engrandecida, va á ostentar como trofeos del mahometismo triunfante los despojos de la mas rica catedral cristiana clavados en su techumbre. En efecto, las campanas de la arruinada basílica de Santiago penden ya de sus poderosos trabes, mutiladas y mudas, sirviendo de lámparas al culto del Koran despues de haber proclamado con sus clamorosas lenguas el culto del santo apóstol: las chapadas puertas del mismo profanado templo yacen tendidas sobre las pintadas vigas de alerce[281]; la gran catedral de Compostela, abierta, saqueada, llena de escombros, solo habla de ruina y desolacion á los devotos peregrinos de lejanas tierras; y la mezquita de la orgullosa corte musulmana se ostenta ensanchada, enriquecida, pintada, embellecida con mármoles y mosáicos, y esmaltes, y doradas cúpulas, y maksuras, y alfombras y un cuento de luces, y embalsamada con el azahar, el ambar-gris y el aloe, y ceñida con su cinto de torres, y festonada con sus dentadas almenas, y guardada con sus ricas puertas de piedra, estucos, mosáicos y bronces, y finalmente, hecha oasis, no de un desierto, sino de un paraiso, con las murmuradoras fuentes y los olorosos naranjos y las esbeltas palmeras de su atrio pensil. ¿Quién no habia de temer, si no el fin del mundo, por lo menos el fin del cristianismo?

Mientras el rey Bermudo, resuelto á no ver repetida en mengua propia la pérdida que afrenta la memoria de Rodrigo, vence el desaliento, olvida sus achaques, triunfa de vanos terrores, hace el noble sacrificio de sus enojos y resentimientos, y procura reducir los inquietos ánimos del castellano y del navarro á una poderosa liga contra el formidable enemigo de la cristiandad, Almanzor pone en Córdoba el complemento á su gloria terminando las obras de la mezquita. Hacia ya algunos años que la Aljama habia recibido el ensanche con que hoy se conserva, y por ser esta la última modificacion hecha por los califas en el gran templo sarraceno, referiremos su causa y modo segun de los historiadores árabes se colige.

Habiéndose aumentado el vecindario de Córdoba con las cabilas enteras que á ella acudian de la costa de Berbería y otros puntos de Africa, y creciendo cada vez más en importancia y esplendor la corte de los califas, no bastaban ya los arrabales y las afueras de la capital para contener esta superabundancia de poblacion, ni tampoco la mezquita Aljama era suficientemente espaciosa para que cupiesen en ella los fieles que se agolpaban á la oracion los dias de juma. Ideó pues Almanzor ensancharla por la parte de oriente, no pudiendo verificarlo por la de poniente por la demasiada proximidad del alcázar, que convenia conservar separado de la mezquita, y lo primero que hizo fué ganarse las voluntades de los dueños de las casas y almacenes que habia que derribar por aquel lado, ofreciendo indemnizarles con toda liberalidad. Todos accedian, y todos eran ámplia y generosamente indemnizados, pues ademas de pagárseles sus casas en dinero contante, se les construían nuevas viviendas en otros puntos de la capital. Pero entre las personas expropiadas debia entrar tambien una anciana, que siendo dueña de una casita en que habia una hermosa palmera, se negaba rotundamente á cederla por ninguna suma mientras no se le diese otra casa que tuviera asímismo su palma. Mandó Almanzor que se buscase á toda costa, aunque hubiese que pagarla un millon de dinares; así se hizo, púsose á la exigente vieja en posesion de su nueva casa y de su nueva palmera, y vencidas todas las dificultades, empezaron los arquitectos del califa Hixem la obra. Los exigentes suelen ser afortunados: todos los edificios del terreno incorporado á la mezquita vinieron al suelo, y es probable que solo se conservase en pié la palma de la vieja, porque dice Al-Makkarí que este árbol venia á caer en el proyecto dentro del ensanche del patio, donde el afortunado vegetal tenia ya otros compañeros[282].

¡En la nueva edificacion trabajaban arrastrando cadenas los infelices cristianos que Almanzor habia llevado á Córdoba cautivos, de vuelta de sus periódicas espediciones!

PLANTA DE LA MEZQUITA DE CORDOBA SEGUN ESTABA EN TIEMPO
DE LOS ARABES.
PLANTA DE LA MEZQUITA DE CORDOBA SEGUN ESTABA EN TIEMPO DE LOS ARABES.

1Vestíbulo del Mihrab.
2Mihrab ó santuario.
3Maksurah, recinto privilegiado y cercado, solo accesible al Ymám y á los ulemas, alkhatibes, almocries y demas ministros del templo.
4Habitaciones de los ministros del culto y sirvientes de la Mezquita; sobre las de la derecha estaba el pasadizo que por medio de un puente comunicaba con el Alcazar.
5Recinto donde se armopor orden de Al-hakem la Maksurah antigua.
6Tribuna desde donde se hacia la alicama ó pregon interior convocando á la azala. Debajo de ella estaba el tesoro ó joyero.
7Puesto del Califa.
8Puesto del cadi de la Aljama.
9Dar-as-sadaca ó cámara de la limosna.
aAtrio ó patio-jardin de la Mezquita.
bPórticos.
cEntrada principal y Alminar.
AMezquita primitiva de Abde-r-rahman é Hixem.
BParte añadida por Al-hakem, luego cuarto noble; reservado á la nobleza y personajes de la corte.
CEnsanche dado por Almanzor.

Derribóse el muro de oriente[283], y se abrieron los cimientos para el nuevo muro á distancia de ciento ochenta piés del antiguo en toda la línea de norte á mediodia. Añadiéronse á la mezquita propiamente dicha, esto es, al cuerpo cubierto del edificio, ocho naves grandes, todas iguales y del mismo número de arcos que las ya existentes, prolongándose de resultas ciento ochenta piés las treinta y tres naves menores que se cruzan en ángulo recto con las principales corriendo de oriente á ocaso. Formábanse sin embargo en el nuevo departamento treinta y cinco naves trasversales en vez de las treinta y tres del antiguo, porque no se prolongó el ala de habitaciones que caía á oriente del Mihrab y que ocupaba el espacio de dos naves. La prolongacion de las naves menores no se hizo con la servil y monótona uniformidad á que solemos esclavizarnos los modernos: los arquitectos árabes no entendian las reglas de la simetría como se profesan hoy, huían de lo que llamamos euritmia y se satisfacian produciendo la unidad por medio de la variedad sin buscar correspondencia forzosa de partes semejantes[284]. En la parte añadida por Almanzor se creyó inútil dar á los machones de carga del muro del norte las mismas dimensiones, un tanto exageradas, que tenian los del muro primitivo reforzado por An-nasír[285], y se ganaba por consiguiente un espacio de seis piés en la longitud de las naves mayores por el lado del norte. Mas no pudiendo dar á la primera de las menores seis piés más de anchura de la que tenian, por no consentirlo la altura de las columnas, imaginaron sin duda los arquitectos, que en vez de repartir ese pequeño esceso por igual entre los treinta y tres arcos de la tirantez de norte á sur, era preferible para el buen efecto conservar en línea y perfecta correspondencia las tres ó cuatro primeras naves, añadiendo una nave más en el espacio ganado por la dimininucion del grueso de los machones, y ensanchando las naves sucesivas donde pareciese mas conveniente. De resultas de esto, la nave primera trasversal de la parte prolongada no pudo por la estrechez suma de sus intercolumnios conservar la plena cimbra de sus arcos; fué preciso aproximar los arranques de estos, y romper su elegante curva para que no bajase de la altura apetecida, y entonces por la primera vez quizá se vió en los edificios de la España árabe el arco apuntado, ú arco ojivo, llamado despues á cambiar totalmente la fisonomía del arte monumental en la edad media[286]. El arco de este modo roto en el punto culminante de su curva, adoptó desde luego en aquella pequeña nave todas las decoraciones de que es susceptible: adaptó á su intrados los lóbulos, prodigados como ligeros festones en las arquerías del Mihrab, lo adornó graciosamente con el sencillo trébol, y prolongó por la parte inferior sus dos arranques formando la ojiva túmida, tan repetida despues durante el segundo período del arte hispano-musulman. Allí en efecto, en aquel breve espacio de siete piés escasos de anchura y ciento ochenta y cinco de longitud, apuró la arquitectura de una sola vez, y al primer ensayo, aun no terminado el crítico y terrible milenario primero, todas las formas de arco que habian de emplearse en los cuatro siglos consecutivos: circunstancia puramente casual, y de la cual sin embargo no dejarán de sacar partido para sostener la primacía de España en el sistema ojival los que equivocadamente miran estos meros accidentes como generadores de las grandes innovaciones arquitectónicas, y no como su resultado. No se intentó disimular el ensanche de que vamos hablando; al contrario, parece que se trató deliberadamente de señalarlo de una manera inequívoca, para lo cual, donde estaba el antiguo muro de oriente, ahora línea divisoria entre la undécima y duodécima de las naves mayores, se levantó una fila de robustos machones, convenientemente espaciados, y entre sí unidos por grandes arcos angrelados, arrancando de esbeltas columnas pareadas, unidas al grueso de los referidos machos. Nunca el arte clásico antiguo hubiera fiado tan espaciosos vanos á tan sutiles apoyos, como son esas columnas que de dos en dos envían á las parejas opuestas los gallardos arcos festonados que sirven como de embocadura al edificio de Almanzor. Pero los arquitectos de Abde-r-rahman I y de Al-hakem II habian hecho ya con felicidad igual alarde en la grande arquería de la fachada interior que mira al patio, y en la de refuerzo que divide la mezquita primitiva de su prolongacion hácia el mediodia, y no habia por qué temer ahora su repeticion. Pasa hoy uno con cierto sobrecogimiento por debajo de esos atrevidos arcos de ocho metros de elevacion, y seis, siete, y aun ocho de vuelo, al considerar que descansan en columnas de unos tres metros de altura incluso su capitel, y solo la robustez de los machos á los cuales se arriman las gráciles parejas, puede inspirarle la confianza de que no vendrán al suelo cansadas de tan sobrenatural esfuerzo.

Para mayor solidez del largo edificio agregado por Almanzor, se prolongó hasta su muro oriental, cruzando en ángulo recto con la mencionada arquería de refuerzo tendida de norte á sur, la línea de pilares y grandes arcos que señalaba el límite meridional de la mezquita primitiva: con lo cual quedó la actual Aljama dividida en cuatro partes desiguales, á que se dió el destino que diremos, completando tal vez la separacion entre una y otra, aunque esto no consta de una manera positiva, por medio de canceles ó tabiques de madera. La parte añadida por Al-hakem, en cuyas estremidades se alzaban las dos maksuras nueva y antigua, se denominó cuarto noble: estaba reservada, como queda dicho, á la nobleza y personages de la corte, ocupando los ulemas, alkhatibes, almocries y demas ministros del templo, con el Imam, el recinto inmediato al Mihrab. Los tres cuartos restantes eran para el pueblo, y probablemente estaban en ellos divididos los sexos, si es cierto, como asegura un historiador citado por Al-Makkarí, que dentro de las naves habia dos puertas que conducian al recinto de las mugeres.

Con la parte añadida por Almanzor formaba la mezquita Aljama un gran cuadrilátero rectángulo de seiscientos cuarenta y dos piés de longitud de norte á sur, y cuatrocientos setenta y dos de anchura de oriente á poniente[287], encerrado en cuatro gruesos muros almenados, fortalecidos con torres albarranas cuadrangulares, en considerable número, y de distintos cuerpos, disminuyendo segun su elevacion. El muro del sur, que por el declive del terreno alcanzaba una altura formidable y prodigiosa, internándose sus cimientos hasta una profundidad descomedida, estaba guarnecido con diez y nueve torres, contando las que le flanqueaban en ambos esquinazos, que eran mas voluminosas, y comunes á los dos muros de oriente y occidente. El muro de occidente tenia catorce; el del norte tenia cinco, ademas del magestuoso alminar erigido sobre la puerta principal; por último, el de oriente estaba robustecido con diez torres, todas correspondientes á la parte que sufria el empuje de las naves, pues en el muro del patio no habia por aquel lado ninguna. La mayor parte de estas torres se conservan: subsisten tambien aquellos venerables y anchos muros: y si la casualidad, ó el deseo, te llevan, oh paciente lector, á esa antigua ciudad que fué un tiempo el emporio de la civilizacion musulmana de occidente, no dejes de subir á lo alto de la gran mezquita: cuando te halles entre aquellas denegridas y fuertes almenas, que forman un dilatado feston de puntas, ó mas bien dientes de sierra, hollando con tus piés aquellas altivas torres, te imaginarás hallarte recorriendo las terrazas solitarias de los magníficos palacios de los Persas Sassanidas; creerás oir los gritos de guerra del ejército de Khaled y el zumbido de sus voladoras flechas, y ver á la fugitiva dinastía de Cosroes abandonándote el silencioso recinto de sus endentadas construcciones. Entonces comprenderás á la primera impresion, de quiénes aprendieron los árabes vencedores á erigir sus monumentos. Verás tambien magestuosamente tendidas ocupando el inmenso cuadrilátero que bordan las sagradas almenas, y en perfecto paralelismo, las diez y nueve quillas de las naves con que parecia cubierto el gran templo antes de abrumarle con sus actuales bóvedas, y te figurarás que al despedirse los árabes de su amada Córdoba cuando surcaban su rio veloces carabelas, dejaron en carena esas diez y nueve naves para volver algun dia por ellas.

Las puertas esteriores de la mezquita eran diez y seis: seis al patio ó atrio de las abluciones, dos á oriente, dos á poniente, dos al septentrion; diez al edificio cubierto, de esta manera, tres por occidente al cuarto noble, con otra puerta que daba ingreso á las dependencias de la mezquita, dos, tambien por occidente, y cuatro por oriente, al gran buque destinado al pueblo. Las puertas interiores eran veintiuna, sin contar las de las dependencias del templo y la del pasadizo secreto del Califa: diez y nueve en la estensa y magestuosa fachada del patio, y las dos arriba mencionadas que dentro del buque de la mezquita conducian al recinto ó departamento reservado á las mugeres. Todas las puertas esteriores eran por lo general rectangulares, formadas por arcos-dinteles inscritos en otros arcos ornamentales de herradura: sus dovelas blancas y de color alternadas: las blancas ricamente exornadas de follages relevados, de estuco; las de color de precioso mosáico de ladrillo rojo y amarillento cortado en menudas piececitas rectilíneas. Ceñía al arco de herradura un ancho y precioso arrabá de cenefas cuajadas de labores, y ostentaban igual riqueza de ornato los tímpanos entre el arco y el dintel, las enjutas, las fajas, y las ventanillas de tablas de alabastro perforado que, ya encerradas en arquitos sobre marmóreas columnillas, ya partidas en graciosos agimeces, flanqueaban en uno ó en dos órdenes las referidas puertas[288]. En algunas de estas veíanse cornisas voladizas sostenidas en ménsulas formando antepecho con sus almenillas dentadas y sus matacanes, dando al sagrado edificio aspecto de fortaleza y recordando los belicosos orígenes de la propaganda islamita.

ESTERIOR DE LA MEZQUITA DE CÓRDOBA.
ESTERIOR DE LA MEZQUITA DE CÓRDOBA.

ORNAMENTACION DE UNA DE LAS PUERTAS DE LA CATEDRAL
(Córdoba.)
ORNAMENTACION DE UNA DE LAS PUERTAS DE LA CATEDRAL
(Córdoba.)

CAPILLA DE VILLAVICIOSA.;
(Catedral de Córdoba.)
CAPILLA DE VILLAVICIOSA.
(Catedral de Córdoba.)

Supónese que no contento el altivo hagib de Hixem II, ó mas bien su tirano, con haber hecho lo que dejamos referido, fué él tambien el que reformó la capilla de la tribuna desde donde se pregonaba la alicama, bajo la cual estaba el tesoro[289]. Quiso sin duda rivalizar en magnificencia con Al-hakem y dejar al amparo del edificio religioso algun recuerdo duradero de la galana imaginacion de sus amines[290], presintiendo quizá la triste suerte que amagaba á su predilecta fundacion de Azzahira, muestra suntuosa de la cultura de su tiempo ilustrada con lágrimas de sus ojos[291]. Tal vez existian ya á manera de ventanas en los dos costados de norte y mediodia de la referida tribuna, los dos atrevidos arcos dobles de diez y siete piés de vano que hoy tiene, iguales en sus columnas y en su medida á los de la gran línea de pilares de Al-hakem que corre de oriente á ocaso; pero si realmente estaban ya construidos, si no era la decoracion esterior de esta capilla análoga á la de la central frontera al Mihrab, indudablemente su intrados era liso y los adornos de su archivolta, si los tenia, eran de un gusto que pasaba ya por anticuado. El plano de este recinto era un rectángulo de lados desiguales. Hizo el que dirigió la obra por Almanzor que en los costados de oriente y occidente, que eran los de mayor longitud, se abriesen otras ventanas menores, de distinta forma de las que habia, de arcos exornados tambien segun el nuevo estilo, y que en los paramentos de los cuatro muros y en la cúpula que los corona, estampase el arte sarraceno emancipado de la tradicion bizantina el sello indeleble de sus aspiraciones, ya mas voluptuosas si bien menos monumentales. Fueron sin duda africanos los amines de Almanzor. Dieron á estos arcos, y á los de la pieza baja ó tesoro, los festones de lóbulos que tan gallarda y viciosamente disfrazan el verdadero objeto de estas curvas, convirtiéndolos en orlas de cintas y nexos de encaje, y solo respetaron las antiguas columnas y sus capiteles románicos. Adornaron las archivoltas con menudos pometados, inscribieron los arcos en vistosos y ámplios recuadros formados de muchas cenefas primorosamente labradas á cincel y punzon: pusieron en las enjutas grandes florones de nueva forma, en que campean y se enroscan sutiles vástagos prendidos á sus bayas, formando postas y ondulosas lazadas sobre fondo de espeso ataurique picado, á modo de culebras que se desnudan de sus escurridizas y pintadas pieles revolviéndose en un tapiz de flores. Coronaron los arrabás con lindas cornisillas de arquitos entrelazados y calados, y sobre ellos hicieron correr por todos los cuatro frentes una ancha faja de bovedillas apiñadas que fingiesen estalactitas de oro cristalizado, en la naturaleza imposibles, pero tambien de efecto sorprendente y hasta entonces desconocido.En las paredes de oriente y ocaso, que eran los lados mayores del rectángulo, figuraron de relieve los arcos de lóbulos que no podian estar abiertos, y descansando en la ligera cornisa de su arrabá, esculpieron, á plomo sobre las enjutas del grande arco figurado, dos ricas ménsulas con leones asomando por ellas la cabeza y el pecho. Eran cuatro los leones, dos en cada una de las fajas de levante y poniente, todos equidistantes, y desde cada leon al que tenia enfrente volteaba un grande arco, cuyo paramento avanzaba algunos piés sobre la zona inferior, y desde cada leon al que tenia á su lado volteaba otro grande arco figurado y que no avanzaba sobre el paramento del muro inferior. Estos cuatro grandes arcos superiores, cada uno de ellos de veintiun lóbulos de crestería trebolada y primorosamente adornados en las enjutas y en el fondo como los de la zona inferior, formaban un cuadrado perfecto por haber quedado á igual distancia sus cuatro apoyos, merced al ingenioso modo de acortar los lados mayores poniendo los leones á plomo sobre las enjutas de los grandes arcos de abajo. Vencida esta dificultad, y regularizado el espacio superior encerrado en cuatro arcos torales, era ya muy sencillo levantar sobre ellos la cúpula que habia de coronarlo. Sobre los arcos se tendió una cornisa general, y en esta se apoyaron, cruzándose en el espacio y deslumbrando con sus colores y dorados, como fuegos de artificio cuyas curvas se cruzan en el domo sombrío del estrellado firmamento, los arcos de segmentos que forman la elegante y estraña cúpula morisca. El primoroso alizar de alicatado que cubria el zócalo de este mágico aposento, su piso de ladrillo barnizado á la manera persiana, sus paredes cuajadas de estucos pintados de verde y rojo opaco, y á trechos dorados, haciendo un fondo de espeso y menudo ataurique cubierto con un enrejado de flores, sus arcos de lóbulos detenidamente calados y contornados con otros adornos, dan á esta capilla, perdida en el bosque de columnas de la inmensa mezquita, el aspecto de un cenador de apretado lúpulo y graciosas enredaderas, recortado por la mano de las péris en medio de una selva encantada[292].

No terminaremos la restauracion ideal de la gran mezquita de Córdoba sin hacer mérito de otra obra preciosa, en la cual hoy nadie repara, que á nuestro entender se ejecutó tambien en tiempo de Almanzor. Hablamos de la decoracion de la Cámara de la limosna, toda de estuco, con arcos ornamentales afiligranados, por el estilo de la capilla ó tribuna que acabamos de describir. Habia hecho construir Al-hakem II á la parte occidental del templo un departamento para la distribucion de las limosnas, en el cual cualquier pobre viandante estraviado, que se encontrase en la ciudad sin amparo y sin medios de subsistir en ella, hallaba caritativa hospitalidad y recibia cuanto podia necesitar para continuar su viaje. Para este objeto habia el Califa dotado el establecimiento de una manera espléndida. El departamento que ahora nos ocupa no era propiamente hablando una hospedería, y aun nos inclinamos á creer que ni una noche siquiera podia pasar en él el caminante perdido; primero, porque su limitado recinto, de una sola cámara, igual en proporciones á la tribuna restaurada por Almanzor, no lo permitia; y ademas, porque para hospederías, donde pudiesen los pobres permanecer, tenia el mismo Al-hakem dispuestos otros edificios fuera de la mezquita, y tambien á la parte occidental, frente por frente á la cámara de la limosna (Dar-as-sadaca)[293]. Y no se crea que en estas hospederías se albergaba solo la gentecilla menuda y de poco valer: Ibnu Bashkuwal nos cuenta que el célebre poeta Ahmed Ibn Khaled estuvo largo tiempo alli mantenido, y segun él acudian á este establecimiento los teólogos pobres y los estudiantes necesitados que iban á Córdoba á cursar leyes, los cuales, mientras buscaban, ó fingian buscar, en la capital alojamiento acomodado á sus escasos recursos, vivian en el ameno trato de muchos hombres graves, literatos, historiadores, oradores y poetas, que eran en él agasajados. Los estudiantes, de mejor condicion que los modernos sopistas, recibian comida diaria, provisiones de todo género, y ademas una pequeña cantidad en metálico; los sabios formados tenian asignadas pensiones anuales sobre el tesoro, cada cual segun su mérito y circunstancias personales. La cámara Dar-as-sadaca no estaba en rigor destinada mas que á repartir la limosna entre los pobres. Su riquísima puerta, hoy tapiada, se dibuja todavía en ambos lados interior y esterior del muro de la mezquita, y segun Al-Makkarí era la principal del costado de Occidente. Ya no es posible formarse una idea exacta del aspecto que presentaria esta cámara cuando acabó de decorarla al estilo africano el hagib Almanzor: una espesa capa de cal cubre y desfigura las labores de estuco pintado y dorado que convertian sus paredes en primorosa filigrana; su belleza, mejor apreciada en la edad de hierro de la reconquista, se oculta hoy olvidada y oscurecida despues de haber servido con brillantez á la primera catedral cristiana de Córdoba, que hizo de dicha cámara su rico vestíbulo; y la hermosa convertida, que halló gracia á los ojos del austero S. Fernando, no ha alcanzado piedad en nuestros dias de tolerancia y de indiferentismo, y ahí permanece arrinconada, vergonzante, cubierta de polvo, esperando el dia de su rehabilitacion, y dando gracias sin embargo á su nuevo dueño porque, aunque la tiene envuelta en una fria mortaja de yeso y cal, al menos no la ha mutilado y reducido á polvo para poner en su lugar una capilla churrigueresca ó greco-romana[294].

Así se conserva la interesante estancia que en la mezquita árabe servia para repartir la limosna, y nadie se imagina que esa pieza desnuda y pobre, que pasado el postigo de S. Miguel se ve hoy separada del cuerpo del templo por un miserable tabique y una puerta de pino, y donde tiene el cabildo el archivo de la estinguida capilla de música y sus libros de coro, sea aquella suntuosa Dar-as-sadaca donde la religion musulmana se mostró menos opuesta á la religion evangélica de caridad y amor, donde mas honrada fué la humanidad por el paganismo sarraceno, donde menos agravio recibió la divinidad de los profanadores de la antigua basílica cristiana, y por último, donde mas interesantes y patéticas escenas presenció quizás la corte de las califas.

La tribuna de la alicama y la cámara de la limosna debieran ser fecundas en recuerdos; pero no nos los han trasmitido los historiadores árabes, tan minuciosos en otras cosas; y los únicos hechos gloriosos que á estas construcciones podemos hoy referir, estan tan identificados con la triste época del decaimiento del poderío árabe en España, como la misma mudanza de estilo que en ellas se advierte comparándolas con las obras arábigo-bizantinas de la época anterior. A la verdad el estilo de su ornamentacion se diferencia notablemente del empleado en el Mihrab y en todo el resto de la mezquita: pero ¿quién es capaz de calcular el tiempo que necesita el arte para variar de fisonomía, cuando concurren en una nacion trastornos tan radicales como los que acaecieron en el Estado cordobés bajo la administracion de Almanzor? Ya lo hemos indicado: el solo predominio de las razas africanas pudo bastar para trocar completamente las tendencias del arte musulman. Y es muy de advertir que el arte, menos significativo en sus formas para los mismos que lo practican, que para nosotros que de lejos estudiamos sus sucesivas trasformaciones, como el que desde una eminencia observa perfectamente las varias revueltas de un magestuoso rio, ha eludido siempre las prohibiciones que tienden á separar é incomunicar las ideas; por lo cual, del mismo modo que las prácticas de la arquitectura arábiga habian logrado carta de naturaleza en los pueblos cristianos de España, así las prácticas de los africanos habrian hallado acceso entre los arquitectos del Califato á despecho de la guerra sangrienta que se hicieron Almagreb y Andalucía, si ya antes la amistad y fusion de estos dos Estados no les hubiesen dado fácil y halagüeña acogida. Con solo saber que al espirar el décimo siglo andaban andaluces y africanos en comunicaciones tan frecuentes y amistosas como las que bajo los Abde-r-rahmanes habian tenido andaluces y bizantinos; con solo observar que el famoso caudillo de los Zenetes Zeyrí Ibn Atiyah envía á Almanzor embajadas y ricos presentes en que lucen á la par las grandes pretensiones del donador, las de la naturaleza y las del arte, y luego le visita personalmente en Córdoba admirándole con sus nuevos presentes y su brillante comitiva, podiamos desde luego haber adivinado una trasformacion esencial en la fisonomía del arte andaluz. Lo que era antes Bizancio para la sede de los califas, es ahora el Africa occidental: es posible que el gérmen africano ingerto en el robusto vástago hispano-oriental haya producido un arte mas bello que el africano-berberisco, acre por su naturaleza como la índole de las tribus auxiliares de Almanzor; pero de todos modos es africano el genio que preside á la trasmutacion del arte cordobés y á su emancipacion de la tutela bizantina; y es indudable que con solo atender á las fechas, y con saber que la intimidad entre Almanzor y Zeyrí fué anterior á su enemistad sangrienta, podiamos ya sospechar qué escena tendrian dispuesta los arquitectos del poderoso hagib para los dos actos capitales en que por última vez figura la gran mezquita, de anunciar á los creyentes congregados la conquista del Africa occidental, y de distribuir entre los pobres inmensas sumas en celebridad de la ruidosa victoria.

Podia el Andalús celebrar con locas demostraciones de júbilo su triunfo; pero el Africa estaba ya vengada, porque todo era en Córdoba africano: el hagib, el ejército, las autoridades, la vida pública y privada, la arquitectura que es su fórmula material, todo en suma. La misma tribuna en que se leyó al pueblo de Córdoba la carta del hijo de Almanzor refiriendo la gran batalla y victoria de Wadamena, estaba decorada al estilo berberisco; la misma cámara ó estancia en que se dieron aquellas cuantiosas limosnas en accion de gracias al Todopoderoso que se habia dignado humillar y confundir al Africa rebelde, parecia en su ornato un lujoso aposento del harem de un Edrisita.

Dejemos ya al gran monumento de la civilizacion arábigo-hispana, tal como acabamos de describirlo, dormir un sueño secular, mientras ruedan por encima de su espaciosa techumbre las tormentosas nubes de las revoluciones, que, preñadas de calamidades, descargan sobre la hermosa y desventurada reina del Guadalquivir. Las razas que alternativamente se apoderan del trono cordobés, no dejan en la mezquita la menor huella: pasan todas por delante de la gran fábrica silenciosa, como las espumantes olas de un rio desbordado que con imponente murmullo se empujan sin batir la dura peña de la orilla; y el incomparable edificio de los Abde-r-rahmanes y Al-hakemes se mantiene intacto, sin que al parecer introduzcan modificacion alguna en él los almoravides ni los almohades, esperando el término del castigo que sufre la grey de Cristo y el momento de volverse á enarbolar la triunfante enseña de la redencion sobre las columnas que habian sustentado el templo de Jano[295].

Acabó el renacimiento griego[296] de mas de dos siglos fomentado por los Umeyas; desfalleció el genio árabe del Asia, y el astro de la cultura cordobesa llegó á su ocaso. ¡Cuán cierto era que el altivo Cástor musulman no estaba dotado del aliento divino que ahora mas que nunca empezaba á revelar el Pólux cristiano! En vano pugnaron las huestes del hagib por la integridad del Califato en los campos de Calatañazor; el Estado y el arte siempre mueren juntos. El Estado cordobés muere con Almanzor, y despues de la consternacion que con tan siniestra noticia se apodera de sus soldados, despues del llanto que todos derraman por el ilustre general que siempre los habia conducido á la victoria, y á quien miraban como su padre y defensor, no es ya posible que el genio del Oriente vuelva á sonreir en mucho tiempo sobre la tierra del Guadalquivir.

Hemos recorrido, lector amigo, un período de doscientos diez y seis años desde el dia en que vimos al ilustre Umeya proscrito comenzar en Córdoba la edificacion de la mezquita Aljama, hasta la hora, para el Califato aciaga, en que cesan con la muerte de Almanzor los embellecimientos de este suntuoso templo, Caaba del Occidente. Durante este período hemos presenciado grandes cosas estudiando el soberbio monumento reflejado en el espejo mágico de la historia. Vimos primero los esfuerzos de un hombre lleno de genio, que, entronizándose en Córdoba con su gloriosa dinastía, y con una cultura llena de seducciones, sucesivamente rival y amigo de Carlomagno, disputa al gran organizador de la cristiandad el lauro de civilizador, saca de la rica mina de Bizancio los materiales para su grande obra, y envía la luz sobrante del faro que levantó sobre el Guadalquivir á iluminar la corte del nuevo César. Despues hemos visto al hijo de Abde-r-rahman I secundar admirablemente la obra de fascinacion comenzada por el famoso intruso; despues, dividirse su tarea sus descendientes, encargándose unos de todo lo relativo á la política y á la guerra, á fin de proporcionar á los otros el sosiego y los medios necesarios para hacer florecer las artes de la paz. Paralelamente á la cultura hispano-musulmana, se ha ido desarrollando la civilizacion hispano-cristiana, y despues que ambas han adquirido todo su natural crecimiento, ha sido preciso que la una fuese gradualmente cediendo el campo á la otra, como sucede con dos árboles corpulentos que no caben en el mismo terreno. Primero el genio del Occidente estuvo como adormecido desde que se eclipsó la estrella de Carlomagno: la Europa se creyó condenada á perpétua barbarie, á pesar de las escitativas promesas de la Iglesia; los encargados del regimiento de las naciones católicas perdieron de vista su divino norte, y en momentánea y triste oscuridad unos contra otros blandieron truculentos las fratricidas lanzas: período funesto de desórden y confusion que estimuló los brios y alentó las esperanzas de los sectarios del falso profeta. Pero la reconciliacion de los hijos de la Iglesia trajo al cabo el iris de paz á la cristiandad sobre un mar de sangre musulmana en Calatañazor; y mientras la peña de las águilas[297] estaba bañada de roja espuma, el sol del Califato doraba apenas las torres de la mezquita con sus crepusculares fulgores. ¡Grande fué para la verdadera civilizacion del Occidente el triunfo de aquella jornada! El orgulloso tronco de los Umeyas fué tronchado por el rayo; el árbol cristiano, ya lozano y pujante, puede ahora dilatar libremente sus ramas hasta sombrear la misma tierra de donde procede su gérmen; y el arte occidental, en un principio menesteroso y mendicante cuando el Epulon musulman derramaba á manos llenas sobre la reina del Bétis las galas de Bizancio, se está disponiendo para ir á llamar con arrogancia á las puertas de Córdoba musulmana con la civilizacion de la cruz exaltada por los ejércitos del hijo de Berenguela.

Descanse pues el gran templo por tantos califas reformado y engrandecido, y manténgase como mudo testigo de las rápidas invasiones, insurrecciones sangrientas, guerras civiles y traiciones que hormiguean y zumban á su pié[298], hasta que le llegue el dia de mostrarse como una aparicion fantástica á los ojos atónitos de los guerreros de S. Fernando. No se crea sin embargo que todo este tiempo han de contemplar pasivos los reyes de Castilla la integridad del símbolo islamita. Tres veces se pusieron sobre Córdoba las huestes cristianas. Dos veces penetraron en ella conducidos por el valiente emperador D. Alfonso VIII, y otras dos fué la mezquita ocupada, purificada luego y consagrada al verdadero culto. Estos hechos de armas merecen referirse.

Vivian los mozárabes de Córdoba bajo los almoravides pacífica y cómodamente, aunque cautivos. Adormecidos bajo el suave yugo de sus dominadores, iban ya casi olvidando su religion y su lengua materna[299]: Alí, hijo de Juceph, que era á un mismo tiempo monarca en Africa y en Andalucía, los colmó de distinciones: les concedió armas, y les dió por capitan á otro cautivo, caballero catalan, que le habia fielmente servido en Africa ganándole muchas victorias contra los almohades. Pero esta paz era funesta á los desdichados mozárabes, y la Providencia habia decretado volverlos á purificar en el fuego de las tribulaciones. Entra el famoso D. Alfonso el Batallador con grande ejército en Andalucía, pónese á vista de Córdoba, causando tanto terror en los mahometanos, que abandonan sus haciendas y se encierran en sus fortalezas; y entonces los cristianos cautivos, como súbitamente libertados de un lánguido y peligroso desmayo, armados de sobrenatural energía, corren en tropel en busca del rey D. Alfonso, y con súplicas y lágrimas le piden se les lleve á su reino, pues mas quieren perder sus casas y bienes que la religion de sus mayores. Condesciende el rey á su peticion, y al levantar el campo, aléjanse con él de Córdoba diez mil familias mozárabes, á las cuales dió luego el Batallador en sus dominios tierras y privilegios[300]. Fué tal la exasperacion de los mahometanos de Córdoba por esta fuga de los cristianos, que de comun consejo determinaron estinguirlos. ¡Ay de los infelices que quedaban dentro de la ciudad! A muchos quitaron cruelmente la vida, á otros castigaron atrozmente poniéndolos en estrechas prisiones. A todos despojaron de sus bienes, y á los que quedaron con vida, despues de muchas injurias, los deportaron al Africa. Algunos tal vez podrian librarse huyendo al reino de Toledo, y estos dejarian despues las noticias de los parages donde habian quedado ocultas las reliquias y santas imágenes que veneraban. Tambien entonces destruirian los mahometanos muchas basílicas y profanarian otras convirtiéndolas en mezquitas[301].

No tardó mucho el rey de Castilla y emperador D. Alfonso VIII en lavar esta afrenta. Las guerras contínuas entre los almoravides y los almohades en Africa ponian frecuentemente á los muslimes de Andalucía á merced de los cristianos. Alí habia muerto desastradamente: era rey de Africa y Andalucía su hijo Taxfin, el cual, no pudiendo guarnecer con tropas africanas sus dominios de España, los tenia entregados á la buena fé y lealtad de su virey y gobernador Ben Ganiyah. Pero este, que vivia mas como soberano que como gobernador, habia hecho numerosos descontentos. Al mismo tiempo un ambicioso vecino de Córdoba, muy rico y poderoso, llamado Ben Handí, que gozaba entre los mahometanos la opinion de santo, habia ido poco á poco insurreccionando la plebe, hasta ser por ella aclamado rey. Noticioso Ben Ganiyah del levantamiento, se presentó á las puertas de la ciudad con escogidas tropas y fué admitido sin resistencia, teniendo el usurpador que desampararla para salvar la vida. De Córdoba pasó Ben Ganiyah á sitiar á Andújar, persiguiendo á Ben Handí que se habia refugiado en ella con sus parciales; y estos para conjurar la venganza del ofendido virey y distraer su atencion, llamaron en su auxilio al emperador D. Alonso, que con gran celeridad asentó sus reales sobre la capital. Abandonó Ben Ganiyah la venganza y acudió al peligro; pero reconociendo la superioridad del castellano, le entregó la ciudad el dia 18 de mayo de 1146. Dia de grande abominacion fué este para los sectarios del Islam: los historiadores árabes lo recuerdan con dolorosa execracion, y refieren con escándalo que los cristianos penetraron en la mezquita Aljama, ataron sus corceles á las columnas del Maksurah y profanaron con sus manos impías el sagrado Koran que se custodiaba en su Mihrab[302]. Purificó este suntuoso templo el arzobispo de Toledo D. Raimundo, y dedicándolo á Dios, celebró en él de pontifical. Desgraciadamente no podia el emperador conservar á Córdoba ni dejar gente para guarnecerla, y así habiéndole Ben Ganiyah prestado juramento sobre el Koran de ser su fiel vasallo, y de mantener la ciudad en su nombre, se la dejó confiada. No bien se alejaron de sus muros las huestes cristianas, quebrantó su juramento el infiel musulman, y no se contentó con esto, sino que ademas atrayendo á Andalucía con falaces promesas á varios caballeros castellanos que mandó el emperador á posesionarse de Jaen, los aprisionó luego que entraron en la ciudad[303]. Irritado Alfonso con tan infame traicion, dispuso ir sobre Córdoba con ejército muy poderoso. Cabalmente acababa de apoderarse de Almería, habiendo reunido para esta empresa tan numerosas huestes, suyas y de otros príncipes aliados, que la muchedumbre de los ginetes y peones cubria las montañas y la campiña, el agua de los rios y fuentes no era bastante á apagar la sed de todos sus caballos, ni las yerbas de aquella comarca suficientes para darles pasto[304]. El rey Rogerio de Sicilia, que era uno de los aliados, se habia en verdad despedido de él, despues de espugnada Almería, para ir á campear por su propia cuenta en Africa; tambien el conde de Barcelona y el duque de Montpellier, y los genoveses y pisanos, que le habian auxiliado por mar con sus numerosas y bien armadas naves, se habian ya dispersado. Nada por otra parte habrian podido favorecerle ahora estas fuerzas de mar por el Guadalquivir, siendo ya Sevilla conquista de los almohades. Pero sin contar los ejércitos del rey D. García de Navarra y del conde de Urgél, podia disponer D. Alfonso de las mesnadas de sus condes y ricos-hombres: allí tenia á D. Fernando Joanes con las tropas de Galicia, á D. Ramiro Florez Frolaz con las de Leon, á D. Pedro Alfonsez con las de Asturias, al conde Ponce y á D. Fernando Ibañez con las de Estremadura alta y baja, á D. Martin Fernandez con las de Ita y Guadalajara, á D. Gutier Fernandez de Castro y D. Manrique de Lara con las de Castilla la Vieja, y á D. Alvar Rodriguez con las de la Nueva y Toledo. No se descuidó Ben Ganyah en prevenirse: reconociendo que le faltaban fuerzas para contrarestar la acometida de Alfonso, trató solo de aumentarlas, é imitando el ejemplo del rey Al-Mu'tamed, que por esquivar el yugo de D. Alfonso el Conquistador de Toledo se habia entregado al de los almoravides, prefiriendo apacentar camellos en el Desierto á guardar puercos en Castilla[305], para librarse de las manos del emperador llamó en su socorro á los almohades. Atento solo á la necesidad de rechazar á los altivos cristianos que se disponian á sitiarle, envió un mensage á Berraz Ibn Mohammed, general de Abde-l-mumen, emperador de los almohades, que el año anterior habia vencido á Taxfin y estinguido el poder de los almoravides en Africa; y en este mensage solicitó de él una entrevista. Abocáronse los dos generales en Écija, y allí estipularon que Berraz asistiria a Ben Ganyah con tropas, con la condicion de que el almoravide le pondria en posesion de Córdoba y Carmona, reservándose el dominio de Jaen. Sin esperar á que este tratado fuese ratificado en Africa por Abde-l-mumen, tomó Berraz posesion de Córdoba y de Carmona, y Ben Ganyah se retiró á Jaen. Arrepentido sin duda de haberse entregado á los enemigos de su raza sin haber probado fortuna contra los enemigos de su fé, rompió pronto Ben Ganyah su alianza con los almohades: resuelto á contrastar en lo posible sus rápidos triunfos, quiso arriesgar contra ellos una batalla campal en la vega de Granada, que ya recorrian impetuosos llevándolo todo á sangre y fuego, y en el calor de la refriega, herido de muchas lanzadas, de que no bastó á defenderle su armadura, murió el día 21 de la luna de Xaban del año 543 (A. D. 1149). Los almohades se apoderaron de Jaen. Aprovechando esta oportunidad el emperador Alfonso, marchó con su ejército sobre Córdoba y la sitió. Así que esto se supo en Sevilla, trataron los almohades de enviar á los sitiados poderosos refuerzos. Dispusieron saliese de Sevilla con tropas escogidas Abu-l-ghamr Ibn Gharun, y que el gobernador de Niebla Yusuf Al-betruhí saliese con las suyas: incorporáronse estos dos ejércitos, y á marchas forzadas avanzaron á Córdoba. Envió ademas Abde-l-mumen un tercer ejército bajo el mando de Yahya Ibn Yaghmur; pero antes de que este llegase, ya habia el rey cristiano tomado parte de la ciudad haciendo una sangrienta incursion en ella, profanando de nuevo la mezquita mayor y llevándose un rico botin[306]. Al llegar á Córdoba el refuerzo de Ibn Yaghmur, el prudente emperador levantó el campo: arrolláronse las tiendas, emprendióse la retirada, y no entró el ejército auxiliar en la capital de Andalucía sino para ver desde sus almenas relumbrar á lo lejos en la sierra las lanzas y escudos de las mesnadas cristianas. En esta segunda entrada de las tropas de Alfonso en la mezquita Aljama no hubo al menos desacato contra el sagrado Mushaf: Berraz Ibn Mohammad se lo habia ya enviado á Africa á su rey Abde-l-mumen con otras preciosidades recogidas en la ciudad cuando la ocupó de resultas de su convenio con Ben Ganyah, y el Amir de los muslimes lo tenia cuidadosamente guardado en su tesoro. Cuéntase que este Mushaf acompañó luego á Abde-l-mumen en todas sus espediciones militares, llevado delante de él dentro de su preciosa caja sobre un camello, bajo un dosel, entre cuatro banderas, en las cuales se leían en caractéres de oro versículos adecuados del Koran[307].

Grande era ya en esta época el poder de Castilla, creciendo considerablemente al par el de los demas reinos de la España cristiana. Grande tambien habia sido desde principios del undécimo siglo el desarrollo del arte occidental. Pero ¿se hallará este ya por ventura en estado de sustituir dignamente á su émulo el arte del Oriente? La tentativa del emperador Alfonso ha sido prematura: espláyese y domine en buen hora la forma románica en todas las grandes ciudades arrebatadas á los califas allende los montes, en Toledo conquistada por D. Alonso el VI, en Zaragoza y Tarragona rescatadas por D. Alfonso el Batallador. El imperio musulman que parecia exánime despues de la muerte de Almanzor ha recobrado nueva vida: una raza nueva le ha inoculado su sangre activa y poderosa, los almohades aspiran á regenerarlo en Andalucía, y todavía es la corte de los Abde-r-rahmanes reconocida por capital y centro del mahometismo en España. No ha llegado pues la época del vencimiento definitivo para Córdoba y su arte. Dejad que esa nueva sangre anime nuevas formas; dejad que los almohades terminen en Sevilla el gigantesco ensayo del arte que se proponen sustituir al arte de los Umeyas[308]; dejad que entre tanto las dos grandes monarquías enemigas que ya no caben juntas en España desahoguen su plétora en las sangrientas batallas de Alarcos y Muradal; y entonces será tiempo de decidir cuál de estas dos nacionalidades tan llenas de vida, tan pródigas de su sabia, tan épicas en sus hechos, ha de quedar dueña esclusiva de las hermosas ciudades del Guadalquivir, con sus usos, sus artes, su lengua y su fé.

Pronto llegará el dia de la decision. Ved cuán rápidamente se pulveriza el coloso hecho pedazos en los hondos valles de las Navas de Tolosa[309]. La anarquía ha vuelto á apoderarse de la España musulmana despues de la gran derrota, y los cristianos van cada dia ensanchando sus fronteras. El arte de Occidente avanza con ellos, y tanto sube de punto su jactancia, que ya en el primer tercio del siglo XIII (A. D. 1229) presume implantarse en Africa á la sombra de un tratado de alianza, levantando en medio de la fastosa corte de los almohades una iglesia cristiana. Deseoso el amir El Mamun de escarmentar á los rebeldes almohades, solicitó del rey de Castilla tropas que pasasen con él á Mauritania, y el rey cristiano le respondió: «No te daré ejército si tú no me das diez plazas fronterizas que yo señale, y si Dios te concede entrar en Marruecos, habrás de construir para los cristianos que te acompañen una iglesia en el centro de la ciudad, en que puedan ellos celebrar públicamente su culto tocando las campanas todo el tiempo que duren las ceremonias. Si algun cristiano quisiese hacerse mahometano, no se lo consentirás, sino que le entregarás á los de su ley para que sea juzgado, y por el contrario, si algun musulman quisiese hacerse cristiano, no permitirás que nadie se lo estorbe[310].» Cuando la nacionalidad y la fé española podian imponer semejantes condiciones, y cuando la nacionalidad y la fé islamita las admitian, era prueba de que se estaba ya robusteciendo el brazo del predestinado que habia de desquiciar las puertas de bronce de la Caaba del Occidente.

Muy urgente era por cierto la victoria, porque los terribles almohades, en su fervoroso celo por el triunfo del Islam, á nada menos habian aspirado que á la completa estincion de la fé de Cristo en Andalucía, y así en Córdoba, Sevilla, Jaen y Murcia, no habia ya cristianos mas que entre los cautivos[311].

Pero ¿qué jubiloso clamor es ese que sale de las mazmorras donde há poco solo resonaban dolorosos alaridos y prolongados ayes de agonía? ¿Por qué sacuden sus vibradoras lenguas con tanto brío las antes sujetas y mudas campanas de las basílicas, ayer desiertas, abandonadas y amenazando ruina? ¿Qué significa ese imponente rumor con que despierta sobresaltada la poblacion entera? ¡Ah! ¡Es que ha amanecido el dia del gran desastre para el Islam! Nadie se lo esperaba: hace unas cuantas horas solamente, los cordobeses descansaban descuidados. Velaban solo los corazones rencorosos ó atormentados por la ambicion, enconados en las rivalidades de partidos; pero nadie pensaba que todo reino dividido tiene muy próxima su ruina. Caía la lluvia á torrentes, la ciudad parecia suficientemente defendida contra cualquiera tentativa: no habia sobre Córdoba ejército enemigo: decíase solo que los puertos de los Montes Marianos estaban ocupados por un puñado de almogávares[312]... ¿Cómo pues ha podido fraguarse tan grande calamidad en tan cortos instantes en el silencio de la noche?

Los cristianos, favorecidos por los cordobeses descontentos, se han apoderado de la Aljarquía[313] escalando la muralla y matando á las centinelas dormidas. La puerta de Martos está abierta á los terribles almogávares y á la caballería de Tafor; Colodro[314] y Baños con sus compañeros dominan las torres de aquella parte; los cautivos levantan hácia ellos los brazos aun agoviados por las esposas; los moros muestran en sus semblantes el pavor que hiela sus corazones, refúgianse tumultuando en la Almedina, y obligando á tomar las armas á todos, ancianos, mozos y niños, se aprestan á la defensa. Los valerosos cristianos se fortalecen en el barrio de oriente mientras D. Ordoño Alvarez y D. Alvar Perez de Castro envían corredores á Fernando con la noticia de tan inopinado suceso, y pidiendo refuerzos. Los moros por su parte, trocado el primer espanto en rabioso corage, piden tambien auxilio á su Amir ausente para esterminar á los invasores. ¿Qué hace Aben Hud al recibir la triste nueva? Emprende su marcha para libertar á Córdoba; pero en el camino vacila, duda, reune sus alcaides, oye su consejo, y abandonando á sus propios vasallos, se dirige á socorrer á los agenos[315]. ¿Qué hace Fernando? Monta al punto á caballo[316], acompañado solo de unos cien caballeros, despachando órdenes á las ciudades, villas y concejos, para que le sigan los ricos-hombres é hijosdalgo con sus milicias, y recomendando á los maestres de las órdenes militares que le envíen la flor de su caballería. Así, mientras los musulmanes se defienden desesperadamente en la ciudad alta molestando á los cristianos con hondas, flechas, dardos y catapultas, mientras la corte de los califas lanza su postrer grito de agonía entre el clamoroso estruendo de los lelilís, tambores, bocinas y clarines, el amir Aben Hud, último vástago de una gloriosa dinastía[317], va á encontrar la muerte en manos de un correligionario traidor, y el hijo santo de Berenguela va á sentar sus reales en el campo de Alcolea como águila que se cierne sobre la presa. Júntansele aquí los obispos, los ricos-hombres, los caballeros, y las mesnadas de los concejos con los carros de guerra, las municiones y las interminables filas de reses que van acudiendo destinadas á la vitualla. Estréchase el asedio, y los sitiados exánimes, hambrientos, desesperanzados de todo socorro, agoviados por el calor y la fatiga, capitulan para salvar tan solo la vida; y el dia de los gloriosos apóstoles S. Pedro y S. Pablo (A. D. 1236) entregan la ciudad. Entra en Córdoba triunfante S. Fernando, no coronado de laurel ni en carro tirado de tigres, leones y panteras, como acostumbraban los orgullosos emperadores romanos, sino en humilde y devota procesion, acompañado de los obispos D. Juan, de Osma; D. Gonzalo, de Cuenca; D. Fr. Domingo, de Baeza; D. Adan, de Plasencia; D. Sancho, de Coria; de los eclesiásticos y religiosos que han concurrido á la espugnacion, y de los principales de su ejército. De este modo llegan á la mezquita mayor, y al mismo tiempo que los tristes musulmanes abandonan sus hogares para refugiarse en otras ciudades de Andalucía, los cristianos enarbolan la enseña vivificadora de la redencion juntamente con el estandarte real sobre el enhiesto alminar de Abde-r-rahman An-nasír, donde se invocaba y encomendaba á los cuatro vientos el nombre del falso profeta; y el ejército vencedor entona espontáneamente en su fervoroso entusiasmo el solemne Deus adjuva que acompañan electrizados, con lágrimas de júbilo en las megillas, los cautivos mozárabes redimidos.

¡La grande Aljama de Abde-r-rahman el Proscrito; la Aljama suntuosa y deslumbradora de Al-hakem el Sabio y de Almanzor el Victorioso; la Caaba del Occidente, dejó ya para siempre de ser templo del Islam! El obispo de Osma, D. Juan, que representa al arzobispo D. Rodrigo, primado de Toledo, ausente por hallarse cerca de la Santa Sede en tan fausto dia, la bendice con las ceremonias y preces acostumbradas, la purifica con agua y sal, cantando los asistentes el Te Deum laudamus, la dedica á la inmaculada Madre del Verbo en su glorioso misterio de la Asuncion, hace provisionalmente erigir un altar en honor de la excelsa Señora, celebra en él de pontifical, y dirige por último una breve y sentida plática á los circunstantes exhortándolos á tributar gracias sin fin al Dios de los ejércitos.

decoracion

Es ya tiempo, benigno lector, de que vayamos reponiendo por su órden histórico, los objetos heterogéneos que por arte de abstraccion eliminamos de golpe en un principio, para hacerte ver con toda claridad en la catedral cristiana de Córdoba la mas grande y bella mezquita musulmana. Has contemplado en su estado primitivo y en su genuina destinacion el mas precioso monumento que refleja en su largo curso el tranquilo y magestuoso Guadalquivir; vas á verlo ahora en las transformaciones que sucesivamente ha ido sufriendo desde la reconquista hasta venir al estado en que hoy se encuentra.

No se dice con fijeza en qué dia empezó la mezquita purificada á tener destino de catedral. Sábese solamente que la Sede episcopal y cabildo de canónigos, que durante la ocupacion de la ciudad por los árabes habia estado en la basílica de los tres mártires[318], no se restituyó á ella sino cuando volvió de Roma el arzobispo D. Rodrigo, primado de España, que era quien por decreto del pontífice Inocencio III tenia desde el 4 de marzo de 1210 el encargo de restituir las iglesias catedrales en todas las ciudades que se reconquistasen, y por otro de S. S. Gregorio IX de 26 de junio de 1234 estaba autorizado para poner y consagrar obispos en las ciudades que antes los habian tenido. Pero consta que en el año 1238 estaba ya electo obispo de Córdoba D. Lope de Fitero, consejero del rey, y constituido el cabildo de canónigos de la iglesia catedral de Sta. María[319]. La basílica de los tres mártires Fausto, Januario y Marcial, que habia servido de catedral á los mozárabes, recibió el título y advocacion de S. Pedro, en conmemoracion del dia en que habia sido recuperada la ciudad.

Desde esta época ¡cuántos dias de júbilo para la nueva poblacion cristiana, señalados en su grandiosa catedral en páginas indelebles y sucesivas del arte nacional!

No se crea que el arte cristiano prevalido del triunfo invadió la mezquita haciendo gala de un celo intolerante y mutilando sin necesidad el grandioso edificio. Al contrario, tributando una sincera admiracion á la belleza que en ella descubria, se propuso conservar cuanto fuese compatible con las necesidades mas absolutas del templo en que habia de darse culto á Dios crucificado. Era indispensable desde luego establecer una capilla mayor, orientándola como era costumbre desde los primeros siglos de la iglesia. No se conserva memoria del sitio en que fué colocada, pero lo cierto es que por no derribar nada de la fábrica arábiga subsistió la capilla mayor provisional por espacio de veintidos años, y que no se celebrarian en ella muy cómodamente los divinos oficios no teniendo presbiterio, ni sacristía, ni Sagrario adecuado. Si fué dispuesta en lugar exento y principal, en el centro de la mezquita, hoy al menos no se descubre rastro de ella; es posible que con la obra de la catedral hecha en tiempo de Cárlos V haya desaparecido; pero lo mas probable es que se arrimase al muro de oriente, ó bien que se situase en la cámara árabe, donde pocos años despues, como veremos, se erigió la cabecera de la primitiva catedral. Lo que sí se sabe es dónde estuvieron la pila bautismal y el Sagrario: aquella se situó arrimada al muro de poniente ocupando las dos naves trasversales undécima y duodécima[320]; el Sagrario se colocó en la rica cámara de la izquierda de las tres que forman el vestíbulo del Mihrab[321]. Decimos que subsistió la capilla mayor provisional veintidos años, suponiendo que permaneciese allí donde se habia colocado el altar en honor de la Asuncion de nuestra Señora el dia solemne de la purificacion del templo; pero en rigor no consta haya habido formal ereccion de catedral hasta fines del año 1238. En noviembre de este año concedió S. Fernando á la iglesia catedral de Sta. María de Córdoba y á su obispo electo D. Lope, para sí y sus sucesores, con todas las fórmulas y solemnidades de cancillería, las décimas de los almojarifazgos, salinas y rentas, que tenia en Córdoba, con quinientas aranzadas de viña, y la tercera parte de sus olivares, y cien aranzadas de huertas[322]. Ya D. Lope, antes de ser electo obispo, habia recibido pruebas de la munificencia y predileccion de su soberano[323]. En el año 1240 y siguientes hizo el santo rey nuevas donaciones al obispo y cabildo, y á 15 de febrero de 1245 le hizo la última. A 13 de agosto de 1246, muerto ya el obispo D. Lope de Fitero, y habiéndole sucedido D. Gutierre Ruiz de Olea, hicieron el obispo y el cabildo un Estatuto, en que se estableció que todos los bienes muebles é inmuebles, rentas, villas ó fortalezas adquiridas, ó que se adquiriesen por uno ú otro, ó intuítu de ambos, se dividiesen en dos partes iguales, la una para el obispo y la otra para el cabildo. La ciudad de Córdoba finalmente dió á este mismo obispo D. Gutierre por juro de heredad, en 8 de setiembre de 1246, quince yugadas de tierra por año y vez en el término de Carchena. Las prebendas á la sazon eran: decanato, arcedianato de la villa, maestrescolía, chantría, arcedianato de Castro, arcedianato de Belmez ó Pedroche, tesorería y priorato, canonicatos y raciones. Representó el cabildo á S. S. Inocencio IV que no eran bastantes las rentas para mantener el número de dignidades y canónigos que habia, pidiéndole los redujese al que resultase correspondiente á sus facultades, y habiendo el pontífice dado comision para que con asenso del cabildo determinase dicho número, se resolvió que el de dignidades quedase como estaba, que los canonicatos se redujesen á veinte, y á veinte tambien las raciones; lo que confirmó S. S. por rescripto de 26 de junio de 1247. Ocurrió la conquista de Sevilla, y el santo rey en reconocimiento al mismo obispo D. Gutierre, que le ayudó mucho con su cabildo para llevar á cabo aquella memorable empresa, les dió el castillo y villa de Bella con todos los términos que tenian bajo la dominacion sarracena. Al volver de la toma de Sevilla hizo D. Gutierre con su cabildo un nuevo Estatuto, á 1.º de abril de 1249, dividiendo en dos partes iguales todos los derechos, tierras, castillos y heredamientos de dentro y fuera de Córdoba y su obispado. Al obispo tocaron Lucena y Bella con otras posesiones, y al cabildo otras con el castillo de Tiñosa, que volvió despues á la corona. Este instrumento es curioso, porque nos dá noticia cabal de las diversas rentas y bienes que á la sazon poseían el obispo y cabildo de Córdoba, entre las cuales vemos ya establecidos el tributo de treinta dineros que habian de pagar los judíos, el arrendamiento de las tiendas hechas y por hacer, el diezmo de la tienda de los alcaldes y el de la alhóndiga[324]. Determináronse tambien en su virtud los préstamos ó beneficios que habian de gozar el decanato en S. Salvador, en S. Miguel la maestrescolía, en S. Andrés la chantría, y en Santiago la tesorería; que los arcedianatos tuviesen el rediezmo totius pontificalis en sus territorios; en cuanto á los canónigos, que cada uno tuviese cincuenta maravedís, y veinticinco el racionero en las parroquias del obispado que el obispo señalase, y que el derecho del cabildo en las demas parroquias de la ciudad con las de Montoro, Castro, Ovejo y Belmez, quedase en la mesa comun para las distribuciones cotidianas. Ultimamente, existiendo desde el año 1246 alguna discordia entre el obispo y cabildo de una parte, y la ciudad con el clero de las parroquias de otra, sobre algunos artículos de concurrencias, diezmos y modo de dividirlos, inmunidad eclesiástica y otros puntos, el Papa Inocencio IV comisionó para ajustarlos al cardenal D. Egidio de Torres, y este por medio de un subdelegado consiguió la concordia, que aprobó S. S. á 11 de junio de 1250. Este documento precioso nos instruye de quiénes fueron las personas, órdenes y casas pias heredadas en Córdoba por el repartimiento del santo rey, y de muchas de las posesiones que les fueron dadas, todas las cuales debian contribuir con el diezmo de sus productos á la iglesia[325].

Con estas donaciones empezaban ya á ser pingües las prebendas al morir el rey D. Fernando y sucederle su hijo D. Alfonso X. El nuevo rey, animado del mismo espíritu religioso que su padre, dispensó mercedes al obispo y cabildo de Córdoba desde los primeros años de su advenimiento al trono, y no contento con haberles concedido en el año 1258 una renta anual de mil maravideses chicos en el almojarifazgo de Écija, en recompensa del agravio que la iglesia de Córdoba dijo habérsele inferido en el arreglo de términos entre su obispado y el arzobispado de Sevilla, les auxilió aquel mismo año en la ereccion de la capilla mayor de la catedral, concediendo muchos privilegios á la obra y fábrica.

Ya por este tiempo se habia introducido entre los piadosos ganadores de Córdoba la práctica de fundar capillas junto á los desnudos muros de la gran mezquita. Desde el año siguiente al de la espugnacion de la ciudad habia dado el ejemplo el santo rey labrando para sí una, dedicada á S. Clemente[326], contra el muro de mediodia, en un espacio que abrazaba de oriente á poniente tres naves principales y de norte á sur cuatro trasversales. Habíase cerrado este ámbito con paredes, dejando dentro intactas dos arcadas árabes y arrimando á la pared de oriente el altar del Santo á quien estaba consagrada la capilla[327]. En la décima nave mayor contando desde el muro de poniente, pegada tambien al muro interior de mediodia, y ocupando solo dos naves trasversales, habia labrado Pedro Diaz de Haro en 1250 otra capilla á Sta. Inés[328]. Muy modestas eran en verdad estas construcciones, y vergonzoso en cierto modo para los nuevos pobladores, que los judíos que habian quedado en la ciudad, no contentos con tener una sinagoga, estuviesen fabricando por este mismo tiempo otra muy soberbia y elevada[329] con grande escándalo para la cristiandad. No sabemos hasta qué punto pudo esto contribuir á que se avivase el celo de los caballeros cristianos y del clero; pero lo cierto es que en el año 1258 se estaban simultáneamente construyendo la capilla de S. Bartolomé, por un famoso adalid llamado Domingo Muñoz, y por el cabildo y el monarca juntos una catedral cristiana, en que la gallarda arquitectura occidental, rompiendo el artesonado sarraceno para desarrollar su elegante bóveda ojival, mostraba ya por defuera en su gigantesca grupa[330] la emancipacion de un arte victorioso, al cual estaba reservado trocar la faz monumental de Europa. El adalid hacia su capilla en el ángulo que formaba con el muro interior de mediodia el costado occidental del vestíbulo ó maksurah de Al-hakem II, tomando de area dos naves principales y otras dos trasversales. No pudiendo esta capilla recibir luz directa del esterior por tener detrás el ala occidental del Mihrab, que ocupaban las habitaciones de los Ulemas y otros ministros del culto islamita, y el pasadizo secreto del Califa, se le dió por la pared del norte luz del templo, abriendo en ella, ademas de su puerta ojival, dos lindos ajimeces y dos pequeñas claraboyas. El cabildo labraba su catedral con mayor esplendidez. Eligió á este fin las tres primeras naves trasversales del cuarto noble, empezando desde el muro de refuerzo que marca la prolongacion de Al-hakem, y dando al buque de la nave única que abrió, cortadas las armaduras de cuatro naves mayores de la mezquita, una longitud de cien piés desde la puerta interior de la cámara de la limosna hasta la cámara del centro de las tres que cerraba la antigua maksurah. Hizo de la cámara de la limosna, respetando su rica ornamentacion berberisca, el vestíbulo ó narthex para entrar en la catedral: dejó el muro de refuerzo de Al-hakem tal como estaba, sin tocar á sus atrevidos arcos ultra-semicirculares de columnas emparejadas; pero derribó la cámara del Cadí de la Aljama[331] para dejar espedito el crucero, y ademas las arcadas de las tres naves trasversales que habia ocupado; derribó asímismo tres columnas fronteras á los tres robustos machones árabes que quedaban exentos en la longitud del buque de oriente á poniente; construyó en su lugar tres machos mas esbeltos fortalecidos en ángulo recto con muros á modo de estribos, que interceptaban en toda su anchura una nave trasversal; de macho á macho volteó grandes arcos ojivales, correspondientes á los tres de herradura de enfrente; tendió de un lado á otro una ligera y sencilla bóveda sin nervios enlazados, dividida en cuatro compartimentos por tres grandes arcos de baquetones, de los cuales el mas inmediato al presbiterio descansaba en delgadas y altas columnillas, y los otros dos en bien esculpidas repisas de cenefas caladas suspendidas á regular altura en los entrepaños; y finalmente, tomando de costado la cámara central de la antigua maksurah, donde presumimos tenia su asiento el Califa[332], colocó en ella la Capilla mayor. Costeó esta capilla el rey sabio, y aun contribuyó como hemos dicho á los gastos de la obra del templo, por la cual agradecido el cabildo resolvió celebrarle un aniversario que hasta hoy se ha venido religiosamente cumpliendo.

La disposicion de esta cámara se acomodaba perfectamente al destino de capilla mayor, convirtiendo en sacristía la otra cámara que tenia contigua á oriente, y que hemos minuciosamente descrito como tribuna de la alicama. Existia sin duda tal como la habian dejado los amires de Al-hakem. En el lado del norte tenia un grande arco de herradura, correspondiente al muro de refuerzo de la prolongacion debida á aquel Califa; en el lado de oriente tenia una gran ventana de arco angrelado, y dos puertas pequeñas á los lados, que comunicaban á la tribuna embellecida por Almanzor; en el lado de mediodia ostentaba, haciendo gala del estilo bizantino del tiempo de Al-hakem, una combinacion de arcos de segmentos que se cruzaban en el espacio y formaban aspas de undosas cintas en los intercolumnios, en todo semejante á la decoracion que desplegaba enfrente el vestíbulo del Mihrab. En el lado de poniente, por donde esta cámara se unia con la del Cadí de la Aljama, que acababa de derribarse, no sabemos qué decoracion tenia. Para convertirla en capilla mayor no habia necesidad de desfigurarla completamente: bastaba cegar el grande arco del norte, en tiempo de los califas cerrado por la maksurah primitiva, cegar asímismo la gran ventana que comunicaba por levante con la tribuna de la alicama, poniendo en su lugar el altar mayor; dejar las dos puertecillas laterales abiertas para la comunicacion del presbiterio con la sacristía; dar al presbiterio el ensanche necesario y su correspondiente gradería; cerrar el lado de mediodia con vidrios, y últimamente hacer su portada ó embocadura con el cancel de costumbre. Así tal vez se haria; pero ¿quién es hoy capaz de adivinar el grado de respeto de los arquitectos del rey D. Alfonso hácia la obra arábigo-bizantina? Puede ser que la conservasen, como sin duda alguna conservaron la tribuna de Almanzor convertida en sacristía; mas habiendo sido despues dos veces reedificada, una bajo el imperio del gusto tudesco[333] y otra bajo el funesto influjo del estilo de Churriguera, no permite hoy este doble disfraz apreciar ninguno de los lineamientos de la obra del rey sabio.

Al mismo tiempo que se terminaba la obra de la catedral (año de 1260), fundaba D. Gonzalo Yañez, primer señor de Aguilar, arrimada al muro de oriente, una capilla consagrada á S. Juan Bautista, donde dos años despues dió sepultura al cadáver de su esposa D.ª Juana. Cinco años despues fundó el obispo D. Fernando de Mesa en el ángulo S-E. de la mezquita, y contigua por el oriente con la capilla de S. Clemente que habia labrado el santo rey, la capilla de Santiago[334], cómoda y espaciosa como la adyacente, en la cual tambien dejó subsistir las arcadas árabes comprendidas en su area. De igual data es un rescripto pontifical memorable por el rápido incremento que revela en las rentas de la iglesia de Córdoba, mas próspera naturalmente á medida que iba perdiendo mas tierra en la provincia la morisma. Concedia por este rescripto el pontífice, á peticion del obispo y cabildo, que de las veinte raciones que habia, cada una de las cuales se juzgaba ya ser cóngrua competente para dos personas, se dividiesen diez en veinte medias: de modo que ya los prebendados empezaban á vivir en la abundancia, cuando solo veintiocho años antes (en 1237 á 27 de setiembre) habia tenido Gregorio IX que escitar con indulgencias el celo de los buenos cristianos en favor de la iglesia de Córdoba, que padecia gran penuria por tenerla en cierto modo los islamitas sitiada por hambre, reducidas sus rentas al casco de la ciudad[335]. No debia espirar el siglo XIII sin que la restaurada catedral se engrandeciese con nuevos privilegios y fundaciones. El mismo D. Alfonso X, que habia labrado su capilla mayor y ayudado á costear el resto de la fábrica, habia concedido al cabildo el dominio directo de todas las tiendas que tenia la corona en el corral de la alhóndiga y en la alcaicería ó mercado de la seda, que eran treinta y tres, sin otra condicion que la de celebrar cada año dos aniversarios, uno por el alma de su padre el rey D. Fernando, y otro por la de su madre la reina D.ª Beatriz, y hacer ademas todos los años la fiesta de S. Clemente muy honradamente y con gran solemnidad[336]. Esta importante donacion tuvo efecto el año 1261; á los dos años (1263) ocúpase solícito el rey sabio en asegurar á la iglesia el disfrute del agua que en soberbios acueductos vimos traer á Córdoba los califas, estableciendo una contribucion para reparar los antiguos caños[337]; doce años despues (1275) el infante D. Fernando, que gobierna el reino por su padre, á la sazon ausente en persecucion del sueño dorado de su vida[338], dá carta al cabildo en Peñafiel á 7 de abril, autorizándole á tener en la obra y fábrica de la iglesia cuatro moros para que trabajen en ella, los cuales esten libres de pechos, segun lo habia ya concedido el rey D. Alfonso[339]; vuelve este á tomar las riendas del Estado (en 1280), y habiendo perdido el cabildo la carta de gracia en que por la primera vez se le concedia la de poder emplear en las obras de la iglesia cuatro moros exentos de todo tributo, le confirma este privilegio. Esta nueva carta nos esplica en qué clase de obras se empleaban los cuatro moros, pues dos de ellos eran carpinteros y los otros dos albañiles[340]: privilegio curioso en que descubrimos, nó la falta de artífices inteligentes entre los cristianos, sino un ilustrado celo por la conservacion del monumento árabe, y que nos sirve de clave para descifrar un misterio artístico hasta ahora inesplicado, á saber, cómo se ha perpetuado tan íntegro hasta la época de la nueva catedral ese monumento de los siglos octavo y noveno, y quiénes fueron los que trabajaron en las admirables restauraciones moriscas que mas adelante tendremos que notar en la Capilla Real ó sacristía de la antigua Capilla mayor. Bien se comprende por otra parte esa ilustrada tolerancia artística, tan impropia de un siglo inflexible en toda Europa con respecto á las formas de su fé, en el inmortal autor de las Partidas, cuya prematura tolerancia literaria fué escándalo de los mismos genios del gran siglo XV. Este privilegio recibió en los años siguientes varias confirmaciones, y habiendo usurpado en vida de su padre el gobierno del reino el impaciente y bravo D. Sancho, hallamos una carta firmada en Córdoba á 25 de octubre de la era 1320 (año 1282), por la cual vemos habia adquirido mayor estension, puesto que en ella se confirma que todos los moros que viven en la ciudad, sean ó nó maestros en los oficios de albañilería y carpintería, tengan obligacion de trabajar dos dias en el año en la obra de la iglesia. Este singular documento dice así: «El cavildo de la Eglesia de Sancta María me mostraron una carta del rey en que mandava que todos los moros forros et annaiares (carpinteros) et alvannís (albañiles) et serradores et todos los otros que labrassen en la labor de la Eglesia sobredicha dos dias en el anno. Et agora el cavildo de la Eglesia de Sancta María querellóseme que los moros que non son maestros que non quieren y labrar, porque dizen que lo non dizia en la otra carta que les el rey dió primeramient, et despues que ge lo mostraron et que les mando dar su carta con su sello colgado, et mando que tambien los moros maestros como todos los otros de la villa fuessen labrar dos dias en el anno en la lavor de la Eglesia, et que me pidiese merced que mandasse y lo que toviesse por bien. Onde vos mando vista esta mi carta que veades la carta que el cavildo tiene del rey con su sello colgado en esta razon, et conplídgela en todo segund que en ella dize, etc. Dada en Córdova XXV de octubre, era de mill et CCC et veinte annos. Yo Roi Diaz la fiz escrevir por mandado del Infante, etc. (A. D. 1282)[341]» Esta medida no parece ya dictada esclusivamente por un respeto ilustrado al monumento sarraceno, sino mas bien como contribucion de sangre en desagravio de las pasadas injurias hechas por los mahometanos á los cristianos en la misma mezquita. No eran en efecto todos los muzlimes que habian quedado en la villa útiles como artífices, cual podian serlo los albañiles, carpinteros y aserradores; pero, ¿cómo no disculpar en cierto modo pasiones por otra parte fecundas en gloriosas hazañas, en una época en que el celo religioso era tan activo, y en que aun vivia el recuerdo de los dias de llanto y luto, durante los cuales el mas altivo burlador de la humanidad y del cristianismo habia dado por cimiento al ensanche de la Aljama argamasa remojada con lágrimas, sudor y sangre, de cautivos gallegos y leoneses[342]? Cuéntase que el mismo S. Fernando, recien purificada la mezquita, hizo restituir á la catedral de Santiago, en hombros de infieles, las campanas que Almanzor habia hecho llevar á Córdoba en hombros de cristianos. Estas represalias eran entonces admitidas como justas, y no se consideraba en ellas mas que el desagravio de la religion ofendida. Pero conviene no olvidar que los enemigos del nombre de Cristo, así moros como judíos, daban con su conducta en Córdoba harto motivo para ser tratados con dureza. Con los judíos habia menos rigor, y sin embargo, ¿qué desmanes no cometian unos y otros? Favorecidos por la semejanza del trage, pues debe suponerse que todos, cristianos, muzlimes y judíos, vestían casi lo mismo, robaban los hijos á los cristianos que se ausentaban de sus casas para proseguir la guerra contra los infieles; los muzlimes para sí ó para mandarlos á sus correligionarios de la frontera, y los judíos para vendérselos á los muzlimes. Este nefando tráfico no era nuevo entre los pérfidos judíos; en el primer tercio del siglo IX los israelitas de Francia, codiciosos como todos los de su raza, alentados por los escesivos privilegios de que gozaban, lo habian introducido en España vendiendo en la corte de Al-hakem I muchos párvulos robados allende el Pirineo, despues de ejecutar en ellos todo género de maldades y torpezas[343]. Habiendo estos crímenes retoñado despues de la conquista, con ocasion de vivir juntas dentro de Córdoba gentes de tan opuestas religiones, tuvo que mandar severamente el pontífice Gregorio IX al obispo en el año 1239, que obligase á los judíos á traer siempre una señal pública para que en el trage se distinguiesen y fuesen conocidos de los cristianos, segun lo habia dispuesto el Concilio Lateranense. El Código de las Partidas, fiel espejo de las costumbres y de las ideas de aquella época, y mas útil para ser consultado bajo este concepto que como norma de la vida pública y privada de los hombres del décimotercio siglo, cuya aquiescencia no obtuvo, nos esplica por qué era tolerada la maligna gente judáica á pesar de estos atentados. «La razon porque la Eglesia, et los emperadores, et los reyes et los otros príncipes sufrieron á los judíos vivir entre los cristianos es esta: porque ellos viviesen como en cautiverio para siempre, et fuese remembranza á los homes que ellos vienen del linage de aquellos que crucificaron á nuestro Señor Jesucristo.» Solo para que se cumpliese la divina promesa de su dispersion y cautiverio se les consentia morar entre cristianos; pero para que de su trato y comunicacion no se originasen males semejantes á los que ahora se padecian, tenian asignado para sus viviendas un barrio separado, con el nombre de judería, y se les obligaba á llevar un distintivo especial. Eludian no obstante el precepto, y fué preciso que renovára el mismo mandato Inocencio IV, en 1250, de resultas sin duda de nuevas quejas de los cristianos[344]; y debieron los muzlimes ser acusados de iguales delitos, puesto que se hizo estensiva á ellos la obligacion de llevar en el vestido una señal para ser reconocidos y diferenciados de los cristianos y de los israelitas[345]. Ademas de estos robos y torpezas cometian otras infracciones, pues se negaban á cumplir los privilegios otorgados á la iglesia catedral de Córdoba por D. Fernando III y su hijo D. Alfonso, en los cuales se mandaba que los judíos y moros que comprasen heredades de cristianos en todo el obispado, pagasen cumplidamente el diezmo como si los cristianos las poseyeran, y lo mismo de las heredades que arrendasen[346]. Resistieron muzlimes y judíos esta prestacion forzosa; querian los vencidos ser de mejor condicion que los vencedores; y eran contínuas las quejas del obispo y del cabildo por la obstinacion de ambas sectas. No era solo el diezmo lo que repugnaban: negábanse tambien á pagar todos los demas tributos que satisfacian los cristianos. Consta de un privilegio que estos contribuían á la Iglesia con cierto derecho por razon de las fincas urbanas en que habitaban; y el mismo instrumento nos informa de que los judios y moros no querian pagarlo[347].

Puesto que hemos hecho mencion de las cartas y privilegios relativos á los tributos y prestaciones especiales impuestos á los muzlimes que permanecian en Córdoba con los cristianos despues de la reconquista, no sería ahora fuera de propósito echar una rápida ojeada sobre el estado y condicion de las personas de la secta vencida, si tuviéramos los datos suficientes para hacerlo. Pero son tan escasos en esta materia las crónicas y los antiguos documentos legislativos por lo que respecta á Córdoba, que casi nos atrevemos á asegurar no hay para semejante tarea mas nociones que las que de sí arrojan los pocos instrumentos que hemos citado. ¿Hallábanse los mahometanos de las provincias reconquistadas en situacion análoga á la en que habian vivido los cristianos que por no poder desamparar sus casas quedaron cuando la invasion agarena sujetos á los muzlimes? En unas ciudades sí, en otras nó. Vasallos y tributarios de sus dominadores por regla general, habian los mozárabes disfrutado de cierta libertad profesando públicamente su religion, y gobernándose en todo lo relativo al régimen civil segun las estipulaciones concertadas al admitir el yugo sarraceno. Nunca habian quedado enteramente á merced de los invasores, ni aun en aquellas pocas poblaciones que habian hecho tenaz resistencia y que habian sido tomadas á viva fuerza, porque no eran asaz numerosas las huestes agarenas para poblar y conquistar á un tiempo, y no les convenia ahuyentar á los naturales con la servidumbre. Eran, sí, en las mismas ciudades ganadas por capitulacion frecuentes las persecuciones contra los mozárabes cuando la tiranía ó la razon de Estado arrollaban la barrera de los convenios, y entonces la suerte de los vencidos seguia todas las alternativas del capricho ó del temor, y los infelices sojuzgados no tenian mas arbitrios que la fuga, ó el martirio, ó la rebelion, ó la abjuracion de su fé. Pero estas eran épocas escepcionales, y ya hemos visto trascurrir largos reinados sin que los mozárabes se lamentasen de la tiranía de los califas, mostrándose por el contrario demasiado avenidos y contentos tal vez con el yugo de oro de los muzlimes. En muy semejante estado quedarian probablemente los mahometanos bajo el dominio de Leon y Castilla. En las ciudades como Toledo[348], Valencia[349], Sevilla[350] y otras, tomadas por capitulacion, se observarian con los muzlimes los tratos y convenios celebrados; cuando la poblacion habia sido entrada á viva fuerza, ó sin mas concesion, como en Córdoba, que la vida y la libertad de espatriarse[351], es evidente que los que no pudieron usar de este beneficio y permanecieron en sus casas, quedaron entregados á merced de los conquistadores. En ambos casos se hacian tributarios de los cristianos; pero con esta notable diferencia, que los entregados por capitulacion conservaban derechos de que no podian ser legalmente despojados, y los rendidos á la fuerza, no pudiendo alegar ningun pacto escrito, solo por humanidad y equidad no eran tratados como cautivos y no se veían reducidos á ese tristísimo estado que el sabio rey D. Alfonso reconocia como la mayor malandancia que los homes pueden haber en este mundo[352].

Unos y otros sin embargo llevaban indistintamente el nombre de mudéjares[353], porque nunca los piadosos reyes cristianos permitieron que los muzlimes que se habian entregado á la clemencia fuesen tratados como siervos, y en rigor estos no eran cautivos. No habian sido hechos prisioneros con las armas en la mano y en la guerra misma, sino que se habian rendido y entregado á merced del vencedor en medio de su triunfo, y como acogiéndose á los sagrados derechos de la naturaleza. Pero ¿podremos afirmar que los mudéjares de Córdoba gozasen en la ciudad reconquistada del libre uso de su culto público, como los judíos que tenian su sinagoga? No porque esta tolerancia estuviese en contradiccion manifiesta con el motivo religioso que declaraba santa la guerra contra los infieles, y hacia aplicables á ella las gracias espirituales concedidas por la Iglesia á las cruzadas en Oriente, hemos de concluir que no la disfrutaron los mudéjares cordobeses, pues los de Toledo, Valencia y otras ciudades, la disfrutaron. Si así lo creemos, es solo por no haber mediado estipulacion espresa acerca de la conservacion del culto islamita en Córdoba, y porque no hallamos un solo documento que nos autorice á creer que á los muzlimes que permanecieron en esta ciudad y tierras circunvecinas con los cristianos conquistadores, se les hubiese reservado una sola mezquita en que congregarse para hacer sus azalas. Así pues, si estos mudéjares no vivian en la tristísima y dura condicion de los siervos, tampoco disfrutaban la libertad religiosa y demas derechos que en aquella misma época aseguraban el fuero de Valencia á los muzlimes vasallos de D. Jaime el Conquistador, y á otros vasallos mas felices de Fernando, Alfonso y Sancho, las capitulaciones de Toledo y Sevilla. Tal vez se observarian con ellos aquellos mismos principios de equidad natural ya consignados en el sabio Código de las Partidas, y á la sazon aun no observados como legislacion general del reino.[354] No podria obligárseles á que abrazáran el cristianismo, pero serían entre ellos frecuentes las conversiones, porque abjurando la fé de sus mayores, se habilitaban para gozar de todos los privilegios concedidos á los cristianos de sangre pura. Tendrian sus tribunales particulares donde todas sus contiendas se decidirian por el Koran y la Sunnah; pero en los litigios con los cristianos estarian sujetos á los tribunales ordinarios. Podrian santificar privadamente el dia juma (viernes) como santificaban los judíos el sábado; pero no podrian trabajar en público los domingos y demas festividades de la iglesia cristiana. En cuanto á tributos, vemos que los que se les imponian eran realmente arbitrarios. Ademas del diezmo que pagaban como los cristianos, contribuían á la iglesia catedral con su trabajo corporal en determinados dias, y en esto verdaderamente mas bien eran siervos que hombres de condicion libre.

No sabemos á punto fijo cuándo caducó el privilegio de obligar á todos los mudéjares sin distincion á trabajar en las obras de la catedral; pero nos inclinamos á creer que duraria cuanto duró en Córdoba aquella clase de gente, es decir, hasta el tiempo de los reyes católicos D. Fernando y D.ª Isabel. Si el islamismo, como nacionalidad y Estado, quedaba al espirar el siglo XIII arrinconado en Granada como en su último refugio, acosado por las victorias de las tres grandes monarquías castellana, aragonesa y portuguesa; como reliquia y fermento duraba en todas las poblaciones reconquistadas. Aún habian de dar las funestas discordias de los príncipes cristianos de la Península dos siglos de aliento y de esperanzas á la morisma, antes que despuntasen para Granada auroras de fuego y sangre de la parte de Castilla y Aragon unidos. En tan largo período, los mudéjares cordobeses, privados de culto público, sin mezquitas, sin escuelas, sin academias, irian gradualmente olvidando la ley y la tradicion, se entibiaria su celo, muchos cederian á las amonestaciones y á la intimidacion y se harian cristianos, otros se convertirian al judaismo; otros finalmente acabarian por vivir sin religion alguna. La arquitectura, sin empleo, decaeria entre estos degenerados muzlimes como todos los otros ramos del saber. No hallamos en la mezquita rastro alguno del arte musulman en todo el tiempo trascurrido desde D. Sancho hasta Enrique II. Los artífices de la secta vencida se emplean solo en trabajos de mera conservacion, y si toman alguna parte en la construccion de las capillas que van paulatinamente cubriendo por el interior los cuatro muros de esta famosa ciudadela del Islam, debe creerse que lo hacen mas como obreros subordinados á los arquitectos cristianos, que como artistas dueños de su pensamiento. Convertida Córdoba por otra parte en plaza de armas permanente contra los infieles y trabajada ademas por las guerras de partidos, mal podia sobresalir en obras artísticas. Los ricos hombres y caballeros ocupados en funestas parcialidades ó en correrías por las fronteras de los enemigos de la fé, gastaban sus rentas en las cabalgadas, y solo cuando era preciso dar honrosa sepultura á los amados restos del padre, del hijo ó de la esposa, y asegurar á sus almas los sufragios de la iglesia y de los fieles, se acordaban de construir capillas y de fundar en ellas capellanías; lo que se verificaba casi siempre con la economía que reclamaba su capital ocupacion, la guerra. No merecen mencionarse por su arquitectura las obras de esta especie; solo los grandes recuerdos que despiertan en la mente por los héroes que en ellas estan ó estuvieron enterrados, hacen preciosa su antigüedad, y deplorables las trasformaciones que la mayor parte han sufrido. Si de ellas hacemos mérito es únicamente por esta circunstancia, y para que el lector, al desfilar por ante sus ojos las sombras de los ilustres varones cordobeses que mas adelante vamos á evocar, sepa en qué capillas oraron prosternados, y en cuáles se hicieron enterrar humildes tantos y tantos vástagos de los mas gloriosos linages de la Bética.

Despues de la capilla que fundó al apóstol Santiago el obispo D. Fernando de Mesa, no hallamos en el período de quince años ninguna otra capilla anterior á la segunda de S. Bartolomé, costeada en 1280 por Martin Muñoz, sobrino del famoso adalid Domingo Muñoz, y contigua á la de su tio por la parte de poniente. No es esto decir que no se hiciese antes en la catedral cosa alguna notable. Sobre el enhiesto alminar del califa An-nasír[355] se colocó por los años de 1278 la primera imágen del Arcángel S. Rafael que la gigantesca torre de la catedral levanta hoy á la region de las nubes, y que el devoto pueblo cordobés empezó desde entonces á venerar en cien monumentos como su Paladion tutelar contra las públicas calamidades. La causa segun la piadosa tradicion fué esta. Padecia Córdoba una gran peste, de la cual moria innumerable gente: el obispo D. Pascual, fiel á su ministerio de pastor, previniendo con su vigilancia y celo todos los remedios corporales y espirituales para librar á su grey del tremendo contagio, habia mandado que se implorase la clemencia divina con contínuas rogativas, y no cesaba de clamar á María Santísima para que su pueblo esperimentase el saludable efecto de su maternal intercesion. Hallábase en esta ocasion de comendador del convento de nuestra Señora de la Merced Fr. Simon de Sousa, varon de singular virtud; y pidiendo á Dios el mismo remedio, se le apareció el Arcángel S. Rafael, y le habló así: «Dirás al obispo D. Pascual que está Dios muy satisfecho de su vigilancia y cuidado, y que por sus oraciones y las de otros fieles, y por la intercesion de su santa Madre, se ha compadecido de este pueblo. Que ponga mi imágen en lo alto de la torre de la iglesia catedral, y exhorte á todos sus feligreses á que me sean devotos y celebren mi fiesta todos los años: que si así se hace, este contagio cesará de todo punto.» Ejecutólo el venerable obispo, cesó la plaga, y de entonces mira la poblacion de Córdoba campear triunfante en lo mas alto de su catedral, á modo de gloriosa enseña, ó de eficaz para-rayo para los dias críticos en que fulmina sus formidables castigos el Eterno, la imágen de su santo patrono y abogado. La contempló primero sobre el elegante alminar árabe donde tremoló el pendon real de S. Fernando, y luego en la torre reedificada, desde fines del siglo XVI. Seguiria á la nueva capilla de S. Bartolomé la célebre de S. Pablo, propia de la familia de los Godois, si fuese cierta la aseveracion de un cronista que entre los caballeros y ricos-hombres que salieron de Córdoba con el infante D. Juan á recibir á D. Sancho en 1284 reconociéndole por su rey y señor, muerto D. Alfonso el sabio, nombra al maestre de Santiago D. Pedro Muñiz de Godoy, añadiendo que poco despues murió y fué sepultado en su capilla del apóstol S. Pablo en la santa iglesia catedral[356]. Con las capillas de S. Nicolás[357], de S. Benito[358], de S. Vicente[359], de nuestra Señora de las Nieves[360] y de S. Gil[361], fundacion la primera de un devoto arcediano de Córdoba que la situó á levante, en el décimoquinto tramo de la última nave principal, y erigida la de nuestra Señora de las Nieves por un chantre y dos particulares de quienes no hallamos mencion particular, los cuales eligieron el octavo tramo de la primera nave principal al poniente, termina el siglo XIII su casi insignificante tarea en la mezquita de Córdoba, donde por no innovar demasiado, ó por no considerarse seguro el arte occidental en una ciudad espuesta todavía á volver á caer bajo el yugo de los infieles, no realiza la arquitectura ojival ninguna de aquellas portentosas creaciones que lega en Francia S. Luis á la admiracion de las edades futuras, y que el mismo S. Fernando emprende en Burgos y Toledo.

No se muestra realmente en la catedral de Córdoba con su verdadero carácter la arquitectura de ese gran siglo que de su sola fé sacó tantos tesoros de gracia, de sublimidad y de fuerza. Pero si su arte no dejó en ella una fiel estampa, dura al menos en sus tradiciones el sello de aquel espíritu ardiente y celoso en las cosas divinas, que tan noblemente supo triunfar de las costumbres é ideas semi-bárbaras y semi-gentílicas de la edad media. Y es por cierto admirable cómo la Providencia favorecia las piadosas estratagemas de los hombres de buena intencion y viva fé. Porque no siempre ocurria implorar proteccion de la autoridad y de la fuerza contra los escesos y desmanes: esto era á veces lo mas sencillo: padecian, por ejemplo, la Iglesia y el estado eclesiástico vejaciones y gravámenes de los ministros reales y hombres poderosos, porque tomaban violentamente las rentas de los obispados vacantes y quitaban á los cabildos la libertad en las elecciones de obispos y beneficiados, imponian tal vez pechos y nuevas cargas á los prelados, cabildos, abades y clero, contra la inmunidad que debian gozar por reales privilegios: y todo se remediaba quejándose al rey y pidiéndole la correccion de los escesos cometidos[362]. Pero ¿cómo corregir la aspereza de las costumbres? ¿cómo refrenar los fogosos arranques del puntilloso honor ofendido, en los mismos individuos del estado eclesiástico, que, avezados á esgrimir el acero en el campo de batalla, hacian como el Cid campaña la Iglesia al mas ligero viso de desprecio ó de insulto? Un celoso obispo sin embargo[363] halló un medio ingenioso para corregir el desacato de las ofensas personales entre eclesiásticos. Conociendo la ineficacia de las penas puramente canónicas, imaginó celebrar con el cabildo un Estatuto en virtud del cual, todo individuo del clero catedral, fuese dignidad, canónigo, racionero ó medio-racionero, que injuriase á otro en la iglesia, ciudad ú obispado, tenia que pagar al obispo y al cabildo un buen y cumplido yantar. Este Estatuto, acordado en 5 de marzo de 1298, perseveró hasta el año de 1366, y aunque nada nos dicen los cronistas cordobeses de los efectos que produjo, debemos sospechar que no sería ineficaz considerada la cuantía de la pena pecuniaria que se echaba encima el que se deslizaba en la via de las ofensas personales, pues ademas de ser en todos tiempos el bolsillo el mejor fiador de la probidad legal de los hombres vulgares, era tal el lujo introducido en las mesas en aquella época, que para que un yantar se reputase bueno y cumplido, habia de costarle al prebendado incurso en semejante pena por lo menos la renta de medio año. Cuéntase un hecho que pinta muy bien la maravillosa asistencia que prestaba la divinidad al poder eclesiástico en aquella época en que la autoridad espiritual era la primera necesidad de las sociedades: y no queremos pasarlo en silencio. Corria el año 1286, y era obispo en Córdoba el mismo D. Pascual antes nombrado. «En este tiempo, refiere un timorato cronista, sucedió en la iglesia catedral el prodigio siguiente: Acudian muchedumbre de golondrinas á hacer sus nidos en la santa iglesia, y con sus molestos cantos perturbaban á los ministros de Jesucristo, al tiempo que se celebraban los oficios divinos. Con sus escrementos y cosas que traian para fabricar sus nidos, ensuciaban la iglesia y los altares. Ponian cuidado en quitárselos y derribárselos, y nada bastaba, porque como la iglesia es tan grande, cuantos remedios se hacian nada importaban. Para quitar este grande estorbo, no hallaron otro mas conveniente remedio que acudir á las armas espirituales. Hízose cabeza de proceso contra ellas, formóse pleito en forma, nombrando parte para que las defendiese; llegó el tiempo de sentenciarse, y la sentencia fué: que con censuras fuesen echadas de la iglesia. ¡Cosa rara! Desde el punto que se les leyó la sentencia, jamás han sido vistas en esta santa iglesia, siendo sus techos tan á propósito para sus nidos. ¡Oh dichosos tiempos en que se celaba el ruido que se hacia, porque no perturbase á los ministros de Dios en los divinos oficios[364]!» Este hecho en sí parecerá ridículo á los que solo miran la superficie de las cosas: ¡emplear las armas espirituales contra las golondrinas! ¡qué disparate! Nosotros avanzaremos mas: negaremos el hecho. Pero, aun suponiendo que esta anécdota sea invencion de algun apasionado de esas inocentes avecillas, que el vulgo cristiano mira y casi reverencia como piadosos auxiliares de la compasion del hombre hácia su Redentor clavado en la cruz y coronado de espinas, de todos modos podrá entenderse como fórmula de una gran verdad, á saber, que nunca las armas espirituales fueron desairadas por Dios en la creyente edad media cuando se emplearon en su honra y acatamiento, y que él mismo inspiró á sus vicegerentes en la tierra una confianza ciega en la asistencia divina para llevar á cabo obras que parecian humanamente imposibles, dándoles imperio no ya sobre los seres racionales, sino tambien sobre los irracionales y sobre la misma naturaleza inerte. Las colosales obras que llevó á cabo el décimotercio siglo sin mas elementos que la fé y el amor, su portentosa cruzada contra los albigenses, su cruzada épica en la Tierra Santa, las universidades que fundó, los institutos religiosos que vió florecer, las gigantescas catedrales que vió erigir, los hombres eminentes que vió descollar, testigos son de esta verdad insigne: el amor divino hace fecunda la edad media, y un acto de fé de la humanidad concorde basta para que salga de ella completamente armada la nueva Minerva, asistida de genios adecuados para todas las artes y ciencias. Son santos todos estos genios, y no hay mas que decir, porque cada uno de ellos es un prodigio de abnegacion, de pureza y de amor. Este sentimiento enérgico es el que los hace grandes; ¡cosa admirable! ¡El siglo en que viven es un siglo de guerras y de sangre, de licencia y desenfreno, y el culto puro y delicado de la casta Madre del Verbo se propaga con la doctrina y el ejemplo del tierno y afectuoso Sto. Domingo, del sublime Sto. Tomás, del profundo S. Alberto, del seráfico S. Buenaventura, y en pós de ellos los pueblos, los reyes, los magnates y los siervos caen prosternados tendiendo los brazos hácia la hermosa Reina del cielo, clara y pura estrella de la mañana, consuelo de los afligidos! ¡El siglo en que viven es pobre é ignorante en las cosas materiales, sin recuerdo de las reglas y teorías de la antigüedad, y el mismo esfuerzo que hace por emanciparse completamente de la tradicion pagana le conduce á un arte nuevo, imponente y gigantesco, en que bajo la direccion de genios tan privilegiados como humildes, tan amantes de la gloria del catolicismo como de su propia oscuridad, la escultura se convierte toda en espíritu, sentimiento, espresion, plegaria y dolor, y la arquitectura se eleva como un himno incesante, como una oracion perpetua, desapareciendo la piedra bajo la idea, la forma bajo el concepto, la materia ante el espíritu!

Acercábase á la mitad de su curso el turbulento siglo décimocuarto, y casi nada se habia labrado de nuevo en la catedral[365]. Las disensiones civiles ocasionadas por las competencias sobre el gobierno del reino durante la menor edad de D. Alonso XI, las correrías de Ozmin por el reino de Córdoba, las talas hechas en el mismo por el rey de Granada, las pérdidas de varios pueblos y castillos, los crueles escarmientos ejecutados por el monarca adolescente en los parciales de D. Juan Manuel, eran causas harto poderosas para que muriesen de inanicion las artes en la antigua corte de los califas. La inmensa catedral recibia de vez en cuando en sus escasas capillas los inanimados despojos de los mas nobles y valerosos caballeros, muertos en deplorables lides intestinas ó en gloriosas algaradas y defensas contra la morisma; pero no interrumpian su solemne silencio las tareas de los bulliciosos y alegres artesanos. Ni resonaban bajo sus espaciosos artesonados los golpes del cantero, ni se oía ruido alguno de albañiles y carpinteros, á escepcion de la franca algarabía de los mudéjares rara vez ocupados en los reparos de la gran fábrica. Desde el año de la terrible muerte del rey emplazado (1312), seis capellanes venian cada noche á decir su vigilia á la capilla mayor cabe la regia huesa: como espíritus del otro mundo allí misteriosamente congregados, deslizábanse silenciosos por las largas y tenebrosas columnatas, murmuraban su rezo, y volvian á dispersarse. Todos los años cumplia el cabildo por el mes de setiembre el aniversario fundado por la aterrada D.ª Constanza; y por espacio de trescientos sesenta y cinco dias con sus noches, hasta cumplirse el año de la muerte de D. Fernando, habian constantemente ardido cuatro cirios sobre la misma sepultura, yendo diariamente el obispo y el cabildo á decir su responso por el alma del malhadado rey. Memorias fúnebres, ceremonias lúgubres, ocasiones repetidas de lágrimas y lamentos para los amigos y deudos, de exaltacion y mayor encono para los enemigos, son casi las únicas dedicaciones que ocurren en la iglesia mayor hasta el reinado de D. Enrique el Bastardo. Solo cuatro capillas se edifican en este desgraciado período, la de S. Ildefonso, al poniente, en 1347; la de nuestra Señora de la Encarnacion, al sur, en 1365; la de S. Pedro, tambien al sur, en 1368; y la de Sancti Spiritus, al poniente, en 1369. Fundó la de S. Ildefonso el obispo D. Fernando Nuñez de Cabrera, que tres años despues falleció y fué enterrado en ella, cubriendo su humilde sepultura una pequeña lápida de mármol blanco que dice así: Aquí yace el muy reverendo Sr. D. Fernando de Cabrera, obispo de Córdoba, que Dios haya. D. Martin de Argote su sobrino, tambien obispo de Córdoba, fué enterrado en la misma capilla por los años de 1362, y yacen sus despojos bajo otra lápida no menos humilde, con inscripcion igualmente sencilla. Ultimamente, yace asímismo en ella el infeliz Pedro de Cabrera, á quien mandó degollar el rey D. Pedro el Cruel juntamente con D. Fernando Alonso Gahete, por haberse pronunciado partidario de la desgraciada reina D.ª Blanca[366]. La de nuestra Señora de la Encarnacion fué cedida por el cabildo á Vasco Alfonso de Sousa[367], caballero portugués de gran cuenta, segun se colige de la curiosa inscripcion que se conserva en dos arcos al lado de su altar, y que dice así: Esta capilla dotó el muy honrado caballero Vasco Alfonso, el cual vino de Portugal mozo e trújolo D. Juan Alfonso, señor de Alburquerque, que era su tio, el cual trujo á los reyes, e fué alcalde mayor de Córdoba, e casó con D.ª María, fija de Gomez Fernandez, señor de Santofimia: e este Vasco Alfonso fué padre de D.ª Juana, madre del duque D. Enrique, fijo del rey D. Enrique el primero (entiéndase D. Enrique II el Bastardo), y este duque está sepultado en una tumba dorada debajo del arco dorado que está en la capilla del altar mayor, e padre de Diego Alonso de Sosa, que está sepultado en esta capilla con sus padres, padre de Juan de Sosa, veinticuatro de Córdoba, el cual es patron y administrador desta capilla para él e para los que dél descendiesen, el cual mandó facer esta bóveda de enterramiento, el cual mandó escrebir aquí esta memoria año del Señor de mil e quatrocientos y ochenta y dos años, jueves 3 de enero. La capilla de S. Pedro fué fundada por el valeroso caballero D. Alonso Fernandez de Montemayor, adelantado mayor de la frontera, en el magnífico vestíbulo del mihrab que le dió al efecto el cabildo en reconocimiento de la heróica defensa que hizo de Córdoba contra los ejércitos combinados de los reyes D. Pedro el Cruel y Mohamad de Granada. Felizmente al erigir esta capilla para nada se tocó á su decoracion peregrina: lo único que se hizo fué arrimar el altar á la fachada del mihrab ó santuario, y destinar sin duda este á sacristía, adornando los entrepaños de sus paredes con imágenes pintadas, que en cierto modo es doloroso no se conserven hoy siendo tan escasas en España las reliquias de la antigua pintura mural cristiana.

El magnánimo fundador yace enterrado en medio de esta capilla, en una sencilla urna de mármol, en cuyo tablero superior se ve solamente la banda de Castilla atravesada, entre dos dragantes: armas que tomó su padre D. Martin Alonso de Córdoba venciendo al rey de Granada en el memorable sitio de Castro el Rio, en 1333. Cerca de su tumba en una pequeña lápida se lée un epitáfio que dice: Aquí yace la noble señora D.ª Leonor Bocanegra, nieta del adelantado D. Alonso Fernandez, señor de la casa de Montemayor.[368] Habia en esta capilla fundadas doce capellanías, y era su patrono el conde de Alcaudete, de cuyo estado fué tambien fundador el famoso adelantado. El cabildo concedió á las casas de los señores de Alcaudete, de Aguilar, de Lucena y de Guadalcázar, del apellido de Córdoba, y á los descendientes de este glorioso tronco, la honrosa distincion del doble de la cepa,[369] que consiste en hacer por ellos el doble ó toque de campanas con la principal de la torre, á la cual acompañan otras tres. Fuéles este privilegio concedido en conmemoracion de la famosa defensa de Córdoba: cúmpleseles religiosamente hoy dia; y el viajero advertido que recorre nuestras antiguas ciudades en busca de recuerdos consoladores, que la moderna civilizacion no le ofrece en las bulliciosas córtes, al oir el melancólico y grave tañido que por la desierta ciudad se difunde como voz que se dirige á las actuales generaciones desde la augusta mansion del eterno reposo, cree escuchar sentidos y varoniles acentos de reconvencion de los antiguos héroes de la monarquía castellana, y bendice la piadosa constancia que nos los conserva y perpetúa, en medio de un siglo incrédulo y disipado, solo atento á los goces materiales, y consagrado á pulverizar y entregar al olvido sus venerandos despojos, sus preciosas memorias, y los saludables documentos de su honor y de su fé. La capilla de Sancti Spiritus se fundó contigua al vestíbulo de la antigua catedral por el mediodia, por Diego Fernandez de Córdoba, á quien cedió ese sitio el cabildo. Luego el primer marqués de Comares, tercer nieto del Diego Fernandez, la dió á Luis de Angulo, su tio, veinticuatro de la ciudad, de quien la hubieron los marqueses de Guadalcázar, sus descendientes. A esta capilla de Sancti Spiritus se trasladó por los años de 1523 la que con el título de S. Lorenzo habia fundado en 1298 el arcediano de Castro D. Sebastian Ruiz para su entierro y el de los señores deanes, y entonces perdió su título primitivo por el de S. Lorenzo[370].

El año mismo que se fundó esta capilla subió al trono de Castilla el fratricida D. Enrique, con cuyo advenimiento sosegados los partidos, recobraron algun aliento las artes. Deseoso este rey de cumplir la última voluntad de su padre el vencedor de Benamarin, que yacia depositado en la capilla real de Sevilla, y de darle un enterramiento digno de su esclarecido renombre, mandó fabricar á espalda de la capilla mayor, en la misma tribuna árabe que le servia de sacristía, una capilla real, y resolvió colocar en ella no solamente el cuerpo de su padre D. Alonso XI, sino tambien el de su abuelo D. Fernando el Emplazado, que yacía en la capilla mayor, donde lo habia hecho enterrar la reina D.ª Constanza. No debió ser de larga duracion esta obra, porque lo único que se hizo fué reformar el cuerpo inferior de la referida cámara, demoliendo su antigua decoracion de estuco y poniendo en su lugar la que ahora se observa, que, á pesar del cuidado con que se llevó á cabo esta restauracion siguiendo el estilo sarraceno, se distingue perfectamente de la obra morisca por las armas de Castilla y Leon esculpidas entre los florones de su tracería, y por la misma ejecucion de la labor, menos concluida y menos brillante que la de los artífices de Almanzor. Serían probablemente moros mudéjares los que la hicieron, y acaso de los mismos que tenia la catedral á su disposicion por el privilegio atrás mencionado. Obra de mero ornato, no tiene importancia sino para el estudio del gusto de la época, en que, como luego veremos, reinan dos estilos enteramente opuestos, el del sarraceno conquistado y el del cristiano conquistador, pero adoptado aquel con preferencia por los que rigen y gobiernan á la escandalizada gente castellana. Su distribucion es la siguiente. Hay hácia el medio del lado de levante un arco formado de bovedillas estalacticias, ligeramente apuntado, de bastante profundidad, encerrado en una especie de arrabá de estuco dorado formando ramos bellamente entretejidos. Termina el arrabá ó recuadro por la parte inferior en una ancha faja, que corre á ambos lados sobre un alto zócalo de menudo y vistoso alicatado, y entre sus complicados adornos de relieve se forman círculos que ocupan las armas de Castilla y Leon. Al lado derecho campea sobre esta misma faja un arco ornamental de once lóbulos, encerrado en otro arrabá cuajado todo de tracería relevada, sostenido por dos muy ligeras columnillas entregadas en el muro. Junto á este hay otro arquito, mucho mas bajo, de siete lóbulos, tambien ornamental, y sostenido en columnillas del mismo estilo que las anteriores, llevando encima un escudo con las armas referidas. El lado izquierdo ofrece igual decoracion, con la sola diferencia de ser dos los arquitos de siete lóbulos, por tener el lienzo de pared mayor estension á este lado, y de llevar el mas inmediato al ángulo N-O en vez de escudo un adorno de menudísimo calado. En la pared de enfrente hay una distribucion análoga, con un arco central profundo y arquitos figurados y angrelados á los lados, con columnillas á la manera gótica, en las cuales se deja ver desde luego que esta decoracion no es de estilo morisco franco y decidido, sino de un gusto bastardo en que se asocian elementos heterogéneos, propios de los dos artes oriental y occidental. En esto quizás, mas bien que la falta de pureza en el arte que tradicionalmente practicaban los artífices mudéjares, debemos considerar una concesion hecha por el estilo favorito de la corte al celo sacerdotal, resentido tal vez, y con razon sobrada, de que se erigiese una Capilla Real sin contar para nada con el magestuoso estilo del occidente.

Ejecutada la obra que ligeramente hemos descrito, mandó D. Enrique el Bastardo trasladar á esta capilla con regia y solemne pompa los cuerpos de su padre D. Alfonso XI y de su abuelo D. Fernando el Emplazado, que descansaban, el primero en la capilla real de Sevilla, y el segundo en la capilla mayor de la misma catedral de Córdoba, donde lo habia hecho enterrar, segun queda dicho, la reina D.ª Constanza. No sabemos qué lugar ocuparon los dos regios cadáveres; posible parece que se destináran á cobijarlos los dos arcos rehundidos que vienen á ocupar el centro de los dos lienzos de oriente y poniente, donde vemos hoy dos altares. Ni hemos podido rastrear tampoco qué paradero tuvieron las arcas de madera en que yacían, y que algun autor supone de talla preciosa atendido el estado de la escultura en la época en que se labraron. Las que hoy se conservan dentro de los sepulcros de jaspe que pocos años há se les dieron en la Colegiata de S. Hipólito, no pueden ser las primitivas, porque son enteramente lisas y no corresponden ni á aquellos ilustres personages ni á la costumbre de aquellos tiempos. Volvamos al carácter de la obra de D. Enrique.

Sorprende en verdad que teniendo España en el siglo XIV una arquitectura tan bella, tan gallarda, tan cristiana en su fisonomía como la gótica del segundo período, fuese ese rey á servirse de la sarracena para labrar la capilla real de Córdoba; pero si bien lo consideramos, este hecho nada tiene de estraño. La aficion á las ideas y costumbres islamitas no es como vulgarmente se cree carácter distintivo y peculiar de aquel otro rey tirano á quien motejó de renegado su pueblo porque le vió dado á la poligamia, inclinado á sangrientas venganzas, acompañado siempre de una escolta de moros granadinos, y viviendo en un alcázar de voluptuosa y oriental decoracion como la Alhambra. No es solo D. Pedro el que prefiere la cultura morisca á la cristiana. En la fisonomía particular del siglo XIV es una faccion muy principal la divergencia entre las ideas nacionales ó populares ó las ideas de la corte, y este antagonismo se observa mas marcado en España que en ningun otro pais. En el siglo que inaugura la era moderna es biforme entre nosotros la espresion de todas las grandes ideas sociales: la religion, la política, la literatura, el arte, se formulan de dos maneras enteramente opuestas en la corte y entre el pueblo: fórmula nacional y popular, católica, esclusista y celosa por un lado; fórmula de corte y gabinete, filosófica, reformista, incrédula, tolerante y sin celo, por el otro. La corte y el pueblo piensa en todo de distinto modo: la corte es escéptica y el pueblo es creyente; la corte transige con los dos implacables y constantes enemigos del cristianismo, los pueblos mahometano y judáico, y la nacion anhela su completo esterminio; la política de la corte ajusta paces con el rey de Granada para mover guerra al de Aragon, y la política nacional abandona al renegado á su descabellado empeño protestando de todas las maneras posibles contra la violencia que padece; la corte ama una literatura impregnada de sensualismo y un arte seductor y pagano, y la nacion prefiere la nervuda y varonil literatura de sus romances y el arte austero, místico y sombrío, florecido á la sombra de los claustros.

Tampoco debemos sorprendernos de hallar en muchas construcciones de los siglos XIV y XV la amalgama de los dos artes gótico y sarraceno. Las artes, por lo que tienen de práctico y consuetudinario, se prestan á la fusion de los mas opuestos caractéres; no son como las teorías abstractas, entre las cuales puede haber antagonismo perpétuo sin tentativas de aproximacion y concordia; y dos estilos arquitectónicos, en su razon filosófica contrarios, apenas pueden coexistir sin una recíproca inoculacion de formas. Así como el famoso alcaide de Antequera[371] no dejaba de ser el terror de los agarenos por presentarse en las lides tocado á la morisca, del mismo modo podia ser cristiana la idea que motivaba la construccion de que vamos tratando, á pesar de ser pagano el estilo en que se realizaba. La clase sacerdotal sin embargo, mas unida en sus tendencias con la masa nacional que con la corte, repugnaba estos recuerdos de cultura profana. Era el monarca el que costeaba la obra y habia que aceptarla tal como se le daba; pero siempre que el clero podia obrar con independencia, imponia como cánon para las construcciones sagradas la severa y magestuosa forma ojival, verdadero emblema de sus pasados triunfos. La arquitectura oriental en la España reconquistada aparece pues dominadora y esclusiva en las principales construcciones palatinas; en las religiosas, menos exigente, tiende á combinarse con el estilo occidental, produciendo un estilo híbrida; solo las fábricas propiamente monásticas la escluyen completamente. Pero el estilo popular y el de la corte luchan en el terreno del arte como en el de la política, en el de la religion y en el de la literatura, hasta que en la gran contienda queda por fin el principio espiritualista vencido en el siglo del renacimiento. Esto hace que en las antiguas ciudades de Andalucía, donde la larga práctica del pais favorece la conservacion del estilo oriental, y donde por consiguiente es mas interesante y empeñada la lucha, sea mas dificil que en el resto de la monarquía distinguir y caracterizar las diversas épocas del arte monumental.

Solo en los tiempos de fé incontaminada y pura toma el arte aquel carácter decidido y significativo que revela claramente á primera vista la idea que le ha dado el ser. Pero ¿cómo prometerse semejante carácter de pureza del arte de unos tiempos como aquellos en que manchaban el solio de S. Fernando el concubinato, la tiranía, el fratricidio, la disipacion, la impotencia, y desdoraban los timbres de los mas ilustres linages la venalidad, la adulacion, la traicion, el lenocinio? El siglo en que comienza para Europa la era de la division y del individualismo, en que al grandioso pensamiento que llevó á S. Luis á morir en las playas africanas, en defensa comun de la cristiandad, se sustituye la mezquina política de rivalidades que termina en el sistema moderno del equilibrio europeo; el siglo en que la humanidad, poseida de un vértigo de independencia, rompe el áureo lazo de la fraternidad y unidad católica y se entrega al inmoderado ejercicio de sus facultades aisladas, no es siglo en que puede aspirar á grandes creaciones un arte como la arquitectura, que há menester mas que otro alguno de esfuerzos colectivos y de unidad de pensamiento. En España, ya lo hemos dicho, la nacion y el gobierno siguen sistemas opuestos en política, en literatura, en artes: D. Juan I, D. Enrique III, D. Juan II, D. Enrique IV, que suceden á los dos hermanos enemigos D. Pedro y D. Enrique el Bastardo, en cuyos reinados se marca mas particularmente el apego de la corte á las costumbres y artes islamitas, erigen es cierto monumentos religiosos muy notables en que brilla el sistema occidental denominado gótico; pero para sus alcázares y construcciones palacianas prefieren la arquitectura oriental. El mismo estilo gótico de estos tiempos se muestra en visible decadencia, comparado con el sistema imponente, augusto, sacerdotal y solemne de la época de S. Luis y S. Fernando, y hasta la gala y riqueza de que aparece sobrecargado es seguro indicio de que el antes sencillo y grave hijo del claustro se ha vuelto jactancioso y presumido en el roce de la corte. El mundo europeo, insensible á las cuestiones de causa comun, mal puede interesarse en el progreso de un arte que nació y creció comun. La grande época de la arquitectura occidental es el siglo XIII: los dos siglos que le siguen se consumen en esfuerzos estériles, en agitaciones infecundas, en tentativas ilusorias, contradictorias entre sí, sin carácter, sin plan, sin forma, en que todo es indeciso é imprevisto. La época que media desde la última cruzada hasta el descubrimiento del nuevo mundo es época de confusion y caos, en cuyo fondo sin embargo duerme el sueño de la gestacion el mundo moderno. Es por consiguiente de transicion el período que el arte va recorriendo en todas las naciones europeas desde los tiempos del rey santo, y del mismo modo que en el orbe político se van lentamente formando las diversas nacionalidades, en el orbe artístico van pronunciándose gradualmente las diversas fisonomías monumentales de las córtes ó centros de gobierno, que sólidamente se constituyen y engrandecen á costa del sistema general, católico y popular.

En una cosa convienen sin embargo todos los nuevos sistemas nacionales, y es en la ausencia del carácter religioso. El interés religioso es en este período de transicion el mas postergado por las naciones cristianas, y la católica España, si no pierde de vista completamente los deberes que su fé le impone, parece al menos no curarse de ellos sino de tarde en tarde, cuando puede utilizarlos como derechos en pró de su ambicion particular.

Este período interesante y trabajoso de la formacion de las nacionalidades y su emancipacion del centro religioso, que abraza los dos siglos XIV y XV, merecia un estudio especial á que no presta campo la historia del monumento que estamos describiendo. Pero conviene no perder de vista el espíritu de esta época singular, tan dramática en sus diversas escenas, tan fatal por la uniformidad con que se cumplen los designios de la Providencia en todas las naciones europeas á un mismo tiempo, para saber apreciar los esfuerzos aislados de un arte que, estraño ya al poderoso resorte de la civilizacion religiosa, tiende á formularse de una manera local como los idiomas, como las costumbres, como las legislaciones, á medida que el sentimiento nacional se exalta y el individualismo político triunfa á costa de mil sangrientas batallas. A la unidad ha sucedido la diversidad en la Europa toda: al sentimiento religioso el sentimiento patriótico: decaen las enseñanzas de la escuela católica, y empieza á surgir el racionalismo en los nebulosos cerebros de Juan de Paris y Guillermo de Occam; ocupan los reformadores la brecha abierta por los racionalistas, y á los atrevidos vuelos de la teología se sustituyen las maravillas de la física, alternando con los delirios de la alquimia y de la astrología. Arnaldo de Villanueva, Raimundo Lulio, Rogerio Bacon, Pedro de Ailly, degradan su elevada inteligencia por penetrar los misterios de las ciencias ocultas; las universidades, obsequiosas con la ambicion de los príncipes, empiezan á combatir con los recuerdos de Roma antigua la supremacía de la Santa Sede, tomando parte en la deposicion de los pontífices, exagerando las regalías, dejando perder la escolástica y abandonando el cetro de la ciencia, que hasta entonces con tanta dignidad habian llevado, por mezclarse en las contiendas de los reyes con la Iglesia. Fórmanse las literaturas nacionales: la clásica pagana, infecta de libertinage y seductora por su belleza, se va restaurando á medida que el comercio del Bósforo reune sus dispersos fragmentos y que las galeras bizantinas depositan en Italia á los intérpretes prófugos de la antigua cultura. Las deleitosas formas de la poesía gentílica van cautivando los corazones, y todos en las córtes de los príncipes pugnan por desterrar el rústico y severo atavío de la inesperta musa cristiana. Mientras Juan de Mena, Juan de la Encina y Guevara continúan en España el impulso pedantesco y mitológico de D. Enrique de Villena y su discípulo el marqués de Santillana, la poesía cristiana y pura se refugia en las obras religiosas de Fernan Perez de Guzman. Así las literaturas nacionales, desfloradas en su cuna por innumerables legiones de poetas materialistas que invaden las regiones del mediodia de Europa, la Italia, la Provenza, el Condado de Barcelona, Aragon y Castilla, arrastrando como bagage la artificiosa insipiencia y los afectados suspiros del coro de Helicona, fomentan la general corrupcion de las costumbres. A este renacimiento de las ideas, de la enseñanza y de la literatura paganas, se agregan las heregías y el cisma para acabar con la supremacía espiritual de la Iglesia. El cisma, inaugurado por la ambicion de los príncipes y por la arrogancia de los pueblos, se perpetúa por la malhadada intervencion de las iglesias nacionales. La heregía, armada é impetuosa al abrigo de los magnates codiciosos, truena por boca de Wiklef, de Juan de Huss y de Gerónimo de Praga, y conquista cómplices en todos los Estados. Fuerza es confesarlo, aunque con dolor profundo: todo contribuía al progreso de las ideas reformadoras. La disciplina eclesiástica estaba relajada; los altos dignatarios daban muy funesto ejemplo; las cosas santas no eran ya respetadas; en las relaciones internacionales habia sucedido á la sinceridad y franqueza la diplomacia; desaparecian lentamente las gerarquías sociales; violábase la fé del juramento, grande y solemne garantía de la edad media; el interés personal, el egoismo, eran la norma de los pueblos y de los reyes; todos estos elementos de disolucion reunidos minaban el órden social, y anunciaban grandes catástrofes. Dios de vez en cuando amonestaba á la Europa prevaricadora con tremendos castigos. Solo en la segunda mitad del siglo XIV visitó cuatro veces la escuálida y mortífera peste la floreciente region de Andalucía: la primera vez hizo presa real matando sobre Gibraltar al orgulloso vencedor de Benamarin; las otras tres produjo tan grande mortandad, que para repoblar el reino yermo de gente, fué preciso revocar en el año 1400 la ley antigua que prohibia á las mujeres contraer nuevas nupcias antes de cumplir el año de viudez. No crecía menos amenazante como castigo de la Europa pervertida la barbarie otomana. El imperio Tártaro-Mongol, perseguidor del islamismo, que por mano del formidable Genghiz-Khan habia desgarrado las páginas del libro de Mahoma, y que habia coadyuvado á la grande obra de los cruzados de Occidente, abandonaba los destinos del mundo oriental. En vano el horrible Tamorlan, semejante á un lúgubre metéoro, azotando al orbe incrédulo á diestro y siniestro, desde Samarcanda hasta Delhy, y desde Moscovia hasta la China, cubre los páramos del Asia de ruinas y de sangre; los batallones turcos bajan de la region de los Lobos como los aludes que se desprenden de las montañas de nieve, y sojuzgan brevemente la Persia, el Asia menor, el Asia central. La raza invencible de los hijos de Othman se precipita sobre Constantinopla, y dispersa por toda la cristiandad sus ricos despojos. Los pueblos heróicos de la Hungría y de la Albania, aunque nuevos en el gremio del cristianismo, se aprestan á repeler á las impetuosas hordas turcas; y entre tanto ¡oh vergüenza! ¡una de las naciones primogénitas de la Iglesia, muellemente adormecida al son de las zambras moriscas, no se cuida de cerrarles la via al corazon de Europa por el califato granadino! ¿Qué hubiera sido de la monarquía española, qué del catolicismo entero, si los sucesores de D. Pedro, de los Juanes y de los Enriques, hubiesen seguido la funesta política de aquellos, y no hubieran producido Castilla y Aragon primero, luego España y Alemania de consuno, reyes que hiciesen frente á las pujantes embestidas del otomano, triunfante en Belgrado y en Rodas, jactancioso en Viena, tremebundo en Lepanto?

Hemos procurado abarcar con una rápida ojeada la vida pública de las sociedades europeas en un espacio de dos siglos. Bastan estos ligeros trazos para delinear el triste fondo sobre que figuran las obras artísticas del período indicado. Con este tracto del siglo XIV al primer tercio del XVI coincide próximamente la historia de la catedral de Córdoba desde la obra de la Capilla Real hasta la ereccion del nuevo y grandioso crucero.

Conocida la época en general, la correspondencia entre las ideas y los hechos tiene que resultar forzosamente. Estos hechos, públicos y privados, constituyen la historia civil y religiosa, política, militar, legislativa, administrativa: historia de las creencias, de la ciencia, del arte, de la literatura, de todo lo que tiene vida y accion en el cuerpo social, su inteligencia y sus pasiones. Los hechos del arte son los que narramos, y solo para darles vida, color y voz, los colocamos sobre el campo de las ideas y costumbres. Últimamente, nuestra tarea ahora se circunscribe al arte en un monumento determinado, y por la misma razon le conviene al lector, si es posible, evocar todos los recuerdos notables de la historia de este monumento[372]:

Podemos ya limitarnos á una rápida reseña cronológica de las obras ejecutadas en la catedral durante el período referido.

En el año 1377 fué restaurada la puerta principal del recinto esterior de la mezquita, llamada del Perdon. De esta obra, hecha segun el estilo árabe-africano, tan grato á la corte en tiempo de los Enriques, hablaremos detenidamente al tratar de la decoracion mixta de otras puertas.

Capilla de S. Agustin. La fundaron Ruy Gonzalez Mesia, comendador de Segura en la órden de Santiago, y su mujer D.ª Leonor Carrillo por los años de 1384, arrimada al muro de poniente, ocupando los dos tramos cuarto y quinto de la primera nave principal. En la pared que cierra esta capilla por el lado de mediodia se ve al esterior un arco árabe con inscripcion al rededor y muy delicadas labores, ya casi borradas con las repetidas enjalbegaduras á que son por desgracia tan aficionados los andaluces de nuestros tiempos. Creemos este arco resto de la primitiva fábrica de la capilla.

Capilla de S. Antonio Abad. Fué fundada en 1385 por Ruy Fernandez de Córdoba, hermano de D. Gonzalo, primer señor de Aguilar, en la misma nave principal que la anterior y contra el mismo muro, ocupando los tramos catorce y quince. Yacen en ella el célebre veinticuatro Fernando Alonso de Córdoba, primer señor de Belmonte, y su segunda mujer D.ª Constanza de Baeza y Haro.

Capilla de la Cena. Es la primera á levante de las tres cámaras que constituían en tiempo de los árabes el vestíbulo del Mihrab, y fué Sagrario desde la reconquista hasta el año de 1583 en que se acabó el que hay hoy. En 1393 á 7 de febrero dió el cabildo la propiedad de esta capilla á D. Diego Gutierrez de los Rios, señor de Fernan Nuñez.

Capilla de Sta. Úrsula ó de las Once mil Vírgenes. La fundó en 1398 el Dr. D. Miguel Bermudez, racionero de la santa iglesia, por donacion del cabildo, arrimada al muro del norte, en el tramo primero de la décimosexta nave principal, pagando la fiesta á las Once mil Vírgenes el obispo Gonzalez Deza.

Dibº. del nat.l y litª. por F. J. Parcerisa Lit. de;
J. Donon, Madrid.;
PUERTA DEL PERDON.;
(Catedral de Córdova.)
Dibº. del nat.l y litª. por F. J. Parcerisa Lit. de J. Donon, Madrid.

PUERTA DEL PERDON.
(Catedral de Córdova.)

Capilla de S. Acacio. Fué fundada por el obispo D. Fernando Gonzalez Deza en el año 1400, junto al muro de poniente, mas abajo de la de S. Antonio Abad, ocupando otros dos tramos de la misma nave principal, y dejando entre ambas un espacio igual. El fundador fué enterrado en ella. Su sobrino el piadoso chantre D. Fernando Ruiz de Aguayo la mejoró, y trasladó á ella los cuerpos de su madre y hermanas que yacian en la capilla de las Once mil Vírgenes, dotando en febrero de 1460 doce memorias por las ánimas de su tio, de sus padres y hermanos, que se habian de cumplir sobre la sepultura de dicho señor obispo. En esta capilla se venera una devota imágen de Ecce Homo que el fundador trajo de Roma. De aquí, segun algunos, el llamarse comunmente esta capilla de la Sangre; pero hay quien escribe que es debida esta advocacion á un triste caso de tremenda profanacion ocurrido por los años de 1482 con el tesorero de la catedral D. Pedro Fernandez de Alcaudete, que habiendo escondido en el Sacrificio la Hostia Sacramentada en un zapato, fué sorprendido en este abominable delito por el rastro de sangre que dejó su pié en dicha capilla.

Capilla de S. Antonio de Pádua. Es fundacion de Alonso Fernandez de Córdoba, quien la labró en el año 1400, contra el muro de levante, en el cuarto tramo de la última nave principal, ocupando parte de los dos tramos adyacentes. En 1532 la dotó D.ª Beatriz de Sotomayor, su patrona.

Terminan con esta capilla las obras ejecutadas durante el siglo XIV dentro del templo. Tambien al esterior dejó su huella el arte morisco bastardo, tan grato á los Enriques, con la reforma que el segundo de este nombre mandó ejecutar en la puerta llamada del Perdon, que es la entrada principal al patio de los Naranjos. Debió entonces variarse mucho de como habia estado desde el tiempo de los árabes. Dejando su forma al arco primitivo de herradura, se le adornó de menudas y delicadas labores de estuco, esculpiendo en los lados los escudos de Castilla y Leon; y sobre el grande arco labraron otros cinco pequeños, ornamentales y trebolados, sostenidos por seis columnas de seis piés de altura, formando cinco nichos en que se pintaron al fresco otras tantas imágenes. Esta galana y sencilla decoracion superior varió mucho en los tiempos posteriores. Eran las seis columnas referidas de finísima turquesa, segun testimonio del concienzudo Ambrosio de Morales; singularidad que merece notarse por la dificultad de hallar piezas de turquesa de tan grandes dimensiones, lo cual haria creer que estas columnas se trajeron de muy lejos, de Grecia tal vez, ó del Oriente, donde han solido hallarse masas voluminosas de dicha sustancia. Al rededor del arco principal se léen estas dos inscripciones en hermoso carácter gótico: «Dias dos del mes de marzo de la era del César de mil et quatrocientos et quince años, reinante el muy alto et poderoso D. Enrique, rey de Castilla.» «Visita quæsumus Domine habitationem istam et omnes insidias enemici ab ea longe repelle, et angeli tui habitantes in ea nos in pace custodiant et benedictio tua.» Las hojas de esta puerta, obra de la misma época, aunque posteriormente restauradas, estan chapadas de láminas de bronce primorosamente trabajado, formando artesoncillos relevados de figura exágona irregular que componen una ingeniosa labor. Sus aldabones figuran una cinta enlazada con florones enmedio, y en ella esta letra: Benedictus Dominus Deus Israel. Esta puerta, llamada del Perdon por las indulgencias que en ella se ganaban, conduce á un vestíbulo magestuoso de bóveda esférica sostenida en arcos, y de este vestíbulo se baja al patio de los Naranjos por nueve espaciosas gradas de jaspe azul, modernamente labradas.

Continuemos la reseña de las obras interiores en el siglo XV.

Capilla de la Santísima Trinidad. Se formó entre las dos capillas de S. Antonio Abad y de S. Acacio, costeándola en 1401 Fernan Ruiz de Aguayo y María García, su mujer, señores de los Galapagares. En ella está enterrado un caballero de la familia de Aguayo y Manrique, que siendo marqués de Santaella y señor de Villaverde y los Galapagares, despreciando las vanidades y honores mundanos, se retiró al desierto y ermitas de la Sierra de Córdoba, donde vivió santamente con el nombre de Juan de Dios de S. Antonino, y murió en olor de santidad siendo allí hermano mayor, en febrero de 1788. Hubo en esta capilla un monumento curioso de la dominacion sarracena. Eran dos piedras que cubrian una sepultura, las cuales por la cara interior tenian grabada una larga inscripcion cúfica, denotando haber servido de losas en un sepulcro donde se habian mandado enterrar juntos dos jóvenes guerreros, que habian sucumbido peleando contra los cristianos en el año 345 de la Egira, bajo el califato de Abde-r-rahman An-nasír. El orientalista D. Miguel Casiri tradujo y anotó esta inscripcion, dando algunas noticias interesantes sobre la lengua africana mixta de árabe en que está concebida.

Capilla de S. Simon y S. Judas. Fué labrada á espensas de Ruy Mendez de Sotomayor y su mujer D.ª Leonor Sanchez de Cárdenas, en el sitio que les dió al efecto el cabildo en 9 de diciembre de 1401, contiguo al primitivo bautisterio por el lado del norte, contra el muro de poniente de la iglesia, ocupando los dos tramos noveno y décimo de la primera nave principal.

Capilla de S. Matías. Hoy bautisterio. La erigió en 19 de marzo de 1411, contra el muro de levante y en los tramos doce y trece de la última nave principal, acupando parte de las adyacentes, el canónigo y arcediano D. Gonzalo Venegas. Dícese que esta capilla quedó desierta por cierto acontecimiento que ocurrió en ella, si bien no nos refiere qué acontecimiento fué el autor de quien tomamos esta noticia; y en 1679 la pidió al cabildo para trasladar á ella la pila bautismal, D. Fr. Alonso de Salizanes. Entonces las memorias de la capilla de S. Matías fueron trasladadas por el cabildo á la del Punto.

Capilla de Sta. Ana. Se labró junto á la anterior por el lado del norte: fué su fundador y la dotó el racionero Gaspar de Ganza en 1470. Tiene dos lápidas de jaspe azul colocadas en 1.º de agosto de 1622 y dedicadas por el Dr. Cristóbal de Mesa Cortés, canónigo é inquisidor de Córdoba y el racionero Andrés de Mesa, su hermano, á la memoria del caballero D. Andrés de Mesa, del hábito de Santiago y gobernador de Puerto Hércules en Toscana, su tio, sepultado en esta capilla, y á la del pontífice Gregorio XIII, protector de los mismos.

Capilla de S. Antonino. La reedificó el canónigo Diego Sanchez de Castro en el año 1497, y no se sabe quién la fundó. Su situacion es contigua á la de Sta. Inés, contra el muro de mediodia, en los dos tramos últimos de la undécima nave principal.

Capilla de los Stos. Acisclo y Victoria. No se sabe con seguridad la época en que se fundó; pero debió ser ciertamente antes de espirar el décimoquinto siglo, porque en los primeros años del XVI estaba ya ruinosa. Se labró en los tramos treinta y treinta y uno de la última nave principal, arrimada al muro de oriente, entre el postigo del Sagrario y la puerta de Jerusalen hoy tapiada.

Vemos que la brillante centuria que hizo florecer en todas las ciudades de España la última trasmutacion del estilo llamado gótico, nada notable dejó dentro de la catedral de Córdoba. Los estilos en las artes tienen como las plantas sus estaciones, sus épocas de crecimiento y florescencia; pero á ninguno se puede con mas propiedad aplicar esta similitud con las vicisitudes del desarrollo vegetal, que al estilo gótico arquitectónico, pues de tal manera se advierte la riqueza de hojas y flores de su forma terciaria apuntar en la ornamentacion de la forma secundaria, y esta insinuarse en la primaria, que no parece la decoracion gótica sino un compuesto de tallos, que durante la primera época contornan sencillamente la estructura ojival, durante la segunda se llenan de brotones y capullos, y en la tercera se cuajan de hojas y flores, torciendo con su peso la direccion de los vástagos, y hasta albergando en ellos caprichosos seres animados. Pues este rico y exuberante estilo, que cubrió de frondas de piedra los botareles y pináculos de nuestras antiguas ciudades, é hizo que, trasformadas las puertas y ventanas y cornisas y postes de los edificios en glorietas de florecidas enramadas, acudieran á alojarse en ellas ángeles y pájaros, y jimios, y animalillos de fantásticas formas; este estilo, repetimos, no visitó con su magnífica si bien decadente pompa el interior del gran templo cordobés; solo en su átrio dejó una ligera huella. En el siglo XV, en efecto, debieron construirse los machones que sirven de refuerzo en los dos pórticos de oriente y occidente, y que cortan ambas arquerías árabes en tres crujías de á tres arcos cada una; la mayor parte de la cornisa que sostiene el alero, en que solo se conservan á trechos algunos canes ó modillones de la fábrica primitiva, alternando con las molduras del estilo ojival; y por último las repisas del mismo estilo que sostienen las canales de desagüe de los estribos, entre las cuales se distinguen tres preciosas gárgolas de ingeniosa forma, y sobre todo, un ángel que sirve de ménsula, con las rodillas dobladas y las manos juntas, tan bello por su espresion y por el estilo de su ropage, que á no estar en aquel silencioso y místico paraiso del patio de los Naranjos, donde parece imposible se hagan sentir jamás las inclemencias del invierno, causaria lástima verlo espuesto á la accion destructora de las brumas y las nieves. Linda creacion de un genio ignorado, ó quizás de un mero artífice rutinero, ¡cuánta animacion dás tú á ese humilde rincon en que nadie repara, y cuánto hablas al alma del viajero creyente, que así como suele encontrar los destellos de la virtud en los mas pobres hogares, halla á veces las perlas del arte en los olvidados escondrijos, donde solo las acompañan las sencillas aves y los aromas de las silvestres flores!

Dibdo del nat.al y lit.do por F X Parcerisa Lit
de J J Martinez Madrid

PATIO DE LA CATEDRAL.

(Cordoba.)
Dibº. del nat.l y litª. por F. J. Parcerisa Lit. de J. Donon, Madrid.

PATIO DE LA CATEDRAL.
(Cordoba.)

Capilla de S. Ambrosio. Fué fundada y dotada por D. Juan Ruiz de Córdoba, maestrescuela de la catedral, el año 1501, contigua á la de S. Agustin en los tramos segundo y tercero de la primera nave principal.

A esta capilla sigue en antigüedad la de Sta. Cruz de Jerusalen; pero antes debemos hacer mencion de otras obras ejecutadas por estos años. En 1507 se abrieron en la catedral dos puertas nuevas, una en el muro de poniente para que el obispo pudiese mas cómodamente ir y volver á su palacio, y otra junto á la fuente que llaman del Caño gordo en el muro septentrional del patio de los Naranjos. En 1510 el dean D. Fernando del Pozo pidió al cabildo la capilla de los Stos. patronos de Córdoba Acisclo y Victoria, que estaba arruinada, para reedificarla: el cabildo se la concedió, y despues de reparada fundó el espresado dean en ella dos capellanías y una sacristía, dejando al cabildo el patronato de ellas por testamento que otorgó el año 1517.—En 1512 reedificaron los descendientes de D. Pedro Muñiz de Godoy por intimacion del cabildo la capilla de S. Pablo, que tambien amenazaba ruina. Pero de estas obras es sin duda la mas notable la de las puertas. Ofrece en su ornamentacion la del muro de poniente, frontera al palacio obispal y última en el referido muro bajando de norte á mediodia, una preciosa combinacion de los dos estilos morisco y gótico florido. La archivolta del arco de herradura está adornada de arquitos de tracería trebolada que forman en la caidas graciosas flores de lis. El dintel es árabe, de dovelas rojas y blancas: las rojas de mosáico de ladrillo á manera de alicatado; las blancas con labores de estuco realzadas formando flores bizantinas. No es esta la única puerta que merece citarse por la galanura del estilo mixto gótico-sarraceno; otra hay en el mismo muro de poniente en que el arrabá, convertido en ligero recuadro de cañas, se entrelaza con las molduras que perfilan las archivolta ultra-semicircular produciendo bellísimo efecto. De esta manera, el ancho recuadro de orígen oriental en que está inscrito el arco, pierde la pesadez que ofrece faltando el afiligranado de su fondo, y esplica perfectamente la procedencia del elegante lambel que suele encerrar el arco del décimoquinto siglo, y que es uno de los mas característicos y graciosos ornamentos del gótico florido.

Capilla de Sta. Cruz de Jerusalen. Se labró segun unos el año 1517 en el sitio de la antigua puerta de Jerusalen, que cerró el cabildo dicho año cuando hizo la estantería para colocar la numerosa librería que le habia legado el obispo D. Martin Fernandez de Angulo. Segun otros no se fundó hasta el año de 1578, en que se mudó la librería al lugar que hoy ocupa en los cuartos altos. De todas maneras la puerta de Jerusalen, que es la primera del muro de levante, subiendo de mediodia á norte, se tapió en el siglo XVI, bien para hacer esta capilla, bien para colocar la referida estantería, segun parece colegirse del acuerdo del cabildo de 7 de enero de 1517 en que se mandó: que la librería que agora se hace en la capilla de Santiago, vaya continuando... hasta dar en el adarve de la iglesia, que es enmedio de la puerta que dicen de Hierusalem.

Capilla antigua de la Concepcion. Se hizo en 1521, siendo su fundador el canónigo Cristóbal de Mesa, en el tramo veintidos de la última nave principal.

Así veinte y ocho capillas de fábrica modesta, en que alternaban los estilos gótico y sarraceno marcando las vicisitudes del arte desde el tiempo de S. Fernando hasta el de Cárlos I; todas ellas arrimadas á los muros maestros de la gran mezquita, una sola al norte, nueve al mediodia, nueve á levante, y nueve á poniente; unos cuantos altares en los postes; una humilde iglesia de arquitectura ojival primaria, de una sola nave, aunque elevada y gallarda, enclavada hácia una de las estremidades del inmenso bosque de columnas del templo islamita, cuya capilla mayor tenia á la espalda una Capilla Real de peregrina decoracion africana, seguida de otra capilla de pertenencia particular; una gran puerta de forma oriental; otras menores de estilo gótico-sarraceno, y finalmente un átrio con pórticos árabes ataviados en parte con la decoracion del sistema ojival terciario, completaban por los años de 1522 el conjunto del insigne y heterogéneo monumento cordobés, en el cual el arte occidental, tan magestuoso y soberbio en otras ciudades, figuraba aun como un huésped tímido y encogido de su émulo y predecesor, ya de toda Europa desterrado. ¿Por qué no habia de ocupar el templo cristiano su lugar correspondiente implantándose triunfante en el centro mismo de aquella gran selva silenciosa y muda y despoblada de altares? ¿Por qué no habia de descollar por encima de su estensa y rasa techumbre la emblemática mole de cuatro brazos, empinando hasta las nubes su cimborio la gloriosa enseña de la redencion del mundo? Este fué sin duda el pensamiento que animó al digno obispo D. Alonso Manrique al proponer al cabildo la construccion de un nuevo coro con su capilla mayor y crucero en el centro mismo de la mezquita. La idea fué buena, por mas que en nuestros dias sea moda censurarla afectando tal vez mas amor al arte del que se tiene: porque ni á un obispo le es permitido postergar el interés religioso al interés arqueológico, ni es probable que la suntuosa Aljama de los Umeyas hubiese subsistido contra los embates del tiempo, del fanatismo, y del esclusivismo artístico de algunas épocas pasadas, á no hallarse bajo la egida del culto católico, que, aun en los dias de mayor intolerancia y barbarie, solo ha consentido se alterase una parte mínima de sus bellezas. Lo que mas debemos deplorar á fuer de amantes de las artes, no es que la nueva catedral haya venido á interrumpir en el centro de la mezquita la monótona repeticion de sus interminables arquerías, sino que la idea de erigir el gran monumento cristiano no hubiese ocurrido un siglo ó siglo y medio antes que el arte ojival llegase á su decrepitud. «No pareció bien á nuestro prelado D. Alonso, dice un acreditado historiador cordobés, que estuviese el coro á un lado de la iglesia; y así propuso en cabildo el chantre y provisor D. Pedro Ponce á 22 de julio de 1521, que la voluntad del señor obispo era que el coro de esta iglesia se hiciese en el altar de Sta. Catalina, porque venia en compás en medio de la iglesia, y que estaria mejor que no donde agora estaba por ser al rincon de la iglesia, y que queria inviar por maestros de cantería, para lo facer con su consejo, y que el cabildo viese y diputase personas para que entendiesen en ello. Este gran intento se pensó y consideró muy despacio, y últimamente se resolvió emprender obra tan suntuosa y costosa como se ve; y así en setiembre del año de 23 tuvo principio el crucero, que en cien años no se pudo acabar. Viendo la ciudad la obra empezada, hizo un requerimiento al cabildo, sábado 2 de mayo, ante Antonio de Toro, escribano público, sobre el edificio nuevo que en esta iglesia se face del altar mayor, y coro, y entre coro; con que se pretendió estorbar. Siempre las obras grandes padecen varios y opuestos dictámenes para emprenderse. La ciudad pretendia conservar la antigüedad y fábrica particular que no habia en otra parte. El obispo y cabildo solicitaban hacer un crucero magestuoso aunque pereciese parte de lo antiguo. Subió esta contienda al emperador, y decidió que se hiciese la obra; pero habiendo venido á Córdoba, y visto la iglesia año de 1526, dijo: Yo no sabia que era esto; pues no hubiera permitido que se llegase á lo antiguo; porque haceis lo que puede haber en otras partes, y habeis deshecho lo que era singular en el mundo.» Si el César hubiese podido prever la infeliz suerte que los siglos posteriores tenian reservada á tantos preciosos monumentos de la España musulmana y cristiana, hoy reducidos á polvo por no haberlos protegido una idea poderosa, cualquiera que fuese, de seguro no habria desconocido la conveniencia de la obra que estaba llevando á cabo el cabildo de Córdoba, conservador inadvertido é involuntario del arábigo edificio, puesto que el sacrificio de una pequeña parte iba á asegurar la duracion del todo.

En 7 de setiembre de 1523 se comenzó pues la nueva fábrica, dirigida por Hernan Ruiz, maestro de arquitectura el mas afamado que habia por aquel tiempo en Andalucía. El obispo D. Alonso Manrique, promotor de la obra, habia sido ya presentado por el emperador para el arzobispado de Sevilla: tambien habia sido presentado para sucederle en el obispado de Córdoba D. Fr. Juan Alvarez de Toledo, hijo de los duques de Alba D. Fadrique Alvarez de Toledo y D.ª Isabel de Zúñiga. El nuevo obispo fué confirmado en Roma á 8 de setiembre, y á 26 de noviembre del mismo año 1523 dió el cabildo la posesion del obispado á sus procuradores el canónigo D. Juan de Córdoba y el reverendo P. Fr. Gregorio, prior del convento de S. Pablo. Entró D. Fr. Juan de Toledo en su obispado en febrero de 1525: ya el año anterior, estando ausente, habia dado impulso á la obra comenzada, momentáneamente paralizada con la promocion de D. Alonso Manrique; prosiguieron los cimientos aquella primavera, y luego, habiéndose dedicado con empeño el obispo y cabildo á buscar caudales, con gran fervor continuó la obra sin interrupciones por espacio de trece años. Contribuyeron con sus rentas la Fábrica y el cabildo, y con pingües donativos la ciudad, el duque de Cardona y otros varios personages; el duque de Sesa, que se hallaba en Roma, pidió y obtuvo que aplicase el Papa por veinte años las vacantes de todos los beneficios de la ciudad y obispado, y que para el dia 8 de setiembre se publicase en la catedral un jubileo, á fin de que la limosna y producto de todo sirviese para continuar la nueva fábrica. Tambien se dispuso que se beneficiasen á favor de la obra todos los Misales y Breviarios con los demas libros sagrados que se habian impreso en Sevilla el año 1524, y que los vasos de plata que no eran necesarios en la iglesia se vendiesen para el mismo fin. Con este poderoso fomento avanzó rápidamente la obra hasta llegar á las cornisas que estan encima de los arcos de las naves, y mas todavía hubiera adelantado si hubiese confirmado S. S. un Estatuto que hicieron el obispo y cabildo en enero de 1529 aplicando á la Fábrica de la iglesia para siempre los frutos de seis meses de todos los beneficios y prestameras de la ciudad y obispado vacantes por muerte de los poseedores.

PLANTA DE LA CATEDRAL DE CÓRDOBA.
PLANTA DE LA CATEDRAL DE CÓRDOBA.

aOficinas del Cabildo.
bPuerta del perdon.
cPuerta de la grada redonda.
dPuerta del caño gordo.
ePostigo de la leche.
fPuerta de los deanes.
gPuerta de S.ta Catalina.
hPostigo de los juanes.
iPostigo.
jPostigo sin uso.
kPostigo del Sagrario.
lPostigo de S.n Esteban.
mPostigo de S.n Miguel.
nPostigo de palacio.
oPuerta de las bendiciones ó de las palmas.
pPuerta principal del sagrario.
CAPILLAS.
1Altar mayor de la Catedral31Santa Ynes.
2San Eulojio.32Del cardenal salazár hoy sacristía mayor.
3San Esteban.33La Cena.
4La Magdalena.34S.n Pedro vulgo el Zancarron.
5N. S. de la Antigua.35S.n Felipe y Santiago.
6San Miguel.36S.n Bartolomé.
7La Epifania.37S.n Ildefonso.
8Del Rosario.38S.n Lorenzo.
9De las animas.39S.n Acacio.
10Santa Ursula.40La Trinidad.
11Descendimiento.41S.n Antonio abad.
12San Antonio de Padua.42N. S. de la Concepcion.
13Santa Ana.43S.n Simon y Judas.
14La Concepcion.44N. S. de las Nieves.
15S.n Juan Bautista.45S.n Agustin.
16Paptisterio.46S.n Ambrosio.
17S.n Nicolás obispo.47El Cristo de las penas.
18La Anunciacion.48S.n Andres.
19De los obispos.49La Concepcion.
20La Concepcion.50Capilla de villaviciosa.
21San José.51S.n Pablo.
22La Natividad.52S.n Cristobal.
23La Asuncion.53Sin uso.
24La Resureccion.54Del Angel de la Guarda.
25San Acisclo y Victor.55S.ta Barbara.
26S.ta Elena.56S.ta Cruz.
27Del Sagrario.57S.ta Maria.
28S.n Clemente.58S.n Felipe y Santiago.
29La Encarnacion.59S.ta Lucia.
30San Antonio.60S.to Cristo del punto.
Puntos de donde se han sacado las láminas que acompañan este tomo.

La obra que se hacia formaba en su planta una gran cruz latina por la interseccion de dos naves, tendida la mayor de oriente á poniente cortando perpendicularmente las nueve naves del centro de las diez y nueve principales de la mezquita, y tendido el crucero de norte á sur, en el ángulo mismo que forma el muro de refuerzo de Al-hakem con el muro de refuerzo de Almanzor. Enclavada la nueva catedral dentro de la mezquita, y en exacta correspondencia sus pilares con las arquerías existentes, no debia ser muy dificultoso desenlazar las naves antiguas para unirlas con los mencionados pilares, ni muy espuesto el levantar las bóvedas bajas, puesto que se podian dirigir todos los empujes en el mismo sentido longitudinal haciéndolos recaer en pilares que enfilasen con las largas arquerías árabes. Para mayor solidez existia ya á la parte del mediodia la fila de machones que marcaban una de las ampliaciones verificadas en la mezquita, los cuales podian servir de contraresto á la bóveda del trascero y trasaltar por este lado: construyendo á la parte del norte otra fila de pilares correspondiente, conformados á modo de estribos, se apeaban las bóvedas de aquel otro lado. La dificultad debia aparecer mas adelante, cuando se tratase de levantar las bóvedas de la capilla mayor, crucero y coro, á la altura proyectada.

El obispo D. Leopoldo de Austria, hijo del emperador Maximiliano I, y tio por consiguiente de Cárlos I, prelado de grandes ánimos y no menos grande celo asociados con gustos y flaquezas de príncipe, así que tomó posesion de su obispado se propuso adelantar todo lo posible la obra comenzada; llevó á cabo las bóvedas de las naves inferiores que rodean la gran fábrica y aseguran su solidez, y para que sirviesen de contraresto por el poniente al empuje de la bóveda del coro, levantó dos gruesos pilares, de quince piés en cuadro en su planta, unidos por medio de sendos arcos con los dos recios machones angulares de la fachada del trascoro. Aunque este obispo tenia á la puerta de su palacio una numerosa guardia de soldados con alabardas y armas de fuego á imitacion de lo que en su época solo estilaban los reyes, no le bastó el augusto aliento para dar cima á la gran catedral comenzada. No hizo poco sin embargo, pues ademas de lo indicado, para que no se gravase la Fábrica y continuase la obra, ofreció dar cada año seis mil maravedís para los cantores que hasta entonces se habian pagado de los fondos de aquella; adelantó ademas la construccion del muro del coro, demoliendo la capilla del obispo D. Fernando de Mesa que la impedia, y fabricó en el mismo muro por la parte de afuera un gran mausoleo de alabastro con cinco nichos para los cuerpos de los cinco obispos enterrados en dicha capilla.

Sucedióle el obispo D. Diego de Alava y Esquivel, bajo cuyo episcopado se acabó en 1562 la bóveda del crucero del lado del Evangelio.

D. Cristóbal de Rojas y Sandoval atendió tambien muy particularmente á la continuacion de la obra; la catedral en su tiempo gozó para la Fábrica de cierto aumento en las rentas de pan y maravedís, llamadas escusados, que pagaban las parroquias desde el año 1487 á proporcion de los diezmos de cada una. La fábrica de la capilla mayor y crucero marchaba no obstante con gran lentitud por falta de caudales. El coro estaba descubierto hacia algunos años, y padecia gran daño con los temporales. En semejante situacion, representó el cabildo al rey para que permitiese volver á publicar el Jubileo antiguo, que estaba suspenso, para continuar la obra con las limosnas de los fieles; y acudió tambien al Pontífice para que concediese al obispo la facultad de absolver los casos reservados á los que contribuyesen con alguna limosna para la obra de la iglesia. Ambas gracias se obtuvieron, pero por breve tiempo; mas se recogió con ellas un buen socorro para adelantar la construccion, porque estaba suspensa la cruzada. Tambien solicitaron el obispo y cabildo que concediese el Papa las annatas de los beneficios á la Fábrica de la iglesia, en atencion á la cortedad de rentas y muchos gastos que tenia; pero no se consiguió que esta gracia fuese perpétua como se deseaba. El rey D. Felipe II presentó á D. Cristóbal de Rojas para el arzobispado de Sevilla, y habiendo sido confirmado declaró el cabildo la Sede vacante el 26 de junio de 1571. Antes de retirarse de Córdoba dejó techada la capilla mayor de la nueva catedral, y cerrados los grandes arcos que sirven de entivo y fuerza para el crucero, como hoy aparece por sus armas labradas en la clave del arco inmediato al altar de Sta. Lucía. Liquidada ademas la cuenta de las limosnas recogidas en virtud de la Bula de la absolucion de casos reservados, dejó al cabildo una libranza de un millon ciento veintisiete mil y ochenta y ocho maravedís en que resultaba alcanzado, para que los cobrase de sus rentas la Fábrica de la catedral.

Aunque la capilla mayor se habia techado, no estaba concluida. Esta obra y la del crucero continuaban lentamente por falta de medios, y deseando el obispo D. Antonio de Pazos y Figueroa que se terminase, el dia 9 de enero de 1584 se presentó en el cabildo á tratar este asunto. Para ello se congregaron en la sala capitular el clero catedral y los enviados de la ciudad, que tambien deseaba ver finalizada la grande obra. Propusiéronse varios medios por ambos cabildos, y todo bien discutido, pareció lo mas prudente recurrir al rey; y á 27 de febrero nombraron el obispo y cabildo al Dr. Diego Muñoz, canónigo magistral, para que juntamente con los diputados que tenia la ciudad en la corte se hiciesen presentes á S. M. y sus ministros los arbitrios que podrian tomarse para llevar á cabo la empresa. Se trató de mudar los cuerpos reales de D. Fernando IV y D. Alfonso XI á la capilla mayor nueva, y de otras providencias útiles; pero nada tuvo el efecto que se deseaba, y fué muy corto el socorro que se logró para la obra.

Poco adelantaria esta cuando nueve años despues (en 1593) estaba aun lejos de terminarse el crucero. El coro nuevo se hallaba tambien muy atrasado; sin embargo leemos que en este año fué preciso abandonar el coro viejo, y que el clero empezase á residir provisionalmente en las naves del altar de S. Sebastian, y no sospechamos la causa. La obra mas notable de este tiempo fué la de la torre. Ya dijimos atrás que esta fábrica era una elegante zoma ó alminar de setenta y dos codos de altura, obra del tiempo de Abde-r-rahman An-nasír, y que el siglo XVI la habia notablemente quebrantado por poner en ella su mano profana. Una gran tempestad acababa de completar en 1589 el acto del vandalismo artístico, que no merece otro nombre á pesar de llamarse su autor Hernan Ruiz; y el peregrino edificio ya disfrazado, mutilado, desfigurado y feamente cubierto con un chapitel ochavado de madera y hoja de lata, á guisa de caperuza, y despues descaperuzado por el referido temporal, estaba amenazando ruina. Reunido el cabildo en Sede vacante por muerte de su obispo D. Gerónimo Manrique y Aguayo, determinó en 4 de mayo de 93 que se restaurase la torre conforme al modelo y traza que el maestro mayor de las obras, Hernan Ruiz, nieto del otro del mismo nombre, le habia presentado; para lo cual se libraron de pronto mil y quinientos ducados del caudal de las Fábricas de las iglesias. Figuraba la traza ciento veinte piés de altura sobre los ciento cinco que tenia la torre, aumentando el grueso de los muros desde los cimientos por la parte esterior hasta los sesenta piés, y cerrando como caja lo antiguo del alminar que podia conservarse. De este modo se empezó la obra, y para mayor seguridad fueron llamados Asensio de Maeda, maestro mayor de la iglesia de Sevilla, y otros oficiales con Juan de Ochoa y Juan Coronado, vecinos de Córdoba, quienes reconocida la construccion la aprobaron y dieron por firme y sólida, segun resulta del acuerdo capitular de 24 de julio del mismo año. No se acabó de una, sino que tambien esta fábrica sufrió interrupciones, y solo llegó á su término en 1664 bajo la direccion de Juan Francisco Hidalgo. No te describo, amigo lector, su pesadísima arquitectura: en la lámina que representa la puerta de las Palmas puedes á tu sabor contemplarla, bien seguro de que yo no te envidio este deleite.

Promovido al obispado de Córdoba D. Francisco Reinoso, en cuanto dijo la primera misa en su iglesia y recibió la visita del cabildo, pasó á ver la obra nueva del crucero y la fábrica toda, y admirado de la bella arquitectura del templo, se condolió de ver parada y espuesta á sensibles deterioros la nueva construccion. Aunque la capilla mayor, como queda dicho, estaba ya cubierta, el crucero y el coro iban sumamente atrasados, pues por falta de caudales y por diversas dificultades propuestas sobre la firmeza del edificio, no tenia cerrado de bóveda mas que el brazo del Evangelio, y lo demás no pasaba de las cornisas. Pero ni las dificultades ni la falta de medios pecuniarios arredraron á este animoso prelado, y así manifestó desde luego al cabildo su deseo de acabar la obra. Pidió que nombrase diputados para conferenciar con ellos, lo que ejecutó el cabildo en 23 de diciembre (del año 1597), y de la conferencia resultó que se celebrase una junta de los maestros mas afamados del arte para que reconociesen lo construido y trazasen el proyecto para la continuacion. En cuanto á medios, ofreció el obispo dos mil ducados en el acto, y otros dos mil cada año, con otros arbitrios que procuraria aplicar de otras fábricas. Tambien cedió tres mil ducados que debia dar su antecesor para las obras del palacio y posesiones propias de la dignidad. El cabildo en vista del fervor del prelado, y tocado de generosa emulacion, determinó en 12 de enero del siguiente año (1598) que por tres años se diese una prebenda entera para la obra, á pesar de que los años habian sido muy faltos y los prebendados se hallaban, dice Bravo, muy gastados. Lo peor era que todos tenian por defectuosa la obra, y que si esta general opinion se confirmaba, de nada iban á servir tan generosos sacrificios. Florecia á la sazon en Valladolid un maestro de obras de gran fama, llamado Diego de Praves: era reputado por el mejor arquitecto de su tierra. Mandóle á llamar el obispo secretamente: acudió, diligente, y habiendo considerado despacio la obra en presencia del venerable prelado, presentóse en la junta de alarifes y maestros del arte, ya congregados, y les dió á entender cómo se podia proseguir y llevar á término el grande edificio. No nos dicen en verdad los analistas cordobeses en qué se fundaba la vulgar opinion de no poderse continuar la fábrica tantos años atrás comenzada: veamos si el edificio mismo nos lo revela.

La gran dificultad del arte moderno en las construcciones religiosas, admirablemente resuelta por la arquitectura ojival, vulgarmente llamada gótica, fué cubrir de bóveda de piedra las naves mayores de los templos, dando á estas luces altas y directas, y sosteniéndolas, no en gruesos pilares que ocupasen una grande area como en las construcciones romanas, sino en delgados y esbeltos apoyos, que obstruyesen lo menos posible el espacio destinado á los fieles. Espacio grande y desembarazado, luz abundante en todas partes, techado sólido y de buen aspecto, esto es, de dificil destruccion por el agua ó por el fuego, y de esa forma augusta tan magestuosamente adaptada por el antiguo pueblo-rey al cerramiento de los vanos en sus termas, en sus cloacas, en sus arcos de triunfo, en sus anfiteatros, en sus templos, en todos sus edificios públicos al parecer imperecederos; por último, puntos de apoyo de poco diámetro y grande altura: hé aquí los datos al primer aspecto contradictorios é inconciliables que tenia que reunir la arquitectura religiosa para satisfacer las necesidades del culto cristiano. Fueron menester nada menos que dos siglos de tentativas y de ensayos, con frecuencia infructuosos, para que el arte moderno llegara á resolver satisfactoriamente este problema. Era preciso que no fuese ya el macizo y voluminoso pilar romano el que contrarestase el empuje de la bóveda, sino que el contraresto viniese de otro empuje diametralmente opuesto y esterior, para que el pilar sobre que arrancaba el arco toral quedase simplemente reducido al oficio de apoyo y sosten de un peso obrando verticalmente. Las bóvedas hacen su empuje en sentido oblicuo, y se sostienen oponiendo resistencias oblicuas: este fué el luminoso principio en que fundó el arte ojival todo su sistema de equilibrio. Reconocióse al propio tiempo que el arco romano de medio punto hacia un empuje demasiado considerable para poderlo levantar á grande altura sobre muros delgados ó pilares aislados, especialmente en naves muy espaciosas, y se sustituyó al arco de plena cimbra el arco ojival ó apuntado: renuncióse por completo á la bóveda cilíndrica, cuyo empuje contínuo exigia un contraresto tambien contínuo, y colocando en los pilares todos los puntos de resistencia, se procuró que recayesen en ellos todo el peso y todo el empuje de las bóvedas: el peso en los pilares interiores, y los empujes al esterior del edificio en otros pilares mas sólidos, ligados con los puntos de arranque de la bóveda por medio de arbotantes. Para dar mas asiento y aplomo á estos pilares esteriores, propiamente hablando botareles, se les agregó un suplemento de peso que se convirtió en breve en motivo de elegante y rica decoracion. Descubierta la nueva ley de los empujes y resistencias oblicuos, y ensayado con facilidad el medio de llevar al esterior del edificio los empujes de las bóvedas y sus contrarestos, y de reducirlos á puntos determinados, estaba hecho todo: entre los puntos de arranque de cada bóveda podian abrirse grandes ventanas, las bóvedas ojivales podian elevarse á considerable altura, los pilares maestros del interior del templo podian adelgazarse cuanto se quisiera, no habia en rigor necesidad de muros, toda la construccion se reducia á una especie de armazon elástica sostenida por la ley del equilibrio, y los arquitectos de la edad media, en suma, habian descubierto el modo de trasformar los templos en bosques de piedra y sus pilares en árboles; pues no de otra manera que las poderosas ramas que sostienen una leve cortina, se juntan y entretejen los robustos nervios que sostienen los ligeros cascos de bóveda, ni parecen otra cosa las pintadas vidrieras que ocupan casi todo el vano entre pilar y pilar, que recamados y vistosos tapices colgados de árboles para una fiesta. Nada hay falso sin embargo en semejante sistema de construccion, porque el edificio manifiesta desde luego en su aspecto esterior toda su osificacion interna: el templo gótico es la basílica latina engrandecida, embovedada, y fortalecida con botareles y arbotantes.

Pero sin arbotantes, la bóveda gótica espaciosa no es posible, porque los pilares sobre que arranca no tienen fortaleza bastante para contrarestar los empujes oblicuos; y sin embargo, el arquitecto que habia trazado la obra de la catedral nueva de Córdoba se habia propuesto en un temerario alarde de su ciencia, levantar sin arbotantes á mas de ochenta y ocho piés de altura bóvedas por arista de cincuenta piés de vuelo. La gran mole levantada sobre la techumbre de la mezquita con su inmensa cúpula en la interseccion de la nave mayor con el crucero, debia estribar toda en los diez y ocho pilares que dibujan la cruz latina de su planta: no habia medio de dirigir los empujes de las bóvedas sobre otros pilares esteriores mas sólidos que sirviesen de contrafuertes, porque en el sistema gótico la mayor fortaleza está en los cuerpos de fábrica de donde arrancan los arbotantes, como otros tantos brazos de piedra que sostienen la balumba de la bóveda que tiende á descuajar y separar los pilares en que apoya; y en el templo de Córdoba por el contrario, los postes de donde podian arrancar los arbotantes eran de menos volúmen y resistencia que los pilares de apoyo de las bóvedas. Aumentaba la dificultad la circunstancia de ser notablemente rebajados los cuatro arcos torales sobre que habia de erigirse el cimborio, porque estos arcos marcaban muy baja la clave de las bóvedas del crucero y de la capilla mayor, y es sabido que cuanto mas rebajadas son las bóvedas mayor es su empuje. Esta es sin duda la dificultad artística con que se habia tropezado al querer terminar el edificio en otras épocas anteriores, porque leemos que la construccion no habia pasado de las cornisas desde el tiempo del obispo D. Juan de Toledo, y esto nos induce á creer que el peligro de continuarla se veía única y esclusivamente en el embovedado. Triunfó de todos los obstáculos el genio del maestro llamado por el obispo Reinoso, el cual dió la traza para la terminacion de la obra: enfervorizóse el animoso prelado, y el cabildo obsequioso con su deseo tomó la determinacion que dejamos referida. Con esto volvieron á activarse los trabajos.

Por fin, el sábado 29 de abril del año 1600 se acabó de cerrar el crucero que tanto deseaban todos ver finalizado. «Fué el obispo á la iglesia, dice Bravo, y con el fervor que tenia no pudo contenerse, hasta subir á ver sentar la última piedra y registrar toda la obra.» Acto de entusiasmo que nos trae á la memoria aquel otro de que habia sido objeto la Aljama mahometana seis siglos y medio antes, cuando el califa An-nasír, sabedor de la terminacion de la soberbia zoma que habia mandado construir, acudió presuroso en alas de su deseo, y no contento con admirar la arquitectura del gallardo edificio, lo registró todo subiendo y bajando por dentro de él como para gozar mas palpablemente de su obra. Repicaron las campanas y sonaron los instrumentos músicos en demostracion del general regocijo, y se tributaron á Dios las debidas gracias. Murió el celoso obispo con el consuelo de ver asegurada la conclusion de la grande obra, si bien no alcanzó á verla decorada y en disposicion de poderse celebrar en ella el culto. Dió su alma al Criador el 12 de agosto de 1601 dejando por heredera á la Fábrica de la catedral en la parte que quedase despues de pagadas las deudas: el cabildo dispuso darle sepultura en el nuevo crucero junto al obispo D. Leopoldo de Austria, al lado del Evangelio, pero estando este sitio ocupado con los materiales de la obra, se depositó su cuerpo en el hueco ó bóveda que ahora es capilla debajo del altar mayor. Fué trasladado al sepulcro que se le tenia destinado en julio del año 1607, y aunque debajo de las vestiduras se le habia puesto cal para que se resolviese pronto, por si le habia tocado algo del terrible contagio que habia padecido la ciudad en los dias de su enfermedad, se halló incorrupto sin habérsele consumido mas que la punta de la nariz, tratable, hermoso y fresco como estaba cuando fué enterrado. Duró pues hasta el año 1607 la obra de decoracion del crucero y coro: el obispo D. Pablo Laguna habia legado á la Fábrica hacia poco tiempo cinco mil ducados; antes habia remitido otros tres mil el venerable arzobispo de Santiago D. Juan de San Clemente Torquemada con destino espreso á la obra de la iglesia, por lo cual acordó el cabildo cumplirle perpetuamente un aniversario y poner sus armas en el arco del trascoro. A 27 de setiembre del año 1606 estaban tan adelantados los trabajos, que determinó el cabildo se mudasen las sillas y órganos al coro nuevo, y se hiciese el altar mayor. Mientras se verificaba dicha mudanza continuó el coro en el sitio correspondiente al altar de S. Sebastian en verano, y en invierno en la capilla del Sagrario; y á 9 de setiembre de 1607 con la mayor solemnidad se llevó el Santísimo al altar nuevo, y se celebraron en él la Misa y Divinos Oficios.

Quedaba vacante y sin uso la capilla mayor antigua, y pareciendo que convenia conservarla, se determinó á 27 de noviembre que en dicha capilla se pusiesen otros dos altares para que en ellos dijesen Misa los prebendados, dando la Fábrica los ornamentos necesarios. Verificóse esto siendo obispo de Córdoba D. Fr. Diego Mardones, anciano piadoso, caritativo y austero, infatigable en el trabajo á pesar de sus muchos años, y cuya avanzada edad significó el rey D. Felipe III en la carta que escribió al cabildo diciéndole: ahí os envío los huesos del obispo Mardones, muy ageno de pensar que aquel costal de huesos habia de sobrevivirle mas de tres años á él jóven y robusto. La memoria de este venerable y religiosísimo obispo, cuyo gobierno duró diez y siete años, permanecerá siempre en la iglesia de Córdoba llena de bendiciones, no solo por las donaciones y dotaciones grandes que hizo, sino tambien por sus incomparables virtudes. Vivió noventa y seis años, los ochenta y ocho con gran vigor para cumplir admirablemente los árduos deberes de su ministerio; despues fué todo trabajos y dolores, pues padeció mucho y estuvo baldado de piés y manos, y así le llama el autor del Catálogo de los obispos cordubenses varon de dolores, añadiendo con justicia que deberian agregarse al epitáfio de su sepulcro aquellas palabras del paciente Job: Expecto donec veniat immutatio mea: vocabis me, et ego respondebo tibi: operi manum tuarum porriges dexteram. Siendo de ochenta y tres años, y á pesar de haber quedado tan débil con una enfermedad que padeció, que por órden de los médicos se alimentaba al pecho de dos amas y dormian con él dos niños robustos para calentarle, vivió lo suficiente para hacer su nombre digno de eterna memoria: bajo su episcopado se verificó la famosa expulsion de los moriscos, y á su ilustrada tolerancia debió el no ser echado de Córdoba un morisco insigne por su sabiduría en las ciencias físicas, llamado Felipe de Mendoza, hombre útil á la república. Empezó la obra del nuevo palacio episcopal, y gastó en ella mas de sesenta mil ducados: en cuya ocasion se demolió el pasadizo que habian fabricado los califas para ir desde su alcázar á la mezquita, y que dejamos descrito en su lugar correspondiente[373]. En su tiempo promovió el cabildo singularmente el culto de la Purísima Concepcion, dando su piadoso celo ocasion á que la iglesia de Córdoba fuese la primera en celebrar este misterio, aun no declarado de fé, como una de las mayores festividades del año, imitando su ejemplo las demas iglesias, ciudades y universidades de España[374]. El obispo Mardones fué quien costeó la obra del retablo y ornato que faltaba á la capilla mayor, ofreciendo al cabildo para este objeto una gruesa cantidad de dineros cada año al tiempo de enviarle las buenas Pascuas. Los felicitados nombraron cuatro diputados que le diesen las gracias y tratasen con su ilustrísima todo lo conducente á poner en ejecucion obra tan plausible. Hiciéronse diversos diseños por artífices afamados: el Hermano Alonso Matías, reputado insigne arquitecto, se hallaba en Córdoba en su colegio de la Compañía de Jesus, é hizo uno, que pareciendo bien á todos se escogió por universal aplauso; y para que su idea se ejecutase perfectamente, le nombró el cabildo á 16 de febrero de 1618 superintendente de la obra con facultad plena de escoger los jaspes y materiales necesarios y de traer maestros y operarios de su satisfaccion[375]. La Fábrica de la catedral recibió repetidas muestras de la gran liberalidad de este prelado. En 1616 le hizo una donacion pura de veinte mil ducados en que estaba gravada, para que redimiese sus censos. Por el mismo tiempo dotó la octava del Santísimo Sacramento con diez mil ducados. Asistió á la fiesta de Santiago, y en lugar del doblon que se daba de ofrenda, dió una cruz y dos candeleros de plata dorados con óvalos de oro y esmalte rojo: tres urnas y aguamaniles de plata dorados, y una casulla de raso bordada, todo muy precioso y de mucho valor, dice Bravo, mas tolerante que nosotros con el gusto artístico de aquel tiempo. Al año siguiente (1617) ofreció en la misma fiesta una fuente de plata dorada, estimada en mas de doscientos ducados. En 29 de mayo de 1620 donó al cabildo una cruz grande de plata sobredorada con muchos engastes de oro y piedras preciosas, de ciento nueve marcos de peso. En el mismo año, habiéndose acabado el nicho del lado del Evangelio en la capilla mayor, colocó en él una imágen del apóstol Santiago á caballo, y en una lápida de jaspe negro puso la siguiente inscripcion: B. Jacobo Hispaniarum Dei dono singulari, unico certiss. antiquiss. que Patrono, triumph. hostium invictiss. D. Fr. Dieg. Mardones. Epis. Cord. D. D. anno MDCXX. En 1623 á 24 de julio, en agradecimiento al cabildo por las rogativas y fiesta de accion de gracias que habia celebrado durante su enfermedad y en su convalecencia, le envió por medio de su provisor una lámpara de plata para la capilla mayor, y un terno de raso blanco bordado. Finalmente, antes de morir dió muchas limosnas y dotes á pobres y huérfanas, y fundó una obra pia de sesenta mil ducados de principal y treinta mil de renta para casar doncellas pobres y socorrer necesidades en la ciudad y lugares del obispado. Noventa y tres años de edad contaba este virtuosísimo y respetabilísimo patriarca cuando murió el rey D. Felipe III, y aun parecia que el cielo le queria conservar muchos más al amor y agradecimiento de su clero y pueblo, que como verdadero padre dirigia y santificaba. El bendijo el pendon real en la capilla mayor cuando con las ceremonias y solemnidades acostumbradas fué aclamado en Córdoba el rey D. Felipe IV. El dió la bendicion solemne á la ciudad, y despues llevó á su palacio á todo el cabildo para que viese la aclamacion hecha en la Torre del Homenage y Campo Santo desde un tablado que para este fin tenia prevenido, contemplando toda la ceremonia sin fatiga hasta el acto de enarbolar el pendon real por el nuevo rey. ¡Con cuánta solicitud y cariño correspondia el cabildo á sus contínuas mercedes, fomentándose en la por tantos títulos ejemplar iglesia de Córdoba esa envidiable armonía entre los prebendados y el prelado, que tan noblemente la distingue, y en que la reverencia, el obsequio y el amor que se tributan por un lado, son correspondidos con igual estimacion y fineza por el otro! No de otra manera que un padre octogenario entre sus hijos, todos atentos á prolongar y dulcificar con esquisitos cuidados sus últimos dias, se nos representa en la imaginacion el digno anciano que regía la iglesia de Córdoba por los años de 1621, cuando para no privarle de asistir á las grandes solemnidades de la catedral, y no privarse ellos de su amada presencia, modificaban los prebendados en su obsequio las inflexibles prescripciones de ritual y de costumbre, y para que pudiese oir con mas facilidad la palabra divina le aderezaban en desusado lugar, en medio de las barandillas, un cómodo asiento junto al altar mayor provisional, y allí le asistian los dos presidentes del cabildo esmerándose en hacer fáciles y agradables los postreros actos pastorales de aquella vida próxima á estinguirse. ¡Con cuánto anhelo esperaba la terminacion de aquel suntuoso retablo junto al cual habia de ser sepultado! Parecia que se resistia á morir mientras no pudiera elegir por sí mismo el parage donde habia de descansar su cuerpo; y sin embargo, el nicho de jaspe reservado para su sepulcro y para su estátua estaba ya bruñido. Murió cuatro años antes de que se acabase la obra del retablo (en 1624), y en el referido nicho, al lado de la Epístola, se lée hoy este epitáfio:

DOM. FR. DIDACUS MARDONES, EPISCOP.
CORD. OB. L. AUREORUM. M. IN ARÆ
MAXIMÆ
CULTUM DONATA SENATUS ECCLES. CORDUB.
SEPULT.
HIC ET STATUAM CUM BASI GRATI ANIMI
ERGO
B. M. P. ANNO MDCXXIIII
VIXIT ANNOS XCVI.

Y en el crucero, en uno de los arcos de medio punto del mismo lado de la Epístola, se grabó esta inscripcion: «Acabóse esta capilla mayor con su crucero en 7 de setiembre de 1607 años, siendo obispo de Córdoba y confesor del rey nuestro señor Felipe III el Illmo. Sr. D. Fr. Diego de Mardones, á quien los señores dean y cabildo se la dieron para su entierro por haber dejado el suntuoso que en su vida tenia en S. Pablo de Burgos, cuyo convento, siendo prior dél, lo dispuso y dotó en mas de setenta mil ducados, y en agradecimiento de haberle dado la capilla mayor dió á esta santa iglesia cincuenta mil ducados para hacer retablo.»

Ochenta y cuatro años duró por consiguiente la obra de la catedral nueva, puesto que se habia dado principio á ella en 1523 siendo obispo de Córdoba D. Alonso Manrique. Comenzó cuando la arquitectura gótica era todavía considerada como característica de los edificios religiosos, y para las demas construcciones estaba ya admitido en toda la Europa culta el nuevo estilo italiano conocido con el nombre de Renacimiento. Introducido este estilo en España con motivo de las guerras que la dinastía austriaca sostuvo en Italia y en Francia, contagiado el gusto de todos los personages de cuenta de los dos estados militar y eclesiástico con el ejemplo de la admiracion que en las citadas naciones alcanzaban las obras de Leonardo de Vinci, del Primaticio, de Benvenuto Cellini, de Serlio, y las de sus discípulos los franceses Jean Bullant, Philibert Delorme y Pierre Lescot, facilmente se esplica que la catedral nueva de Córdoba, trazada y costeada por hombres formados en la moda italiana y francesa, aparezca como una creacion bastarda del gusto ultramontano en transaccion con el antiguo estilo practicado por todo el Occidente.

Indicaremos ligeramente las causas de donde procedió este nuevo estilo renacido, para bosquejar en seguida los caractéres principales que le determinan. La arquitectura ojival, que era á fines del siglo XII y principios del XIII la espresion mas acabada del nuevo estado social en el momento de emanciparse el estado llano en las naciones que antiguamente habia agrupado el brazo de hierro de Carlomagno, habia quedado exhausta. Prohijada por el feudalismo, aceptada por la Iglesia, admitida por la potestad real cuando acababa apenas de salir de los modestos focos de la plebe emancipada, sirvió admirablemente á los intereses y designios de cada una de estas clases en su desarrollo sucesivo: dió á los altivos señores feudales y á los reyes castillos y palacios, espaciosos por dentro para contener un numeroso séquito, sombríos y de dificil acceso por de fuera para imponer respeto y resistir los asedios; dió á las nacientes corporaciones municipales y á la clase popular, casi toda á la sazon de traficantes y mercaderes, casas de ayuntamiento, mercados, lonjas, bolsas, tribunales, y fuertes murallas para defender sus conquistados derechos; dió á la Iglesia un brillante simbolismo, templos desahogados y capaces, mas acomodados al grande incremento de las poblaciones que las pequeñas y sombrías iglesias erigidas en los siglos XI y XII segun las inflexibles reglas del arte monástico. Pero cuando llegó á inaugurarse en el siglo XV la época de la fusion y centralizacion de los poderes, de la supremacía real, y de la desaparicion del feudalismo, y cuando las antiguas libertades locales de los pueblos dejaron de ser una necesidad, entonces tambien fué insensiblemente decayendo el arte que habia sido la mas genuina espresion de sus nobles y osados pensamientos. Acabaron las libertades feudales y comunales como incompatibles con la nueva organizacion de la sociedad; tambien debia lógicamente acabar un sistema de arquitectura inadecuado ya para la vida pública y privada atendida la nueva direccion que habia tomado el entendimiento humano en todas las cosas. Y habia acabado en efecto por la impotencia de producir formas nuevas. No era ya posible dar un paso más en la arquitectura de la edad media: la materia, domada y sometida durante un penoso trabajo de tres siglos, nada inspiraba ya; la estraordinaria habilidad de los artífices habia llegado á su término racional; el ingenio y la razon, el arte y la ciencia de consuno, habian hecho de la piedra, de la madera, del hierro, del plomo, cuanto era dable hacer, traspasando no pocas veces los límites del buen gusto. Si se hubiera continuado apurando la docilidad de la naturaleza física en el mismo sentido, esta al fin se habria declarado rebelde, y las concepciones artísticas no habrian podido salir del cerebro ó de los planos de sus autores.

Nuevas ideas, nuevos instintos, nuevos deseos atormentaban á la Europa moderna. La razon humana devorada por su sed de ciencia, llena de actividad y ansiosa de libertad, habia roto el vínculo de la autoridad religiosa, única que por entonces le era molesta. Reformar la Iglesia, reformar la religion y lanzarse en pós de un progreso indefinido y quimérico, repudiando como insuficiente la enseñanza católica y buscando nuevas vias de desahogo á la fermentacion del espíritu de innovacion, eran las aspiraciones de los hombres grandes de la época. Intenta la reforma eclesiástica el concilio de Constanza; aborta esta reforma en Basilea, y Cárlos VII de Francia se atreve á ponerla en planta por medio de una pragmática sancion; pero de nuevo la deja frustrada el concordato de Francisco I con Leon X. Intenta la reforma religiosa Juan de Hus en Bohemia, y en la misma ciudad de Constanza es quemado como herege. En ambas tentativas salió la autoridad triunfante; pero la del Papa no pudo impedir que las nuevas doctrinas del concilio de Basilea y de los príncipes acerca del gobierno de la Iglesia y de las reformas que en ella habian de hacerse, echáran hondas raices en Francia, se perpetuáran, pasáran á los parlamentos y se convirtieran en opinion poderosa; ni pudo estorbar el imperio que la reforma religiosa popular, sofocada con fuego en la hoguera de Juan de Hus y Gerónimo de Praga, y luego con sangre en los campos de Bœhmischbrod, volviese á levantar la cabeza con mayor pujanza en Wittemberg. Finalmente, en medio de este movimiento religioso empieza en Europa una escuela política, filosófica y literaria, cuya influencia, no combatida por el poder espiritual ni por el temporal, antes al contrario favorecida por ambos, fué el orígen principal de la gran revolucion que en instituciones, opiniones, filosofía, literatura y artes esperimentó el mundo moderno. Lo que Cárlos VII y los Husitas no habian logrado, aquel con su pragmática y estos con sus largas y terribles campañas, se hubiera de seguro conseguido en el siglo XVI aun sin el auxilio de otros príncipes y de otros reformadores, solo por efecto del movimiento intelectual que con su idolatría hácia la clásica antigüedad habian inaugurado el Dante, Petrarca y Bocaccio. ¿Qué mayor golpe podia sufrir el antiguo y venerando edificio de la severa civilizacion cristiana en todas sus faces, que la admiracion tributada por los genios mas eminentes á todas las creaciones de la antigüedad pagana? ¿Y sabian por ventura qué brecha abrian en la fortaleza de la autoridad espiritual desechando las costumbres groseras, las ideas humildes, las formas semi-bárbaras de su tiempo, aquellos libres pensadores del siglo de Leon X, eclesiásticos, prelados, jurisconsultos y literatos, que como el licencioso Berni, el sibarita Bembo, el escéptico Sadoleto, y tantos otros, se entregaban con orgullo á los placeres de una vida materialista, elegante y licenciosa? Cuando Lorenzo de Médicis el Magnífico se afanaba tanto por resucitar en la bella Italia la cultura y costumbres del siglo de Augusto con las artes del tiempo de Pericles y el neoplatonicismo del Bajo Imperio, educando á su prole en el desprecio de todo lo que no era antigüedades griegas y romanas, y en la amistad íntima de un Marsilio Ficino y de un Pico de la Mirándola, estaba por cierto muy lejos de imaginarse que la autoridad pontifical de su hijo Juan habia de sufrir mayor descalabro por el influjo destructor de aquel renacimiento pagano que por los envenenados tiros del mismo Lutero. Tampoco se imaginaba Francisco I al anular la pragmática reformista de Cárlos VII, que él iba á ser el principal continuador de la obra intentada por el padre y por el hijo de Luis Onceno. Cárlos VII en efecto habia sido innovador secundando las ideas proclamadas por un concilio; Cárlos VIII lo habia sido tambien introduciendo en Francia el arte renacido de la Italia; pero ninguno mas apasionado por las nuevas ideas italianas que el galante y caballeresco émulo de Cárlos V, por cuya mediacion se consumaron en la monarquía de S. Luis el ostracismo definitivo de la civilizacion gótica espiritualista, y la exaltacion perpétua del principio materialista en todas sus formas. Los enemigos mas formidables del principio católico y de cuanto él habia creado no eran, no, Lutero y Calvino; estaban en el corazon de la misma Iglesia romana, eran los cardenales eruditos y sensuales, los filósofos epicúreos platónicos, los jurisconsultos regalistas, los poetas licenciosos que á su sombra florecian. Si el acalorado monge de Eisleben pretendia reducir el cristianismo á su primitiva pureza, los sabios, literatos y artistas que florecian en torno de los Médicis, conspiraban, sin propósito deliberado tal vez, nada menos que á anular el cristianismo y sus consecuencias. Eran pues sin pensarlo los genios de la Italia en el décimosexto siglo los mas poderosos auxiliares de la funesta emancipacion religiosa.

Atraía la corte pontificia las miradas de la Europa entera por la espléndida aureola con que habian rodeado el solio de Leon X los poetas y los artistas; al propio tiempo la reforma se habia granjeado poderosos valedores entre la nobleza católica, seducida con la esperanza de sustraerse á la preponderancia intelectual del clero, y de apoderarse de los bienes temporales del feudalismo monástico. Margarita de Navarra ofrecia un asilo á Calvino en su pequeña corte de Nérac, la duquesa de Etampes se declaraba mediadora entre el rey Francisco y los reformistas, las damas principales de la corte ridiculizaban la misa católica y se rebelaban contra el incómodo sacramento de la penitencia; los antiguos estudios teológicos, las sérias y profundas meditaciones de los doctores de los siglos XII y XIII se miraban como rancias sutilezas del escolasticismo. Todo está ligado en el órden intelectual, y el arte es un ejercicio del pensamiento demasiado noble para que no participe de todas sus vicisitudes. Condenadas al descrédito y al olvido las ciencias, la filosofía y las letras de la edad media, es claro que el arte de los siglos XII y XIII tampoco podia sobrevivir á la condena general implícita en el grito de triunfo de reforma y de renacimiento. Siguió en Francia la aristocracia el impulso dado por su rey, desplegando un lujo hasta entonces desconocido en la construccion de sus palacios y casas de placer. Daba la corona el ejemplo demoliendo el antiguo Louvre de Felipe Augusto y Cárlos V, cuya imponente torre feudal fué desde luego arrasada para dar lugar á las elegantes y risueñas construcciones de Pierre Lescot. La nobleza desmanteló sus antiguos torreones para erigir en su lugar viviendas accesibles, placenteras, decoradas con pórticos y columnatas, fuentes y estátuas de mármol. Cayeron las murallas almenadas, las torres de homenage y vela, los parapetos y matacanes, los puentes levadizos y toda clase de defensas: cegáronse los fosos, abriéronse las puertas, rasgáronse y ensancháronse las angostas lumbreras. El feudalismo derribaba sus fortalezas por sus propias manos prodigando sus tesoros á los artistas para que se las trasformasen en risueños y elegantes palacios.

Así fué abandonado el antiguo estilo francés llamado gótico, que tan gloriosos monumentos habia producido en toda la Europa occidental.

Los maestros del nuevo modo de construir no podian ser mas que los italianos, porque para los arquitectos formados en el antiguo sistema, la arquitectura del renacimiento era un lenguaje del cual ni siquiera el abecedario comprendian. Apegados al vetusto arte ojival, ya convertido en rutina, acostumbrados á renunciar á toda direccion ante la petulante práctica de las corporaciones de oficios, cada una de las cuales se apropiaba el derecho de decidir por sí del carácter é importancia de su obra particular sin consideracion al conjunto; despojados en cierto modo de la responsabilidad de sus trazas por la costumbre ya generalmente establecida por los prelados, cabildos y señores, de entenderse por separado con los gremios de oficios y ajustar con ellos la obra que apetecian; ni sentían los arquitectos la dignidad de su profesion, ni eran ya propiamente hablando tales arquitectos. Habia sí grandes escuelas ó gremios de francos-mazoneros, que conservando todos los secretos y tradiciones del arte gótico, erigian con admirable presteza, solidez y elegancia de proporciones, aquellos arcos ojivos y aquellas elevadas bóvedas de piedras ligerísimas y sabiamente cortadas, que tendian sobre los robustos nervios de las aristas como una lona sobre una armadura de hierro; habia canteros y carpinteros familiarizados con todas las dificultades del trazado geométrico, perfectamente entendidos en las mas complicadas secciones de planos; escultores que con gran primor recortaban la piedra y cubrian de hojas, enramadas, pájaros y figuras caprichosas las cenefas, las franjas, los doseletes y marquesinas, las repisas, los capiteles, las gárgolas; imagineros que esculpian bellamente figuras de santos para las andanas de las portadas, los frontoncillos y las hornacinas; plomeros y pizarreros expertos en el modo de cubrir las armaduras; pintores en vidrio que habian mejorado este precioso procedimiento; pero cada oficio obraba segun sus aspiraciones y su amor propio, y faltaba en las construcciones el agente principal de la idea artística en globo, el que habia de dar unidad y armonía al pensamiento arquitectónico. Sucedia en los últimos tiempos del arte ojival en las provincias mismas donde se habia formado, lo que no sucedió jamás en su buena época: los francos-constructores hacian v. gr. el buque de la iglesia, sus naves, sus pilares, sus bóvedas, segun un modelo y traza ya conocidos y uniformemente repetidos: luego venian todos los artífices encargados de los demas objetos accesorios y de decoracion. El que habia pintado las vidrieras no se curaba de lo que habia trabajado el escultor, ni este de lo que labraba el imaginero; ni el plomero se cuidaba de si el desagüe segun su proyecto corresponderia ó no con las vertientes que el carpintero habia dado á la armadura del comblo. Los monstruosos resultados de esta falta de conjunto y de armonía, mejor dicho aun de esta falta de subordinacion á la suprema idea del arquitecto, se advierten en las reedificaciones de las mas célebres catedrales de la cristiandad[376].

El feudalismo espiraba, el protestantismo dejaba ociosos á muchos constructores y les hacia ir insensiblemente olvidando las prácticas tradicionales de su profesion; por otra parte el celo religioso ferviente y espansivo de los siglos XIII y XIV habia poblado la tierra de suntuosos y muy duraderos templos, y habian de transcurrir muchas generaciones antes de que fuese necesario construir más. Con tales condiciones, forzosamente tenia que decaer el arte ojival en el siglo XV; y si á esta decadencia se agregaba en el siglo XVI el abandono que de él hacian los pontífices y el fomento que daban al nuevo sistema arquitectónico los príncipes y magnates, y la misma Iglesia un tanto secularizada, claro es que del antiguo modo de edificar no podian quedar en breve mas que los mudos ejemplos en los monumentos y el indiferente recuerdo en los hombres.

De consiguiente, si los mismos edificios de carácter gótico se hacian en Francia al finalizar el siglo XV casi sin intervencion de los arquitectos, ¿cómo era posible que hubiese allí artistas aptos para llevar á cabo sin tomar lecciones de los italianos la regeneracion de la arquitectura clásica antigua? Es evidente que ni siquiera estaban á su alcance sus reglas mas elementales. La revolucion verificada en las ideas y en las costumbres era demasiado exigente: querian palacios abiertos con elegantes y ligeras columnatas jónicas, con espaciosas escalinatas y anchos pórticos los que habian hasta entonces vivido en alcázares, castillos y calahorras, cercados de fosos y fuertes muros, entre macizas paredes con angostísimas lumbreras; apetecian elevadas cornisas y bruñidos subasamentos, y cimbras romanas en los vanos, y pilastras estriadas en los muros, y frisos ornados de bajo-relieves mitológicos, y galerías con estátuas, y logias pintadas al fresco, y terrazas con balaustradas, y zócalos con grecas y molduras, y toda la riqueza en suma de los cinco órdenes del antiguo, los que en las torres y borges de sus mayores solo habian paseado parapetos y adarves, y asomado la vista por merlones, troneras y matacanes, y entretenido la curiosidad en las largas horas del ocio feudal con las alfardas y almizates de los artesonados de madera, ó con los alizares de las paredes. Así pues, la Francia que en tiempo de Cárlos VIII habia rechazado á los arquitectos ultramontanos que en su comitiva llevaba aquel rey de vuelta de sus descabelladas empresas bélicas, sin tomar de ellos mas que tal cual mascaron ó tal cual capitel antiguo, recibió con los brazos abiertos á los artistas que le dieron Luis XII y Francisco I, y bajo los reinados de los últimos Valois y de los primeros príncipes de la línea Robertina hasta Luis XIV, en que se inauguró una nueva era para la arquitectura francesa, no cesó de enviar á Italia sus mas privilegiados genios para que se educasen en los principios que con tanto éxito habian establecido en Nápoles, Florencia y Roma, los Masuccios, los Brunelleschis y los Bramantes.

Así se verificó la revolucion arquitectónica en Francia. En España puede decirse que la hizo por sí sola la moda con su incontrastable poder. Porque el genio cristiano no habia entre nosotros abandonado de tal manera el campo al genio pagano del renacimiento, que se pudiese decir estinguida su influencia. El arte gótico, tal vez por haber comenzado en nuestro suelo mas tarde, no habia degenerado aun como en Francia, no se hallaba reducido á la rutina de los oficios, ni le faltaban profesores que le ejerciesen con dignidad é independencia. Cabalmente estaba en su mayor auge en los fines del siglo décimoquinto y principios del décimosexto en toda la Península, principalmente en Castilla, la célebre escuela de los Colonias, rama de fecunda sávia desgajada del poderoso tronco del norte por el ilustre prelado D. Alonso de Cartagena, y convertida en árbol lozano y pomposo cuando en las guerras por la posesion de Italia, por el dominio del Imperio de Alemania y por la preponderancia en Europa, se contagiaba del nuevo gusto estrangero el católico Cárlos V.

No teníamos el luteranismo que dejaba desiertos en Francia los templos católicos y los talleres de los artífices criados á su sombra; tampoco abundancia escesiva de catedrales y otros edificios religiosos; al contrario, los cabildos, los prelados, los príncipes, rivalizaban en la ereccion de templos suntuosos. Del siglo XV y principios del XVI son las catedrales de Astorga, de Calahorra, de Coria, de Gerona, de Huesca, de Plasencia, de Sevilla, lo mejor y principal de las de Burgos, Toledo, Valencia y Salamanca, muchos notabilísimos conventos, iglesias, colegiatas, colegios y seminarios, y tambien gran número de lonjas, casas de diputacion y de ayuntamiento, audiencias y otros edificios de arquitectura civil. Los cabildos catedrales se disputaban la posesion de los Egas, de los Hontañones, de los Badajoz, de los Alavas, de los Comptes: cuando no podian lograr los servicios esclusivos de estos hombres privilegiados, se contentaban con que revisasen y reconociesen sus fábricas, diesen trazas para mejorarlas, y dejasen en ellas cuál una torre, cuál un retablo, cuál una portada. Y sin embargo fué preciso ceder al nuevo torrente y adoptar la arquitectura exótica.

Verificóse esta trasmutacion casi sin intervencion de artistas estrangeros, modificando gradualmente los naturales primero la parte decorativa, luego la reparticion de sus construcciones; y á esta circunstancia, sea dicho de paso, debemos atribuir tal vez la fusion que en nuestros edificios civiles de la primera mitad del siglo XVI se advierte de los dos estilos italiano y gótico, á diferencia de lo que se observa en el renacimiento francés, obra esclusiva de italianos ó de franceses educados con ellos. Enrique Egas, el hijo del famoso Anequin Egas, maestro flamenco de la catedral de Toledo, y Pedro de Ibarra, arquitecto de un obispo de Salamanca, daban muestras evidentes de conocer la arquitectura greco-romana en insignes obras anteriores á la primer construccion francesa del nuevo estilo[377], en las cuales se advertia ya el principio de la escuela que estaban llamados á desarrollar con tanta gloria Pedro de Machuca, Alonso de Covarrubias, Diego Siloe y otros igualmente españoles: «un no sé qué, dice oportunamente Llaguno, parecido á las pequeñas nubes que en dia claro suelen anunciar la mutacion del tiempo.»

Eran los principales caractéres de este nuevo estilo el arco de medio punto ó de plena cimbra, que acababa de reconquistar su absoluta preeminencia; los cinco órdenes antiguos, mas ó menos modificados en algunas molduras y en sus proporciones; los follages, los vástagos espirales, los grotescos con animales reales ó fantásticos, dispuestos á la manera de los arabescos antiguos, y aplicados á los entablamentos, á las pilastras, á los frisos, á los tableros; la mezcla de órdenes, sobrepuestos unos á otros, los revestidos de mármoles, los medallones, las columnas balaustradas, etc.[378] Y para que fuese mas evidente que el antiguo estilo gótico no habia sido completamente derrotado, sino que habia de grado cedido el campo al italiano, los arquitectos españoles del siglo XVI conservaron muchas veces en las portadas formadas con los órdenes antiguos las andanas de estatuitas con sus afiligranadas repisas y marquesinas, y en los macizos y entrepaños aquellos filetes perpendiculares y enlazados con circulitos trebolados y losanges, que cubrian en la decadencia del arte ojival los miembros de mayor resistencia imitando ajimeces ornamentales y caprichosos enrejados.

Volviendo ahora á nuestra catedral de Córdoba, que vimos salir de cimientos en el año 1523, es decir, cuando ya Enrique Egas, Pedro de Ibarra y otros maestros habian iniciado en las construcciones civiles la manera ultramontana, y proseguir lenta y trabajosamente hasta los primeros años del siglo XVII, esto es, hasta la época de la decadencia de nuestra arquitectura, ya facilmente sospechará el lector que vamos á encontrar dentro de ella todos los caractéres buenos y malos, todas las huellas de las diferentes trasformaciones de nuestro gusto artístico, desde las elegantes proporciones dadas al estilo plateresco por Cristóbal de Andino, Juan de Badajoz, Machuca, Covarrubias, Siloe y Borgoña, hasta las frias, secas y pesadas invenciones de los imitadores de Juan de Toledo, Herrera, Vega, Becerra, Bustamante y Villalpando. Porque son dos los estilos que se dividen el siglo XVI en España: el primero es el plateresco, formado y cultivado casi esclusivamente por artistas españoles bajo el reinado de Cárlos V, el cual se perpetúa hasta dentro del reinado de Felipe II, y al que se deben, entre muchos edificios justamente célebres, el bellísimo claustro del monasterio de Sta. Engracia de Zaragoza, trazado por Tudelilla; el monasterio y templo de S. Miguel de los Reyes de Valencia, obra de Covarrubias y Vidaña; la preciosa fachada principal del alcázar de Toledo, del mismo Covarrubias y de Enrique Egas; la capilla del Salvador de Úbeda, y el palacio del comendador mayor Cobes, secretario de Cárlos V, obra de los Valdeviras de Sevilla; la casa de ayuntamiento de esta ciudad, de autor desconocido; el famoso claustro de S. Zoil de Carrion y la fachada del convento real de S. Marcos de Leon de la órden de Santiago, ideados por Juan de Badajoz, etc. Muchos de estos edificios compiten por la gracia, la originalidad y el esquisito gusto y conclusion de sus decoraciones, con los mas afamados que en sus respectivas naciones construyeron Serlio, Alberti, Bramante, el Rosso, el Primaticio, Filiberto Delorme, Pedro Lescot y Juan Bullant. El segundo estilo, de tal manera identificado con el espíritu de gravedad y de misticismo austero que caracteriza á la política y gobierno de Felipe II, que no parece sino que el arte quiso simbolizarlo, es el llamado greco-romano, debido á la revolucion que acababa de hacer en la arquitectura el genio altivo, osado y un tanto sombrío de Miguel Angel, sustituyendo á los órdenes acumulados y sobrepuestos del estilo del renacimiento un órden único y colosal en cada edificio, y proscribiendo como futilidades pueriles los follages, grotescos, estípites, candelabros y demas adornos prodigados por los adeptos de aquel. Comienza este severo y desnudo estilo á dar indicios de su existencia en España con las construcciones de Gaspar de Vega en Uclés y en Madrid, y las del P. Bustamante en Toledo, notables por su gran sencillez y pureza de líneas, mas no se desarrolla plenamente hasta la época en que para la construccion del Escorial, cuna y escuela futura de esclarecidos artistas, trae Felipe II de Italia á Juan de Toledo y suscita al renombrado Juan de Herrera, elevándole en su munífica proteccion á tanta altura, que se le miró como el grande astro del arte destinado á iluminar todos los ángulos de la Península, creyéndose de buena fé que antes de recibir su claridad habia dormido España en las tinieblas de la ignorancia. La ocasion que tuvieron nuestros vireyes y gobernadores en Nápoles y Milan de conocer á arquitectos italianos de mérito, contribuyó tambien poderosamente á que algunos de estos, como Benvenuto, Juan Bautista Castello, Francisco Sissoni, Felipe Trezzo y los Antonellis, viniesen á nuestras ciudades á reforzar, digámoslo así, la invasion de las ideas de Vignola y Miguel Angel. De ambos estilos, plateresco y greco-romano, participa pues en su construccion y decoracion la catedral que vamos describiendo, si bien su primer arquitecto, Hernan Ruiz el Viejo, ideó sin duda alguna erigirla con arreglo al sistema gótico, que en su tiempo se consideraba todavía como el mas adecuado para los templos del cristianismo. Reconócese desde luego esta intencion en la forma ojival de sus arcos torales, y si no presentan este mismo carácter su presbiterio, su cúpula elíptica y su coro, es porque, como dejamos indicado, estas partes y su ornamentacion no se obraron hasta mucho despues de haber muerto aquel eminente artista. La decoracion de la catedral en rigor pertenece casi esclusivamente á los tiempos del rey D. Felipe III, que, como nadie ignora, fueron de visible decadencia en todo respecto de los tiempos anteriores.

El presbiterio está formado por cuatro grandes arcos de medio punto, dos á cada lado, decorados con follagería de estuco y otros adornos con filetes dorados, entre los cuales se ven dos grandes escudos de España con las insignias y timbres imperiales. Sobre estos arcos corre una pequeña columnata con su arquitrabe y con arquitos ornamentales en los intercolumnios formando una hilera de hornacinas, y luego un entablamento de gran trabajo, en cuya faja inferior hay una inscripcion que dice el tiempo en que se acabó la obra de la capilla mayor. A cierta distancia de la cornisa se levanta á cada lado un cuerpo compuesto de tres arcos, el del medio remontado, que sirve de ventana, y los otros dos adintelados, en los cuales se ven cuadros que al parecer representan hechos de la vida de S. Fernando. Todos tienen su correspondiente cornisamento sostenido de columnas jónicas estriadas, con los pedestales al aire cargando en sendas repisas. Encima de cada arco hay una lumbrera, con que se llena el lienzo del testero, y á cada lado un nicho. Esta misma decoracion ocupa la parte que media desde el cornisamento hasta la bóveda de los frentes de la nave del crucero. La bóveda de la capilla es cuadrangular rebajada. De sus cuatro ángulos parten manojos de baquetones interrumpidos á trechos por círculos ó medallones con bustos de varios santos: mezcla de estilos que produce una decoracion pesada y de mal efecto. Las bóvedas de la nave del crucero son semejantes á esta, y estan igualmente decoradas con baquetones góticos. Los dos testeros del crucero que cortan las naves principales de la mezquita ofrecen una ornamentacion mixta de plateresco y sarraceno: redúcese á dos robustos arcos cubiertos de follagería en las molduras de sus archivoltas, descansando en cornisas sostenidas por columnas, con otros dos encima ornamentales, sobre los cuales corre una ancha faja de arquitos entrelazados. Del medio de esta faja baja otra perpendicularmente hasta el suelo, dejando un arco á cada lado con su arco ciego encima, y encerrándolos á manera de arrabá. En la faja perpendicular se ve una imágen sostenida en una peana cuya base es una columna de jaspe, y debajo de una marquesina gótica muy labrada que descansa en dos columnitas espirales. Sobre la marquesina hay un recuadro con un escudo, y en los tímpanos de los arcos ciegos que hemos mencionado, adornos de arquitos angrelados entrelazados al gusto sarraceno. Los lados que abren paso á las naves trasversales de la mezquita presentan una combinacion muy feliz y graciosa de los estilos árabe y plateresco, pues subsisten en ellos tres antiguos arcos de herradura con sus arcos remontados encima, arrancando de las lindas pilastras que entre uno y otro estan como suspendidas en el aire; y sobre los tres arcos abiertos voltea un grande arco ornamental de medio punto, cuyo tímpano llena una greca de filetes perpendiculares con lacería angrelada en el centro[379].

Dibº del natl y litª por F. J. Parcerisa.
Lit de J Donon.
INTERIOR DE LA CATEDRAL DE CÓRDOBA.
Dibº. del nat.l y litª. por F. J. Parcerisa Lit. de J. Donon, Madrid.

INTERIOR DE LA CATEDRAL DE CÓRDOBA.

Dijimos que los arcos torales estaban labrados á la manera gótica; pero aun en su misma ornamentacion se advierte la mano bastarda del arte moderno, porque si bien sus baquetones lisos y de aristas, sus funículos y sus relevadas cenefas de hojas y animales, forman como un haz vistoso de cañas, cuerdas, y tallos cuajados de flores, las claves de los del presbiterio y coro estan enmascaradas con feas cartelas de forma elíptica recargadas de adornos de mal gusto. Sostienen estos arcos torales una cúpula oval con su cornisa de mútulos y friso adornado de festones pendientes. Tanto la cúpula como las pechinas estan cuajadas de recuadros, medallones, festones, cartelas, y hasta estátuas de todo bulto. Dan luz á aquella ocho espaciosas lumbreras.

El coro está decorado en su parte superior de una manera muy poco adecuada para un templo. Su bóveda es de cañon, atravesada por cuatro grandes lunetos, entre los que se ven cariátides pareadas que la sostienen. Adornan su parte central en toda su longitud estátuas de santos colocadas en recuadros de estuco, con florones y otros adornos en los intermedios. Entre los ángulos que forman los lunetos hay estátuas, colocadas tambien en recuadros sostenidos de niños ó genios, de músculos hercúleos y carnes superabundantemente nutridas, con escudos del obispo Reinoso. Bajo cada luneto hay una gran ventana con jambaje y dintel correspondiente á lo demas de la fábrica, y sobre los dinteles campean escudos del prelado D. Leopoldo de Austria, tio del emperador. Por la parte inferior de las ventanas corre á alguna distancia un cornisamento cuyo friso está adornado de follagería con medallones de muy alto relieve á trechos; debajo hay en cada lado tres arcos ojivales figurados, y en su vano estan abiertos otros algo menores de medio punto, que dan salida á las tribunas. El tímpano entre ambos arcos está lleno de adornos formando cenefa. Entre los arcos hay en cada machon dos estátuas, una sobre otra al modo gótico, la superior bajo su afiligranada marquesina y descansando en su peana, que sirve á la inferior de doselete. La luz escesiva de aquellas anchas ventanas, la abundancia de los estucos y dorados, la presencia inoportuna de aquellas cariátides y genios, dan á esta parte del templo un aspecto profano, mas propio de una galería ó aula régia que de un coro de canónigos. Y aun prescindiendo de su destinacion, como obra artística es á nuestros ojos lo menos feliz de la gran catedral cordubense.

INTERIOR DE LA CATEDRAL DE CÓRDOBA.
INTERIOR DE LA CATEDRAL DE CÓRDOBA.

Pero donde resulta todavía mas disonante la reunion de estilos de diversas épocas y de opuestos sistemas, es fuera del buque de la nueva catedral, en la sexta nave principal de la antigua mezquita, cortada en una estension de trece naves trasversales para formar el trascoro. Abre paso á este un grande arco de herradura, primorosamente cuajado de labor gótica relevada, en su archivolta y en su intrados, y despues de atravesarle se halla uno debajo de una bien perfilada bóveda ojival del siglo XVI. Otro grande arco gótico, levemente apuntado, adornado de molduras, cenefas y funículos, sobre pilares ornados de treboles, cenefas y columnillas platerescas de estrías espirales en la parte baja de su fuste, conduce á la fachada posterior del coro. Esta fachada ya no es ni árabe, ni gótica, ni plateresca; como de la época en que se terminaba la gran fábrica del Escorial, es puramente de aquel estilo greco-romano desnudo y severo que estaba allí en boga, practicado por Francisco de Mora, el discípulo predilecto de Herrera, y que era tambien muy del gusto de Diego de Praves, quien pudiera quizá ser su autor[380]. La obra es toda de piedra franca: compónese de dos cuerpos, el inferior de ocho columnas dóricas estriadas y pareadas. Las del centro, entre las cuales se ven algunos recuadros resaltados, sostienen el segundo cuerpo, formado por dos columnas jónicas, tambien estriadas, con su correspondiente cornisamento y fronton triangular, sirviendo de templete á una estátua del tamaño natural de S. Pedro sentado en actitud de bendecir. Entre las columnas del centro y laterales del cuerpo inferior estan los postigos del coro, de arco adintelado, con cornisa dórica arquitrabada, sobre la cual carga un óvalo de jaspe azul sostenido por genios, y un fronton triangular afianzado con mútulos. Del mismo estilo que esta fachada es la entrada principal al trascoro, que está enfrente, con un grande arco central de diez y seis piés de luz flanqueado de hermosas pilastras dóricas, las cuales sostienen un cornisamento del mismo órden, con un ático que sirve de base á un segundo cuerpo de arcos adintelados y columnas jónicas estriadas, rematando el conjunto en un tercer cuerpo de arcos y pilastras pareadas. No deja de producir efecto en el ánimo esta composicion en cierto modo grandiosa, sea que realmente exista en esta arquitectura el mérito que sus apasionados le atribuyen, ó sea que en sus no interrumpidas y desnudas líneas descanse con placer la vista despues de fatigada con la recargada decoracion de los estilos gótico-florido y plateresco. Continuando nuestro paseo por el trascoro, atravesaremos ahora por debajo de otro grande arco ojival, compañero al que nos sirvió de ingreso al tramo de las dos portadas greco-romanas, cubierto por la alta bóveda plateresca del coro, y volveremos á entrar en la nave baja que circuye el gran buque de aquel, cubierta como dejamos dicho de bóveda ojival del siglo XVI[381]. Nos hallamos en el ángulo S-O. de la catedral nueva, y tenemos enfrente la fachadita esterior del norte de la capilla de Villaviciosa, toda encerrada en un arco de herradura, en cuya archivolta labró el genio paciente y minucioso del renacimiento español veintidos compartimentos cuajados de lindas figuritas en sus correspondientes nichos. Los galanos arreos del renacimiento, empleados con sobriedad, hacen muy buena mezcla con las líneas de la primera arquitectura árabe: así tambien los tres arcos de herradura que presentan en ambos lados los brazos del crucero, llevan con bellísimo efecto en sus archivoltas una cenefita de hojas gótica, que no parece sino la marca de bautismo puesta al arte musulman por el arte cristiano al prohijar una de sus mas graciosas invenciones. La fresca y sencilla corona de azahar que ciñe la frente de la jóven desposada, no tiene mas encanto y mas poesía que esa angosta cenefa en aquellos garbosos arcos, limpios y desnudos de todo ornato, restos de un monumento que puede considerarse como la creacion mas gallarda y robusta del genio islamita en España.

Las arquerías de la antigua Aljama que no alcanzaron el privilegio de entrar en el recinto de la gran cruz que forma la planta de la catedral, no por esto dejan de contribuir á una bellísima perspectiva desde el interior; el dicho vulgar de que la mezquita de Córdoba parece un bosque de piedra nunca es mas exacto que cuando registra la vista las largas calles en que estan dispuestas sus numerosas columnatas, mirando por los gigantescos arcos del presbiterio y del crucero[382]. Esta perspectiva sería infinitamente mas vistosa si se conservasen los preciosos alfarges árabes que cubrieron las naves hasta los primeros años del siglo pasado, en que por no hacer el debido aprecio del artesonado antiguo, se sustituyó el embovedado de mal gusto que hoy tienen[383].

Pasamos por alto la descripcion de muchas cosas que como obras del arte no podemos elogiar, ni aisladamente, ni en su relacion con el edificio: tales son, el retablo de la capilla mayor, en que solo nos es dado encarecer el escelente trabajo manual de los jaspes en sus lechos y juntas, superficies planas y molduras; el tabernáculo, en que solo admiramos el perfecto ajuste y bruñido de los mármoles; los púlpitos de Verdiguier, borrominescos, y no obstante grandiosos; últimamente la sillería del coro, obra del escultor D. Pedro Duque Cornejo, recargada de adornos, estatuitas y medallones del estilo amanerado que privaba en la segunda mitad del siglo XVIII, con su elevada silla episcopal llena de figuras de gran tamaño, composicion en alto grado churrigueresca. Y sin embargo de merecer poco encomio como objetos artísticos, no puede negarse que la sillería del coro con su profusa talla, los púlpitos de caoba con sus grupos de pulido mármol al pié, el tabernáculo con sus dos cuerpos y cúpula de variados jaspes, y el retablo con su séria riqueza, forman un conjunto magestuoso, augusto, lleno de pompa, realzados con el oro prodigado en toda la arquitectura del templo, con la espaciosa escalinata del presbiterio, con las losas de Génova del pavimento, con las verjas, postigos y balaustradas de bronce, con la gran lámpara de plata que pende en la capilla mayor, y el altar calado de bronce y plata, cuando antes de analizar una por una las partes de la moderna catedral, se percibe de golpe la primera impresion producida, no por las formas, sino por la nobleza de la materia.

Hemos querido presentar en un cuadro general la marcha del arte en todo el siglo XVI para que resultase mas fácil la clasificacion filosófica de los diferentes estilos que en la obra de la nueva catedral se advierten. Ahora, continuando la interrumpida historia cronológica de las capillas y demas obras, cada cual podrá formarse idea de su carácter arquitectónico con solo tener presente la época de su edificacion.

El obispo D. Fr. Juan de Toledo, á quien hemos visto promover con ardor la obra del nuevo crucero desde el segundo año de su inauguracion, ya que no podia dejar un recuerdo de lo que alcanzaba la composicion arquitectónica de su época dentro del templo, por hallarse este apenas comenzado, quiso dejarlo en su portada principal mirando al átrio, y quizás con este intento mandó construir el cuerpo de piedra que hoy existe sobre el arco llamado de las bendiciones en la Puerta de las Palmas, que dá ingreso á la nave central y mayor de la mezquita primitiva[384]. Reconócese en esta obra á la primera ojeada la arquitectura del tiempo de Cárlos V, aun sin necesidad de leer la inscripcion dedicatoria del referido prelado á la salutacion angélica de nuestra Señora, que ocupa en ella un lugar muy preferente. Sobre el grande arco de herradura de la puerta árabe se labró á modo de tejaroz una cornisa saliente sostenida en modillones e molduras horizontales, muy juntos y con un escudito en su frente, y sobre esta cornisa se levantó á guisa de espadaña un paralelógramo rectángulo con dos pilastrones ó antas á los lados, decoradas en su grueso de floroncillos de relieve. En la parte alta de este cuerpo rectangular hay dos nichos, entre columnas balaustradas, sobre grandes repisas de follagería con ancho tablero, unidas entre sí por una imposta. Descansa sobre las columnas un arquitrabe con su cornisa, que sobresale de la cornisa general; ocupan los nichos las imágenes de nuestra Señora en el misterio de la Anunciacion, y el ángel Gabriel, y sobre el centro de la imposta que une las dos repisas descansa un jarron de azucenas. En la parte baja se ve un escudo con las armas del prelado, y á los lados dos cartelas de elegante forma con la inscripcion siguiente: «Hoc Sacrum opus angelicæ salutationis divæ Mariæ Virgini dicatum, Frater Joannes á Toleto sculpendum curavit, episcopatus sui anno decimo, nativitatis vero domini nostri MDXXXIII.» Sirve de remate á este cuerpo una hilera de escudos y balaustres á modo de jarrones.

Capilla de S. José y Sta. Úrsula. La erigió á levante el canónigo D. Alonso Sanchez Dávila entre la antigua de nuestra Señora de la Concepcion y una puerta, en el año 1550, tomando el tramo veintitres de la última nave principal.

Capilla de la Resurreccion. Fué fundada, no se sabe precisamente en qué año, por el prior y familiar del obispo D. Leopoldo de Austria, el aleman D. Matías Muitenhoamer, que murió en 1569 y yace enterrado en ella. Ocupa un pequeño espacio al levante entre el postigo del Sagrario y la capilla de los Stos. Acisclo y Victoria.

Capilla de la Asuncion de nuestra Señora. Es fundacion del maestrescuela D. Pedro Fernandez de Valenzuela, quien la labró en 1554 al otro lado del postigo del Sagrario.

Capilla del Espíritu Santo, ó de los Obispos. El arcediano de Córdoba D. Francisco de Simancas, en nombre de su hermano D. Diego Simancas, obispo de Ciudad-Rodrigo y electo de Badajoz, acudió al cabildo representando que deseaba fundar y dotar una capilla para su entierro y el de sus padres, cuyos cuerpos habian estado depositados en otra debajo de la de los Reyes. Pedia al efecto que se le señalase sitio para labrarla, y el cabildo en 4 de setiembre de 1568 concedió la capilla y señaló para ella el espacio de una puerta del muro de levante que quedaba entre la antigua de la Concepcion y otra titulada de la Expectacion, fundada á mediados del siglo XIII por el chantre D. Pedro Hoces. Hízosele esta concesion con tanto (dice el acta capitular) que se cierre la puerta en manera, que por fuera de la dicha iglesia se quede muy formada y señalada. Así se cumplió; hoy sin embargo, por de fuera, no se ven de la puerta árabe que entonces se tapió mas que las jambas: el gallardo arco de herradura está sin duda sepultado, con los ajimeces que tendria probablemente á cada lado en la parte superior, bajo las gruesas capas de cal y ocre con que el moderno vandalismo ha presumido hermosear todos los antiguos monumentos de España. La capilla de que hablamos se llama tambien de los Obispos por estar sepultados en ella el mencionado D. Diego Simancas, y su hermano D. Juan, obispo de Cartagena en Indias[385].

Quizás no estaba acabada esta capilla cuando á fines de diciembre del año 1569 se aderezaba con toda premura para que sirviese de salon de córtes la Sala Capitular, que, como queda dicho en su lugar correspondiente, se hallaba establecida en la capilla de S. Clemente, fundada por el rey S. Fernando[386]. Diremos sumariamente por qué iban á reunirse aquí las córtes del reino.

La parte meridional de la herencia de Cárlos V atravesaba uno de sus mas dificultosos períodos. Balanceábase magestuosa en un mar lleno de escollos la nave del Estado regida por la inflexible mano de Felipe II, cuya severidad escesiva embravecia los ánimos de los hereges flamencos y traía alterados y en declarada rebelion á los moriscos granadinos. Personificacion terrible de la autoridad y de la razon de estado, reunia este monarca, como condiciones para reconstituir con la fuerza la disuelta union de la cristiandad, al celo religioso el arte de sacrificar á la política todo humano instinto. Del pantano de sangre en que habia convertido los Paises-Bajos, revolvia ahora amenazante hácia la parte donde retoñaba bajo la influencia otomana el peligroso proselitismo islamita. Córdoba y Sevilla le preparaban arcos triunfales y emblemáticas adulaciones aunque le sospechaban parricida: temianle las mismas ciudades ortodoxas que defendia, y es de creer que al recibirle en su Puerta Real la reina del Guadalquivir, de mejor gana que el Parnaso y el coro de Helicona[387], le hubiera presentado alguna otra alegoría mas acomodada á sus empresas; por ejemplo, el carro triunfal de la España católica conducido hácia la gran fantasma de la monarquía universal, llevando por guiones la Inquisicion y el Consejo de justicia[388], por un campo lleno de hogueras, destrozos, poblaciones asoladas, familias diezmadas y despavoridas; sobre el carro la Fé católica desfigurada y abatida, condenada por el rey á un triunfo forzado, y en torno por el aire, en vez de divinidades protectoras y genios, de una parte el espantable espectro del príncipe D. Cárlos, de otra los de los malhadados condes de Egmont y de Horn acaudillando una interminable legion de indignadas sombras. Como quiera que fuese, las dos principales ciudades de Andalucía rivalizaban en la manera de obsequiarle y de granjearse su sonrisa, porque aunque los hereges vencidos le llamasen el demonio del mediodia, el poderoso clero de España le llamaba el piadoso y el prudente, y aunque la nacion se empobrecia, y se dejaba arrebatar los últimos restos de sus antiguos fueros y libertades, la aparente riqueza de las Américas la alucinaba, y las gloriosas hazañas de D. Juan de Austria, del duque de Alba, del de Parma y del de Saboya, entretenian su imaginacion aventurera. Que entre los moriscos de la Alpujarra y del Albaicin y el Imperio turco habian mediado tratos, era cosa indudable. Pudo Selim II dejar á los de Granada comprometidos, sin mas apoyo que el que les mandó el rey de Argel; pero de todos modos el rey católico obró con cordura y como agente providencial al dar una importancia máxima á aquella insurreccion, puesto que era un anuncio de la grande amenaza que al año siguiente le iba á arrastrar á un combate glorioso contra el turco, y porque contra ella iba á ensayar su militar pericia el glorioso jóven destinado á hundir la arrogancia de la media luna en las aguas de Lepanto. Además, entre las fuerzas del rebelde Aben Humeya habia considerable número de otomanos y socorros cuantiosos de Berbería, capitanes prácticos en su manera particular de hacer la guerra, armas y vituallas en abundancia. Veía por otra parte el rey que la reunion de gente y de provisiones se hacia muy despacio, y pareciéndole que con acercarse él mas al reino de Granada daria mas eficaz impulso á las ciudades y señores, y que con la fama y autoridad de su venida andarian mas retenidos los príncipes de Berbería en dar auxilios, resolvió pasar á Andalucía y llamar córtes en Córdoba para dia señalado, convocando á los procuradores de las ciudades y mandando disponer aposentos.

Sabido es lo que eran las córtes en España bajo la casa de Austria. La guerra de los comuneros habia sido la última llamarada deslumbradora de la antigua representacion nacional: despues de ella nada quedó del principio democrático, nada de la independencia nobiliaria, nada del predominio del alto clero. Lo que ahora se llamaba córtes era la reunion de diez y ocho ó veinte diputados para aprobar cuanto mandaba el rey. No debe por lo tanto estrañarse que una sala capitular de sesenta piés de longitud se considerase parage muy adecuado para celebrar sus córtes el reino con toda comodidad y decoro. Preparóse para aposento del rey el palacio del obispo, pasando este su habitacion al hospital de S. Sebastian, que pidió al cabildo, trasladando los enfermos al de Anton Cabrera; y para que S. M. pudiera ir desde el templo á su palacio sin que le importunase el gentío, se engalanó como era regular el pasadizo por donde los reyes árabes se trasladaban de uno á otro edificio. En la puerta del Perdon aderezó el cabildo un altar con una imágen de nuestra Señora y una reliquia. Tambien la ciudad se esmeró en disponer un recibimiento digno del augusto huésped y de su corte. Hizo blanquear la torre de la Puerta Nueva, por donde debia entrar el rey, y lo mismo todas las otras torres vecinas y parte de muralla que desde allí se descubren. Ensanchó considerablemente la puerta, renovó la imágen grande de nuestra Señora que estaba encima, y puso en lo alto de la torre un escudo con las armas reales y dos con las de la ciudad á los lados. En la Corredera, que es la plaza principal, por donde habia de pasar igualmente la regia comitiva, acababa de hacer construir el corregidor D. Francisco Zapata de Cisneros, conde de Barajas, una hermosa fuente de jaspes encarnados y negros, de tres cuerpos con pilon ochavado y dos tazones de elegante forma, que llamó despues la atencion del rey. Llegó el dia señalado para la entrada, lunes 20 de febrero: ya el viernes antes habia hecho la suya el cardenal Espinosa con muy solemne recibimiento. Ahora la Puerta Nueva estaba lujosamente revestida con los paños del cabildo concejil, de terciopelo carmesí y amarillo, bordadas en medio las armas de la ciudad; al lado derecho habia un dosel de brocado, muy espacioso para que debajo de él pudiera situarse el rey á caballo á prestar su juramento de guardar á la ciudad sus preeminencias y libertades; habia tambien muchos tablados, ricamente guarnecidos, para las damas ansiosas de presenciar tan solemne acto; todas las calles de la carrera estaban colgadas vistosamente, y por último tenia preparados la ciudad seis castillos con grandes luminarias para despues de anochecer, á mas de las caprichosas iluminaciones de las casas particulares, muchas de las cuales debieron malograrse con el aguacero que descargó aquella noche misma desde las nueve en adelante[389]. Salió la ciudad á recibir á Felipe II, vestidos los jurados de amarillo con ropones de terciopelo verde y vueltas de raso amarillo, los veinticuatros de blanco con ropas de terciopelo carmesí y vueltas como el vestido, sus maceros delante con ropas de damasco carmesí: todos cabalgando. Apeáronse en el campo del Marrubial, y cuando llegó el rey, uno á uno le fueron besando la mano. Lo mismo hicieron el obispo y el cabildo eclesiástico, con el entretenimiento consiguiente á la gran muchedumbre de gente de á pié y á caballo que allí habia acudido. Prosiguiendo luego el rey su entrada, al llegar á la puerta de la ciudad se situó bajo el dosel que le estaba preparado, prestó su juramento, entró despues bajo el palio de brocado que tenian enfrente el corregidor y otros veinticuatros, y tomando con su numeroso y lucido cortejo la calle derecha, llegó á S. Pedro, se enderezó á la Corredera, subió los Marmolejos arriba, bajó por la calle de la Feria, y salió por la platería al ángulo S-E. de la iglesia mayor[390]. Recorriendo toda su fachada oriental, se apeó en la puerta del Perdon, donde le esperaban ya á pié el obispo con asistentes y diáconos, la procesion de todo el clero y cruces de las parroquias, y los prebendados con sobrepellices y capas de brocado. Arrodillóse ante el altar que allí se habia colocado, el cardenal le dió el agua bendita, el obispo le dió á besar la reliquia, y entonando la música el responsorio elegit Deus, caminó la procesion al altar mayor antiguo, donde dijo el obispo las oraciones que previene el Pontifical y dió la bendicion solemne al rey, á la ciudad y á la corte. Era este obispo D. Cristóbal de Rojas y Sandoval, que estaba en esta misma época grandemente consagrado á dar impulso á la obra del nuevo crucero, como dijimos en su lugar oportuno.[391]

Acudieron á Córdoba además de los procuradores de las ciudades, muchos señores y caballeros de toda Andalucía, con no pocos personages notables de la corte. El rey se detuvo dos meses tomando con sus córtes las providencias convenientes para la reduccion de los moriscos, y antes de pasar á Sevilla recibió un fastuoso homenage del duque de Medinasidonia, quien desde sus estados fué á Córdoba á besarle la mano, con tan lucido acompañamiento que ocupó las lenguas de la fama por mucho tiempo[392].

Capilla de Nuestra Señora de la Concepcion. Fué esta capilla fundada por un racionero hácia el año de 1571, contra el muro de levante, entre la capilla de Sta. Ana y el postigo llamado de los Juanes, que es el mas próximo al patio de los Naranjos por aquel lado.

Hemos hecho mérito de un acuerdo del cabildo, de enero de 1517[393], del que se colige que en este año se destinaba á la librería el local de la antigua y espaciosa capilla de Santiago. Posteriormente, en la sede vacante del obispo D. Fr. Bernardo de Fresneda (año de 1577), determinó el cabildo hacer de la librería un nuevo Sagrario, por ser pequeño el antiguo que estaba en la capilla de la Cena. Esta obra se continuó con ardor por el obispo D. Fr. Martin de Córdoba; mas con su muerte, acaecida en junio de 1581, quedó suspendida, hasta que en agosto de 1583 la continuó y acabó el obispo Pazos y Figueroa. Hízose el Sagrario propiamente dicho al fondo de la nave central de las tres que contenia la mencionada capilla de Santiago, rozando el muro en todo su espesor para abrir en él una especie de camarin entre las dos torres árabes que sirven de contraresto á las dos arquerías tendidas de norte á sur. Estas dos torres quedaron por su haz esterior unidas con un fuerte muro, segun aparece hoy. Ciérrase este camarin con una puerta de talla dorada; á sus lados hay dos altares, en que se ven pinturas al fresco representando á dos profetas; en las naves laterales hay tambien altares; las paredes estan todas cubiertas de pinturas al fresco de los mártires de Córdoba, costeadas por el obispo Pazos y ejecutadas por el italiano César Arbasi, pintor de la escuela de Leonardo de Vinci[394]. La puerta principal de esta capilla es una verja de hierro muy bien trabajada por Fernando de Valencia: en su parte superior campean las armas del obispo D. Fr. Martin de Córdoba. Sobre las puertas laterales por la parte interior se léen los siguientes versos:

«Consecrata solo cœlo exaltata triunphat
       Corduba tot tantis inclyta martyribus.»
 
«Concives Sancti vos Corduba vestra precatur
       Sit vestro semper salva patrocinio.»

Yacen en ella sepultados varios obispos, pero solo D. Antonio de Pazos tiene delante del comulgatorio una lápida de jaspe rojo con inscripcion que él mismo dictó en vida.

Capilla de Nuestra Señora la Antigua. En 1597 la labró el jurado Alonso Cazalla en el ángulo N-E. de la mezquita primitiva anterior al ensanche dado por Almanzor. Puso en ella una imágen de Nuestra Señora, pintada al parecer sobre fondo dorado y menudamente labrado que le dá ciertos visos de verdadera antigualla. Apenas hay ciudad importante donde no se venere alguna de estas imágenes, que la tradicion supone reliquias de la España visigoda, milagrosamente salvadas durante la dominacion sarracena y restituidas con la reconquista á la pública devocion. Ofrecen por lo general un carácter evidentemente bizantino; pero esto no obsta para que la piadosa tradicion prevalezca si se considera que los griegos de Constantinopla eran los únicos pintores en los primeros siglos de la Iglesia. Esta capilla es la postrera huella artística del siglo XVI en la catedral de Córdoba.

Habiendo de mencionar ahora las obras ejecutadas en el siglo XVII y primera mitad del XVIII en que terminan las fundaciones hechas en nuestra catedral, diremos antes en pocas palabras el carácter de la arquitectura en este período. Aquella severa grandiosidad, aquel purismo clásico que distinguia las construcciones de los restauradores de la arquitectura greco-romana, y que tanto agradaron durante el reinado de Felipe II y la mayor parte del de Felipe III, empezaron á abandonarse desde los primeros años del siglo XVII. Comenzaba desgraciadamente para España la época de su gran decadencia en política, en armas, en letras: ¿cómo no habia de languidecer un arte como la arquitectura que necesita mas que otro alguno para desarrollarse, la juventud, la energía y la vida de la inteligencia? Cuando declinan las ideas decaen necesariamente las formas: así el que quiera estudiar à priori las vicisitudes del arte bajo los últimos monarcas de la casa de Austria, no tiene mas que hojear los libros de los prosadores y poetas contemporáneos.

Los italianos, reñidos ya con la austera grandiosidad de Palladio, comenzaban á disgustarse de la desnudez de los miembros arquitectónicos: revestían de follages, festones, lazos y entallos los frisos y entrepaños, los frontones, los dados, si bien conservaban puras las líneas y los perfiles. Las relaciones de nuestra Península con Roma eran demasiado estrechas para que no se nos hiciese familiar el estravío que allí padecia el buen gusto; además, el estilo introducido por la escuela de Herrera habia en cierto modo agotado sus recursos, y se deseaba la novedad. Poco á poco aquella especie de manía de ornamentacion, que al principio respetó los distintivos característicos de cada órden arquitectónico, se fué comunicando á la esencia misma de los cuerpos, á la estructura y combinacion del conjunto. Hacer desaparecer los perfiles de un monumento bajo la balumba de los follages, como lo ejecutó en el Panteon del Escorial el italiano D. Juan Bautista Crescencio, era una verdadera profanacion segun las reglas de los Vignolas, Albertis y Sagredos; pero hasta los de juicio mas severo se fueron paulatinamente acostumbrando á la nueva manera, y ya en 1626 no tuvo escrúpulo el hermano Francisco Bautista en adornar con hojas de acanto los capiteles dóricos de la fachada de S. Isidro el Real de Madrid. Autorizada la peligrosa innovacion con tan insigne ejemplo, pronto se rompió el dique del respeto á la antigüedad, y Donoso, Barnuevo, Churriguera, Thomé, Ribera y sus prosélitos, inundaron en pocos años el pais con sus licenciosas y amaneradas invenciones. Era esta la época en que los ingenios españoles contagiados del culteranismo literario y artístico, construían gongorismos lo mismo con piedras y estuco que con palabras. Es tal la paridad entre los arquitectos y los poetas de aquel tiempo, que al leer uno la crítica que hacia el Milizia de Borromino, podria creer que estaba aquel severo escritor juzgando á nuestro célebre Luis de Góngora: «fué, dice, uno de los primeros hombres de su siglo por la elevacion de su ingenio, y uno de los últimos por el uso ridículo que de él hizo.» Juan Martinez, Crescencio, y el hermano Francisco Bautista, eran ya puristas comparados con estos últimos, cuya incontinencia de estilo rayaba en enagenacion mental y delirio.

Conviene marcar las épocas. El estilo severo de los Herreras y de los Moras persevera sin contagio hasta la segunda década del siglo XVII, en que el Bernino y el Maderno hallan imitadores entre los españoles, estimulados quizá de la proteccion concedida á Crescencio por el poderoso duque de Olivares. Empieza pues á insinuarse el amaneramiento desde antes de florecer como arquitecto de S. Pedro de Roma el Borromino. Declárase más el divorcio con el clasicismo pasado cuando el Borromino logra secuaces entre nosotros, cuando Alonso Cano traza en 1649 su arco para la entrada de la reina D.ª María Ana de Austria en Madrid, es decir en la segunda mitad del reinado de Felipe IV. Entonces el Rizi contribuía quizá mas que otro alguno á precipitar esta revolucion artística, con las decoraciones que como perspectivo ejecutaba para el teatro del Buen Retiro, y que la corte entusiasmada aplaudia. Secundábale Herrera Barnuevo con la pesadísima decoracion de la capilla de S. Isidro de Madrid. Todavía sin embargo se conservaban enteras las cornisas y se miraban con cierto respeto las líneas rectas; pero vino Donoso en el reinado infeliz de Cárlos II, con su claustro de Sto. Tomás, con su iglesia de la Victoria, con sus fachadas de la Panadería y de la iglesia de Sta. Cruz, con su portada é iglesia de S. Luis, obras todas ejecutadas en la corte; siguiéronle en Madrid, y aun extremaron su detestable escuela, D. José Churriguera con el túmulo que levantó para las exequias de la reina D.ª María Luisa de Orleans, D. Pedro Ribera con sus portadas del Hospicio y del Cuartel de Guardias de Corps; y en las provincias Herrera el mozo, autor del templo del Pilar de Zaragoza; Thomé, que trazó el intrincado y célebre Trasparente de la catedral de Toledo; Arroyo, que hizo la casa de moneda de Cuenca; Rodriguez, que ideó la portada del colegio de Santelmo de Sevilla; Moncalan y Portelo, que dirigieron la fábrica del hospital de S. Agustin de Osma; y rivalizando estos entre sí en el deseo de producir cosas nunca vistas y de separarse en todo de las reglas de la antigüedad, rompieron las líneas, hicieron cortes y resaltos revesados, retorcieron los entablamentos y los interrumpieron, alteraron todos los miembros arquitectónicos, y abandonándose al frenesí de su imaginacion desarreglada, llegaron á una completa dislocacion de las formas y de los miembros. El carácter de esta deplorable arquitectura consiste esencialmente en habérselo quitado á todos los órdenes antiguos. Un entendido y juicioso escritor de bellas artes hace la siguiente felicísima enumeracion de partes del monstruoso estilo arquitectónico practicado en tiempo de Cárlos II[395]. «Las columnas, ora espirales y cubiertas de emparrados, ora surcadas de singulares estrías y agallones, ora panzudas y rechonchas, ó larguiruchas y chupadas, alternaban con estípites y cariátides, balaustres y pilastras, aquí y allí esparcidas y estrañamente apolazadas con recortes, escocias, gargantillas, y hasta nuevos capiteles, encaramados unos sobre otros. Ni cupo mejor suerte á las cornisas. Cortadas y retorcidas de mil maneras, habrian parecido harto desabridas y monótonas á los innovadores si se hubiesen conservado en ellas la direccion recta y una sola moldura por picar. Diéronles tormento, é hicieron de sus diversas partes ondulaciones y resaltos: menudos frontones, arquillos, retozos y almenados, y hasta una especie de capacetes para cubrir las cornisas de las columnas, como si fuesen los remates truncados de un frontispicio, y sin otro objeto que servir de cabalgadura á un angelote rollizo, ó de arranque á un enlace fantástico de garambainas y chucherías. Convirtieron además en repisas ó enormes mascarones los pedestales, para sostener encima una fábrica pesada é informe; y cuando bien les pareció, no dudaron en colocar dos ó mas, unos sobre otros, hacer nichos de sus dados, y hacinar así los miembros arquitectónicos, sembrando el todo de hornacinas caprichosas, de figuras grandes y pequeñas, como si jugaran al escondite entre las columnas; mientras que la máquina entera aparecia cubierta de tarjetones, pellejos, lazos, manojos de flores, conchas, querubines, sartas de corales, y otros diges y baratijas revesadamente combinados[396].» Este pésimo estilo, tan arraigado en España mientras la Francia, por el benéfico influjo de Luis XIV, veía erigir en su suelo monumentos de carácter tan varonil, grandioso y severo como la columnata del Louvre, el palacio de Versalles, el Observatorio y el Hospital de Inválidos de París, se conservó hasta muy entrado el reinado de Felipe V; y solo en la tercera década del siglo décimoctavo consiguió el ilustrado vástago de la casa de Borbon empezar á introducir un nuevo órden de ideas en el arte, reduciendo á su cauce natural el desbordado y desperdiciado genio de los arquitectos españoles. Trájonos este príncipe distinguidos profesores formados en las grandiosas máximas de Perrault y de Fontana: Juvara, Sachetti, Raveglio, Bonavía, trasportándolas de las orillas del Tiber á las del Manzanares, desterrando de todo punto las licenciosas prácticas churriguerescas, inauguraron la segunda restauracion. No faltaron arquitectos españoles que rivalizasen con ellos; pero cuando empezaron á florecer nuestros Ascondos ya el siglo XVIII tocaba á la mitad de su carrera.

Cuatro son pues los estilos que caracterizan á la arquitectura del siglo XVII y primera mitad del XVIII: primero, el greco-romano de Herrera y Mora, mas ó menos puro hasta la época de Crescencio; segundo, el greco-romano desfigurado con follages, que podriamos denominar crescentino, y que dura hasta la mitad del reinado de Felipe IV, en que empiezan los ejemplos de la innovacion borrominesca; tercero, el borrominesco propiamente dicho, que se desarrolla por obra de Cano, Rizi y otros, en la segunda mitad de aquel mismo reinado; cuarto y último, el churrigueresco puro de la infelicísima época de Cárlos II, parto de los delirantes cerebros de Donoso, Ribera, Churriguerra, Thomé, etc., que se perpetúa hasta espirar el período que hemos abarcado, despues del cual comienza la restauracion promovida por Felipe V. Esta clasificacion no debe sin embargo entenderse de una manera empírica: sabido es que en todos tiempos hay hombres apegados á las ideas antiguas y en quienes no ejerce influjo la moda. Así no debemos estrañar, que del mismo modo que se decoraba á la manera plateresca el coro de la catedral de Córdoba cuando mas acreditados estaban los discípulos de Juan de Herrera, se decorase tambien con forzada sencillez escurialense el retablo de su capilla mayor cuando ya el famoso marqués de la Torre cautivaba el pervertido gusto del público con sus pesados follages. Las protestas contra la moda reinante son muy frecuentes, si bien siempre mancas y defectuosas por lo que tienen de violento[397]. Con escasas escepciones por lo tanto, resultará la indicada clasificacion en exacta correspondencia con los años en que respectivamente han sido ejecutadas las obras cuya enumeracion vamos á continuar[398].

Capilla de S. Pablo apóstol. Segun queda dicho atrás, D. Gonzalo Yañez de Godoy, caballero de Santiago y comendador de Beas, fundó en el siglo XIV esta capilla á espaldas de la Capilla Real (hoy sacristía de Villaviciosa) para enterrar en ella á su padre el maestre D. Pedro Godoy. Por el abandono en que habia estado se hallaba ya sumamente deteriorada por los años de 1512: en esta época obligó el cabildo á la familia de Godoy á reedificarla; pero es probable que á los cien años escasos estuviese segunda vez arruinada, cuando un descendiente del maestre llamado D. Fernando Carrillo, presidente del Consejo de Hacienda, y despues de Indias, tuvo la idea de restaurarla. Comenzóse esta obra el año 1610, siguiendo en todo el gusto clásico de la escuela de Herrera, y se acabó en 1614. Adornan esta reedificacion varias esculturas de tamaño considerable y de mérito escaso, y grandes escudos de la familia de Godoy.

Capilla de S. Eulogio. Es la sexta á la derecha en la banda del norte entrando por la puerta del Sagrario. La fundaron Gabriel y Francisco Chirino de Morales en 1612. Se la nombra vulgarmente de S. Miguel por tener en su retablo un cuadro que representa al santo arcángel.

Capilla de los Stos. Varones. Es la segunda á la derecha entrando por la misma puerta del Sagrario, en la misma banda del norte. Fué fundada por el jurado Gonzalo Muñoz de Velasco en 1614.

Capilla de las Animas. Se halla contigua á la anterior por el poniente: la fundó antes del año 1616 el Inca Garcilaso de la Vega, natural del Cuzco, hijo de D. Pedro Suarez de Figueroa, y se halla sepultado en ella: á los lados de su altar, en dos lápidas de jaspe negro, tiene la siguiente inscripcion con letras doradas: «El Inca Garcilaso de la Vega, varon insigne digno de perpétua memoria, ilustre en sangre, perito en letras, valiente en armas, hijo de Garcilaso de la Vega, de las casas de los duques de Feria é Infantado y de Elisabet Pella, hermano de Huayna Capac, último emperador de las Indias, comentó la Florida, tradujo á Leon Hebreo y compuso los Comentarios reales. Vivió en Córdoba con mucha religion. Murió ejemplar. Dotó esta capilla: enterróse en ella. Vinculó sus bienes al sufragio de las Animas del Purgatorio. Son patronos perpétuos los señores dean y cabildo de esta santa iglesia. Falleció á 22 de abril de 1616. Rueguen á Dios por su ánima.»

Capilla de la Epifanía. La erigió por los años de 1622, al levante de la de S. Eulogio, el licenciado Baltasar Nájera de la Rosa, racionero entero de la santa iglesia. Es su patrono el cabildo, y como tal cumple la memoria que instituyó el fundador de una misa rezada todas las veces que ajustician á algun reo de la ciudad de Córdoba, sea hombre ó mujer, en sufragio de su alma. Cumplia tambien la de dotar con cincuenta ducados á las mujeres de mal vivir que quisiesen tomar estado, y la de socorrer con cierta porcion ánua á todo el que, siendo pariente del fundador dentro del cuarto grado, viniese á pobreza, haciéndolo presente.

Capilla de S. Andrés. Es la primera á la izquierda entrando por el arco de las Bendiciones, y fundacion del Dr. D. Andrés de Rueda Rico, provisor que fué de Córdoba y canónigo doctoral de su santa iglesia, del Consejo de la Inquisicion, quien la labró en el año 1628. La llaman comunmente de S. Eulogio por un buen cuadro de este santo que se ve en su altar, pintado por Vicente Carducho.

Capilla de S. Esteban. Cae al levante de la de S. Andrés. La fundó en 1648 un D. Fernando de Soto, de quien no queda mas memoria. El cuadro de su altar representa el martirio del Santo titular; es obra de Juan Luis Zambrano, y no carece de mérito.

Capilla de Nuestra Señora del Rosario. Está situada entre la de la Epifanía y la de las Ánimas; segun unos fué fundada por D. Juan Jimenez de Bonilla, familiar del Santo Oficio, en 1614; segun otros, y esto parece lo mas probable atendido el mal gusto arquitectónico de su retablo, la hizo labrar en 1669 D. Pedro Bojeda y Bonilla dejando por patronos á los racioneros y medio racioneros. Es lo cierto que á estos pertenece hoy en propiedad, y que en ella tienen su entierro.

Entre esta capilla y la de la Epifanía hay una columna, de las de la antigua mezquita, en cuyo fuste está groseramente grabada una imágen de Jesus crucificado. En el muro donde está recibida esta columna, pusieron en el siglo XVII dentro de un recuadro, un bajo-relieve pintado que representa á un cautivo de rodillas. Cuenta la piadosa tradicion que fué un cautivo cristiano el que trazó en la columna aquella santa imágen, cuando la catedral era mezquita de los sarracenos, y que lo hizo solo con la uña, cediendo milagrosamente la dureza del mármol al poder de su fé. A este prodigio aluden los siguientes versos latinos esculpidos sobre el mencionado bajo-relieve:

«Hoc sua dum celebrat mahometicus orgia templo
     Captivus Christianus numina vera vocat.
Et quem corde tenet rigido saxo ungue figurat
     Aureolam pro quo fune peremptus habet.»

cuya traduccion, mas que libre, puesta al lado, dice así:

«El cautivo con gran fé
en aqueste duro mármol,
con la uña señaló
á Cristo crucificado,
siendo esta iglesia mezquita
donde lo martirizaron.»

Hay quien ve en esta tradicion un recuerdo desfigurado de la historia de los santos mártires Rogelio y Serviodeo, que atrás dejamos referida, y no se nos alcanza en verdad por qué no ha de ser la memoria fiel de algun hecho auténtico no registrado por la historia; porque mas dificultad hay en acomodar á la tradicion el suceso de aquellos mártires, que ni estuvieron como cautivos dentro de la mezquita, ni en ella fueron martirizados, como no podia nadie serlo sin una violenta infraccion de las leyes alcoránicas, que en suponer desde luego que aquella columna hubiese pertenecido á otro lugar, que el cautivo hubiese sido atado junto á ella en alguna cárcel ó mazmorra, y que al tiempo de la reconquista, despues de purificada la mezquita y convertida en templo cristiano, hubiese sido trasportada al puesto que hoy tiene para dar culto á la imágen milagrosamente esculpida en su fuste.

Capilla de la Natividad de Nuestra Señora. Se halla situada en la banda de levante, al norte de la de la Asuncion: fué fundada en 1675 por el arcediano de Pedroche D. Andrés Perez de Bonrostro.

Capilla de Nuestra Señora de la Concepcion. Ocupa el sitio donde se colocó la primitiva pila bautismal recien purificada la mezquita, y donde permaneció hasta que fué trasladada á la desierta capilla de S. Matías.

El piadoso obispo D. Fr. Alonso de Salizanes, movido de la gran devocion que tenia al misterio de la Purísima Concepcion de María, deseaba ardientemente que en su tiempo se celebrasen en la catedral el dia y octava de este sagrado misterio, con el mismo aparato y grandeza con que se celebraban el dia y octava del Corpus. La abundancia con que favoreció Dios á Córdoba el año 1679 le determinó á escribir al cabildo manifestándole su ánimo resuelto de dotar la referida octava y de hacer nueva capilla á la Concepcion de Nuestra Señora. Habia ya con este mismo título otras dos capillas fundadas en el décimosexto siglo; pero sin duda no llenaban por su estructura el objeto del buen prelado, quien debió creer de buena fé que para glorificar á Nuestra Señora y darle pomposo culto, era arquitectura mas acomodada el pomposo y exuberante churriguerismo. En la nave del Sagrario estaba desierta de muchos años atrás y casi arruinada la capilla de S. Matías, llamada del Sol, y se habia adjudicado á la Fábrica con el intento de mudar á ella la pila bautismal por estar en sitio mas proporcionado para que los curas administrasen el Sacramento del bautismo; y valiéndose de este intento el obispo Salizanes mudó la pila, y empezó desde luego á labrar la nueva capilla de la Concepcion. Empleó en ella mucho jaspe rojo, mucha pintura al fresco, mucho bronce, mucho embutido de mármol blanco, muchos relicarios de plata y oro de entortijadas formas, lámparas, vasos, y otras alhajas del mismo estilo, y algunas estátuas en actitudes sumamente movidas; y logró un conjunto tan poco feliz, tan inarmónico y desarreglado, que no hay ojos familiarizados con las buenas obras del arte que lo puedan resistir.

Capilla de Sta. Teresa ó del cardenal Salazar: sacristía mayor. La sacristía de la catedral era muy estrecha para la cómoda custodia de los ornamentos y vasos sagrados, y así no correspondia á la grandeza y necesidad que tenia la Fábrica. El cardenal Salazar, sucesor de D. Fr. Alonso de Salizanes en el obispado de Córdoba, deseaba darle sacristía capaz; pero no hallaba sitio á propósito para hacerla. Habia una capilla de S. Martin, que estaba casi desierta, cuyo patronato pertenecia por el apellido de Cabrera al mayorazgo de las Escalonías. Esta capilla, y otras dos á ella contiguas dedicadas á S. Andrés y Sta. Bárbara, que habian servido de sacristía y antesacristía de la catedral antigua, ocupaban un espacio bastante considerable: llenaban entre las tres los últimos tramos de las dos naves principales octava y novena, con todo el fondo de la construccion árabe que servia de ala derecha al mihrab. La fundacion de S. Martin se trasladó al Sagrario; la de S. Andrés fué á parar á uno de los pilares de la iglesia; la de Sta. Bárbara se mudó á otro pilar. Admiraba por este tiempo con sus resaltos, retruécanos y enorme hojarasca, un arquitecto, maestro mayor de Madrid, llamado D. Francisco Hurtado Izquierdo, que habia construido la capilla del Sagrario de la Cartuja del Paular: profesor contemporáneo del famoso Churriguera, con quien rivalizaba en el desarreglo de la fantasía. De este, á quien el juicioso Llaguno cuenta entre el número de los principales gerigoncistas, se valió el escelente cardenal, poco versado por lo visto en las reglas del buen gusto, para que dirigiese la obra. Debió hacerlo muy á su satisfaccion, porque bajo el influjo de la prostitucion artística la ornamentacion mas licenciosa es la que mas agrada. El pródigo D. Francisco Hurtado llenó de bollos de estuco y escayola todo el cornisamento y toda la cúpula de la cámara principal, que es de planta ochavada, así como los arcos de cada uno de sus siete frentes, los medallones de los altares, las repisas de los entrepaños, todo en suma cuanto perfiló su lápiz en el papel al hacer la reparticion de miembros de su proyecto. Al lado derecho hay una puerta, que para el arte mas valiera estuviese tapiada, la cual conduce á otra capilla baja por una costosísima escalera de treinta y una gradas de jaspe rojo. Esta cámara tiene la misma forma ochavada que la superior, y es de piedra caliza dura, y su pavimento de losas blancas y azules. Al lado izquierdo hay otra puerta por donde se entra á la pieza en que se custodian las alhajas de la iglesia, las reliquias y otras preciosidades. Lo mejor de este tesoro para los que aman el arte de los buenos tiempos, es la custodia de Enrique de Arfe, que dejamos descrita mencionando las cosas notables del siglo XVI. Del mismo gusto, y tal vez de las mismas primorosas manos, es una cruz que llaman la cruz antigua, y que en las grandes festividades suele quedar encerrada y oscurecida, postergada á otra de insignificante estilo que regaló el año 1620 el obispo Mardones. Podríamos decir de aquella que está toda cuajada de primorosa crestería del gótico-florido, con preciosos arquitos conopiales de gran pureza y garbo (hoy por desgracia imperfectamente restaurados); pero de la nueva ¿qué diremos? Lo que dicen los cicerones á los ingleses que visitan estas alhajas, y que por lo general es todo cuanto necesitan saber: que es toda de plata sobredorada con esmaltes, engastes de oro y pedrería, que pesa ciento nueve marcos, y que es obra de esquisito trabajo.

La capilla del cardenal Salazar, llamada tambien de Sta. Teresa por el altar dedicado en ella á esta santa famosa, fué acabada de construir el año 1705. Al año siguiente murió el prelado, y sus albaceas le erigieron en su capilla un gran mausoleo, suntuoso á la manera que esto se hacia en aquella época, es decir, con urna de forma estraordinaria sostenida de leones de raza imposible, con profusion de molduras y embutidos, y su estátua barroca encima cobijada por un abultado pabellon de jaspe. En la urna grabaron este epitáfio, en que oportunamente se recuerda uno de sus mas gloriosos hechos de caridad, el hospital general que fundó: H. S. E. Emmus. D. D. frater Petrus de Salazar, Ordinis Beatæ Mariæ de Mercede Generalis, Episcopus Salmantinus, et Cordubensis; ab Innoc. XI Caroli II Hispaniar. regis nominatione tituli Sanctæ Crucis in Hierusalem, Presbyter S. R. E. Cardinalis creatus. Omnibus virtutum et litterarum ornamentis clarissimus, ecclesiasticæ disciplinæ vindex, pauperum parcus, quos, ut etiam mortuus sublevaret, insigne xenodochium erexit et dotavit. Obiit 14 augusti 1706. Vixit annos 76, menses 4, dies 3. Communi Parenti bene precare.

Capilla de Sta. María Magdalena. Está situada contra el muro del norte, y es la tercera á la izquierda entrando por la puerta de las Palmas. Se ignora en qué época fué fundada[399].

A esta humilde capilla se refugiaron en 1842, mediante la buena obra de un prebendado piadoso, las devotas imágenes que habian estado en las calles siglos enteros atestiguando como pública profesion de fé el antiguo catolicismo de Córdoba. Entonces fueron proscritos esos venerandos objetos, que otras naciones, verdaderamente tolerantes y liberales, creen muy compatibles con lo que se llama regeneracion social en nuestro siglo de gongorismos políticos.

Capilla de Nuestra Señora de Villaviciosa. Era la capilla mayor de la catedral antigua, labrada como en su lugar oportuno se dijo á espensas del rey D. Alonso el Sabio[400]. Restaurada segun algunos creen por el obispo D. Íñigo Manrique en 1489[401], y renovada por tercera vez en 1710 con arreglo al antipático gusto dominante en los primeros años del reinado de Felipe V, ni rastro queda en ella de la arquitectura del siglo XIII. Todo es hoy allí churrigueresco á escepcion del elegante arco árabe angrelado que tiene al lado derecho mirando al Santuario de la antigua mezquita, el cual subsiste, no sabemos por qué milagro, como náufrago libertado de una furiosa tempestad. No hay en la decoracion de esta capilla una línea recta en que pueda reposar la vista: todas aparecen ondulosas, disfrazadas, interrumpidas, como si las mirase uno por un vidrio lleno de visos. Su bóveda, sus paredes, su gran retablo, sus altares de Sto. Tomás y de S. Fernando, cuajados de cogollos y follages dorados, podrian en pequeña escala pasar por verdaderos primores si fueran obra de monjas.

Guarda celosa Córdoba en esta capilla una santa imágen que es su númen tutelar, como lo era para la antigua Troya la famosa estátua de Palas. Es una imágen de Nuestra Señora, que tomó el nombre de una villa del reino de Portugal, de donde se supone que la trajo á la Sierra á principios del décimosexto siglo un pastor de vacas llamado Hernando. Manifiestas desde luego en su humilde ermita de la montaña las grandes maravillas obradas por su intercesion, cundió rápidamente su fama por toda la provincia: el obispo D. Fr. Juan de Toledo, que acababa de confirmar las constituciones de su cofradía, fué en 1529 el primero que dispuso se acudiese á la sagrada imágen para implorar la clemencia divina en las públicas calamidades, y desde entonces comparte la Vírgen de Villaviciosa la proteccion y defensa de Córdoba con el arcángel S. Rafael, con los santos patronos Acisclo y Victoria, y con los demas célebres mártires del arzobispado. A su benéfico influjo, ya se agolpan las nubes sobre los estensos campos descendiendo de su seno en copiosa lluvia la fecundidad á los sedientos surcos, ya huyen como derrotados escuadrones recogiendo las rotas cataratas del cielo cuando la tierra saturada parece anegarse. Por su influjo las olas devastadoras de los rios desbordados vuelven mansamente á su cáuce, como dispersas reses al rebaño, y cesan las inundaciones; por su influjo las legiones invisibles de ángeles esterminadores que ejecutan las iras divinas llevando á los pueblos las pestes, se replegan respetuosas sin descargar la tremenda plaga. En las sequías, en las anegaciones é inundaciones, en los contagios, en todas las grandes calamidades, recurre Córdoba á su milagrosa abogada con fiestas, novenarios, rogativas y procesiones. Pero es en las sequías principalmente, tan frecuentes en toda la Andalucía, cuando se implora su maravilloso poder. Antes del referido año 1529 se hacian en casos semejantes procesiones á los santuarios de la Fuen-Santa y de Nuestra Señora de las Huertas; desde entonces se introdujo la costumbre de traer la imágen de Villaviciosa á la iglesia de S. Salvador de Córdoba, y de aquí á la catedral, en cuya capilla mayor antigua permanecia depositada el tiempo que duraban las solemnes deprecaciones. Sin embargo desde un principio manifestó el cabildo su deseo de no desprenderse de ella: las limosnas que producia á la Fábrica fueron primero escelente pretesto para retenerla desde la primavera del año 1529 hasta fines del año 31; la mala vigilancia que con ella se habia tenido en su santuario, dando lugar á que un rústico de Antequera, nuevo Diomedes, osase robar el paladion de la moderna Córdoba, fué despues motivo suficiente para que en 1536 se declarasen el cabildo y la ciudad con derecho de patronazgo á su custodia en su santa casa; en el año 1576 el obispo D. Bernardo de Fresneda, con la gran devocion que cobró á esta santa imágen, la detuvo en Córdoba casi tres años, en cuyo tiempo mandó hacerle un vestido de plata y un precioso trono con peana de lo mismo, con la estátua de S. Bernardo y la suya de rodillas, y en los cuatro lados del trono grabada en grandes láminas, tambien de plata, la historia del pastor que trajo la milagrosa imágen de Portugal; el obispo Pazos intentó formalmente en 1586 que no volviera á salir de la catedral, donde quiso erigirle nueva capilla; el cabildo en 1596 probó con hechos que á fuer de patrono podia en caso necesario llevársela adonde mejor le pareciese, porque ofendido de la ilegal donacion que el obispo Portocarrero habia hecho de su santuario, la tuvo depositada en la capilla de S. Pedro hasta que aquel prelado fué trasladado á Cuenca; y finalmente la sequía del año 1699 fué la que dió ocasion á fijar definitivamente la permanencia perpétua de la milagrosa imágen en la catedral, para consuelo del pueblo cordobés y remedio en sus aflicciones y necesidades[402].

Protectora de esperanzas casi nunca frustradas, objeto de súplicas fervorosas de los corazones atribulados, causa de inefables é inocentes alegrías, permanece desde entonces la santa Vírgen de Villaviciosa en la capilla que lleva su nombre, sin habérsela bajado de su altar mas que para las procesiones que en torno de la catedral se celebran cuando se implora su poderosa mediacion, y en el año 1710 para la costosa y poco acertada obra de renovacion que hizo el medio racionero D. Antonio Monge Maldonado. Describa otra pluma, esclusivamente consagrada á la nunca escesiva alabanza de esta santa patrona, las escenas patéticas y afectuosas de que ha sido constantemente teatro su capilla, particularmente aquella del año de hambre de 1750, en que mil párvulos de ambos sexos, abandonados por sus infelices padres á la pública caridad, vestidos y alimentados por los piadosos capitulares, acudieron á ponerse bajo el patrocinio de Nuestra Señora cantando sus letanías.

Es hoy su sacristía la que para capilla real habia destinado D. Enrique II. Habiéndose unido esta en virtud de bula del papa Benedicto XIII á la real iglesia colegial de S. Hipólito, fundada por el rey D. Alonso XI y restaurada en 1727, los reales cadáveres que estaban en ella depositados fueron trasladados á su nuevo panteon el dia 8 de agosto de 1736, entre dos y tres de la madrugada, pobremente, sin luces ni acompañamiento. Lleváronse en las mismas arcas antiguas de madera en que estaban en la catedral, y en ellas se conservaron bajo sendos arcos á los lados del coro de la nueva colegiata hasta el año de 1846, en que se les hicieron sepulcros de jaspe rojo, de forma nada bella.

Hemos estudiado juntos, lector pacientísimo, la interesante historia de mil años del monumento mas grande y memorable que descuella en el suelo andaluz. Faro glorioso del arte bizantino desde su ereccion hasta el siglo de Almanzor, difundió su luz hasta las gélidas márgenes del Rhin ayudando á alumbrar con ella el dilatado imperio de Carlomagno y de sus sucesores. Modelo despues del arte africano en la peregrina decoracion de algunas de sus cámaras[403], fué la escuela matriz donde aprendieron aquella elegante y voluptuosa ornamentacion morisca que finge arcos de cintas rizadas, paredes de encajes y flores, frisos de estalactitas y armaduras de caprichosos lazos, los discípulos de los mudéjares cordobeses, que mas tarde construyeron sobre columnas sutiles como el pensamiento alcázares para los reyes moros de Sevilla y Granada y para los reyes y magnates semi-renegados de Castilla. Convertido de mezquita en catedral, nada bastó á despojarle de su primitivo carácter, y cuantos elementos arquitectónicos le prestó el arte occidental cristiano en los tres siglos de su gran desarrollo, XIII, XIV y XV, todos se los subordinó, empleándolos en obras secundarias para que campease siempre como principal la hermosa creacion de los Umeyas. El siglo del renacimiento no hizo mas que descuajar dentro de su gran bosque de columnas el espacio en que habia de implantarse una catedral nueva. Sufrió la arrogante sultana del Bétis que se derribase en torno del espacioso rectángulo su rico artesonado de alerce para poner en su lugar bóveda gótica; pero favorecida en cambio por multitud de circunstancias contrarias á la nueva edificacion, vió pasar los sistemas artísticos que representaban algo de bello ó de grande, el plateresco de Cárlos V y el greco-romano de Felipe II, sin que dejasen en su recinto concepciones que pudieran amenguar su prestigio. Cuando la nueva favorita que la obligaron á abrazar, y aun á sostener con sus columnatas, llegó á punto de exornarse, la vió impasible recurrir á un sistema mixto de todos los estilos anteriores, formándose una ostentosa vestidura llena de gala y riqueza, pero desprovista de verdadera belleza artística. Por último al comenzar la décimoctava centuria, todos los estilos buenos y malos, los buenos en obras de poca importancia, los malos en construcciones muy capitales y de gran coste, habian dejado en él su huella, ya en las cuatro bandas de capillas que ceñian por dentro su perímetro, ya en las edificaciones que interceptaban sus largas naves, ya en el misérrimo embovedado de estas, ya en su atrio y pórticos adyacentes, ya finalmente en sus fachadas esteriores, torre, puertas y postigos; y á pesar de tantas y tan radicales mutilaciones y transformaciones, todavía conservaba indeleble la gran fábrica sarracena el sello del arte religioso islamita. Y hoy mismo, para nosotros, viajeros del siglo XIX, todavía le conserva á pesar de las plagas que le han caido encima, á pesar de las innumerables manos de cal y ocre que le han envuelto por defuera, y de los cuajarones churriguerescos que le han brotado por dentro. Hoy, sí, mal que le pese á nuestra fervorosa fé, la catedral de Córdoba es todavía la mas elocuente defensa del genio que avasalló á la España visigoda; y como el poderoso arte cristiano del siglo XIII que tenia títulos respetables para haber trocado toda su fisonomía, quiso hacer alarde de tolerancia, y el ridículo arte gerigoncista se limitó satisfecho á provocar competencia, poniendo dos muestras de su habilidad una en jaspes y escayola, otra en dorada talla, cerca de aquella preciosísima perla del arte arábigo-bizantino (el Mihrab) que formaron de consuno para maravilla del Occidente los genios del Bósforo y del Guadalquivir reunidos: de aquí resulta, que, una vez visitado este singular monumento, en cuanto descubrimos al fin de una tortuosa calleja de las que á él guian las almenas dentadas de sus muros y torres, aun sin entrar en su embalsamado patio de los Naranjos, aun sin asomar la vista á aquellas rectas y soberbias alamedas de columnas en cuyo fondo resplandece como un brocado de oro la fachada del Mihrab, al punto creemos oir el clamoroso pregon de los almuedanes que nos grita: «¡Venid á orar, venid á adorarle: Dios es grande, Dios es único!» olvidándonos completamente de que el esbelto alminar de donde partia á los cuatro vientos el aliden es hoy una pesada torre del siglo XVII.

Al estudiar la historia de este monumento has visto desarrollarse la historia del arte en los siglos medios y en la edad moderna: te has hecho cargo de sus vicisitudes y transformaciones, de las causas que las han producido, de los agentes que las han consumado. Larga ha sido nuestra primera jornada, porque no era posible en ella hacer alto: ahora discurriremos á placer por un campo mas variado y ameno.

barra decorativa

Capítulo tercero.

Córdoba mozárabe.

Producto singular de dos opuestas civilizaciones, donde si bien la una prepondera, la otra no se extingue, osténtase la antigua Colonia patricia en la época mas floreciente que alcanzó la dinastía de Merwán, exaltada de consuno por el genio del placer y por la religion del sufrimiento. Engrandécenla, por una parte, la paz esterior que corona las bien aseguradas conquistas, la prosperidad de la industria y del comercio, las riquezas que á ella afluyen, las ciencias y letras que en ella se cultivan, las maravillas con que la engalana el arte arquitectónico, sus palacios, sus mezquitas, sus baños, sus mercados, sus jardines y casas de recreacion; por otra parte la engrandecen la vida ejemplar y evangélica de casi todos los desgraciados cristianos que viven en ella por el pacto de la conquista, las iglesias y monasterios en que se congregan para cultivar la ciencia divina, ejercitarse en la práctica de las virtudes y estimularse al adelantamiento en el camino de la perfeccion, las persecuciones sufridas, las celestes maravillas en su favor obradas, la sangre de los mártires fecunda en santos. Entre la muchedumbre de gentes que la pueblan, sobresalen dos aventajadas razas: la una procedente de las nobles tribus de Ma'd y del Yemen, mixta de sangre siria y árabe, brava, gárrula, valiente, conquistadora, sensual, fanática, cruel con los fuertes, generosa con los rendidos; la otra hispano-goda, de ánimo noble, pero abatida ahora, acobardada por causa de sus prolongados infortunios, dispuesta sin embargo á imitar el ejemplo de los que sacuden decorosamente el yugo de la tiranía. Encierra la magestuosa reina del Guadalquivir dos poblaciones en una: Córdoba musulmana, y Córdoba cristiana; aquella hace alarde de la deslumbradora cultura que alcanza manteniendo su fé en el Islam; esta solo anhela la exaltacion de la fé en Jesucristo, y resignada con la pobreza de sus basílicas y monasterios, acostumbrada ya á que los violentos dominadores no la permitan siquiera levantar en lo alto de sus torres una humilde cruz, tan solo aspira á que la sagrada señal de la redencion se perpetúe hondamente grabada en los corazones y en el entendimiento de la raza vencida hasta que llegue el dia de su vindicacion gloriosa. Diez millas de longitud mide la populosa ciudad unida con las dos mágicas poblaciones de Az-zahra y Az-zahirah, estension inaudita de la mas variada y deliciosa perspectiva, tan risueña de dia como animada de noche, durante la cual puede recorrerse toda entera á la claridad de miles de linternas; y dentro del vasto recinto solo ocupan los fieles mozárabes la porcion menos estimada, reducidos al barrio de la Ajarquía ó parte baja de la antigua ciudad, separados de la parte principal (Al-Medina) por una muralla, cuyo límite no traspasan sin esponerse á graves insultos y atropellos.

El que solo consulte á los historiadores árabes, se imaginará que los cristianos que vivian en Córdoba bajo la dominacion sarracena, podian disfrutar de toda tranquilidad mientras cumpliesen religiosamente la obligacion de pagar su respectiva capitacion (jiz'yah) y la contribucion territorial (kharaj), que satisfacian todos, así cristianos como muslimes; pero podrá convencerse de que solo gozaba una proteccion de mero nombre ese pobre pueblo patrocinado[404], con solo echar una ojeada sobre las páginas veridicas de S. Eulogio, de Alvaro Cordobés y del abad Sanson, que con tanta elocuencia y energía retratan los desafueros y desmanes de que era víctima la poblacion cristiana. Es preciso tener presente que en los tiempos de persecucion no regian las leyes ordinarias, y los ministros de los califas rompian caprichosamente la valla de las estipulaciones. Los tributos eran entonces arbitrarios, la jurisdiccion del Kitábatu-dh-dhimám ó magistrado instituido para decidir los negocios contenciosos de los cristianos y judíos, quedaba en suspenso; y aun hubo ocasiones en que los mozárabes no pudieron presentarse en público sin riesgo de ser asesinados, puesto que todos los musulmanes fueron autorizados para proceder con mano violenta contra cualquier cristiano por el mero hecho de serlo.

A la persecucion que estos sufrian bajo los mas ilustres y poderosos califas, agregábanse para aumento de sus tribulaciones las escisiones funestas que á cada paso se declaraban dentro de su Iglesia y Estado, donde algunos personages ambiciosos y ciertos prelados sin fé, lobos en su propio rebaño, por granjearse el favor y las mercedes del rey y de la corte, promovian la celebracion de conciliábulos, mas bien que concilios, contra los mártires, la deposicion de los buenos obispos, la imposicion de gabelas y tributos estraordinarios que empobrecian las iglesias y las haciendas de los particulares mas acomodados, la destitucion de los mozárabes que el califa tenia á su servicio, la afliccion en suma, la miseria y la ruina, la diseminacion y destruccion de esa pobre grey que estaban llamados á regir y defender. Entre estos sobresalia Recafredo, metropolitano de la Bética, de triste celebridad por la violencia con que impugnó la santa causa de los martirios voluntarios, suscitando uno de los mas deplorables cismas que afligieron jamás á la iglesia de Córdoba; y por haber oprimido y encarcelado al venerable obispo Saulo y al santo y sabio maestro de mártires Eulogio. Tenia por auxiliar Recafredo á un publicano ó esceptor de tributos, cuyo nombre no se ha conservado. Era el único cristiano que habia consentido el rey Mohammed en este cargo, por la oficiosa diligencia con que habia cooperado á la publicacion de un célebre decreto del impío metropolitano anatematizando el martirio voluntario, y obligando á jurar á todos los mozárabes que no se presentarian á declarar su fé. Este esceptor fué sin embargo destituido á los pocos meses de haber prestado aquel servicio, y por recobrar su posicion, apostató de la religion de sus padres, primero en secreto, luego paladinamente, consolándole del desprecio y vilipendio con que se veía espulsado del gremio mozárabe y de las iglesias todas, que profanaba sacrílego, la privanza que halló en el indigno prelado y en el palacio.

Además de este fautor, tenia otros muchos del estado secular la satánica empresa del falso metropolitano. Ni faltaba por desgracia quien hubiese allanado el camino para la maligna obra, acostumbrando á los califas á menospreciar los fueros de la gente dominada; porque un jóven francés renegado, diácono que habia sido del palacio de Ludovico Pio, y que usurpando el nombre de Eleázaro profesaba ahora la religion judáica, casado con una hebrea, habia venido á Córdoba pocos años antes, tomando con astucia el cíngulo militar para introducirse mejor en la corte de los sarracenos, y habia logrado concitar de tal manera contra los cristianos el ánimo del califa y de sus wazires ó ministros, que á no acudir pronto al remedio los afligidos mozárabes, suplicando con lágrimas al rey Cárlos de Francia que reclamase la persona del apóstata[405], todos hubieran sido compelidos á hacerse judíos ó mahometanos bajo pena de la vida.

Otro obispo, por nombre Samuel, depuesto por justas causas de la silla Eliberitana, se vino igualmente á Córdoba, y renegó, uniéndose á los muzlemitas. Autorizado con el poder que el favor de la corte daba al malvado gobernador de los cristianos Servando, su pariente, fué uno de los que mas atribularon á los fieles. Usurpó el obispado de Córdoba prevalido sin duda de la timidez y ausencia del legítimo prelado, que era Saulo, el cual por temor de la persecucion, aun no favorecido entonces por el cielo con la imperturbable fortaleza de ánimo que luego mostró, andaba escondido y separado del cuerpo del rebaño. Servando por su parte, no obstante la bajeza de su orígen, pues descendia de esclavos de la iglesia de Córdoba, habia escalado con sus maldades la dignidad de conde de los cristianos; honra que solo correspondia á los de linage ilustre; y baste saber que era avariento, soberbio, cruel, malvado finalmente en todo, para imaginarse hasta dónde llegaria lo opresivo de su conducta.

Pero todavía, como si no bastasen estos dos para afligir á las iglesias de la España sojuzgada, permitió el Señor que se agravase la lamentable condicion de los mozárabes por el concurso y obra de otros prelados que favorecieron los errores ya introducidos en el dogma, y de otros auxiliares de las mas repugnantes heregías. El conde Servando habia emparentado con un obispo perjuro y de pésima condicion, cuyo nombre de Hostigesio ú Hostigesis se divisa como un negro borron en la historia de la Iglesia mozárabe; y este era el mas ardiente promovedor de aquellas divisiones y cismas. El conde imponia tiránicamente á los cristianos que estaban debajo de su patrocinio las mas exorbitantes contribuciones, vendía los sacerdocios, causando con esto el escándalo de que el seglar metiese la hoz en lo sagrado, y de que la Iglesia recibiese ministros poco dignos. Hostigesio exigia con rigor las tercias eclesiásticas, y las invertia, no en restaurar los templos, ni en socorrer á los pobres, segun estaba prescrito por los cánones conciliares, sino en regalarse y hacer agasajos á los ministros del palacio; reprendia severamente á los que predicaban la verdad contra los errores de ciertos hereges á quienes protegia; hacia que el rey moro convocase conciliábulos, en que los obispos, compelidos del terror, anatematizasen á los que se proponia perder. Otros dos hombres perversos, Romano y Sebastian, padre é hijo, cada uno de ellos peor que el otro, se declararon hereges antropomorphitas, de los que daban á Dios cuerpo negando la universalidad de su presencia; salió á la defensa de la verdad el intrépido y santo abad Sanson, y fué por Hostegesio perseguido. El legítimo obispo de Córdoba, Valencio, y el asidonense, Miro, pronunciaron en nombre de todos los prelados fieles la inocencia del abad: Servando y Hostegesio resentidos, maquinaron la deposicion de Valencio; sugirieron al rey que no podia haber paz mientras aquel no fuese depuesto, protestando que era la causa de todas las inquietudes y trastornos; decretóse lo que pedian, que era la celebracion de uno de aquellos conciliábulos[406] no raros en tan infelices tiempos, y juntando precipitadamente unos cuantos obispos y clérigos de la faccion de la corte, lograron que pronunciasen sentencia de deposicion contra Valencio, poniendo en su lugar, con infraccion de todos los requisitos canónicos, á Esteban Flacco, persona de su confianza, cuya residencia establecieron en la iglesia de S. Acisclo por no atreverse á consumar su obra echando á Valencio de la catedral.

Iban los cristianos cordobeses que permanecian fieles á su fé corriendo el deshecho temporal de estas persecuciones, cuyos horrorosos truenos los hacian estrecharse mas y mas y tributarse mútuos consejos y consuelos: bogaban por aquel revuelto piélago como bajeles que el comun peligro agrupa y que el furioso vendabal dispersa. Mientras unos se aprestaban valerosos en las casas, en los monasterios, en las cárceles, á dar la vida por su creencia, otros huían del estado cordobés, y entre ellos retiráronse muchos monges y eclesiásticos á varias ciudades del norte de España, donde se vivia con menor peligro, ó se refugiaron en los nacientes dominios de los reyes cristianos. Pasó á Barcelona el presbítero Tyrso, que alcanzó gran favor entre el pueblo predicando y administrando los Sacramentos, aunque como intruso, en una iglesia de la ciudad. El rey Cárlos de Francia, cuyo vasallo era ahora, por queja del obispo Frodoino de que el Tyrso se llevaba las dos partes de los diezmos de la ciudad, y por otros escesos de indisciplina, tuvo que mandar al conde de la Marca que le refrenase é hiciese que en la percepcion de los diezmos se observaran estrictamente los Capitulares. A los dominios de D. Alfonso III, el Magno, acudieron un abad y varios monges, y dióles el rey una iglesia de S. Miguel, donde fundaron el monasterio de S. Miguel de Escalada, despues tan famoso. Tambien se fué allí el abad Alonso con sus monges, y el mismo rey les donó el monasterio de Sahagun con sus antiguas posesiones para que le reedificasen y viviesen en él, como lo hicieron hasta el horrible dia en que fueron martirizados aquellos infelices monges, y destruido el monasterio[407]. Mas adelante, bajo la persecucion suscitada por Abde-r-rahman III, el mas grande de los califas, se pasaron tambien al reino de Leon el abad Juan y sus monges, donde hallaron una ermita dedicada á S. Martin junto á Sanabria, y edificaron en ella un monasterio que tomó el título de S. Martin de Castañeda. De este modo se iban lentamente consumando la dispersion de los cristianos de Córdoba, y la despoblacion y ruina de muchos insignes cenobios que florecian con gran opinion en tiempo de S. Eulogio.

Es evidente que en tiempos tan poco afortunados, no podian emplear los mozárabes cordobeses mucha magnificencia en la construccion y reparaciones de sus parroquias y monasterios. Habia basílicas de remota antigüedad, cuyos deterioros se reparaban con las tercias y las oblaciones de los fieles en los tiempos normales y tranquilos; pero algunas de las cuales habian de arruinarse forzosamente cuando aquellos recursos se distraían de su legítimo objeto y los cristianos acaudalados venian á empobrecerse. Sin embargo era tal la piedad de estos, que no tan solo se atendia en muchas á las restauraciones necesarias, como atestigua S. Eulogio, si bien añadiendo que esto se hacia económicamente y con cierta rudeza, sino que tambien se erigian de nueva planta basílicas en la ciudad y monasterios para ambos sexos fuera de ella.

Objeto de alta curiosidad artística y arqueológica sería investigar qué lugares ocuparon dentro de la ciudad, y en aquella pintoresca sierra de Córdoba, de donde bajaron un tiempo á la orgullosa corte de los amires huestes enteras de mártires y confesores, todas las basílicas y monasterios de que vamos hablando; qué se conserva hoy de las primeras en las parroquias que la tradicion supone renovadas despues de la reconquista sobre los primitivos muros, ó construidas de nueva planta en los mismos solares de aquellas. Pero este estudio es hoy imposible: dia llegará, al menos lo esperamos, en que cundiendo el amor á las investigaciones relativas á la historia del arte nacional, la discreta y prudente mano del arqueólogo pueda hacerse cargo de las mutilaciones y renovaciones, sondear las gruesas capas de cal que ahora revisten por dentro y fuera esos antiguos templos, y descubrir la verdadera forma de los miembros arquitectónicos hoy dislocados, ó enmascarados con obras que no ofrecen carácter alguno apreciable. Debemos en la actualidad contentarnos con lo que buenamente puede deducirse de los escritos de los coetáneos: de ellos se deduce la casi seguridad de que algunas de las parroquias hoy existentes conservan los muros, la disposicion interior y tal vez las mismas columnatas de las basílicas erigidas durante la irrupcion sarracena. Con esta luz, y con la que nos suministra la historia del arte monumental respecto de las formas generales de la arquitectura religiosa y monástica del Occidente en los siglos á que nos referimos, podremos presentar un cuadro aproximado del aspecto interior y esterior de los templos y monasterios de los mozárabes de Córdoba. Y con este motivo pasemos de la historia al arte: de la razon filosófica á la forma.

Habia en la ciudad antes de la conquista gran número de basílicas: despues de apoderados de ella los sarracenos, y reducidos los indígenas á su barrio separado, muchas de ellas quedarian como la antigua catedral convertidas en mezquitas[408]; las que subsistieron consagradas al culto cristiano eran sin embargo no pocas, puesto que solo en las obras de S. Eulogio y del abad Sanson se mencionan seis iglesias mozárabes; de otra, que era la de Sta. María, dan noticias conformes historiadores que probablemente no se han consultado, ni quizás oido nombrar[409]; y por último puede sostenerse con muy sólidos argumentos que lo eran asímismo, aunque quizás con otras advocaciones, las que hoy se denominan de S. Andrés, de la Magdalena, de S. Lorenzo y de Sta. Marina, todas situadas en la Ajarquía ó parte baja de la ciudad[410], que era la que habitaban los mozárabes, segun queda referido.

Dibº del natl y litº por F J Parcerisa Lit de J Donon
Madrid
PARROQUIA DE SANTA MARINA,
PUERTA LATERAL.
(Córdoba.)
Dibº. del nat.l y litª. por F. J. Parcerisa Lit. de J. Donon, Madrid.

OARROQUIA DE SANTA MARINA,
PUERTA LATERAL.
(Córdoba.)

Las iglesias de que nos dejaron memoria los antiguos y santos escritores nombrados, son: la de los tres Stos. Mártires Fausto, Januario y Marcial, hoy S. Pedro, que como queda referido sirvió de basílica catedral desde que los cristianos, vendiendo á los muzlemitas la parte que de la catedral primitiva retenian segun las estipulaciones de la conquista, reedificaron con autorizacion del amir Abde-r-rahman I aquel templo para erigirlo en catedral. La de S. Zoilo, que algunos creen sea la de S. Miguel de ahora, aunque no nos parece probable por la razon de hallarse esta parroquia en la Almedina ó parte alta de la ciudad, y no en la Ajarquía. La de S. Acisclo, que ha debido en muchas épocas sufrir grandes modificaciones hasta llegar á ser un grande y magnífico monasterio: lo que hoy por desgracia escasamente se presume, atendido el bárbaro deterioro que en él se ha causado incluyéndolo en los inventarios de la desamortización. La de S. Cipriano, que no se sabe qué lugar ocupó; célebre por haberse educado en ella los mártires Emila y Jeremías; por haber tenido de presbítero al ilustre Leovigildo, escritor del tratado de habitu clericorum, compuesto por escitacion de sus compañeros los otros clérigos de la misma iglesia; célebre tambien por haber sido hospedage de los monges Usuardo y Odilardo del monasterio de S. German de Paris, cuando vinieron á Córdoba en demanda de las santas reliquias de los mártires Jorge y Aurelio enterradas en el monasterio de Peñamelaria. La de S. Ginés mártir, que supone el P. Roa se hallaba situada donde está ahora el hospital llamado de la lámpara, y que S. Eulogio pone en el arrabal de Tercios, del cual hoy nadie dá razon. En esta iglesia estuvo sepultada la célebre Sta. Leocricia, discípula de S. Eulogio y su compañera en el martirio, hasta que sus reliquias fueron llevadas con las de su insigne maestro á la Cámara Santa de Oviedo por el presbítero Dulcidio, enviado espresamente por el rey D. Alonso al califa Mohammed para este objeto. Ultimamente la de Sta. Olalla, ó Eulalia, que refiere S. Eulogio estaba situada en el arrabal Fragelas, estramuros de la ciudad, del cual hoy nadie conserva memoria. Dícese sin embargo[411] que el antiguo templo y monasterio de Sta. Olalla fué dado á S. Pedro Nolasco en 1252 por S. Fernando para que fundase en él el convento de padres mercenarios, los cuales fueron vulgarmente llamados por mucho tiempo los frailes de Sta. Olalla. Segun esto, ya es fácil señalar hácia qué parte caía el arrabal Fragelas.

Otras iglesias habia en Córdoba durante la ocupacion sarracénica, pero por lo visto no merecieron la celebridad que estas, ni se conservó la memoria de sus respectivas dedicaciones. Cuando S. Fernando conquistó la ciudad, puede decirse que la poblacion cristiana habia ya faltado de allí por ciento y doce años, y así por sola la tradicion tomada de los cautivos, ó por conjeturas razonables, podian deducirse algunas advocaciones. Sabríanse las de muy pocos templos; las de la mayor parte no; S. Acisclo, los tres Stos. Mártires, y Sta. Olalla, conservaron sus antiguas denominaciones; los demas recibieron dedicaciones nuevas. Esto debió suceder con mucha mas razon en las iglesias de la Almedina ó parte alta de la ciudad que habian conservado los sarracenos convirtiéndolas en mezquitas[412].

No se crea que los templos de los visigodos anteriores á la invasion islamita eran pobres y de tosca arquitectura. En toda la cristiandad se habian erigido iglesias cristianas antes del siglo de Constantino[413]; de consiguiente el arte religioso podia hallarse en un alto grado de esplendor en la Europa meridional, que era sin disputa la mas culta, cuando todavía el arte musulman no habia sacudido el envoltorio de la barbarie. Ahora bien, ¿cuál era la forma de las basílicas de Córdoba antes de la ocupacion sarracena? Probablemente la misma que la de todas las iglesias del Occidente. Los primeros fieles se congregaban, segun se nos refiere en los Hechos de los apóstoles, en las casas de los últimos convertidos. Un acreditado historiador de la Iglesia nos dice que los lugares donde se reunian los primeros cristianos parecian mas escuelas públicas que templos. Adriano, tolerante con la ley de Cristo desde que leyó la apología de S. Cuadrato, permitió á sus adeptos la construccion de ciertos templos, que llevaban el nombre de Adrianéos, y cuya forma era próximamente la de las basílicas paganas. Pero hasta la época feliz en que, proclamado el cristianismo religion del Estado por Constantino, pudo el culto de la ley de gracia y de amor desplegarse libremente saliendo de sus lóbregas criptas y catacumbas, no hubo en realidad plan fijo y uniformidad en la construccion de los edificios religiosos. Al glorioso vencedor de Magencio, alistado bisoño de Jesucristo, fué á quien principalmente se debió que los templos del Crucificado adquiriesen en lo sucesivo la planta sencilla y simbólica que se ha venido despues perpetuando hasta nuestros dias. Así es en efecto: autorizados por él los obispos de Roma á elegir entre los edificios públicos los mas adecuados al ejercicio del nuevo culto; las basílicas claras y espaciosas, destinadas hasta entonces á las transacciones comerciales y á la decision de las contiendas jurídicas, fueron instantáneamente convertidas en iglesias. Allí mejor que en los lujosos templos del paganismo, manchados con los mas vergonzosos é impuros misterios, hallaba cómoda acogida la muchedumbre cristiana; no en los lóbregos aunque magníficos receptáculos de los antiguos dioses, donde, segun la feliz espresion de un escritor moderno, podia desaparecer el ídolo con el humo de un solo grano de incienso.[414] Eran las basílicas por lo comun de planta cuadrangular y oblonga, terminada en un hemiciclo, con dos hileras de columnas que dividian longitudinalmente su espacio en tres secciones ó naves, la central mas elevada que las laterales. Estas construcciones, severas y sencillas al esterior, é interiormente decoradas con magestuoso y no profuso ornato, eran muy aplicables al nuevo culto: en el centro del hemiciclo, donde estaba antes el tribunal, se colocaba el ara consagrada, en la que celebraba el obispo, ocupando los lados la clerecía; las tres naves del edificio se destinaban al pueblo, el cual, como es sabido, nunca habia penetrado en los templos del paganismo; y ocupaban, los hombres la nave de la derecha, las mujeres la de la izquierda, y los catecúmenos que aun no tomaban parte en la celebracion de los divinos misterios, la seccion inferior de la nave central en las horas dedicadas á su instruccion. Esta nave, dividida por lo comun en su altura en dos cuerpos, formaba una especie de galería alta ó tribuna, que se reservaba para las viudas y las vírgenes particularmente consagradas á la oracion. Entre el ábside donde residia el tribunal, y las naves, ocupadas por el pueblo que acudia á sus diferentes negocios, habia en las basílicas romanas un espacio privilegiado, separado del cuerpo de las naves por una balaustrada ó cancel, y reservado á los abogados y gente de la curia: este espacio, al convertirse la basílica en iglesia, se destinó á los cantores, y tomó el nombre de coro. A su entrada se colocaron como dos pulpitillos á modo de cátedras, con gradería para subir á ellos á leer al pueblo reunido la Epístola y el Evangelio; y estos púlpitos se llamaron ambones. Adaptábase pues la basílica antigua á las principales necesidades del culto cristiano; pero es claro que cuando la iglesia se alzaba de nueva fábrica, al reproducir en su planta general la forma de aquellos edificios tan cómodos y apropiados, habia de procurar el arte satisfacer además otras exigencias. Entonces la basílica (que este nombre pagano, equivalente á morada ó casa real, adoptó el templo cristiano como agradecido á la acogida que en ella habia encontrado al salir de los subterráneos de Roma) se erigia con el ábside al oriente, y marcando bien en su planta la forma simbólica de la cruz del Redentor. Las arquerías que la dividian en tres naves nunca invadian el espacio destinado al coro, sino que la central y el presbiterio formaban con este una verdadera cruz latina. Cubríase el edificio con techumbre de madera y tejas planas, adaptando interiormente á los pares un entablado pintado, ó dejando descubierta la armadura. El coro, que se llamó despues crucero en su interseccion con la nave central, solia revestirse de mármoles: separábale del presbiterio un segundo cancel, cuyas puertas custodiaban los acólitos. Una escalinata conducia al santuario ó presbiterio. Alzábase en este el altar, con su tabernáculo encima (ciborium), y debajo de él abríase una especie de cripta (confessio) donde se custodiaban las reliquias amadas de los mártires. Detrás del altar, á modo de corona, se sentaban en coro los presbíteros, con los obispos á la derecha, y la silla pontifical en el lugar preeminente. Esta silla era por lo comun de preciosos mármoles, tenia sus cojines, y estaba mas alta que las otras sillas del coro de sacerdotes, y cubierta con su correspondiente paño (thronum... linteo ornatum). Al pié del cancel del presbiterio tenian puesto separado á un lado los príncipes y magnates (se llamaba senatorium), y las matronas al lado opuesto. Exornábase el ábside con profusion de mármoles, estucos y mosáicos, y de su semi-bóveda ó cascaron pendian para mayor adorno lámparas circulares, vasos (coronæ et calices pendentiles) y otros objetos preciosos. El tabernáculo que se alzaba sobre el altar estaba sostenido por cuatro columnas (umbraculum, propiciatorium), y sus lados cubiertos con cuatro cortinas (tetravela cuadruplicia). Tambien tenian grandes cortinas las puertas de la basílica. La sacristía (secretarium) tenia su lugar en la parte inferior de la nave del mediodia, y en ella ó en el presbiterio solian celebrarse los concilios. Aunque las paredes de las naves solian estar desnudas de todo ornato artístico, sin embargo no es probable que esta desnudez fuese regla invariable en todas las iglesias de la España goda, erigidas por un pueblo tan sensible al halago de lo bello. La monarquía de Rodrigo era al comenzar el VIII siglo una de las mas cultas y florecientes del orbe: quien lo dude no tiene mas que recordar el testimonio de los mas respetables historiadores coetáneos. Obras maravillosas y elegantes llama S. Isidoro á las construcciones de Wamba en Toledo. Iguales encomios hace S. Eulogio de la basílica de Sta. Leocadia de la misma ciudad, y de la de S. Félix de Córdoba, renovada y embellecida por el obispo Agapio II antes del año 618 para que sirviese de sepultura al cuerpo del mártir S. Zoil. Por S. Gregorio Turonense sabemos que la iglesia erigida por Carrarico á S. Martin en la ciudad de Orense era una construccion admirable (miro opere expedita etc.). Paulo Diácono nos habla de un baptisterio en la iglesia de S. Juan de Mérida, todo cubierto de pinturas... ¿ A qué amontonar citas? Todos los que han escrito de nuestras antiguas cosas sagradas se han deshecho en alabanzas de la hermosura y riqueza, de la magnificencia y fasto de muchos templos erigidos durante los siglos VII y VIII por nuestros reyes, prelados y magnates. Ellos nos pintan á la imaginacion espaciosos atrios sostenidos de columnas, encumbradas torres, muros cubiertos de bruñidos mármoles; ¿qué mucho, pues, que se decorasen alguna vez con frescos ó mosáicos simbólicos las naves de aquellas basílicas españolas compañeras de las que á S. Eulogio le merecieron tantos encomios?[415] La regla general, no obstante, era que solo se adornasen con obras artísticas la semi-cúpula del ábside, el presbiterio con los objetos que incluía, como el altar y el tabernáculo, y el coro ó escuela de los cantores. Tambien la pila bautismal solia decorarse con bajo-relieves y pinturas.

Pero en la desemejanza de las iglesias cristianas con las basílicas antiguas, el fenómeno artístico de mas interés y trascendencia es la sustitucion del arco descansando sobre los capiteles, al arquitrave horizontal, para las columnatas que dividen á lo largo el edificio: innovacion que puede atribuirse, ya á la falta de materiales para hacer una construccion romana regular, ya á la prisa con que á la sazon se edificaba, que no permitia reunir muchas columnas de proporciones iguales, ya por fin á la necesidad misma de variar y presentar cosas nuevas, que tan natural es en el hombre en las épocas de grandes revoluciones sociales. Todas las nuevas basílicas en efecto aparecieron con sus ligeras arquerías volteando de capitel en capitel, sin arquitrave que les sirviese de nivel comun, y este sistema inventado por los cristianos, sea ó no preferible al de la antigua arquitectura clásica, es el que desde entonces ha prevalecido en las edades media y moderna: en la arquitectura bizantina; en la musulmana que la reconoce por madre, ó cuando menos por nodriza; en la románica del Occidente; en la ojival llamada gótica, y por último en la del renacimiento, con la cual parecen agotarse todas las combinaciones de las formas monumentales.

Es de suponer, pues, que siendo en aquellos siglos homogénea la arquitectura cristiana en el Occidente, las basílicas de Córdoba anteriores á la irrupcion sarracena y las erigidas luego por los mozárabes, presentasen todas con cortísimas diferencias la disposicion interior que acabamos de describir. Su conjunto esterior tenia tambien que ser próximamente el mismo en todas partes: en el imafronte ó fachada, remate angular, marcando la declinacion de los pares de la armadura ó techumbre de la nave principal; luego las verticales de los muros de esta en su parte superior, por donde recibe las luces; luego las otras dos vertientes de la armadura de las naves colaterales, descansando sobre los muros de estas; últimamente, portada mas ó menos rica de ornamentacion, compuesta de un arco de plena cimbra, bajo un tejaroz sostenido en mútulos de formas caprichosas, y en lo alto un oculus ó claraboya, de sencilla forma, destinado a dar mayor luz al cuerpo de la iglesia. En los costados, muros lisos, sin estribo ni refuerzo alguno, por considerarse suficientes á contrarestar el leve empuje de aquellas pequeñas armaduras; descollando sobre el tejado de cada nave colateral el cuerpo de luces de la nave del centro; y las ventanas, todas de medio punto, con mas ó menos ornato en las archivoltas. En la parte posterior, que mira á oriente, una especie de media torre de planta semicircular ó poligonal, con ventanas de la forma misma que en los costados, revelando la presencia del ábside ó presbiterio. Al edificio de la basílica propiamente dicha, se agregaban otras construcciones indispensables. La forma de estas no sabemos que estuviese sujeta á plan determinado; segun el número de personas que hubiesen de vivir en ellas, y segun la mayor ó menor liberalidad con que se hubiese la iglesia fundado[416], serian mas ó menos cómodas y espaciosas, mas ó menos suntuosas, y si se quiere mas ó menos humildes, las dependencias de cada parroquia mozárabe. Considerábanse estas como esencialmente sujetas á la catedral, y reconocíase la Iglesia Mayor como madre aun de aquellas mismas que gozaban de alguna independencia por derechos ó privilegios de patronato[417]. Así el clero parroquial hacia una vida análoga á la del cabildo de canónigos; esto es, los beneficiados y clérigos que le componian, vivian como regulares bajo la autoridad del rector ó abad de la parroquia[418], el cual, con la parte que le tocaba de las rentas de la misma, tenia que vestirlos y mantenerlos con la debida decencia, estando al propio tiempo autorizado para castigarlos si no cumplian con su obligacion en el servicio del coro y de la iglesia. Además del edificio que para este objeto se necesitaba, con sus aposentos separados, su refectorio comun, sus aulas para la enseñanza, y lugar á propósito para la pequeña biblioteca[419] que en aquellos tiempos y aquellas ciudades era dado reunir, debia tener la iglesia mozárabe alojamiento aparte para los niños oblatos[420], para los esclavos que constituían parte de su riqueza, para los pobres y peregrinos á quienes debia dar hospedage. Estas construcciones adicionales, por grande que fuese la munificencia de los fundadores, se hacian todas con la mayor sencillez: paredes lisas, con lucientes alizares á lo sumo, despues que el gusto oriental se fué infiltrando en el arte cristiano; pavimentos de piedra comun, techos de madera, descubriendo la armadura del comblo, ó de bóveda latina; ventanas poco rasgadas con arco de medio punto; puertas cuadradas ó de plena cimbra, con escasísimo ornato, reducido por lo comun á un simple cordon de piedra ó de ladrillo marcando la curva de la archivolta.

Esta era la forma general de las basílicas latinas, godas y mozárabes: esta la que próximamente debian presentar aquellas antiguas iglesias de S. Acisclo, de S. Zoil, de S. Ciprian, etc., que tanto ilustraron con su virtud y su ciencia, ya mártires hoy gloriosos, como el presbítero S. Perfecto, el levita S. Sisenando, el diácono S. Pablo, los Stos. Emila y Jeremías y otros; ya doctores insignes en todas las disciplinas eclesiásticas, y hasta en las artes liberales. Entre estos últimos ¿quién no recuerda al famoso abad Esperaindeo, doctor ilustrísimo, de feliz recordacion, luz brillante de la iglesia en aquellos tiempos borrascosos, varon elocuente, maestro de los mas grandes genios que florecieron en la España mozárabe, y de quien se escribió que entre las amarguras que por entonces inundaban toda la Bética, prevalecian los raudales de su prudencia con los cuales endulzaba lo mas salobre? ¿Quién no descubre al punto á Eulogio, cuya figura colosal nos sale siempre al paso en nuestras indagaciones sobre aquellos oscuros tiempos, como nos atrae la mirada un hermoso planeta cuando nuestra vista se sumerge en los insondables piélagos del firmamento: luminar de la iglesia española durante su persecucion, restaurador de las ciencias eclesiásticas y de las humanidades, maestro de mártires y mártir gloriosísimo? ¿Quién finalmente se olvidará del caballero cordobés Alvaro Paulo, tambien discípulo sobresaliente de Esperaindeo; del doctor Vicente, á quien este mismo caballero nombra, y en cuyo elogio basta decir que el título de doctor era á la sazon de mucha dignidad en la Iglesia, y que por lo mismo se daba muy raras veces; de aquel eximio abad Sanson, rector de la iglesia de S. Zoil, de quien poco há hemos hablado; del sabio Leovigildo, presbítero de la iglesia de S. Ciprian, que tan elocuentes páginas escribió sobre la observancia del trage clerical? Ved, lectores, á cualquiera de esos santos sacerdotes ¡qué bien le cuadra la descripcion que del buen eclesiástico hacia S. Isidoro! «Vive enagenado del mundo y de sus placeres; abomina de espectáculos, banquetes y diversiones; no comercia, ni trata negocios seculares; habla con moderacion, camina con sosiego, mira con modestia, no frecuenta casas de mujeres, ocúpase en la leccion y en los divinos oficios, cultiva su espíritu en el estudio, instruye al pueblo en la doctrina, y le dá ejemplo con las buenas obras[421].» ¿Quereis asomar ahora rápidamente la vista dentro de la basílica é informaros de sus ocupaciones relativamente al culto? Pues desde el amanecer estad alertos. Apenas quiebra sus rayos el sol en las alabastrinas ventanas del ábside, ya estan ocupando el coro en torno del altar los presbíteros en una hilera, y los diáconos detrás en otra. Los cantores y demas clérigos ocupan su lugar, y comienzan el grave canto de los maitines. Siguen las misas y las horas canónicas: eran estas tercia, sexta y nona, y se decian tambien en coro á media mañana, á medio dia, y á media tarde, cantando siempre al fin de los salmos y responsorios el Gloria et honor que era costumbre de la Iglesia española. La misa se dividia en dos partes, la de los catecúmenos y la del Sacrificio: leíase primero una profecía del Antiguo Testamento, una Epístola de S. Pablo y una parte de los Evangelios; añadíanse algunos responsorios y unos versículos con Alleluya, que era lo que entonces llamaban Laudes; seguia el Ofertorio, y luego un diácono en voz alta mandaba á los catecúmenos retirarse. Queda desembarazado el tramo inferior de la nave central: la segunda parte va á empezar. El celebrante, vuelto al occidente, dirige una amonestacion al pueblo para que se recoja y disponga á orar: cada cual ocupa el sitio que le corresponde, los nobles y patronos el senatorium, sus mujeres y las otras damas de gerarquía et matroneum, la gente comun se divide por sexos en las dos naves colaterales de derecha é izquierda: las vírgenes, veladas á la usanza oriental, con las viudas en su tribuna ó galería alta; los hombres y mujeres casados con sus trages de diferentes colores y estofas, en que se advierte una fácil promiscuidad con las modas sarracenas, y el temor de algunas matronas poco fuertes, que por no parecer en público cristianas cubren su rostro con el velo de las mahometanas[422]. En el pintoresco y variado conjunto contrastan las galas de los magnates con el humilde estambre de los religiosos;[423] la cabeza del intonso y barbudo seglar, con la del clérigo que ostenta su corona en forma de cerquillo y su barba raida[424], (y con la del infeliz decalvado, que por sus pasadas culpas mereció una corona de ignominia hecha á repelones). Pide á Dios el celebrante que oiga las oraciones de los fieles: hace la conmemoracion de los muertos, nombrando particularmente á los fundadores y bienhechores de la iglesia; siguen los abrazos de paz en señal de union y caridad; luego la Ilacion, que ahora llamamos el Prefacio; luego la Consagracion; rézase despues el Padre nuestro, distribúyese la comunion, y últimamente se dá la bendicion al pueblo, como se acostumbra al fin de los maitines y vísperas. Sábese que tanto las catedrales como las parroquias en la misa mayor debian rogar cada dia por la salud del rey, segun el consejo de S. Pablo, y mientras hubiese guerra, ofrecer á Dios el Sacrificio por la prosperidad de las armas cristianas. Concebimos que este último precepto se cumpliese; ¿pero no nos será lícito dudar que rogasen las iglesias de la afligida Córdoba mozárabe por la salud de los califas? La consagracion se hacia en pan entero (azimo) blanco y pequeño, hecho de propósito para el Sacrificio, y sobre corporales de lino, á diferencia de la Iglesia griega que consagraba en pan fermentado sobre corporales de seda. En los dias de Domingo no doblaba el pueblo las rodillas para orar: se oraba asímismo en pié todos los cincuenta dias pascuales, desde Resurreccion hasta Pentecostés, en cuyo tiempo tampoco habia ayunos públicos ó de precepto. Despues de la caida del sol volvia á reunirse en coro el clero parroquial para cantar vísperas; y durante la noche se decian los nocturnos, en tres tiempos, lo mismo que las horas. Cada dia el rector con su clero celebraba en la parroquia los divinos oficios con esta distribucion de horas y nocturnos, y con diferencia de himnos y oraciones segun se rezaba de santo mártir, ó confesor, ó vírgen. A este asíduo culto, lo mismo que al Santo Sacrificio, era convocado el pueblo cristiano con toque de campanas; cuyo débil tañido, que por cierto no sería muy atronador atendidas las dimensiones y forma del instrumento[425] en aquellos tiempos, se nos refiere escitaba de tal modo el enojo de los mahometanos en los dias de intolerancia y persecucion, que por no oirlo se tapaban los oidos prorumpiendo en maldiciones[426]. Con tanto rigor observaban los sacerdotes mozárabes en general su liturgia, que en las referidas épocas de persecucion, sin aparato alguno celebraban cada dia su misa, y cantaban los salmos dentro de las mismas cárceles en que estaban presos[427]. En los tiempos normales siempre era grande el aseo en el servicio de las basílicas. Sus aras, pues solia en cada una haber varios altares desde que se introdujo la costumbre de abrir nuevos ábsides en el muro de levante del crucero, eran de piedra, y estaban cubiertas con telas blancas de lienzo, y por delante con frontales de variedad de colores y tejidos. Ardía en ellas la cera no solo durante los divinos oficios, sino tambien de noche y á puertas cerradas. El sacerdote para el Sacrificio vestía amito, alba, cíngulo, manípulo, estola y casulla, y el diácono en lugar de esta se cubría con dalmática. Las casullas, capas, frontales y otras ropas semejantes eran de lana ó seda, y muchas veces con guarniciones de plata y oro. Es dificil formarse idea de la bella forma de aquellas vestiduras sacerdotales, tan ámplias y magestuosas, no habiéndolas visto reproducidas segun los antiguos monumentos del arte.

No menos que estas iglesias florecian por entonces los monasterios de toda la provincia, en especial los de la Sierra de Córdoba, que así como rinde en tributo á la campiña las aguas de sus veneros y los aromas de sus plantas, le tributaba á la sazon con estos y aquellas sangre copiosa y fecunda de mártires, y purísima fragancia de virtudes evangélicas. Cerca de la ciudad, y á su vista por la parte del mediodia, reflejaba sus muros en la corriente del Bétis la iglesia y monasterio de S. Cristóbal, donde se educó S. Habencio, y donde fueron sepultados varios otros mártires. En Froniano, lugar de la montaña por la parte de occidente, á tres leguas ó doce millas de la ciudad, tenia iglesia y monasterio S. Félix mártir. Presidia este monasterio un piadoso sacerdote llamado Salvador, y debia ser de los dúplices ó mixtos, tan comunes entonces, por cuanto leemos en S. Eulogio que se fué á vivir á él con su mujer y sus hijos el padre del santo mártir Walabonso. En el lugar llamado Rojana, tambien de la montaña, sin que nos sea dado señalar hácia qué parte de ella, habia otro monasterio dedicado á S. Martin. Distaba unas dos millas de la ciudad, segun se colige de la vida de S. Juan Gorziense[428], y á su iglesia acudia el santo mientras permaneció con el carácter de legado del rey Oton, en los domingos y grandes festividades, únicos dias que le permitia el gobierno de Abde-r-rahman III salir del palacio donde le retenia mas como preso que como huésped. En este santuario floreció el mártir S. Cristóbal, discípulo del grande Eulogio. En lo interior de la Sierra, en un sitio llamado Fraga, entre agrios montes y enmarañadas selvas, junto al lugarcillo Leiulense, distante de Córdoba poco mas de seis leguas, habia un monasterio consagrado á los mártires S. Justo y Pastor, del cual bajó el jóven Leovigildo, natural de Granada, á padecer martirio. El famoso monasterio dúplice de la Peñamelaria, titulado de S. Salvador[429], fundado por los padres de Sta. Pomposa, y memorable por haber vivido en él esta santa mártir y el monge S. Fandila, estaba edificado en la sierra que sirve de anfiteatro á la campiña al norte de Córdoba, á unas cuatro millas largas de la ciudad, á la falda de una peña donde desde los tiempos mas antiguos formaban las abejas sus panales: circunstancia á que debieron su nombre vulgar la peña y el monasterio. Aun se ven de él escasos vestigios en alguno de los claros de la selvosa y sombría montaña que se levanta al norte del castillo de la Albayda. Los cuerpos de los mártires S. Jorge y S. Aurelio fueron sepultados en este santuario.

Mas internado en la Sierra, pero en la misma direccion norte de la ciudad, y á dos leguas escasas de esta, alzábase antes de la cruel persecucion de Mohammed, entre quebrados montes y bosques seculares, otro monasterio, tambien mixto, celebérrimo en toda la cristiandad como glorioso gimnasio de mártires, del cual se escribe que era tal su fama, que de fuera de España acudian gentes á visitarlo. Era este el monasterio Tabanense, fundado con toda magnificencia en tiempo de S. Eulogio por los piadosos cónyuges seglares Jeremías é Isabel, personages de gran cuenta y de bienes de fortuna considerables, los cuales emplearon en él todo su ingente patrimonio y se retiraron con su familia á vivir en aquella aspereza huyendo el contagio de la fascinadora cultura musulmana. Allí florecieron, y de aquellas paredes salieron para recibir el martirio, los dos citados esposos; el venerable abad Martin, hermano de Isabel, abadesa del monasterio de mujeres; la vírgen Columba, hermana de ambos, que con su dote habia contribuido á la fábrica del convento, y que luego recibió tambien la corona del martirio; allí fué monge el mártir Isaac, sobrino del fundador Jeremías; allí vivió Fandila bajo la disciplina del abad mencionado; allí vivió retirada y alentándose para el martirio la matrona Sabigoto, que hizo por Jesucristo dos sacrificios heróicos: separarse de dos hijas, entregándolas al cuidado de Isabel y demas santas religiosas, y volar despues al martirio[430]; de allí finalmente salió á confesar su fé en Cristo la fervorosa Digna, discípula de Isabel, y allí Aurelio, el esposo de la varonil Sabigoto, fué á estampar el beso de despedida en las puras y sonrosadas megillas de sus inocentes hijas antes de entregar su cuello á los verdugos del Mexuar[431]. Corta fué la duracion de este monasterio tan fecundo en prodigios de virtud, puesto que la misma Columba que habia contribuido á su edificacion, lo vió destruido, con otras iglesias y lugares sagrados en que se cebó la furia de los sarracenos durante la persecucion decretada por el califa Mohammed, de que hemos hecho mencion en otras ocasiones. Sin duda por ser tan famoso se encarnizaron mas contra él los enemigos de la fé cristiana, los cuales completamente lo arrasaron. Las religiosas que en él moraban huyeron á la ciudad, y allí se recogieron en una casa que tenian, pared por medio con la iglesia de S. Cipriano.

Otro célebre monasterio de aquellos tiempos, y del cual aun existen algunos vestigios, era el Armilatense, intitulado de S. Zoil, que tenia su situacion á unas siete leguas ó mas al norte de Córdoba, en una espantable soledad y aspereza de montes[432], sin mas comodidad temporal que la del rio Armilata (hoy Guadamellato), del que tomaba el nombre. Iba la corriente por la márgen de la montaña en cuya falda se habia fundado el monasterio, y siendo muy abundante en pesca, contribuía á los monges con su producto. En esta clausura se educó el mártir Wistremundo.

Cerca de Córdoba por la parte occidental habia un lugarcillo denominado Cuteclara, donde desde tiempos muy remotos existia un monasterio de monjas con advocacion de la Santísima Vírgen María. Hízose este monasterio cuteclarense muy famoso por la santa matrona Artemia, madre de los mártires Adulfo, Juan y Aurea, y maestra de la mártir María. En él florecieron Pedro Astigitano y Walabonso Eleplense, el primero en grado de presbítero, y como diácono el segundo, dando ambos á dos su sangre por Jesucristo[433].

Estos son los monasterios de que se conservan mas circunstanciadas noticias. De algunos otros que se supone existian tambien en la Sierra y en la parte occidental de la campiña, no hay para qué hacer mencion espresa, puesto que ni sus nombres son claramente conocidos. Todos estaban sujetos á la regla de S. Benito, introducida en España desde el sexto ó séptimo siglo de la Iglesia (que de cierto no se sabe), y advertíase en ellos, comparados entre sí, la variedad de construcciones en la uniformidad del vivir, que era resultado natural de la mayor ó menor holgura con que habian sido erigidos; sin que á esto se opusieran las constituciones del santo fundador de la órden, el cual permitia una racional libertad para acomodarse en todo lo esterno á las condiciones de los diversos paises en que se establecia su piadosa hueste. Los mas afamados eran dúplices ó mixtos; cada uno de ellos formaba como dos monasterios contiguos, uno de hombres, otro de mujeres, sin mas dependencia entre sí que la que los antiguos cánones habian establecido mandando que todo monasterio de religiosas estuviese sujeto en lo económico y administrativo á un abad nombrado por el obispo, á fin de que las monjas y su abadesa pudiesen libremente consagrarse á la vida ascética lejos de toda relacion y trato con la gente mundana. Monges y monjas vivian en sus respectivos edificios en celdas separadas: entre el monasterio de los hombres y el de las mujeres habia altas y fuertes paredes que los mantenian en completa incomunicacion, de manera que no podian verse unos á otros. Solo cuando la concurrencia de hermanos ó huéspedes les obligaba á prestarse mútuo auxilio, era lícito entablar correspondencia entre la clausura de religiosas y el edificio de los monges; pero aun entonces se limitaba la plática á lo puramente preciso, saliendo la abadesa á la ventana. El Concilio Hispalense II en su cánon onceno habia mandado que en toda la Bética los monasterios de monjas fuesen gobernados por monges; pero cercenando de tal manera las pláticas de los religiosos de ambos sexos entre sí, que solo á los abades y vicarios permitia hablar con las abadesas, y esto estando presentes otras dos ó tres monjas y versando la conversacion sobre cosas espirituales y doctrina. Los demas monges, ni siquiera al vestíbulo del monasterio de mujeres podian acercarse. Para cuidar de la administracion é incremento de las fincas rústicas y urbanas del convento de religiosas, atender á la conservacion y reparacion de sus edificios, y ocurrir á todas las demas cosas precisas, nombraba el abad un monge de capacidad y virtud esperimentada, y este nombramiento habia de ser confirmado por el obispo. En España, lo mismo que en Francia y en Inglaterra[434], siempre que se fundaba una clausura de religiosas, se construía con arreglo á las necesidades de un monasterio mixto, por la indicada condicion de que habian de ser precisamente monges los que la gobernasen. No es esto decir que fuesen dúplices todos los monasterios de la provincia de Córdoba que dejamos mencionados; éranlo los mas principales, pero podia haber, y habia en efecto, otros que eran solo de hombres. El aspecto general de unos y otros debia ser próximamente el de los demas monasterios benedictinos de la cristiandad, sobre todo despues de la famosa congregacion de Aquisgran, celebrada el año 817 por disposicion de Ludovico Pio, cuyos capítulos ó cánones se hicieron obligatorios á cuantos vivian bajo aquella regla en el Occidente. La lucha contínua que los mozárabes consagrados á la vida religiosa tenian que sostener contra los infieles y los hereges, el peligro que sin cesar les amagaba de ser perseguidos y martirizados, hacia que no perdiesen nunca de vista los santos y eternos objetos de su mision y vocacion, y las duras pruebas á que diariamente se les sometia los afirmaban en la fiel observancia de la doctrina y profesion que habian abrazado. Por esto la vida monástica en general, y en particular la regla de S. Benito, produjeron en Andalucía, y en toda España, tantos y tan insignes santos; por esto se conservó entre los mozárabes intacto el oficio divino de la primitiva Iglesia goda, que era el mismo que habian introducido en España los siete Apostólicos[435]; y por esto finalmente la disciplina monástica española brillaba con incontaminada gloria, mantenida en toda su pureza por los concilios nacionales y los grandes genios, como S. Leandro, S. Isidoro, y otros muchos que llenaron con sus obras las bibliotecas y con sus imágenes los altares en todos los siglos hasta el undécimo, antes que el prurito de imitar á los franceses, hecho moda en la corte de D. Alfonso VI, viniese á reformar lo que no necesitaba ser reformado, dándole la disciplina cluniacense por modelo. Por esta misma escrupulosa observancia de las constituciones escritas, observamos que la referida congregacion de Aquisgran inculca en muchos de sus cánones ó capítulos preceptos que desde los tiempos mas remotos vienen puestos en práctica en los monasterios españoles[436], y que los monges de otros paises de todo punto abandonaron. Así pues, no te parecerá temeridad, mi buen lector, el suponer que los monasterios de que vamos tratando, los principales al menos, como el Tabanense, tan encomiado por la esplendidez con que habia sido fundado, fuesen en su fisonomía arquitectónica general semejantes á los que fuera de España alcanzaban por aquellos tiempos mas fama de observantes, edificados tambien en la aspereza de las montañas. Puede decirse de los monasterios benedictinos de Europa en los siglos medios lo que de sus monges: todos eran iguales, sin mas diferencias que las dimanadas de los respectivos usos y necesidades de los paises en que se establecian. Lo mismo que podia variar en cada nacion el color del hábito, porque S. Benito no habia determinado color ninguno, podia tambien y debia forzosamente variar la arquitectura de los edificios, ya por su mayor ó menor número de oficinas, ya por los materiales con que fueran construidos, ya finalmente por el estilo artístico peculiar de cada pais. Pero en lo sustancial habia completa uniformidad: todos los monges benedictinos llevaban escapulario y cogulla: que en esto consiste lo esencial del hábito; del mismo modo todos los monasterios, fuesen grandes ó pequeños, tenian su distribucion interior, sus oficinas y departamentos, adecuados á las prescripciones inviolables de la regla[437]. A falta de intérpretes de esta regla que nos hayan legado un recuerdo gráfico de los monasterios de la Bética en el noveno siglo, citaremos las palabras con que el capítulo general del Cister, que redactó la constitucion definitiva de la órden en 1119, formuló lo relativo á la disposicion material de los monasterios restituidos á la fiel observancia de la regla primitiva. «El monasterio se construirá (dice esta obra maestra de organizacion monástica) de modo que reuna si es posible en su recinto todas las cosas necesarias: agua, molino, huerta, talleres para los diferentes oficios, á fin de que los profesos no tengan que salir fuera... Habrá alquerías y cortijos en las tierras de la abadía, y el cultivo de estas estará á cargo de los hermanos conversos (ó novicios)...» Esta constitucion se observa escrupulosamente cumplida en la edificacion del convento de Claraval, cuyo entendido arquitecto supo reunir, á una comunicacion fácil con el esterior del monasterio, para el buen servicio de sus oficinas, una clausura completa para los religiosos profesos. Al mismo tiempo destinó un lugar muy principal al pasto espiritual y literario de la comunidad, rodeando uno de sus claustros con la biblioteca, las celdas de los copistas, el salon donde se discutian las tésis teológicas, etc.; y para recordar á los monges que no debian vanagloriarse por tener dotes y talentos que les hicieran sobresalir entre sus hermanos, situó la enfermería y el departamento de los ancianos, en quienes la edad y los trabajos enervan todas las facultades del alma y del cuerpo, inmediatos al centro intelectual de la comunidad. Las necesidades materiales de la vida estaban representadas en los graneros, cillerezía, molinos, cocinas, etc.; estas oficinas se hallaban próximas al claustro, pero fuera de clausura. Junto á la iglesia estaba el claustro, con todas las dependencias necesarias para los profesos. Las máquinas, hornos, alquerías, establos, talleres para los artesanos, y demas objetos de la industria y de la agricultura, ocupaban un primer recinto fuera de la clausura monacal, sin simetría, y segun la disposicion particular de la localidad. Este vendria á ser sin duda alguna el repartimiento interior de los monasterios de religiosos en la tierra de Córdoba, sin mas diferencia en los dúplices, ó de ambos sexos, que la que se colige de la necesidad de mantener á las religiosas en una incomunicacion completa respecto de los monges, sin estorbar sin embargo el acceso del templo á estas, y el del monasterio de mujeres á los que estaban autorizados para acercarse á ellas. Y que era así en efecto lo persuade la perfecta similitud que se advierte entre los monasterios de todos tiempos mas afamados por la escrupulosa observancia de la regla del santo fundador. Tómese el plano de cualquier abadía reformada, cluniacense ó cisterciense, trácense en su iglesia dos coros, uno á un lado y otro á otro, y en comunicacion con los mismos dos claustros, uno para hombres y otro para mujeres, con sus correspondientes dormitorios, refectorios, capítulos, enfermerías, hospederías, cocinas y lo demas necesario para el servicio corporal y espiritual de cada clausura; establézcase una division de altas y gruesas paredes entre ambas casas, poniendo los puntos de comunicacion entre una y otra bajo la vigilancia y custodia del abad y de sus delegados; agréguense al recinto general aquellas oficinas en que se emplean monges solos, sin acceso para las religiosas, que son todas las que requiere la administracion y gobierno económico de ambas comunidades, los graneros, los depósitos de las prestaciones decimales, las huertas, molinos, establos, habitaciones de criados, etc.; y se tendrá aproximadamente la planta de uno de los principales monasterios de Córdoba del tiempo de S. Eulogio, como el Tabanense ó el de Peñamelaria. Diferirán uno de otro en la arquitectura de su alzado, en su aspecto esterior y parte decorativa: y esta diferencia dependerá del estilo dominante en cada region, en cada siglo. El monasterio cluniacense ostentará la riqueza del gusto occidental generalmente denominado bizantino; el cisterciense ofrecerá una gran sobriedad de ornato, «una iglesia sumamente sencilla, con esclusion de todo género de pintura ó escultura, sin vidrieras de color, sin cruces ni adornos en ellas, sin torres de grande elevacion ni cosa alguna que forme contraste con la simplicidad y humildad de la regla»;[438] el monasterio cordubense, como fundado por descendientes de visigodos apegados á las prácticas y tradiciones de la arquitectura latina que usaron sus mayores, y dóciles sin embargo al contagio del modo neo-griego y arábigo-bizantino, y poblado por monges cuya fidelidad á la santa regla primitiva se citaba como modelo y provechoso ejemplo en los dominios de los reyes cristianos, presentará ese mismo estilo mixto cuyos caractéres generales hemos señalado tratando de las basílicas mozárabes de la ciudad. Veránse en él arcadas sin arquitrabes, puertas cuadrangulares y ventanas de plena cimbra, portaditas sencillas y galanas con su dintel recto, su arco de medio punto encima y su tímpano ligeramente decorado; alguna que otra imitacion del arte oriental; como el arco de herradura, la pequeña cúpula sobre pechinas, los ajimeces, los ladrillos barnizados, las molduras y cenefitas de pometados, puntas de diamantes y flores de loto, los capiteles de forma cúbica, etc. Aquella puerta que nos dice S. Eulogio se dejó abierta por descuido despues de los maitines el monge que cuidaba de la clausura de las religiosas en el monasterio de Peñamelaria, y por la cual se evadió Sta. Pomposa para volar al martirio, sería sencillamente una puerta con arco de ladrillo, y si era, como parece regular, la que conducia del convento de mujeres al coro de la iglesia, tendria á lo sumo algun adorno sencillo esculpido en su dintel, realzado tal vez con vivos colores. Aquella ventana donde se asomaba segun nos refiere el mismo santo la venerable abadesa Isabel en el monasterio Tabanense para avisar la llegada de nuevos huéspedes ó peregrinos, podria ser quizás un ajimez con su esbelta columnilla de jaspe y sus dos arcos á la manera sarracena, puesto que consta por las muchas reminiscencias arábigas con que los religiosos prófugos de Córdoba matizaron y embellecieron la severa arquitectura de Asturias y Leon, que no repugnaban los ejemplares monges mozárabes, racionales en todo, las novedades que con ventaja para el arte y sin significacion alguna moral habian introducido sus dominadores.

Para completar este bosquejo será bien dar una ligera idea de la devota gente que poblaba estas santas casas, de su modo de vivir, de sus usos y sus trages, ciñéndonos, como la índole de nuestro trabajo lo requiere, á la parte gráfica y pintoresca de la veneranda regla, y dejando sérias investigaciones sobre la disciplina religiosa para los escritores de historia eclesiástica: que por cierto, y sea dicho de paso, tienen mas ámplios y abundantes fundamentos que nosotros los amantes de las antigüedades artísticas, para desenvolver sus elucubraciones. No vamos por lo tanto á sacar á luz una nueva edicion de la regla de S. Benito y de los capítulos del concilio de Aquisgran; vamos solamente á trazar con rasgos caracteriscos una breve filiacion de los valientes soldados de la hueste benedictina, y solo por lo que interesa el saber qué especie de vida interior hacian bajo su santa bandera, aquella animosa monja que burlando la vigilancia del convento fué por entre las nocturnas tinieblas atravesando montañas, bosques, peligrosos barrancos, hasta llegar con el alba á la corte sarracena; aquella otra venerable abadesa, que salia á la ventana del muro divisorio entre las dos clausuras del monasterio Tabanense, para ver de agasajar á Jesucristo en la persona de sus pobres despues de haber gastado su gran patrimonio en fundar aquella casa; toda aquella legion de mártires en suma, arriba mencionada, que en los períodos de persecucion, y como por secciones, iba bajando de la Sierra á la orgullosa corte de los Amires á fortificar con su sangre los retoños de la cruz que presumian estirpar los infieles. Aquellos santos varones, pues, aquellas respetables matronas, devotas vírgenes y niños ofrecidos, descendientes la mayor parte de nobles familias godas, como de sus meros nombres se colige, vivian todos, sin distincion de sexos ni de cuna, entregados á la oracion y meditacion, á las obras de caridad, al cultivo de la inteligencia, á los trabajos manuales que la regla prescribe, en los cuales no habia para los profesos de mas ciencia, virtud y nobleza, exencion de trabajos serviles[439] dentro de la clausura. Habitaban en celdas desnudas de todo aparato, vestian los monges de negro[440], con túnica, escapulario y cogulla[441], las monjas con túnica tambien negra, y velo del mismo color, ó encarnado, simbolizando, bien la tristeza del destierro en que el alma consagrada á Dios vive en este mundo, bien su continua disposicion á dar la sangre por Jesucristo. Los monges profesos llevaban coronas de cerquillo lo mismo que los presbíteros, y la barba crecida como los demas cenobitas y ermitaños; pero los novicios ó confesos no llevaban corona hasta que pasaban á profesos[442], ni tampoco capilla; así como no usaban velo las vírgenes hasta que en alguno de los dias solemnes marcados al efecto se lo daba el obispo pronunciando ellas sus votos. Levantábanse á las dos de la noche á rezar maitines y laudes, y despues no se volvian á acostar, sino que se empleaban en la oracion, la meditacion y el estudio; dormian vestidos, y solo se les permitia al acostarse mudar de calzado: en el refectorio se les servian únicamente dos viandas, que eran frutas ó verduras, y pescado, para que el que no pudiese comer de la una comiese de la otra; prohibíaseles absolutamente el uso de las carnes[443], y en cuanto á la bebida, que era el agua pura, regia una costumbre muy digna de ser observada: solo cuando habia obras ó ayunos estraordinarios, se les consentía beber entre comidas, y entonces, reunida toda la comunidad antes de entrar al rezo de las completas, daba el abad su bendicion, y el que tenia sed, bebia. Ayunaban todos los miércoles y viernes del año, además de hacerlo en las épocas señaladas por la Iglesia á todos los fieles, y el ayuno no les eximia del trabajo corporal y obras de manos, ni de la lectura acostumbrada. No era el abad preferido á ninguno de sus súbditos ni en la comida, ni en la bebida, ni en la cama, ni en el vestido. Solo cuando sobrevenian huéspedes de mucho respeto y calidad, le era permitido comer con ellos fuera del refectorio; pero las pequeñas distinciones de esta especie estaban mas que compensadas en beneficio de la humildad cristiana, porque ese mismo abad que gobernaba la comunidad y podia castigar á los monges rebeldes é viciosos, y ante el cual se prosternaba el castigado hasta tocar con su frente el suelo, cubriéndose con la cogulla en señal de confusion, ese superior respetado y temido lavaba y besaba imitando á Jesucristo los piés á sus subordinados en el dia solemne que consagra la Iglesia á esta conmemoracion conmovedora. Tampoco para envanecerlos y exaltarlos, sino para que se les denotase amor y reverencia, queria S. Benito que los monges al llamarse unos á otros hiciesen preceder sus nombres de apelativos afectuosos y respetuosos: los mayores debian llamar á los menores hermanos (fratres), los menores á los mayores padres (nonnos); todos ellos al abad señor y maestro (dominus et magister). Los pobres tenian como declarado en la regla de S. Benito un derecho que por su singularidad merece mencionarse: para que no les faltase alimento, estaba terminantemente prohibido que ningun monge cediese á otro parte de su comida ó cena; de esta suerte, las sobras que dejaban los desganados ó de estómago pequeño llegaban intactas á los mendigos que socorria el monasterio. La regla del silencio se observaba con toda escrupulosidad: cada religioso se ocupaba en su celda en la oracion y meditacion, ó en el estudio; los no profesos se dedicaban á las faenas de la labranza y del cultivo; la comunidad solo se reunia en el coro, en el refectorio, en el capítulo y en las aulas. Durante las refacciones de comida y cena se leía; en ninguna parte del monasterio y á ninguna hora habia bullicio, y para desterrarlo completamente, las escuelas en que enseñaban los monges doctos estaban fuera de los edificios claustrales, y las aulas que habia dentro de ellos eran solo para los educandos del convento.

Exaltada nuestra imaginacion con estos recuerdos, cuando recorriamos aquella fragosa y pintoresca Sierra de Córdoba, que hoy siguen santificando con su vida ejemplar los humildes hijos del Yermo; al[444] señalarnos con el dedo nuestro complaciente guia alguno de los lugares matizados de ruinas donde la piadosa tradicion ve los devastados solares de los antiguos monasterios benedictinos, creimos muchas veces percibir el ténue tañido de una modesta campanita entre el blando susurro de las auras y de los arroyuelos, con que lloran hoy su soledad aquellas montañas que casi nos atreveríamos á llamar sagradas. Figurábasenos que aun hallaríamos en pié alguna de aquellas santas casas: que en ella íbamos á sorprender, usando del derecho de hospitalidad, á fuer de fatigados peregrinos, á la pequeña comunidad rezando sus horas; ó á ser agasajados como lo habian sido allí muchos en otros tiempos, viniéndonos á la memoria de contínuo aquella preciosa pintura que hace S. Eulogio de la vida de los monges de S. Zacarías de Navarra[445]: «resplandecen como estrellas del cielo con méritos de diferentes virtudes, unos de una manera, otros de otra. Florece en unos la caridad perfecta que desecha todo temor; á otros engrandece la humildad; otros con cuidado se ejercitan en recibir á los peregrinos y huéspedes, y condescienden con la voluntad de los que llegan de nuevo, como si Cristo se inclinára á ser recibido en su hospedería.» ¡Oh vida dulce y tranquila! esclamábamos: ¡oh deliciosa soledad silvestre, morada única en que descansa con placer el ocupado pensamiento del viajero de lejanas tierras, mientras encomienda á tus vagarosas auras, embalsamadas al contacto del azahar y de la madreselva, los suspiros que le arranca su amada familia ausente! Y ahora que restituidos al hogar doméstico escribimos aquellas impresiones, trayendo á la memoria aquellas punzadas de melancolía por la ausencia de la esposa y de los hijos, que tenemos ya á nuestro lado, volvemos á esperimentar una suave tristeza de no ver más lo que entonces vimos. ¡Oh mezquina condicion de la humana criatura, nunca del todo satisfecha! Como si aquellos monasterios durasen todavía; como si pudiéramos aun ver por allí la figura de aquel santo sacerdote que los visitaba y edificaba á todos; espiarla trepando hácia ellos por las mismas trochas y senderos que nosotros recorrimos, y perderse como una mota negra[446] entre aquellos carrascales y encinares, enseñándonos el camino á todas las santas casas de la Sierra; duélenos no haber fijado nuestro albergue entre aquellas montañas de tan magníficos horizontes; é internándonos con la mente hasta la horrible soledad y montuosa aspereza donde estuvo edificado el famoso monasterio Armilatense, cuyas ruinas retrata todavía en su impetuoso nacimiento el Guadamellato, dirigimos á los gloriosos santos formados en sus claustros aquella misma salutacion afectuosa de Carlomagno á Paulo Diácono, monge de Monte Casino.

Hic celer egrediens, facili mea charta volatu,
Per sylvas, colles, valles quoque prœpete cursu:
Alma Deo cari Benedicti tecta require.
Est nam certa quies fessis venientibus illuc.
Lætus amor, et cultus Christi, simul omnibus horis.
Pax pia, mens humilis, pulchra, et concordia fratrum.
Dic patri el sociis cunctis, salvete: valete: etc.[447]

Mas, ¡ay! que esta grata vision retrospectiva va á concluir con un espectáculo terrible y sangriento; porque la vida del monge del siglo IX no era, como vulgarmente nos figuramos, una série bonancible de gozos espirituales y prosperidades terrenas. Muy halagüeño es sin duda, despues de domado el ímpetu de las pasiones, vivir lejos del bullicio de la capital, conversar con Dios en medio de esa agreste soledad, solazarse inocentemente á la orilla de ese rio, sorprendiendo entre las espumosas ondas que se quiebran en los peñascales á los incautos pececillos... Pero ¿y si llega un dia en que un rey poderoso decrete la persecucion y el esterminio de todos los cenobitas?... Pues ese temido instante llega en efecto. Porque la cristiandad está en dias de prueba, y como férrea tenaza la estrechan por el norte y mediodia los bárbaros normandos y los sarracenos. La Europa entera está humeando con monasterios incendiados y sangre de mártires: ¡Gante, Amiens, Arras, Corveya, Cambray, Tarvana, y cuanta tierra riega el Escalda, forman ya una inmensa hoguera! Los mismos estragos manchan con sangre y calcinados escombros la corriente del Rhin: los soberbios claustros erigidos por el emperador Lotario quedan en el espacio de tres dias convertidos en inútiles ruinas. La Francia ve aterrada cundir la devastacion por toda la Neustria: Suesion, Noviomago, Lauduno, Reims, son envueltas en la sentencia de esterminio que provocan los templos y monasterios. Caen desplomados los fuertes muros de S. Salvador de Prumia, de S. Martin de Turs, de las mas insignes abadías francesas... Si esto hacen los bárbaros inciviles del norte, ¿cómo esperar mas clemencia de los bárbaros cultos de oriente y mediodia, que asuelan ya el reino de Nápoles y Sicilia, que incendian á Monte Casino, á S. Plácido de Mesina, á S. Vicente de Vulturno, pasando á cuchillo á sus indefensos moradores? ¡Ah! Tambien en la trabajada España suena de un confín á otro la tremenda voz esterminadora: ¡las tropas del altivo Muhammed entran con espada en mano en el suntuoso monasterio de Cardeña, y al salir de él dejan en sus pavimentos doscientos cadáveres de mártires!... ¿Qué repentino rumor sube á la montaña desde la llanura, turbando la paz de los santos claustros confusos gritos de destruccion y muerte? Son tambien soldados y verdugos de Mohammed los que trepan hácia ellos armados de fuego y hierro. La Sierra de Córdoba, un momento há silencioso teatro de santos y ordenados ejercicios, se estremece toda con los clamores de los monges que huyen despavoridos, de las vírgenes y matronas que se apiñan desaladas en los coros, de las turbas de mozárabes que, precediendo á los implacables muzlimes, buscan asilo en lo enmarañado de los bosques y en las cavernosas breñas. Vuelvo la vista á la ciudad, magestuosamente asentada en medio de la campiña, y cuyos edificios claramente distingo; y no veo ya descollar en ella las modestas torres de las parroquias nuevamente erigidas. Veo por el contrario alzarse nubes de denso polvo en algunos parages de la Ajarquía. ¡La satánica obra de destruccion ha comenzado; publícase ya en la montaña con furibundas amenazas el feroz decreto llevado á cabo en las parroquias; y dentro de pocos dias los mas afamados cenobios, el Armilatense, el Tabanense y otros, no ofrecerán á nuestra vista mas que humeantes ruinas, y sangrientos despojos de mártires inmolados en ellos!

Segun el edicto del tirano debieron derribarse todas las iglesias edificadas en tiempo de los árabes, y en las basílicas de la ciudad erigidas mas de trescientos años atrás, demolerse todas las adiciones modernas[448]; pero Dios no consintió que esto se cumpliese á la letra. El monasterio de la Peñamelaria subsistió á pesar de la furiosa destruccion de que fué teatro la Sierra[449], y con él permanecerian tambien en pié otros de menos importancia. Sin embargo, la grande afliccion y tubracion de los mozárabes empezaba realmente por este tiempo. Porque á la ruina de los templos y monasterios acompañaron ahora aquellas enconadas persecuciones de los mismos cristianos apóstatas de que dejamos hecho mérito; aquellos conciliábulos prohibiendo declarar la fé; los padecimientos de Sanson y de Eulogio, de todos los mártires mencionados por ellos en estos años, y de otros infinitos de quienes no hicieron memoria: puesto que el mismo santo doctor dice que eran tantos los que se ofrecian al martirio, que los infieles pedian á los cristianos los contuviesen, y que era tan universal el fervor de padecer por Cristo, que hasta los párvulos se ofrecian al cuchillo de los verdugos.

Muchos que escaparon de Córdoba con vida fueron á darla por Jesucristo algunos años despues en los dominios de los reyes cristianos, á manos de los mismos muzlimes cordobeses. Este fin alcanzaron en 883 en el monasterio de Sahagun todos los religiosos prófugos que allí vivian refugiados bajo el abad Walabonso, de resultas de una entrada á sangre y fuego que hizo Almundhyr en los dominios cristianos[450]. Hasta diez años despues[451], en que padece martirio Sta. Eugenia[452], no volvemos á ver sangre de mozárabes derramada en Córdoba. De allí á poco (en 925) murió por no mancillar la flor de su pureza el santo niño Pelayo, que el obispo Hermoigio, con mas amor de sí mismo que buen consejo, habia dejado á Abde-r-rahman III en rehenes para rescatarse del cautiverio despues de la rota de la Junquera. Por las actas referentes á este inocente mártir sabemos que las basílicas de S. Ginés y S. Cipriano subsistian en su tiempo, puesto que en el cementerio de la una fué sepultado su cuerpo, y en el de la otra su cabeza.

Como por un vergel encantado que se representa en sueños, donde se hunde el pié de trecho en trecho, así discurre la imaginacion por la maravillosa y singular historia de estos tiempos. An-nasir, Al-hakem, Almanzor, poseen para los míseros mozárabes la magia de Circe: alucínanlos con el esplendor de su cultura, y cuando mas desprevenidos estan los aterran con sentencias de muerte. Bajo sus reinados acontecen la solemne embajada del Gorziense, aquellas legacías y comisiones de prelados, como las de los obispos Ermenhardo, Juan, Recemundo, Dudo, etc., entre los califas y los emperadores de Alemania y Constantinopla, en que el arte y sus bellezas figuran tanto; aquellos agasajos contínuos entre infieles y cristianos, en que se comercia por una parte con las santas reliquias de los mártires, haciendo alarde de civilidad y tolerancia; aquel incesante acudir de los cristianos á la corte de los califas, á la nueva Atenas, buscando la salud[453], buscando alianzas y proteccion[454], buscando la luz de las ciencias y de las artes[455]; aquel interminable despuntar de genios en todos los ramos del humano saber, á quienes aun hoy el mundo venera: hechos todos de que hemos dado ligera noticia al lector en el discurso del capítulo precedente. Pero á vueltas de tan sorprendentes espectáculos, los dejan helados de espanto haciéndoles ver que el odio al nombre de Cristo es en ellos inextinguible. A los seis años de la decolacion del niño Pelayo, padecen martirio Vulfura y Argentea[456]; luego Almanzor, que como violento torbellino penetra cincuenta y dos veces por los dominios de la España católica, llena las mazmorras de cautivos cargándolos de pesadas cadenas[457]; por último, á impulso de su desprecio altanero y cruel perecen en tenebrosas cárceles el ejemplar Domingo Sarracino y sus compañeros.

A la historia de Córdoba mozárabe pertenece aquella famosa prision de D. Gonzalo Gustios, padre de los malhadados Infantes de Lara, que, aunque omitida por los principales historiadores, se confirma por la Crónica General, los romances populares y la tradicion. En uno de los mas suntuosos edificios de la Almedina, no lejos de los reales alcázares, gime encarcelado el buen señor de Salas, víctima de una infame traicion urdida por su cuñado Rodrigo ó Ruy Velazquez, el cual con una falsa carta de albricias le mandó á la corte de Hixem para que fuese degollado, mientras sus siete hijos perecian en la celada que tambien les tenia dispuesta. Los Infantes de Lara, generosos y confiados como su padre, se dejan conducir á la frontera enemiga por el traidor que los entrega, y allí abandonados por él á un numeroso ejército de infieles, pelean varonilmente en el campo de Albacar[458], vendiendo caras sus vidas. El desdichado D. Gonzalo Gustios recibe en tanto lisonjeros agasajos de Almanzor y de sus allegados: la hermana del prepotente hagib, vencida de sus atractivos, le visita en su prision con frecuencia haciéndose recatadamente acompañar de sus esclavas; y de este amoroso comercio, cuyas dulzuras ilícitas va á castigar inexorable el cielo, nacerá un famoso bastardo[459], cuya historia no entra en nuestro cuadro. Está el ilustre prisionero sentado á un banquete á que le convida el magnate sarraceno... Dígalo mejor el romance.

«Y despues de haber servidode aquel tronco muertas ramas.
mil manjares á su usanza,Mira la fuente Gonzalo,
dice el rey:[460]—Gonzalo amigo,        y dice:—¡Ay, fruta temprana!
un costoso plato falta.. . . . . . .
   . . . . . . . . .Mas, ay mis hijos, que son
En esto vino una fuentemis preguntas escusadas,
que cubria una toalla,que con sangre viene escrito
y en ella siete cabezas,que es Rodrigo y Doña Lambra.»

Aun existen en Córdoba la calle y casa donde pasó este tremendo drama; llámanlas de las Cabezas, y dicen tomaron este nombre por dos arquillos que allí se ven todavía, en los cuales pusieron las cabezas de los desgraciados Infantes, mal trofeo de tan infame victoria[461].

Muerto Almanzor palidece para los muzlimes el astro de la fortuna, y la suerte de los mozárabes pasa alternativamente de la cumbre de la esperanza al abismo del desconsuelo. El conde de Castilla D. Sancho, D. Ramon, conde de Barcelona, el rey cristiano que conquistó á Toledo, plantan sucesivamente sus reales sobre Córdoba: lo mismo hacen los régulos sarracenos rebeldes al legítimo califa; con lo cual los estenuados cristianos cobran aliento. Ya el conde D. Fernando Gomez saca de la ciudad, que todo el orbe católico mira como el mas glorioso panteon de mártires despues de Roma, las preciadas reliquias de dos insignes santos[462], sin que osen estorbarlo los islamitas; ya D. Alfonso VI en 1108, por vengar la muerte de su hijo D. Sancho en Uclés, hace quemar á las puertas mismas de la orgullosa corte á su gobernador Abdalla con otros veintidos capitanes, á quienes logra envolver en una batalla, y obliga á los pobladores á que le entreguen mil y setecientos cautivos cristianos, con todo lo que pertenecia á los almoravides sus auxiliares. Ya entra D. Alonso de Aragon en Andalucía (año 1125), con tan poderoso ejército, que la mayor parte de las familias mozárabes de Córdoba se pasan á su campo juzgándose en él seguras. ¡Ahora sí que es lamentable la condicion de los cristianos que no abandonan sus hogares! Despojados de sus bienes, perseguidos, azotados, encarcelados, martirizados de mil modos, desterrados al Africa, ven consumarse la dolorosa estincion de la ley evangélica en Andalucía si el soplo vivificador de Dios no la reanima. Ocultan presurosos sus sagradas reliquias, las santas imágenes que veneran[463]. ¡Cuántos en esta sangrienta tragedia alcanzaron la palma del martirio! Sus sañudos enemigos empiezan á destruirles los templos que las anteriores persecuciones habian respetado: algunos convierten en mezquitas ó en sinagogas. Un mahometano poderoso y sus parciales llaman á D. Alfonso el emperador contra Ben-Ganyah, ofreciéndole vasallaje; así queda en suspenso (año 1146) la ruina de la iglesia mozárabe cordobesa. Ben-Ganyah es vencido: el emperador castellano entra triunfante en la ciudad de tantos amires: dá un gobernador ó alcalde á los cristianos para que sean regidos con justicia segun sus propias leyes[464]. ¡Mas ay, que los jactanciosos nazarenos han violado el gran templo del Islam atando á sus columnas sus fatigados caballos y poniendo sus atrevidas manos en el sagrado Mushaf! ¡Así que el castellano vuelva la espalda pagarán aquella insolente profanacion los cristianos cautivos[465]; y los caballeros de ese altivo emperador que puedan ser atraidos bajo un falso seguro, serán cargados de cadenas! Pero el castellano irritado se apresta brioso á castigar el infame perjurio de Ben-Ganyah; muchos príncipes de la cristiandad, muchos condes y señores se le agrupan en torno: sus huestes cubren la campiña; el fragor de sus armas atruena la vecina sierra. El musulman por su parte llama en su auxilio á los fanáticos y furibundos Almohades.

Antes que los formidables ejércitos de africanos se lancen al Estrecho, habrá el perjuro reconocido segunda vez por su rey y señor al de Castilla (año 1150); mas al retirarse este nuevamente cargado de botin ante la siniestra nube que cierra por el mediodia, los infelices cristianos de Córdoba, abandonados á la barbarie de sus últimos opresores, se irán paulatinamente dispersando como leves yerbecillas que marchita y arrebata la asoladora tempestad.

barra decorativa

Capítulo cuarto.

Panorama de Córdoba en su estado actual.

Voy ahora, lector amigo, á desarrollar á tu vista los varios cuadros del panorama que hoy la ilustre Córdoba presenta.

La antigua reina del Guadalquivir, que ya solo cobra de este gran rio el tributo de sus aguas sin cansarle con sus bajeles, se ofrecerá á tus ojos como un mayorazgo arruinado que pasa la vida en magestuosa holganza instalado en su espaciosa casa solariega, de cuyas paredes penden empolvadas, desgarradas y descoloridas tapicerías, en otro tiempo magníficas, y entretenido con los ahumados retratos de sus abuelos mientras las goteras acaban de arruinar sus artesones, y en tanto que sus tierras yacen abandonadas á la cizaña, á la oruga y á la langosta. Sube conmigo á esa enhiesta torre[466] y mira á tu alrededor: á tus piés un gigantesco templo; á tu frente un caudaloso rio, ya despojado de las frondosas alamedas de sus orillas; á tu derecha tristes reliquias de suntuosos alcázares derruidos; á tu izquierda una dilatada y heterogénea aglomeracion de edificios de todas las épocas, partidos en dos grandes secciones por una larga y anchurosa via que marca las sinuosidades de una antigua muralla divisoria, en la que descuellan á trechos algunos torreones mutilados, últimos centinelas heridos de una hueste esterminada. Esa espaciosa via es la calle de la Feria, arteria principal de la industria y comercio de la antigua Córdoba, hoy sin sangre apenas. Entre ese singular compuesto de todas las edades, divisarás en miserables callejas y en plazoletas de forma irregular, casas no pocas que por sus soberbias fachadas merecian, á no estar hoy la mayor parte desiertas, el envidiado nombre de palacios; portadas elegantes del estilo del Renacimiento con esbeltas columnas estriadas y medallones de gran relieve; graciosos ajimeces en paredones carcomidos; altas galerías de aéreas arcadas moriscas sobre edificios restaurados con bárbara simplicidad, sin una imposta, sin una faja, sin una moldura, con agujeros cuadrangulares por ventanas, y de arriba abajo enjalbegados; casuchas miserables con magníficos fragmentos de jaspe y mármol embutidos en sus sarrosos tapiales:—allí un soberbio capitel corintio sirviendo de piedra angular,—allá un hermoso fuste de granito haciendo de escalon en un umbral,—acullá una basa de estátua romana puesta como sillar á pesar de la borrosa inscripcion denunciadora de su antiguo y noble empleo:—y esto á cada paso, en cada esquina, en cada calle. Verás tambien como en posicion alegórica dos grandes edificios, S. Francisco y S. Pablo, situados en línea en frente de la Ajarquía, á guisa de paladines del cristianismo en avanzada contra los errores que simboliza la Almedina. Eran conventos poderosos: hoy se alberga en el uno como vergonzante la suprema autoridad política y gubernativa de la provincia; el otro, medio arruinado, no tiene mas morador que un pobre sillero, al cual le viene tan grande la regia clausura, que como corrido de su pequeñez dentro de ella, se ha bajado á un rincon de su inmenso patio á teñir sus palos y tejer sus eneas. Si paras la atencion en las humildes fábricas que de trecho en trecho despuntan, unas con torres, otras sin ellas, asomando sobre las techumbres circunvecinas sus denegridas fachaditas angulares, cuál con un santo en su vértice, cuál con una simple cornisilla de canes, cuál entre dos robustos estribos, pero todas con su gran claraboya como el ojo único de los cíclopes, facilmente reconocerás, aunque algo disfrazadas, algunas de las basílicas mozárabes de que te he hablado en el anterior capítulo. El clero parroquial ha carecido de medios para enmascararlas con fachadas greco-romanas ó churriguerescas. ¡Feliz pobreza, que nos las ha conservado libres de columnas panzudas y guirnaldas de piedra! A tu espalda se dilata formando cien tortuosas calles y otros tantos callejones la parte mas alta de la ciudad: en ella habia repartido la arábiga dominacion setecientas mezquitas con sus alminares, novecientas casas de baños, muchísimos mercados, bazares, zocos, talleres, fábricas, posadas; pero de tan portentosa grandeza no existe hoy ni la huella. Do quiera que vuelvas los ojos hallarás en suma fachadas sin viviendas, entre cuyos sillares brotan el musgo y la malva, por cuyas ventanas pasan revolando los pájaros amantes de las grandes ruinas; monasterios inhabitados, templos desiertos, plazas donde crece la grama, calles á todas horas silenciosas, mercados donde no se trafica, talleres donde no se trabaja, tiendas donde no se vende; una poblacion en fin inactiva, dormida, mermada, pobre, privada de las delicias de la cultura islamita, divorciada con las dulzuras de la progresiva civilizacion cristiana, y marcada con el estigma de una dolorosa decadencia material y moral[467].

Tiene un no sé qué la holgazanería que á primera vista se confunde con la dignidad; pero, sea ó no holgazana, es indudable que la moderna Córdoba arrastra con decoro los girones de la toga pretexta romana, del tiráz musulman, y de la cota española. Contenta con los timbres heredados, los deja subsistir hasta que se le caen á pedazos: no aspira presuntuosa á sustituir al arte monumental de los tiempos que fueron otro arte nuevo; y sin embargo no vive sin arte como otros pueblos. Conserva hoy cuidadosa sus lápidas latinas, sus reliquias arábigas, sus edificios ojivales: bien quisiera ella tener medios para realizar empresas mayores; pero como caballero pobre se pasa con digna resignacion sus hambres sin pedir á nadie prestado. Cuando necesita un edificio lo labra á la antigua usanza, haciendo en sus patios graciosas y esbeltas arcadas sobre bien torneadas columnillas decoradas con capiteles moriscos; y no incurre en plágios insípidos y de mal gusto, ni comete el crímen de copiar la irracional arquitectura de la coronada villa de Madrid[468].

¡Salve, pues, noble y magestuosa cuna de Lucano, de los Sénecas, de Osio, de Averroes, de S. Eulogio, de Juan de Mena, del Gran Capitan, de Morales, de Góngora, de Céspedes, de tantos insignes varones! Inspírame con las memorias de tu pasada grandeza para descubrir á mis lectores en cuadros verídicos, aunque fugaces, el sumo interés histórico que en sí llevan algunas de las reliquias que cubren tu suelo.

La muralla y sus puertas. Esos muros que cercan la ciudad, fortalecidos á trechos con gallardas torres, cilíndricas unas, cuadradas otras, y algunas ochavadas, fueron obra de muchos siglos, pero toda de sarracenos y cristianos; de los romanos quedarán quizá cimientos. Lo mas notable en ellos son las puertas, y algunas torres desviadas de la cerca, y unidas á ella con pasadizos, que los árabes solian construir en vez de baluartes para señorear mejor la muralla, y que luego construyeron tambien los cristianos[469]. Son principalmente dignas de observarse, la puerta de Sevilla por la elegancia de su labor almohadillada; la de Almodovar por lo bien que se marca en ella la diferencia entre la obra morisca y la renovacion hecha despues en la parte alta del muro; la puerta del Osario, obra de la reconquista, edificada segun la manera comun de la edad media con dos robustas torres que la flanquean; la puerta de Colodro, célebre no como obra del arte, sino por haberle dado su nombre el valiente almogavar que con Benito Baños escaló el muro de la Ajarquía dando ocasion á que ganaran esta parte de la ciudad las huestes de S. Fernando; la de la Misericordia, llamada antes puerta Escusada por cierto dicho oportuno del rey moro que perdió á Córdoba, conservado por la tradicion[470]; la del Sol, antes puerta de Martos, y en tiempo de romanos puerta Piscatoria, famosa por haber sido la primera que se abrió al adalid Domingo Muñoz y á los capitanes Argote y Tafur, en aquella noche oscura y lluviosa en que los dos terribles almogavares nombrados, y otros bravos, precedidos de sus guias, iban recorriendo en silencio como indignadas sombras toda la muralla oriental, sus torres y puertas, degollando á los centinelas y guardias muzlemitas[471]. Finalmente la puerta del Puente, que se cree diseñada por el célebre Juan de Herrera, y que indudablemente lleva el sello de su escuela[472] en la severidad y buenas proporciones de sus cuatro columnas dóricas y de su cornisamento. Dos bajo-relieves de mérito sobresaliente, atribuidos al Torrigiano, ocupan la parte superior de sus intercolumnios. Donde se halla esta puerta habia en tiempo de los árabes otra, llamada del mismo modo (babu-l-kantarah): la de Sevilla se denominaba vulgarmente puerta de los Drogueros (babu-l'-attarin): la del Sol llevaba el nombre de puerta de Algeciras (babu-l-jezirati-l-khadrá). Habia además otras puertas: la de los Judíos (babu-l-yahud); la de Talavera (llamada asímismo de Leon); la del amir Koreixí; y la de los Nogales (por otro nombre puerta de Badajoz). ¿Qué puertas eran estas? No es fácil ya averiguarlo. La de Almodovar quizás podrá haberse llamado puerta de los Judíos, por caer hácia aquella estremidad el barrio de estos, como lo indica la calle que aun conserva su nombre. Allí continuaron morando despues de la reconquista, y allí erigieron recien ganada la ciudad la suntuosa sinagoga[473] que mandó demoler el papa Inocencio IV[474]. Allí tambien sufririan la gran matanza del año 1392.

Al estremo septentrional de la Ajarquía, entre las puertas del Rincon y de Colodro, se eleva una gran torre de planta octógona, unida á la muralla por un arco de medio punto, bajo el cual se ve una lápida borrosa, en que se dice habia una inscripcion por donde constaba haberse hecho la obra desde el año 1406 al 1408, de órden del rey D. Enrique III. Acerca de esta torre circulan diversas tradiciones; pero la mas válida cuenta que se labró á costa de un caballero, que, habiendo asesinado á su esposa, obtuvo del monarca, necesitado á la sazon de hombres y dinero, la gracia de poder rescatar con ella la pena de muerte merecida por su crímen.

El alcázar. El antiguo alcázar de Córdoba debia ser un edificio inmenso, ó mas bien un conjunto de varios y magníficos edificios, porque en su irregular recinto se comprendia todo lo que es hoy palacio episcopal, alcázar viejo y nuevo, caballerizas, y huertas del alcázar. Cae á la parte occidental de la ciudad, teniendo por límites á levante la catedral, al mediodia el rio y su ribera, á occidente y norte el arroyo del Moro; y en este sitio estuvo erigida desde la dominacion romana la principal fortaleza de la ciudad, permaneciendo en los tiempos sucesivos como baluarte y defensa de la poblacion. Los godos tuvieron allí el palacio de Teodofredo, padre del rey D. Rodrigo; los árabes se encontraron el palacio construido, y los califas de la casa de Merwan se instalaron en él. Propensos á poetizarlo todo con misteriosos orígenes, sus escritores en la edad media le supusieron obra de los mas remotos tiempos, descubierta casualmente por un antiguo rey, de esos que como los de los cuentos de las nodrizas no tienen nombre ni época en la historia[475]. Pero el diligente y verídico Ibnu Bashkuwal, que le vió en la época mas brillante del califado, nos dá á entender que se juntaban en él reliquias arquitectónicas de cuantas gentes habian dominado la Andalucía desde los persas y griegos. Este historiador, sin describirlo minuciosamente, habla en general de muchas bellezas atesoradas en sus salones y jardines por los amires de la dinastía de los Umeyas, y dando luego razon de sus magníficas entradas, dice así: «Entre las puertas de este palacio, que Dios omnipotente abrió para reparacion de las injurias, auxilio de los oprimidos y declaracion de justas sentencias, es la principal una sobre la cual campea un terrado saliente sin igual en el mundo. Esta puerta abre paso al alcázar, y tiene sus hojas revestidas de hierro, con un anillo de bronce de labor esquisita, en figura de hombre con la boca abierta: obra de mérito estraordinario que trajo de una de las puertas de Narbona un califa. En la misma línea de esta hay otra puerta, llamada de los Jardines (babu-l-jennan), y al lado opuesto, en un terrado que domina al Guadalquivir, dos mezquitas, famosas por los muchos milagros obrados en ellas, y en las cuales el sultan Mohammed, hijo de Abde-r-rahman II, se sentaba á administrar justicia á sus súbditos. Las puertas tercera y cuarta, llamadas del Rio (babu-l-wadi) y de Coria (babu-l-koriah), daban salida al norte. La quinta y última, denominada de la Mezquita mayor (babu-l-jamí), era la que se abria á los califas cuando iban los viernes á la azala de la Aljama; cuyo tránsito se cubria todo de alhombras[476].» Nada mas sabemos del soberbio alcázar árabe. ¿Qué queda hoy de él? Poco mas que una especie de fortaleza cuadrada que el rey D. Alfonso XI reformó á su manera (denominada hoy el alcázar nuevo), y algunos torreones desmochados y ruinosos que se divisan como perdidos en la grande area desierta que se estiende detrás, donde ya no es posible conjeturar lo que allí existió. Créese que el palacio episcopal conserva algunos muros de aquel gran palacio: debe serlo forzosamente el que mira á levante y sirve de fachada, pues hasta el siglo XVI estuvo unido á la mezquita por medio del pasadizo ó tránsito mencionado[477].

Tenian los alcázares unos deliciosos baños, que se surtían del agua del Guadalquivir por medio de una grande azuda. Esta máquina, sostenida en un elegante edificio de ladrillo, cuyos restos aun subsisten con el nombre de Albolafia, en la orilla del rio al pié del muro que limita por el sur la Huerta del alcázar, subia el agua á un recipiente ó depósito, del cual pasaba sobre un arco al cauce abierto en dicho muro, y por encima de este corría hasta verter en el baño, del cual tambien se ven las ruinas allí cerca. En el baño habia una torre, memorable por haberse parado en ella despues que la ahuyentaron, segun cuenta la piadosa leyenda, la paloma blanca que se dejó ver sobre el cadáver del mártir S. Eulogio arrojado al rio. En el ángulo S-E. del alcázar había otra torre, llamada de la Vela, tambien célebre por la misma leyenda[478]. Ambas sin embargo han sido demolidas sin escrúpulo despues que la reina D.ª Isabel la Católica, estando en Córdoba ocupada en proveer lo necesario para la guerra de Granada, dió el mal ejemplo de hacer desbaratar el galano artificio de la Albolafia porque su ruido le quitaba el sueño.

Pero ¿cómo es que ni el alcázar nuevo, hoy cárcel, que sirvió de residencia al terrible Tribunal del Santo Oficio, ni el campillo del rey saturado de sangre de mártires mozárabes, han hallado á los ojos de los cordobeses gracia suficiente para eximirse de la dura ley del abandono? Siquiera por el singular contraste que en aquel parage ofrecian la ominosa fortaleza, donde el falso celo religioso habia perpetrado por obra del malvado Luzero tantos crímenes horrendos[479], y aquella sagrada palestra, donde el verdadero amor de Jesucristo habia recogido tantas celestiales palmas; por esto solo parece que debieran los hijos de Córdoba haber mantenido con esmero aquel edificio libre de la devoradora carcoma de las cárceles, conservando en él hasta los muebles del tiempo del pérfido inquisidor: é intacto el sencillo monumento que la piedad discreta, generosa y tierna de Ambrosio de Morales, consagró á la legion de mártires que desde aquella esplanada se habia elevado triunfante al Empíreo[480].

ALAMEDAS DEL GUADALQUIVIR.
(Córdoba.)
ALAMEDAS DEL GUADALQUIVIR.
(Córdoba.)

El puente y la Calahorra. Algunos historiadores árabes atribuyen á Octaviano Augusto la construccion del antiguo puente de piedra. Destruida la obra romana, los sarracenos la reedificaron sobre sus mismos cimientos[481], y todos los califas de la dinastía de Merwan se esmeraron en su conservacion. Consta de diez y seis arcos, volteados sobre pilares que fortalecen robustos estribos cilíndricos coronados de chapiteles semicónicos. A modo de cabeza de puente se eleva en su estremo opuesto á la ciudad una fortaleza con su barbacana, una verdadera Calahorra, que el vulgo, aficionado á estropearlo todo, llama la Carraola. Forma la planta de este castillo una especie de cruz, cuyos brazos y cabeza son en el alzado tres severos torreones cuadrangulares almenados, que llevan en su interseccion otros dos cuerpos cilíndricos de igual altura[482]. La barbacana es poligonal, con estribos cilíndricos, en dos ángulos. En la defensa de la ciudad contra el rey D. Pedro de Castilla, el puente y su Calahorra fueron teatro de heróicas lides.

Habia brindado aquel malvado rey con el saco de Córdoba al rey moro de Granada si le ayudaba á conquistarla. Accediendo Mohammed, juntáronse los ejércitos de ambos, y el castellano puso cerco á la ciudad con ochenta mil moros de á pié y siete mil de á caballo, y unos siete mil cristianos. Combatiéronla los moros con corage, y al primer asalto entraron por fuerza el castillo de la Calahorra. Pasaron el puente, abrieron seis portillos en la muralla del alcázar viejo, y por ellos penetraron en la ciudad una porcion de compañías ganando rápidamente las calles con banderas desplegadas y estruendo de lelilíes. El Adelantado D. Alonso Fernandez de Córdoba, los maestres de Santiago y Calatrava D. Gonzalo Mesía y D. Pedro Muñiz de Godoy, y otros caballeros, Córdobas y Guzmanes, estaban dentro indignados de ver que los soldados cristianos se dejaban arrollar por la morisma; y mientras se esforzaban inútilmente en contenerlos, las matronas y doncellas mas principales salieron sin tocas por las calles, dando animosos y dolientes gemidos, escitando con varonil ademan á sus hijos y esposos á la pelea. Produjo esto tanto entusiasmo, que los soldados cristianos, convertidos repentinamente en leones, cerraron con tanto brío con aquel enjambre de moros que los tenia acosados, que los obligaron á huir, arrojándose muchos por la muralla al rio para salvar la vida, y abandonando el ejército sitiador el puente y su fortaleza. Los dos coligados repitieron la embestida por separado al siguiente dia, pero en vano; y al cabo volvieron unidos sobre la ciudad, que asediaron con nuevo ardimiento. Los sitiados resolvieron salir á darles batalla, y eligieron por su general al Adelantado, á quien de derecho tocaba serlo. Juntóse un lucido escuadron de caballeros y gente ciudadana, decididos todos á morir ó vencer; pero divulgóse entre el pueblo crédulo la calumnia de que el Adelantado tramaba la entrega de la ciudad al rey de Castilla, y al salir la hueste cordobesa al puente se presentó al caudillo su madre D.ª Aldonza de Haro, y le dijo: mirad, hijo, que me dicen salís á entregar la ciudad á nuestros enemigos; recordad que en vuestro linage no ha habido traidores: no hagais menos que vuestros pasados. Y D. Alonso respondió: Señora, en el campo se verá la verdad[483]. Pasó el escuadron el puente, hizo el Adelantado cortar dos de sus arcos, y dijo á los suyos: ¡pensad que salimos á vencer ó morir! Trabóse la batalla, y puso Dios tal brío en los corazones cordobeses, que sin reparar en la muchedumbre de los contrarios los embistieron de tropel, con tanto denuedo, tanta furia y vocería, tan recio herir y golpear, que al punto se cubrió la llanura de cadáveres de infieles y castellanos mezclados; visto lo cual, las haces enemigas aterradas volvieron las espaldas, y á mas correr se encaminaron á Castro el Rio, dejando ricos de despojos á los cordobeses. Estos regresaron á la ciudad por el vado que hoy llaman del Adelantado.

Dib.º del nat.l y lit.ª por F. J. Parcerisa.
Lit. de J. Donen, Madrid.
IGLESIA DE S.ta MARINA.
(Córdoba.)
Dibº. del nat.l y litª. por F. J. Parcerisa Lit. de J. Donon, Madrid.

IGLESIA DE S.ta MARINA.
(Córdoba.)

Iglesias, conventos y capillas. Cuando S. Fernando conquistó á Córdoba, los cristianos habian ya casi perdido la memoria de las advocaciones de sus basílicas; algunas sin embargo subsistian aunque deterioradas por el largo abandono, y solo de dos ó tres de estas se sabian por tradicion las primitivas dedicaciones[484]. A las otras que hallaron en pié aplicaron advocaciones nuevas[485]. Reparáronse las que amenazaban ruina, las ya asoladas se volvieron á levantar; las torres que los sarracenos habian desmochado quedaron truncadas como glorioso testimonio de las persecuciones sufridas. Catorce parroquias resultaron de esta obra de restauracion tan meritoria: siete en la Ajarquía, siete en la Almedina, uniformes en las líneas generales de sus sencillas y humildes fachaditas, en un todo acomodadas á la forma comun de las primitivas basílicas cristianas del Occidente, en que se dibujan las tres naves, central y laterales, y sus vertientes. En la parte decorativa conservaron las parroquias de la Almedina algunos rasgos muy marcados de su profana destinacion mientras sirvieron de mezquitas; en algunas de la Ajarquía quedó también sellada con reminiscencias del estilo árabe la larga dominacion padecida. Ved esa adusta mole que se levanta en la plazoleta del conde de Priego, de fachada desnuda de ornato y sombría, pero bien razonada y de carácter profundamente cristiano: esa es Sta. Marina, tipo de los primitivos templos ojivales de nuestra nacion. Alienta en ella cierto espíritu de magestad, de fortaleza, de santa sobriedad cristiana que cautiva[486]. Falta en las zonas que dividen sus estribos la simetría, de la cual somos hoy esclavos; pero, ¿qué importa? Este defecto, dado que lo sea, no se advierte siquiera; y en cambio su deliciosa portada de molduras lisas, su claraboya de anillos concéntricos, su puerta del norte con las dos severas agujas que la flanquean, los chapiteles piramidales de su imafronte, constituyen un precioso modelo de arquitectura religiosa, económica en su coste, y popular como adaptable á toda clase de poblaciones desde la poderosa ciudad hasta la humilde aldea. Una fisonomía menos adusta presentaria la fachada de S. Lorenzo antes que levantase en 1555 su rector y obrero Alonso Ruiz la torre que tanto desdice del carácter primitivo de esta basílica[487]. Tenia entonces un gracioso pórtico cuyas arcadas se ven cegadas hoy: era la pared de su imafronte enteramente lisa, y en ella un grande roseton calado, al cual no hay otro comparable en Córdoba, inundaba de luz la nave central. Aumentaban su claridad las ventanas de los muros laterales de la misma nave, de forma estraña y caprichosa, á manera de ajimeces sin parteluz, en que el rosetoncillo del vértice está como sujeto por un cordon ondulante. Casi todas las parroquias de Córdoba presentan en sus portadas antiguas gran semejanza: unas sin embargo son mozárabes, otras son obra posterior á la reconquista. Esto consiste sin duda en que el arte mozárabe que desaparece, coincide con el arte cristiano del norte que viene á ocupar su puesto, en muchos elementos que uno y otro conservan del bizantino; pero por regla general creemos poder establecer, que cuando las archivoltas de muchas molduras ó toros van exornadas de puntas de diamante, de zigzags y dientes de sierra, de pometados y otros objetos de procedencia oriental, descansando además en columnillas de capiteles cúbicos y orlados de funículos, debe sospecharse sea esta decoracion anterior á la época de S. Fernando[488]. Lo que indudablemente pertenece á su tiempo es el embovedado ojival de todas ellas. Pero la deplorable comezon de greco-romanizarlo todo que empezó en el siglo XVII, tiene á estas interesantísimas parroquias completamente estropeadas por dentro. En la mayor parte han desaparecido los nervios de las bóvedas, los capiteles y repisas de donde partian, los nudos y florones en que remataban; las arcadas de las naves llevan encima ridículos cornisamentos, los esbeltos pilares de piedra estan sepultados en la pesada masa de cal y canto que sostiene los modernos arcos de medio punto, y estos arcos suelen estar flanqueados de pilastras romanas de risibles proporciones. Las hermosas claraboyas del siglo XIII, tan primorosamente trabajadas y á tanta costa, se han reputado inútiles, y estan la mayor parte tapiadas por el interior[489]. El siglo XV, aunque menos tolerante de lo que se cree, demostraba mas genio en sus restauraciones. Dígalo la graciosa torre de S. Nicolás de la villa[490], que pareceria un elegante alminar árabe á no haberle añadido el rústico campanario que la afea.

Dib.º del nat.l y lit.ª por F. J. Parcerisa

Lit. Donen, Madrid.
TORRE DE S.n NICOLAS.
(Córdoba.)
Dibº. del nat.l y litª. por F. J. Parcerisa Lit. de J. Donon, Madrid.

TORRE DE S.n NICOLAS.
(Córdoba.)

P. P. del.
ROSETON DE LA IGLESIA DE S.n MIGUEL.
ROSETON DE LA IGLESIA DE S.n MIGUEL. P. P. del.

J. S. del.
CAPITEL ÁRABE BIZANTINO.  ID. AFRICANO.
ID. AFRICANO.
Lab. de G.D. Marimes,Madrid J. S. del.
CAPITEL ÁRABE BIZANTINO. ID. AFRICANO.



Dib.º del nat.l y por F. J. Parcerisa. Lit. de J.
Donen.
IGLESIA DE S.N LORENZO.
(Córdoba.)
Dibº. del nat.l y litª. por F. J. Parcerisa Lit. de J. Donon, Madrid.

IGLESIA DE S.N LORENZO.
(Córdoba.)

La misma dolorosa observacion puede hacerse respecto de la arquitectura de los conventos y capillas. Aquellos soberbios edificios de S. Pablo y S. Francisco, Stos. Acisclo y Victoria, Trinitarios Calzados, S. Agustin, etc.[491], nada apenas conservan ya de su original belleza: la cual se deduce de algunas escasas reliquias que ni el tiempo ni la ignorancia con su accion corrosiva han logrado destruir. Con algun trabajo sin embargo puede el pensamiento entresacar y reunir muy preciosos fragmentos del interesante período del siglo XIII al XVI, y formar con ellos un pequeño museo fantástico de la arquitectura religiosa y monástica en Córdoba. Veamos, lector amigo, de agruparlos brevemente haciendo abstraccion de las edificaciones insignificantes en que estan perdidos. Mira desde la plaza de S. Salvador aquella fachada angular que sobre los modernos tapiales de S. Pablo descuella: las atrevidas restauraciones que desfiguraron el templo por dentro, han respetado ese sencillo paredon del siglo XIII; en su vértice hallarás metida aún en su nicho una linda estatuita de Sto. Domingo, que sin duda por estar muy alta se ha librado de la injuriosa brocha de los embadurnadores. Igual suerte ha tenido la portada del norte de este mismo templo, y lo debe quizás á estar oscurecida en un patinillo del convento. Desde este se registra cómodamente la obra antigua con su alero de canes carcomidos, y el ábside octógono que forma la capilla de Nuestra Señora del Rosario, del siglo XV. Nada mas gracioso que la combinacion de nervios de la bóveda de esta capilla, cuya forma de estrella cuadra tan perfectamente á una de las advocaciones mas ideales que dá á Nuestra Señora su santa letanía. Los padres de Sto. Domingo han sido los principales propagadores de una devocion muy acepta á la Madre virginal de Jesucristo; y la huerta de su casa en Córdoba es todavía célebre por la planta que allí sembraban, de la cual recogian la frutilla redonda llamada lágrimas de Moisés, escelente para cuentas de rosario: hacíanlos en tan gran cantidad, que cargando con ellos un jumentillo, los iban repartiendo por los pueblos. En esta capilla de Nuestra Señora del Rosario está sepultado el maestre de Calatrava y Alcántara D. Martin Lopez de Córdova, criado del rey D. Pedro, que habiéndose hecho fuerte en Carmona contra los parciales de D. Enrique, fué por este mandado decapitar en Sevilla (A-D. 1370). Observando cuidadosamente esta iglesia de S. Pablo, es fácil reconocer que sus tres naves primitivas arrancaban desde el mismo muro del imafronte y formaban cinco grandes arcos ojivos á cada lado. Al fin de la nave de la Epístola hay una puerta con espaciosa escalinata, por donde se baja á la sala de capítulos: contiguo á esta un recinto, que cubre un domo árabe octógono decorado con ocho fajas, paralelas de dos en dos enlazándose bellamente, y al cual se llega por debajo de dos arcos robustos y severos, apuntado el uno, de herradura el otro. ¿Es este edificio anterior á la fundación del convento? Parécelo en efecto; pero ¿cómo comprobarlo no conservándose ninguno de los papeles antiguos de la órden anteriores á la espulsion de los claustrales en el siglo XVI? Sábese por tradicion inmemorial que en este sitio hubo cárcel romana, donde imperando Diocleciano estuvieron encerrados los santos patronos de Córdoba Acisclo y Victoria, primeros mártires de esta ciudad; y en el lugar mismo donde se cree gemian aherrojados, hay en la actualidad una pequeña capilla que mantenian los condes de Oropesa, alguno de los cuales dijo: la estimo mas que todos mis estados juntos. ¿No pudo la cárcel romana ser despues basílica, y esta con la irrupcion sarracena reedificarse para mezquita siglos antes de recuperar la ciudad el santo rey?

Acompáñame ahora, la calle abajo, al destrozado convento de S. Francisco, digno rival un tiempo del de S. Pablo, y como él poderoso antemural del catolicismo por la religiosa órden fecunda en santos que allí se albergaba. Hay en un ángulo de su espacioso claustro bajo, una fuente, cubierta con pequeña cúpula pintada por dentro, que denota grande antigüedad. Los robustos arcos que la sostienen descansan en columnas de fustes y capiteles desiguales, romanos unos, árabes otros. La pintura de la bóveda, casi del todo destruida, representaba la bajada del Espíritu Santo en lenguas de fuego. La pila ochavada de la fuente, y su tazon de forma tosca, sostenido en cuatro fustes cilíndricos sin ninguna moldura, que son evidentemente trozos de columnas antiguas, parecen reliquias de un bautisterio mozárabe.

Pues vamos ahora á contemplar el arte cristiano del siglo XV con toda la gala de sus cenefas caladas, conopios, agujas y frondarios. Al norte de un patio silencioso y tranquilo que por un gracioso vestíbulo de estilo latino abre paso á un claustro de religiosas, hay una pequeña joya de ese tiempo, que es una portada de iglesia, adornada con todos los caprichos que distinguen la decoracion gótica del estilo terciario, y flanqueada de dos elegantes estribos que rematan en agujas prismáticas y pináculos. Lleva sobre el dintel de su puerta un arco apuntado de varias molduras con una ancha y hermosa cenefa de hojas y animales. Sobre el arco apuntado un conopio, y bajo el tope de este encaramados dos gimios, como en actitud de ir á saltar sobre el que los mira. Es la iglesia del convento de Sta. Marta.

Junto al palacio episcopal, frente á una de las puertas de la catedral, hay otra perla de este mismo género arquitectónico. Es la fachada del Hospital de Niños Espósitos. No te la describo porque te la doy dibujada[492], y sales ganancioso. Observa las estátuas que coronan su dintel, su noble actitud, el grandioso estilo de sus ropages; las repisas en que estriban, las caladas umbelas que las cobijan; las cenefas de hojas y animales que contornan sus arcos, que tapizan las agujas de sus estribos.

Dib.ª. del nat.l y lit.ª por F. J. Parcerisa Lit. de.
J. Donen, Madrid.
CLAUSTRO DEL CONVENTO DE FRANCISCANOS.
(Córdoba.)
Dibº. del nat.l y litª. por F. J. Parcerisa Lit. de J. Donon, Madrid.

CLAUSTRO DEL CONVENTO DE FRANCISCANOS.
(Córdoba.)

Dib.º del nat.l y lit.ª por F. J. Parcerisa Lit. de
Donen, Madrid.
HOSPITAL DE ESPÓSITOS.
(Córdoba.)
Dibº. del nat.l y litª. por F. J. Parcerisa Lit. de J. Donon, Madrid.

HOSPITAL DE ESPÓSITOS.
(Córdoba.)

Dib.º del nat.l y lit.ª por F. J. Parcerisa.
Lit. de J. Donen, Madrid
DETALLES DE LA FACHADA DEL HOSPITAL DE ESPÓSITOS.
(Córdoba.)
Dibº. del nat.l y litª. por F. J. Parcerisa Lit. de J. Donon, Madrid.

DETALLES DE LA FACHADA DEL HOSPITAL DE ESPÓSITOS.
(Córdoba.)

Sacado del natural y lit.ª por F. J. Parcerisa.;
Lit. de J. J. Martinez. Madrid.;
DETALLES DEL HOSPITAL DE ESPOSITOS Nº 2.;
(Córdoba.)
Sacado del natural y lit.ª por F. J. Parcerisa. Lit. de J. J. Martinez. Madrid.

DETALLES DEL HOSPITAL DE ESPOSITOS Nº 2.
(Córdoba.)

Mira una feliz combinacion de este estilo con el árabe en la casa llamada de D. Juan Conde, que perteneció á la Hermandad del Sagrario; en cuyo frente verás tres lindos balcones, el del centro en forma de ajimez con garbosos calados de crestería y lambel que le contorna.

Y por último observa otra combinacion no menos pintoresca de estos dos estilos con el greco-romano en los patios interiores del convento de los santos mártires Acisclo y Victoria, reedificado en tiempo de Felipe II. El patio principal que hoy subsiste, aunque ya muy arruinado, se presenta rodeado de ligera arquería latina de dos cuerpos: el inferior con capiteles dóricos, el superior con capiteles árabes y un antepecho corrido y perforado que conserva restos de azulejos de relieve. A la parte del rio hay un pequeño recinto con la bóveda desplomada y el pavimento cubierto de espesa yerba; y en él una preciosa portadita de ladrillo agramilado, obra de albañilería limpia y hermosa en que se ven mezclados con gracia los tres estilos: es un arco de angrelado menudo, corre sobre él una cornisa romana, y está flanqueado de dos delgadas columnillas góticas. Bien conocemos la falsedad de este estilo mixto y los inconvenientes del sistema de decoracion por hiladas horizontales cuando se usa en grande escala en los templos ojivales; pero tiene un no sé qué indefinible que seduce aquella especie de juguete arquitectónico, en aquel solitario recinto arruinado, donde el solemne murmullo del rio quebrado en la presa de Martós parece arrullar el eterno y feliz sueño de los dos hermanos mártires. ¿Será quizá porque el santo espíritu de paz y concordia del cristianismo se halla como simbolizado en la union de todos los estilos pasados? La iglesia de este monasterio debió ser notable por mas de un concepto; hoy solo para angustiar el corazon del que la visita conserva los soberbios escudos de armas de sus patronos en el muro de su presbiterio, y una riquísima techumbre de madera pintada y dorada, de peregrina labor morisca, que tal vez al trazar yo estas líneas será en vano objeto de tu curiosidad ansiosa. Hoy cerrado al culto, profanado, despojado, convertido en almacen de maderas, ofrece dificil paso á la célebre capilla de los mártires patronos de Córdoba este templo, cuyo pavimento cruzaba de rodillas desde la entrada un monarca tan prepotente como Felipe II cuando iba á venerar las santas reliquias de aquellos.

Edificios árabes y moriscos. Cuando el hagib Almanzor usurpando al menguado Hixem II su autoridad gobernaba la monarquía cordobesa, tenia su palacio al norte del alcázar real, y sus jardines se estendian á todo lo que es hoy huerta del rey, entre el arroyo del moro y las heras de la salud. Ese palacio tenia su correspondiente mezquita, y esta mezquita subsiste hoy casi intacta por dentro, aunque convertida en capilla cristiana por el santo rey con la advocacion de S. Bartolomé. Su fachada indica claramente el cambio de destino que en ella se verificó entonces[493]. El interior es una cella ó cámara con bóveda ojival de nervios que arrancan de sendas repisas bizantinas. Su decoracion forma dos zonas: la primera de alicatado dibujando entrelazados florones; la segunda de delicada labor morisca en la disposicion siguiente. Primero tres fajas de inscripciones de caractéres africanos sobre fondo de ataurique; luego otra de recuadros con escudos de armas, sin mas blason que la banda diagonal usada por algunos reyes islamitas; despues un entrepaño menudamente trabajado de laceria formando estrellas y rosetones, en que alternan escudos y estrellas en escaques; encima una hermosa faja de lazo-laberinto, y por remate almenitas dentadas ornamentales. Es capilla de hospital desde que fundó el que lleva su nombre el cardenal D. Fr. Pedro de Salazar, obispo de Córdoba.

VISTA DE CORDOBA.
(desde los Mártires.)
VISTA DE CORDOBA.
(desde los Mártires.)

Dib.º del nat.l y lit.ª por F. J. Parcerisa. Lit. de
J. Donen, Madrid.
CAPILLA DEL HOSPITAL DEL CARDENAL.
(Córdoba.)
Dibº. del nat.l y litª. por F. J. Parcerisa Lit. de J. Donon, Madrid.

CAPILLA DEL HOSPITAL DEL CARDENAL.
(Córdoba.)

Del estilo musulman africano existen, además de esta mezquita, otros restos de bellísimo carácter. Frente á la parroquia de Santiago hay una casa de humilde apariencia: por encima de sus paredes asoma una gallarda palma; dentro resuenan veinte ó treinta voces argentinas que con unísono tonillo recitan oraciones. En todas partes tiene Córdoba reservadas para el amante del arte gratas sensaciones: ahora las encontramos en una escuela de niñas. Abre ese portal y entra: te hallarás desde luego en un espacioso zaguan morisco, al pié de una galana arquería á cuyos tres vanos hace alegre fondo un fresco jardinillo. El arco del centro es de medio punto: su intrados forma un calado primoroso sobre ataurique picado; los laterales son ojivales angrelados, de finísimo ladrillo: todos estan encerrados en recuadros, cuyas fajas perpendiculares descansan en lindas repisas de cuatro cañas horizontales; y sus enjutas descubren, á pesar de las repetidas manos de cal con que han procurado obstruir sus labores, la mas delicada filigrana de vástagos y postas. En el piso superior se conservan otros arcos mas pequeños y una puertecilla de dintel trebolado en muro macizo y denegrido. Lleva este edificio el nombre de casa de las Campanas. Las niñas que allí aprenden la costura y la doctrina cristiana, familiarizadas con la belleza de aquellos arcos y columnas, no comprenderán tu ansiosa curiosidad, y clavarán en tí como admiradas sus negros ojos. No las compadezcas: la rosa silvestre que nace á orilla de un fragante naranjal no sabe tampoco por qué agrada su sencillez y por qué aquellos árboles son tan hermosos; pero esto no impide que ella sea flor, y que otro terreno menos privilegiado solo produzca espinos.

Semejante á la arquería que dejamos descrita es otra que se ve dentro de la casa del conde del Aguila (plaza de Anton Cabrera), con la diferencia de ser cuatro los arcos que la componen, y todos ultra-semicirculares. Descansan en columnas de mármol con capiteles moriscos de selectas formas, todos entre sí diversos. La entrada á este resto de patio islamita es un magnífico arco con un arrabá de florones de tracería rectilínea de estilo africano.

De los novecientos baños públicos que es fama habia en Córdoba en los tiempos de su mayor esplendor, solo dos han quedado, y estos soterrados bajo otros edificios modernos[494]. No creais que vais á poder templar en ellos el ardor que comunica á vuestra sangre el sol de Andalucía. Los baños árabes de Córdoba no tienen pilas, ni albercas, ni agua: figuráos un sótano de bóveda sumamente baja, sostenida en macizas arcadas de herradura, lisas, sin adorno alguno en su paramento, y sobre robustas columnas de jaspe, que contornan un espacio rectangular, cuyo centro ocupaba en otro tiempo un estanque. Lo único que revela su antiguo destino son las lumbreras ó respiraderos que de trecho en trecho atraviesan la bóveda de piedra. Por allí se exhalaban los vapores y los perfumes.

Edificios del Renacimiento. Eran muchos los que dejaron en Córdoba aquellos ilustres caballeros en ella nacidos que militaron bajo los dos primeros monarcas de la casa de Austria en Alemania, en Flandes y en Italia: de quienes se propagó el gusto italiano á otros hombres poderosos. Hoy la mayor parte de estos edificios estan reducidos á sus simples fachadas: el empeño de sus dueños de residir en la corte los ha tenido abandonados, y por otra parte la mala calidad de la piedra franca empleada en su construccion ha contribuido mucho á su pronta ruina. Pero las reliquias de las casas de renacimiento italiano é ítalo-hispano[495] son en Córdoba tan frecuentes como los fragmentos arábigos y moriscos, como los capiteles, fustes y lápidas romanos. En la plazuela llamada de D. Gerónimo Paez está la mas notable de estas grandes casas[496]. Esta tambien la de Villaseca en la calle de Sta. Clara, en cuya portada, de piedra arenisca deleznable, parece ya irónico el sentido del lema non nobis sed saltem posteris que lleva al frente. En su patio hay otra fachada de gusto italiano muy selecto, y en ella una galería en cuya base se lée esta otra sentencia que el tiempo ha hecho igualmente inadecuada en su segunda parte: vivimus sicut altera die morituri, ædificamus quasi semper in hoc sæculo visuri.

En la calle del Sol, entre la parroquia de Santiago y la romántica puerta de Baeza, se conserva el segundo cuerpo de otra bella portada de escuela bramantesca. Es de graciosas proporciones, tiene columnillas estriadas de órden compuesto sobre pedestales adornados con bustos de gran relieve de buena escultura, y lleva en su cornisamento la fecha del 1520, que es la mejor época del arte plateresco.

En la cuesta del Bailío hay una buena muestra de aquella feliz combinacion de estilos gótico é italiano que usaron algunos arquitectos españoles del siglo XVI.—Dos columnas de estrias espirales flanquean una puerta cuadrangular. De sus capiteles arrancan un arco conopial con frondario y tope, y el lambel que le cobija: entre el dintel y el conopio resulta un témpano adornado de grutescos realzados, y entre el conopio y el lambel resultan como dos enjutas que llevan círculos tambien reelevados, destinados al parecer á trabajos de escultura, como bustos ó escudos. De este gracioso estilo del renacimiento hay otros muchos ejemplares en ajimeces esquinados, en galerías, ventanas, aldabones y otros resíduos de construcciones palacianas[497], que vió erigir Córdoba en aquellos dias, para ella mas afortunados, en que los nobles de su tierra no se desdeñaban de habitar una ciudad de provincia despues de haber adquirido fama, riquezas y nuevos blasones en sangrientas campañas de mar y tierra lejos de su patria.

Dib.º del nat.l y lit.ª por F. J. Parcerisa.
Lit. de J. Donen, Madrid.
CASA DE GERÓNIMO PAEZ.
(Córdoba.)
Dibº. del nat.l y litª. por F. J. Parcerisa Lit. de J. Donon, Madrid.

CASA DE GERÓNIMO PAEZ.
(Córdoba.)

barra decorativa

Capítulo quinto.

Medina-Azzahra.

El grande y generoso Abde-r-rahman An-nasír tenia una concubina que dejó al morir una ingente riqueza, y el califa dispuso que se emplease toda en redimir muzlimes cautivos. Cuentan los escritores árabes que en cumplimiento de este mandato se enviaron pesquisidores á los dominios cristianos, y regresaron á Córdoba sin haber encontrado en las cárceles de Afranc[498] un solo islamita. Despues de haber dado gracias An-nasír al Todopoderoso por la señalada merced que esta grata noticia le habia revelado, estaba un dia pensando qué uso haria de aquel tesoro, cuando se le presentó la hermosa Azzahra, á quien amaba con pasion, y le dijo: ¿Por qué no edificas con ese dinero una ciudad para mí, y que lleve mi nombre? Y An-nasír, que aventajaba á sus ilustres predecesores en magnanimidad y gusto artístico, empezó á edificar desde luego á la falda del Monte de la novia (giebal-al-arús), á unas tres millas de distancia al N-O. de Córdoba, el soberbio palacio que, unido luego á la ciudad paulatinamente formada á su alrededor, tomó el nombre de la esclava predilecta y se llamó Medina-Azzahra. Redujéronse al principio las obras á una elegante casa de recreo para la amada del califa, pero este se prendó tanto del nuevo edificio y su deliciosa situacion, que pronto se convirtió en vasto alcázar, donde empezó á residir con su familia y mujeres, colocando en desahogadas dependencias toda su servidumbre y guardia. Era este alcázar de piedra, mármoles y jaspes, de hermosa traza, y por dentro espléndidamente decorado: y la imágen de la esclava lucia esculpida de relieve sobre su puerta principal[499].

Cuentan tambien las historias arábigas que cuando Azzahra se vió por primera vez sentada junto á su glorioso dueño en uno de los salones de aquella especie de palacio encantado, estuvo largo tiempo recostada en un ajimez contemplando embebecida la bella perspectiva que desde allí se ofrecia á su vista; é hiriendo de repente su imaginacion el contraste que presentaba la blancura y alegría de las nuevas construcciones con el sombrío cerro que les servia de fondo, esclamó: ¡Mira, y cuán linda parece esta doncella en brazos de ese etíope! Oido lo cual, mandó al instante An-nasír que se allanase aquella montaña; si bien, convencido luego de que esta empresa era superior á todo humano poder, revocó sus órdenes y dispuso que se talasen sus pinares y encinas y se plantasen en su lugar almendros, higueras y otros árboles de mas grata sombra y mas risueño aspecto.

Encomendó An-nasír los planos del palacio de Azzahra al arquitecto mas afamado que habia á la sazon en Constantinopla, emporio de las artes en aquel tiempo. Distribuyóse la obra en tres partes ó secciones. La que apoyaba en la misma montaña para los alcázares del califa: en los cuales se alojaban además del dueño 6300 mujeres entre concubinas de mayor ó menor categoría, criadas y sirvientes; y donde habia para ellas 300 baños. La inmediata al mediodia para las viviendas de su servidumbre, eunucos y guardias: comprendia 400 casas: los pages y eslavos que mantenia el sultan en ellas eran 3750, los eunucos y guardias 12000, magníficamente vestidos, con espadas y cinturones dorados; á los pages se pasaban diariamente 13000 libras de carne, sin contar las gallinas, perdices y otra volatería, además de muchas especies de pescados. La tercera y mas desviada de la montaña para jardines y huertas que dominaban los alcázares. Ocupáronse en estas grandes obras desde el año 325 de la Egira (A-D. 936-7), por espacio de muchos años, el mismo Abde-r-rahman en persona, su hijo Al-hakem, varios arquitectos, y doce artífices cristianos de grande habilidad; y habia además tres hombres entendidos comisionados para traer mármoles de Africa, que eran Abdullah, el inspector principal de las obras, Hasan Ibn Mohammad, y Alí ben Ja'far, á quienes pagaba An-nasír 10 dinares de oro por cada trozo ó fuste de mármol, grande ó pequeño, puesto en Córdoba. Era tan grande el placer que el califa esperimentaba en dirigir por sí mismo las construcciones, que entregado á su pasion de lleno, llegó en una ocasion á faltar tres viernes consecutivos á la azala de la Aljama, y al presentarse el cuarto viernes, el austero teólogo Mundhir ben Sa'id que predicaba aquel dia, aludió á él en su plática, y delante de todo el gentío le amenazó con el fuego del infierno. Gastábanse en la edificacion diariamente 6000 sillares de todos tamaños y formas, labrados y sin labrar, sin contar el ladrillo y la piedra tosca empleados en los cimientos: conducian los materiales 1400 acémilas, y 400 camellos del sultan, y 1000 mulas de alquiler. Cada tres dias se consumian 10,000 cargas de cal y yeso. Columnas, grandes y pequeñas, de sosten y de peso, entraron mas de 4300, traidas algunas de Roma, 19 de tierra de cristianos, probablemente de Narbona, 140 regaladas por el emperador griego, 1013 de mármol verde y rosa de Cartagena de Africa, Tunez y otras plazas de allende el Estrecho; las demas sacadas de las canteras del Andalús, como las de mármol negro y blanco de Tarragona y Almería, y las de mármol de aguas de Raya. Los operarios y eslavos empleados diariamente eran 10,000; tenian de jornal, unos un adiram y medio, otros dos adirames y un tercio. El gasto hecho en las obras de Azzahra ascendió anualmente á 300,000 dinares durante el reinado de An-nasír, y habiéndose formado el cómputo de su costo total en los veinticinco años trascurridos desde el 325 al 350 en que murió el califa, resultó haber gastado en aquellos palacios siete millones y medio de dinares ó pesantes de oro. Asegúrase que las hojas de sus puertas, de todas dimensiones, eran 15,000, revestidas de hierro bruñido ó cobre dorado y plateado. Sufragóse este inmenso gasto con el tercio de las rentas del imperio destinado á las construcciones y obras públicas[500].

Sería cosa interminable el referir una por una todas las bellezas que el arte y la naturaleza de consuno habian aglomerado en el delicioso recinto de Azzahra: bellezas realzadas con el esplendor de la corte, la muchedumbre de soldados, pages, eunucos y eslavos, de todos paises y religiones, costosamente vestidos de seda y brocado, que circulaban por sus anchas calles, y los grupos de jueces, katibes, teólogos y poetas que gravemente paseaban aquellos suntuosos salones, aquellos espaciosos vestíbulos y antecámaras. Habia allí, además del régio alcázar, viviendas magníficas para hospedar á los altos funcionarios del Estado; allí acueductos que mantenian con el agua de la sierra en perpétuo verdor las huertas y vergeles; allí jardines con toda clase de flores y boscages de azahar, de mirto y de laurel; allí sorprendentes juegos de aguas, y fuentes, estanques y lagunas de todas formas; allí cenadores y deliciosas umbrías en que guarecerse de los ardores del estío. Los historiadores de aquel tiempo, los oradores y poetas, agotaron los raudales de su elocuencia describiendo aquellas maravillas. Cuantos forasteros las visitaban en los dias de Al-hakem, cuando ya la nueva ciudad habia llegado á su apogeo, confesaban no haber otras semejantes en los vastos dominios del Islam. Los viajeros de lejanas tierras, los príncipes, los embajadores, los traficantes, peregrinos, teólogos y poetas mas familiarizados con las construcciones de aquella especie, todos reconocian no haber visto nada comparable en el mundo. Y en verdad que solo el terrado de mármol pulido que se elevaba en su alcázar al mediodia dominando sus jardines, los pabellones de oriente y occidente que sobre él descollaban, el salon dorado del pabellon circular que ocupaba el centro; solo las incomparables labores de su arquitectura, la belleza de sus líneas y proporciones, la riqueza de su ornamentacion interior, ya de mármol luciente, ya de oro deslumbrador con columnas de caprichosos jaspes, con pinturas émulas de los mas floridos vergeles; solo su lago de líquida plata, sus cisternas perpétuamente llenas de purísimas aguas, sus preciosas fuentes ornadas de bajo-relieves; cada uno de estos objetos de por sí hubiera sido suficiente para hacer los palacios de Azzahra superiores á los de Bagdad, Damasco y Constantinopla.

Entre sus maravillas se distinguian el pabellon central, las fuentes y la mezquita. Estaba el mencionado pabellon sostenido en columnas de mármol de aguas, taraceadas de rubíes y perlas, con capiteles de oro: llevaba el nombre de Salon de los Califas (Kasru-l-kholafá), porque en el advenimiento de estos al trono debia hacerse allí su jura y proclamacion. Sus paredes estaban cubiertas de oro y mármoles trasparentes de diversos colores: su techo de lo mismo, y pendia de su centro una perla de incomparable tamaño y valor que entre otros preciosos dones habia regalado á An-nasír el emperador Constantino Porfirogénito. Las tejas de este pabellon eran de plata y oro alternadas. Ocupaba el centro del mágico recinto un estanque de pórfido, lleno de purísimo azogue, que limitaba una arquería poligonal de ocho arcos de herradura de ébano y marfil, incrustados de oro y piedras preciosas, sobre columnas de mármol pulido y cristal. Cuando penetraba el sol por ellos, solo el reflejo que producian sus rayos en el techo y las paredes bastaba para cegar á cualquiera; así, cuando An-nasír queria intimidar á algun personage de cuya lealtad no estaba seguro, con una seña que hiciese á uno de sus eslavos, al punto la masa de azogue empezaba á moverse, y sus vívidos reflejos producian en todo el salon unas luces como relámpagos deslumbradores.

Nada mas imponente y magestuoso que la jura de un califa ó la recepcion de un personage estrangero en el palacio de Azzahra. En ambos actos se retrata fielmente la tradicion oriental derivada desde los prepotentes reyes asirios y babilonios, y considerada por todas las gentes que sucesivamente dominaron en el Asia menor como el tipo y la norma de la humana grandeza. En ambas ceremonias el objeto principal es imponer, ofuscar, amedrentar con el espectáculo de un poder formidable y de una riqueza superior á toda fantasía. Por eso estas solemnidades no se celebraban nunca de improviso. Llégale á un califa la noticia de que un emperador griego, por ejemplo, le manda una embajada[501], y ya empieza á disponer su recibimiento. Al tomar tierra el legado en los dominios de Andalucía, ya los comisionados del califa se apoderan de su persona só pretesto de cuidarle para que nada le falte en su viaje; y le conducen, con poderosa escolta de ginetes armados, á un palacio designado de antemano en las cercanías de la capital, donde dos eunucos cubicularios del rey (funcionarios de elevada categoría en Córdoba lo mismo que en la antigua corte de Assur) encargados del servicio inmediato del sultan y de su harem, se emplean en agasajar al enviado y á su comitiva, vigilando al propio tiempo que nadie, sea noble ó plebeyo, tenga con ellos roce alguno. Para este fin se agregan á los eunucos otros oficiales palatinos y maulís del califa, que con mucha habilidad hacen despejar el campo á los intrusos. Entre tanto el califa se ocupa en el ceremonial de la recepcion, va y viene del palacio antiguo al palacio nuevo, dicta órdenes, y señala por último el dia de la admision del estrangero á su presencia. Ya es el pabellon central[502], ya el pabellon de oriente ó el de occidente, el destinado á la augusta ceremonia. Aparece el salon nueva y lujosamente decorado, y en él un trono, joya resplandeciente de oro y pedrería, que ocupa el sultan. A su derecha é izquierda sus hijos: luego los wazires; luego los gentiles-hombres, los hijos de los wazires, los libertos del califa, y los wakiles ú oficiales de su servidumbre. El patio del alcázar está cubierto de ricas alfombras y vistosos guadamecíes; velas, doseles y cortinages de lustrosa seda sombrean las puertas y arcadas reflejando en ellas los vivos colores de sus pájaros y ramajes. Figuráos la recepcion del enviado de Constantino al califa An-nasír. Al verse introducido el griego en el magnífico salon, no acierta á disimular su asombro: los de su comitiva le siguen deslumbrados y confusos al acercarse al poderoso sultan que llena con su noble magestad el trono. Pone en manos de este el enviado sus credenciales[503], y en seguida el faquíh Mohammed ben Abdi-l-barr, elegido por Al-hakem al efecto como orador eminente por su ingenio y elocuencia, empieza una pomposa arenga que tiene preparada sobre el poderío y esplendor del imperio de An-nasír y la consolidacion del califado cordobés bajo su reinado. Pero la imponente ceremonia, el silencio de la ilustre asamblea, la deslumbradora luz que rodea al sultan, le turban en medio de su discurso; desfallece su voz, anúdase su lengua, y cae en tierra sin sentido. Un forastero consumado en la retórica y reputado en Iraca como príncipe de la oratoria, Abú Alí Alkalí, huésped á la sazon del califa, se encarga de sustituir á Mohammed: dirige á los circustantes varias frases elocuentes; pero faltándole luego las palabras, enmudece, y se retira. Mundhir Ibn Saíd que advierte la inoportuna y brusca conclusion, toma el discurso donde lo ha dejado Abú Alí, é improvisa una peroracion brillante en prosa y verso con que deja á todos atónitos y complacidos, y el califa con agradable gesto le demuestra su satisfaccion, reservándose premiarle despues... Esta ceremonia, cuyo final dejan indeterminado los escritores árabes, quedará tambien para nosotros entre nubes; y ahora haremos presenciar al lector en este mismo pabellon, trasformado para la ceremonia de la jura de Al-hakem, otra escena que podria figurar dignamente entre los mágicos cuadros de las mil y una noches. Los ocho hermanos del nuevo califa, conducidos á Azzahra entre destacamentos de tropa armada, medio de grado y medio por fuerza, ocupan los dos pabellones de oriente y occidente; otros salones del palacio estan llenos de nobles, empleados, y cortesanos que esperan con impaciencia el momento de dar el parabien al digno soberano. Al-hakem está sentado en el trono del pabellon dorado: empieza la ceremonia, y entran los primeros sus hermanos, los cuales se acercan á él, leen la fórmula de la inauguracion, y prestan el juramento de costumbre con todas sus sanciones y restricciones. Siguen por su turno los wazires, sus hijos y hermanos, los guardias del rey y la servidumbre de palacio. Hecho esto, los hermanos del califa, los wazires y los nobles, toman asiento á ambos lados del trono, escepto Isa ben Foteys que queda en pié á un lado para juramentar á todos los que van entrando. En el salón dorado estan además los eunucos del sultan en filas á derecha é izquierda de su señor, todos vestidos de túnicas blancas y armados con espadas; inmediatos á ellos, y formando dos filas sobre el terrado, los eunucos sirvientes, cubiertos de malla y empuñando lucientes espadas. Los eunucos de guardia, con espadas también, y los eunucos esclavones, vestidos de blanco é igualmente armados, se estienden á lo largo del parapeto. A estos siguen otros esclavones de inferior categoría, y vienen luego los arqueros de la guardia con sus arcos y aljabas. Próximos á los eunucos esclavones estan los esclavos negros, lujosamente uniformados y cubiertos de armas resplandecientes: llevan túnicas blancas, yelmos sicilianos, y al brazo escudos de varios colores, y armas cuajadas de oro. En la puerta de As-suddah estan los alcaides del alcázar, y junto á ella la guardia de á caballo de eslavos negros, que se estiende hasta la puerta de las cúpulas (babu-l-akabá). Continúa la formacion la guardia de maulís ó libertos del califa, tambien de caballería, y el resto del ejército y de los eslavos y arqueros la prolongan sin interrupcion hasta la puerta de la ciudad que sale al campo. Terminada la ceremonia, el pueblo se retira, y los hermanos del califa, los wazires y los otros dignatarios permanecen en el palacio, para conducir á Córdoba el cadáver de An-nasír y darle sepultura en el cementerio de los califas[504].

Pues ya que insensiblemente nos hemos convertido en narradores de las ostentosas ceremonias de la corte de los Umeyas en Azzahra, justo será antes de pasar á describir las demas bellezas artísticas de este palacio, evocar aquella magestuosa escena de la recepcion del rey D. Ordoño IV de Galicia, cuando fué á solicitar del mismo califa Al-hakem auxilio y proteccion para recuperar el trono de que le habia despojado su primo D. Sancho con la poderosa intervencion de Abde-r-rahman An-nasír. Despues de alojado espléndidamente el augusto huésped en el palacio llamado de la Noria (An-ná'urah) en Córdoba, y fijado el dia del recibimiento, previas las órdenes competentes para que todas las tropas estuviesen armadas, la guardia real de esclavones lujosamente uniformada, y los Ulemas, teólogos, katibes y poetas, invitados para asistir á la regia audiencia y amenizar la solemnidad con sus arengas é improvisaciones, apareció Al-hakem sentado en su trono en el pabellon oriental del terrado, con sus hermanos y parientes á uno y otro lado, y con los wazires, cadíes, magistrados, teólogos y principales funcionarios, todos sentados por su órden segun su respectiva gerarquía. Ordoño, á quien acompañaban los principales personages cristianos de Córdoba, entre ellos el juez de los mozárabes Walid Ben Khayrun y Obeydullah, hijo de Kasím Al-matrán (obispo) de Toledo[505], iba vestido con túnica de brocado blanco y albornoz de la misma estofa, y cubria su cabeza un birrete á la usanza cristiana ornado de costosos joyeles. Llegó á caballo con su comitiva hasta la puerta esterior del palacio de Azzahra, llamada de las cúpulas, donde se apearon los que habian salido á recibirle; luego en otra puerta interior (babu-s-suddah) y su introductor Ibn Talmis recibieron órden de echar pié á tierra. Desmontó á la puerta del pabellon meridional en el edificio llamado daru-l-jandal, sobre una plataforma, donde tomó asiento con su séquito esperando se le mandase entrar. Salió un palaciego con el deseado aviso, y Ordoño subió al terrado de los pabellones, y al llegar al de oriente donde el califa le aguardaba, dejó su albornoz, se descubrió la cabeza, y en actitud de admiracion y respeto permaneció un rato como absorto contemplando la magestad y grandeza que tenia delante. Acercóse á la entrada con paso mesurado por entre las hileras de soldados formados en el terrado, y al cruzar el umbral se postró en el pavimento con humildad profunda; luego dió algunos pasos más, volvió á postrarse, y llegando por último al trono alargó su mano con timidez, y Al-hakem le dió la suya. Retrocediendo despues sin volver al califa la espalda, ocupó un asiento cubierto con paño de oro que le estaba preparado, y en seguida fueron admitidos á besar la mano al soberano islamita los condes y demas caballeros de su cortejo, los cuales se acercaron al trono repitiendo sus mismas postraciones, y luego se sentaron en fila dejando en el centro á su rey. El juez de los mozárabes que servia de intérprete á Ordoño, cuando Al-hakem rompió el silencio dando al destronado la bien venida, espuso en términos comedidos y con reiteradas protestas de sumision y obediencia, el objeto de la venida del príncipe cristiano: solicitó para él y su pueblo la poderosa proteccion del califa, obligándose á reconocerle siempre como su señor feudal si le ayudaba á recuperar el trono, y finalmente para encarecer lo mucho que confiaba en su poder y justicia, rogóle que constituido en árbitro de las diferencias de entrambos primos, decidiese á cuál de los dos correspondia en buena ley la corona. Oyó el califa la peticion con agrado, ya porque conviniese á su política favorecer á Ordoño, ya porque hubiese este acertado á defender su causa con habilidad, y accedió á ella esponiendo como máxima incontrovertible de derecho internacional, que el haber sido bien recibido D. Sancho por su padre An-nasír no era una razon para que él desairase á D. Ordoño. El desposeido príncipe reiteró lleno de agradecimiento sus humildes postraciones, ensalzando con esclamaciones de entusiasmo la generosidad y gloria de su protector. Retiróse en seguida, y los eunucos le condujeron al pabellon occidental, ante cuyo trono desierto volvió á prosternarse con gran respeto, no acertando á espresar su lengua el deleite que en su semblante atónito se pintaba cada vez que fijaba los ojos en aquella riqueza sin igual, en aquellas incomparables obras del arte y de la naturaleza. Del pabellon occidental le llevaron á otra pieza que caía al norte del mismo, donde le hicieron sentar en un almohadon de brocado de oro. Presentósele allí el hagib[506] Ja'far Al-mus'-hafí, y despues de conversar con él algunos instantes confirmándole en la gracia y buena amistad de su señor, hizo le trajesen una vestidura de honor que el califa le regalaba. Consistia en una túnica de tisú de oro y un albornoz de lo mismo, con un cinturon de oro purísimo sembrado de perlas y rubíes, tan gruesos y bellos que no sabia el rústico cristiano quitar de él los ojos mientras el oficioso hagib le endosaba la rica vestidura. Los condes y caballeros de su comitiva recibieron tambien trages proporcionados á su calidad, y todos juntos salieron despues del alcázar con grande humildad y reconocimiento. Al pié del pabellon central donde se habia apeado le esperaba una nueva sorpresa: habia mandado el sultan que le dispusieran un caballo de regalo lujosamente enjaezado con silla y brida cuajadas de oro bruñido. Montó en él bendiciendo su buena estrella, y se alejó con los suyos del encantado recinto de Azzahra para ir á descansar de aquellas fuertes emociones en el palacio donde estaba hospedado.

Hemos dicho que las fuentes eran uno de los principales ornatos de aquellos alcázares. Ben Hayyán asegura que nada habia comparable á las dos que trajo de Asia para An-nasír Ahmed el griego, tanto por su esquisito trabajo como por el valor intrínseco de su materia. Eran desiguales en forma y tamaño: la mayor, de bronce dorado, con bajo-relieves de figuras humanas bellamente esculpidas, y la condujeron desde Constantinopla á Córdoba el referido Ahmed y el obispo Rabí. La menor era de mármol verde, y fué adquirida en Siria, y se consideró por todos los inteligentes como un verdadero prodigio del arte. En cuanto llegó á poder del califa, dispuso éste que fuese colocada en la alcoba ó dormitorio del pabellon oriental, conocido por el salon de la familiaridad y del solaz, y mandó agregar á su ornato doce figuras de oro bermejo incrustadas de perlas y esquisita pedrería, labradas en los talleres reales de Córdoba, representando diversos animales. Pusieron en ella un leon entre un antélope y un cocodrilo; al lado opuesto un águila y un dragon, y entre ambos grupos una paloma, un halcon, un pavo real, una gallina, un gallo, un milano y un buitre. Todos estos animales eran huecos y vertian en el tazon de la fuente chorros de agua cristalina.

La mezquita de Azzahra, templo de estupenda estructura, preciosamente labrado en todas sus partes, de noventa y siete codos de largo de la algufia á la quiblah sin contar el Mihrab, y de sesenta y uno de ancho, fué obra de cuarenta y ocho dias, habiendo An-nasír empleado en ella diariamente mil obreros entendidos, de los cuales trescientos eran albañiles, doscientos carpinteros, y los demas canteros, escultores, doradores, esmaltadores, mosaicistas, pintores, estucadores, tallistas, herreros, broncistas, etc. Contenia cinco naves, la central de trece codos de anchura, las demas de doce, y un patio de cuarenta y tres codos de la algufia á la quiblah, enlosado de mármol rojo, en cuyo centro habia una fuente que vertia sin cesar un agua purísima. Tenia esta mezquita una zoma ó alminar cuadrado de cincuenta codos de altura. En la Maksurah, de construccion y ornamentacion maravillosas, habia un púlpito ó mimbar de sorprendente riqueza.

Poco duraron los palacios de Azzahra. Desde el año 961 de J. C., en que murió su glorioso fundador dejándolos terminados[507], hasta la triste época en que comenzó con la estincion de los Amiritas la guerra civil en el Califado cordobés entre los bereberes y andaluces, entre Suleyman y Almuhdi, no trascurrió medio siglo. Los dos rivales, alternativamente favorecidos por el conde de Castilla Sancho Garcés, talaron uno tras otro el campo y la sierra cuando se vieron vencidos y precisados á dejar la ciudad; pero los bereberes de Suleyman fueron mas feroces que sus contrarios, redujeron á cenizas la mágica poblacion de Azzahira, pocos años antes delicia del hagib Almanzor, y entrando en Azzahra (año 1010) la saquearon despues de haber pasado á cuchillo á sus moradores. Permanecieron en ella algunos meses, y luego la evacuaron para estender sus terribles correrías por toda la tierra circunvecina, donde talaron las mieses, incendiaron las granjas, y no quedó un solo caserío en que no estampasen su destructora huella. En aquella gran devastacion los habitantes de la campiña se refugiaron en Córdoba con lo que pudieron salvar de sus haciendas, huyendo la furia de aquel animado torbellino, y hubo de resultas hambre en la ciudad. Y cuentan las historias árabes que habiendo cundido la asoladora plaga por todo el norte del Andalús, solo Toledo y Medinaceli se libraron de la ruina, quedando tan despoblada la provincia, que podia un viajero andar por ella á caballo dos meses seguidos sin encontrar alma viviente. Aunque maltratada por tan deshecha tormenta, debió quedar en pié al abrigo de la Sierra la preciosa flor[508] plantada por An-nasír para otra flor la mas querida de su harem.

Un rey cristiano[509] prendado de ella, confiado en el prestigio de sus victorias y en el abatimiento del Islam, la pidió para su esposa á su nuevo dueño el régulo de Sevilla. Dos cosas demandó el conquistador castellano á Almu'tamed: que le diese á Medina-Azzahra para residencia de D.ª Constanza que iba en su compañía, y que le dejase libre una parte de la mezquita mayor para trasladarse á ella la reina diariamente y dar allí á luz el fruto que llevaba en sus entrañas[510]. Indignado el sarraceno dió la muerte por su propia mano al judío portador de tan insolente mensaje, y no contribuyó poco este atentado á que D. Alfonso, ardiendo en sed de venganza, estrechase á Almu'tamed con tan poderosos medios, que le hiciese preferir el entregarse con el ruinoso Estado andaluz en brazos de los almoravides.

¿Quién cuidaba entre tanto de aquella perla del arte arábigo? Probablemente estarian desiertos y abandonados aquellos hermosos palacios, y sus antes deliciosos jardines yermos y convertidos en madriguera de alimañas. ¡Los bereberes habrian despojado sus lujosos pabellones, robado todas sus riquezas, destrozado aquel artificioso estanque de líquido mineral, aquellos tronos de oro y pedrería, aquellas fuentes de bronces y mármoles, aquellos baños voluptuosos, aquellos artesonados de oro, mármoles trasparentes y maderas incorruptibles, aquellas arcadas de ébano y marfil, aquellas costosas alfombras, aquellos doseles de brocado!... Muchos cercos sufrió la antigua sede del Califado andaluz desde D. Alfonso VI hasta S. Fernando en poco mas de cien años, y en este tiempo no hallamos que hicieran aprecio alguno de la desolada y desierta Medina-Azzahra ni los almoravides, ni los almohades sus impetuosos sucesores. Cuando el santo rey tomó á Córdoba no quedaban ya en pié mas que los muros de un alcázar que tantos tesoros habia contenido, teatro de los mas gloriosos acontecimientos del Califado de Occidente y testigo de una prosperidad que habia de parecer fabulosa narrada por la historia. El tiempo habia hecho su oficio: todas las construcciones poco sólidas se habian reducido á polvo: la tierra, tan afanosa por tragar los monumentos de los hombres que le arrancan los tesoros de sus entrañas, habia recobrado lo suyo, y con su incesante é imperceptible crecimiento cubierto ya las marmóreas escalinatas rotas, los pavimentos de piedra desnivelados, los acueductos, algibes, estanques, fuentes, baños: todo lo somero y profundo, sobre lo cual tendió largos años su capa de nieves y barrizales el aterido invierno, su verde manto de grama la alegre primavera, sus tejidos de cardos, espinos y punzante maleza el abrasado verano, y el otoño su seca y amarilla vestidura de despojos. Lo alto y fuerte perdió paulatinamente su delicado y deleznable revestido de estucos pintados y dorados, sus armaduras de alerce: y quedó desnudo. Los reyes moros de Sevilla se llevarian á la nueva corte algunas hermosas columnas y otros objetos útiles para sus construcciones; pero muchos materiales preciosos quedaban todavía en aquello que solo parecia un castillo arruinado en los dias de la reconquista.

Ya en este tiempo habia perdido el vulgo la memoria del orígen de Azzahra, y sus diseminados vestigios habian hecho nacer entre los cristianos vencedores una falsa tradicion respecto del antiguo asiento de Córdoba, de que luego participaron los historiadores de mejor criterio. Y al hacer el santo rey el repartimiento de Córdoba y su tierra entre los ricos-hombres, caballeros y órdenes religiosas que habian asistido á la conquista, ya la ciudad de la esclava querida de An-nasír habia perdido su nombre por el impropio de Córdoba la vieja[511].

Con este perseveró desde entonces, y el nuevo nombre contribuyó á que se desvaneciese del todo en los siglos sucesivos el recuerdo de una poblacion tan novelesca por su orígen, tan interesante por las escenas en ella ocurridas, tan maravillosa en todo: que habia rivalizado con las mas famosas ciudades orientales y sostenido dignamente el paralelo con los soberbios palacios de los reyes Ninivitas, Achemenios, Sassanidas y Abassidas.

De Córdoba la vieja se hace mencion en algunos documentos de la edad media: ¡de Medina-Azzahra nunca! Aquel asolado campo con su ruinoso castillo pasa, no sabemos cuándo, del patrimonio real al patrimonio municipal: llega el año 1405, viene á Córdoba un venerable religioso gerónimo[512] á solicitar la fundacion de un convento de ermitaños en la sierra, y la noble viuda de D. Diego Fernandez de Córdoba, alcaide de los donceles, le cede para este piadoso objeto una huerta que poseía contigua á Córdoba la vieja: la ciudad le dá para el mismo fin en 1408 las ruinas del castillo de Córdoba la vieja, ya propiedad suya. El arruinado castillo viene entonces al suelo: los sillares de sus muros son acarreados al cerro inmediato donde los padres gerónimos edifican su convento; los tableros esculpidos de barro y piedra que los revestían caen despezados entre la yerba, donde permanecerán acompañando al sueño secular de las otras ruinas anteriores ya sepultadas en aquel campo de soledad, hasta que un anticuario los remueva y los desdeñe desconociendo su procedencia[513], y venga luego otro[514] y los admire como lo que realmente son, aunque sin saber tampoco el nombre que llevaron. De los despojos aparentes apenas queda alguno útil que los buenos frailes no se lleven á su monasterio: cargan con cuantos capiteles y fustes de mármol yacen sobre aquella vasta sepultura de grandezas; llévanse cuanta piedra les parece acomodada á la construccion de su templo, de su claustro, de su capítulo, trazados segun el florido sistema ojival terciario; llévanse por fin hasta un cervatillo y una cierva de bronce[515] hueco hallados entre los escombros, que quizás en otro tiempo habian deleitado en alguna fuente del palacio de Azzahra los ojos de su mimosa dueña, y acomodan uno de ellos á un pilon del claustro del santo cenobio. A todo esto, nadie sabia ya que hubiese existido Medina-Azzahra. Las ruinas de Córdoba la vieja pasaban por reliquias anteriores á la dominacion agarena, y deshecho el castillo, no quedó al parecer piedra sobre piedra en aquella vasta, ondulosa y verde planicie, ya convertida en dehesa.

El erudito cronista de Felipe II que vivió algunos años en el monasterio de S. Gerónimo de la Sierra, obcecado con el error vulgar no vió lo que saltaba á la vista, esto es, que los fragmentos de arquitectura decorativa de mármol, piedra y barro, que se hallaban diseminados por la dehesa de Córdoba la vieja, eran de la misma casta que la ornamentacion del Mihrab de la mezquita mayor[516]. Otro anticuario mas perspicaz en estas materias trató de corregir la falsa opinion, y este convenció á otros de que aquellos despojos pertenecian á alguna suntuosa fábrica de sarracenos[517]. Nada se adelantó sin embargo; las antigüedades árabes tenian poco que esperar de la tendencia que tomaban á la sazon los estudios arqueológicos.

Fué preciso que pasaran otros dos siglos y que un orientalista dotado de ingenio y gracia para cautivar contando las cosas de la España árabe[518] en una época en que la ilustracion se ceñia casi esclusivamente á lo latino y griego, volviese á pronunciar el nombre de Medina-Azzahra para que se despertase entre los literatos y anticuarios, con la aficion perdida á las historias de nuestros antiguos dominadores, el deseo vehemente de investigar el asiento de aquella célebre poblacion. Pero como aquel mismo arabista daba acerca de su situacion noticias equivocadas[519], se buscó en vano por muchos años lo que tanto se deseaba hallar.

¿Quién habia de imaginarse que las reliquias de los palacios mas sorprendentes que vió la España musulmana estaban sepultadas en una dehesa de un mayorazgo[520], de la cual ya nadie se acordaba ni aun para esclarecer la duda que habian dejado en pié los anticuarios de los siglos XVI y XVII? Y sin embargo, la compilacion de historias de la España árabe hecha por Ahmed Al-Makkarí, vulgarizada en Europa desde el año 1840 por la laboriosidad de otro arabista distinguido[521], nos estaba revelando lo que en aquel abandonado campo debiamos prometernos.

Dib. del nat.l y lit.ª por F. Parcerisa
Lit. de J.J. Martinez, Madrid.
FRAGMENTOS DE LOS PALACIOS DE MEDINA-AZZAHRA.
Dib. del nat.l y lit.ª por F. Parcerisa Lit. de J.J. Martinez, Madrid.

FRAGMENTOS DE LOS PALACIOS DE MEDINA-AZZAHRA.

No está, no, la triste y dolorosa ruina de la mas bella creacion monumental arábigo-bizantina donde la buscan todavía muchos apasionados de aquel arte. No busqueis el grandioso rastro de Azzahra ni en las orillas del Guadalquivir, ni en lo recóndito de la Sierra. Hélo ahí, á tres millas de Córdoba entre norte y poniente, donde todos los escritores árabes de mas autoridad situaron siempre la hermosa joya. Su dicho concorde es mi testimonio, y en prueba de que el arte lo confirma, ahí teneis esos fragmentos por mi propia mano recogidos entre la maleza y cardizales que cubren la llamada suerte de S. Gerónimo en la dehesa de Córdoba la vieja. Contempladlos, y os convencereis de que los edificios de que formaron parte solo han podido pertenecer á la época mas floreciente y á la poblacion mas famosa del Califado andaluz. Ahí teneis todos los elementos de la ornamentacion mas bella y graciosa que creó el Oriente y regularizó el genio estético de los pobladores del Archipiélago: las postas que figuran las olas de la mar; los meandros ó grecas de listones que se interrumpen y cortan en ángulos rectos; los enlaces ó entrelazos, combinacion preciosa de líneas rectas y curvas que imita las trenzas del cabello; las palmetas, en que con la mayor donosura alternan hojas agudas y hojas obtusas, unas replegadas hácia dentro, otras hácia fuera, imitacion feliz del loto asirio y de las palmas fenicia y tebana; el acanto silvestre tan parecido á la hoja del punzante cardo; el tulipan y la flor de loto, graciosa importacion del arte de Persépolis, al cual fué comunicada por la arquitectura de Nínive y Babilonia, etc.[522]. Y advertid que además de estos pedazos de piedra y barro tan lindamente trabajados, quedan en Córdoba la vieja otros de mármol labrados con el mismo esquisito gusto, algunos de fondo de color, sobre el cual destacan esos tan relevados y bien recortados adornos; y en la huerta de S. Gerónimo no pocos capiteles que de allí se sacaron, los cuales podrian sostener la competencia con los capiteles corintios del famoso monumento de Lisícrates de Atenas[523].

La dehesa de Córdoba la vieja, que á los ojos del vulgo no es mas que un llano descampado con leves sinuosidades hácia la parte de la Sierra en cuya falda apoya, y donde sobre la viciosa vegetacion espontánea propia de aquel delicioso clima descuellan de trecho en trecho algunas encinas é higueras silvestres, se descubre inmediatamente á los ojos del observador atento como vasta ruina de alguna construccion importante, y á los del arqueólogo como precioso depósito de una de las páginas mas interesantes del libro monumental: página lastimosamente despedazada, mas no del todo perdida. Merced á nuestra natural incuria, por regla general deplorable, ahora por escepcion benéfica, consérvanse hoy estas ruinas próximamente en el estado mismo en que se hallaban á fines del siglo XVI y principios del XVII, cuando nos las describian Ambrosio de Morales y el licenciado Diaz de Rivas sin saber de cuán noble cadáver hacian la filiacion[524]. Algunos preciosos vestigios que ellos vieron han desaparecido: quizás han sido cubiertos por la lenta crecida del terreno. Lo que hoy allí principalmente se advierte es una elevacion de forma cuadrangular y superficie llana de unos ciento setenta pasos de longitud, con declives por los tres lados de oriente, poniente y mediodia, y por el norte unida á la Sierra con varios montículos de figura irregular, no de formacion natural, sino de escombros en que facilmente se hallan trozos de piedras bellamente labradas, lastras de mármol rotas y otros objetos, con solo remover la masa pulverulenta que cubre la yerba. En el centro mismo del límite meridional de la alta planicie que domina la llanura, hay un hueco cubierto de espesa maleza, como indicio de haber existido allí alguna puerta, y desde este punto de la esplanada parte recta al mediodia por lo bajo de la campiña una especie de calzada que finaliza en un objeto informe de fábrica de argamasa y mampostería, pié tal vez de algun robusto torreon de entrada. ¿Sería este por ventura vestigio de aquella segunda puerta de entrada al alcázar árabe, por donde pasaron á caballo D. Ordoño y su introductor Ibn Talmís? ¿Sería aquella otra brecha que hemos visto en el declive meridional de la plaza rectangular la subida á la plataforma donde se apeó el rey destronado? ¿Ó sería mas bien esta misma plaza aquel famoso terrado de los tres pabellones donde tantas cosas memorables acaecieron?... Ultimamente, aquella singular planicie, obra evidente de los hombres y no de la naturaleza, ¿es un mero terraplen, ó es el resultado de un hundimiento que conserve quizá intacta la planta baja de alguna construccion palaciana? ¿Quién podrá hoy saberlo? No faltan allí en verdad reliquias de grandes construcciones, y cuando otra cosa no hubiera, bastaria un soberbio ramal de acueducto que sale del costado de oriente de la indicada plaza en direccion S-E., todo revestido interiormente de durísima costra de betun liso y bruñido como escayola, para persuadirse de la gran probabilidad de poder exhumar en este parage muchos tesoros del arte.

Con mala estrella por cierto hemos comenzado nosotros esta obra[525]. Esperemos sin embargo proseguirla con mejor fortuna; y entonces, si la elegante y erudita pluma que hasta ahora con plausible modestia no hizo mas que ensayarse en el bosquejo de la historia de la arquitectura en España, emprende la árdua tarea que al parecer le está reservada de analizar detenidamente todos sus períodos y desentrañar sus singularísimos é interesantes sincronismos, quizás donde hoy deja lastimada un deplorable vacío[526], tendrá ocasion de trazar con su acostumbrada animacion y elocuencia la descripcion fiel de muchas bellezas artísticas que creía perdidas.

barra decorativa

Capítulo sesto y último.

La Sierra y la Campiña.

Si hubiéramos de detenernos en describir todo lo bueno que la provincia de Córdoba debe á la naturaleza, sería interminable nuestra tarea, pues siendo la Andalucía el vergel de España, Córdoba es, ó debiera ser al menos, el vergel de Andalucía. Quede reservado á los naturalistas el encarecer la fertilidad de su suelo[527], la abundancia de sus minerales, la hermosura de sus ganados, rivalizando en encomios con Plinio y Estrabon acerca de la escelencia de sus frutos; y salven ellos como puedan el compromiso de dejar airoso al poeta Estacio[528] que tanto elogia la bondad de sus aceites. Nosotros somos los panegiristas del arte en primer lugar, y secundariamente de la naturaleza en sus bellas manifestaciones.

Los campos de Córdoba y su tierra estan repartidos en Sierra y Campiña, teniendo por término divisorio entre unos y otros el rio Guadalquivir, que atraviesa diagonalmente la provincia de N-E. á S-O., bajando por cerca de Aldea del Rio hácia Palma, donde se le incorpora el Genil. La Sierra y sus poblaciones quedan á la derecha de su corriente, á la izquierda los pueblos de la Campiña. Parte á esta por mitad el rio Guadajoz, llamado de los antiguos rio Salado (flumen salsum), que atravesando en su nacimiento por la antigua encomienda del castillo de Víboras de la órden de Calatrava, sale á lo llano poco mas adelante, recibe otras aguas al pié del castillo de Locubin, baña en su curso á Castro el Rio fertilizando su deliciosa ribera de huertas por medio de azudas que mueve su misma corriente, acércase á las villas de Espejo y Santa Cruz, y sigue por Torres-Cabrera su direccion al Guadalquivir, con el cual junta murmullos una legua mas abajo de Córdoba. Fertilizaba antiguamente este rio cerca de Castro los términos de Ategua, pueblo famoso por el largo cerco que sostuvo en la guerra de César con los hijos de Pompeyo. El Guadajoz es muy celebrado en aquellas guerras civiles por los autores que de ellas escribieron.

La parte de la Sierra está naturalmente contornada con una doble línea de aguas corrientes y cordilleras, que forman una especie de pentágono sobre la márgen derecha del Guadalquivir. Un largo estribo de Sierra-Morena que de los confines de la provincia de Ciudad Real baja hasta este rio, llevando como tributo al mismo por un lado las aguas del arroyo de las Yeguas, por otro las del revuelto y precipitado Jándula, es su límite oriental. Forma el septentrional el Guadalmez, que baja desde los cerros de Fuencaliente hasta entrar en el rio Zuja faldeando uno de los principales ramales de la gran cordillera; y el occidental el mismo Zuja y el Rembezar, que naciendo en las dos vertientes opuestas de una montaña, corren el uno al norte y el otro al mediodia, aquel al Guadiana, este al Guadalquivir. Dentro de este vasto territorio, todo ceñido de altas cumbres sin mas salida que la llanura por donde el Guadalmez y el Zuja pasan juntos á regar campos de Estremadura, se dibujan otras largas cadenas de montañas: una de las cuales lo atraviesa todo de levante á poniente, de Fuencaliente á Fuenteovejuna, y es la cordillera principal de los Montes Marianos, que va vertiendo á uno y otro lado las aguas de sus veneros, unas al Guadalquivir, otras al Guadalmez y al Zuja, contornando elevadas barreras. De aquellos montes se originan el Guadamellato al pié del alto cerro de Nuestra Señora de Luna, el Guadalbarbo que recibe las que nacen debajo del castillo de Cuzna, el Guadiato que vuelca límpidas ondas de varios arroyuelos del término de Belmez; de estas barreras secundarias resultan otros riachuelos de menos caudal. Por último, de la gran cadena con que Sierra-Morena divide por medio el pentágono de la parte montuosa de Córdoba, se desprenden y caen al mediodia como hileras de gigantes curiosos de mirarse en la corriente del sacro Bétis, tres principales ramales; dos de ellos mueren en la ribera, y el tercero en las altas llanuras donde descuellan las ruinas del castillo de Albacar.

¡Cuántos recuerdos encierran estas ásperas cordilleras! Una de ellas, la mas oriental, lleva en su mas avanzado estribo el famoso convento de S. Francisco del Monte, que el caballero cordobés D. Martin Fernandez de Andújar fundó á peticion de D. Enrique III y de la reina D.ª Catalina cabe las ruinas del antiguo cenobio Armilatense. En él se veneraba la piadosa imágen de Nuestra Señora de la Esperanza, hallada segun tradicion entre aquellos vestigios; y en sus claustros vivió retirado el rey D. Felipe IV durante las carnestolendas del año 1624. Otra, que es la mas próxima á Córdoba, ostenta en sus alcores el grandioso y severo monasterio de S. Gerónimo, construido con los despojos de la preciosa Medina-Azzahra; en su cerro de Nuestra Señora de Belen una congregacion de rígidos anacoretas, cuyas humildes ermitas son para Andalucía lo que Monserrat para Cataluña, lo que la Tebaida para el Egipto, lo que el monte Athos para la Rumelia; y al pié de ese cerro la famosa Ruzafa, que despues de haber sido una de las mas deleitosas quintas de los amires, fué patrimonio de la célebre D.ª Leonor de Guzman, y despues convento de padres Franciscanos; y hoy... ¡hoy desierta y miserable fonda! Otra, que espira dentro de una hoz formada en el llano de Hernan-Paez donde traza el Guadiato su última revuelta antes de salir brioso á la Campiña, se ilustra con el célebre santuario de Nuestra Señora de Villaviciosa y con el valle donde fueron bárbaramente inmolados los siete infantes de Lara. Todas estas cadenas de montañas y las corrientes que las van acompañando en sus diversas ondulaciones, llevan en sus faldas y en sus orillas reliquias de poblaciones antiguas, de arruinados monasterios, de castillos derruidos. Fuenteovejuna, Azuaga, Belmez, Espiel, Cuzna, Trassierra, son todos lugares interesantísimos para la historia de la edad media cordobesa, situados á la parte meridional de Sierra-Morena. Lo mismo puede decirse de los que ocupan á la otra parte los estribos de la gigantesca cordillera y las márgenes del Guadamora, del Guadarramilla, del Guadamatilla y del Zuja, como Belalcázar, Santofimia, Hinojosa, Torremilano, Villapedroche, Pozoblanco, etc. Muchos de estos lugares eran de poblacion considerable siendo España provincia romana; de otros que entonces habia en esta parte de la Beturia de los Túrdulos apenas queda memoria. Bajo la dominacion de los godos y sarracenos unos conservaron su importancia, otros la aumentaron, otros se formaron que antes no existian: muy pocos de los antiguos decayeron, porque la prosperidad del pais iba siempre en aumento. En los siglos anteriores á la reconquista no ofrecia de seguro la Sierra el espectáculo de desolacion y pobreza que hoy presenta. Orlaban las faldas de sus montañas blancos caseríos; en sus espaciosos valles asentaban risueñas poblaciones que se mantenian de la industria, del cultivo y del pastoreo; en sus pingües dehesas y cañadas se apacentaban ganados de toda especie; tendíanse por sus anchas lomas los viñedos con sus lagares, los olivares con sus vigas: por sus frescas vegas los edificios conventuales rodeados de granjas y cortijos; y coronaban sus empinados cerros fuertes castillos y atalayas, centro aquellos del poderío feudal, centinelas avanzadas estas de un Estado robusto y floreciente enclavado en tierra enemiga, único medio entonces conocido de comunicar con rapidez los sucesos prósperos ó adversos de la guerra. Los arroyos y rios que vierte por uno y otro lado la Sierra no llegaban como ahora sin merma á la llanura: recogíase su precioso caudal en acequias para regar las huertas y vergeles, ó en presas para mover molinos y batanes, ó en balsas para otras industrias. Con el producto de estas y del fácil cultivo de tan agradecida tierra, sosteníanse muy granadas las rentas de las villas, de los señores y de las iglesias. Pero aquella prosperidad acabó, y hubo muchas causas para que así sucediese: primero la devastadora furia con que pusieron fin al Califado cordobés las guerras intestinas de las razas musulmanas agolpadas en Andalucía; luego el crecimiento del poder castellano, que despues de la conquista de Toledo hizo de la tierra septentrional de Córdoba pais de frontera, y por consiguiente de molesto y peligroso vivir; luego causas generales que paulatinamente fueron predisponiendo la opinion nacional contra las poblaciones de origen islamita; por último la pésima administracion de la casa de Austria, que esquilmando á los pueblos para sostener descabelladas empresas militares y cegándoles al propio tiempo todas las fuentes de la pública riqueza, que era lo mismo que ordeñar la vaca sin darle pasto, abrumó á los montañeses de Córdoba con alcabalas y tributos que no bastaban á satisfacer sus ya escasos provechos. Todavía aquella privilegiada tierra está brindando á sus naturales con su fertilidad prodigiosa: fuera de los olivares, naranjales, higuerales, granados, cidras damasquinas y moreras de que se cubren sus laderas aun negligentemente labradas, produce la montaña sin que intervenga la mano del hombre, arrayanes, lentiscos, algarrobos, almezos de dulcísimo fruto, pinos, avellanos, castaños y acebuches. Fórmanse naturalmente muchos colmenares en las concavidades de sus peñas; el áspero jabalí, el tímido gamo, el ciervo corredor, el conejo cauteloso, la pintada perdiz, el zorzal viajero, el tordo y el estornino amigos de los cañaverales, estimulan al cazador á sus gratas fatigas; y los criaderos de plata, oro, cobre, azogue y carbon de piedra que recelan las entrañas de sus montes, sirven de incentivo á la actividad del minero codicioso. ¿Y qué alicientes no ofrece ella al amante de la bella naturaleza? El valle donde está situado el insigne monasterio de S. Gerónimo, con harta justicia lleva el nombre de Valparaiso, pues nada menos que un Eden representa á los ojos su frescura; cerca de este hay otro llamado Vallehermoso, y tiene tan merecido su nombre, que quien penetra en él sin saberlo se lo dá de nuevo. Subiendo por él algun trecho se aparece como jardin de amor en un campo de esmeralda la senda del rosal, llamada así por la estraordinaria abundancia de rosas con que allí plugo á la madre naturaleza engalanarse el seno y embalsamarse el aliento: delicioso lecho de flores para la enamorada Diana, que solo los vergeles de la Ruzafa impregnados de azahar hubieran podido con igual derecho disputar al Monte Latmos. ¿Pues qué diremos del pago de Miraflores, y qué de otros muchos cuyos nombres no conforman menos con sus lindezas?

En esta amenísima Sierra vamos á comenzar, lector amigo, un viaje aéreo por toda la provincia de Córdoba, con que pondremos fin á nuestra tarea. Y en esta jornada postrera tú y yo, como dos nigromantes de esos que el vulgo llama brujos, vamos á dar tres grandes vuelos: el primero á modo de águilas cerniéndonos sobre las cumbres de las montañas; el segundo como ánades por las orillas del Guadalquivir abajo; el tercero como alondras que con inciertos giros revolotean en la campiña de aquí para allá, atraidas por los destellos de los objetos lucientes, y se remontan gorjeando cuando no hallan atractivo en el suelo.

Vuelo por las montañas. Mira al occidente, cerca del nudo que forman Sierra-Morena y la Sierra de los Santos, sobre una colina que domina una estensa y pintoresca llanura, entre cerros coronados de torres y atalayas arruinadas, la villa de Fuenteovejuna, que debe á un acto de sangrienta y heróica venganza la inmortalidad á que en vano hubiera aspirado como municipio romano[529], como poblacion sarracena guarnecida con un cinto de muros y un fuerte castillo, y como recompensa digna de los servicios de un gran maestre de Calatrava. Aplica el oido, que su nombre suena muy alto y llena toda la comarca, porque es á un mismo tiempo grito de gloria y melancólico gemido varonil. Prepárate recordando la época en que á la sombra de la autoridad real fuertemente constituida, cuajaba en el árbol de la sociedad española la preciosa yema del derecho comun, á despecho de las injurias de los ricos-hombres que como sañudos vendabales la combatian. Corre el año 1476: un orgulloso comendador de Calatrava encastillado en esa villa, sujeta á la jurisdiccion de la órden por permuta hecha con el gran maestre D. Pedro Tellez Giron, comete contra sus moradores toda suerte de desmanes y atropellos: tolera que sus soldados les devoren las haciendas y deshonren sus casas; él mismo con violencia les quita sus hijas y mujeres. El pueblo cansado de sufrir se conjura contra el insolente tirano; ruge el motin á sus puertas apellidando Fuenteovejuna, vivan los reyes D. Fernando y D.ª Isabel y mueran los traidores. Precipítase dentro la turba enfurecida, hombres, mujeres, niños, armados todos de espadas, picas, palos y piedras. Trábase en la mas fuerte pieza del castillo una encarnizada refriega: catorce criados del comendador mueren á sus piés por defenderle: muere luego el magnate, y su cadáver, arrojado por una de las ventanas á la calle, es recogido en puntas de lanzas y espadas. Acuden las mujeres con adufes y sonajas á celebrar la libertad de la villa, y despues los vecinos ancianos quitan las varas y cargos de justicia á los que estaban puestos por la órden, y acuden á Córdoba sujetándose á su jurisdiccion y pidiendo amparo. Quéjanse del agravio los caballeros de Calatrava al rey y al pontífice: ya los reyes mandan á la villa jueces pesquisidores. Hélos cabalgando en mulas regalonas por la márgen del Guadiato arriba; hé ahí rondando el temido tribunal algunos bárbaros sayones dispuestos á manejar contra el aterrado vecindario máquinas horribles de tormento de que nunca se hizo merecedor. Entran en la tremenda prueba hombres, mujeres, niños, y todos la sufren con heróica constancia: medio lugar padece tormento sin declarar quiénes dieron la muerte al comendador: Fuenteovejuna le mató, esclaman todos concordes, significando haber armado Dios contra él el brazo del pueblo entero.—¿Quién mató al comendador? vuelve á preguntar el obcecado ministro que no comprende tan sublime respuesta.—Fuenteovejuna, contestan todos.—¿Quién es Fuenteovejuna? pregunta de nuevo aquel.—Todos los vecinos de la villa.—¿Quiénes son los vecinos de la villa?—Y vuelve á resonar entre dolorosos gemidos de muerte la misma heróica respuesta: Fuenteovejuna. Sabedora Córdoba del caso, representa inmediatamente á los reyes: los pesquisidores suspenden los tormentos: la ciudad prueba los desafueros y tiranías del comendador asesinado, y los reyes, convencidos de que su muerte fué castigo del cielo, mandan sobreseer en la causa formada al lugar.

Atravesamos ahora la gran cordillera y nos suspendemos, no lejos de la confluencia del Guadamatilla con el Zuja, sobre un llano donde descuella una poblacion que tiene al norte un cerro ceñido por un arroyo, y en él los restos de uno de los mas soberbios alcázares de la España del siglo XV. Es Belalcázar, nombre dado por el fundador de aquella insigne fortaleza D. Gutierre de Sotomayor, maestre de la órden de Alcántara, á quien hizo merced de la poblacion el rey D. Juan II. No habia en toda la tierra aledaña alcázar de mas estupenda estructura: mil varas de estension ocupa todavía su muro de cantería, el cual formaba un gran cuadrilátero fortalecido con veinticuatro cubos y defendida por un castillo con ocho torres y un foso de treinta piés de anchura. Erigida la villa en condado, el nieto del maestre lo gozaba espléndidamente establecido en su magnífico alcázar. Su madre D.ª Elvira de Zúñiga, temerosa de los estragos que suele causar en los jóvenes de alma mas generosa la vida de soldado, le retenia con frecuencia en Belalcázar, aunque servia á los Reyes Católicos en su corte y en las guerras contra los moros, y el valeroso caballero se daba á la montería, ejercicio muy propio de la gente moza y noble en aquellos tiempos. Volviendo un dia de una de sus cacerías, y habiéndose separado gran trecho de él sus criados persiguiendo á una res herida, advirtió que le seguia muy de cerca un hombre alto y amulatado.—Pasad adelante, ó quedaos atrás, díjole el conde, viéndole ya muy junto á su caballo.—Deseo tratar en secreto con su señoría, respondió el desconocido, cierto negocio de grande importancia.—Quedaos atrás, replicó el conde, y en llegando al castillo os oiré despacio. Picó al caballo, entró en su alcázar, y de allí á poco llegó al puente levadizo el hombre alto y moreno, á quien se permitió la entrada por haberlo ya prevenido el dueño. Pidió á este el misterioso aparecido hablarle sin testigos: el jóven caballero despidió á sus criados presentes, y quedaron los dos solos. Habia sobre una mesa dos velas encendidas, porque ya iba cerrando la noche: tendió el brazo el huésped y las apagó, y bastaron su rostro de ascua y sus ojos de azuladas llamas para dar luz al aposento. Lo que entre los dos pasó allí no se sabe: el efecto sí, y fué que el conde de Belalcázar D. Juan de Sotomayor, siendo mozo soltero y de aventajadas prendas, renunció su estado en su hermano D. Gutierre, y dejando el mundo se hizo religioso. Fué muy estremado en todas las virtudes, señaladamente en la humildad, pues la misma tierra que habia sido teatro de su alegre mocedad, le vió, siendo Fr. Juan de la Puebla, con el hábito de S. Francisco ejercitarse en los oficios mas bajos y penosos en servicio de los pobres y de los religiosos descalzos que estableció en la comarca. Fué el fundador de una provincia de las mas insignes de la órden, la cual teniendo por núcleo la ermita de Nuestra Señora de los Angeles, creció antes de la muerte del conde santo tan rápidamente, que la Sierra por aquella parte se trasformó en un nuevo Carmelo[530].

El condado de Belalcázar con sus lugares, el marquesado de Santofimia (ó Sta. Eufemia) y las villas de Hinojosa y Torremilano, componen lo que en la España romana denominaban los escritores latinos regiones de los ossintigisis. Rasis llama á esta parte de la Sierra el llano de las bellotas, por estar muy poblada de encinares.

No lo está menos esa otra gran llanura elevada que se estiende á oriente entre el tronco principal de la Sierra y el ramal que limita por el norte la provincia. Ese dilatado valle formado por las montañas á una elevacion de mas de mil quinientos piés sobre el nivel del mar, es el de los Pedroches, que comprende siete villas habitadas por pastores. Verás toda esa tierra, cuya riqueza mineral se esconde en muy profundos criaderos de diferentes metales y carbon de piedra, cubierta de dehesas, de encinares, chaparros, charnecas, brezos y mata prieta, poblada de rebaños y piaras, sin mas industria que el tejido de bayetas y la alfarería. Vista la atrevida torre de la iglesia parroquial de Pedroche, que forma un gracioso obelisco de doscientos piés de altura con su segundo cuerpo circular, invencion caprichosa del célebre Hernan Ruiz el viejo, autor del insigne crucero de la catedral de Córdoba, pasemos adelante: y cruzando el puerto Calatraveño vamos por Espiel y Belmez al castillo de Cuzna describiendo una espiral en nuestro vuelo. Es rara la poblacion de la Sierra que no tiene su castillo: el de Espiel, en lo alto del cerro á cuya falda está la villa del mismo nombre, se muestra ya tan arruinado que no se reconoce lo que fué: solo se divisa á su pié la boca de una gran cisterna; el de Belmez era muy principal, está situado en la cumbre de otro cerro: su posicion es tan ventajosa, y tan escarpada por todas partes la peña que le sirve de base, que parece como que brindaba á construir en ella una fortaleza. Es una torre cuadrada con habitaciones de bóveda, de fábrica sarracena, tiene un muro guarnecido de cubos cilíndricos y otras obras ya muy deterioradas. Fué adjudicado en el siglo XV al gran maestre de Calatrava D. Pedro Tellez Giron, el cual lo cedió con Fuenteovejuna á su órden en el cambio que hizo por Cazalla y Osuna. Desde su torre se divisaba el castillo de Fuenteovejuna por una parte, por otra el de Névalo en término de Villaviciosa, el cual le ponia en comunicacion con el de Almodovar del Rio: por otra finalmente el castillo de Espiel, desde el cual se verian tambien torres de otra línea. El castillo de Cuzna levantado en lo mas áspero de la Sierra comunicaria al propio tiempo con las alturas de Hinojosa, los Pedroches, Santofimia y la Alcudia; así toda Andalucía estaba ramificada bajo la dominacion islamita, y aun muchos siglos despues, por líneas de atalayas que formaban el imperfecto sistema telegráfico de aquellos tiempos.

Vamos ahora por entre los dos rios Guadiato y Guadalbarbo bajando al Guadalquivir, y al pasar por encima de Trassierra consagremos una mirada de interés á las misteriosas ruinas que al pié de sus escabrosas laderas nos hablan de una antigua poblacion cuyo nombre se sepultó ya en el mar de hielo del olvido.

Vuelo por la ribera. Lo empezaremos en Aldea del Rio, que solo nombramos por respeto á la autoridad de Plinio, que con el nombre de Sicia la menciona entre los lugares de la jurisdiccion de Córdoba, orillas del Bétis. Este en efecto la fecunda por el poniente. Una legua mas abajo tenemos un gran pueblo, república Eporense para los romanos, para nosotros Montoro; villa cercada por el Guadalquivir, fundada sobre tres cerros de peña viva y otros tantos valles, toda de casas de piedra, con un puente soberbio costeado por sus vecinos antes del año 1500, para cuya obra, cuentan ellos con entusiasmo, se desprendieron las señoras de sus alhajas de oro, plata y piedras preciosas. No acertaré á decir si debe su nombre á sus famosos olivares, que hacen de ella un verdadero monte de oro, ó al toro que sobre un monte campea en sus armas simbolizando sin duda la fortaleza de su sitio. Los musulmanes la convirtieron en castillo ciñendo sus riberas con altos muros y torreones, y cerrando su única salida á la campiña con el fuerte de la Cava, llamado despues de Julia, del que es reliquia ese grueso baluarte que ahí ves. Antes que la ganase S. Fernando por las pujantes embestidas del capitan D. Domingo de Lara, de quien conserva aun el nombre un barrio de la villa, habian otros dos reyes de Castilla, Alfonsos ambos, arrojado de ella á los agarenos en 1155 y 1190, poniendo el último de ellos por alcaide y adelantado de su frontera á D. Nuño de Lara[531].

Vamos al Carpio (antiguo Martialum), villa que como un ginete siempre dispuesto á romper lanzas cabalga sobre un cerro, en cuya cúspide bizarrea como enhiesto airon un fuerte y hermoso castillo. Construyóle para los célebres varones Sotomayores, señores de esta villa y de Jodar, gloriosos en Gibraltar y Algeciras, en Antequera y en Huéscar, un maestro moro llamado Mohammad por los años de 1325[532]. Su forma revela desde luego ser obra sarracena. No olvidará este castillo los alegres dias que estuvo hospedado en él el rey D. Felipe IV (en febrero del año 1624), durante los cuales su dueño el marqués del Carpio agasajó y festejó al monarca con una gran cacería en los montes de su estado. Yendo del Carpio á Almodóvar del Rio dejamos á la derecha del Guadalquivir la antigua Onova, hoy Villafranca; luego, á una y otra márgen, á Casablanca y Alcolea; mira en las Ventas, donde pastan las célebres yeguadas de la Regalada, el suntuoso y moderno puente de mármol negrizco que escitaba la admiracion del viajero Ponz, y del cual dicen los andaluces para ponderar su lindeza, que cuando los soldados de Napoleon lo vieron preguntaron si estaba hecho en Francia. Queda despues sobre la márgen derecha la ciudad de CÓRDOBA. No nos detengamos ya en ella; pasemos adelante dejando un suspiro de dolor en las solitarias y empobrecidas alamedas del gran rio histórico que la baña.

Dejamos atrás tambien la confluencia de este con el Guadajoz, y despues de algunas revueltas llegamos á la villa de Almodóvar, en cuyo formidable castillo sufrieron rigores de injusta saña D.ª Juana de Lara y Haro, señora de Vizcaya, por órden de su cuñado el rey D. Pedro el Cruel, y el esforzado señor de Luque D. Egas Venegas, con sus hijos y un hermano, por disposicion del prepotente D. Alvaro de Luna, como pago de sus heróicas correrías en tierras de moros. Atravesando el rio tenemos ahora en frente á Guadalcázar, antigua Carbulo, donde hoy no advertimos mas objeto digno de atencion que un palacio medio arruinado. Sus señores los marqueses de Guadalcázar perpetúan en Córdoba la descendencia de aquel famoso condestable de Castilla Ruy Lopez Dávalos, cuya estrepitosa caida á impulsos de la ambicion de D. Alvaro de Luna cuenta la crónica de D. Juan II. Por redundar en gloria de otro esclarecido linage de Córdoba, será bien recordemos que quien hizo restituir al desgraciado condestable la honra y la hacienda perdidas, fué su criado Alvar Nuñez de Herrera, dechado de lealtad y fidelidad acrisoladas, el cual se dió tan escelente traza en la buena obra que se propuso desde que el condestable se refugió en Aragon, que descubrió y probó haber sido falsificados por el secretario del de Luna todos los documentos en cuya virtud habia sido condenado su señor como traidor á la corona.

Otras dos veces vamos á cruzar el Guadalquivir para hacernos cargo de Peñaflor y de Palma del Rio. Es la antigua Ilipa (hoy Peñaflor) mas nombrada y famosa entre los antiguos que todos los otros pueblos de la Campiña. Allí se veían en tiempo de Ambrosio de Morales las ruinas de la antigua ciudad y su famoso puerto. Hasta él, dice Estrabon, llegaban las naves cargadas de mercaderías. Desde Obulco (hoy Porcuna) hasta Cádiz, por Córdoba, Peñaflor y Sevilla, se hacia en la Bética un activo comercio, porque acudian de naciones estrangeras á contratar á Cádiz, subian hasta Córdoba navegando[533], y se llevaban la plata y demas metales preciosos de la Sierra dejando en cambio sus manufacturas. Desde allí, añade el geógrafo griego, comienzan á levantarse los Montes Marianos cargados de plata, y á mano izquierda se tiende la Campiña. A poca distancia de Peñaflor, en la márgen opuesta, se descubre la villa de Palma del Rio, que hicieron famosa en la edad media los grandes hechos de armas de sus señores los Bocanegras y los Portocarreros. Fué, si bien lo recuerdo, rico-hombre y señor de Palma el famoso almirante D. Gil Bocanegra, hermano del duque de Génova, que sirvió á D. Alonso XI en Gibraltar y Algeciras sosteniendo con muy pocos bajeles contra un emjambre de galeras moriscas uno de los combates navales mas tremendos que ensangrentaron las ondas del Mediterráneo. Fuélo tambien el alcaide de Alhama Luis Fernandez Portocarrero, que murió en Nápoles, adonde le enviaba el Rey Católico á compartir con el Gran Capitan el cargo de general en gefe.

Vuelo por la campiña. Dividida esta en dos por la corriente del Guadajoz, caen á la derecha Castro el Rio, Bujanlance, Cañete, y otras poblaciones de escasa importancia histórica.

En el año 1333 el rey moro de Granada, aprovechando la coyuntura de hallarse D. Alfonso XI con los pendones y caballeros de casi toda Andalucía entretenido en Gibraltar contra los ejércitos invasores de Marruecos, puso cerco á Castro el Río con muy poderosa hueste. Receloso Payo Arias de Castro que estaba en Córdoba, de que le quitase de rechazo su villa de Espejo, allí cercana, partió con Martin Alonso de Montemayor y otros caballeros á socorrer á los sitiados, los cuales, perdida la villa y dejando el vestíbulo de su iglesia cubierto de cadáveres, se habian refugiado en el castillo tapiando la puerta á piedra y lodo. Payo Arias y otros, á quienes pareció temeridad querer en tal estado recobrar el lugar, se quedaron en Espejo; el señor de Montemayor siguió adelante solo con treinta caballeros: llegó á Castro con gran secreto, halló á los moros descansando con los portillos abiertos, y pidiendo favor á Dios y á su Santa Madre, se arrojó como un leon sobre ellos y penetró en la poblacion. No habia dentro mas que sesenta soldados útiles, los demas habian muerto ó estaban mal heridos; juntos con los de Córdoba repartiéronse todos con buen órden en los puestos mas peligrosos y reparáronlos con maderaje lo mejor que pudieron. Pero ¿cómo defender un lugar tan mal guarnecido contra un ejército tan formidable como el del rey de Granada, que le combatia con mas de cien mil lanceros, ballesteros y honderos, multitud de picos y azadones y toda clase de máquinas de guerra? El ingenio y el valor unidos triunfaron de todo: mal disfrazado á propósito y con poca cautela, despachó Martin Alonso á Córdoba un hombre avisando que viniesen sobre los moros la noche siguiente, y brindando á sus caballeros con una grande y fácil carnicería: salió bien la traza, porque el correo fué hecho prisionero, y temiendo por su declaracion el rey de Granada verse envuelto al otro dia por un ejército auxiliar, que en realidad no existia, resolvió apresuradamente aprovechar el tiempo que le quedaba para dar al lugar una embestida decisiva. Otro aviso bien dirigido llegaba entre tanto á los de Espejo. Pujante fué la acometida: valerosa, heróica la resistencia. La presencia del señor de Montemayor engrandecia los corazones y comunicaba á los sitiados sobrenatural aliento. No ganaron los infieles un palmo de terreno: acabábase el dia y los últimos rayos del sol poniente arrancaban rojizos destellos á los yelmos de una pequeña hueste procedente de Espejo, que iluminada de espaldas aparecia en el horizonte como un enlutado escuadron de gigantes. Por seguro tenia el granadino que se hubiese alzado contra él toda la tierra: abandonó el cerco, levantó el campo dejando en él muchos muertos, y á marchas forzadas se volvió á su tierra. Agradeció el rey D. Alonso el gran servicio que le habia prestado el señor de Montemayor, y le autorizó para que añadiese á sus armas la divisa de la banda entre bocas de dragantes, que es la misma que has visto esculpida en el sepulcro de su hijo el señor de Alcaudete en la famosa capilla antigua de S. Pedro de la catedral. Castro el Rio, Castra Postumia en los escritos de Hircio y en los comentarios de Julio César, solo conserva de sus reliquias romanas una lápida de jaspe encarnado que se cree pertenecia á un templo consagrado á Augusto[534]; hoy su aspecto es en todo sarraceno. Su parte antigua, cercada de murallas ya medio arruinadas, con una sola puerta, ocupa un pequeño cerro. Defendia aquella única entrada el castillo de que hemos hecho mencion, unido entonces á la muralla por medio de un arco que ya no existe. Durante las turbulencias del reinado de Enrique IV por los años de 1466 lo reparó el conde de Castro.

En Bujalance, que no es en nuestra humilde opinion la Betis de Estrabon, ni la ciudad de los Bursavolenses de Hircio, ni la Vogia de Ptolomeo, sino la Sacili del itinerario de Antonino, solo es bella y artística para nosotros la gran fortaleza árabe que la domina, edificada por mandado de Abde-r-rahman An-nasír. Forma una plaza de armas cercada con un muro fortalecido á trechos con siete torres, en que se advierten lastimosas ruinas, y reparaciones del tiempo de la reina D.ª Juana.

En Cañete de las Torres, señorío de los duques de Medinaceli, hallamos descollando en medio de la plaza de la villa otro soberbio castillo con sus torres derruidas, en que se marcan todos los modos de construccion, el romano, el godo, el sarraceno, el cristiano de la edad media. Tres veces la ocuparon los muzlimes: primero en la invasion general que arrancó de sus cimientos el trono de Rodrigo, luego en el siglo XIV, últimamente á fines del siglo XV cuando los moros llevaron á Granada todo su vecindario en cautiverio. Otras tres veces la recobraron y repoblaron los cristianos: en 1330 bajo D. Alonso XI, en 1407 durante la menor edad de D. Juan II, y en tiempo de los Reyes Católicos D. Fernando y D.ª Isabel.

A la izquierda del Guadajoz, entre este rio y el Genil, tenemos el gran teatro de muchas proezas consumadas en la secular contienda de España contra el islamismo y en sus deplorables guerras civiles, y los señoríos de los mas ilustres guerreros cordobeses. Luque, rodeada de cerros entre el Marbella y el Salado, con su castillo árabe de dos torreones y el antiguo palacio de sus señores, nos habla todavía de los Venegas y Mendozas, ilustres en Antequera, en Huescar, en las márgenes del Darro y del Gareilano. Zuheros y Doña Mencía, esta con su castillo, aquella al pié de una elevada cordillera de rocas y montañas, conservan celosas la memoria de un alcaide, Diego de Cabrera, y de un señor, Alonso de Córdoba, que se coronaron de gloria en la prision del rey chico de Granada. La villa antigua de Baena, en un cerro que lame tímido el Marbella, sobre el cual parece haberse empinado para señorear gran parte de la campiña hasta divisar las crestas de Sierra-Morena, lleva escritas en sus edificios, ya magníficas, ya sangrientas páginas históricas. Allí la Baniana romana descubre la veneranda toga de sus ediles y duunviros en un panteon subterráneo donde se hallaron en nuestros dias urnas cinerarias pertenecientes á la familia Pompeya. Allí ostenta la arquitectura cristiana de los siglos medios sus esbeltas curvas ojivales en las iglesias de Sta. María y S. Bartolomé; allí el castillo y palacio de los condes de Altamira nos trae á la memoria la magnánima defensa que contra la acometida del rey moro Mohammad hicieron los caballeros Alonso Perez de Saavedra su alcaide, el señor de Cañete Fernando Alonso de Córdoba, Payo Arias de Castro, señor de Espejo, y Juan Martinez de Argote, señor de Lucena. Háblanos este castillo, mas bien alcázar, de la traicion horrenda cometida por D. Pedro el Cruel con el rey Bermejo de Granada y los caballeros moros de su séquito, á todos los cuales hizo matar en un festin nocturno; háblanos de la prision que entre sus muros padeció en 1483 otro rey de Granada, Muley-Baha-dalí; háblanos por fin del famoso mariscal de Castilla Diego Fernandez de Córdoba, que con sus valerosos hechos dió principio á la ilustre casa de los condes de Cabra y duques de Baena. La villa por su parte nos recuerda además de sus gloriosas defensas y arrancadas contra los moros granadinos, uno de los accidentes mas dramáticos de la menor edad del rey D. Alonso XI (año 1319). Los infantes D. Pedro y D. Juan gobiernan juntos el reino: el infante D. Juan, envidioso de los lauros que ciñe D. Pedro, le propone hagan juntos una algarada por tierra de moros para que la gloria de ambos sea igual. Admite D. Pedro, pero lo que los hombres disponen suele desbaratarlo el cielo. Sale D. Juan de Baena con muy lucida hueste formando la vanguardia; D. Pedro sale de Córdoba cubriendo la retaguardia con sus caballeros y pendones. Afortunados en sus correrías y talas, recogen gran botin, y al cabo de tres dias resuelven regresar á su tierra, D. Juan de retaguardia, y delante con los suyos D. Pedro. Lo que D. Juan se propone con esta inversion del órden de marcha, Dios lo sabe. Noticiosos los granadinos de que la sed acosa á la hueste cristiana, salen á picarles la retirada, y sin propósito deliberado de trabar batalla la comienzan, con tan buena suerte, que el infante D. Juan se ve en el mayor aprieto. Acude á socorrerle el leal D. Pedro: con la espada desnuda procura detener á su gente que se desbanda y huye, y no pudiendo conseguirlo, tal pasion de ánimo le sobrecoge que se le tulle el cuerpo, pierde el habla, y cae muerto del caballo. Avisado D. Juan de tan repentina desgracia, desvanécese con el sobresalto, y cae tambien muerto en tierra. Cubre la noche el campo, cesa el combate: el cadáver de D. Pedro, colocado en una mula enlutada, pasa por Baena con direccion á Córdoba en medio de su escuadron que le tributa lágrimas y lamentos. El cadáver de D. Juan quedó en poder de los infieles; pero el rey de Granada lo envió á su hijo con acompañamiento de luces y lutos, y fué llevado á enterrar á Burgos.

Espejo, Fernan-Nuñez y Montemayor eran como tres guerrilleros avanzados puestos en emboscada por Córdoba detrás de una sierra que les servia de barrera contra las acometidas del granadino; así como tenia destacadas delante de esa misma sierra, con el Genil por foso, otras muchas villas. Espejo debe a su señor Payo Arias un castillo adornado de vistosos torreones, hoy propiedad de los duques de Medinaceli; Fernan-Nuñez ostenta dos grandes timbres: haber prestado asilo en su antiguo castillo á los mozárabes fugitivos en los dias de persecucion y martirio, y ser el primitivo solar de la gran casa de CÓRDOBA por la donacion que hizo el santo rey á su primer señor Fernan-Nuñez de Temez. Un vasto palacio, adornado de pinturas y esculturas, que en el siglo pasado edificó el conde D. Cárlos José Gutierrez de los Rios siendo embajador de España en Lisboa, sirve como de engaste al único torreon que queda de aquella preciosa antigualla. Montemayor desde la cima de un cerro árido, donde tiene otro castillo con tres preciosas torres góticas, está clamando á las presentes generaciones contra el olvido que la injuria. A la orilla del arroyo Carchena que le baña el pié por levante, yacen las ruinas del castillo antiguo de Dos Hermanas, que dió el rey al famoso D. Martin Alonso de Córdoba, fundador del estado de Montemayor[535]. El renombre de sus esforzados condes[536] vuela desde esas poéticas llanuras hasta las enriscadas cumbres de Alcaudete y de Antequera, ilustradas con la generosa sangre de sus guerreros.

Siguen al sur de la mencionada sierra Montilla, Aguilar, Cabra y Lucena, que con la Rambla, Montalvan, Santaella, Monturque, Puente Don Gonzalo, Castillo-anzur, Benamejí, Priego y Carcabuey, completan el cuadro de los grandes recuerdos históricos de la provincia. Si Montilla es la antigua Ulia, ó bien el Monte de Ulia (Mons Uliæ), ó como otros pretenden aquella Munda (Munda illa) tan famosa por haber ganado en su campo Julio César contra los hijos de Pompeyo el imperio del mundo, es cuestion que dejaremos ventilar á los mas peritos en corografía romana. De todas maneras la orla de la toga pretexta le asoma por debajo de su paludamento cristiano en los notables vestigios de baños romanos que ofrecen al arqueólogo las fuentes del Álamo y de la Higuera de Belen, y la llamada Canteruela de Sta. María. Tiéndese esta ciudad como perezosa bajo la influencia del sol de Andalucía, sobre dos elevadas colinas, desde donde registra un vistosísimo horizonte todo ceñido de sierras, pues del norte al sur por la parte de levante la contemplan Sierra-Morena, las sierras de Jaen, de Martos, de Alcaudete, de Doña Mencía, de Priego, de Rute, de Loja, de Lucena, de Cabra y de Archidona; y del sur al norte por el lado de poniente la recrean con sus azulados festones la peña de los enamorados, las alturas de Colmenar, de Antequera, Teba, Estepa, Osuna, Medina-sidonia, Écija, Carmona, Constantina y Cazalla. Tuvo en su parte mas alta un hermoso castillo, edificado por D. Pedro Fernandez de Córdoba, padre del Gran Capitan, y en el cual nació este invicto héroe; pero el rey D. Fernando el Católico lo mandó demoler para castigar al marqués de Priego por haber tenido preso en él á Fernan Gomez de Herrera. Dícese que tenia treinta torres y que era una de las fortalezas mas insignes de Andalucía. Fué Montilla señorío de los marqueses de Priego, de la casa de Aguilar, que produjo varones tan distinguidos en las campañas contra los moros de Antequera y de Granada.

Baja ahora recto al sur, y en cuanto cruces el rio Cabra verás alzarse á tu frente, formidable todavía aunque desmantelado, el castillo árabe de Aguilar sobre el cimiento de la antigua fortaleza romana de Ipagro, y en la cumbre de una de las cuatro colinas por las cuales se dilataba la villa sarracena de Poley. Cuando los Aguilares[537], los Coroneles[538] y los Fernandez de Córdoba[539] habitaban este castillo, resonaban en su torre de homenage ¡cuántos juramentos de fidelidad noblemente cumplidos; en sus altos salones cuántos clamores de júbilo los dias de cacería, de fiestas, de bodas; cuántas bendiciones en su soportal embovedado, adonde acudian los pobres de la comarca; cuántos gritos de victoria y sinceros parabienes por todo su ámbito, desde los baluartes esteriores hasta los elevados chapiteles de las torres, cuando sus dueños volvian triunfantes de las sangrientas lides con los infieles! ¡y cuántos ayes lastimeros no se habrán exhalado de sus fuertes muros cuando murieron uno tras otro en Algeciras aquellos dos hermanos, los ricos-hombres D. Gonzalo y D. Fernando Ibañez de Aguilar, sus bizarros señores! No hacia menos interesante este castillo la malhadada suerte de su dueño D. Alonso Fernandez Coronel, sitiado en él por el rey D. Pedro en persona y por el maestre de Alcántara D. Juan Nuñez de Prado, vencido tras una obstinada defensa y en sus propios estados degollado. Pero los vandálicos agentes del positivismo moderno, para quienes estos monumentos de nuestra antigua historia feudal solo son tolerables en las novelas, han desbaratado por muchas partes esta insigne fortaleza teatro de sucesos tan importantes, cuna de tantos esclarecidos varones. ¡Sus sillares ¡profanacion inaudita! han venido á tierra derrumbados para mejorar el piso de las aceras de la poblacion!... ¿Qué juzgarian de las autoridades ilustradas que tales cosas mandan los hombres de aquellos siglos que llamamos de ignorancia y oscurantismo, si pudieran en sus empolvados sepulcros interrumpir su sueño de muerte? Pero las autoridades ilustradas se rien de los difuntos. Bajando de Aguilar hácia el Genil se encuentra á cosa de una legua el maravilloso Lago de Zoñar en un valle abierto que forman unos cerros de poca altura, ocupando de septentrion á mediodia mas de un cuarto de legua. Su agua es salobre y su hondura muy grande, sin que se comprenda de dónde le viene aquel caudal. Dícese que un año de copiosas lluvias creció mucho y anegó las tierras circunvecinas, y los labradores, temiendo otro daño semejante, lo sangraron haciéndole canal hasta el rio de Aguilar que pasa harto mas bajo. Por ese canal empezaron á subir peces, y holgándose en aquella anchura, hicieron en breve considerable cria, que fomentó luego el marqués de Priego D. Alonso de Aguilar, señor del estado. Edificó este tambien una linda casa sobre el lago, adornándola con jardin, huerta y bosque, y otros deliciosos atractivos. Dirijamos el vuelo derecho á levante hácia el nacimiento del Monturque.

Llegamos á Cabra, tan famosa por su sierra[540], por su nava[541], por su sima[542], por su origen griego[543], por su antigüedad romana, por sus obispos, por sus condes, por las sangrientas contiendas de su detentador D. Juan Ponce de Cabrera con la órden de Calatrava, por la dura esclavitud que un rey de Granada impuso á todos sus moradores, por la reconquista y cesion á D.ª Leonor de Guzman que de ella hizo el rey D. Alonso XI; y me preguntas asombrado dónde está su poderoso castillo. Disfrazado de palacio, en una de las montañas que circundan el fértil y pintoresco valle en que se estiende la moderna villa, muestra de su antigua estructura una sola torre y varios torreones desmochados pertenecientes á su circunvalacion esterior; pero si registras diligente sus ruinas, hallarás su primitivo y vasto recinto en lo que se llama hoy Plaza de armas, donde los siglos han ido acumulando edificios. Esa torre que ves no perteneció al primer castillo de Cabra, que el rey de Granada lo devastó completamente en 1333 cuando á la manera de los reyes de Oriente se llevó toda su poblacion cautiva: es obra de los repobladores cristianos del décimocuarto siglo. El mariscal de Castilla D. Diego Fernandez de Córdoba, señor de Baena, lo obtuvo, con la villa erigida en condado, del rey D. Enrique IV, y de su casa pasó á la de Sesa, y despues á la de Altamira, cuyo primogénito lleva el título de conde de Cabra.

Hemos dicho que fué esta villa cedida á la célebre favorita de D. Alonso XI: tambien lo fué la entonces villa de Lucena, con su castillo, no muy distante de Cabra al mediodia, por permuta hecha con el obispado de Córdoba al cual se habia adjudicado en el repartimiento del año 1249. Sus alcaides y señores los Argotes aumentan con su merecido renombre el lustre que le dan las bellezas del arte y de la naturaleza, su iglesia ojival de S. Mateo, el palacio de los duques de Medinaceli, sus hermosos paseos sombreados y embalsamados con naranjos y cinamomos, su deliciosa campiña resguardada de los ateridos vientos del norte por la magnífica sierra de Araceli.

Priego, que reconoce por señores á los de Aguilar y Montilla; Benamejí, ganada á los moros por el vencedor de Benamarin y embellecida con un soberbio puente por su señor el mariscal Diego de Bernuí Orense[544]; Rute, arrebatada al rey moro de Málaga por aquel desgraciado infante D. Pedro á quien vimos poco há salir triunfante contra los granadinos y regresar á Córdoba cadáver sobre una enlutada mula; Santaella, cuya antigua fortaleza está pregonando hazañas de su alcaide Luis de Godoy: son lugares en que la historia de la arquitectura militar tiene datos abundantes que recoger y consignar antes que se reduzcan á polvo sus ya destrozados castillos.

Todos los que en la provincia fueron magnífica muestra de su antiguo poderío van siguiendo paulatinamente la suerte de sus señores. Aquellos esclarecidos linages que dieron á España vireyes, embajadores, adelantados, ricos-hombres, duques, condes, marqueses, señores de vasallos, prelados, pages y damas de reyes, maestres, comendadores y caballeros de órdenes militares, de la Banda y del Toison, de S. Juan y de S. Jorge; aquellas ilustres y grandes casas que ganaron estados y blasones en las guerras de Andalucía, de Castilla, de Aragon, de Portugal, de Oran y Mazalquivir, de Italia, de Flandes, de las Indias Occidentales, perdieron su influencia en el Estado, dejaron de ser los pilotos de la gran nave de la monarquía española. ¿Qué mucho que los asientos de su antiguo poderío se vayan desmoronando abandonados, si ya los grandes no son los fuertes; si constituida la sociedad sobre la base de que toda ley y toda justicia emanan del trono y de la representacion nacional, queda abolido el ministerio público de la aristocracia; si en aquellos baluartes, en aquellos salones, en aquellas torres de homenage no hay ya asaltos que rechazar, agravios que reparar, cuestiones que decidir, juramentos que prestar? Cada época tiene sus necesidades.

Es llegado el momento de abandonar la hermosa provincia en que hemos tenido tantas cosas que admirar en la naturaleza, en el arte, en las acciones de los hombres. Descansemos de nuestras correrías y vuelos, y preparémonos á cruzar el Genil para emprender por la bendecida tierra de Sevilla nuevas y no menos interesantes peregrinaciones[545].



FIN.

barra decorativa

decoracion

Indice de las materias contenidas en este tomo.
PÁGINAS.
INTRODUCCION.—Despedida de Granada: paralelo entre la Alhambra y la Mezquita de Córdoba: pág. 7—Escitacion al viaje por la tierra de Sevilla y Cádiz: 13
CAPÍTULO I. Primeras impresiones recibidas en Córdoba. Ojeada general sobre su historia. 25
CAPÍTULO II. Catedral de Córdoba. PARTE PRIMERA: la Mezquita.57
Preparacion general al estudio de la Mezquita y de la Catedral: pág. 58—Restauracion ideal de la Mezquita ó Aljama: conjetura fantástica con datos históricos acerca de su fundacion: 65—Idea de Abde-r-rahman I al erigirla: estado del mundo en su tiempo: 74—Compra de la antigua basílica catedral de los cristianos y noticia general de la condicion de estos bajo los sarracenos: 84—Demolicion de la basílica y ereccion de la Aljama de Abde-r-rahman I: 96—Muerte de este amir: ceremonias fúnebres y entierro que se le hace: 100—Continúa Hixem I la obra y la termina: descripcion de la Aljama primitiva: 105—Rivalizan los Umeyas de Córdoba con los Abassidas: obras suyas en la Mezquita: 109—Seduccion que la cultura mahometana ejerce en la grey cristiana sometida, y fortaleza de los que perseveran en la fé de Cristo: 117—Sensualismo asiático: razon de Estado á falta de celo religioso: persecucion y martirios: 132—Vicios en la constitucion de la familia musulmana: condicion de la mujer: la poligamia, el divorcio, etc.—Lucha de la verdad con el error: 134—Abnegacion y caridad de los mártires: 142—Crítica de los ritos y ceremonias muzlemitas: 146—Apostasías entre los mozárabes: 160—Por qué los cuatro sultanes que suceden á Hixem I no dejan en la mezquita obras grandes: 164—Paralelo entre el arte musulman y el arte cristiano: aplicacion de la fábula de Cástor y Pólux: 167—Obras de Abde-r-rahman An-nasír: carácter bizantino de la arquitectura bajo su reinado: 172—Obras de Al-hakem II: prolongacion de la mezquita y artistas de Constantinopla que trabajan en ella: las dos maksurahs: el Mihrab y su vestíbulo: 174—Estado de la Europa Cristiana y su arte al terminar el siglo X: 186—Decadencia del arte arábigo en tiempo de Almanzor: ensanche dado por éste á la Mezquita: la tribuna de la Alicama: la cámara de la limosna: 190—Crecimiento progresivo del Estado y del arte en la España cristiana: hechos que preludian la caida del Califado cordobés: 207—Conquista de Córdoba por S. Fernando: 214
PARTE SEGUNDA. Ereccion de la Mezquita en Catedral.218
Empiezan en ella á fundarse capillas: carácter general de estas construcciones: 222—Fundacion de la primera Catedral cristiana: implantacion del arte ojival de Occidente en la Mezquita árabe: 224—Tolerancia artística: perpetuacion del estilo musulman: restauraciones moriscas: de quiénes fueron obra: 228—Estado y condicion de las personas de la secta vencida: moros mudéjares: 232—Continúan las fundaciones de capillas: principio del culto al arcángel S. Rafael declarado patrono de Córdoba: 237—Poder de la fé en el décimotercio siglo: hechos y reflexiones: 239—Período de turbulencias, desfavorable al arte: transaccion con la cultura islamita: asociacion de elementos opuestos: sincronismo en el arte, en la literatura, en las costumbres, en la política: fundacion de la capilla real por D. Enrique II: 242—Amalgama de los estilos gótico y sarraceno: su razon histórica y filosófica: 248—Tracto del siglo XIV al primer tercio del XVI: fundaciones de este período y memorias referentes á la historia de la Catedral hasta la ereccion del nuevo crucero: 255—Historia de la edificacion de la Catedral nueva: 276—Marcha del arte durante su construccion: el renacimiento y sus causas: razon de las diferencias entre el renacimiento italiano y el plateresco español: 291—Descripcion de la Catedral: hállanse en ella obras de todos los estilos desde el plateresco hasta el churrigueresco: 301—Siguen las fundaciones de capillas: viaje de Felipe II á Córdoba: 309—Fisonomía de la arquitectura en el siglo XVII y primera mitad del XVIII: memorias de la Catedral en este período: 317—Resúmen del estudio hecho en este templo: 339
CAPÍTULO III. Córdoba mozárabe.341
Triste condicion de los mozárabes cordobeses: cisma introducido entre ellos: retrato ligero de algunos apóstatas: 342—Iglesias y monasterios de los mozárabes: forma general de las basílicas: 347—Santos y doctores insignes que florecieron en ellas: 357—Culto y ritual mozárabe: 359—Los monasterios de la ciudad y de la sierra, y mártires que produjeron: 361—Aspecto general de estas construcciones, y de la vida monástica en los siglos IX y X: 367—Cuadro de la gran persecucion que sufren las iglesias y monasterios en Europa de parte de los bárbaros del norte y de los sarracenos: destruccion de los templos y monasterios de Córdoba: 379—Renuévanse las persecuciones al acercarse la hora postrera del Califado: dispersion y cautiverio: 384
CAPÍTULO IV. Panorama de Córdoba en su estado actual.387
La muralla y sus puertas: 389—El alcázar: 391—El puente y la Calahorra: 395—Iglesias, conventos y capillas: 397—Edificios árabes y moriscos: 404—Edificios del renacimiento: 405
CAPÍTULO V. Medina-Azzahra.407
Construccion de sus alcázares: 408—Descripcion de sus bellezas, y escenas memorables en ellos ocurridas: 410—Su Mezquita: 417—Abandono y ruina lenta de estos palacios: 418—Cómo se fué paulatinamente olvidando la memoria de esta maravillosa poblacion: 419—Sus ruinas existen en la dehesa de Córdoba la vieja: carácter de los fragmentos que hemos recogido en ellas: 422
CAPÍTULO VI Y ÚLTIMO. La Sierra y la Campiña.426
Vuelo por las montañas: Fuenteovejuna, Belalcázar, Pedroche, Espiel, Belmez, Cuzna, Trasierra: 431—Vuelo por la ribera: Aldea del Rio, Montoro, el Carpio, Villafranca, Alcolea, Almodóvar, Guadalcázar, Peñaflor, Palma del Rio: 435—Vuelo por la campiña: Castro el Rio, Bujalance, Cañete, Luque, Zuheros Doña Mencía, Baena, Espejo, Fernan-Nuñez, Montemayor, Montilla, Aguilar y el Lago de Zoñar, Cabra y su Sima, Lucena, Priego, Benamejí, Rute, Santaella: conclusion: 438


decoracion


Guia para la colocacion de las láminas.
PÁGINAS.
Portada.
Curvas de los arcos empleados en los diversos estilos arquitectónicos.9
Córdoba desde el castillo de la Calahorra.57
Puerta del Puente, llamada por equivocacion puerta de Sevilla.id.
Puerta de las Palmas, desde el patio.107
Interior de la Mezquita.156
Puerta de las Palmas.172
Capilla del Mihrab.180
Idem por ángulo ó interior de la capilla del Mihrab.181
Ángulo de un tablero del Mihrab.182
Plano de la Mezquita.192
Esterior de la Mezquita.198
Ornamentacion de una de sus puertas.id.
Capilla de Villaviciosa.id.
Puerta del Perdon.271
Patio de la Catedral.274
Plano de la Catedral.279
Interior de la Catedral.304
Puerta lateral de Sta. Marina.349
Alamedas del Guadalquivir, con el puente y la Calahorra.395
Iglesia de Sta. Marina.397
Iglesia de S. Lorenzo.398
Detalles: roseton de S. Miguel.399
Torre de S. Nicolás de la villa.id.
Claustro del convento de franciscanos.402
Hospital de Espósitos.id.
Detalles de la fachada del mismo.id.
Vista de Córdoba desde los Mártires.404
Capilla del hospital del Cardenal.id.
Casa de Gerónimo Paez.406
Fragmentos de los palacios de Medina-Azzahra.423

NOTAS:

[1] Véase la página 220 del tomo de Granada.

[A] Véase la lámina de detalles que acompañamos con el objeto de dar á conocer las clases de curvas citadas en esta y en otras páginas de este tomo.

[B] Esta M y la D que antecede son copia de un libro manuscrito de la Biblioteca Colombiana de Sevilla.

[2] Esta palmera era entonces la única que habia en España. A ella dedicó el mismo Abd-el-rhaman los tan famosos versos:

Tú tambien, insigne palma,—eres aqui forastera;
De Algarbe las dulces auras—tu pompa halagan y besan:
En fecundo suelo arraigas—y al cielo tu cima elevas:
Tristes lágrimas lloráras,—si cual yo sentir pudieras:
Tú no sientes contratiempos,—     como yo de suerte aviesa;
A mí de pena y dolor—contínuas lluvias me anegan;
Con mis lágrimas regué—las palmas que el Forat riega;
Pero las palmas y el rio—se olvidaron de mis penas.
Cuando mis infaustos hados—y de Alabás la fiereza
Me forzaron á dejar—del alma las dulces prendas:
A tí de mi patria amada—ningun recuerdo te queda;
Pero yo triste no puedo—dejar de llorar por ella.

[3] Es preciso, dice Viardot, que los estragos cometidos por los vencedores en los hermosos campos inmediatos al Guadalquivir fuesen de todo punto escesivos y que su poblacion hubiese sido desterrada como la de la ciudad; porque cuando Fernando despues de su partida dejó algunas tropas para guardar la frontera y proteger á los nuevos habitantes, á quienes habia llamado de todos los puntos de la España cristiana, fue forzoso durante muchos años enviar de Castilla á Córdoba víveres de toda especie para disminuir la horrible escasez que en ella se sufria. (Hist. de los árabes y los moros de España.)

[4] Sobre la conservacion y reparacion de estos muros hemos encontrado las disposiciones siguientes: Item, mando y concedo que la fábrica del muro conste siempre de los frutos y provechos y rentas reales. (Fuero de Córdoba.)—Conocida cosa sea á todos los omes que esta carta vieren cuerno yo D. Alfonso por la gracia de Dios, rey de Castiella, etc., do é otorgo al Conceio de Córdova á los que agora son é serán daqui adelante para siempre jamas quinientos maravedises cadaño para labrar los muros de la villa de Córdova et póngolos que los ayan cadaño en el mio pecho que me an adar los moros del Alhama de Córdova. Et mando á los moros de la sobredicha Alhama que gelos den cadaño por la Sant Miguel assi como los davan á mi... (Carta dada en Toledo á 18 de mayo, era de 1292. Archivo municipal de Córdoba, legajo A. número 25.)—Dámosles é otorgámosles para siempre jamas el montadgo de Córdova et de so término para la lavor de los muros de la villa é de los castiellos que en so término son... (Carta del rey D. Sancho dada en Burgos el sábado 20 de noviembre, era de 1326. Arch. mun. de Córdoba. Cajón A. núm. 79.)

[5] Las disposiciones mas ámplias de este fuero son las siguientes: Y mando, que no sean prendados asi los caballeros como los ciudadanos de Córdova en todo mi reyno.—Item, ellos y sus hijos y sus herederos tengan todas sus heredades firmes y estables perpetuamente, y vendan y compren unos de otros hasta lo que ellos quisieren, y qualquier de ellos haga de su heredad segun su voluntad: y si yo quitare á alguno de ellos heredad alguna por ira ó por injusticia sin culpa manifiesta, que en virtud de este privilegio le sea vuelta.—Item, mando que en las heredades que tuvieren en qualquier tierra de mis reynos y de mi señorío no entren Sayones en ellas ni Mayorinos, pero sean catadas y exentas. Esto hago por amor del pueblo de la ciudad de Córdova.—De aqui adelante si algun hombre cayere en homicidio ó en algun livor sin su voluntad, y se provare por testigos verdaderos, si diere fiador, no sea metido en la cárcel, y si no tuviere fiador, no sea llevado á ninguna parte fuera de Córdova; pero solamente sea preso en la cárcel de Córdova, y no pague sino la quinta parte de la calumnia.—Item, quiero y mando estatuyendo, que la ciudad de Córdova nunca sea prestimonio de alguno, ni haya en ella otro señoreador sino yo y mis succesores, ni hombre ni muger.—Item, concedo y estatuyo, que todo hombre que fuere justiciado, sus herederos hayan sus bienes, si no fuere por haber muerto algun hombre sobresalvo, ó muerto algun hombre en tiempo de tregua ó si no fuere justiciado por moneda falsa, ó por haver muerto algun hombre estando seguro, ó si no fuere falsario, ó herege; y de qualquiera que fuere justiciado por estas causas sobredichas, el rey haya sus bienes, etc., etc. (Fuero de la ciudad de Córdoba concedido por el Santo rey Fernando III. En el Arch. mun. de la misma ciudad existe una carta, en latin fecha en Toledo á 18 de abril, era de 1279, y otra en castellano fecha en Córdoba á 3 de marzo del mismo año.)

[6]...dono itaque vobis et concedo castellum de Almodovar el castellum de Durio, et castellum de Chilon el castellum de Sancta Eufemia et castellum el villam de Gahet et villam que vocatur Petroche et castellum de Mochuelos. (Privilegio del rey D. Fernando el Santo dado en Toledo á 24 de julio, era de 1281. Arch. mun. de Córdoba, legajo V, núm. 34.)—Fueron concedidas posteriormente á Córdoba algunas otras villas, entre ellas las de Cabra y Santaella por D. Alfonso, la de Constantina con todas sus pertenencias por D. Sancho. (Arch. mun.)

[7] Hemos encontrado en el Archivo municipal de Córdoba dos cartas de D. Carlos y la reina D.ª Juana declarando francos de todo tributo por espacio de diez años á los que pasasen á morar en Córdoba con promesa de residir en ella cuando menos veinte. (Estas dos cartas no están numeradas.)

[8] Córdoba sola contenia, segun los geógrafos árabes, doscientas mil casas, seiscientas mezquitas, cincuenta hospitales, ochocientas escuelas públicas y novecientos baños. Este detalle parece á primera vista increible y fabuloso; mas yo ni aun lo supongo exagerado. Si se da el nombre de casa, no a los edificios de nuestras ciudades modernas, sino á la habitacion de cada familia; el de mezquita á cada lugar consagrado, á cada pequeña capilla; si se recuerda que una mezquita no podia existir sin escuela, y que las abluciones eran indispensables como el rezo, se reconocerá que la ciudad y los arrabales de la capital del Imperio podian muy bien contener ese prodigioso número de edificios diversos. (Viardot, hist. de los árabes y los moros.)

[9] En premio de estos servicios el infante D. Sancho, ya rey, donó al concejo de Córdoba las villas de Baena, Luque y Zuheros. Consta de la siguiente carta: Sepan cuantos esta carta vieren: Como nos D. Sancho por la gracia de Dios rey de Castiella, de Toledo, de León, de Galicia, de Sevilla, de Córdoba, de Murcia, de Jahen, é del Algarbe, por muchos servicios que vos el Conceio de la noble cibdad de Córdoba fiziestes al rey D. Fernando nuestro abuelo é al rey D. Alfonso nuestro padre é á nos antes que regnássemos é despues que regnamos: et porque el infant D. Johan nuestro hermano se levantó contra nos et nuestro señorio muy falsamente et como non devie por deseredar á nos et á la reina nuestra mugier et á nuestros fijos: non conosciendo muchas mercedes que nos le fiziemos et señaladamiente quel sacáramos de la prision onde non deviera salir por los sus merecimientos é desconociéndose contra nos: damos vos et otorgamos vos las villas de Baena, et de Luque, et de Zuheros con sus castiellos et con todos sus términos et con montes é con fuentes, con rios, con exidos, con entradas et con salidas et con todas sus pertenencias cuantas an et deueh aver, que las ayades é que sean vuestro término para siempre jamas. Salvo ende que los alcaides que estos castiellos touieren que sean nuestros vasallos, et vuestros vecinos é que los tengan por nos et vos que les paguedes las tenencias segunt que lo nos ordenaremos et que pongades vos y alcaldes é alguaciles por nos et por vos asi como en los otros logares de vuestro término, et que se judgue por aquel mismo fuero que vos auedes. Et pugnat en las cobrar et en las aver, et nos otorgamos vos de vos las nunca toller et de non las dar al infant D. Johan nin á otro ninguno. Et desto vos mandamos dar esta nuestra carta seellada con nuestro seello de cera colgado en que escriviemos nuestro nombre con nuestra mano. Dada en Palencia ocho dias de marzo, era de mill é trezientos é treinta é un año.—Nos el rey D. Sancho.

[10] En este sitio de Córdoba por Mohammad y el rey D. Pedro fue aportillado el muro por varias partes y tomado el Alcázar. Cuentan que en tan grave apuro salieron las mugeres á la calle logrando infundir tal valor en el ánimo de los sitiados, que arrojándose estos de improviso sobre el enemigo, le rechazaron con muerte de muchos y le obligaron á levantar el campo. (Crónica del rey D. Pedro.)

[11] En estas guerras declaróse por el rey el conde de Cabra D. Pedro Fernandez de Córdoba, por los enemigos del rey D. Alonso de Aguilar, uno de los personages mas influyentes en toda la Provincia. Este hecho produjo en Córdoba dos bandos que la tuvieron en continua alarma con sus sangrientas escisiones. Sabedor de ellas Enrique IV, se trasladó á la ciudad para tranquilizarla; pero no logró sino enconar mas y mas los ánimos por haber tratado con igual dureza á los que hicieron armas contra él y á los que le fueron leales. El desacierto de Enrique IV era igual en todo.

[12] Llamábase el inquisidor Diego Rodriguez Lucero: era tal el rigor con que trataba á los reos, que el pueblo se amotinó al fin contra él, y le obligó á escaparse en una mula. El cardenal Jimenez no pudo menos de mandarle prender y castigarle para dar á la institucion algun viso de legalidad y de justicia.

[13] Supone la tradicion que el conde estaba en Madrid cuando recibió la noticia de su deshonra. Partió inmediatamente para Córdoba, dicen los que refieren el hecho, y aguardó que anocheciera para entrar en su casa por las tapias de una huerta. Colocóse secretamente en parte desde donde pudiera acechar á los supuestos cómplices, los vió en el acto de cometer el adulterio, y tiró al punto de la espada. No dió un solo grito, no profirió siquiera una palabra: recorrió el palacio y mató no solo á los adúlteros, sino á toda su numerosa servidumbre. Sentóse al fin y preguntó á un negro que le acompañaba: ¿qué le parece mi venganza? No bien hubo oido de él bien lo hemos hecho, señor, le pasó de una estocada. No pudo resistir á la idea de que sobreviviese su cómplice á tan bárbara matanza.

[14] Este palacio, llamado Alcázar Viejo, habia ya dejado de existir á fines del siglo XIV. Leemos en una carta dada por D. Enrique á 12 de marzo de 1399: vi vuestras peticiones selladas de vuestro sello que me enbiastes con Ruy Mendez de Soto Mayor, mi vasallo, veinte y quatro desta cibdad, entre las quales decides quel mi alcázar viejo que es de tras del alcázar nuevo de esa dicha cibdad que es un corral despoblado, etc. En virtud de estas peticiones lo cede el rey á sus vasallos de Valesta para que lo pueblen y labren en él sus casas. (Arch. mun. de Córdoba, leg. G, núm. 10.)

[15] En esta torre se lee: En nombre de Dios. Porque los buenos fechos de los reyes no se olviden, esta torre mandó facer el muy poderoso rey D. Enrique, é comenzó el cimiento el doctor Pedro Sanchez, corregidor de esta ciudad, é comenzóse á sentar en el año de nuestro Señor Jesucristo de 1406 años, é seyendo obispo D. Fernando Deza, é oficiales por el rey Diego Fernandez Mariscal, alguacil mayor, el doctor Luis Sanchez, corregidor é regidores Fernando Diaz de Cabrera é Rui Gutierrez... é Rui Fernandez de Castillejo é Alfonso... de Albolafla é Fernan Gomez, é acabóse en el año 1408 años. Créese que el rey la hizo á costa de un caballero que habia asesinado á su muger.

[16] Descubriéronse cerca de este sitio varias lápidas con turbantes, que son las que han dado lugar á creer que fue panteon árabe. Consérvase aun un subterráneo lleno de humo, que ha tomado nombre del convento próximo y es llamado las Catacumbas de S. Diego.

[17] Hablaremos mas adelante de esta mina de filtracion, hecha por cautivos cristianos en los mejores tiempos del imperio árabe.

[18] Ignoramos la época en que fué fundado este castillo: solo sabemos que pasó el camino por medio de él hasta que Enrique II lo mandó reparar y ampliar en el año 1369.

[19] Este magnífico puente, construido por los romanos y reedificado por Hescham I, consta de diez y seis arcos: tiene de largo ochocientos ochenta y ocho pies, veinte y tres de ancho.

[20] Esta puerta, que pertenece al orden dórico, lleva en el centro del friso un tarjeton en que se lee: Reinando la sacra católica y real magestad del rey D. Felipe nuestro señor, segundo de este nombre, año 1571.

[21] El triunfo es un monumento erigido en honor de S. Rafael por el obispo D. Baltasar de Yusta y Navarro.

[22] Hay en favor de esta opinion, en esta misma pieza, una inscripcion árabe que tradujo el embajador de Marruecos cidi Hamet Elgacel cuando pasó el año 1766 por Córdoba. No nos decidimos á pesar de este dato á seguirla resueltamente, por asegurar Kassiri que ese cidi Hamet tenia muy escasos conocimientos para traducir esta clase de leyendas.

[23] Para construir este minarete derribó un antiguo alminar que tenia 240 pies de altura. Entre los embellecimientos del patio debe contarse la construccion de las fuentes. La memoria de estas nuevas obras se ha conservado en una inscripcion árabe que se halla á un lado del Arco de las Bendiciones, en su parte superior, inscripcion que, segun la version hecha por el orientalista D. José Antonio Conde, dice asi: En el nombre de Dios clemente y misericordioso mandó Abdalá Abderramen, príncipe de los fieles, amparador de la ley de Dios (prolongue Dios su permanencia), edificar este atrio proveyendo á su conservacion y engrandeciendo el lugar consagrado á la divinidad, esmerándose en el decoro, y reverenciando su casa conforme á la voluntad de Dios, pues en ella se alcanza y celebra su nombre, confiando recibir por esto grandes premios é indulgencia con perenne acrecentamiento de prosperidad y buena fama. Acabóse esto con la ayuda de Dios en la luna dylhagia (j), año 346, por mano de su siervo Wazir y Hagib (k) de su palacio Abdala-Ben Batu y del arquitecto Said-ben-Ayud (l).

[24] Estas molduras interiores no significan para nosotros mas que el respeto guardado á este monumento árabe por los conquistadores cristianos. Es, si no cierto, muy probable que estos fueron quienes restauraron la capilla: nos da lugar á creerlo: 1.º la identidad de líneas que se observa entre el interior de esta pieza y los interiores mas modernos de la Alhambra: 2.º la consideracion de que estos adornos, á haber sido obra de los mismos árabes, debiéramos suponerlos del mismo siglo de la conquista, siglo en que, como hemos visto, Córdoba gimió sin cesar bajo el yugo de la guerra civil y la anarquía.

[25] Si yo tuviera noticia de lo que hacíades no lo hiciéredes, dijo el emperador; porque lo que quereis labrar hallarase en muchas partes; pero lo que aqui teníades no lo hay en el mundo.

[C] Comienza desde aqui su tarea D. Pedro de Madrazo, encargado de sustituir al Sr. Pi y Margall en la narracion histórica y descriptiva correspondiente á este tomo.

[26] Azazil, segun la fé musulmana, es un ángel que no habiendo querido tributar homenage á Adam, primero de los Profetas, fué precipitado del cielo al infierno, donde con el nombre de Eblis es el gefe de los demonios. Suponemos, pues, que el ángel del orgullo, el Luzbel de los mahometanos, es quien sugiere á Abde-r-rahman el pensamiento de erigir la gran mezquita.

[27] Sabido es que los primeros sultanes ó soberanos de la dinastia de los Omeyas se contentaron al principio con el modesto título de Emires, hijos de los Califas (Omará-bnú-l-kolafá).—Despues que afirmaron su poder con las conquistas de Africa, ya se denominaron Califas, príncipes de los creyentes (Omará-l-mumenin).

[28] En el año 759, dice Conde (tomo 1, cap. XI de su Hist.), el dia 3 de la luna Safar, dió Abde-r-rahman á los cristianos de Castilla la carta de proteccion y seguridad en virtud del tributo que debian pagarle, y que consistia en lo siguiente: 10 mil onzas de oro, 10 mil libras de plata, 10 mil cabezas de buenos caballos y otros tantos mulos, mil lorigas y mil espadas, y otras tantas lanzas cada año por espacio de cinco años. Escribióse este pacto en Córdoba.

[29] El walí de Cairvan Alí ben Mogueith invadió con numerosa hueste las costas de España para restablecer en ella la autoridad del Califa de Oriente. Fué batido el año 763 con sus siete mil africanos en los campos de Algarbe, por los cordobeses, sevillanos y jerezanos reunidos, y su cabeza, desmeollada y canforada, fué enviada á Cairvan, y puesta de noche por orden de Abde-r-rahman en el rollo ó columna de la plaza de aquella ciudad con un letrero que decia: Así castiga Abde-r-rahman ben Moavia ben Omeya á los temerarios como Alí ben Mogueith walí de Cairvan (Conde, hist. cit., cap. XV.—Petit Baroncourt, Histoire resumée du moyen-âge, t. 1.).

[30] Los historiadores árabes suponen que la rota sufrida por Carlomagno en Roncesvalles fué obra de los walíes de Zaragoza, Huesca, Lérida y otras fronteras. Nuestros historiadores y romanceros hacen vencedores á los vascones. Lo cierto es que habiendo entrado en España Carlomagno, llamado por los cristianos, tuvo que retroceder ante la resistencia de Zaragoza y desistir de su empresa. Suponen tambien los franceses que las paces ajustadas entre Abde-r-rahman y Carlomagno fueron buscadas y promovidas por el árabe; Al-Makkari, al contrario, asegura que Karoloh (asi llama al gran rey franco) solicitó al Emir brindándole con un enlace de familia, que este no admitió por causa de una enfermedad que padecia. (Véase Ahmed Ibn Mohammed Al-Makkarí, historia de las dinastias mahometanas en España, traducida al inglés y diligentemente anotada por el Sr. D. Pascual de Gayangos, Londres, 1843.)

[31] Conocido es de todos el trágico fin de los Omeyas en Oriente: los vengativos Abassides con un falso seguro reunieron en un banquete á noventa de aquellos, los mandaron azotar hasta que cayeron desfallecidos en el suelo, hicieron estender los estrados sobre ellos, y comieron sobre aquellas alfombras oyendo los gemidos de sus víctimas hasta que espiraron. El citado Al-Makkarí, copiando á otros historiadores árabes, hace un curiosísimo relato del modo maravilloso como esquivó la muerte el fundador del Califato de Occidente, burlando las pesquisas de los emisarios de As-Seffáh, atravesando á nado el Eufrates con su hijo, y llegando á la costa de Africa, donde la profecía de un astrólogo judío, que determinó su nombre y sus señas personales, fué causa á un mismo tiempo de que el gobernador Ibn Habib intentare matarle, y de que el descendiente de Merwan se salvase. El Sr. Gayangos en sus apéndices al tomo 2.º extracta de otra obra histórica una tradicion novelesca y entretenida sobre el motivo que movió á Abde-r-rahman á desconfiar de las falsas promesas de paz de los de la bandera negra, y de esta hemos tomado pié para escribir lo que sigue, si bien suponiendo que el amigo que le sale al camino al futuro rey de Andalucía es el mismo ángel Azazil.

[32] Tierra de Afranc, Francia. Es el nombre que se le da en la historia de Conde.

[33] Algufia, la parte del norte. Idem.

[34] Las fundaciones de templos y monasterios cuya memoria nos han legado tantos respetables y diligentísimos escritores de nuestras antigüedades y de las cosas de la Iglesia desde los primeros historiadores de la monarquía restaurada como el monge de Albelda y el obispo D. Sebastian, justifican sobradamente nuestra suposicion. El erudito D. José Caveda enumera en su Ensayo histórico sobre los diversos géneros de arquitectura empleados en España una multitud de piadosas fundaciones de estos tiempos, algunas de las cuales ostentaban «muy ricos mármoles y jaspes de diversos colores. como los godos usaban.»

[35] Véase en Batissier Histoire de l'art monumental la descripcion de la suntuosa basílica de Aquisgram erigida en el siglo VIII por Carlomagno.

[36] Aunque los imperiales habian dominado bajo Justiniano en las costas meridionales de España, cedidas por Atanagildo en recompensa de los auxilios recibidos de Constantinopla durante su contienda con Agila, la influencia de sus prácticas en la arquitectura visigoda debió ser muy escasa, porque ademas de que sus establecimientos fueron principalmente marítimos, y se estendieron solo desde Alicante á Gibraltar, no duraron mas que 63 años, desde el 552 en que tuvo que hacer la entrega Atanagildo, hasta el 615 en que recobró la tierra Sisebuto, segun se colige de S. Isidoro, Hist. Gothorum. No existen los comprobantes de la introduccion del gusto bizantino en la monarquía de Asturias y Leon antes de la época en que se fundó el Califato de Córdoba; es sin embargo posible que el trato y comunicacion de nuestros monarcas con los franceses de las dos dinastías Merovingia y Carlovingia favoreciese algun tanto la inoculacion de ciertos rasgos de la ornamentacion neogriega en la severa arquitectura asturiana. Pero las descripciones de nuestros antiguos historiadores confirman la opinion de que la disposicion de las fábricas y sus lineamientos dominantes eran puramente latinos, y asi hay fundamento bastante para creer que el reflejo oriental que tomaron nuestras construcciones desde el siglo IX (y no antes) vino á España por el mediodia con los ostentosos Califas de Occidente. La restauracion de Carlomagno no habia tenido aun lugar en el siglo VIII, que es el siglo de Abde-r-rahman, puesto que para fabricar su basílica de Aquisgram tuvo que valerse de arquitectos y artífices de Bizancio. Véase Meibomius, Script. Rer. Germ., t. 1, pág. 257.

[37] Ad cujus sculpturam, quum columnas et marmora aliunde habere non posset, e Roma et Ravenna descendere curavit. (Script. Rer. Franc., t. 5.)

[38] Sunnah equivale á tradicion. Habia entre los musulmanes dos famosas sectas, los Sunnitas y los Schiitas. Los primeros reconocian como sucesores legítimos de Mahoma á los tres Califas Abu-Beckr, Omar y Othman, al paso que los segundos sostenian que habian sido usurpadores de una soberanía que solo pertenecia de derecho á Ali, primo del Profeta, y á quien este llamaba su hermano. Los Schiitas, pues, son los sectarios de Ali, y ambas sectas se trataban con inaudito encono, los de Ali fulminando imprecaciones contra los usurpadores de la sagrada herencia, y los Sunnitas escribiendo en el libro de la tradicion: «es mas grata á Dios la muerte de un Schiita que la de 36 Cristianos.»

[39] Asi llaman los árabes á la peregrinacion santa, viaje forzoso á la Caaba de la Meka, que es uno de los cuatro preceptos impuestos por el dim, ó práctica de la ley del Koran, y que todo muslin tiene que cumplir una vez al menos en su vida. «Esta peregrinacion, dice Mahoma, y el sacrificio de las víctimas, son un testimonio de sumision á la voluntad de Dios que los ha prescrito y de fidelidad al Profeta que los ha consumado para ejemplo de todos, ademas una expiacion de los pecados y el camino para conseguir el cielo.»

[40] Refiere la tradicion que cuando reconciliados Abraham y su hijo Ismael construían la Caaba de la Meka, faltándoles los andamios para levantar las paredes, el ángel Gabriel les trajo una larga piedra que se sostenia en el aire sin apoyo alguno, subiendo ó bajando á voluntad de los arquitectos. Esta piedra era un jacinto blanco, mas habiéndola tocado despues una muger en estado impuro, se volvió negra. Siendo Mahoma mancebo, el prestigio de su santidad hizo que los Coreixies reservasen para él el honor de colocar esta famosa piedra negra cuando quisieron construir de nuevo la Caaba ó casa de Dios con mayor magnificencia. A la piedra negra de la Caaba se refieren desde los postreros días de la vida del Profeta una porcion de ritos y ceremonias que pueden verse prolijamente detalladas en las eruditas notas de Gagnier, edicion de Abulfedá, pág. 130, copiando la interesante relacion de Gjaher, hijo de Abdallah, testigo presencial de la última visita de Mahoma á la casa de Dios.

[41] La noche de Al-Kadar, ó noche del Decreto de Dios, es aquella en que Mahoma supuso haber recibido el Koran. Tomando consigo unos cuantos de sus fieles adeptos, se retiró una noche el Profeta al monte Hera: no bien llegó al medio de la montaña, apareciósele Gabriel. Tenia en la mano el Koran, libro guardado en el sétimo cielo en la mesa del Altísimo, y que al descender á la tierra habia sido recogido por el arcángel. «Lée aqui, dijo Gabriel á Mahoma.—No sé leer, respondió el Coreixi.» Entonces el ángel le asió del cabello y le derribó tres veces de cara contra el suelo: á la tercera ya Mahoma sabia leer, y oyó una voz celestial que repitia: «Mahoma, tú eres el apóstol de Dios, ¡y yo soy Gabriel!» Quedó el Profeta abismado en su contemplacion y desapareció el ángel. (Véase Abulfedá, edicion de Gagnier.)

[42] Alkhatib equivale á predicador.

[43] Sabido es que las mezquitas no tienen campanas: los Almuedanes llaman á la oracion á los fieles desde los terrados ó galerías de los alminares, y esto se repite cinco veces cada dia. Las oraciones ó azalas son: Azohbí, la del alba; Adohar, la del mediodia; Alasar, la de la larde; Almagrib, la del sol poniente; y Alatema, la del anochecer.

[44] Las campananas empezaron á usarse en las basílicas cristianas desde el siglo V, aunque los primeros campanarios aislados no datan sino desde el siglo VIII ó IX. Véase Peyré, Manuel d'architecture religieuse au moyen-âge. Paris, 1848.

[45] «Pasarán las almas, dice el Koran, por un puente llamado el Sirath, mas sutil que un cabello, mas cortante que el filo de una espada: los justos lo atravesarán con la rapidez del relámpago; los malos titubearán y caerán en el infierno abierto bajo sus piés.»

[46] Este nombre de almalekes se conserva en los escritos de mística árabe-hispanos ó aljamiados para designar á los ángeles encargados por Dios de recibir á su entrada en el cielo á las almas de los justos. Segun las promesas del falso Profeta el Paraiso es el jardin de los placeres (gennat al naïm), y en él concede á sus elegidos cuantos deleites materiales y carnales puede concebir la voluptuosa imaginacion del pobre Beduino del desierto, exaltada por las privaciones de su vida nómade. En el Paraiso corren rios de leche, de miel, y de un vino que se puede beber sin embriagarse; en él crecen árboles cuyos ramages brindan á placer con dátiles, uvas y granadas de sabor esquisito. En aquella encantada morada el suelo es de azafran, el empedrado de perlas y jacintos. Al presentarse en ella el fiel creyente, ofrécense á su servicio diligentes mancebos de sorprendente hermosura, y uno de ellos le conduce las hijas del Paraiso, criaturas etéreas á cuyo solo nombre se extasia el férvido muslim. Estas vírgenes incomparables no fueron formadas de barro como las criaturas mortales, sino del mas puro almizcle, y estan exentas de todas las imperfecciones propias de su sexo: su modestia es sin igual, y en palanquines de una sola perla se recatan de las miradas profanas. Cada elegido tendrá 72 de estas divinas criaturas, las cuales se disputarán sus caricias y le darán largos dias de amorosa embriaguez al son de los acordes del ángel Israfil y de las campanas del Paraiso. Alli hay placeres para todos los sentidos: trescientos platos diversos para cada comida, con trescientas especies distintas de licores en trescientas copas de oro y pedrería; rozagantes vestiduras de seda y de brocado, perfumes de suavidad desconocida en la tierra, y por último una perpetua juventud.

Hemos tenido ocasion de copiar en la Biblioteca real de Paris un curioso M. S. aljamiado señalado con el núm. 290, que prescribe cierta oracion de mucha virtud contra el demonio en la hora de la muerte, la manera de leerla y la colocacion que ha de dársele cuando uno muere. Este documento, en que se retratan las supersticiosas prácticas de una religion gastada y sin vida, cual era la de los Mahometanos andaluces en el siglo XVI, hace mencion de los Almalekes ó ángeles mancebos que reciben en el Genna las almas de los justos. «Quien leyrá esta carta, dice, arredrarlo há Allah del fuego, e cuando entrará en la fuesa apercurarle há Allah setenta Almalekes que le escusarán su razon: e non será guerreado de Munkar Uanakir en la fuesa, nin será avergonzado cuando le demandarán cuenta. Sea escripta esta rogaria en papel ó pergamino limpio, e séale puesta debajo de su cabeza en su fuesa, e será dicho: duerme como duerme el novio cuando se casa, que no hay sobre tí miedo ni tristeza: e no salirá su arrúh (su alma) de su cuerpo fasta que vea su lugar en la Genna. E vestirlo han setenta Almalekes apercuradores con él, y vernan con atabales de la Genna y presentes, y albriciarlo han. E cuando salirá el dia del juicio, salirá con su carta á su man derecha, y su cara como luna de catorce noches, y su claridad andará entre sus manos,» etc.

[47] Genna, Paraiso. Véase la nota precedente.

[48] La descripcion mística de los siete cielos, cuyas maravillas fueron reveladas al Profeta en su viaje nocturno sobre el Borak, puede leerse en la Exposicion de la fé musulmana de Mohammed Ben Pir Alí, traducida últimamente al francés por M. Garcin de Tassy.

[49] Véase la nota 2.ª de la página 72.

[50] Abde-r-rahman I no tenia propiamente hablando wizires que administrasen el Estado en su nombre: solo tenia cierto número de jeques que tomaban asiento en su consejo y le auxiliaban con su esperiencia y sabiduría. Tambien concedió asiento en el consejo á algunos de sus secretarios ó Catibes, como sucedió con Umeyyah Ibn Yazíd, mauli ó favorito de Moavia Ibn Merwan, su próximo pariente. Véase Al-Makkarí, libro VI, cap. II, traduccion inglesa de Gayanges arriba citada.

[51] Este gigante sin corazon ni culto es la China: sabido es que en ella no ha prevalecido jamás de una manera constante religion alguna. La dinastía de los Thang que habia puesto la China á la cabeza del Asia degenerada, tocaba en la época de que vamos hablando al término de su poderío. La escesiva tolerancia, ó por mejor decir, la esclusion de toda religion dominante en el Estado, producia su fruto, y el Asia central volvia al indiferentismo filosófico que desde Confucio la venia incapacitando para todo progreso moral y político.

[52] Alúdese a la famosa reforma de Tai-Tsoung, emperador chino, que hizo los mayores esfuerzos por desterrar de su nacion la filosofía atea, á que se mostraba tan apegada, y vivificarla con la doctrina evangélica. La famosa inscripcion de Sin-guan-fou descubierta en 1625 en unas escavaciones por los misioneros jesuítas, prueba de una manera irrecusable la introduccion del cristianismo en China el año 635 y su duracion hasta el 781. Véase el P. Kircher, China ilustrada; el P. Visdelou, Suplem. á la bibliot. orient. de d'Herbelet; Abel de Remusat, Miscelánea asiática: Anales de filosofía cristiana, t. IV y XII.

[53] Proverbio árabe que alude á la rota de Roncesvalles. Véase Conde, t. 1, p. 201.

[54] Alude á la secta de los Iconoclastas ó destructores de imágenes, principalmente poderosa en el octavo siglo bajo Leon el Isáurico, emperador de Constantinopla, y que subsistia en la época en que se supone habla Abde-r-rahman, puesto que solo fué condenada desde un concilio celebrado en 787.

[55] Así escriben los árabes el nombre de Carlomagno.

[56] Irene, emperatriz de Constantinopla, célebre por su belleza y por sus nobles esfuerzos en favor de la Iglesia maltratada por los iconoclastas, ó destructores de imágenes, era viuda de Constantino Copronimo desde el año 780, y decíase que habia brindado con su mano á Carlomagno con el objeto de unir los dos imperios de Oriente y Occidente, y salvar de este modo á la cristiandad, amenazada por el creciente poderío de los Mahometanos. En el año en que habla Abde-r-rahman (786) aun no se habia reunido en Nicea por excitacion de esta emperatriz el concilio que restableció el culto de las imágenes; de modo que los iconoclastas seguian aun desahogando en los templos del imperio griego su asoladora manía, aunque no ya con la delirante furia que habian desplegado bajo su protector Leon el Isáuro.

[57] Pocos ignorarán sin duda las grandes victorias de Carlomagno contra los pueblos indómitos de la Germania. Antes de dirigir el célebre rey franco sus fuerzas hácia España, habia alcanzado en Paderborn un ruidoso triunfo, que mencionamos aqui por lo mucho que redundó en gloria y propagacion del cristianismo. Distinguíase entre los pueblos germanos por su valor y ferocidad la belicosa tribu de los Sajones. Estos eran idólatras, habian martirizado al pié de la estátua de su divinidad Hirmensul á los misioneros que les habia enviado Pipino, entregado á las llamas la iglesia de Deventer, y lanzado su salvage grito de guerra desde el advenimiento de Carlomagno al trono. Pero los Francos juraron esterminarlos si no abandonaban sus ídolos, y cumplieron su juramento. No referiremos las sangrientas batallas y costosas conquistas con que los Francos desempeñaron aquel memorable compromiso: diremos tan solo que lo llevaron á cabo, y que en el año 777, reuniendo Carlomagno una asamblea de Sajones sojuzgados en medio de una espaciosa llanura regada por cristalinos manantiales, dentro de la propia tierra de los vencidos, los caudillos Germanos recibieron el bautismo para revestir la blanca túnica de los Catecúmenos. Casi todos juraron fidelidad: solo se declaró independiente el intrépido y desleal Witikindo. Véase Eginhart, Annal. Carol. mag. vitæ.

[58] Temeroso el emperador de la China Te-Tsoung del rápido crecimiento de las hordas del Thibet, que ya una vez le habian salteado y saqueado su capital, pidió auxilio contra ellas á los Califas de Oriente, y Aroun al Raschid mandó sus diputados á la corte del celeste imperio. Las tribus del Thibet fueron batidas por los ejércitos del Califa, de los Tártaros y de los Chinos reunidos, y despues los Mahometanos aspiraron á la conquista del Asia Central. Véase el P. Gaubil. Histoire de la grande dynastie Thang.

[59] Alude á la derrota de Roncesvalles, cuya gloria se atribuyen los Arabes.

[60] Los Arabes mahometanos desde sus primeras conquistas sojuzgaron la Síria, el Egipto y la Persia. El antiguo imperio de Ciro, regido á la sazon por la degenerada dinastía de los Sassanidas, de cuya raza habia nacido mas de medio siglo antes el gran Cosroës, cayó bajo la cimitarra de Khaled, á quien denominaban: «Espada de las espadas de Dios.» Mahoma habia dicho á uno de sus compañeros: «Tu altivez y gloria serán completas cuando ostente tu cuello el collar de Cosroës,» y esta promesa habia estimulado de tal manera los brios de aquel terrible caudillo del ejército de Omar, que obligó á sus Arabes á fiar la victoria á una sola funcion contra todas las fuerzas de la monarquía persa reunidas. Decidióse la gran contienda en la sangrienta batalla de Cadesiah, que duró dos dias y una noche, y durante la cual los Arabes rugieron como el leon del desierto. Fueron derrotados los Asirios, y en testimonio de su triunfo levantaron los Musulmanes junto á las ciudades de Madain y Clesifon saqueadas las dos poblaciones célebres de Bassorah y Kuffah.

Las 25 coronas de los reyes de Iberia son las que dicen los historiadores árabes que encontró Tarik en el alcázar de Rodrigo, guarnecidas de jacintos y otras piedras preciosas, y pertenecientes á los 25 reyes godos que habia tenido España hasta el tiempo de la conquista.

[61] Créese que en el solar que ocupaba el alcázar viejo, y que es hoy Campo-Santo en Córdoba, estuvo el plátano que plantó Julio César despues de la batalla de Munda, y al cual hizo Marcial su elegante epigrama (62—lib. IX), que principia:

In Tartessiacis domus est notissima terris,
    Qua dives placidum Corduba Baetin amat;
Vellera nativo pallent ubi flava metallo.
    Et tinit Hesperium bractea viva pecus;
Ædibus in mediis totas amplexa Penates
    Stat platanus densis Cæsariana comis;
Hospitis invicti posuit quam dextera felix,
    Cœpit et ex illa crescere virga manu.

En vez del plátano de César ostentaba ahora Córdoba la palma de Abde-r-rahman, objeto de los sentidos versos reproducidos en una de las notas anteriores. Por la palabra Andalús se significa entre los Arabes toda la España Sarracena.

[62] Carlomagno, genio organizador que tanto civilizó á los Francos, que sojuzgando á los Aquitanos, á los Germanos y á los Longobardos sacó del caos de la barbarie la gigantesca unidad del Imperio de Occidente, no sabia ni aun leer cuando consumó sus mas ruidosas conquistas. Quizás estaba aprendiendo á deletrear bajo la direccion del diácono Alcuino cuando ideaba la restauracion de las artes y de las ciencias en Europa, y fundaba por inspiracion de aquel sabio eclesiástico, denominado en su siglo el Santuario de todas las artes liberales, las primeras academias y escuelas que conoció la Francia de la edad media.

[63] En la Iglesia gótica hubo desgraciadamente sacerdotes indignos, contra cuyos escesos clamaron siempre los santos padres, dignos prelados y sabios cenobitas, lumbreras de la afligida grey de Jesucristo en la tormentosa noche de las guerras é invasiones de aquellos siglos. La lucha contínua, inteligente, trabajosa y perseverante, contra las costumbres depravadas y la barbarie de todos los estados y condiciones, es cabalmente el timbre mas glorioso de la Iglesia en España, y el testimonio mas inerrable de su divina institucion. Pero los Sarracenos, obcecados como los Judíos, palpaban la miseria de los malos Cristianos y no veian las resplandecientes virtudes de los buenos.

[64] Mahoma en su vision beatífica, ó viaje á los siete cielos, describe la casa de la Adoracion como construida de jacintos rojos y cercada de lámparas que alumbran eternamente. Ocupa esta casa un parage alto y determinado en el sétimo cielo: alli se reunen cada dia en peregrinacion setenta mil ángeles de la mas alta gerarquía, y cada dia diferentes: en su forma se parece exactamente al templo ó Caaba de la Meka, y si desde el lugar donde se halla cayera perpendicularmente sobre la tierra, lo que puede muy bien acontecer algun dia, caeria necesariamente sobre dicho templo.

[65] La lucha de Carlomagno con las tribus bárbaras del norte se prolongó efectivamente hasta despues de entrado el siglo IX, estando ya empeñada, como hemos dicho en la nota 1 de la página 75, en la época en que habla Abde-r-rahman (año 786).

[66] En este mismo año de 786 recuperó el trono de Asturias D. Alonso el Casto.

[67] Aunque la arquitectura goda no pereció en España con la irrupcion sarracena, sin embargo, las construcciones de los primeros reyes de Asturias y Leon no podian menos de ser pobres y menesterosas, como lo era la misma monarquía; así que en los historiadores de aquellos tiempos, que nos han dejado noticia de nuestros templos y monasterios del siglo VIII, nada es mas comun que estas modestas descripciones: «de luto et latere» «de petra et luto opere parvo,» y otras semejantes. La basílica de S. Salvador de Oviedo, restaurada por D. Alonso el Casto, y construida de piedra y cal, excita sin embargo la admiracion del monge de Albelda y del obispo D. Sebastian, y Ambrosio de Morales nos asegura que aun duraban en su tiempo algunos pequeños trechos del suelo, que eran labrados de un mosáico de piedras diversas encajadas en la argamasa, y algo basto, mas muy firme y vistoso. Pero los historiadores árabes, muy ignorantes por lo comun de nuestros usos y artes, aunque tan en contacto con la civilizacion romano-gótica que hacia de la España la nacion mas adelantada del Occidente, por no haber encontrado entre nosotros las muelles y corruptoras costumbres del Asia, nos suelen pintar como salvages cubiertos de pieles, y á nuestros edificios como verdaderos antros de fieras. Los de los primeros tiempos de la invasion, no obstante, reconocian la cultura de los Godos, como quizá tendremos ocasion de hacerlo notar en lo sucesivo hablando del antiguo alcázar de Córdoba, que Ibnu Bashkuwal dice llamaban de antiguo Palacio de Rodrigo (Balátt Iludherik).

[68] Se asegura que la gran mezquita de Córdoba era objeto entre los Arabes de Occidente y de la costa de Africa de una veneracion igual á la que profesaban los Orientales á su Meka, y los historiadores afirman que aun despues de haber caído en manos de los Castellanos y de quedar convertida en templo católico, siguieron aquellos dirigiendo á ella sus peregrinaciones.

[69] La Caaba (ó casa cuadrada) de la Meka, construida segun unos primero por Adan, luego por Abraham é Ismaël, y por último reedificada con mas ostentacion por los árabes Coreixis antes de la predicacion de Mahoma, y fabricada segun otros por los ángeles, fué encerrada en la célebre mezquita de El-Haram, no se sabe en qué época. Edrisi, geógrafo árabe del XII siglo, la describe como ocupando el centro de una especie de recinto circular á cielo abierto, y revestida en la parte esterior de magníficos tapices de seda de Irac que la ocultan á la vista. Pero desde el siglo XII acá, la Caaba ha debido sufrir grandes alteraciones, porque leemos en la obra de Batissier, ya anteriormente citada, que su actual figura es la de un cubo trapezoide; que la cubre un velo negro sujeto con anillos de bronce fijos en el subasamento; que su techumbre está interiormente sostenida en dos columnas y oculta con un velo de seda color de rosa; que la alumbran infinitas lámparas de oro, y que cubre su puerta una cortina bordada de oro y plata. La Caaba se halla hoy encerrada en un espacioso patio de tres pórticos: tiene ademas el edificio que le sirve de recinto otros dos patios menores con arquerías, siete alminares, y varias dependencias. En el M. S. aljamiado, núm. 290 de la Biblioteca nacional de París, ya en otra ocasion citado, hay una especie de anécdota en que se refiere, que habiendo una compaña de Judios preguntado al Profeta, entre otras varias cosas, por qué habia hecho Dios la casa de la Meka cuadrada, Mahoma les respondió: «Cuando Allah mandó á Ibrehim Halaibí Issalám que fraguase la casa de Meka, y con él su fijo Asmehíl ayudándole á faser la dicha casa, empezó á faser la cuadra primera con estas palabras, tanto cuanto duró la primera cuadra: «Subhana Allah, Subhana Allah» (Alabado sea Dios, alabado sea Dios): y cuando empezaron á faser la otra cuadra, decian siempre: «Lalillahá Illa Allah, Lalillahá Illa Allah» (No hay mas Dios que Allah, no hay mas Dios que Allah): y cuando empezaron á faser la otra cuadra, decian: Allahu Akbar, Allahu Akbar» (Dios es grande, Dios es grande): y cuando empezaron la otra cuadra, fisiéronla diciendo: «Alhamdú lillahi, Alhamdú lillahi» (Demos loores á Dios, demos loores á Dios). Y por esto fué cuadrada; que si otra hubiera en las escribturas que Allah envió que fuera tal como estas, tambien Allah mi señor habria mandado poner otra cuadra mas; por cuanto no hay ni hubo en las aleyes (versículos) que Allah envió ninguna que igualare con estas, fué causa que quedó cuadrada.» Se ve, pues, que el cuadrado es la forma canónica y tradicional de las mezquitas, aun cuando nada haya prescrito Mahoma acerca de esto.

[70] Quibla, que los Árabes escriben Kiblah, es el punto que mira á la Meka: en las mezquitas de Siria y Palestina miraba la Quibla al mediodia próximamente, mas en las de Occidente debia mirar hacia el sudeste. Los Arabes andaluces, sin embargo, siguiendo de rutina la práctica establecida en Damasco y Bagdad, edificaron sus mezquitas con la Quibla ó lado del santuario vuelto al mediodia, de modo que en rigor su santuario no miraba á la Meka, aunque asi lo suponian. Mahoma en el Koran llama á la Meka Quibla del mundo.

[71] Amrú, caudillo famoso del ejército de Omar, que llevó á cabo con asombrosa rapidez la conquista del Egipto, edificó la gran mezquita del Cairo, que aun lleva su nombre. Esta mezquita, erigida en los primeros años de la Egira, es una de las mas antiguas y notables que se conocen: su disposicion y planta sería parecida á la de la mezquita de Córdoba si no tuviese en medio del cuerpo principal un segundo patio espacioso que interrumpe la serie de las 23 naves que de norte á sur y de oriente á poniente se cruzan en ángulo recto. En la mezquita de Amrú hay tres mihrab ó santuarios en vez de uno. La santa casa ó Alaksa de Jerusalem fué obra del Califa Omar, levantada sobre el mismo solar del templo de Salomon. Es regular que estos grandes edificios y otros igualmente célebres de aquellos tiempos, como las mezquitas de Medina y de Damasco, fuesen obra de artistas bizantinos, puesto que refiere Ebn-Khaldoun que el Califa Walid, hijo de Abd el Malek, tuvo que pedir arquitectos al emperador griego Justiniano II para poder erigir sus hoy famosas aljamas. (Véase Rev. gén. de l'Arch., 1840, p. 68, nota 1.)

[72] Dia memorable para Abde-r-rahman, porque fué el de la famosa batalla de Musara, en que derrotó á Jusuf el Fehrí, y que consideró como un feliz agüero de sus triunfos ulteriores. Debió aquella señalada victoria á sus caballeros Zenetes, base y núcleo de su poderoso ejército en España.

[73] El origen del arco llamado de herradura que usaron con predileccion los Arabes en España durante el Califato de Córdoba, ha sido objeto de muchas investigaciones arqueológicas. Batissier hace mérito en una de sus notas de la opinion de algunos que consideran este arco como una especie de símbolo de la huida del falso Profeta á Medina, que ocurrió en un novilunio. Añade, sin embargo, que los Persas y los Bizantinos lo usaban ya desde antes de la Egira, y cita á Texier, que en su Descripcion de la Armenia lo manifiesta perfectamente dibujado en la catedral de Dighour, anterior á la conquista arábiga. A mayor abundamiento, atribuyen tambien la introduccion del arco de herradura á los Bizantinos los anticuarios Hope, Alb. Lenoir y Girault de Prangey; y M. Couchard la refiere á los arquitectos persas llamados á Constantinopla por los emperadores griegos. Pero lo cierto es que ni de la iglesia de Seleucia en Persia, ni de la de los Incorporales de Atenas, monumentos bizantinos en que se descubre dicho arco, se sabe positivamente á qué época pertenecen. Véase Gailhabaud: monumentos antiguos y modernos; mezquita de Córdoba: texto.

[74] La cúpula adaptada á un plano circular por el estilo de la rotonda, forma favorita para los mausoleos de los personages ilustres, es construccion romana antigua, si bien pueden citarse varios ejemplos de haberla usado los pueblos de Asia y Grecia en los tiempos mas remotos (véase la obra de Layard sobre los descubrimientos hechos en la antigua Nínive: véase tambien Batissier: Grecia: Tesoro de Atreo); no así la cúpula bizantina, que descansa sobre un plano cuadrangular y que fué introducida por los arquitectos del Bajo Imperio para diferenciar sin duda de las construcciones circulares paganas, las construcciones religiosas propias del cristianismo, que se seguian coronando con las techumbres hemisféricas, tan magestuosas y simbólicas. En efecto, la disposicion neo-griega era la única posible para adaptar á la interseccion de los dos rectángulos que forman los brazos y el árbol de la cruz, la cúpula que representa la bóveda del firmamento en que descansa el trono de Dios. Esta fué la cúpula con que coronó Justiniano su famosa basílica de Santa Sofía de Constantinopla, y de aqui es probable que se difundiese á las naciones que se hallaban mas en contacto con Bizancio, una de las cuales era la Persia. La cúpula neo-griega, ó bizantina, se usó sin embargo antes de Justiniano, aunque no en tan grande escala como en Santa Sofía, que fué la que, por decirlo así, canonizó esta práctica del arte de construir: de manera que los Persas, poco inventivos de suyo en todos tiempos, pudieron desde dos siglos antes de la conquista arábiga haberse educado en los usos y prácticas de los arquitectos bizantinos. Los estudios arqueológicos confirman plenamente esta induccion histórica: la dinastía de los Sasanidas, que comienza con Artajerjes en el año 226 antes de Cristo y se perpetúa hasta los primeros años de la Egira de Mahoma, hace alarde de la doble inoculacion romana que el arte persa esperimenta, bajo Sapor por sus guerras con Valeriano, y bajo Cosroës por sus relaciones con Justiniano, erigiendo en la llanura de Nakschi-Rustan y en la ribera del Eufrates (palacio de Tak Kesra) los monumentos que hoy nos la revelan. Los Arabes al conquistar la Persia salian en cierto modo de la vida nómade del pastoreo, no tenian por consiguiente artistas esperimentados, y al hacerse dueños de la suntuosa corte de Ctesifon, al apoderarse de los magníficos palacios de Sarbistan y Firouzabad, aprendieron sin duda como por encanto el arte soberbio de levantar sin largo y trabajoso aprendizage las elegantes construcciones de Kuffah y Bassorah. Lo que en estas dos ciudades improvisadas del Tigris y del Eufrates hicieron, basta para indicarnos lo que podian hacer en los demas paises. De todas maneras, es indudable que por lo que en Persia vieron y practicaron, por lo que aprendieron tambien con la conquista de la Siria y del Egipto, su arquitectura no podia menos de ser en sus principios generadores bizantina. Pero de esto hablaremos mas adelante con la necesaria estension.

[75] En efecto, las almenas endentadas de los muros que forman el recinto esterior de la mezquita de Córdoba, parecen un recuerdo de las que se ven en un monumento persa del siglo VI, atribuido á Sapor, y llamado el Taki Bostan, en una montaña del Bagistan. Esta clase de almenas, comunes en muchos edificios árabes, no tienen modelo conocido en ninguna de las antiguas construcciones de Italia y de Grecia. Véase Batissier, p. 406.

[76] La copia del Koran, dice Al-Makkari, que se supone escrita por el Califa Othman y que se conservaba depositada en el mimbar ó púlpito de la gran mezquita de Córdoba, estaba cuidadosamente guardada en una caja de oro guarnecida de perlas y rubies, forrada de rica seda, y encerrada en una pequeña arca de madera de aloe con clavos de oro. Citando al historiador Ibn Marzúk, predicador de gran fama, añade que la copia del Koran llamada Othmaní en Africa y Andalucía, es una de las cuatro copias que el Califa Othman envió á la Meka, á Bassorah, á Kuffah y á Damasco, y que se conservó en la referida mezquita cordobesa hasta un sábado 11 del mes de Xawal del año 556 de la Egira, en que fué robada segun era fama por orden de Abdulmumen Ibn Alí, que se la llevó á Africa, acompañándole en todas sus espediciones militares. Niega Ibn Marzúk que esta copia estuviese manchada con la sangre de Othman, segun era voz popular en Andalucía; pero el Sr. Gayangos observa en una de sus eruditas notas que tanto Ibnu-l-abbar como el geógrafo Ibn Iyás, que afirman hallarse en su tiempo este Koran en Córdoba, declaran positivamente que se veían en él de una manera inequívoca señales de la preciosa sangre del Califa. El mismo Sr. Gayangos esplica en la propia nota, alegando la autoridad de Idrisi, que la copia de Córdoba se denominaba Othmaní, no porque Othman la hubiese escrito, sino porque en ella se contenian cuatro hojas del Koran con que el Califa habia intentado escudar su pecho contra el puñal de sus asesinos.

[77] El oficio de Katib ó secretario era de dos especies: su cargo mas importante era el de la correspondencia del Sultan con sus aliados ó enemigos, y la redaccion de las órdenes del soberano. El segundo cargo era de proteccion y seguridad de los Cristianos y Judíos. Véase Al-Makkarí, lib. I, cap. 8.

[78] Para el gobierno civil de los Cristianos habia destinados ministros, cuyo principal empleo era el de Conde, que equivalia á intendente ó gobernador. Era esta dignidad una reliquia, digámoslo así, de la pasada administracion goda, bajo la cual el título de Conde, ademas de cargo palatino, que suponia en el que lo llevaba tener debajo de sí en el palacio del rey alguna clase ó dependencia, significaba mando superior en alguna ciudad ó provincia. En la monarquía asturiana, el Conde en la capital de su gobierno ó señorío tenia corte como los reyes, ponia jueces y magistrados en las ciudades y villas subalternas, y en tiempo de guerra iba al frente de su ejército como general. Mas el cargo de Conde de los Cristianos en las ciudades sujetas á los Sarracenos era un vano simulacro de la antigua dignidad. «Tengan los Cristianos, decia el privilegio de Coimbra otorgado en 734 por el moro Alboacen, un Conde de su propia gente, que los mantenga en buena ley, conforme á la costumbre de los Cristianos: y este compondrá las discordias que se movieren entre ellos, y no matará hombre alguno sin orden del Cadí (alcalde) ó Wazir (alguacil) moro; mas traerlo han delante del Cadí y mostrarán sus leyes, y él dirá, bien está, y darle han por decir «bien está» cien pesos de plata, y matarán al culpado.» De donde se infiere que el Conde que daba á los Cristianos de Coimbra Alboacen era en cuanto al imperio un mero delegado del justicia mahometano, que por sí propio no tenia potestad ejecutiva en los negocios criminales. Agréguese á esto, que aunque por la oscuridad y escasez de las antigüedades no consta positivamente quién nombraba al Conde, lo probable es que fuese hechura del rey mahometano. Que el Conde de los Cristianos bajo el Califato era en todo dependiente de la voluntad del Sultan, se deduce claramente de lo que ocurrió en tiempo de S. Eulogio con el Conde Servando, famoso por su perfidia, el cual, segun afirman Alvaro Cordobés y el abad Sanson, llegó á aquella dignidad á fuerza de obsequios y regalos que hizo á los Palatinos, y logró orden del rey para exigir nuevos y exorbitantes tributos de los Cristianos, á quienes debía amparar.

No consta en verdad que el Conde cristiano en tiempo de Abde-r-rahman I fuese ningun malvado; es de suponer por el contrario, atendida la paz de que entonces disfrutaba aquella Iglesia, que fuese un verdadero protector de sus connaturales en los asuntos cuyo conocimiento le estaba cometido. Por lo demas, no habiendo llegado á nosotros memoria alguna del prelado que á la sazon regia aquella cautiva grey, ¿habremos de estrañar que no se diga quién fuese en aquellos años el Conde? Sin embargo, persuadidos de que esta autoridad subsistió siempre, y de que su intervencion en la venta de la basílica debió ser necesaria por el protectorado que suponia, hemos hecho mencion de ella. Al Conde ademas correspondia comunicar las órdenes consiguientes al censor y al esceptor (alcalde, y tesorero de los caudales; véase Florez, trat. 33, cap. 7: gobierno civil de los Cristianos), pues aunque tambien estos eran nombrados por el rey muslim, estaban bajo la dependencia del Conde.

[79] La riqueza del Estado cordobés procedia principalmente del producto de los impuestos, de los despojos de los vencidos, y de las limosnas que á los Muslimes imponia la Sunnah. Los impuestos eran de tres especies: el azaque, que se pagaba en frutos, y que era un diezmo recaudado sobre todas las producciones de la agricultura y de la industria, y sobre los productos de los ganados; el charage (xarach), que era pecuniario, y se pagaba por la importacion y esportacion de las mercaderías, y del que estaban exentos los objetos de plata, oro y piedras preciosas, si se destinaban á armas, arneses, libros, ó joyeles para las mugeres; finalmente, el taadil ó capitacion sobre Cristianos y Judíos.

Del botín de guerra se separaba un quinto, que se llamaba la parte del Califa: lo demas se repartia entre los gefes y soldados. El tesoro privado del Califa se aumentaba ademas con frecuentes donativos que le hacian propios y estraños, como se verá en lo sucesivo.

La limosna (sadakah) era el único impuesto legal á que estaba sujeto todo Musulman por la Sunnah.

[80] Sobre esta singular costumbre de dividir los Musulmanes con los Cristianos las basílicas de las ciudades conquistadas, y de que no se encuentra memoria en nuestros antiguos cronistas, pueden verse las autoridades citadas en la nota 1.ª del Sr. Gayangos al cap. II, lib. III de Makkarí.

[81] Abdalla, hermano de Walid, que construyó la grande aljama de Damasco, fué el primero que impuso tributos á los monges cristianos. Hallándose de gobernador en Egipto mandó que todos los que hacian vida monacal pagasen un dinar al año. Los Cristianos de Córdoba pagaban, segun refiere Bravo (Obispos de Córdoba, t. I), á medida del capricho de los gobernadores sarracenos. La moneda de los Musulmanes en tiempo de Mahoma y sus primeros sucesores fué la griega ó persiana. Despues los Califas de Oriente acuñaron moneda con caractéres cúficos en Kuffah y Bassorah, y con esta moneda asiática entraron los Arabes en Espada, y con ella se mantuvieron hasta que Abde-r-rahman I estableció casa de moneda en Córdoba, conservando al parecer los mismos valores usados hasta entonces. Habia, pues, entre los Arabes: el dinar, que era de oro, el adirham, que era de plata, y el mitcal, que era de plata ó de oro. Valia el dinar 20 adirhames ó dragmas, y el adirham valia 14 karats: el mitcal de plata, dice Cantos Benitez, equivalia á 5 reales de vellon actuales, y el mitcal de oro diez veces mas, ó 50 reales de vellon. El Califa Omar mandó que el mitcal de oro valiese 20 karats, y el adirham 14 karats. Segun esto, si el mitcal de oro valia 50 reales vellon, el adirham valia 35, y el dinar, que contenia 20 adirhames, valdia 700 reales.

[82] Segun ha evidenciado Masdeu en su Historia crítica. t. 13, lib. II, «nuestra Península no solo era la nacion mas culta de toda Europa, sino la única provincia que conservaba todavia la cultura romana; la única que sabia las tres lenguas doctas, hebrea, griega y latina; la única que podia gloriarse de hombres verdaderamente sabios; la única que tenia seminarios, academias y bibliotecas... Aun con las bárbaras y sangrientas irrupciones de los Mahometanos, no se cerraron del todo nuestras escuelas y colegios, no se desampararon los estudios, no se abandonó el cuidado de recoger libros y formar bibliotecas, no se dió lugar á la supersticion y barbarie de los demas europeos... No sabian los Italianos medir un verso ni hablar bien en la lengua de sus padres, cuando resonaban las prosas y las poesías de nuestros Eulogios y Alvaros... Nuestras catedrales y monasterios renovaban los archivos y librerías quemados por los moros; nuestros obispos y abades mantenian seminarios de instruccion para clérigos y niños; nuestros eclesiásticos y doctores ejercitaban la pluma en tratados científicos y eruditos.» Cabalmente son Cordobeses los dos sabios Alvaro y Eulogio citados por el crítico Masdeu, y ambos se formaron en la escuela de un ilustre abad, llamado Esperaindeo, que probablemente cursaba siendo adolescente las aulas de la iglesia cordobesa en los años últimos del reinado de Abde-r-rahman I. Decimos que probablemente estudiaria Esperaindeo en Córdoba, porqué de seguro no se sabe, si bien tampoco se contradice. Que en la época de que tratamos podia ya haber dado en flores alguna promesa de los hermosos frutos que luego produjo, no hay la menor duda, puesto que consta por su discípulo S. Eulogio que antes del año 856 murió muy anciano. El abad Esperaindeo escribió contra las supersticiones de Mahoma una obra hoy lastimosamente perdida, pero que, á juzgar por el único capítulo que de ella nos conserva S. Eulogio, debia ser digna de la fama que en aquellos tiempos logró su autor. Las escuelas de Córdoba fueron en los siglos VIII y IX verdaderos planteles de acérrimos y doctos enemigos del islamismo. En vida de Esperaindeo escribió el ilustre y noble Paulo Alvaro su Indículo luminoso, y otros piadosos y eruditos varones se ejercitaron en el género epistolar, combatiendo tambien la doctrina del Koran; que tal era entonces la necesidad mas imperiosa y aflictiva que aquejaba al Occidente comprometiendo su futura civilizacion. Reinando en Córdoba Abde-r-rahman brillaban en otras iglesias doctores muy insignes, como Eterio en Osma, Beato en Liébana, Félix en Urgél, Elipando en Toledo, etc., etc.; y en el oscuro horizonte de la afligida iglesia de Sevilla empezaba á amanecer la estrella de Juan Hispalense.

[83] Entre los Cristianos de Andalucía se habian fomentado algunos errores: Migencio habia querido introducir novedades en la celebracion de la Pascua; Elipando enseñaba que J. C. en cuanto Dios era hijo natural y propio del Padre Eterno, pero adoptivo en cuanto Hombre. ó segun la humanidad, que decia adoptada por la union al Divino Verbo, segunda Persona de la Santísima Trinidad. Esta heregía cundió mucho en la Bética, y aunque su autor reconoció despues el error y se retractó públicamente, los Cristianos de Córdoba padecieron mucho por su causa, pues como asegura Gomez Bravo (obra cit.), sus fautores, valiéndose del brazo bárbaro de los Sarracenos, persiguieron cruelmente á los que defendian la verdadera doctrina de la Iglesia católica.

[84] La historia de los trabajos evangélicos de los obispos de Córdoba bajo las dominaciones romana y goda se halla minuciosamente relatada en los primeros capítulos de la interesante obra de Gomez Bravo: Catálogo de los obispos de Córdoba, etc. El incansable celo, las peregrinaciones, los escritos, las discusiones sostenidas por estos en los concilios desde los tiempos del grande Osio, son las pruebas mas concluyentes y luminosas del espíritu eminentemente civilizador de la Iglesia de Jesucristo.

[85] El primero que oprimió á los Cristianos de Córdoba con exacciones fué Alahor, tercero que gobernó á España en nombre del Califa de Oriente desde 715 hasta 719. De este afirma el arzobispo D. Rodrigo en su Historia de los Arabes, que los desustanció. El Pacense dá á entender que los Moros habian quitado algunos bienes á los Cristianos en tiempo de paz, y que Alahor se los volvió para sacar de ellos tributos. A los mismos Sarracenos que habian entrado en España con la primera conquista los encarcelaba y atormentaba para que declarasen los tesoros que habian escondido. Su sucesor Zama formó padron de todo lo que se debia tributar, haciendo partes de los bienes que poseían los Moros sin division ni señalamiento: en cuya conformidad distribuyó por suerte las posesiones, aplicando unas á los soldados y otras al fisco. A los Cristianos de las ciudades conquistadas por fuerza los gravó en la quinta parte, y á los que no opusieron resistencia les señaló la décima, segun refiere D. Rodrigo. Ambisa duplicó los tributos de los Cristianos, aumentando tambien el fisco con los bienes de los Judíos, como espresa el Pacense en el número 53 de la edicion del P. Florez. Yahia siguió los pasos de Alahor, pues segun el mismo autor (núm. 54), precisó á los Moros á que restituyesen á los Cristianos muchos bienes que les habian quitado en tiempo de paz. Los sucesores vivieron en casi continua guerra hasta que eligieron á Jusuf, el cual mandó hacer nuevo padron, borrando de la lista de los tributos á los Cristianos ya difuntos, pues en el tributo personal que bajo su antecesor Toaba satisfacian estaban tan oprimidos, que, como de Diocleciano y Maximiano escribe Lactancio, obligaban á los vivos á que le pagasen por los muertos.

Por estas noticias, que sumariamente estractamos de los historiadores Florez y Bravo, podrá formarse el lector una ligera idea de la esclavitud en que vivian antes de Abde-r-rahman I los miserables Cristianos de Córdoba bajo el solo concepto de las capitaciones y tributos. Pero nos resta añadir algo acerca del medio practicado para la cobranza de los tributos ordinarios bajo los Califas, que era probablemente el que se seguia en la época á que se refiere nuestra narracion. «El modo de las contribuciones, dice el citado Florez (Esp. Sagr., trat. 33, cap. 7), no era repartiendo el tributo por familias, sino exigiéndole á las mismas personas cuando los ministros las encontraban en público: de suerte que uno no pagaba por otro, sino cada uno por sí, y esto en caso de manifestarse, pues mientras se mantuviese recogido en casa, no le hacian estorsion, segun prueba el libro de Habitu Clericorum, escrito por el presbítero Leovigildo, para instruir á los clérigos que no salian al público por enfermedad, ó por el tributo que en cada mes pagaban los Cristianos: Ut qui ex nobis ad remanentes Doctores imbecillitate corporis præpediente dirigere gressus nequiverit, aut quem inquisitio vel census, vel vectigalis, quod omni lunari mense pro Christi nomine solvere cogimur, retinuerit; saltim nocturno tempore qui necessarium duxerit legat, etc. Esta reclusion por librarse de los tributos prueba que solo los pagaban cuando salian al público libres de toda estorsion si la enfermedad ó la pobreza los obligaba á mantenerse ocultos.»

De los tributos estraordinarios impuestos á los infelices Cristianos en tiempo de la persecucion sarracena se hablará mas adelante.

[86] Es muy de notar que ninguno de los historiados cristianos, entre los cuales descuellan Ambrosio de Morales, el P. Roa, Diaz de Ribas, Florez, Masdeu, y otros no menos diligentes en la investigacion de las memorias y documentos de España bajo el dominio de los árabes, haga mencion, ni leve alusion siquiera, á este hecho de la venta de la basílica cristiana á los Mahometanos que refiere Ar-razi. Los historiadores árabes, sin embargo, pueden ayudarnos en muchas cosas á suplir el silencio de los nuestros: silencio que nada tiene de particular atendida la natural turbacion y desconcierto de aquellos primeros tiempos de la España muzárabe, durante los cuales, la misma tolerancia de los dominadores pudo en cierto modo contribuir á que no surgiesen al pronto del seno de la Iglesia española de la Bética esos hombres notables, dechados de ciencia y santidad, que luego la ilustraron en las épocas de persecucion. Así como estos pueden servir de guias al historiador desde la mitad del noveno siglo; para el conocimiento de la edad anterior, que comprende desde la conquista de los Sarracenos hasta S. Eulogio, no hay mas luz que la que dan el Pacense, el moro Rasis y el arzobispo D. Rodrigo: el Pacense, porque acabó de escribir su crónica en el año 754 de Cristo, es decir, poco antes de apoderarse del trono de Córdoba Abde-r-rahman I; el moro Rasis, porque aunque contemporáneo de S. Eulogio, tomó lo anterior á su tiempo de tres autores que escribieron lo que veían, y principalmente del Al-Bucar, escritor que Morales califica como de mucha estima y autoridad entre los Moros; el arzobispo D. Rodrigo, finalmente, porque segun espresa el mismo Morales, de su gravedad se puede tener por cierto que usó buena diligencia en lo que escribia. Ninguno de estos tres historiadores nos dice cuál fuese la basílica catedral de los Cristianos de Córdoba cuando la ciudad fué ganada por los árabes; y sin embargo, por una serie de inducciones que en los angostos limites de esta nota no cabe apuntar, muchos autorizados anticuarios convienen en que la principal iglesia cristiana ocupaba el mismo sitio que hoy ocupa la famosa mezquita, y que dicha iglesia fué construida por los godos sobre las ruinas de un suntuoso templo romano, consagrado á Jano. Varios de nuestros mas graves historiadores por otra parte, convienen con Ambrosio de Morales en que la basílica de los tres mártires Fausto, Januario y Marcial, hoy iglesia de S. Pedro, fué la catedral donde residió el obispo bajo los Califas; y sin embargo, no hay oposicion entre ambas conjeturas, porque pudo muy bien haber sido catedral la basílica de los tres mártires desde los años de Abde-r-rahman I, y catedral de los Cristianos godos cuando la conquista arábiga la otra iglesia, de advocacion desconocida, edificada en el solar del antiguo templo pagano, puesto que los historiadores mencionados no dicen desde qué año fué catedral la basílica citada. Es claro que para fijar este dato eran menester otros mucho mas principales, y que ignorándose hasta el número y nombres de los prelados que gobernaron la iglesia de Córdoba desde el año de la pérdida de España hasta el de 850 en que comienza la persecucion sarracénica, no debe estrañarse que se ignoren otras particularidades de menos monta; pero á veces sucede colmarse impensadamente un gran vacio con un simple dato de poca importancia al parecer, como se ilumina un espacioso é ignorado antro con el resplandor de una pequeña llamita.

Leemos, pues, en la obra tantas veces citada de Al-Makkari, copiando al historiador Ar-razi, que los conquistadores de Andalucía imitaron la conducta de los generales musulmanes que habian tomado á Damasco, y que lo mismo que estos habian dividido con los Cristianos de Siria el templo principal de dicha ciudad, dividieron ellos con los Cordobeses el templo principal de Córdoba, sobre el cual andando el tiempo construyó Abde-r-rahman la gran mezquita. (Véase la pág. 86 de este tomo.) Otro escritor árabe (que cita el erudito Sr. Gayangos en la nota 2, cap. II, lib. III de la citada obra), llamado Ibu Habib, dice que la principal iglesia cristiana de Córdoba, en la época de su espugnacion por los Sarracenos, estaba situada en el barrio denominado Kudyat Abi'abdah: ahora bien, este barrio es el parage mismo que designa Al-Makkari como asiento del antiguo Palacio de Rodrigo, y siendo este palacio de Rodrigo el mismo alcázar que los godos y árabes habitaron en Córdoba, y que hoy designados con el nombre de Alcázar viejo, cerca de la mezquita, parece que debe quedar muy poca duda acerca de la conformidad absoluta entre los dos historiadores Ar-razi é Ibn Habib. El testimonio de estos se conforma también con las observaciones de los anticuarios, que por la grande abundancia de fragmentos romanos que en la Aljama arábiga se advierte, asignan á estos un origen pagano y suntuoso, solo propio de un gran templo, ó de muchos monumentos antiguos á la vez; y al propio tiempo no se opone á las deducciones de nuestros respetables historiadores. Asi, pues, admitiendo la veracidad de los historiadores árabes citados, y por consiguiente la probabilidad de que los Sarracenos conquistadores de Córdoba siguiesen el precepto recomendado por el célebre conquistador de la Siria Omar el Farruck y dividiesen con los Cristianos el principal de sus templos, sin contradecir en lo mínimo el relato mas fidedigno de nuestros escritores, antes bien completándolo en la parte que ellos dejan intacta por falta de documentos, podemos establecer: que la basílica catedral de Córdoba, fundada por los Godos sobre la planta de un templo pagano, sirvió, dividida en dos mitades, por espacio de unos setenta años á los dos cultos cristiano y mahometano; que Abde-r-rahman I compró á los Cristianos su parte, como afirma Ar-razi; y que la nueva iglesia que ellos entonces obtuvieron permiso de erigir para el culto cristiano esclusivamente, segun el mismo historiador árabe refiere, no fué otra que esa misma basílica de los tres mártires Fausto, Januario y Marcial, de fundacion hasta ahora nunca determinada, y que sirvió de catedral á los Cristianos Cordobeses todo el tiempo que duró el Califato y aun despues hasta el dia de la reconquista.

Acerca de la advocacion de la primitiva basílica catedral no resulta cosa cierta: algunos creen (y lo rebate el licenciado D. Pedro Diaz de Rivas en sus antigüedades de Córdoba, Discurso IV, templo de Jano Augusto) que la iglesia mayor se denominase de S. Jorge. Toman su fundamento en la narracion del moro Rasis, que dice: que el rey godo nombrado por los Cordobeses despues de muerto Rodrigo, sabedor de que la ciudad habia sido entrada por sorpresa por la hueste de Mugeith que andaba ya quebrantando las puertas, se acogió á un templo fuerte dedicado á S. Jorge, en el cual se defendió con los suyos por espacio de tres meses. Suponiendo que solo la iglesia principal podía calificarse de fuerte presidio, discurrieron estos que la defensa debia haberse hecho en el edificio de la catedral. Ambrosio de Morales queria que el templo de S. Jorge fuese la actual iglesia de S. Salvador. Pero el citado Diaz de Rivas con muy sólidos argumentos induce á creer que la resistencia del caudillo godo con su gente tuviese lugar en la iglesia del convento de Sta. Clara, que en tiempos antiguos llevó sucesivamente los nombres de S. Jorge y Sta. Catalina. Ar-razi asienta que la iglesia principal de los Cristianos de Córdoba estaba dedicada á S. Vicente, y verdaderamente no hallamos dificultad para que asi fuese, á menos que se quisiera suponer que la primitiva catedral estuviese bajo la advocacion de los tres mártires. Pero en este caso, ¿qué nombre habia llevado hasta el año 786 la basílica derruida que los Cristianos restauraron para catedral despues de vender la antigua al rey árabe?

[87] Segun los cánones de los concilios y decretos de los Santos Padres no podian venderse las cosas sagradas mas que en ciertos y determinados casos, y esta es la doctrina usual y corriente de la Iglesia. El obispo era el principal administrador de todas las rentas eclesiásticas, no podia enagenar los bienes, ni venderlos sin aprobacion de todo el clero, ni disponer de ellos en ninguna manera. «Si algun obispo ó algun clérigo vendiere ó diere sin conseio de los otros clérigos alguna cosa de la eglesia (decia la ley visigoda (III, tít. I, lib. V)), mandamos que non vala, si non fuere fecho cuemo mandan los decretos de los Santos Padres.» Los casos en que es permitido al obispo enagenar las cosas sagradas con consentimiento de su clero pueden verse latamente en los autores de derecho canónico, principalmente en Devoti, Berardi, Ferraris, etc. En la enagenacion de la basílica de Córdoba concurrian varias de estas causas, pues no solamente se trataba de evitar los males de la promiscuidad de dos cultos tan opuestos como el cristiano y el mahometano, sino que ademas era de necesidad casi absoluta el constituir la catedral cristiana cómoda, decorosa y separadamente.

[88] Refiriendo Ahmed Al-Makkarí los tratos que entre los Cristianos y el rey árabe mediaron para la cesion de la antigua basílica, dice que despues de nuevas insistencias cedieron los Cristianos, con la condicion de que se les habia de permitir reedificar otra iglesia que habia sido destruida, cerca de los muros, y para el culto de su Dios solamente. No declara en verdad con palabras terminantes el historiador citado que esta iglesia derruida fuese la de los tres mártires Fausto, Januario y Marcial; pero probando abundantemente Ambrosio de Morales y los demas escritores cordobeses, Rea Rivas y Gomez Bravo, que la basílica de los tres mártires fué la antigua catedral donde residió el obispo todo el tiempo de la dominacion sarracénica, resulta evidenciado del cotejo de nuestros historiadores con el mencionado Al-Makkarí, que la iglesia que los Cristianos levantaron en sustitucion de su antigua basílica catedral, vendida á los Musulmanes, fué esa misma de los tres mártires, situada en efecto cerca de los muros de la ciudad á la parte del mediodia, y en la Axarquía ó parte baja que ocupaban los Cristianos.

[89] El Símbolo ó fórmula de fé que aprobó el Concilio de Nicea fué la que concibió Osio, como dice S. Atanasio, que se halló presente; y la hizo saber ó publicó en el mismo Concilio Hermógenes, segun refiere S. Basilio, para que oida y considerada la aprobasen y confirmasen los Padres.

[90] En las catedrales de la España mozárabe, lo mismo que en las de la Espada goda, habia dos casas de comunidad, la una de eclesiásticos segun costumbre antigua, y la otra de niños educandos como se estila aun en los seminarios. El seminario ó cónclave de niños era para los hijos y descendientes de los libertos de la catedral, y para todos los demas niños oblatos ú ofrecidos por sus padres al servicio de la iglesia. Alli los criaba un anciano docto y piadoso, dándoles la instruccion necesaria en lo espiritual y literario, y cumplidos los 18 años se les preguntaba delante de todo el clero si querian casarse ó vivir solteros; y de alli á otros dos años, segun la respuesta que habian dado, ó los promovian al subdiaconado, ó les permitian el matrimonio dejándoles ir á sus casas.

[91] Habia escuelas en las basílicas y monasterios, y tambien bibliotecas, aunque estas no eran siempre lo que hoy entendemos bajo ese nombre. Muchas veces en los documentos de la España árabe se hace mencion de bibliotecas, que no eran sino una coleccion completa de los libros sagrados del viejo y nuevo Testamento, ó propiamente hablando biblias: y de esta especie eran la biblioteca que el conde Adulfo costeó para la iglesia de S. Acisclo, segun se colige del epigrama primero de Cipriano, arcipreste de Córdoba, y la famosa del presbítero Leovigildo que celebró en una larga é ingeniosa composicion poética Alvaro Cordobés.

[92] Juma, aljuma ó alchuma es el dia festivo, ó viernes, de descanso y reunion para los Mahometanos, asi como entre nosotros lo es el domingo.

[93] Aliden y Alidzán: pregon, convocatoria que se hace en la parte esterior de las mezquitas para que el pueblo acuda á la azala ú oracion.

[94] El Koran enseña á los Mahometanos que ademas de los ángeles y de los demonios hay otros seres de especie intermedia, llamados jines ó chines (genios), formados del fuego, y capaces de salvacion ó condenacion eterna como las criaturas mortales. Los Orientales creen que estos genios, entre los cuales los hay buenos y malos, propicios y maléficos, habitaron la tierra muchos siglos antes de la creacion de Adan, y que los que sobrevivieron á la destruccion con que fueron castigados por sus maldades, combatidos por un antiguo rey persa llamado Tahmurath, tuvieron que retraerse á las famosas montañas de Kaf. Entre estos jines, unos son Péris ó Fadas, otros Dives ó gigantes, otros por último Tacoines ó destinos.

[95] Los historiadores árabes designan con el nombre de Palacio de Rodrigo (Balátt Rudherik) al que hoy designamos con el nombre de Alcázar, al Occidente de la mezquita, orilla del rio; no, como dice Al-Makkarí, porque se creyese que lo habia fundado el rey Rodrigo, sino porque este monarca lo habitaba siempre que iba á Córdoba. Nuestros historiadores suponen que este palacio fué construido por Teodofredo, padre de D. Rodrigo, cuando le desterró á dicha ciudad Egica, y en verdad que no alcanzamos por qué se separa Ambrosio de Morales del comun sentir, estableciendo que Teodofredo pudo haber fundado su palacio en la Albayda ó Casa blanca, media legua al norte de Córdoba. Menos todavía se esplica esta conjetura del sabio cronista si el paso en que la establece (lib. 12, cap. 63) se coteja con otro mas adelante (lib. cit., cap. 67), en que dice hablando del rey Rodrigo: «fortificó mucho los palacios de su padre en Córdoba, así que les quedó despues su nombre, y los Moros los llaman Palacios del rey Rodrigo

[96] La mezquita de Córdoba es acaso el primer monumento en que se empleó el arco ultra-semicircular ó de herradura en España, y el único que presenta esa estraña, ligera y elegantísima combinacion de arcos sobrepuestos, que hará de él uno de los ejemplares mas preciosos é inestimables del arte monumental mientras se dé culto al genio y á la poesía en el mundo.

[97] Hotba ó Kotba equivale á sermon, plática, arenga. En ella se contiene una especie de rogativa por la salud del soberano reinante, que concluye en estos términos: «Oh mi Dios, sé misericordioso con los Califas ortodoxos, distinguidos por la doctrina, la virtud y los celestiales dones de que los has colmado, que han juzgado y obrado segun la verdad y la justicia. ¡Oh mi Dios! Sosten, asiste y defiende á tu servidor el Califa (ó el Sultan) N..., perpetúa su imperio y su poder.» Abolió Abde-r-rahman la supremacía espiritual de los Beni Abbas ó Abassides en España, prohibiendo que se mentase el nombre del Califa en los púlpitos ó mimbares de las mezquitas, y aunque él no se atrevió á tomar declaradamente el título de Califa de Occidente, como empezó sin embargo á usar el de Amiru-l-moslemin (Amir ó cabeza de los muslimes andaluces), y el de Omará-bnu-l-kholafá (Amir, hijo de los Califas), es indudable que fué considerado como soberano reinante, y que desde este momento en la rogativa de la hotba se hacia espresion de su nombre. En las aljamas ó mezquitas principales debia haber sermon y lecturas piadosas todos los viernes ó jumas, y todo fiel musulman debia oirlas pudiendo salir de su casa al nacer el sol para volver á la puesta. Por eso la Ley y Sunnah les recomendaba que viviesen lo mas cerca posible de las aljamas.

[98] Mimbar quiere decir lo mismo que púlpito, en el cual se colocaba para ser bien visto y oido de todos el Imam ó el Alfaquí que dirigia las oraciones, y el Khatib que hacia el sermon.

[99] Aunque propiamente hablando solo era Imam el Califa, por ser el único verdadero gefe y cabeza en lo civil y religioso, no obstante por similitud se daba el mismo nombre al Alfaquí que dirigia ó presidia en la mezquita los ritos y ceremonias. El Alfaquí, pues, era Imam ó cabeza dentro del templo para lo relativo al culto. Abde-r-rahman no obstante, como acostumbraba á hacer oficios sacerdotales muchos viernes predicando al pueblo desde el mimbar, ó presidiendo los entierros y recitando las oraciones de ritual sobre los difuntos, merece bajo ambos conceptos el título de Imam que le dá uno de los historiadores citados por Al-Makkarí.

[100] Llamaban á Abde-r-rahman el invasor, el conquistador, por antonomasia (Addákhel en arábigo); no el intruso como traduce Conde, á quien corrige oportunamente el Sr. Gayangos en la nota 36, pág. II, lib. VI de la citada Historia de las dinastías mahometanas.

[101] El erudito y laborioso orientalista arriba citado acaba de ordenar é imprimir, para ayudar á la inteligencia de la Coleccion de fueros y cartas pueblas que prepara la Real Academia de la Historia, dos interesantísimos tratados de legislacion musulmana, civil y religiosa; de la segunda parte de este curioso libro, en que se contiene la Suma de los principales mandamientos y prohibiciones de la Ley y de la Sunnah, sacamos el siguiente extracto, que quizás no desagrará al lector por la minuciosidad con que en él se dá cuenta de las ceremonias usadas entre los Mahometanos con los muertos. «Sea acordado al que está á la muerte el nombramiento de Allah, y no se le debe acercar ninguna persona que no tenga takor (que no se haya purificado) despues que sea fallecido: y dióse por los sabios licencia para que se lea á su cabecera, y no fué amado por Melique (ó por Malik ben Ans, fundador de la famosa doctrina teológica que sustituyó en Andalucía á la antigua del Auzei) que den boces ni gritos, sino que lloren pacientemente quanto mas puedan. El bañar al muerto no ay tasa cierta en ello, mas báñelo quien mejor supiere, de manera que quede limpio... Bien passa que bañe el marido á la muger, y la muger al marido, y la muger al muchacho, quando es de poca edad. No le quiten al muerto cabellos, ni uñas, ni lo hatenen (ó circunciden), ni le quiten cosa de su cuerpo, sino alímpienlo quanto puedan. No bañen al que muere en fi çabil y llahi (por la causa de Dios en la guerra santa) en la gueste ó batalla, ni le amortajen ni hagan açala sobre él, y entiérrenle en su fuessa con sus mesmos bestidos como estubiere. Sea amortajado el difunto en tres lienzos, ó cinco, ó siete, blancos, hechos tiras, ó camisas una sobre otra de grado en grado... pónganle olores buenos en los lugares del çuchud (por los cuales entendemos las partes del cuerpo con que se hace la postracion ó acto de humillacion en tierra, que es una de las posturas de la azala), y llébenle á enterrar quando aya pasado la ora del açala sobre él, etc.» El autor de esta Suma es D. Içe de Gebir, Alfaquí mayor y Muftí de la Aljama de Segovia en el siglo XV, y la escribió en lenguaje aljamiado para el uso de los que habian ya perdido el conocimiento de la lengua árabe, declarando ser su intencion sacar la mas pura doctrina de los antiguos maestros de la Santa Ley y Açunna.

[102] Llamaban tambien á Abde-r-rahman el halcon Coreixí (Sakr Koraysh) aludiendo á la velocidad de sus conquistas.

[103] Tradiciones recogidas por Hozail sobre los merecimientos de la guerra santa en el Andalús. «Dijo Aixa, la muger del Profeta: llegará tiempo en que se pondrá fin á la guerra santa, si no es en cierta península que tiene por nombre Andalús en Maghreb l'Aksá, y el morabito, hombre de frontera en ella, ganará mas méritos que el mártir cuando viene bañado en su propia sangre.» Tambien decia: «el mejor rebato sobre la haz de la tierra es el del Andalús: su oriente es enemigo, su ocaso es enemigo, su septentrion enemigo, y su mediodia enemigo tambien.» Otra tradicion decia: «Alzóse el Profeta de Dios en la mezquita cierto dia y estendió su mano hácia occidente como bendiciendo: dijéronle: ¿á quién bendices, oh Profeta de Allah?—A cierta porcion de mi pueblo, dijo, que mora mas allá de Maghreb l'Aksá, region que tiene por nombre Andalús... Los vivos son alli morabitos, y los muertos mártires, á quienes recogerán las nubes allende el mar infiel para llevarlos el dia del juicio al sitio de la resurreccion cual gotas de agua.» (De la milicia de los Arabes en España.==Opúsculo por D. Serafin Estevanez Calderon.)

[104] Las tribus árabes, que dejando las tiendas de sus mayores se establecieron en Andalucía, mantuvieron hasta la caida del Califato de Córdoba constantemente viva la animosidad que desde un principio separó á los descendientes de los dos principales troncos Adnán y Khattán. Entre las varias tribus de la estirpe de Adnán era la de los Beni Modhar la predominante por su número en Andalucía, y con el apoyo que le prestaron los Beni Umeyas, procedentes del mismo tronco, los descendientes de Khattán, llamados Arabes del Yemen ó Yemenitas, no pudieron hasta el reinado del usurpador Al-Mansúr equilibrar su poder con el de sus irreconciliables enemigos.

[105] Huete.

[106] Todas las oraciones y ceremonias de los Mahometanos acaban con el Salam ó Salutacion; la cual se hace tambien á los seres invisibles, como por ejemplo, á los dos ángeles que segun el Koran estan á derecha é izquierda de todo el que ora ó hace su azala.

[107] Hízola, segun refiere Al-Makkarí, al lado opuesto de la Puerta de los jardines del palacio de Córdoba.

[108] Alguado: lavatorio, ablucion.

[109] Véase la lámina que representa la Puerta de las Palmas desde el patio.

[110] The History of the Mohammedan Dynasties in Spain, etc. Tomo I, pág. 219.

[111] Bagdad.

[112] No hay en esto la menor exageracion de nuestra parte. El que quiera formarse una idea aproximada del desenfrenado lujo introducido en el imperio árabe de Oriente por los Califas Abassides, rivales en esplendor y magnificencia de los antiguos Asirios y Persas y de sus contemporáneos los emperadores griegos, puede consultar las obras de Hammer, Hist. de l'Empire Ottoman; Malcolm, Hist. de Perse; Gaillardin, Hist. du moyen âge; Œlsner, Des effets de la religion de Mohammed; Mills, Hist. du Mahométisme; etc., etc.

[113] Al-Makkarí: Hist. de las dinastías mahometanas, tomo 2, pág. 126.

[114] Los Cristianos y Judíos fueron colmados de agasajos y de honores en la corte de Harun al Raschid, los primeros por sus conocimientos en la filosofía y en la medicina, y los segundos por la sutileza é ingenio con que manejaban las místicas teorías de la escuela alejandrina y de la antigua filosofía hermética, tan conformes á la imaginacion exaltada de los Arabes. Los Cristianos lograron ser poderosos é influyentes, y los Judíos obtuvieron que fuesen protegidas sus escuelas fundadas en Sora y Pundebita.

[115] El ciego entusiasmo del Califa Al-Mamún por las ciencias le llevó hasta el ridículo estremo de declarar la guerra al emperador de Constantinopla solo por haberse opuesto á que Leon, arzobispo de Tesalónica, se trasladase á Bagdad.

[116] El colegio de Bagdad.

[117] Abu-Thaman es el nombre del afortunado poeta que lo compuso.

[118] Los Abassides adoptaron el negro como su color privativo para el trage de guerra y de corte, y aun para sus pendones y banderas, y de aquí viene el distinguirlos con el apelativo de Califas negros. Sus rivales los Umeyas, por el contrario, usaban como color de ceremonia el blanco.

[119] Es sabido que el papa Silvestre II antes de entrar en la regla de S. Benito perfeccionó sus estudios en las escuelas de la España árabe.

[120] «Y habiendo ejecutado lo mismo (esto es, habiéndose rebelado) el suburbio ó ciudad baja de Córdoba, entró por la puerta nueva Abdelcarin, su general, y prendió mas de trescientos Arabes amotinados, que luego mandó colgar á la orilla del rio junto á la puerta del Puente.» Así Bravo, Obisp. de Córd. Al-Makkarí (cap. III, lib. VI), bajo el epígrafe Sedicion en Córdoba, dice que el arrabal ó suburbio amotinado fué el de Poniente; y el Sr. Gayangos en una de las notas que ilustran este pasage dice que segun otros autores ocurrió el levantamiento en el suburbio de Sbakandah ó Secunda, que caía al Sur de la capital.

[121] El ridá era una especie de manto ó capa que llevaban los dervíses y faquires, fanáticos mendicantes que andando el tiempo abundaron mucho en todos los paises musulmanes.

[122] Con la cara tiznada de kohol y siwak, dice Al-Makkarí, palabras que el traductor y comentador interpreta polvos dentríficos, añadiendo en una nota que el siwak puede significar así un específico cualquiera para limpiar la dentadura, como el palo que usaban los Arabes al efecto en vez de cepillo. Damos razon de estos y otros pormenores porque son rasgos gráficos que hacen mas interesante la historia antigua del pueblo musulman, cuyas costumbres y usos domésticos son poco conocidos.

[123] Habiendo el emperador griego Teófilo solicitado alianza de Abde-r-rahman II y enviádole ricos presentes para grangeársela, con objeto de reunirse ambos contra los ejércitos amenazantes de los Abassides, el sultan andaluz concibió cierto deseo de reconquistar en el Oriente el imperio de los proscritos Umeyas, sus antecesores, y entabláronse desde luego relaciones de amistad entre los dos soberanos. Abde-r-rahman correspondió á los presentes del griego con un magnífico regalo, encomendado á uno de los caballeros mas cumplidos de su corte para que se le entregase en persona. Fué el elegido para este encargo un tal Yahia Al-ghazal, muy celebrado por su sabiduría y talento poético, con quien gustaba despues el rey, dice Conde, conversar informándose de las costumbres de los reyes infieles, y de los pueblos y ciudades que habia visto, pues tambien habia viajado por tierra de Afranc. Al-ghazal fué muy afortunado en su legacion de Constantinopla, porque no solo concluyó la alianza requerida, sino que consiguió ademas (refiere Al-Makkarí) que el nombre de Abde-r-rahman fuese allí mas respetado que el del Califa Abassida. Este último historiador cuenta varias anécdotas curiosas de la galanteria de Al-ghazal en las cortes que recorrió. Llamábanle la gacela (Al-ghazal) por su hermosura, pertenecia á la tribu de Bekr Ibn Wáyil, era natural de Jaen, sobresalía en las ciencias naturales y en la poesía, y el escritor Ibnu Hayyán le llamaba el sabio (A'lim) de Andalucía.

[124] Mas adelante se hablará de este singular personage, insigne músico de la Iraca, á quien tuvo el rey hospedado en su propio alcázar, colmándole de agasajos y liberalidades.

[125] Obeydullah Ibnu-l-balensí (es decir, Obeydullah, hijo del valenciano), nieto de Abde-r-rahman I, se distinguió principalmente contra los Cristianos de Alava y las Castillas. «En el año 224 (A. D. 838), dice An-nuwayrí, Abde-r-rahman envió un ejército contra el enemigo bajo el mando de Obeydullah, hijo de Abdullah el valenciano; llegó este ejército á Alava y á la tierra de los castillos, y tuvo con los infieles un encuentro en que, despues de un rudo pelear y de una gran matanza, fueron derrotados los Cristianos. Fueron tantos sus muertos, que cuando estaban ya apiladas sus cabezas en el campo de batalla, no podia un ginete ver á su compañero.»

Nuestros historiadores no hacen mencion de esta derrota; al contrario, pintan bajo el reinado de D. Alfonso el Casto muy crudamente escarmentados á los capitanes de Abde-r-rahman II en los acontecimientos de Galicia. Solo Dios sabe la verdad, repetiremos á usanza de los Arabes.

[126] Las paces ajustadas entre Abde-r-rahman II y Cárlos el Calvo constan por los Anales Berlinianos, donde, bajo el año 847, se refiere con este motivo la peticion que los afligidos cristianos de España dirigieron al rey franco á fin de que reclamara de Abde-r-rahman que le entregase cierto diácono aleman, apóstata, que andaba concitando en Córdoba contra ellos los ánimos del rey y de los principales sarracenos. «Legati Abdirhaman Regis Sarracenorum á Corduba Hispaniæ ad Carolum pacis petendæ fæderisque firmandi gratia veniunt... Bodo, qui ante annos aliquat Christiana veritate derelicta ad Judæorum perfidiam concesserat, in tantum mali profecit, ut in omnes Christianos Hispaniæ degentes, tam Regis quam gentis Sarracenorum animos concitare statuerit... Super quo omnium illius Regni Christianorum petitio ad Carolum Regem... missa est, ut memoratus Apostata reposceretur, ne diutius, etc.»

[127] El metropolitano de Sevilla, Recafredo, cediendo á las intimaciones de Abde-r-rahman, prohibió á los cristianos presentarse voluntariamente ante los Cadíes para confesar á Cristo, y persuadido de un esceptor de tributos que despues apostató de la religion cristiana, mandó que no se tuviesen por mártires, sino por malhechores temerarios, los que espontáneamente se ofreciesen á los referidos jueces. Tambien decretó que se tuviesen por escomulgados los que sin ser violentados á comparecer fuesen condenados á muerte, y como á tales se quemaron los cuerpos de algunos que permanecian todavía pendientes en el lugar del suplicio. Este decreto suscitó de parte del obispo Saulo, S. Eulogio y otros muchos sacerdotes, enérgicas impugnaciones que avivaron la fé de los cristianos. Menudearon desde entonces las confesiones, y arreció la cólera de los perseguidores. Determinó el rey árabe, oido su consejo, que tuviese cualquiera musulman facultad para quitar la vida al que hablase mal de su profeta y secta. Con esta resolucion «los buenos y celosos huyeron y se ocultaron, dice Gomez Bravo; los malos apostataron de la religion cristiana; otros publicaban que los mártires habian sido indiscretos y temerarios, aunque antes los habian venerado por felicísimos; otros, que desde el principio los habian anatematizado, los maldecian y llenaban de oprobios.» Oigamos mas bien las sentidas quejas de Alvaro en su Indículo luminoso: ¿Nonne ipsi, qui videbantur columnæ, qui putabantur Ecclesiæ Petræ, qui credebantur electi, nullo cogente, nemine provocante, judicem adierunt, et in præsentia cinicorum, imo Epicurorum Dei Martyres infamarunt? ¿Nonne Pastores Christi, Doctores Ecclesiæ, Episcopi, Abbates, Presbyteri, Proceres et Magnati hæreticos eos esse publice clamarunt? ¿Et quos in Catholica fide natos, et matris Ecclesiæ uberibus nutritos noverunt, meretricio concubitu, et adulterorum cibo pastos esse firmarunt? ¿Et est ne aliquis de flagello qui adhuc conquirat digne, cum causam ipsius videt flagelli?

[128] Es de advertir que en la primitiva iglesia no se tenian en público por santos ni se hacia fiesta como á tales sino á solos los mártires, y que en la iglesia mozárabe de Córdoba perseveraba esta costumbre. «En padeciendo un mártir, dice Ambrosio de Morales, luego le celebraban la fiesta en todos los años, le decian sus horas y le daban su leyenda.» Proclamábanse, pues, los santos en la España árabe por voz pública en cuanto morian, sin esperar canonizacion de Roma. La canonizacion, ó por lo menos su principio, parece sin embargo de origen mas antiguo, puesto que segun los martirologios, el Papa Leon III mandó tener por santos y rezar de ellos á algunos que allí se nombran, y este Papa ascendió al pontificado el año de J. C. 796.

[129] Siguiendo el ejemplo de Conde traducimos en romance octosílabo los versos de Abde-r-rahman, cuyo original puede verse en la nota 32 del Sr. Gayangos al cap. IV, lib. VI de Al-Makkarí.

[130] Copiando al historiador Ibrabim el Katib refiere Conde, que un dia regaló el sultan á una esclava suya, muy linda y preciosa, un collar ó gargantilla de oro, perlas y pedrería, de valor de 10,000 dinares ó doblas de oro, y que contando despues el rey á su poeta Abdala ben Xamri que á sus wazires, presentes á la dádiva, les habia parecido escesiva, el poeta por adular el gusto de su señor habia improvisado un concepto en verso encareciendo las gracias de la esclava querida, al cual contestó el rey con esta otra improvisacion:

Es don tuyo Aben Xamri—la elegante poesía,
los oscuros pensamientos—tu claridad ilumina
cual las sombras de la noche     —la luz del alba disipa:
su encanto por el oido—en el corazon destila,
como la gracia y beldad—de una criatura linda
nuestros ojos arrebata—nuestro corazon hechiza,
mas que la rosa y jazmin—mas que las eras floridas.
Mi corazon y mis ojos—á ser mios todavía,
rendido los ensartara—en la hermosa gargantilla.

[131] Mandó Abde-r-rahman construir hermosas mezquitas en Córdoba, y en ellas puso fuentes de mármol y jaspes varios, y trajo á la ciudad las aguas dulces desde los montes con encañados de plomo, y la llenó de fuentes y edificó baños públicos de mucha comodidad, y abrevaderos y grandes pilas para las caballerías. Enlosó las calles de su corte, edificó alcázares en las ciudades principales de España, reparó los caminos y construyó las rusafas ó jardines á orillas del Guadalquivir, dotó las madrisas ó escuelas de muchas poblaciones, y mantenia en la madrisa de la aljama de Córdoba trescientos niños huérfanos. (Conde, tomo I, cap. 40.)

A pesar de esto, no es creible que fuese este sultan el que llevára á la mezquita mayor las aguas de la sierra para el atrio de las abluciones, porque al hablar Al-Makkarí de las mejoras hechas en el gran edificio por Al-hakem II muchos años despues, dá á entender su traductor que hasta el tiempo en que este Califa construyó los cuatro nuevos pilares para el alguado y las purificaciones surtiéndolos con agua de la sierra, no habia habido para estos usos mas fuente en el patio mencionado que la de un gran depósito que se llenaba con agua de una noria vecina, probablemente movida por un camello.

[132] Este soberbio acueducto, que todavía subsiste (aunque inutilizado en algunos de sus ramales, pues tenia varios), y en cuya descripcion tan prolijamente se ejercitó la escudriñadora pluma de Ambrosio de Morales, teniendo presentes las memorias del arzobispo D. Rodrigo, y añadiendo de su propio caudal muy curiosas noticias, tenia su principio á dos leguas y media de la ciudad, arrancaba en la misma sierra é iba recogiendo otros golpes de agua en el camino. Venia esta encauzada en conductos de fortísima argamasa, embovedados, de tres piés de anchura, y revestidos por dentro de un betun fino y duro como escayola dado de bermellon. Morales que lo reconoció dice que esta costra de betun conservaba el color del bermellon tan vivo como el dia que allí se puso. Atravesaba el referido conducto grandes montañas, trabajosamente horadadas; y para que el enorme peso de estas no hundiese la obra, levantaron por todo aquel espacio muchas lumbreras á manera de torres muy juntas, que suben hasta lo alto y sustentan la montaña aliviando el peso con repartirlo en aquellos pequeños trechos. Atravesaba tambien el conducto los valles, los arroyos y los barrancos, sobre sólidos y hermosos puentes, que el mismo cronista vió antes de que se deshiciesen para los edificios del monasterio de S. Gerónimo de la Sierra. Ultimamente al llegar á la ciudad, en vez de ir el acueducto derecho al alcázar y á la mezquita, daba un gran rodeo para entrar por lo mas alto de la poblacion á fin de que el agua se distribuyera facilmente por todos sus barrios, es decir, que cruzaba por la dehesa de Cantarranas (al norte de la actual plaza de toros), y tocaba en la puerta del Osario, desde donde iba el agua á todas partes por gruesos atanores ó caños de plomo. A la mezquita, sin embargo, no llegó probablemente el agua hasta el reinado de Al-hakem II.

[133] Véase á Ambrosio de Morales, lib. XIII, cap. XLIV, refiriendo la ocasion del martirio de las dos santas vírgenes Nunilo y Alodia, y al P. Roa en su Flos Sanctorum de Córdoba, copiando de S. Eulogio la breve memoria de los protomártires Adulfo y Juan.

[134] «Si algun cristiano entrare en la mezquita, ó dijere mal de Dios ó de Mahoma, tórnese moro, ó sea muerto,» decia el fuero de Coimbra. Una nueva ley de Abde-r-rahman II prescribia que al cristiano que entrase en una mezquita se le cortasen los piés y las manos, y por otra se mandaba que el que injuriase á algun mahometano fuese azotado, y el que le hiriese fuese muerto. Ecce enim lex publica pendet, et legalis jussa per omne regnum eorum discurrit, ut qui blasphemaverit flagelletur, et qui percuserit occidatur. (Alvaro. Indículo luminoso, núm. 6, pág. 228 de la edicion de Florez.)

[135] Llamábanle en efecto sus súbditos el victorioso (Abú-l-motref) y tambien padre de los vencedores (Abú-l-modhaffer).

[136] Los árabes en efecto no daban tormento corporal á los cristianos infractores de las citadas leyes: cuando cualquier cristiano, movido de su celo y fervorosa fé, hablaba en público contra Mahoma ó su secta, era acusado y preso, y si perseveraba en su propósito lo degollaban, sin azotarle ni darle otra pena, porque la legislacion musulmana prohibia que al que habia de sufrir pena de muerte se le diese ningun otro castigo. Nadie obligaba, pues, á los cristianos á apostatar: podian permanecer en su religion sin ser molestados siempre que ellos no se propasasen á desobedecer las citadas leyes penales, y es claro que la generalidad de los mozárabes, que no se sentian animados de un estraordinario valor, cumplian con sus deberes religiosos y se justificaban á los ojos de Dios obedeciendo sumisos aquellas prohibiciones. ¿Mas habráse de deducir por esto que no era loable y muy de envidiar el santo celo de los mártires, que burlándose de las humanas leyes y de sus opresores se presentaban espontáneamente á declarar su fé y á vituperar los errores del mahometismo? De ninguna manera: ¿quién podrá disputarle á Dios, que inflamaba sus corazones y movia sus lenguas, el derecho de suscitar esos testigos heróicos de la verdad en los tiempos lastimosos en que reina y prevalece el error? Téngase por seguro que cuando la causa es de justicia y en favor de la verdad, la obra es de Dios, parezca lo que quiera. De buena gana entraríamos en algunas esplanaciones sobre este punto, porque son muchos los que todavía consideran á los gloriosos mártires de la persecucion sarracénica como víctimas mas de su deplorable fanatismo que de la saña de los musulmanes; pero habiendo sido este error victoriosamente confutado por el P. Florez (trat. 33, cap. 10, §. II de la España Sagrada), el cual discute ampliamente todos los argumentos alegados contra los referidos mártires desde su mismo tiempo por los mahometanos y por los cristianos tibios ó apóstatas, parece inútil y hasta presuntuoso acometer con poca erudicion sagrada una cuestion de tamaña importancia en una simple nota, escena indigna de personages tales como S. Cipriano y S. Isidoro que en ella figuran.

[137] Hija de un cristianismo adulterado, la iglesia nestoriana de Oriente, arraigada desde el VI siglo en las mas florecientes regiones del Asia, en la India, en la Arabia feliz, en Socotra y en la Bactriana, entre los Hunos, los Persarmenios, los Medos y los Elamitas, con sus obispos, sus pseudo-mártires y sus sacerdotes, ejerció una accion tan poderosa en las tendencias del mahometismo naciente por medio de sus misioneros, que se asegura que Mahoma debió al trato y escuela del monge nestoriano Sergio casi toda la instruccion bíblica de que se auxilió para tejer las rapsodias de su Koran. Así los cristianos caldeos y los sarracenos procedieron desde los años primeros de la Egira como aliados y amigos. El falso profeta celebró con aquella secta un famoso tratado, que bajo el título de Testamentum Mahometi dió á luz en árabe y latin en París Gabriel Sionita el año de 1630, y cuya sustancia se contiene tambien en tres escritores sirios, Bar Hebræus, Maris y Amrus, que incluye Assemani en el tomo IV, pág. 59 de su Biblioteca oriental. Por este tratado de paz concedia Mahoma á la comunidad nestoriana muy importantes exenciones y privilegios. Ultimamente, compruébase la gran tolerancia de los Arabes para con los cristianos de la Iglesia Caldea por la carta del patriarca Jesujabus á Simon, metropolitano de una ciudad persa, que contiene esta notable manifestacion: «Hasta los Arabes, á quienes el Omnipotente ha concedido en estos dias la dominacion de la tierra, son de los nuestros, como no ignoras. No son perseguidores de la religion de Cristo; por el contrario, recomiendan nuestra fé, y honran á los santos y ministros del Señor haciendo beneficios á sus iglesias y monasterios. (Véase Assemani, obr. cit., t. 3, pág. 131.)

[138] La iglesia caldea ó nestoriana profesa dogmas que tienen muchos puntos de contacto con los de la iglesia protestante. Como ella despoja á la Santísima Madre de Dios de sus mas gloriosos títulos y atributos; como ella niega la doctrina del Purgatorio y rechaza el culto de las imágenes; como ella contradice la doctrina de la Transubstanciacion y de la presencia actual de Jesucristo en el Sacramento; como ella hace compatible el matrimonio con los grados mayores y menores de la gerarquía eclesiástica. El fundamento de la doctrina nestoriana es en suma el mismo que el de la iglesia reformada: la divisibilidad y separacion de dos personas y dos naturalezas en Cristo, ó lo que es lo mismo, la distincion de dos personas en Cristo, el Verbo de Dios y el hombre Jesus; distincion que los católicos reconocemos como errónea por la union del Verbo con la naturaleza humana, que los teólogos llaman hipostática. (Véase Assemani, t. IV.)

[139] Sábese por S. Eulogio y Alvaro Cordobés que en los tiempos de persecucion se añadian á los tributos ordinarios que pagaban los cristianos otros estraordinarios, sin duda como castigo y medio de intimidacion. Tenemos un ejemplo de la apurada situacion á que muchos se veian reducidos en estas estraordinarias circunstancias, en el viaje que los hermanos de S. Eulogio, Isidoro y Alvaro, tuvieron que emprender á Alemania con mercaderías de Córdoba, en busca de recursos con que vivir y satisfacer aquellos desmedidos impuestos.

[140] Véase la vida de S. Perfecto, presbítero. Los mártires cristianos eran inmolados en la esplanada que caia al pié del alcázar y sobre el rio, en el parage que hoy llamamos el Campillo: situacion que determina perfectamente Ambrosio de Morales. A la orilla opuesta del Guadalquivir se estiende frontero á la ciudad por el mediodia el Campo de la Verdad, lugar muy concurrido á la sazon, no sabemos por qué motivo, aunque el mismo Morales, traduciendo á S. Eulogio, supone que los mahometanos le tenian destinado á sus malvadas oraciones. Diciendo el mismo santo que el martirio de S. Perfecto tuvo lugar el dia primero de la Pascua de los mahometanos despues de su ayuno, es posible que aquel dia se hubiese reunido en el Campo de la Verdad mucha gente á distraerse y espaciarse, y que, como las cinco azalas obligatorias para todo muslim podian cumplirse en el campo y al raso lo mismo que en la mezquita, fuese el mencionado parage preferido por los Cordobeses á los otros paseos y ejidos de la ciudad por la circunstancia de tener al lado el rio en donde hacer sus abluciones y purificaciones. Como quiera que esto deba entenderse, ocurrió, pues, hallarse el Campo de la Verdad lleno de turbas cuando fué conducido al suplicio S. Perfecto, y que, oyendo decir como el santo mártir acababa de ser degollado, volvieron tumultuosamente á la ciudad para verlo, «y muy contentas y alegres por haberle visto empapado en su sangre, como se habia revolcado en ella con el ímpetu de la muerte, se tornaron al campo para hacer su azala

[141] Tambien los musulmanes eran muy delicados en ciertas cosas de conciencia, y muy sutiles los casuistas que los resolvian. El que desee formarse idea del candoroso cinismo de uno de los Amires mas cultos é ilustrados, lea en Al-Makkarí el estraño caso que propuso Abde-r-rahman en plena asamblea de los principales teólogos de su corte relativamente al precepto del ayuno de Ramadhán.

[142] Por ejemplo la que Abde-r-rahman II introdujo de presentarse en público siempre velado; la de usar en las vestiduras reales su propio nombre bordado en la orla; la de hacer grabar en su sello esta piadosa leyenda: «El siervo del misericordioso descansa contento en los decretos de Dios.»

[143] Este nombre (dracknar) daban los Normandos á sus naves. Véase Michelet, Historia de Francia. Conde y Al-Makkarí refieren concordes la invasion de los Normandos el año 844.

[144] Véase la nota 2, pág. 118.

[145] Las annefilas eran las oraciones voluntarias que hacian los muslimes devotos, fuera de las cinco azalas ú oraciones obligatorias.

[146] El mancebo Sancho, martirizado en junio del año 851, habia sido page en el palacio de Abde-r-rahman.

[147] Véase el martirio de la virgen Flora, acaecido en noviembre del mismo año.

[148] Aunque muy mal dicho. Esta proposicion no se demuestra facilmente en una sencilla nota. Quien dude de ella lea los escritos de M. de Bonald, y especialmente el del 28 de octubre de 1810 (Mélanges littéraires, etc., tomo 2, pág. 497), donde verá la gran diferencia que hay entre cultura y civilizacion.

[149] Zaryab mejoró el antiguo laud aumentándole una cuerda. Los árabes, aficionados á simbolizarlo todo, decian que las cuerdas del laud representaban, la primera, que era amarilla, la bilis; la segunda, que era encarnada, la sangre; la tercera, blanca, la linfa; la cuarta, negra, los malos humores. Zaryab añadió una quinta cuerda entre la segunda y la tercera, que correspondia al alma. Véase Al-Makkarí, cap. IV, lib. VI.

[150] Véase la nota 2, pág. 98.

[151] El Sahbá era un licor, especie de vino claro, que habian inventado los mahometanos para eludir la espresa prohibicion alcoránica del ghamar ó vino rojo. Véase Conde, t. 1, pág. 307.

[152] El mihshah era una especie de capa, por el estilo de la que llevaba la gente comun. No nos esplica el traductor de Al-Makkarí qué clase de estofas eran las llamadas mulham y muharr.

[153] El plato llamado at-tafayá, que por lo visto era un bocado esquisito para los árabes-andaluces, no parece segun la descripcion del historiador á quien seguimos muy digno de figurar hoy en el catálogo del Cordon-bleu. Reducíase á un mixto de albóndigas y pasta frito en aceite de semilla de cilantro. Cuando esto se cita como una memorable innovacion, ¡qué tal sería la cocina de los sultanes!

[154] Véase Al-Makkarí, loc. cit.

[155] Por falta de noticias históricas no podemos hoy determinar si estos dos pórticos, de que habla solo Al-Makkarí, eran enteramente nuevos, ó meras modificaciones de la obra de Hixem que dejamos descrita: pág. 107.

[156] Entiéndase bien que esta decadencia solo puede llamarse tal comparada con el fervoroso celo de los sultanes predecesores. Abde-r-rahman II erigió mezquitas en las principales ciudades de Andalucía; pero ninguna de ellas con el sello de grandeza y esplendidez que imprimieron los primeros sultanes en la Aljama fundada por Abde-r-rahman I.

[157] Leyes morales religiosas y civiles de Mahoma, tomo 2, parte 3.ª Del matrimonio, artículo I. Esta interesante obra pertenece á la Collection des Moralistes anciens de M. Lefèvre.

[158] El que compraba una sierva tenia sobre su cuerpo derechos ilimitados. Véase el tít. XVII, Leyes de moros, publicadas por la real academia de la Historia.

[159] Todavía llevan este nombre en Turquía las bañadoras de la Sultana.

[160] Leyes de moros, tít. LXII.

[161] Véase el art. I del capítulo Del matrimonio citado en la nota 1.

[162] «¡Oh profeta! Manda á las esposas, á las hijas y á las mugeres de los creyentes, que cubran con un velo su semblante. Será demostracion de su virtud y preservativo contra los rumores del público. Dios es indulgente y misericordioso.

»Vuestras esposas pueden andar descubiertas en presencia de sus padres, de sus hijos, sobrinos, mugeres y esclavos. Temed al Señor, que es testigo de todas vuestras acciones.

»Las mugeres de edad avanzada pueden quitarse su velo, con tal que no pongan estudio en hacerse ver.»

(Art.º 17 y 18, cap. Del matrimonio.—Leyes morales etc. de Mahoma, Coleccion cit. de Lefèvre.)

[163] Véase art. 11, cap. cit., obra cit. de Lefèvre.

[164] Véase nota 2, pág. 72.

[165] «Cumplen en los casamientos alegría et alhuelulas (gritos de alegría ó de dolor que acostumbran á dar las moras), et panderos, et testimonios.» Título VIII. Leyes de moros. «Y permítese en las bodas el adufe, y este es de dos maneras: el uno un arco redondo y por la una parte pergamino que esté sin cuerdas... Y el otro es de la misma suerte, sino que está por las dos partes con pergamino... y si tiene cuerdas, ó son sonajas ó gayta no se permite, y los demas instrumentos, como laud, rabel y semejantes, como mas fuerça, es haram (prohibicion) usarlos en las bodas.» Anon. Valenc. cit. por el Sr. Gayangos en su nota 3 al tít. VIII arriba mencionado.

Aunque estas leyes fueron recopiladas en época muy posterior á los Califas, merecen considerarse como primitivas, puesto que el ilustrado orientalista que las ha anotado advierte en el prólogo que las precede no haber nada en ellas que no esté enteramente conforme con los principios consignados en el Coran, con la tradicion y la Zunna, con las doctrinas del rito Malequí que se siguió en Africa y en España, y con la letra de otras compilaciones legales del mismo género.

[166] El acidaque es la dote ó la carta dotal. Entre los musulmanes el marido es el que dota á la muger. «El guaquil (procurador casamentero, tutor ó curador) dará la novia con palabras conocidas, como decir: ya fulano, yo te caso con fulana; y el novio dirá: yo estoy contento ó la recibo por esposa, y deste dar y recibir, y cantidad del çitaq (acidaque ó dote) presente y dilatado, es la que an de testiguar los testigos, de suerte que estos an de hablar con ella antes. Si es doncella y no tiene padre, llamarla y que responda al llamado, y le dirán: fulano te a pedido para su esposa y te a nombrado de çitaq presente tanto, y de muajar (lo que se da despues) tanto. Si estás contenta, calla y no respondas, y tu callar es señal cierta que concedes y estás contenta; y si no lo estás, habla y di lo que te parece y está bien. Si á todo esto calla, su callar es otorgar, y si despues de tiempo habla y dice que no sabia que el callar era otorgar, no le es de provecho, ni será creida. Y si al tiempo de llamarla se rie ó llora, se casará, y no importa, porque el reirse puede ser de contento, y el llorar por faltalle en aquella ocasion su padre, con que le escusaba á ella de hablar; pero si no quiere hablar ó se levanta de su lugar, y se va y se echa de ver en su cara que aborrece el casarse ó no querer al novio, se dejará por casar.» Anon. Valenc. citado en la nota 1 al tít. X, Leyes de moros.

[167] Art. 3, cap. Del repudio, Leyes morales etc. de Mahoma, Colec. cit. de Lefèvre.

[168] Cuando un mahometano jura repudiar á su esposa, rompe todo comercio con ella. La esposa, así que llega á su noticia el juramento, se cubre con un velo y se retira á su aposento sin volver á presentarse á su marido. Para la reconciliacion hay un término improrogable de cuatro meses, llamado la alheda, pasado el cual todo vínculo queda disuelto y la muger recobra su libertad. Al salir de la casa marital recibe su acidaque y se lleva consigo sus hijas, dejando los hijos varones en poder del padre. Véase el cap. cit. Del repudio.

[169] La atalca es el acto de repudio ó divorcio.

[170] Gran muro divisorio que segun el Koran separa el paraiso del infierno.

[171] Párrafo 3.º, art. 5, cap. Del repudio, Leyes morales etc.

El que repudiaba á su muger y se arrepentia de haberla repudiado, en los cuatro meses de alheda ó plazo para la reconciliacion no podia tener comercio con ella si antes no daba libertad á un cautivo. Si no encontraba cautivo ninguno que redimir, debia ayunar por espacio de dos meses; pero esta penitencia podia conmutarse con alimentar á 60 pobres. (Art. 13, cap. Del matrimonio.)

[172] «El que feziere forniçio con syerva de su fijo, non aya alhudud...» «Et el que feziere forniçio con muger de su syervo, non le den alhudud...» El alhudud era pena de 80 azotes que segun la ley castigaba el pecado carnal en ciertos y determinados casos. Véanse los títulos CLXX y CLXXI, Leyes de moros.

[173] Véase la nota antecedente.

[174] Véase la nota 1 al tít. II, Leyes de moros.

[175] Véase el tít. I de la misma obra.

[176] «Sy la huérfana toviere alhací ó tutor, et la casare... Sy ella lo oviere menester, et fuere su pro, el casamiento sea firme, et non la metan en consejo despues que fuere de edat.» Ibíd.

[177] Los eunucos antiguamente eran los camareros que servian en lo interior de los palacios. Aumentada despues la corrupcion, los celos de los príncipes introdujeron la bárbara costumbre de que fuesen hombres mutilados los que guardasen el aposento de sus esposas, pues de este modo, alejados de toda idea de seduccion, se creía que servian con mas amor y fidelidad á su dueño.

[178] Jesucristo nos presenta la distincion entre las obras imperfectas de la ley y las obras perfectas de la caridad en aquella parábola sublime en que vemos á un hombre maltratado por los ladrones, olvidado por el levita y socorrido por el samaritano. El levita representa la probidad legal humana, que absteniéndose de hacer el mal, omite hacer el bien.

[179] Los primeros mártires que aparecen sentenciados á muerte por el consejo ó mexuar del rey sarraceno son Jorge, Felix, Liliosa, Aurelio y Sabigoto, los cuales fueron decapitados en el mes de julio del año 852. Hasta entonces las causas de los cristianos que se ofrecian al martirio no habian salido de la jurisdiccion de los Cadíes.

[180] Véase la vida y martirio de Sta. Sabigoto.

[181] Véase la noticia sobre S. Aurelio.

[182] Véase el martirio de S. Jorge, ó Georgio.

[183] En la ocupacion de la Bética por los vándalos veía el piadoso Salviano (libro 7, De Gubernatione Dei) el castigo del cielo por la corrupcion de sus costumbres. La misma observacion, y las mismas palabras con que la espresa, pueden aplicarse á la calamidad, aun mayor, del yugo sarraceno: In illa Hispanorum captivitate ostendere Deus voluit, quantum, et odisset caruis libidinem, et diligeret castitatem, etc.; pues en castigo de su impenitencia despues de aquel primer escarmiento, se vió entregada á la barbarie y escesos del mismo vicio que tanto amaba.

[184] Corpora martyrum, escribia Alvaro, à gentilibus arsa oculis nostris conspeximus. Et quod abundantiori est fletu plorandum, plerosque Patres Anathematizantes talia patientes miravimus.

[185] Véase lo que refiere S. Eulogio, testigo presencial, del martirio y declavacion de los Santos Emila y Jeremías.

[186] Per ordinem disponantur viri: deinde pueri: deinde hermaphroditi: deinde mulieres. (Probabile est apud Mahumetanos esse multos hermaphroditos, ob assiduum usum veneris præposteræ.) etc. Marrac.==Prodrom. ad refut. Alcor. part. IV, cap. V.

[187] Extractos de un curioso M. S. propio del Sr. D. Pascual Gayangos.

[188] M. S. citado en la nota antecedente.

[189] Refiere esta anécdota Gelaleddin, citado por Savary en la nota 2 al cap. LXII del Koran.

[190] M. S. citado del Sr. Gayangos.

[191] Ebnol-Athir, citado por Marrac. Refut. al Kor. Prodrom. part. IV, cap. IV.

[192] Algazel, cit. por el mismo, ibíd.

[193] La ablucion general (tahara) se requiere cuando ocurre alguna de estas cosas: emissio spermatis per modum effusionis; carnalis cupido viri et feminæ, et occursus duorum sponsorum sine emissione seminis; et menstruum; et puerperium. Et sancivit Legatus Dei ablutionem pro die Veneris, et duabus Festivitatibus; et pro præparatione ad sacram peregrinationem. Véase Marrac. op. cit., loc. cit. Tambien pueden verse los casos en que se pierde y debe renovarse el tahor (ó tahara) en el cap. IV de la obra Suma de los principales mandamientos y devedamientos de la Ley y Çunna publicada por la Real Academia de la Historia.

[194] Los muy curiosos pueden verlas en las dos obras citadas en la nota antecedente, así como tambien la comprobacion de todas las demas ceremonias que vamos detallando, por ridiculas que parezcan. Aquí diremos solo que la ablucion menor, ó purificacion sagrada, requisito indispensable antes de toda oracion, se pierde por cualquiera especie de secrecion, por el vómito, por el sueño, por la risa desmedida, por el deliquio, etc.: de modo que un muslim escrupuloso debe estar casi todo el dia remojándose y maniobrando con aquello que hasta los mismos hebreos, pueblo reconocido como carnal, prohibian mirar como si ofendiese y manchase la vista.

[195] Bilel era un criado de Mahoma. Cuando murió su amo, dió muestras de gran sentimiento, se retiró á los montes, y comenzó á dar grandes gritos: tenia una voz muy sonora, y segun el dicho de su amo, estaba destinado á ser almuedan del Paraiso. Nota 2 del Sr. Gayangos á la pág. 264 de la cit. obra Suma de los principales mandamientos, etc.

[196] El aliden es la llamada á la oracion desde la torre ó alminar de la mezquita, segun se dijo en la pág. 98, nota 1.

[197] Esta antigua costumbre de las mugeres árabes se observó ya por Tertuliano (lib. de Velandis virginibus, cap. 17): judicabunt vos Arabiæ feminæ Ethnicæ, quæ non caput tantùm, sed faciem totam tegunt, ut, uno oculo librato, contentæ sunt dimidiâ frui luce, quam totam faciem prostituere.

[198] El erudito comentador de Luitprando D. Lorenzo Ramirez de Prado, alegando la autoridad de nuestro cronista Juliano, supone que el manto ó almalafa de las hembras árabes de España era comun á hombres y mugeres. Dá la razon en el párrafo siguiente copiado de aquel cronista (núm. 620): Eisdem vestibus utuntur nunc Saraceni, quas ex Africâ secum deduxerunt quæ mentitis vestibus venerant huc cum viris. Nam Miramolinus feminas vetuerat, ne transirent ad Hispanias. Et amatores Saraceni adduxerunt nonnullas virgines in habitu virili, quali nunc utuntur feminæ Bæticæ, et olim utebantur etiam Christianæ degentes inter Mauros; vocant MANTOS ET ALMALAFAS. Si los hombres con sus mantos cubrian la cabeza, como usan hoy los árabes y africanos, facilmente se comprende que una muger envuelta en su almalafa pudiese confundirse con un varon mancebo, sobre todo si era la almalafa un manto tupido y fuerte, y no un velo fino y trasparente como el theristro, que usaban las mugeres en los paises cálidos de Oriente segun el testimonio de varios SS. PP. comentando los pasages del Génesis en que se hace mencion del velo de Thamar y de Rebeca. Entre los griegos del Bajo-Imperio hasta los mismos hombres afeminados lo usaron, puesto que se refiere que habiendo enviado el rey Hugo á Romano II, entre varios presentes, dos hermosos perros del norte, al ver los animales al emperador griego cubierto con su theristro á la usanza de su pais, le creyeron un monstruo en vez de un hombre, y se lanzaron sobre él furiosos. En la forma general, muy poco debia diferenciarse el trage de los dos sexos: camisa, túnica, faja y manto, eran comunes á hombres y mugeres. Hasta el tocado era parecido, porque si ellos llevaban turbantes, mas ó menos voluminosos segun los paises de donde procedian, ellas usaban las llamadas por los cronistas latinos mitriolas, que no eran otra cosa que una pequeña faja rodeada á la cabeza, llevada en todos tiempos por los lidios, frigios, sirios, árabes, persas y egipcios, y entre los romanos como adorno de las mugeres estrangeras, de las rameras, y de los hombres afeminados que afectaban un trage exótico. Una cosa que no llevaban los hombres en la España-árabe era el thorax sericus ó paño de seda que cubria el pecho, que nuestras mozárabes cristianas tomaron de las mugeres árabes, y de que no se olvida el minucioso expositor Aly ben Mohammed, á quien sigue Marracio, al enumerar las prendas con que se debe revestir á los difuntos, hombres y mugeres. (Caput de oratione in exequiis mortuorum, obra cit.)

[199] Véase nota 3, pág. 136.

[200] Véase la eruditísima nota de D. Lorenzo Ramirez de Prado al núm. 352 del Cronicon de Luitprando, llena de curiosas investigaciones sobre el uso de los palios, mantos y velos de los orientales.

[201] Femineum lucet sic per bombycina corpus. Marcial, lib. 8, epíg. 68.

[202] Suma de los principales mandamientos, etc. Cap. VII, Del atayamun y sus defectos.

[203] Las cinco azalas del dia son de obligacion inescusable, pero como queda indicado no es obligatorio hacerlas todas en público. En público, esto es, en la mezquita, solo es de riguroso precepto la del viernes ó dia festivo, á la hora de adohar; las demas se pueden hacer privadamente, y cada cual de hecho las hace en el lugar ó sitio en que le coge la hora de cumplir este deber. Es claro que cuando se hace la azala en medio de un campo, ó viajando, no hay Imam que la dirija, ni hay lectura del Koran, ni sermon, ni Kotba (véase la nota 2, pág. 99); y muchas veces ni siquiera puede precederle la ablucion general (tahara) y la purificacion ceremonial (alguado) por no haber agua corriente á mano. En este caso hace el muslim el tayamun con polvo, ó tierra, ó yerba, ó césped, ó nieve, ó barro, etc. Ahora bien, el tayamun es solo un medio supletorio, y no dispensa de hacer tahara si se ha perdido, y alguado cuando en el término de una hora sea posible hallar agua clara y sitio á propósito para ello. El modo de hacer tayamun consta en el cap. VII de la obra Suma de los principales mandamientos, etc., ya citada. «La manera como se ha de hacer es, que ponga las manos sobre la tierra, llanas, ó en la cosa con que quiera hacer tayamun, y lebántelas sumariamente y maçhará (restregará) su cara una bez, nonbrando ad Allah el alto, y buélbalas á poner sobre la tal cosa que el tomare y hagan al braço derecho principiando de la punta de los dedos de la mano hasta encima del codo, y buélbalas á poner las manos sobre la tal cosa, y hará de aquella mesma manera al braço yzquierdo, sin lebantar la mano hasta que buelba á salir por los mesmos dedos por donde principia: de manera que de subida y baxada comprenda bien todo el braço.»

[204] Véase Clemente Tosius, abad de la Congregacion Sylvestrina, en su obra India oriental, tomo I.

[205] Véase Marraccio, obra cit., y la interesante obra titulada Viaggio all'Indie Orientali, etc., del P. Vicente María de Sta. Catalina de Sena, carmelita descalzo.

[206] Los sectarios de Alí pretenden que las abluciones deben empezarse por el codo, y los de Omar sostienen que por las puntas de los dedos. Les Mahométans disputent entre eux des pratiques (dice Mr. de Bonald), les chrétiens du dogme. Législation primitive, tomo 3, pág. 345, nota.

[207] Alicama. Convocacion interior que se hace en las mezquitas con el fin de llamar á los fieles á la oracion. Diferénciase de la otra convocacion llamada aliden, en que esta se hace á la parte esterior, desde los alminares ó torres, en las que se construyen unas terrazas ó balcones que las ciñen en contorno, para que los almuedanes puedan dar el pregon á los cuatro vientos, girando hácia la derecha.

[208] «Si steterit mulier ad latus viri, ita ut ambo conjungantur in oratione, vitiabitur oratio viri. Non decet mulieres interesse cœlui (virorum).» Marrac. op. cit., cap. V De eo quod convenit orationi. Y no solo han de estar separados los sexos, sino que entre los de un sexo mismo hay preferencias reconocidas: así v. g. «Qui mundus est non orabit post eum qui patitur frecuentem fluxum urinæ: neque, quæ munda est, post eam cui menstruorum reliquiæ perseverent, etc. A tal punto se lleva la distincion de gerarquías, que se manda que en el templo el que sabe leer no esté detrás del ignorante, ni el vestido detrás del desnudo. Ibid.

[209] Marrac. Ibid.

[210] Giaab, citado por Savary en su traduccion del Koran. Cap. I. ó Introduccion.

[211] Suprimimos estas minucias y vaciedades por demasiado prolijas y fastidiosas; quien quiera enterarse de todas ellas las hallará detalladas con la suficiente claridad en la citada obra de Marrac. Refutacion del Koran, y en el cap. XI de la Suma de los principales mandamientos y devedamientos, tambien citada. En este capítulo hallará el siguiente curioso trozo: «Asiéntese en tierra las pulpas de los pulgares de los piés, y diga tres beces çubhana rabbi lealé como se dice, y asiéntese sobre la pierna izquierda, de manera que no se asiente sobre ninguno de sus piés, sacándolos al lado drecho y el bientre del pulgar del pied drecho, y se asiente en la tierra; ó si quiere ponga la planta del pied izquierdo con el muslo del drecho, y ponga las manos sobre las rodillas y buélbase á açaxdar (postrar en tierra) como de primero con Allah ua aqbar, y dispues lebántese con Allah ua aqbar, y hará otra arraca (incurvacion) con aquella, y asiéntese y diga: etc.» ¡Que así se haga consistir en la mímica el mérito de las preces del Altísimo!

[212] El curioso M. S. del Sr. Gayangos citado en otra nota contiene el siguiente párrafo sobre la necesidad de seguir escrupulosamente al Imam en la azala pública, que corrobora la exactitud de la comparacion que acabamos de hacer. «Y se advierta que la intencion de seguir al Imam es fard (precepto forzoso) sobre el que le sigue, y que el seguirle ha de ser que despues que el Imam vaya á los actos della de bajar ó subir, vaya en su seguimiento, porque de hacellos igual con él es macuh (acto laudable no obligatorio), y si antes que él es muharam (cosa prohibida). Y si es en taqbirat alyhram y el çalam (salutacion que se hace al fin de la oracion) decirlo junto con él ó antes que él, es perdida su çala; y esto se advierte porque muchos no salen della sino con un haram (condena) acuestas, demas que hay opinion de que es perdida si lo hace adred el anticiparse en los actos. Y todo esto por la poca consideracion que se tiene de no hacer la obra como se debe ó porque piensan que han de acabar primero que el Imam y estan engañados, por cuanto no pueden salir de la çala hasta que el Imam abra la puerta con dar el çalam. Y se echa de ver en actos tales la poca debocion que tienen en esta escelente obra, pues no ben la ora de salir della, etc.»

Redúcense realmente las oraciones de los mahometanos á verdaderas gesticulaciones con el cuerpo, las manos y los piés: incurvaciones de la cabeza y de la espalda, postraciones ó humillaciones de toda la persona en tierra, y otros actos propios de histriones. Su oracion apenas puede llamarse tal: el mismo favor que se les dispensa diciendo que tienen una religion (puesto que no hay rigorosamente hablando religion donde no hay ademas del templo una ara y un sacrificio, y ellos no tienen sacrificio ni ara), se les concede suponiendo que en sus azalas hacen oracion, dado que la oracion supone deprecaciones y plegarias. Solo de vez en cuando entre la multitud de sus gestos corporales van mezcladas las esclamaciones: ¡Solo Dios es grande! ¡A Dios las alabanzas! ¡No hay mas Dios que Dios! y otras por este estilo, con algunos versículos del Koran, especialmente los siete de la primera Sura, que es mas bien un himno que una deprecacion, á la manera de muchos Salmos de David. La devocion y atencion suma que los mahometanos afectan en sus azalas nace, observa Marraccio, en parte de la mera costumbre, en parte tambien de verdadera hipocresía. En suma, estos actos puramente exteriores nada de por sí influyen en la santificacion del hombre, y nada significan no animándolos las virtudes interiores, la caridad, la fé, la piedad, y otras que solo el cristianismo inculca y hace de rigoroso precepto. Los desmedidos elogios que hoy es moda prodigar á todo lo de los árabes, nos obliga á entrar en esta clase de consideraciones.

[213] Véase la lámina Vista interior de la mezquita.

[214] Véase la nota 2, pág. 122.

[215] Debió ser en idioma arábigo esta predicacion de los dos cristianos dentro de la mezquita mayor, porque de lo contrario no hubieran sido comprendidos. Por lo tocante á Serviodeo, como natural de Siria, no hay la menor duda; y en cuanto á Rogelio es de creer que hablase aquella lengua, como casi todos los mozárabes españoles, cuando se arrojó á evangelizar á los mahometanos. Consta que era cosa comun entre los naturales hablar y hasta manejar con elegancia la lengua de los dominadores, por lo cual algunos de ellos, aunque cristianos, obtenian cargos y empleos en la corte de los Umeyas, escribanías y otros oficios del gobierno. Sábese por S. Eulogio (Memorial de los Santos) que los dos jóvenes Emila y Jeremías, que hemos nombrado poco há, eran doctísimos en la lengua árabe. Del abad Sanson, que en el tiempo á que nos referimos tenia 42 años, consta, que se valian de él los reyes de Córdoba para traducir del arábigo al latin las cartas que dirigian al rey de Francia. (S. Eulogio, Memoriale Sanctorum, lib. 2, c. 2:—Florez, Vida del abad Sanson, t. 11, España Sagrada:—Masdeu, Hist. crit., t. XIII, España Arabe, p. 176: etc.)

[216] «Concluida la oracion, id libremente. Proporcionaos los bienes que el cielo ha dispensado á los humanos.» Sura LXII. El viernes, vers. 10.

[217] «Los moros (dice Ambrosio de Morales copiando á S. Eulogio) cargaron con tanto ímpetu sobre los dos cristianos, derribándolos en el suelo y hiriéndolos, que los uvieran allí muerto, si no acudiera el juez, para librarlos de aquella furia, mandándolos llevar á la cárcel.»

[218] «A este fin hizo (el rey moro) venir á la corte á los metropolitanos de diversas provincias, para que juntos los obispos decretasen lo que deseaba.» Florez, trat. 33, cap. 10, §. III. Del Concilio tenido en Córdoba acerca de los que se presentaban al martirio.

[219] Florez, loc. cit.

[220] «Esta simulacion, dice Gomez Bravo, t. 1, p. 132, desagradó á S. Eulogio por el escándalo y error que causaba en los ignorantes, que no penetraban lo alegórico del conciliar decreto, y creerian prohibido el martirio.» El P. Florez es de contrario sentir, y de aquellas palabras eademque schæda minimè decedentium agonem impugnans, quod futuros laudabiliter extolleret milites, percipitur, deduce que el santo declaró ser buenos y favorables á los mártires, no solo la intencion, sino tambien el sentido formal de la sentencia. Lo cierto sin embargo es que S. Eulogio fué perseguido y se vió en la precision de ocultarse.

[221] Guadalquivir (wada-l-kebir) significa en árabe el rio grande.

[222] Los historiadores árabes refieren la muerte de Abde-r-rahman II como natural y tranquila. Nosotros hemos preferido sin embargo la relacion de S. Eulogio, porque ademas de ser contemporáneo, podia estar muy enterado de la verdad de los hechos por tener un hermano empleado en el palacio del sultan. Nuestros mas juiciosos historiadores, Morales, Roa, Gomez Bravo, Florez, etc., han seguido esta version.

[223] Kalam era muy querida de Abde-r-rahman por lo bien que escribia, recitaba versos, referia cosas históricas, y sabia tocar y cantar. Véase Al-Makkarí, l. VI, c. IV.

[224] Amaba tambien tiernamente á sus concubinas Mudathirah y Ashifá, que de esclavas habia convertido en esposas. Ibid.

[225] Distinguia al célebre poeta Abdallah ben Xamri, y á Yahye ben Hakem. Véase Conde, t. 1.º, cap. XL.

[226] «Bajándole á su lecho, murió aquella misma noche, antes que acabase de consumir el fuego los cuerpos de los sagrados mártires.» Bravo, t. 1, p. 133.

[227] De estos pseudo-cristianos, cooperadores de la tiranía sarracénica, haremos mencion especial mas adelante, en el capitulo Córdoba mozárabe.

[228] El mismo dia que le proclamaron rey echó del palacio y casa real á todos los cristianos que en ella servian, quitándoles las raciones y sueldo que tenian; y entre ellos fué tambien echado Joseph, hermano de S. Eulogio, como el santo refiere.

[229] De esta destruccion de los templos de los cristianos en tiempo de Mohammed nos ocuparemos tambien en el capítulo Córdoba mozárabe.

[230] S. Eulogio: Docum. Mart., cap. 7, núm. 6.

[231] Véase Conde, Cap. XLVIII. t. 1.º Victoria del principe Almondhir contra los rebeldes de Toledo. «El principe... envió 700 ú 800 cabezas de rebeldes á Córdoba... y el rey las mandó poner en las almenas, etc.»

[232] Véase Ambrosio de Morales, con la autoridad de Luis de Mármol. Crón. gen., lib. XIV, cap. 32.

[233] Refiere esta anécdota Conde, t. 1.º, cap. LIV.

[234] Véase arzob. D. Rodrigo, Hist. de los árabes.

[235] De los cristianos vergonzantes confundidos con los árabes por la lengua, por el trage y por el modo de vivir, se hace mencion frecuente en la Esp. Sagr. del P. Florez, trat. 33.

[236] Véase Conde, t. 1, cap. LV.

[237] Conde, ibid., y Al-Makkarí convienen en este suceso. Véase la obra del último, lib. VI, cap. IV.

[238] «Asi fué que el rey Mohammad estando sin dolencia alguna, y recreándose en los huertos de su alcázar con sus wazires y familiares, le dijo Haxem ben Abdelasis ben Chalid, Walí de Jaen, ¡cuán feliz condicion la de los reyes! para ellos solos es deliciosa la vida, para los demas hombres no tiene el mundo tantos atractivos: ¡qué jardines tan amenos, qué magníficos alcázares, y en ellos cuántas delicias y recreaciones! Pero la muerte tira la cuerda limitada por la mano del hado, y todo lo turba, y acaba el poderoso príncipe como el rústico labriego. Mohammad le respondió: en apariencia la senda de la vida de los reyes parece llena de flores aromáticas; pero en verdad son rosas con agudas espinas: la muerte de las criaturas es obra de Dios, y principio de bienes inefables para los buenos; y sin ella yo no seria ahora rey de España. Retiróse el rey á su estancia, y se reclinó á descansar, y le salteó el eterno sueño de la muerte, que roba las delicias del mundo, y ataja y corta los cuidados y vanas esperanzas humanas.» Conde. Hist. cit., tomo I, cap. LVII.

[239] La comprobacion de esta verdad se halla en la historia de nuestro arte nacional. Asimiladas en cierta manera las dos arquitecturas árabe y goda en el siglo de Carlomagno por la visible inoculacion del gusto bizantino en ambas, empiezan á seguir una marcha divergente desde que acaba en Europa el influjo de la restauracion Carlovingia. Entregado entonces el genio occidental á sus propias fuerzas, el gusto bizantino ó neo-griego solo entra en sus concepciones como auxiliar para la ornamentacion, al paso que el genio arábigo le adopta como fundamento. Esta diferencia se manifiesta ya muy marcada en el décimo siglo, y desde el undécimo en adelante se señala aun mas, para formar luego dos sistemas enteramente opuestos en el siglo XIII y siguientes. Los caractéres mas aparentes de estos dos sistemas occidental y oriental son la tendencia del primero á la vertical, y la propension al desarrollo horizontal en el segundo. Aquel aspira á la elevacion, estrecha los vanos, aguza las armaduras, acaba por romper el arco para reunir sus apoyos sin disminuir su altura; el oriental por el contrario se dilata á placer sobre la tierra, aplana sus techumbres convirtiéndolas en terrazas, ensancha sus vanos, se corona de cúpulas.

En España sin embargo la escuela neo-griega ejerce su influjo desde mas temprano y de una manera mas marcada que en el resto del Occidente, lo cual se debe quizás al dominio que sobre nuestras costas meridionales mantuvo el imperio griego en el sexto siglo, y al trato y comercio en que desde el siglo VIII vivió el pueblo conquistado con el sarraceno conquistador, que propiamente hablando fué para nosotros el vehiculo de las prácticas y tradiciones orientales. Para citar un ejemplo de esta singularidad que nuestra arquitectura nacional ofrece, entre muchos que pudiéramos citar y que suprimimos por no estraviarnos demasiado de nuestro propósito, mencionaremos la iglesia de S. Miguel de Lino, en Asturias, que siendo construccion del noveno siglo, ofrecia, segun de su actual estado pudo colegir Ambrosio de Morales, la singularidad de ostentar un cimborio bizantino en su crucero. Este precioso ejemplo de nuestra temprana aficion al gusto oriental, merece tenerse muy en cuenta hoy que parece probado de una manera inconcusa que los templos mas antiguos de Francia coronados de cúpulas bizantinas son en un siglo posteriores á nuestro modesto templo asturiano. (Véase la reciente obra de M. Felix Verneilh L'architecture Byzantine en France.) El punto que en esta nota hemos tocado merece estudiarse detenidamente: el Ensayo histórico sobre la arquitectura española del Sr. D. José Caveda puede facilitar mucho el estudio analítico que conviene hacer antes de deducir conclusiones demasiado generales.

[240] ¿Quién ignora el orígen de la fábula de Leda? Era tal la belleza de los dos jóvenes Cástor y Pólux, y de su hermana Helena, la del cuello de cisne, segun la pintan los poetas, que los griegos, propensos á materializarlo todo con su risueña mitología, los supusieron hijos del mismo Júpiter. Cástor sin embargo no era inmortal, porque en realidad el huevo de donde salió juntamente con Clitemnestra, habia sido fecundado por Tindaro y no por Júpiter. Pólux y Helena lo eran: ambos habian salido del huevo fecundado por el padre de los dioses. Cástor y Pólux eran reputados como inmortales, pero cesó el error cuando murió el primero.

Permitaseme simbolizar con esta fábula la historia de los dos artes musulman y cristiano: los dos derivan en su orígen del arte clásico griego; pero el uno manifiesta en su desarrollo, degeneracion y muerte, el gérmen puramente materialista, mientras el otro revela en su crecimiento, siempre progresivo, que lleva por decirlo asi el aliento de la Divinidad. El arte cristiano es en efecto producto espontáneo del consorcio de la belleza antigua con el espiritu fecundo de la nueva ley moral con que Dios dirige á la humanidad.

Tambien simboliza el llanto de Pólux por la muerte de su hermano la degeneracion del arte cristiano en ciertas épocas, el cual por ceder á una ciega y fanática admiracion hácia las creaciones del arte materialista, abjura de su inmortalidad, es decir, de sus altas y genuinas aspiraciones, y consiente que usurpe su puesto un arte alucinador é impotente, cuyos medios no corresponden al objeto final del arte en la sociedad cristiana.

[241] Fué este el rey D. Sancho I, hijo de D. Ordoño III.

[242] Ibn' Abdi-r-rabbihi, cit. por Al-Makkarí en el cap. V, lib. VI de su Hist.

[243] Mas adelante hablaremos de este procedimiento llamado por los árabes el Sofeysafá, empleado con profusion y admirable efecto en el mihrab de la mezquita que vamos describiendo.

[244] La cristiandad veía con espanto acercarse el año mil: una especie de terror vago que se cernia como una negra nube sobre todas las naciones de Europa, hacia presentir al Occidente una gran mudanza en el órden de cosas general, que era nada menos que la disolucion del mundo de Carlomagno en el caos para engendrar el feudalismo. Presentian las naciones la gran trasformacion, y formulaban sus terrores prediciendo la venida del Ante-Cristo y el fin del mundo.

[245] Las casas de recreacion que por los alrededores de Córdoba y su fértil campiña tenian diseminadas los califas y magnates eran muchas, y se designaban todas con poéticas denominaciones análogas á sus peculiares distintivos, á los fines á que estaban consagradas, ó al objeto ideal que habian querido realizar sus dueños. Era la mas notable la Ruzafa, de que hemos hablado en el curso de esta descripcion, fundada por Abde-r-rahman I como recuerdo de la deliciosa casa de campo que su abuelo Hixem habia construido en Damasco. Propios de los califas eran tambien, y dispuestos á la manera de las deliciosas villas de Italia, el palacio hajirí, el palacio del jardin, el palacio de las flores, el palacio de los amantes, el palacio del afortunado, el palacio de Rustak, el palacio del contento, el palacio de la diadema y el palacio de las novedades. Mas célebre que todos estos era el palacio llamado de Dimashk, cuya techumbre sustentaban hermosas columnas de mármol, siendo su pavimento de mosáico de vívidos matices; y mas todavía el Al-mushafiyyah, propiedad del Wazir de Hixem II Jafar Al-mushafí, que describe Ibnu-l-Abbar como una de las mas encantadoras moradas de aquellos tiempos y de aquella tierra. Habia ademas muchos jardines (Munyat) deliciosos por sus baños, grutas, alamedas y puntos de vista; y entre varias granjas se distinguian la pradera de oro, el prado del agua murmuradora, el campo de los hurtos, el campo de la presa, el campo de los molinos, etc.

[246] Haremos á su tiempo la descripcion del famoso y poético palacio de Medina Azzahra, cuyas maravillas se tienen por fabulosas.

[247] Pone Al-Makkarí este dicho en boca de un doctor andaluz anónimo.

[248] Así es denominado generalmente Abde-r-rahman III para diferenciarle de los otros reyes de su mismo nombre.

[249] Para las torres que se construían en el décimo siglo en la Europa cristiana, no dejaba de ser estraordinaria la altura de 72 codos dada al alminar ó zoma de Córdoba. Esta torre existia aun en tiempo de Ambrosio de Morales, que ligeramente la describe. Quebrantada, primero por la osadía de un arquitecto del siglo XVI, á quien se consintió reformarla á su manera, y despues por el terrible huracan y terremoto del año 1589, acordó el cabildo de Córdoba repararla con arreglo á nueva traza, y se empezó á demoler el dia de S. Andrés del año 1593. Acabóse de construir segun hoy se ve ya muy entrado el siglo XVII, y hoy se la designa con el nombre de Torre de las Campanas. Su actual estructura es la que aparece en la lámina Puerta de las Palmas.

[250] Aunque sabíamos ya por el geógrafo Edrisi (nueva traduccion de M. Jaubert) que el mosáico esmaltado sofeysafá que cubre las paredes del mihrab de Córdoba habia sido en la mayor parte traido de Constantinopla, y á pesar de que teníamos ya noticia de los varios y preciosos objetos artísticos regalados por el emperador Leon, padre de Constantino porfirogénito, á Abde-r-rahman An-nasír para su palacio de Medina Azzahra; sin embargo deseábamos ver corroborada con documentos mas detallados la filiacion bizantina del arte bajo los grandes califas del décimo siglo. Afortunadamente el erudito orientalista D. Pascual de Gayangos, cuya traduccion inglesa de Al-Makkarí nos ha sido hasta ahora tan útil para nuestra tarea, acaba de proporcionarnos lo que tanto deseábamos, tomándose con la bondad que en él encuentran todos los que le consultan, el trabajo de traducir para nuestra obra muchos pasages de una historia árabe, ahora por primera vez dada á luz en Leyden en su idioma original por el Dr. Dozy, en la cual se refieren minuciosidades interesantísimas sobre las construcciones de la grande Aljama de Córdoba y de Medina Azzahra. Titúlase el libro publicado por Dozy Historia de Almagreb, de Ebn Adzarí el de Marruecos, y en su página 253 se cuenta como vino el mosáico esmaltado ó sofeysafá de Constantinopla á Córdoba, y de qué escuela fueron los artífices que lo fijaron en el mihrab de la mezquita: pasage curioso que verá el lector reproducido á continuacion.

[251] Por regla general no habia en aquellos tiempos embajada de soberano á soberano sin costosos y esquisitos presentes, y estos solian principalmente consistir en manufacturas preciosas, por medio de las cuales adquirian las naciones el conocimiento mútuo del estado de sus artes. No sabemos de una manera auténtica que fuesen de procedencia bizantina en su forma artística los objetos enviados á An-nasír por el emperador Oton y demas reyes del norte que con el Califa tuvieron comunicaciones amistosas; pero siendo sin disputa bizantino el estilo ornamental de todas las construcciones que hoy subsisten en Alemania, Francia y España, del tiempo de los Enriques, Conrados y demas monarcas de la casa de Sajonia, parece justo deducir que fuesen tambien neo-griegas las ideas en todos los ramos industriales de ostentacion y lujo. El gusto bizantino reinaba ya á fines del siglo X en casi todo el Occidente; por lo tocante á Francia y á los paises que componian el dilatado imperio germánico, puede el que guste cerciorarse de esta verdad con solo hojear rápidamente las obras que acerca de la historia del arte se han publicado en estos años últimos, y principalmente Le moyen âge, etc., de M. Ferdinand Seré, y la concienzuda serie titulada Die Ornamentik des Mittelalters del arquitecto Heideloff. Por lo que hace á España, si no fueran prueba concluyente de nuestro aserto las construcciones que en los reinos de Asturias, Leon y Navarra, y en los condados de Castilla y Barcelona erigieron nuestros piadosos y magníficos Alfonsos, Ordoños, Ramiros y Wilfridos, todavía podríamos citar numerosos documentos de la época á que nos referimos que ponen en evidencia la casta bizantina de la ornamentacion nacional; pero este nos alejaria demasiado de nuestro objeto presente.

[252] Es muy de notar este hecho. Los historiadores árabes designan con el nombre de Rabí á un obispo de quien se valió en diferentes ocasiones Abde-r-rahman el Grande para sus tratos con las córtes estrangeras. Rabí fué el que trajo de Constantinopla á Córdoba las hermosas fuentes adornadas de bajo-relieves que puso An-nasír en Azzahra: Rabí fué el enviado á la corte del emperador Oton con grandes regalos para este monarca. El autor de las actas de S. Juan de Gorzia nos pinta á los prelados de Andalucía enteramente sumisos á la voluntad del Califa; un obispo, á quien no nombra, y que podria ser tal vez ese obispo Rabí de las historias árabes, es el comisionado para ir á felicitar á Oton por su victoria sobre los húngaros; otro obispo, llamado Juan, sirve á An-nasír de instrumento para tratar de vencer el teson del Gorziano que causa enojos al sarraceno; otro finalmente, llamado Recemundo, y mandado consagrar por An-nasír obispo de Granada, va de legado de este al emperador de Alemania para obtener diplomáticamente que retire una carta escrita en desdoro del falso profeta. Todo en suma manifiesta la preponderancia de la corte de los califas en el décimo siglo.

[253] Este santo fué Juan de Gorzia, cuya legacía, documento precioso para la historia diplomática de la edad media, refiere Mabillon (Acta Sanctorum ordinis Sancti Benedicti, tomo V).

[254] Fué este Recemundo, de quien hemos hablado en la nota 3, pág. 173, y cuya consagracion es otro hecho singular y precioso para la historia de la iglesia mozárabe.

[255] Ebn Adzarí el de Marruecos, Historia de Almagreb, pág.ª 249 y 253, cuya traduccion, nunca hasta hoy publicada, debemos, como queda arriba dicho, á la bondadosa amistad del Sr. Gayangos.

[256] Ha de entenderse de la servidumbre de palacio, que tenia obligacion de asistir á la azala de mediodia en la Aljama por ser el templo mas próximo. Y no debe estrañar que solo la gente del alcázar ocupase una gran parte de la mezquita, si se considera que las concubinas, esclavos de ambos sexos, pages y eunucos de Abde-r-rahman el Grande se contaban por millares.

[257] Al-mustanser billah, nombre dado á Al-hakem II, que quiere decir el que implora el auxilio de Dios.

[258] Cubierta ó cúpula.

[259] Mosáico esmaltado. Véase la nota 1, pág. 173.

[260] Véase la nota 1, pág. 80.

[261] «A la derecha del Mihrab, dice Edrisí, hay una puerta que sirve de comunicacion entre la mezquita y el alcázar, la cual dá á un corredor practicado entre dos muros, con ocho puertas, que cierran cuatro hácia el palacio, y cuatro hácia la mezquita.» Sin duda por equivocacion ha escrito el traductor francés un corridor pratiqué entre deux murailles percées de huit portes, pues de los dos muros del corredor ó pasadizo, solo uno, que es el esterior del mediodia de la mezquita, y que mira al rio, tiene vanos, no de puertas, lo cual era imposible, sino de ventanas. Las ocho puertas estaban en los otros muros que cortaban en ocho piezas la longitud del pasadizo: Ambrosio de Morales, que lo reconoció y describió detenidamente, dice hablando de la estraña combinacion de estas puertas: «las cuatro primeras de hácia el alcázar se cierran hácia él, y el portero, á lo que parece, venia delante de todo el acompañamiento del rey, abriéndolas y echándolas hácia el oriente. Las otras cuatro se cierran diversamente, dos hácia oriente, y otras dos hácia poniente. Y así era menester estuvieran dos otros porteros allí encerrados para abrir. Y no se puede imaginar para qué fuese tanta fortaleza y encerramiento.»—Esta estraña combinacion tenia sin duda por objeto el imposibilitar toda comunicacion entre el alcázar y la mezquita, aun en el momento de atravesar el corredor el Califa para trasladarse al templo; pues al abrirse las puertas que se mandaban en un sentido, se cerraban las que se mandaban en sentido opuesto. Se dificultaba tambien de este modo cualquier traicion de los porteros, pues siendo varios, y estando entre sí incomunicados, con uno solo que fuese fiel se defendia el tránsito de uno á otro edificio. Es raro que el juicioso Morales no haya aquí descubierto la razon de lo mismo que describe.

[262] Ebn Adzarí, obra citada: traduccion inédita del Sr. Gayangos. En la pág. 253 dice así: «En el año 155, en la luna de Moharram, mandó Al-hakem colocar el antiguo mimbar á un costado del Mihrab; asimismo mandó armar la antigua Maksurah y dispuso que en la quibla del nuevo edificio añadido por él se pusiese otra Maksurah de madera, labrada por dentro y por fuera, y coronada de almenas, la cual tenia setenta y cinco codos de largo y veintidos de ancho, y su altura hasta las almenas ó remate era de veintidos codos. Concluyóse la obra toda y la colocacion de la Maksurah en la luna de Recheb de este año.»

[263] Los pilares que cargan á plomo sobre las columnas de la mezquita son por lo general sencillos y lisos en su paramento; pero los de la nave central son verdaderamente preciosos: tienen medias pilastras octogonales con capiteles de órden compuesto, de volutas prolijamente afiligranadas. Sus fustes estan cubiertos en las tres faces que presentan de tracería rectilínea muy relevada, y sus basas descansan sobre ménsulas de medias cañas horizontales con una graciosa folia en el centro.

[264] Malek Johanna llamaban los árabes al famoso preste Juan de las Indias, rey mongol nestoriano, llamado por los de su nacion Ung khan ó Avenk khan, cuya carta, verdadera ó apócrifa, al emperador griego Alejo Comneno, patentiza por lo menos la creencia de los orientales en el poder y supremacía de la raza tártara. Esta célebre carta concluye con una sucinta descripcion de su palacio de Susa en estos términos: «Nuestro palacio es de ébano y madera incombustible. Hay en su techumbre á cada estremidad dos manzanas de oro, y en cada manzana dos carbunclos, para que el oro brille de dia y los carbunclos luzcan de noche. Las puertas principales son de sardónica y asta mezclados para que nadie pueda introducir por ellas veneno, y las menores son de ébano. Las ventanas son de cristal, las mesas de oro y amatista, y las columnas que las sostienen de márfil. El apartamiento en que dormimos es una obra maravillosa de plata y oro y piedras preciosas de todas especies. En su interior está humeando siempre el incienso. Nuestro lecho es de záfiro. Tenemos las mas hermosas mugeres (porque aunque preste, podia como nestoriano ser casado, y aun polígamo). Sustentamos diariamente á treinta mil personas, ademas de muchos huéspedes forasteros, y todos reciben cotidianamente pensiones de nuestra cámara para mantener sus caballos y para otros menesteres. Nos sirven durante cada mes siete reyes (cada cual por su turno), sesenta y cinco duques y trescientos sesenta y cinco condes. Comen diariamente á nuestra mano derecha doce arzobispos, á nuestra izquierda veinte obispos, ademas del patriarca de Sto. Tomás, del protopapa de Salmas y del archiprotopapa de Susa, en cuya ciudad reside el trono de nuestra gloria y nuestro palacio imperial. Tenemos abades tantos como dias hay en el año para el servicio de nuestra capilla. Nuestro despensero es un primado y rey; nuestro mayordomo es un arzobispo y rey; nuestro gentil-hombre es un obispo y rey; y nuestro cocinero mayor es un rey abad; pero Nos adoptamos una gerarquía inferior y un nombre mas modesto para probar nuestra grande humildad.» A tanta gala y magnificencia quedan oscurecidas las estupendas maravillas que nos refieren D. Juan de Persia, el veneciano Marco Polo, Sir John Mendeville y otros viajeros; pero en los límites de lo real y verdadero, ¿cuántos edificios podrán citarse que sostengan el parangon con el magnífico Mihrab de Córdoba? Véase la lámina Vista de la capilla del Mihrab tomada por ángulo.

[265] Edrisí, traduc. cit. de Jaubert, pág. 60.

[266] Mihrab y Santuario es todo uno: es el lugar preferente en la mezquita, que se coloca siempre en la quibla ó punto que se supone señalar la direccion en que se halla la Meca. Véase la lámina Fachada de la capilla del Mihrab.

[267] Habia cuatro lámparas mayores que las demas suspendidas en la nave central: una pendia del domo en la parte de la mezquita donde se ponia el Koran, y era de mil cuatrocientas cincuenta y cuatro tazas ó mecheros. Al lado del Imám ardia un cirio que pesaba de cincuenta á sesenta libras: lucía noche y dia en el mes de Ramadhan, y estaban en él tan perfectamente combinadas las cantidades de cera y pábilo, que se consumia por completo en la última noche del citado mes.

Llegó á haber en la mezquita en tiempo de Almanzor doscientos ochenta candelabros de bronce, sin contar los que pendian en las puertas, ascendiendo segun unos á siete mil cuatrocientos veinticinco, y segun otros á diez mil ochocientos cinco el número total de mecheros que ardian en el templo. Todos los candelabros eran de bronce, de distintas hechuras, á escepcion de tres que eran de plata. Las cuatro lámparas mayores, cada una de las cuales consumia todas las noches siete arrobas de aceite, solo se encendian en los últimos diez dias del mes de Ramadhan. Calculábase que solamente en este mes se consumian en la mezquita setecientas cincuenta arrobas de aceite. (Véase Al-Makkarí, t. 1, lib. III, cap. 2.)

[268] Para el significado de esta y otras voces propias de la ornamentacion arquitectónica, que seria muy prolijo definir, pueden consultar los lectores el curioso glosario que ha publicado al fin de su Album artístico de Toledo el laborioso anticuario D. Manuel de Assas.

[269] Véase la lámina Interior de la Capilla del Mihrab.

[270] Véase el valor de estas monedas en la pág. 86, nota 2.

[271] El mimbar, que Ambrosio de Morales llama Silla del rey Almanzor, se conservó en la catedral de Córdoba despues de la reconquista muchos siglos; cuando aquel cronista escribia sus Antigüedades, hacia pocos años que habia sido destruido sin saberse por qué. Así han ido pereciendo una a una nuestras mas preciosas antiguallas; mas ¡qué mucho que en nuestro siglo eminentemente prosáico se hayan igualmente deshecho muchos inestimables objetos del arte de la edad media, si el siglo del renacimiento le dió el ejemplo!

Segun el citado cronista era el mimbar una especie de carro con cuatro ruedas, y solo tenia siete gradas.

[272] Al-Makkarí, loc. cit.—Edrisí, traduc. cit., pág. 61.

[273] El libro del Koran copiado por Othman, de que acaba de hablarse.

[274] Edrisí, loc. cit.

[275] Fundamentos que tenemos para creer que estuviese en la actual capilla de Villaviciosa y sus adyacentes la antigua Maksurah que mandó armar Al-hakem. 1.º Que Edrisí dice espresamente que al norte del Mihrab estaba el tesoro, y este no podia estar mas que en lo que es hoy sacristía de la capilla de Villaviciosa, en la cual realmente se advierte una especie de aposento subterráneo, cuyo destino no se esplica de otra manera. 2.º Que Ebn Adzarí dice que Al-hakem mandó armar la antigua Maksurah, y poner otra nueva en la quibla del nuevo edificio. No dice que se quitase la antigua al poner la nueva, antes bien parece dar á entender que las dos se colocaron en un mismo año y subsistieron simultáneamente. Por lo mismo que espresa que la nueva se armó en la quibla del edificio añadido, induce á creer que la antigua Maksurah coexistía con ella, porque de lo contrario no necesitaba haber dicho donde la mandó poner, siendo sabido que la Maksurah es para cercar y aislar el recinto del Mihrab. 3.º Que el autor del mojmu'-l-muftarik, copiado por Al-Makkarí, incurre en el error de suponer que el que mandó construir la Maksurah (esto es, la de Al-hakem) fué Almanzor, y la causa de este error se esplica satisfactoriamente con el dato que nos suministra Ebn Adzarí de haber hecho Al-hakem reponer en su sitio la antigua Maksurah. En efecto, habiendo una Maksurah ó cercado en las capillas que caían al norte del Mihrab, donde hemos dicho que estaba el tesoro, y habiéndose bajo la gobernacion de Almanzor restaurado y exornado tan notablemente dichas capillas, como aun hoy aparece por la que sirve de sacristía de Villaviciosa, nada tiene de particular que quedase memoria muy especial de esta Maksurah de Almanzor, confundiéndola mediante el transcurso de los años con la Maksurah principal, fábrica de Al-hakem.

Agrégase á estas razones la circunstancia notabilísima de distinguirse dos épocas distintas en la fábrica de la capilla de Villaviciosa y su sacristía, pues siendo la rica ornamentacion de esta última pieza propia del estilo árabe de transicion practicado desde principios del siglo XI, la fachada esterior de la que es hoy capilla presenta la misma arquería, el mismo gusto, los mismos ornatos que la fachada del vestíbulo del Mihrab, que se hizo en tiempo de Al-hakem: indicio poderoso de que antes de Almanzor existia ese otro recinto coronado de cúpulas frontero á las tres capillas del Mihrab.

[276] Esta tercera capilla, frontera á la de occidente del vestíbulo del Mihrab, pudo ser demolida despues de la reconquista para la obra de la catedral que se hizo provisionalmente poniendo el altar mayor en la capilla que es ahora de Villaviciosa. Que ella existia es indudable: el inglés Swinburne, cuyo viaje por España es digno de recomendacion, coloca en ella el puesto del Cadí.

[277] Que se suponia haber sido de plata el pavimento de la Maksurah, lo dice Al-Makkarí, loc. cit.

[278] Dice Al-Makkarí (t. 2, lib. VI, cap. VII) que se le presentaron á Almanzor al invadir el reino de Galicia muchos condes cristianos armados y equipados para hacer la guerra bajo sus órdenes; y añade que despues de la toma de Santiago acompañaron al ejército moro hasta sus tierras, y allí se despidieron del vencedor, recibiendo de él como pago de sus servicios los objetos siguientes: «2285 piezas de tela de seda tirazí, de varios colores y tejidos; 21 vestidos de lana marina; 2 trages de ambar; 11 de paño escarlata; 15 magishat (voz cuyo significado se ignora); 7 caparazones de brocado para sus caballos; 2 vestiduras de lo mismo trabajadas en Grecia; y finalmente, otras 2 forradas de piel de comadreja:» hecho sumamente curioso que hemos creido no deber omitir.

[279] Las incursiones de Almanzor en las tierras de los cristianos se repetian todas las primaveras, regresando á Córdoba para el invierno. Acompañábale á estas periódicas espediciones un numeroso cortejo de poetas y escritores, encargados de inmortalizar sus hazañas. Es posible que estos apologistas pagados hayan exagerado mucho sus hechos de armas, y es posible tambien que se haya perpetuado por la pluma de alguno de los cuarenta parásitos que le siguieron á la guerra de Cataluña, y cuyos nombres nos conserva Al-Makkarí, la accion siguiente, que tiene en verdad demasiado de épica, y que no recordamos haber leido en ninguno de nuestros historiadores.

Al retirarse de una de sus campañas, en que habia cogido un inmenso botin, tenia que pasar Almanzor con su ejército por un angosto desfiladero, entre dos montañas que encontró defendidas por numerosas bandas cristianas. Viendo el africano que no era posible forzar el paso de aquella garganta, volvió con su hueste á la poblacion mas inmediata, y despues de elegir un buen campamento, mandó á sus gentes construir habitaciones y cuarteles y juntar vitualla para pasar allí el invierno. Hecho esto, dispuso que se proveyesen de arados y otros instrumentos agrícolas para cultivar los campos, haciendo al propio tiempo algaras y correrías por los pueblos aledaños, saqueando, devastando, y llevando prisioneros al campamento á cuantos cristianos cayesen en sus manos. Los que sufrian esta suerte eran inmediatamente decapitados, y sus cadáveres arrojados á la entrada del desfiladero. Tan grande fué el número de cristianos muertos, que á los pocos meses quedó colmada de cadáveres la angostura, siendo tal el horror y la pestilencia que difundian los esqueletos y sangrientos despojos amontonados, que se convirtió aquella tierra en un espantoso desierto de muchas millas á la redonda. Consternados los cristianos, ofrecieron á Almanzor que le dejarian el paso franco si se avenia á abandonarles sus tesoros y sus cautivos; proposicion que el africano rechazó indignado. Los cristianos entonces le enviaron segundo mensage, diciéndole que le dejarian pasar con su botin y sus prisioneros; pero Almanzor les contestó: «Mi ejército no tiene ya gana de pasar esas montañas y está contento aquí. Si ahora regresase á Córdoba, pronto tendria que volverlas á pasar para la campaña de la próxima primavera; por lo tanto aquí nos quedamos hasta el año venidero, y cuando acabemos la campaña entrante nos retiraremos.» Llenos de admiracion y de terror los cristianos, volvieron á pedirle paz con nuevas instancias, y hasta le propusieron condiciones humillantes para que la admitiera: fueron estas, que ellos mismos habian de facilitarle acémilas para conducir su botin, y provisiones para los dias de marcha hasta llegar á su frontera, y que por sus propias manos separarian los cadáveres de sus compañeros que obstruían el paso entre las dos montañas. Así religiosamente lo cumplieron, y Almanzor triunfante se volvió con su ejército á Córdoba (Al-Makkarí, loc. cit.).

[280] Almanzor era de raza africana, nacido en Toresh, cerca de Algeciras. Dícese que Al-hakem, que era aficionado á la astrología y á la adivinacion, reconoció en Almanzor á su sucesor en el poder por el color moreno de sus manos; con lo cual el inventor de esta anécdota quiso sin duda dar á entender que el último Umeya de talento habia presentido con solo ver á Almanzor la estincion de la dinastía asiática y el futuro predominio de las razas africanas en Andalucía.

[281] Las puertas de la catedral de Santiago se veían todavía clavadas en las vigas de la mezquita en tiempo de Ambrosio de Morales. Véase su Crónica general, lib. XVII, cap. 23.

[282] Ebn Adzarí, traduccion del Sr. Gayangos; Al-Makkarí, t. 1, lib. III, cap. 2.

[283] Téngase presente para esta esplicacion la lámina que representa el Plano de la mezquita.

[284] La simetría, que en nuestra humilde opinion debe cifrarse más que en la uniforme repeticion de las partes, en la buena proporcion de unas con otras y de ellas con el todo, nunca se entendió por los arquitectos de la edad media, orientales y occidentales, del modo servil que lo hicieron los de la clásica antigüedad. La monótona regularidad de los edificios, sus líneas y su ornato, destruye muchas veces el efecto; al paso que cierta irregularidad y amena variedad en las partes les dá mayor interés y atractivo. Entre los árabes jamás se sacrificaba la cómoda reparticion de un edificio á la simetría de su decoracion, y no importaba que esta resultase irregular con tal de que la fábrica llenase plenamente su objeto. Acostumbrados á no echar de menos la uniformidad clásica, introdujeron la misma libertad en el ornato, así que, rara vez se encuentran en una arquería árabe dos capiteles iguales, ni dos arcos del mismo vuelo, ni dos archivoltas exornadas con las mismas ajaracas. La regularidad servil por otra parte tampoco fué precepto indeclinable en los buenos tiempos antiguos; la han exagerado los adocenados artistas modernos para suplir la falta de genio inventivo y salir del paso con cómodas imitaciones á regla y compás. El interés y el efecto ganan mucho con cierta juiciosa irregularidad, y merced á ella los grandes monumentos árabes y góticos ofrecen cada vez que se los contempla nuevas bellezas.

[285] Aunque de esta obra de refuerzo ejecutada en tiempo de Abde-r-rahman An-nasír no hicimos mérito al hablar de este Califa y sus construcciones, no será inoportuno espresar aquí que posteriormente hemos tenido noticia de ella por otro fragmento traducido de la historia de Ebn Adzarí que debemos a la amistad del Sr. Gayangos. El testimonio de Ebn Adzarí resulta plenamente comprobado por la inscripcion de una lápida de mármol negro que hoy se ve al costado derecho de la Puerta de las Palmas en el patio, y cuya traduccion, hecha tambien por el Sr. Gayangos, dice así: «En el nombre de Dios piadoso, de piedad: mandó el siervo de Alá, Abde-r-rahman Amir-al-momenin An-nasír lidini-llah, alargue Dios su permanencia (en la tierra), edificar esta pared esterior, y afirmar sus cimientos; (y esto lo hizo) en honra de Allah y de su santa religion para conservacion de las señales de su profecía, la cual permitió fuese ensalzada y mencionada juntamente con su nombre; esperando que (la obra) sea aceptable (á Dios) y alcanzar por ella las grandes mercedes y cuantiosos tesoros (de su munificencia) juntamente con gloria permanente y alto renombre. Y se acabó (la obra) con ayuda de Allah en la luna de Dzi-l-lacha del año 346 (enero ú febrero de 958), por mano de su liberto y guacir... Abdallah ben Batu. Lo hizo Said ben Ayyub.»

[286] Así un mero capricho suele ser orígen de las mas trascendentales innovaciones, podríamos añadir aquí en tono doctoral. Buena ocasion era esta en efecto para lanzar al estudio de las discusiones arqueológicas una especie nueva sobre el orígen de la ojiva en el occidente, si quisiéramos seguir el erróneo sistema de los que creen que toda forma arquitectónica ha de tener una procedencia única, como la especie humana á la cual damos los ortodoxos una sola cuna. Cítesenos, diríamos en son de triunfo, una arquería ojival en cualquier otro monumento anterior á la parte añadida por Almanzor en la mezquita de Córdoba, es decir, anterior al undécimo siglo: y si no se nos presenta ninguna, fuerza será reconocer en el espresado monumento el modelo ó prototipo mas probable de la arquitectura ojival española.

Por fortuna no razonamos así: creemos, sí, que podrá ser quizá la arquería citada el primer edificio de arcos ojivos hecho en España; más aun, nos figuramos que no se hallarán facilmente en la arquitectura occidental de la edad media ejemplos anteriores de este género de construccion (escluyendo el palacio de Ziza cerca de Palermo, que es anterior al noveno siglo); pero sabemos que un accidente aislado como un arco no constituye sistema, y que el arco ojivo mas bien que generador del estilo de arquitectura llamado gótico, es meramente uno de sus resultados.

Decimos esto porque ha sido este arco objeto de reñidas contiendas entre muchos anticuarios, que dándole la importancia que por sí solo no tiene, han gastado tiempo y tesoros de erudicion queriendo buscar el primer arco apuntado hecho en el mundo, y mostrando el precioso hallazgo, quién en oriente, quién en occidente, este en Egipto, aquel en Grecia, unos en las orillas del Soma y del Rhin, otros en las del Guadalquivir, otros finalmente en Inglaterra, en Normandía, etc., segun su particular simpatía por esta ó aquella tierra. Señalar un arco ojivo como orígen de la arquitectura de los siglos medios, prescindiendo de su estructura, del corte de sus dovelas, de su modo de ejercer la presion, de las bóvedas por arista en que realmente se engendra, de los nervios y demas caractéres esenciales del arte ojival, es como desenterrar al pié del monte Œta una flecha y pretender que sea reliquia de la famosa batalla de las Termópilas. El que se deja alucinar por el hallazgo de algunas formas aisladas, vendrá á parar á la absurda consecuencia de que no hay sistema arquitectónico que no se haya practicado en la antigüedad. Porque en efecto, así como los egipcios y los griegos conocieron el arco apuntado, los ninivitas labraron puertas de medio punto, bóvedas de cañon y ojivales, capiteles de volutas, grecas, alizares, almenas endentadas; y los persas sassanidas usaron las bóvedas peraltadas, las cúpulas bizantinas, los arquitos ornamentales largos y angostos, unidos dentro de un recuadro en forma de agimez, que constituyen uno de los mas graciosos caractéres de la decoracion bizantina y sarracénica, y hasta el mismo dintel conopial de líneas mixtas, de que tan frecuente empleo hicieron los arquitectos un tanto amanerados de los siglos XV y XVI.

Al estender esta nota hemos tenido á la vista las obras siguientes, que puede consultar el que guste comprobar los hechos que apuntamos: Hope, Historia de la arquitectura; Batissier, Historia del arte monumental; Caveda, Ensayo histórico, etc.; Flandin, Coste, etc., Viaje de Persia, Botta, Monumentos de Khorsabad; Layard, Monumentos de la antigua Nínive.

[287] Las dimensiones de la mezquita de Córdoba son diversas en cuantos escritores han hablado de este edificio. Segun Morales y otros tiene 620 piés de largo y 440 de ancho. Mr. Gailhabaud y otros autores que le han copiado le dan 162 metros de longitud (581 piés, 4 pulgadas) y 123 de anchura (441 piés, 5 pulgadas). D. Ramirez de las Casas Deza en su Indicador cordobés, dice haber obtenido en su medicion 647-1/2 piés de largo y 480-1/2 de ancho. Al-Makkarí trae, citando á otros historiadores árabes, diversas medidas; pero reconoce que hay entre ellos disparidades por no ser fija la dimension del codo adoptado por los mismos como unidad. Por último, creemos la menos sujeta á error, y adoptamos por consiguiente, la medicion practicada en 1811 por el ingeniero de minas baron de Karwinski y el de puentes y calzadas D. Joaquin Rillo, segun la cual tiene la mezquita 642 piés de longitud y 462 de anchura.

[288] Véase la lámina Esterior de la mezquita de Córdoba.

[289] Véase la lámina Capilla de Villaviciosa.

[290] Lo mismo que arquitectos.

[291] Al-khaulaní, citado por Al-Makkarí (lib. III, cap. IV), refiere que hallándose un dia Almanzor embebecido en la contemplacion de las bellezas de su palacio de Azzahira, se le angustió de repente el corazon presintiendo la próxima ruina del Califato, y llorando amargamente esclamó: «¡Pronto el fuego de las civiles discordias prenderá en los muros de este palacio, y las bellezas de Azzahira desaparecerán con ellos de la faz de la tierra. Esta mansion espléndida será asolada y convertida en escombros; sus jardines se trasformarán en mústio páramo, mis tesoros rodarán entre el polvo, y lo que es hoy teatro de placer y de alegría se trocará en escena de desolacion y ruina!»

[292] El estilo de esta capilla indica perfectamente la transicion del bizantino al africano. Su situacion corresponde al de las tribunas que se hallan en las antiguas mezquitas de Amrú, de Tulúm, de El-azhar, etc.; pero la gran riqueza de su ornamentacion hace presumir que no estuviese esclusivamente destinada al pregon interior ó alicama que hacian los almuedanes anunciando la oracion. Los turcos en sus mezquitas tienen aposentos separados, semejantes á este, para las esplicaciones del Koran: así se verifica en Santa Sofía de Constantinopla. En la Alaksa de Jerusalem existe igualmente una tribuna en situacion análoga á la de esta pieza; pero la ocupan ordinariamente los cantores, y no sabemos por los historiadores árabes que en las mezquitas de la España árabe se hiciese uso de la música. El embajador de Marruecos Sidí Hamet Elgazel, que estuvo en Córdoba por los años de 1766, tradujo una inscripcion de esta capilla, cuyo texto dá á entender que servia para que los doctores de la ley alcoránica celebrasen sus discusiones.

Esta capilla cae segun dejamos dicho á oriente de la nave central ó del Mihrab. A occidente habia otra, sobre cuyo destino hemos conjeturado, con el inglés Swimburne, que podia tener en ella su puesto el Cadí superior ó Cadí de la Aljama. De que realmente haya existido no hay la menor duda, puesto que en el informe sobre construccion de una nueva capilla real escrito en 1644 para ser presentado al rey D. Felipe III, se dice hablando de este sitio: «No se pretende mudar de lo que labraron los árabes, pues ya se hizo la mudanza en tiempo de D. Iñigo Manrique, demoliendo una de las tres capillas que tenian en este sitio los árabes.» Los árabes pues tenian tres capillas, interceptando la del medio la nave central: hoy en las mezquitas de Africa y Asia solo se ve una, á un lado de esta misma nave, y en la posicion que ocupa la que acabamos de describir tan prolijamente. Dásele ahora el nombre de mastaché, sirve solo para la alicama; y por el plano de la mezquita de Amrú que publica Batissier en su Historia del arte monumental, pueden ver los que tengan esta obra su colocacion análoga á la de la tribuna de Almanzor.

[293] «Edificó Al-hakem (dice el citado Ebn Adzarí de Marruecos, pág. 256 de la edicion de Dozy) al occidente de la mezquita la cámara llamada Dar-as-sadaca ó casa de la limosna, porque su destino era para socorrer con dinero á los pobres. ¡Dios excelso le haya perdonado!»

«Erigió tambien Al-hakem, dice Al-Makkarí (lib. III, cap. 2), varios edificios para hospedar á los pobres enfrente de la puerta principal de la mezquita del lado de occidente.» ¿Cuál era esta puerta principal? Las puertas árabes de la mezquita son todas iguales en sus dimensiones por la parte esterior, esceptuada la puerta grande que estaba debajo de la torre ó almenara. Pero hay efectivamente en el muro occidental una puerta hoy tapiada, al lado del postigo de S. Miguel, que corresponde á una cámara ó estancia árabe, cuajada de primorosa tracería, aunque lastimosamente toda encalada, donde se custodian el archivo de la estinguida capilla de música y los libros de canto para el coro. Esta estancia debió ser forzosamente la cámara de la limosna, y la puerta que á ella conducia seria en realidad la principal entre las de aquel costado por servir de ingreso á tan preeminente departamento. Frente á esta puerta cegada, en el lado opuesto de la calle, donde estaban las hospederías para los pobres, está hoy el hospital de niños espósitos. ¡Feliz terreno, consagrado siempre á las buenas obras!

[294] La cámara de la limosna, hoy archivo de música, ocupa en su longitud las tres primeras naves trasversales de la parte añadida por Al-hakem, y tiene frente por frente la capilla de Villaviciosa. Median entre ambas cuatro naves mayores, y este fué luego el buque de la primera catedral cristiana de Córdoba despues de la reconquista, como mas adelante se dirá. Así, pues, la pieza de la limosna vino á ser como el vestíbulo ó narthex de la catedral, el recinto hoy capilla de Villaviciosa su presbiterio, y la tribuna de la Alicama su sacristía mayor.

[295] Recuerda sin duda el lector que la mezquita antes de ser basílica cristiana habia sido templo romano en honor de Jano Bifronte, y que Abde-r-rahman I habia hecho cuidadosamente conservar para su grande Aljama todas las columnas de la construccion primitiva.

[296] Nos atrevemos á calificar con este nombre el arte árabe del primer período porque su ornamentacion nos parece de casta todavía mas pura que la vulgarmente llamada bizantina. Hay en Córdoba capiteles del tiempo de Abde-r-rahman III y de Al-hakem II, en que se ve mas que el mero reflejo la verdadera resurreccion del gusto helénico. Pero trataremos mas adelante esta cuestion reproduciendo algunos fragmentos de Medina Azzahra.

[297] Esto significa en árabe Kalat-an-nosor, de donde hemos formado Calatañazor.

[298] La dinastía de los Umeyas dió al trono de Córdoba diez y seis príncipes: hemos hecho mencion de los diez primeros, únicos con quienes tiene relacion la historia de la fundacion y engrandecimiento de la mezquita Aljama. Los siguientes, que pertenecen á la época de las guerras civiles del Califato, y reyes solo en el nombre, nada al parecer hicieron en este templo. Puede sin embargo interesar al lector su sucesion. Despues de Hixem II, destronado en marzo de 1009, subió al trono Mohammed II, que reinó hasta noviembre del mismo año. Era este nieto de un hermano de Al-hakem II. A Mohammed II sucedió Suleyman, tío de Hixem II, y reinó hasta mayo ó junio de 1010. Subió despues por segunda vez al trono Mohammed II, y en agosto del mismo año 1010 le sucedió el destronado Hixem II, tambien por segunda vez promovido al Califato. A Hixem II sucedió Suleyman, por segunda vez; reinó desde el mes de abril de 1013 hasta el mes de julio de 1016. En este se interrumpió la dinastía de los Beni-Umeyas. Ingirióse en la sucesion Alí, hijo de Hamud, de diversa estirpe, y reinó hasta marzo ó abril de 1018. Despues de este sigue otro Umeya, denominado Abde-r-rahman IV, nieto de otro hermano de Al-hakem II, aunque nunca llegó á enseñorearse de la capital. Siguen á Abde-r-rahman IV, que deja de reinar en enero de 1019, otros dos de la dinastía de Hamud, Al-Kasim, hermano de Alí, y Yahya, hijo de Alí, los cuales ocupan alternando el trono hasta noviembre del año 1023. Viene luego Abde-r-rahman V, de los Umeyas, hermano de Mohammed II, hasta mayo del año 1024; luego Mohammed III, nieto de otro hermano de Al-hakem II, hasta el mes de mayo de 1025; despues otra vez Yahya, hijo de Alí ben Hamud, hasta febrero de 1027; y últimamente Hixem III, hijo de Abde-r-rahman IV, desde mayo de 1027 hasta el año 1031.

El reino de Córdoba dependió luego de los amires de Sevilla, y á fines del siglo XI pasó bajo el imperio de los amires de Africa, almoravides y almohades. Poseianle estos últimos cuando en el primer tercio del siglo XIII se rindió á las armas de D. Fernando el Santo.

[299] Por este tiempo fué cuando Juan, arzobispo de Sevilla, tuvo que traducir la Biblia del latin al arábigo para que pudiesen entenderla los cristianos de Andalucía, así lo refieren el P. Florez, Bravo, Masdeu y otros.

[300] Tunc Museranij, dice Orderico Vital, fere decem milia congregati sunt, ac Regem Ildephonsum humiliter adierunt. Nos inquiunt et Patres nostri hactenus inter Gentiles educati sumus, et baptisati Christianam legem libenter tenemus: sed perfectum divæ religionis dogma nunquam ediscere potuimus: nunc neque nos pro subjectione infidelium, à quibus jam diu oppressi sumus, Romanos, seu Gallus expetere doctores ausi fuimus, neque ipsi ad nos venerunt propter barbariem paganorum, quibus olim paruimus. Nunc autem adventu vestro admodum gaudemus, et natali solo relicto vobiscum migrare cum uxoribus, et rebus nostris optamus. Mucerianis itaque rex, quod petebent, annuit, etc. De las concesiones de tierras y privilegios que el rey les hizo habla Garibay (lib. 23, cap. 8).

[301] Bajo esta persecucion, no menos encarnizada que la de Mohamad, de que hicimos mencion en su lugar correspondiente, debieron quedar destruídas la mayor parte de las basílicas cristianas de Córdoba, pues solamente hay noticia de haberse conservado una por los cautivos cristianos, que fué la de Sta. Maria, de que habla Salviato (copiado por Bolando y Tamayo) en la vida de S. Martin de Soure. Véase el cap. Córdoba mozárabe.

[302] Así lo refieren Ibn Sahibi-a-saláten su Historia de los almohades, Ibnu-l-khattib, y Conde.

[303] «El emperador, dice Gomez Bravo (t. 1.º, pág. 240), como nimiamente crédulo... imbió al conde D. Manrique de Lara con otros caballeros, y fueron todos arrestados por órden de Abengamia luego que entraron en la ciudad.» El diligente historiador árabe Ibn Khaldun, de quien copia un largo fragmento el Sr. Gayangos en su apéndice D al tomo II de Al-Makkarí, refiere que estando Ben Ganyah en Jaen sitiado por el rey cristiano, aprisionó traidoramente á uno de sus condes encerrándolo en el castillo de Alcalá de Ben Zaid.

[304] Hipérbole usada con frecuencia por los historiadores árabes para pintar la muchedumbre de un ejército.

[305] Esta espresion, de que se valió Al-Mu'tamed para significar que mas queria ser prisionero de Yusuf Ibn Taxfin el almoravide, que cautivo de Alfonso, se hizo luego proverbial en Andalucía.

[306] Esta segunda entrada de las tropas del emperador D. Alfonso en Córdoba consta de dos privilegios que menciona Gomez Bravo, dado el uno á Pelayo, cautivo, á 23 de junio, era de 1188, y el otro á Martin Diaz, á 19 de agosto de la misma era. Hácese en el primero mencion del cerco de Córdoba con estas palabras: Quando Imperator tenebat Cordubam circundatam, et pugnavit super eam cum triginta milia Muzmidis, et cum alijs Indalucijs, et devicit eos. Y dícese en el segundo: Post reditum fossati, quo prænominatus Imperator Principem Maurorum... sibi vassallum fecit; et quandam partem Cordubæ deprædavit cum mesquita majori.

Concuerda con esto lo que refiere en su Historia de España Mr. Romey (t. 6.º, página 90) del discurso que dirigió á Abde-l-mumen en Salé el Cadí de la Aljama de Córdoba Abu-l-Kasem ben El Had, con motivo del solemne recibimiento hecho por el Amir almohade á los diputados de las ciudades de Andalucía sometidas á la nueva dinastía. «La capital de España, dijo Abu-l-Kasem, centro de los musulmanes, sufre los asedios y asaltos del tirano Aladfuns (¡Dios le confunda!); sus campos estan talados y yermos, sus caseríos destruidos é incendiados, etc... Los musulmanes que la defienden esperan que acudas á su defensa y ahuyentes á los enemigos del Islam. Todos ponen los ojos en tí como en una alta montaña esperando auxilio seguro, etc.»

[307] Véase Homey, Hist. cit., t. 6.º, cap. II, y Al-Makkarí en su descripcion de la mezquita, epígrafe Copia del Koran, etc.

[308] La mezquita Aljama de Sevilla, de que hoy solo se conserva el altísimo alminar, llamado la Giralda, fué construida por los almohades.

[309] Nadie ignora que la derrota que sufrieron los almohades en la sangrienta batalla de las Navas de Tolosa ó Muradal, y con la cual lavó D. Alfonso IX la afrenta recibida en Alarcos, fué la que dió el golpe de muerte al imperio agareno en España. Espanta el pensar cuál habria sido la suerte de la cristiandad si la tremenda oleada venida del Africa no se hubiese estrellado contra las heróicas huestes de Castilla, Aragon y Navarra. Nunca se habia visto un ejército tan numeroso como el que juntó El Nassr allegando para la guerra santa toda la gente disponible de aquende y allende el Estrecho. Los historiadores árabes afirman que entre escuadrones y batallones, entre ginetes y peones, contaba el Amir mas de 400,000 hombres, repartidos del modo siguiente: 60,000 voluntarios, 300,000 reclutas, 30,000 negros con alabardas para la mas inmediata defensa de su persona, 10,000 ballesteros renegados, y últimamente muchos flecheros de las tribus zenetes, árabes y arábigo-berberiscas de Almagreb.

[310] Este pacto se cumplió, pero el templo cristiano erigido en medio de la capital del imperio agareno de Africa duró poco, porque el usurpador Yahya, aprovechando una diversion de El Mamun, cayó con sus partidarios sobre la ciudad y lo destruyó. Véase Romey, Historia de España, citando al historiador árabe Ebn Abd el Halim, t. VI, cap. 6.

[311] Refiere Gomez Bravo haber visto en el claustro de la parroquia mozárabe de S. Sebastian de Toledo un epitáfio de un cristiano de Córdoba que huyó á dicha ciudad por estos tiempos, concebido de la manera siguiente:

In nomine Domini Jesu-Christi
Vir bonus, et gratus, Vicinus, merigeratus
Dominicus Joannes à Corduba ad astra
Beatus.

Obijt 25 Julij, era 1219.

[312] «Estos hombres que llevan el nombre de almugávares (almogavars), dice Bernardo Desclot, son gentes que no viven sino de hechos de armas, ni habitan en villas ó ciudades, sino en bosques y montañas; y estan en guerra diaria con los sarracenos. Entran en sus tierras una ó dos jornadas, prenden á los sarracenos, llévanse sus bienes, y así viven. Sufren malandanzas que otros hombres no podrian sufrir, pues si es menester pasan dos dias enteros sin probar bocado, ó manteniéndose de la yerba del campo. Los adalides que los guian saben todos los caminos de las tierras que recorren; no llevan mas que una camisa muy corta, sea verano ó invierno, en las piernas unas calzas de cuero, abarcas en los piés, en la cintura una correa con un buen cuchillo, casco en la cabeza, lanza y dardo en mano, y una bolsa de piel á la espalda con pan para dos ó tres dias... Son todos catalanes y aragoneses.» Véase la nota 162 á la Crónica de Fr. Pedro Marsilio, traducida por D. José Maria Cuadrado. Mr. Romey en su Historia completa del modo siguiente esta pintura de aquella célebre milicia catalana y aragonesa. «Hay tambien otros llamados Golfines, que en su modo de vivir se diferencian poco de los almugávares, y son castellanos y salagones, gentes de lo profundo de España... Los cuales, por no tener hacienda y haberlo gastado ó jugado todo, ó bien por delitos que cometieron, huyen de su tierra con sus armas, y como hombres que no saben hacer cosa de provecho, se establecen en la frontera de los puertos de Muradal, que son unas grandes montañas llenas de bosques y peñas inaccesibles que confinan con tierras de sarracenos y cristianos, y por donde pasa el camino que va de Castilla á Córdoba y Sevilla, y allí roban á las gentes de toda ley.»

Almogavar se deriva del verbo árabe ghar ó ghara, que significa guerrear, acometer, etc.; de donde procede tambien el sustantivo algara ó algarada (alghawra en árabe), equivalente á incursion, acometida súbita, correría por el pais enemigo.

[313] Barrio al oriente, en la parte baja de la ciudad, en que vivian los mozárabes, separado de la Almedina ó parte alta, llamada tambien la villa despues de la reconquista, por una fuerte muralla, que, corriendo de N-E. á S-O., dividia á Córdoba en dos porciones desiguales. Créese que habia ademas en la Almedina otros muros interiores que la dividian en cuatro ó cinco barrios diversos. Sábese de cierto que habia en la ciudad puertas interiores, con sus guardas ó serenos (Ad-darabún) encargados de cerrarlas todas las tardes despues del alatemah ú oracion del anochecer, de modo que los barrios no comunicasen unos con otros. Estos guardas andaban bien armados, llevaban una linterna sorda, y un perro para que les avisase de cualquier ruido. De las puertas interiores existen todavía algunas en la ciudad con el nombre de portillos.

[314] Alvaro Colodro y Benito de Baños fueron los primeros soldados cristianos que escalaron la muralla por el punto mismo que hoy ocupa la Puerta de Colodro.

[315] Llególe en el camino la noticia del aprieto en que tenia puestos á los valencianos D. Jaime de Aragon, y olvidándose de sus cordobeses, se dirigió á auxiliar al rey Aben Zeyan. Con este objeto llegó á Almería, donde pensaba embarcarse para Valencia; el caïd ó alcaide Abde-r-rahman le dió alojamiento en la Alcazaba festejándole con un espléndido banquete, y aquella misma noche (15 de enero de 1238) le ahogó pérfidamente en su propio lecho. Romey, Hist. cit.: t. VI, cap. 6.

[316] Estando en Benavente sentado para comer, le llegó el correo con la noticia de la sorpresa de Córdoba por unos cuantos soldados, y el rey, sin darse tiempo de tomar un bocado, montó á caballo, dejando órdenes á los lugares de Leon y Castilla para que le siguiese la gente de armas que la diligencia de los cabos y corregidores pudiese juntar. Véase la Crónica general de España del rey D. Alfonso, parte 4.ª, fol. 409: Crónica del santo rey, cap. 21: el arzobispo D. Rodrigo, lib. 9, cap. 16.

[317] De los Beni Hud de Zaragoza.

[318] Véase la nota de la pág. 93.

[319] En el archivo de la iglesia catedral existe la prueba de esto en un privilegio del rey S. Fernando fechado en Valladolid á 12 de noviembre de la era 1276 (A. D. 1238), en el cual se leen las siguientes frases: Notorio e manifiesto sea... que yo Ferrando por la gracia de Dios rey de Castiella, de Toledo, etc., por consentimiento e beneplácito de la reina D.ª Berenguela, mi madre, juntamente con mi mujer la reina D.ª Juana e con mis hijos Alfonso, Frederico e Ferrando, fago carta de donacion, concesion, confirmacion e firmeza a Dios e a la eglesia catedral de Sta. María de Córdoba e a vos el maestro Lope, mi amado electo obispo de la misma, desde agora e a vuestros sucesores, e a todo el cavildo de canónigos, etc.

[320] Donde está hoy la capilla de la Concepcion.

[321] En la que es hoy capilla de la Cena.

[322] «... Vos doy e conçedo los diezmos de mi almoxarefadgo, alguacilado de las quintas salinas e mi tienda, e de todos los réditos que tengo en Córdoba, a vos fago donacion de dos fornos e aquellas dos aceñas que fueron de Ordoño Alvaro, e vos doy quinientas aranzadas de viña e cien aranzadas de huerto e la tercera parte de todo mi olivar, etc.» Privilegio citado.

Por el memorial de un pleito sobre el terreno de la alcaicería entre el cabildo y el duque de Medinaceli, fallado por la Real Chancillería de Granada, nos consta que al diezmo del almojarifazgo concedido á la catedral, y confirmado por varios reyes en lo sucesivo, estaban anejas y juntas estas otras rentas: el pontazgo, los tres pesos, la renta de las libras de la carne, la media fanega de la alhóndiga, y la antigua alcabala de las bestias. Percibió el cabildo estas rentas hasta el año 1411, recibiendo el importe del diezmo del almojarifazgo en el arca de la aduana de la ciudad. Cuando algun año no habia arrendadores del almojarifazgo, ó no daban fianzas bastantes, ó no pagaban el diezmo como debian al cabildo, ponian sus fieles así á la renta como á cada una de las rentas anejas. Arch. de la catedral, caj. Z, leg. 2, núm. 38.

[323] Fué D. Lope muy amado del rey S. Fernando, y le habia ya dado este casas, un horno, una rueda de aceña, quince aranzadas de viña y tres de huerta cuando entró en Córdoba. Véase á Gomez Bravo.

[324] Es tambien interesante este instrumento, porque no existiendo el repartimiento de Córdoba, por él se tiene noticia de muchas posesiones y derechos, cuyo conocimiento es útil para el estudio de la corografía y de nuestro antiguo sistema tributario. Copiamos de él lo siguiente: «Luzena y Bella con todos sus términos, al señor obispo, como las dió el rey á la Eglesia. Cayó en parte al cabildo Tiñosa con todos sus términos e todo el almoxarefadgo de Córdoba e todas las tiendas fechas e por façer assi como el rey lo dió a la Eglesia. De las viñas e huertas cayó la mitad al obispo e la otra al cabildo. Sacada la huerta de las veinte e dos aranzadas que dicen Aliatar que recebió el obispo en cambio e entrega por la ofrenda e por el mortuorio que habia el obispo en la capilla, e fincó en el cabildo la dicha ofrenda. Cayó al cabildo por entrega de las huertas el horno de S. Laurencio e al obispo la heredat de Carchena, al cabildo el cortijo de Diezmariza e el cortijo de Miguel Zorita, los que fueron de Alfon Tellez. Del heredamiento de Jaen, del del Tejedor, del heredamiento de Palma e del heredamiento de la Torre de Avenhance (que es cerca la Torre Albaen) tocó la mitad al obispo e la otra mitad al cabildo. Tocó al obispo la mitad de todas las aceñas que há la Eglesia en esta cibdat e la otra mitad al cabildo e dicho señor obispo D. Gutier asignó al comunal de las raciones en la parada que cayó al cabildo todos los heredamientos e que los haya en esta forma. En Tiñosa con todos sus términos así como la dió el rey á la Eglesia, los cortijos sobredichos e todo lo que há el cabildo en Córdoba, viñas e heredades, huertas, aceñas, hornos, el almoxarefadgo, todas las tiendas fechas e por façer, el diezmo todo de la tienda de los alcalles, e la alfóndiga que es cerca de Sancta María, e cerca de los baños, e la parte que há el cabildo de las caloñas de los alcalles, e la parte del diezmo de los ganados que vienen a estremo, e del montadgo e de los treinta dineros de los judíos, e toda la parte que cayere al cabildo en los almoxarefadgos de todas las villas que tenian los moros en este obispado cuando los oviese la Eglesia, e toda la partida del cabildo de las Eglesias que son en esta cibdat ó serán, etc.» Arch. Caj. V, núm. 98.

[325] Son varios los autores impresos y manuscritos que lo traen. Hállase en la Historia del linage y Casa de Córdoba, del abad de Rute, m. s. de la Real Academia de la Historia; en otro curioso m. s. de la misma Academia titulado Antigüedad y grandezas del suntuosísimo y máximo templo de la sancta catedral iglesia antiguamente metropolitana de Córdoba, etc., compuesto para despues reducirlo á mejor forma por Joseph Antonio Moreno, Martin, Velazquez de los Reyes, capellan de la veintena, etc., año 1686; y hállase asímismo en cuanto á lo sustancial en Gomez Bravo, Obispos de Córdoba, lib. III, cap. 4.º, pág. 264.

[326] Esta capilla es hoy sala capitular, aunque abandonada. El laborioso anticuario D. Luis Ramirez y de las Casas-Deza en su Indicador cordobés asegura que fué la primera que se labró en la iglesia restaurada escogiéndola para sí el santo rey, y añade que en ella se conservaron por mucho tiempo escudos y banderas de los que se llevaron en la toma de la ciudad por S. Fernando. La misma antigüedad le dá el presbítero D. Francisco Sanchez de Feria, hijo del conocido autor de la Palestra Sagrada, en su Descripcion moderna y antigua de la ciudad de Córdoba que posee m. s. é inédita nuestro erudito y bondadoso amigo el Sr. D. Valentin Carderera. Sin embargo el autor del m. s. citado Antigüedad y grandezas etc., propio de la Real Academia de la Historia, afirma que la primera capilla que se fundó fué la de S. Lorenzo, por el arcediano de Córdoba D. Sebastian en tiempo del rey S. Fernando, siendo sus capellanías las mas antiguas de aquella santa iglesia despues de las de la veintena. ¿Cuál era esta capilla de S. Lorenzo? D. Francisco Sanchez de Feria (m. s. cit.) dice que con este título fundó el arcediano de Castro D. Sebastian Ruiz, en 1298, una capilla que en el siglo XVI hubo que demoler para la fábrica de la capilla mayor, crucero y coro, y que en esta época fué trasladada á la de Sancti Spiritus, cuya advocacion cesó desde entonces. El Sr. Casas-Deza, sin tomar en cuenta la existencia de la capilla Sancti Spiritus, supone la advocacion de S. Lorenzo establecida en 1288 por el arcediano de Córdoba D. Sebastian. Como se ve, no hay contradiccion entre estos dos últimos escritores: lo único que hay es llamar el Sr. Casas-Deza equivocadamente fundacion á lo que fué mera traslacion; pero ambos convienen en asignar á la capilla de S. Lorenzo, hoy unida á la de S. Pedro por obra del dean D. Pedro de Salazar en el pasado siglo, un origen posterior no solamente á la fecha que le atribuye el autor del m. s. Antigüedad y grandezas etc., sino al reinado mismo del hijo de S. Fernando.

[327] «Fué destinada para sala capitular en 1347, y por los años de 1805 se principió la obra que determinó hacer el cabildo para darle otra forma, destruyendo arcos y quitando columnas iguales á lo demas de la mezquita; pero se suspendió por desaprobacion de la Real Academia de S. Fernando.» Indicador cordobés, p. 261.

[328] D. Francisco Sanchez de Feria, m. s. citado.

[329] Acerca de la suntuosa sinagoga que los judíos comenzaron á construir en Córdoba en tiempo del papa Inocencio IV, existe una bula espedida en Leon de Francia, año sétimo de su pontificado, en el famoso Libro de las tablas del Archivo de la catedral, del cual nos ha permitido el ilustrado cabildo sacar algunas copias y extractos, auxiliándonos con extremada bondad en nuestra tarea su archivero el Sr. Trevilla. Este documento no existe ya original, pero su copia, al folio 1.º vuelto de dicho Libro, con sus abreviaturas originales, dice así: «Innocentius eps Serv. Serv. Dei. Venerabili fratri epo Corduben salutem et aplicam ben. Cotra inhibicione dilector. filior. Archidiaconi et capli Corduben sic accepim. judei Corduben. civitatis quadam sinagoga supflue altitudinis teme ibide costruere de novo psumunt et grave Xpi fidelium scandalum et Corduben. ecclie detrimentum. Quare humilit. petebatur a nobis ut pvide sup hoc misericorditer curarem. Quo cura fraternitate tue p aplica scriptura mandam. qtin. cont. judeos eosdem sup hoc officij tui debitum cessante appellacionis obstaculo exequaris. Dat. lugdun. Idus aprilis pontificat. nri. anno septimo.

Esta sinagoga, sin embargo de lo mandado por S. S., no fué derribada, porque dice D. Francisco Sanchez de Feria (m. s. cit., fol. 107 vuelto) que quedó desierta por marzo de 1492, cuando los reyes católicos D. Fernando y D.ª Isabel expulsaron de España á los judíos; en cuya época se fundó en ella el Hospital de Sta. Quiteria para curacion del mal de rabia. La causa de no haber tenido cumplimiento la bula de S. S. pudo ser quizás el haberse recibido en Córdoba cuando ya el obispo D. Gutierre habia fallecido, y antes del nombramiento de su sucesor.

[330] En la lámina que representa la vista de Córdoba y su catedral desde el castillo llamado de la Carrahola, se muestra perfectamente dibujada, aunque en pequeño, la elevacion de la catedral antigua, que asoma su armadura por encima de las terrazas de la mezquita, formando una ala tendida de oriente á poniente partiendo de la nave del Mihrab.

[331] Véase la pág. 185 y su nota 1.

[332] Ibid.

[333] El Sr. Casas-Deza en su Indicador cordobés atribuye al obispo D. Íñigo Manrique en 1489 una reedificacion de esta capilla segun el gusto tudesco. Si esta en efecto tuvo lugar, luego indudablemente se verificó otra en época muy posterior, porque su bóveda actual está pregonando el mas lastimoso churriguerismo.

[334] Parece ser que esta capilla, hoy Sagrario desde el año 1577, fué fundada por el obispo de Córdoba D. Fernando de Mesa en 1265, y nó por D. Juan Ponce de Cabrera en 1390, como dice el Sr. Casas-Deza. A Ponce de Cabrera se la dió el cabildo en 1320, y su mujer D.ª Inés Henriquez la tenia ya dotada antes de finalizar el año 1350. Así lo refiere Feria, m. s. citado.

[335] «... tenuis et exilis tanquam nihil obtinens extra muros; immo inter ipsos Sarracenos undique constituta», decia la bula de Gregorio IX.

[336] Este privilegio se copia en el Memorial del pleito citado entre el duque de Medinaceli y el cabildo de la iglesia catedral sobre el terreno de la alcaicería. Dice así: «Sepan cuantos esta carta vieren... etc. como Nos D. Alfonso por la gracia de Dios... etc. Por grant sabor que habemos de facer bien e merced al obispo D. Ferrando e al cabildo de la Eglesia catedral de la N. C. de Córdoba la que ganó el muy noble rey D. Ferrando nuestro padre de moros e la pobló de cristianos á servicio de Dios e de Sancta María, e por las almas del muy noble rey D. Ferrando nuestro padre et de la muy noble reina D.ª Beatriz nuestra madre, e por remision de nuestros pecados, dámosles e otorgámosles carta, bien á los que agora y son como á los que serán de aquí adelante, para siempre jamás, las nuestras treinta y tres tiendas que son cerca de la misma Eglesia. Entra en esta donacion una tienda que y ha, en que venden el pescado, e esto les damos porque fagan cada anno dos aniversarios etc.» De estas tiendas dadas al cabildo, unas estaban en la alhóndiga, otras en la alcaicería. Así consta de un albalá del rey D. Enrique III, por el cual, en perjuicio del cabildo, cuyo derecho era tan antiguo, se daban las mismas tiendas á dos caballeros llamados Ruy Mendez y Alfon Mendez de Sotomayor.

[337] Libro de las tablas, caj. N, núm. 271, fol. 17.

[338] El imperio de Alemania.

[339] Esta carta es curiosa y merece citarse: «Sepades, dice á los alcaldes y alguacil de Córdoba, que el cavildo de la Eglesia de Sancta María de Córdoba me embiaron decir que tienen carta del rey mio padre abierta en como quita de todo pecho a quatro moros que labren en su Eglesia, e porque diçen quel uno destos moros es muerto et el otro ciego en guisa que non puede labrar pidiéronle merced que pusiessen otros dos moros en logar destos et que fuessen quitos de todo pecho assi como lo eran los otros, et él tóvolo por bien. Et diçen que son estos los dos moros que ellos y quieren poner, Famet et Zahec. Et pidiéronme merced que me ploguiesse, et yo téngolo por bien. Onde mando et defiendo que estos quatro moros que el cavildo tomare para su Eglesia que non pechen et que los muden cada que quisieren, et tomen quales quisieren. Et nenguno non sea osado de les demandar pecho nenguno. Et non fagades ende al. Dada en Peñafiel. VII dias de abril, era de mill et CCC et treze annos. Yo Johan Math ó bien Math., maestrescuela de Córdoba la fiz escrevir por mandado del infante.» Libro de las tablas, fol. 17.

[340] Dice así: «Et yo tengo por bien que quatro moros, dos albañís et dos añaiares que les ellos tomaren para obra desta Eglesia sobredicha que sean quitos de todo pecho.» Ibid.

[341] Libro de las tablas, fol. 18.

[342] Véase la pág. 192.

[343] El arzobispo de Leon Agobargo se habia visto precisado á representar contra ellos al emperador Ludovico Pio, pidiendo les cercenase los privilegios de que gozaban, y el monarca procuró poner remedio á sus escesos.

[344] En el Archivo de la catedral, caj. N, núm. 271, al fol. 3, existe copia antigua de este documento, que empieza así: Innocentius eps Serv. Serv. Dei. Venerabili fratri episcopo Cordobens salutem et apostolicam benediction. Licet in Sacro generali Concilio... fuerit deliberatione statutum ut judei a christianis habitu distingantur ne illorum isti ut istæ illi mulieribas possit dapnabilit comisceri. judei tam i Corduben civitate et dioc comorantes statutum hujusmodi sic accepimos no obsvant, quapropter etc. Está fechado en Leon de Francia, idus de abril, año 7.º de su pontificado, que corresponde al año 1250.

[345] Existe el documento en el mismo Archivo, caj. P.

[346] Acerca del diezmo de las posesiones que los judíos y sarracenos compraban y labraban, hay en el mismo caj. P (núm.º 75, 76 y siguientes) muchos instrumentos y privilegios rodados, reales provisiones, cartas y bulas. Bajo el núm. 79 hay una carta de D. Alonso X, con señal de haber tenido sello pediente, espedida en Córdoba á 3 de junio de 1260, de la que se deduce que era general en todas las tierras de la provincia habitadas por moros la resistencia al pago del diezmo, puesto que se hace espresion de la queja del obispo y cabildo contra los moros que labran las heredades de los cristianos en Palma, Castro, Almodovar et otros logares.

[347] Ibid., núm. 79 (instrumento reproducido en el Libro de las tablas. fol. 18):... Otrosí se querellaron que habia judíos e moros que albergan casas de los xpnos et moran en ellas et non dan el derecho que daban los xpnos si viviessen en ellas, por ende el rey mandó que los judíos e moros que moraran en las casas de los xpnos alogradas que paguen sus derechos como lo fazien los dichos xpnos... etc.

[348] «Otorgó el vencedor que aseguraba las vidas y haciendas á los moradores en pacífica y quieta posesion, que no arruinaria las mezquitas, ni estorbaria el uso y ejercicio público de la religion, que tendrian sus cadíes que juzgasen sus pleitos y causas, etc.» Conde, año 1085.

[349] «Y concertaron con el rey Gacum (Jaime) que la ciudad le seria entregada ofreciendo seguridad á todos sus moradores, y libertad para irse á otra parte donde quisiesen con todos sus haberes, y que los que quisiesen permanecer en ella fuesen tributarios como los otros vasallos del rey Gacum, permitiéndoles el libre uso de su religion, leyes y costumbres.» Conde, año 1238.

[350] «Las condiciones de la entrega fueron: que los muzlimes pudieran quedar en la ciudad y vivir en ella con toda libertad, gozando de sus casas y posesiones seguramente, sujetos solo al moderado tributo que solian pagar á sus reyes por Sunna y Xara.» Conde, año 1248. Al estipular que podrian vivir con toda libertad, es claro que no se escluía la libertad de conciencia y el culto público.

[351] ¡Cuán diferente la capitulacion de Córdoba, si es que tal nombre merece! «Perdida la esperanza que los animaba, dice Conde (año 1236), acordaron de rendirse con buenas condiciones; pero los cristianos, que estaban seguros de su triunfo, solo concedieron á los moradores la vida y libertad de ir adonde bien les pareciese

[352] Partida 2.ª, tit. XXIX. I. 1.

[353] «Los setarios secuaces de Mahoma, dice Marmol Carvajal, propiamente deben ser llamados con dos solos nombres alárabes ó agemes: los alárabes son los originarios, y los agemes los advenedizos que de otras naciones y provincias abrazaron su opinion»...«Los mauros, fenicios ó cartagineses, como los quisiéremos llamar, que escaparon de la ira de los romanos, derramándose por Africa entre los penos, constituyeron señorío en algunas partes, especialmente en las Mauritanias, y dellos vienen los que agora llaman azuagos; y porque así estos como los otros mauros de Fenicia abrazaron la seta de Mahoma en el número de los agemes, el vulgo cristiano los llama comunmente á todos moros; y así los que lo son se honran mucho de aquel nombre, entendiendo por mucelemines, que es el nombre que ellos tienen por epíteto de santimonia, interpretado hijos de salvacion. Los mudéjares vienen de los alárabes y de los agemes africanos y de otras naciones, y son los que se quedaron en España en los lugares rendidos por vasallos de los reyes cristianos, á los cuales, porque servian y hacian guerra contra los otros moros, los llamaron por oprobio mudegelim»... Rebelion y castigo de los moriscos, lib. II, cap. I.

Réstanos solo añadir, para mayor claridad, que en nuestros antiguos documentos legislativos se sigue el uso vulgar de llamar moros indistintamente á todos los muzlimes sujetos á la dominacion cristiana, sean árabes ó berberiscos. Estos moros estaban divididos en cuatro clases: los conversos, los siervos, los libertos y los mudéjares. Los conversos llevaban tambien el nombre de moriscos. Eran siervos los que nacian tales, ó eran vendidos para serlo por persona capaz, ó los infieles cautivos en la guerra. Eran libertos los que en virtud de la emancipacion ó por beneficio de la ley pasaban del estado de servidumbre al de libertad; sin embargo, así los esclavos como los libertos formaban parte de la propiedad mueble, la mas estimada en España, donde siempre fué descuidada la agricultura. Los mudéjares eran los únicos muzlimes libres que vivian con su religion y sus propiedades bajo el vasallage de los conquistadores cristianos, segun los pactos especiales concertados al entregarse á ellos.

Así pues, rigurosamente hablando, los mudéjares cordobeses que no gozaban mas que de una libertad á medias por no habérseles otorgado derecho alguno para permanecer en la cuidad, se hallaban en una situacion extralegal y anómala.

[354] Mr. Circourt en su Historia de los moros mudéjares y moriscos elude completamente la cuestion relativa al estado y condicion de los muzlimes entregados á discrecion del vencedor en las ciudades tomadas sin capitulacion, como Córdoba. Entiende (t. 1, cap. XV) que las únicas fuentes para venir en conocimiento de la legislacion propia de los mudéjares, sin la distincion que nosotros acabamos de establecer, son las Siete Partidas y el Fuero de Valencia. No ignora el historiador francés que hasta que el Ordenamiento de Alcalá le dió fuerza legal en 1348, no se observó como ley general del reino el Código del rey sabio; pero cree (y en esto no va descaminado si se refiere á la curia de la corte) que las leyes de Partida se estudiaron y tuvieron secuaces desde que fueron ultimadas en 1258. Nosotros creemos, por lo que hace á los moros mudéjares, que puesto que no habia estipulacion escrita que debiese regir como ley para el régimen y gobierno de los de Córdoba, lo regular y lógico es que los reyes D. Fernando y D. Alfonso los sujetasen próximamente á la misma condicion que en su Código (puesto que su pensamiento pertenece á ambos) habian imaginado y dispuesto como normal para las gentes de su clase. Por consiguiente venimos á parar á una conclusion semejante á la de Mr. Circourt, aunque por una razon diferente, pues él cree que los mudéjares de Castilla y Andalucía tuvieron por cuerpo de leyes el Código de las Partidas por estar ya este en observancia, oficiosa aunque no oficial, y nosotros suponemos, tan solo por una razon de consecuencia en las ideas de gobierno de dichos reyes, que vivirían sometidos á los mismos principios de equidad que los monarcas mencionados fijaban en su cuerpo de legislacion general.

[355] Véase la pág. 172.

[356] D. José Antonio Moreno, capellan de la veintena, en su citada obra m. s. Antigüedad y grandezas de la catedral de Córdoba, al año 1284, en nota marginal. Para que la mencionada capilla de S. Pablo existiese cuando murió el maestre de Santiago D. Pedro Muñiz de Godoy, forzoso era que hubiese sido labrada antes del año 1285. D. Francisco Sanchez de Feria en su Decripcion inédita de la ciudad de Córdoba, dice que la capilla de S. Pablo se labró en 1365 por el comendador D. Pedro Muñiz de Godoy. De estas dos noticias ninguna es cierta, si bien es disculpable la equivocacion en que sus autores han incurrido por la identidad de los nombres. El primer maestre de Santiago que llevó el nombre de D. Pedro Muñiz de Godoy, electo en 1280, no consta hubiese fundado capilla alguna. Sábese, sí, que antes de ser elegido maestre fué comendador mayor de Castilla, y esta circunstancia ha podido tal vez inducir en error á Sanchez Feria al llamar comendador á otro D. Pedro Muñiz de Godoy, que en efecto vivia en el año de 1365. Este segundo maestre D. Pedro del ilustre linage de Godoy (que lo fué tambien de Calatrava, como asegura Rades Andrade), privado del rey D. Enrique II, casó dos veces: fué su segunda mujer D.ª Elfa de Latorre, señora principal, y tuvo en ella cuatro hijos, al primero de los cuales, D. Gonzalo Yañez de Godoy, caballero de Santiago y comendador de Beas, cedió el cabildo de la iglesia mayor de Córdoba el año 1387 sitio para fundar la espresada capilla, segun consta del instrumento de donacion que cita el Dr. D. Andrés Morales en el cap. 272, part. 1.ª de su Hist. m. s. é inédita de Córdoba. «Esta gracia y merced hacemos, dice el instrumento citado, por muchos y muy señalados servicios que el maestre vuestro padre hizo á nuestro señor el rey. etc.» Y en efecto, el maestre D. Pedro murió en batalla al servicio del rey D. Juan el I hallándose en Badajoz con el conde de Niebla contra el Portugal. No pudiendo ponerse en duda la autenticidad de este instrumento, es preciso creer que la inscripcion que hoy se lée en la capilla de S. Pablo en dos lápidas modernas de jaspe azul á los lados del altar, y en que se dice que el maestre D. Pedro la edificó, está equivocada. Reedificada esta capilla en el siglo XVII por un descendiente del maestre, llamado D. Fernando Carrillo (de cuyos empleos y títulos nos informa una de las dos lápidas citadas), no seria estraño que la inscripcion se hubiese grabado consultando solamente la tradicion, que denominaba la capilla de S. Pablo Capilla del maestre D. Pedro Godoy por haberla labrado para él su hijo D. Gonzalo.

[357] Del año 1290.

[358] Fundada por D. Perez de Retes en el mismo año 1290. Sanchez Feria, m. s. citado. Hoy no existe.

[359] Fundada, segun el mismo autor y segun Gomez Bravo, por el dean D. Pedro de Ayllon, en 1294. Tampoco existe ya.

[360] Del último tercio del siglo XIII, pero de año incierto.

[361] De esta capilla de S. Gil, que tampoco existe hoy, tenemos noticia por el citado m. s. de Sanchez Feria. Parece ser que la fundó en 1300 el arcediano de Castro D. Gonzalo Perez, quien la renunció en el cabildo por los años de 1376.

[362] Esta queja en efecto elevaron al rey D. Fernando IV en las córtes de Valladolid la mayor parte de los obispos y cabildos de todos los reinos, y en vista de tan justa y debida representacion, mandó el rey librarles la carta que trae Gomez Bravo en su Catálogo de los obispos de Córdoba, cap. VI, lib. 3.º

[363] El obispo D. Gil.

[364] Moreno, Antigüedad y grandezas etc., m. s. cit. de la Real Academia de la Hist.

[365] Solo en el año 1320 habia fundado una capilla á S. Pedro Mártir el alcaide de los Donceles Martin Fernandez de Córdoba. Esta capilla no se conserva, ni sabemos dónde fué labrada; pero la menciona Sanchez Feria en su citada Descripcion inédita.

[366] Esta capilla fué en un principio llamada de los obispos, pero mas se la conoce hoy como del dean D. Lope, por estar enterrado en ella el dean D. Lope de Sandoval, que fué el que le hizo la reja que tiene en los primeros años del siglo XVI. Está hoy sin culto, y es la última del lado de poniente.

[367] Consta esta cesion, ó mas bien permuta, verificada á 13 de octubre, era 1403 (A. D. 1365). Véase Gomez Bravo, cap. X, lib. 3.º La capilla de nuestra Señora de la Encarnacion lleva hoy el nombre de Capilla de los Sousas, y está abandonada. Es contigua á la de S. Clemente por el lado de levante.

[368] El mismo D. Martin Alonso de Córdoba fué el primero que tomó el apellido Montemayor, de resultas de haber demolido el castillo de dos Hermanas y edificado en su lugar otro en un monte mas alto y mas á propósito para la defensa, dando nombre á la villa que allí se formó.

[369] Desígnase entre los genealogistas cordobeses con el nombre de la cepa, que significa lo mismo que tronco ú origen, al noble linage de los Fernandez de Córdoba, que procediendo del entronque de las dos familias de Muñoz (el adalid) y Fernan Nuñez de Temez, es el principio de las distinguidas casas de Alcaudete y Montemayor, Aguilar, Lucena y Chillon, Guadalcázar y otros.

[370] Así lo refiere D. Francisco Sanchez Feria en su citada Descripcion m. s.

[371] Ruy Diaz de Rojas, personage del tiempo de Enrique III, de quien cantó una gran proeza aquel conocido romance:

Vente á mí, el perro moro,
Que no á los niños muchachos.

Este es un ejemplo entre mil que pudieran citarse. Los caballeros del tiempo de D. Juan II tenian los mismos usos; y mas marcados aún los del reinado de D. Enrique IV, quien, segun se refiere en la curiosa relacion del viaje á España del conde bohemo Leon de Rosmital, que acaba de dar á luz la Sociedad literaria de Stuttgart (Des bohmischen Herrn Leo's von Rosmital Ritter-Hof-Und Pilger-Reise), recibia á los enviados de los demas reyes sentado sobre una alfombra á la usanza oriental, entre los principales señores del reino, que vestian á la morisca, montaban á la gineta, y afectaban seguir en todo los usos y costumbres de los moros. El historiador y político Felipe de Commines, que vino á Castilla con embajada de Luis XI al mismo D. Enrique, cuenta en sus Memorias que este tenia una guardia compuesta de 300 ginetes africanos.

[372] Memorias referentes á la historia de la catedral desde el reinado de D. Enrique II hasta el de Cárlos I: desde la construccion de la Capilla Real hasta la ereccion del crucero nuevo.


Año 1371. Construccion de la Capilla Real (hoy sacristía de la capilla de nuestra Señora de Villaviciosa).

1373. El obispo D. Alonso de Vargas á 7 de octubre hace aplicacion de los Trezuelos de las iglesias despobladas, que se distribuian antes en obras pias, para distribuciones cotidianas de las horas canónicas; y aplica asimismo para estas distribuciones las prestameras de la ciudad. Para que las prestameras quedasen siempre anejas á la mesa capitular, solicitó el cabildo que confirmase el pontífice Clemente VII este Estatuto del obispo D. Alonso, como lo hizo S. S. por su legado el cardenal D. Pedro de Luna, despues Benedicto XIII. En cuanto á los Trezuelos hubo variacion en los tiempos posteriores, pues algunos obispos repugnaron la aplicacion hecha.

1374. El arcediano de Córdoba D. Alfon fué muerto violentamente, y el dean D. Anton Martin publicó que esta muerte se habia hecho por órden del rey. Sintió mucho D. Enrique que se le designase como autor de este atentado, y en venganza mandó quitar la vida al dean. Quejáronse al papa Gregorio XI el obispo y cabildo, y aunque el rey procuró disculparse, mandó el Pontífice que fundase en la catedral una capellanía para que todos los dias se dijese una misa de requien por las almas de aquellas víctimas. Erigióse y situóse la capellanía en el altar del Pilar el dia 23 de setiembre de 1375. Ocupa este altar uno de los postes del templo.

De 1378 á 1381. Todo este tiempo estuvo sin obispo la iglesia de Córdoba de resultas del gran cisma de Occidente. El arzobispo de Bari, Bartolomé de Prignano, elegido irregular y violentamente para suceder en la silla pontifical á Gregorio XI, con el nombre de Urbano VI, á 9 de abril de 1378, sabiendo que la iglesia cordubense se hallaba vacante, se reservó la eleccion de prelado, prohibiendo que el cabildo lo eligiese. Otro tanto hizo el legítimo papa Clemente VII. Urbano eligió por obispo á Menendo de Cordula, y le envió por legado suyo al rey D. Enrique para que este le reconociese por legítimo Pontífice, autorizándole para ofrecer en su nombre al monarca de Castilla, á fin de granjearse su voluntad, tres piezas de escarlata para que se vistiera con la reina y sus hijos del mismo color que se vestía el Papa. D. Enrique sin embargo suspendió dar la obediencia, y la corte de Castilla se mantuvo neutral en el cisma hasta que, reinando ya D. Juan I, se determinó en Salamanca reconocer por Papa á Clemente VII. en 19 de mayo de 1381. Clemente VII no habia elegido obispo para Córdoba; entre tanto lo habia hecho el cabildo, y aunque esta eleccion fué declarada nula por el legado D. Pedro de Luna, sin embargo, atendiendo á los grandes méritos del sugeto elegido por el cabildo, que era el canónigo y maestrescuela D. Juan Fernandez Pantoja, dicho cardenal legado le eligió de nuevo y le confirmó en uso de las facultades que tenia.

1379. En el Archivo (Caj. U, núm. 73) hay un Instrumento en pergamino por el que consta que en 15 de octubre de este año, ante ciertos escribanos del número de Córdoba y dos alcaldes, comparecieron en una de las cámaras de la santa iglesia de una parte el cabildo, y de otra unos judios en representacion de la Aljama de ellos, y el cabildo manifestó á los referidos alcaldes «como ya les constaba la carta que habia envíado el rey en que se mandaba que en las villas y lugares donde no se pagaban por dichos judios los 30 dineros, que no se pagasen, pero en las que se habian satisfecho en tiempo de los señores reyes, los pagasen los judios que tuviesen 19 años cumplidos y desde esta edad arriba; y en los lugares donde se habia pagado en tiempo pasado por los 30 dineros 1 maravedí, se pagase solo el maravedi. Y porque por dicha carta se mandaba á dichos alcaldes que defendiesen á los judios de Córdoba y de todo su obispado en dicha merced, el cabildo espresaba que en obedecimiento de dicha carta habia mandado cesar en el cobro de los referidos 30 dineros hasta suplicar á S. M. sobre algunas condiciones contenidas en ella, á que no habia lugar en este obispado. Y que por cuanto antecedentemente por los judios se habia declarado que en esta ciudad y obispado se habia cobrado por los 30 dineros 3 maravedis y 4 dineros por el alvalá, lo que nuevamente negaban dichos judios, pidió el cabildo que interin acudia al rey se le dejase cobrar á razon de dichos 3 maravedis; en cuya consecuencia se consintió por los alcaldes se cobrasen, y prometieron no se molestaria á las personas que los recojan:» lo cual está firmado por Pedro Gonzalez y Alfon Martinez, escribanos públicos.

1387. El día 14 de agosto de 1385 ganaron los portugueses la célebre batalla de Aljubarrota, tan funesta para Castilla, cuyo rey D. Juan I salvó la vida en la gran derrota por la proeza del señor de Hita que canta aquel conocido romance:

«Si el caballo vos han muerto,
Subid, rey, en mi caballo.»

Aprovechando los portugueses la victoria entraron talando y saqueando el pais por la frontera de Badajoz, que defendia como adelantado el maestre D. Pedro Muñiz de Godoy. Opúsose este al enemigo, y habiendo perdido el caballo, cayó en tierra y fué muerto. Fué su cadáver conducido á Córdoba, y su hijo D. Gonzalo Yañez de Godoy obtuvo del cabildo de la iglesia mayor sitio para enterrarle en ella, fundando la capilla de que se hizo mencion en la nota de la pág. 238.

1391. El mencionado obispo D. Juan Fernandez Pantoja hizo á su iglesia catedral una donacion de ornamentos bordados y vasos de oro y plata para el divino Sacrificio.

1393. El mismo prelado confirmó con el cabildo en junio de este año un Estatuto de su antecesor sobre los maravedises que el obispo y beneficiados debian pagar para las capas de seda. En él se determina que se paguen 1000 mrs. por el obispo; 600 por las dignidades y canónigos; 200 por los racioneros; 100 por las medias raciones; y que esto se satisfaga por el obispo en su primer año y por los beneficiados en los dos años primeros, cada año la mitad.

1397. El mismo obispo hizo donacion al cabildo de diferentes posesiones que habia comprado, y agradecido éste, le ofreció cumplir las fiestas de Sta. Ana y de las Nieves con la misma solemnidad que hasta entonces se habian celebrado, y un aniversario por su alma, que se cumple en abril. En este mes murió, y fué enterrado en el sepulcro de los cinco obispos, en tercer lugar.

1398. En noviembre de este año el obispo D. Fernando Gonzalez Deza se obligó á dar 100 mrs. de moneda vieja cada año porque faga el cabillo la fiesta de las once mil Vírgenes de todas capas, y órganos, hasta hallar posesiones para dotarla.

1404. Murió el duque de Medinasidonia D. Enrique de Castilla, hijo natural de D. Enrique II y de D.ª Juana de Sousa, y el rey D. Enrique III escribió al cabildo que le diese sepultura en la capilla mayor al lado del Evangelio. En este sitio estuvo, en un sepulcro de madera primorosamente esculpido, hasta mediados del siglo XVI, en que fué el arca sacada de allí. Su madre D.ª Juana de Sousa fundó doce aniversarios por su alma, y llevada del grande amor que le tenia, se retiró del mundo á vivir dentro de la misma iglesia, pidiendo para esto al cabildo los cuartos que llaman de cabeza de rentas, donde dispuso su habitacion para el resto de sus dias. Este singular retraimiento de la noble dama, tomó sin duda en boca del pueblo andando el tiempo color de mas novelesca aventura. Supúsose que el personage enterrado en la antigua capilla mayor era aquel infeliz duque de Arjona D. Fadrique de Castro, esforzado caballero y protector de trovadores, nieto del maestre D. Fadrique hermano del rey D. Pedro, y cuya desgracia se refiere en aquel romance antiguo que empieza:

«De vos el duque de Arjona
Grandes querellas me dan.»

Acreditóse en Córdoba la especie de que su madre se habia refugiado en la catedral huyendo del encono del rey que habia hecho morir al duque. Ambrosio de Morales, concorde con Argote de Molina, pretendió ser errada esta opinion y haber confundido el vulgo en uno solo á dos duques de Arjona, uno nieto del maestre D. Fadrique, como queda dicho, y otro hijo natural del rey D. Martin de Sicilia y de una doncella de noble linage. Ambos llevaron el mismo nombre y título, pero el primero fué D. Fadrique de Castro, duque de Arjona, y está enterrado en el monasterio de Benevivere, y el segundo fué D. Fadrique de Luna, duque de Arjona, y segun Morales está enterrado en Córdoba. El primero murió en el castillo de Peñafiel; el segundo falleció en la fortaleza de Brazuelos. Hay como se ve causa sobrada para la confusion de los dos duques de Arjona en uno solo; y la hay tambien para que los mismos historiadores graves y críticos como Morales y Argote, no ya el vulgo, hayan tomado á la misteriosa dama encerrada en la catedral de Córdoba por D.ª Tarsia, la amiga del rey D. Martin de Sicilia: Mejor informados en este punto el autor inédito del m. s. Antigüedad y grandezas etc. de la santa catedral iglesia, ya otras veces citado, y el Dr. Gomez Bravo, lo esclarecieron manifestando el error en que los mencionados historiadores y el vulgo habian incurrido, y haciendo ver que el personage sepultado en la antigua capilla mayor no era otro que el duque de Medinasidonia D. Enrique de Castilla, hijo natural del rey D. Enrique II, y cuya madre, por el grande amor que le tenia, no quiso apartarse de su cuerpo aun despues de muerto. El duque de Arjona que supone Morales enterrado en Córdoba no murió hasta el año 1438, y el duque de Medinasidonia, de quien aqui se trata, fué mandado enterrar en la capilla mayor antigua en 1404. Falta solo saber qué se hizo del arca ó caja de madera en que yacia sepultado. En tiempo del citado Ambrosio de Morales se conservaba todavia, pues dice: «en el cabildo de la iglesia está agora el cuerpo del duque de Arjona dentro de una riquísima tumba de madera, muy grande, y toda labrada de talla y muy dorada. Solia estar esta tumba con el cuerpo dentro de la capilla mayor, al lado del Evangelio, y passáronle de alli no ha muchos años porque parecia tener tanto ó mas honrado enterramiento que los reyes: estando su capilla dellos á espaldas del altar mayor, y este enterramiento muy junto á él.» Añade el citado cronista que no debia este cuerpo estar muy bien guardado, porque se contaba que habian hurtado algunas sortijas que tenia en los dedos. Siendo esto asi, no debe estrañarse que el arca haya sido objeto de mayores profanaciones, y que este precioso objeto de escultura, tan interesante para la historia del arte nacional, haya completamente desaparecido. Del sepulcro del duque de Medinasidonia solo existe hoy la memoria en una lápida que hay en la pared al lado del Evangelio, con un epitafio que dice: «Aqui yace D. Enrique de Castilla, duque de Medinasidonia, conde de Cabra, señor de Alcalá y de Mora, hijo del muy alto rey D. Enrique II el Magnífico;» y en la inscripcion de la capilla de la Encarnacion, ó de los Sousas, que dejamos ya reproducida.

1412. El diezmo del almojarifazgo concedido á la catedral habia sido confirmado por varios reyes, y á este diezmo estaban anejas y juntas las rentas del pontazgo, de los tres pesos, de las libras de la carne, de la media fanega de la alhóndiga, y de la alcabala antigua de las bestias. Hasta el año 1411 habia cobrado el cabildo el diezmo de estas rentas percibiendo su importe en el arca de la Aduana de la ciudad. Teniasele tambien por señor de la renta de la almotaglasia y de las alcaicerías y tiendas del corral de la alhóndiga, por considerarse todas anejas al almojarifazgo. Pero el rey D. Enrique III sin curarse de ello, queriendo hacer merced á Ruy Mendez y á Alfon Mendez de Sotomayor, sus vasallos, les habia dado las tiendas que tenia la corona en Córdoba, algunas de las cuales, decia la donacion, son en la alcaicería de la dicha cibdat e otras son en el corral de la alfondiga. Entonces el cabildo presentó su querella contra los referidos vasallos del rey á fin de que fuesen respetados sus antiguos privilegios, y sustanciado el pleito por todos sus trámites, se dió sentencia declarando haber probado el cabildo su intencion y pertenecerle por virtud del dicho su privilegio y escrituras que habia presentado, los diezmos del almojarifazgo, de la almotaglasia de dicha ciudad, de las tiendas de las alcaicerías y del corral de la alhóndiga, y de las dos tiendas que los Mendez habian sacado de la alcaicería. (Memorial del pleito del terreno solar de la alcaicería de Córdoba entre el Excmo. Sr. duque de Medinaceli y el venerable dean y cabildo de ella en el Juicio de propiedad intentado por su excelencia por caso de corte en la Real Chancillería de Granada.—Archivo, Caj. Z, leg. 2, núm. 38.)

1424. Murió el obispo D. Fernando Gonzalez Deza y fué enterrado con sus padres en la capilla que habia erigido á S. Acacio. Su sobrino D. Fernando Ruiz de Aguayo dotó en ella dos sacristías y seis capellanías muy cuantiosas, y tambien fué sepultado allí.

1427. Habia por este tiempo gran facilidad de impetrar en la corte romana los beneficios y prebendas, por lo cual se suscitaban frecuentes litigios y se veían precisados muchos á componerse con los impetrantes por cierta cantidad de dinero que les daban, ó recibian dejándoles los beneficios. Para evitar estos daños y molestias, el dean D. Fernando y el cabildo hicieron un Estatuto, determinando que el beneficiado que hubiese gozado pacíficamente su prebenda por un año, pudiese ir á Roma ó á cualquiera otra parte á seguir su derecho, teniéndole por presente mientras durase el litigio; pero que si constase que alguno habia cooperado maliciosamente en la impetra por gozar de este indulto, le perdiese con el duplo de lo que habia de percibir, y fuese multado á juicio del cabildo.

1431. Se instituyó en la catedral una fiesta muy solemne en accion de gracias por la gran victoria de la Higueruela, en cuya jornada derrotó el rey D. Juan á los moros granadinos matándoles treinta mil hombres.

1432. Habiendo el obispo D. Fernando Gonzalez Deza dejado en testamento su librería al cabildo, su sucesor D. Gonzalo y el cabildo mandaron que todos los años se hiciesen por su alma doce memorias y un aniversario. Segun el Indicador cordobés (página 240 y siguientes) la biblioteca del cabildo empezó á formarse con los libros que en el año 1274 le donó el obispo D. Fernando de Mesa, cuyo ejemplo imitaron despues el dean y canónigo D. Pedro Ayllon en 1303; el citado obispo Gonzalez Deza en 1424; el obispo D. Martin Fernandez de Angulo en 1516; el chantre Anton Ruiz de Morales, y el célebre Juan Ginés de Sepúlveda en 1564. La biblioteca estuvo en un principio situada en la capilla de Santiago. En 1480 se decretó su traslacion á otro lugar. En 1578, siendo obispo D. fray Martin de Córdoba y Mendoza, se mudó á las piezas que hoy ocupa, comunicando con la iglesia por una puerta que hay entre las dos capillas antigua y nueva, ó primera y segunda de S. Bartolomé.

1442. Hizo el cabildo diferentes rogativas y procesiones á las ermitas de Sta. María de las Huertas, Sta. Ana y S. Benito, y dentro de la iglesia, para aplacar la cólera divina manifiesta en la terrible peste que padecia la ciudad.

1443 y siguientes. El infante D. Enrique de Aragon, que era uno de los que acaudillaban al partido opuesto al condestable D. Alvaro de Luna, pretendia conciliarse la benevolencia del pueblo cordobés asistiendo con mucha frecuencia en la catedral á los divinos oficios y ofreciendo preciosos dones en misas nuevas y otras fiestas principales. Muchos prebendados y caballeros sin embargo, conociendo que el infante atendia mas á sus intereses que al bien del reino, y que solo habia separado á los que ejercian oficios municipales para poner en su lugar á otros que le eran devotos, no queriendo ceder á su tiranía, ni pudiendo contrastarla, se salieron de la ciudad, y el cabildo determinó que los tales prebendados se tuviesen por presentes. El obispo D. Sancho de Rojas, que era de la parcialidad del infante, vino enojado al cabildo y contradijo esta determinacion, y la declaró por nula prohibiendo practicarla so pena de excomunion mayor. Obedeció el cabildo y la mandó borrar del libro de las constituciones. Despues, cuando triunfó el partido del condestable alejándose de Andalucía el infante, el obispo quiso poner entredicho en la ciudad y su obispado; mas apeló el cabildo al arzobispo de Toledo, y como este era hermano de D. Alvaro de Luna, tuvo que suspender el obispo su determinacion. Retiróse entonces el prelado á Baena, y allí celebró órdenes generales. Para ordenar al dean D. Juan de Contreras fué menester que el cabildo le mandase entregar el báculo de plata dorado, e la mitra mayor, con lo que necesario es del Pontifical mayor, para levar á nuestro Sr. el obispo D. Sancho de Roxas á Baena. El rey, irritado contra el obispo D. Sancho, hizo secuestrar por el cabildo todas las rentas: hízose así á 5 de febrero de 1445, dándose su administracion al arcediano de Castro D. Pedro de Córdoba y Solier. Este secuestro duró bastante tiempo, y algunas veces se vió precisado el obispo á pedir al cabildo le socorriese con dinero para atender á sus necesidades mas urgentes.

1455. El rey D. Enrique IV fué á Córdoba, adonde llegó á 20 de mayo la reina D.ª Juana, y allí ratificaron el matrimonio que habian contraido por poderes. Recibieron las bendiciones en la catedral el dia 25, Pascua del Espíritu Santo, y por no estar consagrado el obispo D. Gonzalo de Illescas, hizo el oficio el arzobispo de Tours, embajador del rey de Francia.

1456. El obispo D. fray Gonzalo de Illescas, dice Bravo, dió en el año de cincuenta y seis una singular muestra de su ánimo verdaderamente religioso y pacífico; pues teniendo algunas diferencias con el cabildo sobre el derecho de elegir pertiguero, y sobre algunos bienes de D. Sancho de Rojas, y reparo del palacio episcopal, que se habia quemado, vino á cabildo viernes 23 de julio, y dijo: que para evitar los pleitos, debates é contiendas, nombraba su compromisario al arcediano de Castro y al Dr. fray Alonso Alvarez, prior de S. Gerónimo. El cabildo admitió gustoso el compromiso, y para el caso de discordia nombró á otros tres individuos; con lo que todo se fué componiendo amigablemente.

1458. El papa Calixto III habia pedido al estado eclesiástico de Castilla y Leon un caritativo subsidio para la guerra contra el turco. Congregáronse las iglesias en Medina del Campo y se obligaron á contribuir con 35000 florines. Pero como en este mismo año habia padecido Córdoba esterilidad y peste, y el cabildo y el obispo habian tenido que hacer cuantiosas limosnas, la iglesia de Córdoba resistió la referida contribucion. Obligóse sin embargo á contribuir con algo, mas en el año de 1474 todavía no habia acabado de satisfacer su contingente.

1465 y siguientes. Las memorias de estos años son del mayor interés, no solo por lo tocante á la iglesia de Córdoba, su clero y obispo, sino tambien por la viva pintura que con ellas se hace del infeliz estado de Castilla en tiempo de D. Enrique el Impotente, bajo cuyo infausto reinado, y mediante el escandaloso suceso de Avila, se encendió tanto fuego en la monarquía, que no hubo ciudad que no ardiese en guerras civiles, muertes, robos y sacrilegios. Procuraremos delinear lo mas brevemente posible el cuadro general de estos sucesos, intercalando en la compendiada narracion de los historiadores de mas crédito, las noticias no publicadas que hemos podido proporcionarnos merced á la obsequiosa venia obtenida del ilustrado cabildo de Córdoba. Depuesto en Avila el rey D. Enrique IV y elevado al trono en su lugar su hermano el infante D. Alonso, declaráronse en Córdoba por el intruso el inquieto D. Alonso de Aguilar y otros grandes caballeros con D. Martin Fernandez, alcaide de los Donceles; y por el rey legítimo el obispo, el conde de Cabra y otros caballeros principales: con lo que quedó la ciudad dividida en dos poderosos bandos que se hicieron sangrienta guerra. D. Alonso de Aguilar se habia hecho tan dueño de Córdoba, que echó fuera al corregidor y ministros del rey, y usurpando la jurisdiccion antigua de alcalde mayor, prendia y desterraba, cargaba pechos á eclesiásticos y seculares, y no habia quien pudiese contenerle. El obispo D. Pedro de Córdoba y Solier, hasta entonces amigo suyo, habia procurado en vano refrenar sus arrebatados ímpetus hasta que viendo que nada obtenia, y no teniendo fuerzas para contrastarle, se salió de la ciudad y se refugió en su castillo de Toledillo, donde publicó entredicho y anatema contra D. Alonso de Aguilar por haberle quemado y saqueado su palacio episcopal, cometiendo otras injurias y violencias contra sus familiares. Murió en 1468 el infante D. Alonso, causa principal de la division del reino; sus partidarios se acobardaron, y los fieles al rey se llenaron de júbilo. La repulsa de la prudente D.ª Isabel (despues reina católica), á quien quisieron los primeros declarar por reina, acabó de desarmarlos, y así todos por necesidad volvieron á la obediencia del rey jurando á la infanta por sucesora en el reino. Entregado ciegamente D. Enrique al marqués de Villena, que solo atendia al logro de sus intereses con la discordia de los demas, al pasar á Córdoba con objeto de acabar la pacificacion de los ánimos, solo consiguió enconarlos de nuevo, porque con las providencias que dictó aconsejándole su valido, dejó á todos descontentos. D. Alonso de Aguilar, resentido de que le hubiesen hecho entregar á su enemigo el conde de Cabra los alcázares y fortalezas de la ciudad, y al conde de Alcaudete la Carrahola, sin cuyas defensas era poco seguro su predominio en Córdoba, ideó el modo de recuperarlas, y le salió bien, porque habiéndose apoderado traidoramente de la persona del mariscal D. Diego Fernandez de Córdoba, el conde de Cabra y sus parciales, amigos de este, se vieron precisados á abandonárselas como precio de su rescate. La preponderancia de Aguilar en la ciudad alejaba de ella al obispo; sin embargo contribuía cuando era necesario con su presencia á remediar los males de su Iglesia, porque á la general turbacion introducida por los desmanes de los grandes, se agregaba una gran relajacion en la disciplina eclesiástica, y hubo casos en que, arrostrando la tirania ejercida por el de Aguilar, tuvo el prelado que acudir como buen pastor, ya á reprimir la insolencia de algunos malos canónigos á quienes aquel favorecia, ya á contener al prepotente magnate en sus injustos procedimientos con otros prebendados. En una ocasion el chantre D. Lope de Sandoval, que por lo visto era mejor para campeador ó bandolero que para sacerdote, se atrevió á tomar posesion de una canongía contra la voluntad del obispo y cabildo de canónigos, á quienes tocaba darla, asaltando la iglesia con gente armada reunida por su propia autoridad. Otro dia, por haber defendido con calor en el cabildo á varios prebendados atropellados y desterrados por D. Alonso, y contribuido á que se tomase un acuerdo en cuya virtud debian los desterrados tenerse por presentes todo el tiempo que durase su ausencia, el poderoso árbitro de Córdoba fraguó su ruina: tan buena traza se dió, que logró del mismo rey enviase carta firmada al obispo rogándole saliese de la ciudad y se retirase á un lugar del obispado; no quiso obedecer D. Pedro Solier, y D. Alonso sorprendiéndole con gente armada se apoderó de él, le montó en una mula, y tomando las riendas, le sacó violentamente de la ciudad, mandando se le cerrasen las puertas. D. Pedro se fué al convento de S. Gerónimo, y de allí á Montemayor, donde a 1.º de julio de 1472 mandó publicar por excomulgado á D. Alonso y poner entredicho en la ciudad. Las causas espresadas en la carta de anatema fueron once, y merecen publicarse literalmente (Gomez Bravo solo lo hace en estracto muy diminuto) por la luz que derraman sobre esta época de turbulencias tan digna de estudio. Hace saber el obispo en su carta-excomunion, á los Sres. dean y cabildo, capellanes mayores de la capilla de S. Pedro, y á los demas rectores y clérigos de todas las iglesias de la ciudad de Córdoba y su obispado, que habia seguido algunos procesos contra D. Alfon, señor de la casa de Aguilar, así de oficio como á peticion fiscal y del cabildo, sobre la quema de las casas obispales y fraccion de la santa iglesia, como tambien por haberse apoderado de las rentas de los diezmos de Cañete por su propia autoridad muchos años, por lo cual habia incurrido en excomunion mayor; y debiéndose guardar entredicho, lo declaraba y mandaba se tuviese por tal por las causas siguientes:==«1.ª Porque habia D. Alfon dado muchas armas y caballos á los moros; 2.ª porque prendió seis canónigos de esta santa iglesia porque obedecieron los mandamientos apostólicos, y los tuvo presos mas de seis meses siendo presbíteros, diáconos y subdiáconos; 3.ª por haber tenido como tenia la torre de la iglesia y obra de ella encastillada; 4.ª por el quebrantamiento de las casas obispales y quema de ellas, y por la fraccion de la iglesia; 5.ª porque habia muchos años que tenian impuesta imposicion en esta ciudad llevando de dicho Sr. y de su clerecía y religiosos y conventos de ella la dicha imposicion, debiendo ser por lo mismo excomulgados con el referido D. Alfon los siguientes: García Mendez de Sotomayor, comendador de la órden de Santiago, Alfon del Castillo, Ferran Cabrera, Pedro Mendez el mozo, Alfon Mendez, Pedro de Cárdenas, Gonzalo de Mesa, Alfon de Angulo, Juan de Angulo, Juan de Sosa, Ferrando de las Infantas, Ferrando de Luna, Juan de Cárdenas, Pedro Gonzalez de Mesa, Pedro de Hoces, Pedro Cabrera, Pedro de Aguayo, Anton Cabrera, Pedro de Córdoba, Gonzalo de Cárdenas, el bachiller Gonzalo de Zea, Martin de la Cuerda, Pedro de Torreblanca, Diego de Ferrera, Sancho de Córdoba, Diego de Córdoba, su hijo, Juan de Valenzuela, el bachiller Alfon Rodriguez, Juan de Baeza y Ferrando de Baeza, veinticuatros de Córdoba, los cuales habian concurrido con D. Alfon, señor de Aguilar, en la referida imposicion. Gonzalo y Alfon de Baeza, escribanos; y se debia guardar entredicho hasta tanto que restituyesen todo lo quitado al obispo y su clerecía, y levantasen la referida imposicion; 6.ª (que comprendia juntamente con D. Alfon á Gonzalo de Godoy) porque cuando fueron declarados por públicos excomulgados el dicho D. Alfon y los que le ayudaron á quemar y robar las casas de su ilustrísima, y á quebrantar las puertas de la iglesia, el referido D. Alfon mandó á Gonzalo de Godoy, alguacil que entonces era, que prendiese, como prendió, á muchos escuderos del Sr. obispo, y les quitó mucho de lo que tenian y los puso en mazmorras así en Cañete como en Montilla y Bujalance; 7.ª porque estando su ilustrísima en S. Gerónimo, dicho D. Alfon y la ciudad de Córdoba enviaron á Juan de Angulo y á Pedro de Cárdenas para desterrar á su ilustrísima, lo que en efecto hicieron y pasó en 2 de mayo del año 69. Despues á 24 de marzo del presente año, el dicho D. Alfon desterró á su ilustrísima echándolo por fuerza de la ciudad, sacándolo por las riendas de su mula; 8.ª por haber sacado por fuerza á muchos de los retraidos en la iglesia; 9.ª porque viviendo Alfon de Jaen y Diego Rodriguez, racioneros de esta iglesia, cerca de Castro, los mandó prender, quitándoles dos acémilas de su ilustrísima con muchas cosas que llevaban, lo que no habia pagado todavia, teniendo presos á dichos racioneros; 10.ª porque siendo electo su ilustrísima de esta iglesia, D. Alfon y los suyos entraron de noche en las casas obispales y robaron mucho dinero en especie, en vino, pan, trigo, cebada y preseas de casa, y despues, siendo su ilustrísima ya obispo, excomulgó á los robadores y muy poco restituyeron; 11.ª por tener, como tiene, por fuerza tomadas las casas obispales y embargado cuanto en ellas habia.»

Publicada esta carta, acudió D. Alonso de Aguilar, legalmente representado por el bachiller Diego Rodriguez de Jaen, apoderado tambien y procurador de los consortes en la causa de Aguilar, y apeló ante su ilustrísima pidiendo se declarase lo hecho nulo y de ningun valor y efecto por varias razones que alegó, entre las cuales figuran como principales: Que el D. Alonso no se habia apoderado de los diezmos como se suponia; que el obispo no podia ser juez de la causa por ser notoriamente sospechoso y capital enemigo del Sr. de Aguilar y de algunos de los otros excomulgados, y confederado, aliado y amigo del conde de Cabra y sus hijos, y de su valía y opinion, por lo que, como su contrario y enemigo declarado, habia sido echado de la ciudad por órden del rey; que mediante la referida sospecha no podia tener jurisdiccion, ni podia haber citado á D. Alfon y consortes á que compareciesen ante su ilustrísima en la villa de Montemayor, por cuanto esta era del Sr. Martin Alfon que estaba en la misma parcialidad, confederacion y adversidad que su ilustrísima contra el citado Aguilar y consortes; y aunque decia que habia seguido los dichos procesos á peticion del cabildo, no era así, ni pasó tal cosa. Que aunque la carta decia que D. Alfon estaba excomulgado por haber dado armas, caballos y otras cosas á los moros, la causa no era verdadera, y caso de haberlo hecho sería con justa razon para defensa y conservacion del reino de Castilla, en especial de Andalucía, por mandado y con poder del rey, en lo cual Dios no habia sido ofendido; que D. Alfon no prendió los canónigos, porque cuando esto ocurrió no se hallaba en Córdoba. Que tampoco habia incurrido en excomunion por lo que su ilustrisíma llamaba quebrantamiento y quema de las casas obispales y fraccion de la iglesia, porque esta no la habia habido ni se podia probar, y si en el palacio hubo alguna quema sería por culpa del señor obispo y de sus familiares, pues era notorio en la ciudad y sus comarcas que todo habia sucedido por autoridad de derecho y por justas y legítimas causas en defensa y amparo de la república. Que estando en Córdoba el dicho D. Alfon con la gobernacion de ella, como al presente la tenia, en paz y sosiego, ciertos caballeros y escuderos, todos familiares, criados y paniaguados del señor obispo, y por su mandado, entraron, se apoderaron y encastillaron en las casas obispales y torres de la ciudad juntas á ellas, y se fortalecieron dentro, haciendo muchos edificios de tapias y canterías (lo que hoy llamamos barricadas) con empalizadas, y fortalecieron las dichas torres por dentro y fuera con muchos almadraques, colchones, tapiales, puertas, mucha ropa y maderas, abasteciéndose asímismo de muchas viandas, pan, vino y pescado, de los propios bienes del señor obispo. Y asímismo se guarnecieron y abastecieron de muchas armas, lombardas, truenos, espingardas, culebrinas, serpentines y ballestas fuertes y comunes, así de palo como de acero, y otros muchos tiros de pólvora, con ánimo malévolo é intencion depravada, para desde allí tirar y ofender con sugestion diabólica á los alcázares del rey por tomarlos y ocuparlos, y por tirar contra los vecinos y moradores de Córdoba, turbándolos y damnificándolos y el pacífico sosiego en que estaban, levantándolos contra el D. Alfonso, para entregar la ciudad á sus adversarios. Que el plan de los parciales del obispo era traerle á la ciudad, entregársela, prender á D. Alfon y matarle, robando luego y destruyendo la poblacion en daño de la república. Que era notorio que su ilustrísima llevaba gente de armas de á caballo y de á pié apercibiéndose para llevar á cabo su propósito contra el juramento apostólico, homenage y fidelidad que habia prestado. Que el consejo de la ciudad, viendo los escandalosos movimientos, y no queriendo usar de rigor, llana y pacíficamente habia hecho requerir á los familiares y gente del obispo, intimándoles se desarmasen y desencastillasen, dejando libres las torres y castillos; á lo que no quisieron ellos condescender, antes por el contrario, obedeciendo á las sugestiones del obispo, siguieron haciéndose fuertes, esperando su socorro, invocando en las torres á su ilustrísima y á la demas gente que en su ayuda venia, á cuyas señales dicho señor y los de su concierto respondieron, con lo cual, creciendo el endurecimiento y obstinacion de sus familiares, empezaron á tirar contra la ciudad y contra los que estaban ocupando la fábrica y obra de la iglesia, donde mataron é hirieron muchos hombres. Que continuando en ello y viendo la ciudad el peligro y daño, por mandamiento de ciertos jueces hizo prender á dichos familiares, y si en tal acto hubo algun daño ó toma de bienes, seria culpa de dicho señor, fuera de que ya la ciudad le habia satisfecho y su ilustrísima se habia dado por contento. Que no era cierto se hubiesen impuesto contribuciones ó tributos á dicho señor obispo, clérigos y religiosos de Córdoba y su tierra, y si algunas se habian decretado, no habia sido señaladamente contra dichos clérigos y religiosos, ni esto se habia hecho sin mandado del rey, ni para objeto ageno al bien comun, redundando por consiguiente en beneficio del mismo estado eclesiástico. Que dichas imposiciones habian tenido por objeto la defensa contra los moros, que otras veces habian hecho entradas con ayuda de los parciales del obispo. Que tampoco eran reos de excomunion por haber prendido á los familiares de su ilustrísima, puesto que eran personas legas. Que cuando Pedro de Cárdenas y Juan de Angulo habian hecho salir al señor obispo de la ciudad y de S. Gerónimo, habian procedido por mandado del rey, por ser su ilustrísima escandaloso y parcial con el conde de Cabra y sus hijos, y porque procuraba con algunos grandes del reino adversarios del rey, entrar en Córdoba por fuerza y con escándalo en deservicio de S. M. para alzarse con la ciudad y su tierra.

El escrito de apelacion que esto contenia fué presentado por el bachiller Diego Rodriguez de Jaen con su carta de poder en 8 de julio de 1472, en la villa de Montemayor, por ante Juan Gonzalez y otros escribanos y notarios públicos, en las casas mismas donde tenia su habitacion el obispo D. Pedro, y hallándose presente su ilustrísima. Y en 1.º de agosto del propio año, compareció en Córdoba en presencia de otros escribanos el bachiller Ferran Romero, vicario del señor obispo, con una carta mensagera dirigida al bachiller Juan Vicario, y con ella respuesta de lo arriba espresado para que se la diera á los escribanos que habian hecho el requirimiento. Respondia y decia el obispo: Que por lo tocante á la incompetencia para conocer en la causa del Sr. de Aguilar, fundada en la parcialidad de su ilustrísima por el conde de Cabra y sus hijos, lo único cierto era, «que entrando en Córdoba el rey D. Enrique, D. Alfon de Velasco y D. Juan de Guzman, Luis de Paniagua y otros muchos caballeros, el dicho D. Alfon dió la fé á su ilustrísima y su ilustrísima al D. Alfon, que querian ser neutrales no favoreciendo á ninguna de las partes, y que uno á otro se guardarian la honra, y que despues de un año en presencia de Diego Gimenez de Góngora Prior y de Pedro de Foces, canónigos de esta santa iglesia, por parte del señor obispo, el dean de ella y otros por la parte del citado D. Alonso, y dentro de las casas de este se confirmaron las paces que tenian tratadas y en caso necesario las aprobaron con ciertas formalidades. Y el dia 4 de marzo de dicho año, viniendo dicho señor obispo de confesarse del convento de S. Pablo, el dicho D. Alfonso juntó mucha gente armada, y antes que entrára dicho señor obispo en sus casas, le echó fuera de la ciudad y á todos los de su familia, de lo que resultaba la enemiga que tenia dicho D. Alfon, dando favor á muchos que vivian malamente contra Dios y su Iglesia, sabiendo bien el referido que la intencion de su ilustrísima seria querer enmendarlo.» Que en cuanto á la incompetencia por falta de jurisdiccion, «el lugar donde estaba dicho señor obispo era donde habian de comparecer las personas del dicho regimiento por sí ó por su procurador, mayormente sabiendo el dicho D. Alfon que entre el Sr. Martin Alfon y los vecinos de Córdoba y su tierra y las villas de dicho D. Alfon, cada y cuando les parece á todos ó cualesquiera de ellos entran seguros en la dicha villa de Montemayor y pasan seguros por ella, como sucedió el dia 25 de julio del presente año de 72 cuando el jurado Ahumada, vecino de Córdoba, entró en la referida villa de parte de dicha ciudad á requerir al alcaide que le entregase ciertos presos, pues que entre ellos habia paz, quien habia respondido que no los tenia ni sabia de ellos, y si los tuviera se los entregára: de lo que resultaba ser frívola la apelacion.» «Y siendo como era notorio que en el lugar de Cañete el dicho D. Alfon arrendó á los almojarifes y vecinos de Córdoba todas sus rentas de dicho lugar, incluyendo en ellas las rentas de los diezmos de menudo, vino y aceite, de lo que resultaba estar excomulgado el dicho D. Alfon por la Bula Paulina y Estatuto del antecesor de dicho señor obispo, que lo fué el Illmo. Sr. D. Fernando: y siendo cierto que el dicho D. Alfon habia dado armas á los moros; y en cuanto á la prision de los canónigos que hizo el referido, era notorio, y que los tuvo presos en su villa de Cañete mas de medio año, y siendo tambien cierto que se habia apoderado de la torre de la santa iglesia tomándole al rey lo que tenia en ella, y usurpando las rentas reales que S. M. tenia en la ciudad, y echándole varias imposiciones en ella y su tierra; y siendo tambien cierto y notorio que habia quemado las casas de dicho señor obispo, y que combatió y tomó por fuerza los alcázares reales; y careciendo de toda verdad lo alegado para justificar las imposiciones echadas sobre el estado eclesiástico, como tambien el que sobre este punto se habian comprometido con la ciudad, y que las imposiciones eran contra los moros, pues antes eran en favor de ellos; y siendo cierto que el dicho D. Alfon habia sacado violentamente mucha gente de la iglesia, como que prendió dos clérigos beneficiados de ella porque llevaban las acémilas del obispo, las que le quitaron; y siendo cierto que en el mismo dia que fué electo dicho señor obispo lo robaron y asaltaron los alcázares, como tambien que dicho D. Alfon y Pedro de Aguayo lo echaron de la ciudad; denegaba su ilustrísima la apelacion interpuesta.»

Esta ruidosa causa duró muchos años: algunas personas principales y de autoridad procuraron interponerse entre el obispo, D. Alonso y la ciudad, para conciliar las diferencias que habia, y lograr se levantase el entredicho. Consiguieron esto último algunas veces, pero era tan díscola la condicion de los contendientes, que de todo sacaban pretesto para volver á la discordia. El señor de Sta. Eufemia habia logrado apoderarse de Pedroche, villa de la ciudad, y aunque se le requirió que la dejase, no quiso ejecutarlo. La ciudad salió con su pendon, y restauró á Pedroche: dió noticia al cabildo para que hiciera alguna demostracion, y á 14 de febrero de 72 se decretó que todos los prebendados salieran á caballo á recibir el pendon triunfante. Levantóse el entredicho despues del 15 de febrero de 73, y parecia reinar la concordia, pero duró poco tiempo, porque el conde de Cabra, que se acababa de apoderar de Almodovar, cometia en la ciudad y campiña grandes vejaciones: el de Aguilar exasperado volvió á sus pasados rigores, y el obispo volvió á poner entredicho á 19 de octubre. Empezó entonces la discordia entre el cabildo y el prelado: el cabildo apeló á Toledo; durante la apelacion interpuesta no se observaba el entredicho, y esto hizo temer á algunos prebendados que impetrándoles en Roma las prebendas, se movieran muchos y costosos pleitos, y así determinaron que si alguno fuese molestado por esta razon, todos le amparasen y defendiesen en los tribunales contribuyendo á las costas que se causáran. Declarada la division entre el prelado y el cabildo, siguió la discordia acerca de otros puntos, y con especialidad en el modo que se habia introducido en el arrendamiento y administracion de las rentas decimales, en que el obispo hacia remisiones y otras gracias sin la intervencion del cabildo ó sus diputados. Fué el resultado un Estatuto para que no se pudiesen en lo sucesivo arrendar las referidas rentas á prebendados, caballeros ni personas semejantes, y establecerse el tribunal llamado de Cabeza de rentas.

Ocurrió en 1474 la muerte de D. Enrique IV, y de aquí nuevos motivos de contrariedad y encono entre D. Alonso de Aguilar y el obispo D. Pedro. La mayor parte de las ciudades y señores de vasallos se declararon por D. Fernando y D.ª Isabel, y con ellos el prelado de Córdoba y el conde de Cabra; y D. Alonso, siguiendo al marqués de Villena, abrazó la parcialidad de D.ª Juana, á quien valido de su preponderancia en Córdoba hizo aclamar por reina. A este acto de violencia pudo agregarse otro para hacerle impopular. Un año antes un herrero, fanático como toda la demas gente de baja condicion, habia movido un gran motin contra los conversos ó cristianos nuevos, cometiendo grandes robos, incendios y atropellos en las viviendas de aquellos presuntos apóstatas, y matando á muchos. D. Alonso de Aguilar dió muerte por su mano al herrero y tuvo que refugiarse con muchos conversos en el alcázar viejo, guareciéndose allí contra el furor de la plebe. No sabemos positivamente que el cabildo aprobase aquel bárbaro desahogo popular, que sin duda alguna tenia el carácter de tal, puesto que siguieron el ejemplo de Córdoba Montoro, Adamuz, Bujalance, Rambla, Santaella y otros lugares del obispado, dando fuertes indicios de querer hacer otro tanto Palma y Baena; pero sí creemos que la impolítica contemplacion de los magnates con los conversos de mala fé, que pululaban por desgracia, tenia justamente exasperado al pueblo, y que en un siglo en que las creencias religiosas del estado llano eran tan poco ilustradas, estas repugnantes matanzas eran el resultado lógico de la pugna entre las ideas nacionales y las de la corte. Ahora bien, podia no ser siempre mengua participar de las ideas é instintos nacionales contra el desgraciado sistema que seguia la corte de Enrique IV, y solo bajo este concepto aventuraremos la especie de que el cabildo de Córdoba no repugnaria quizás aquel popular escarmiento. Lo cierto es que por aquel tiempo se compuso decididamente con su obispo, y le siguió dócil y resuelto cuando este se declaró por D. Fernando y D.ª Isabel; en prueba de lo cual mandó dar mil maravedís de albricias al criado del rey que le trajo la nueva de su victoria contra el rey de Portugal.

Del ruidoso pleito entre D. Pedro Solier y D. Alonso de Aguilar no hallamos rastro despues del año 75, en el cual consta que tuvo que intervenir el fiscal de la curia romana por S. S., habiéndose dado poder á varios procuradores para que compareciesen ante el Illmo. Sr. D. Rodrigo, obispo de Albano, cardenal y vice-cancelario, juez especialmente nombrado por el Papa en dicho pleito. Ignoramos si llegó á darse sentencia, ó si quedó paralizado por muerte del obispo D. Pedro, ocurrida en 1476. (En el Archivo de la Sta. iglesia, caj. P, desde el núm. 258 en adelante, existen todas las piezas pertenecientes á esta famosa causa.)

El silencio de los cronistas del reinado de Enrique IV acerca de unos hechos de tanto bulto, no se estrañará si se atiende á que tampoco hacen mencion de otras violencias muy semejantes que por los mismos años exactamente padecia de parte de otro magnate otro prelado mas calificado todavía. El arzobispo de Santiago D. Alonso de Fonseca se hallaba en 1466, con los canónigos y clérigos que le eran fieles, sitiado en su misma catedral por gente armada á las órdenes de un magnate, que se cree fuese el conde de Trastamara D. Per Alvarez Osorio, quien ya en otra ocasion habia hecho lo mismo con el arzobispo D. Rodrigo de Luna. (Véase el estracto del viaje del conde bohemo Leon de Rosmital publicado por D. Pascual de Gayangos en el tomo I de la Revista española de ambos mundos, pág. 739 y siguientes.)

1467. Murió por estos años D. Fernando Ruiz de Aguayo, cuya memoria es muy venerada por su gran piedad y por las fundaciones magníficas que hizo. Dotó en la capilla de S. Acacio, fundacion de su tio el obispo D. Fernando Deza, seis capellanías, de mas de 600 ducados de renta cada una, y dos sacristías, cada una de mas de 100 ducados. En la capilla de S. Pedro dotó doce memorias por D.ª Leonor de Bocanegra, su prima, y tambien dejó dotacion para que en el Sagrario ardiese un cirio continuamente; y á fin de que en la procesion de las vísperas y fiesta de las Once mil Vírgenes se llevase la cabeza de Sta. Ursula, dejó para distribucion 50 maravedís de moneda blanca. Eran por este tiempo muy usadas las resignas y permutas aun en beneficios desiguales: así este prebendado fué primero canónigo, luego racionero, y por último beneficiado de Hornachuelos, conservando la chantría.

1471. En agosto de este año se acabó el altar que hizo á S. Leandro y S. Isidoro el racionero Juan Garcia de Henares.

1475. A 7 de agosto se dió posesion de la dignidad de maestrescuela al cardenal de Sto. Angelo, que ya era canónigo, y en 20 de setiembre tomó posesion de un canonicato, en nombre y como procurador de Pedro Martinez de Osma, maestro en artes y sagrada teología, el dean D. Lope de Sandoval. No hacia ocho años que D. Lope de Sandoval, siendo chantre, habia tomado posesion de su canonicato á mano armada, y ahora era ya dean. ¿Se tratará quizás de dos prebendados del mismo nombre?

Pedro Martinez de Osma era catedrático muy afamado de la universidad de Salamanca, y el papa Sixto IV, movido de su gran sabiduría y virtud, le habia dado aquel canonicato. Tuvo insignes discípulos, pero enseñó algunos errores en el tratado de Penitencia. Por comision de S. S. el arzobispo de Toledo D. Alonso Carrillo juntó en Alcalá de Henares cincuenta y dos doctores para examinar las proposiciones que se le censuraban, y habiéndose condenado nueve por heréticas, el doctor Osma se retractó de ellas dócilmente, celebrando todos su humilde y modesto rendimiento, que le hizo mas glorioso que habia sido antes por su sabiduría.

1477. Los Reyes Católicos habian dado comision al conde de Cabra para que ajustase treguas con el rey de Granada, nombrándole al mismo tiempo capitan general del reino de Córdoba. Fué esto muy sensible á D. Alonso de Aguilar, y estimulado de la emulacion, ó del enojo que al granadino tenia desde que en 1470 habia concedido al mariscal el seguro de Granada para el desafío pendiente entre ambos, le salteó el reino talándole los campos y haciéndole cuanto daño pudo. Volviendo de su incursion contra los moros, pasó por el estado del conde, y le hizo tambien gravísimos daños, con que enconadas mas las antiguas enemistades, se convirtió la tierra en teatro de robos y homicidios. Al saber estos daños y alborotos, mandó la reina á Córdoba por corregidor á Diego de Merlo para que apaciguase á aquellos señores y solicitase de D. Alonso la satisfaccion de sus agravios. Consiguió con su buen carácter y mejor maña que este le entregase á Montarque por prenda, hasta satisfacer al conde de Cabra, y luego empezó á castigar á los delincuentes. Llevaba un dia el alcalde mayor dos homicidas presos, y de acuerdo de D. Alonso y algunos caballeros salieron otros á quitárselos. El alcalde se defendió, y fué herido. Noticioso Merlo de lo que sucedia á su alcalde, clamando «favor al rey y á la justicia,» se metió con algunos ministros en el tumulto; pero concurrió tanta gente en defensa de los reos, que para salvar la vida tuvo que refugiarse en S. Lorenzo cerrando las puertas. Vino D. Alonso á los ecos del tumulto, y viendo que los refugiados no querian abrir las puertas de la iglesia, solicitó que la turba popular las quebrantase. Rehusaron los tumultuados cometer semejante sacrilegio, pero D. Alonso mandó llamar á setenta de sus esclavos que las hicieron pedazos, sacando á Merlo, á quien envió el magnate á su castillo de Aguilar. La reina noticiosa del caso, disimuló prudente, y se contentó con hacer que D. Alonso pusiese á Merlo en libertad; pero ya el altivo señor no volvió á predominar en Córdoba. Estos hechos, aunque estraños á la historia de la catedral, son interesantes como complemento de las memorias de los años 1465 y siguientes.

1478. Tomó posesion del obispado D. fray Alonso de Burgos, confesor de la reina católica D.ª Isabel, electo á 12 de noviembre de 76. Pasó todo el año 77 acompañando á la reina en Estremadura para reducir á su servicio las ciudades y villas declaradas á favor de D.ª Juana.

A fines de octubre de 1478 entraron en Córdoba los reyes D. Fernando y D.ª Isabel, con singular gozo y festivas aclamaciones de los ciudadanos. Con su venida cesó la tirania de D. Alonso de Aguilar, á quien mandaron entregase los alcázares, la Carrahola y demas fortalezas, y todos los propios que tenia usurpados. Hiciéronse pesquisas de malhechores y homicidas, hubo castigos merecidos, y se puso en quietud y seguridad la provincia. A D. Alonso se le mandó salir de la ciudad.

1482. Habiéndose recibido en el año anterior la Bula del papa Sixto IV para establecer en España el Tribunal de la Inquisicion, el obispo D. fray Alonso que deseaba ardientemente verlo instituido en Córdoba, por el sumo cuidado en que le tenian los conversos, que á título de cristianos gozaban de dignidades, beneficios y empleos con el poder consiguiente á estas categorias, de importancia en aquellos tiempos, instó mucho á los reyes para conseguirlo, y en 1482 ya estaba establecido y formado. Fueron los primeros prebendados inquisidores el Dr. Pedro Martin del Barrio, canónigo y vicario del obispo, el bachiller Alvar Gonzalez de Capillas, canónigo, y el bachiller Anton Ruiz de Morales, canónigo y despues chantre; agregándose á estos el P. Fr. Martin Caro, guardian del convento de S. Francisco.

En este mismo año, usando por la primera vez los reyes de España del derecho de nombrar obispos y presentarlos al Papa para su confirmacion, segun acababa de ajustarse con Roma con motivo de la repulsa que sufrió de parte del rey católico el cardenal Riario, sobrino del papa Sixto, nombrado por S. S. obispo de Cuenca (pues hasta entonces habian tenido y practicado las iglesias de España el derecho de elegir sus prelados), nombraron los reyes católicos á D. Fr. Alonso de Burgos para el obispado vacante de Cuenca, y para el obispado de Córdoba á D. Tello de Buendia, varon insigne en virtud y letras, que prestó grandes servicios á la Iglesia y al Estado, y reconcilió con los reyes al indómito arzobispo de Toledo D. Alonso Carrillo. Esta nominacion de los reyes se hacia por peticion ó súplica, hasta que Adriano VI concedió al emperador Carlos V la facultad de nombrar los obispos. Ad regias preces dabat Papa Episcopos.

1485. Al año de tomar posesion del obispado D. Tello de Buendia, falleció, y fué sepultado en el quinto nicho del sepulcro de los cinco obispos que fabricó D. Leopoldo de Austria.

1486. En este año tomó posesion del obispado de Córdoba D. Iñigo Manrique, confirmado por Inocencio VIII despues de ciertas tentativas que hizo para recuperar la facultad de nombrar de que su antecesor habia hecho renuncia.

1488. A 15 de julio entraron en Córdoba los reyes de vuelta de la campaña contra los moros, y D. Iñigo recibió al rey con su cabildo en la catedral, donde fué á dar gracias al Todopoderoso por la conquista de Loja, Illora, Moclin y otros lugares. Así que la reina, que se hallaba en Córdoba, recibió la noticia de la toma de Loja, fué al templo con el mismo piadoso objeto, y allí se formó una solemne procesion á la iglesia de Santiago, patron de España, asistiendo la reina con la infanta D.ª Isabel hasta volver á la catedral y finalizar la funcion.

Este obispo D. Iñigo hizo imprimir en Venecia el año 89 el Breviario y Misal de la iglesia de Córdoba.

1494. Se celebró concordia entre el cabildo y D. Alonso de Aguilar sobre las diferencias habidas por causa de los diezmos de Aguilar y Montilla con sus aldeas y términos.

En este mismo año nombraron los reyes al obispo Manrique presidente de la chancillería establecida en Ciudad Real. Hallándose en Madrid, llamado para este fin, mandó publicar en su obispado una Constitucion sobre el hábito y tonsura de los ordenados de corona para gozar del privilegio clerical conforme á la Bula de Alejandro VI. Hizo igualmente recoger en un volúmen las Constituciones y Ordenanzas de sus antecesores.

Tambien en este año concedió S. S. á peticion de los reyes católicos las facultades propias del inquisidor general á varios obispos, y entre ellos al de Córdoba, por estimar conveniente dar á Torquemada coadjutores.

1496. Murió el obispo D. Iñigo Manrique á 1.º de marzo en Ciudad Real. Su cuerpo fué traido á Córdoba y sepultado en el coro viejo, donde tiene este epitafio: Illmus. ac reverendissimus D. D. Enecus Manrique almæ hujus Ecclesiæ Cordubensis Pontifex hic jacet: hujus memoria in benedictione est. Obijt anno suæ statis XLII in civitate regia primus presidens Kal. Martij anno Domini CCCC nonagessimo VI supra mille... Lector dic ave.

En 29 de diciembre tomó posesion del obispado su sucesor D. Francisco Sanchez de la Fuente, hombre docto y virtuoso, y hábil diplomático, á quien se debió la restitucion del Rosellon á la corona de España. Poco gozó la iglesia de Córdoba de este gran prelado, pues murió dos años despues; y se refiere que al recibir la reina católica la noticia de su muerte no pudo contener las lágrimas.

1497. A 12 de octubre tomó posesion el nuevo obispo D. Juan Rodriguez Fonseca, muy empleado por los reyes católicos en servicio del Estado, y á quien el Dr. D. Fr. Antonio de Guevara escribia (carta 39): dicen de vos, que sois muy macizo cristiano y muy desabrido obispo. De sus empleos y embajadas hacen mencion todos los historiadores de este tiempo.

1501. Murió desastradamente, aunque como héroe, en Sierra Bermeja, el animoso é inquieto D. Alonso de Aguilar el día mismo (18 de marzo) en que su hermano el gran capitan D. Gonzalo Fernandez de Córdoba triunfaba en Nápoles. Habiéndose rebelado los moros de Granada, y queriendo socorrer á unos cristianos, se metió en unas angosturas de aquella Sierra, donde le cogió la noche con muy escasa gente. Acometiéronle los enemigos por todas partes, y por no volver la espalda con desdoro de su gloria militar, murió batallando, recibiendo tantas heridas que quedó su cuerpo todo desfigurado. Asi pereció cual otro Judas Macabeo este antiguo émulo de ambos poderes eclesiástico y real, espiando noblemente en la guerra contra los infieles los pasados estravios de su ambicion.

1504. En 20 de diciembre recibió el cabildo una carta firmada por los magníficos Sres. D. Pedro de Córdoba, marqués de Priego, D. Diego Fernandez de Córdoba, conde de Cabra, D. Diego Fernandez de Córdoba, alcaide de los Donceles, y D. Alonso Fernandez, señor de la casa de Alcaudete, pidiendo gozar de las prerogativas que gozaban todos los descendientes de la Cepa de Córdoba, asi en el tañer de las campanas como en lo demas. El cabildo determinó hacer la gracia, y que se diese fé y testimonio de esto á los referidos caballeros; y asi desde entonces empezaron á gozar las mismas prerogativas los que eran de la Cepa aunque no fuesen Córdobas por varonía.

1505. A 27 de enero tomó posesion del obispado por medio de procurador D. Juan Daza.

En la iglesia hacia tiempo se trataba de crear un arcedianato de Palma, y Julio II habia concedido Bula para establecerle; pero nombró S. S. por arcediano á un hijo del consejero Zapata, y el cabildo no quiso dar cumplimiento á las Bulas que presentó. El arcedianato no llegó á erigirse.

El arcediano de Castro se hallaba en la Inquisicion como convicto del crimen de heregía. Esta infeccion, dice Gomez Bravo, se halla estendida á las iglesias mas ilustres de España, y así la padeció tambien la de Córdoba; pero en cambio tenia en su seno hombres sobresalientes que le daban superior lustre y honra. Tales eran el cardenal de S. Clemente, el cardenal de Sta. Sabina, y el de Sta. Cruz, D. Pedro Ponce de Leon, el arcediano de Pedroche, D. Francisco de Mendoza, obispo de Oviedo, y otros.

Hacia cinco años que era inquisidor en Córdoba el licenciado Diego Rodriguez Lucero, maestrescuela de Almeria, el cual para acreditarse de celoso ministro de la fé, y mas principalmente aun para saciar su monstruosa sed de sangre y su desapoderada ambicion, de tal manera afligió con sus calumniosas imputaciones y tiránicas sentencias á la gente principal de la ciudad, sin distincion de clases, edades ni sexos, y sin respeto á dignidades eclesiásticas y seculares, que fué menester que el cabildo y la ciudad unidos clamasen contra sus bárbaros atropellos pidiendo justicia á S. S. y proteccion á los reyes, príncipes, grandes, iglesias y prelados.

A su tiempo publicaremos el estracto de las curiosas piezas relativas á los atentados y ruidoso proceso de Lucero, felizmente terminado con la prision de este malvado y con la declaracion de la católica y general Congregacion que se juntó en Burgos para este objeto, formulada á 9 de julio de 1508.

1507. El monasterio de los Mártires debia pagar al cabildo 200 mrs. por una casa de que se habia incorporado, y otros 200 por la procesion del dia 17 de noviembre. Ya venia de antiguo la costumbre de dar en prenda un cáliz ó casulla, y en este año á 13 de noviembre el reverendo obispo abad de los Santos Mártires presentó el vestimento para la limosna de los 400 mrs. de la ida de la procesion. Pero el cabildo perdonó los mrs. y mandó volver la prenda, como acostumbraba, por la pobreza del monasterio.

1510. Murió á 21 de mayo el obispo D. Juan Daza, y fué enterrado en el coro viejo al lado de D. Iñigo Manrique. Sucedió á D. Juan Daza D. Martin Fernandez de Angulo, á cuyos procuradores dió posesion del obispado el cabildo con presencia de las Bulas en 4 de diciembre con la solemnidad acostumbrada. Era docto, virtuoso y laboriosísimo, y dice Cristóbal de Santisteban en el libro Mar de historias que le dedicó, que los dias del obispo parecian mas largos que las noches de Noruega, segun las cosas que hacia y despachaba. En su tiempo se empezó la magnífica Custodia vieja de la catedral, obra del ingenioso platero Enrique de Arfe, que merece describirse detalladamente por no constarnos se haya descrito jamás. Su planta es un duodecágono regular, de un pié cada lado, sostenido en ruedecillas interiores. Sobre el platillo de doce lados de la planta, en cuyas esquinas hay lindas cabecitas de serafines, se levanta un cuerpo de tres zonas: la primera, de ángulos entrantes y salientes, deja francos seis de los lados del duodecágono para la colocacion de las asas ó agarraderos por donde se sostiene la custodia. Esta primera zona viene á formar un zócalo de seis estribos, en cuyas caras estan representadas escenas alegóricas, alternando en andanas de graciosos relieves danzas grotescas y pastoriles con pasos de la Biblia relativos á la conduccion del tabernáculo. Remata esta zona con una preciosa crestería dorada. En los bajo-relieves mencionados alternan la plata y el oro. Segunda zona: fórmanla un zocalito pequeño, luego una cenefa de hojas y figuritas, luego una crestería dorada, despues otra cenefa mas ancha de hojas sutiles, de plata mate con figuras doradas. Esta segunda zona va en disminucion, y sostiene la tercera, que se compone de los cuerpos siguientes. Tercera zona: basa saliente, que sirve de cornisa á la cenefa de la zona inferior. Esta basa está adornada de crestería dorada. Sobre ella sube un cuerpo de doce lados, siguiendo la misma disposicion de ángulos entrantes y salientes de las zonas inferiores. Este cuerpo presenta en cada espacio entrante tres compartimentos, y en cada cara saliente tiene frontera una torrecilla ó estribo, que arranca de la base de esta tercera zona sobre una linda repisa de cenefa dorada. Ofrece pues el cuerpo que vamos describiendo seis caras salientes detrás de las seis torres ó estribos, y seis espacios de á tres compartimentos francos á la vista. En estos compartimentos, divididos uno de otro por pequeños estribos con sus delicadas agujitas, hay otros tantos espacios rehundidos, de una pulgada de profundidad, en que se representan de alto relieve escenas de la vida y pasion de N. S. Jesucristo, en figuras de dos pulgadas, primorosamente trabajadas. Son estas escenas diez y ocho. Sobre este cuerpo hay una cornisa saliente, adornada por la parte inferior con una cenefa de plata mate. Es de notar, que á medida que el todo va disminuyendo desde la primera zona de la custodia, los espacios entrantes van proporcionalmente ensanchando: manera artificiosa de conseguir que campee el cuerpo interior y principal sobre que se levanta el viril. Forma este cuerpo principal un machon cilíndrico de cristal (en que se contiene el SSmo.) que descansa en una basa tambien cilíndrica, cuya parte inferior reviste una ancha cenefa exagonal, en disminucion, formada de sutiles hojas y figuras por el estilo de las cenefas inferiores. Del machon trasparente en que se encierra el viril sale en forma de rotonda, y como derramándose á modo de penacho circular, la bóveda gótica, que recae en las torrecillas que ocupan los espacios salientes de la planta de este cuerpo principal. Estas torrecillas estan en la misma disposicion y lados que las otras que vimos arrancar de la base de la zona tercera del primer cuerpo, y se hallan entre sí unidas con sutiles arbotantes que rematan en figurillas. La bóveda circular que asegura el cuerpo cilíndrico del viril, y que recuerda desde luego la de la rotonda que dedicó Constantino como capilla fúnebre á su hija Sta. Constanza, sostiene otras torrecillas mas delgadas, que alternan con las inferiores, y en vez de levantarse en los lados salientes se elevan en los entrantes y sostienen otra bóveda, plana y calada, bajo la cual se cobija una graciosa estatuita de N.ª S.ª en su Asuncion. Sobre esta bóveda se levanta una especie de domo calado, formado por un vistoso conjunto de agujas y arbotantes de segmentos de círculo que entre sí las unen por la parte superior, y sobre el domo descuella una corona terminada en una estatuita del Salvador triunfante con la cruz. Las dos bóvedas ó baldaquinos, la que gira en torno del machon del viril, y la otra superior que cobija la imágen de N.ª S.ª, estan en la parte esterior disfrazadas con elegantes arcos conopiales, con sus grumos y preciosa crestería. Y las torrecillas que suben de los cuerpos bajo y principal estan cuajadas de estatuitas sobre sus lindas repisas y bajo caladas marquesinas. Alternan en esta bellísima pieza el oro, la plata bruñida y la plata mate, y parece al sol una maravillosa cristalizacion de sal gema, brillantes y oro. Pesa 532 marcos de plata, y para ella contribuyó con 100 marcos el arcediano de Córdoba D. Francisco de Simancas. Desgraciadamente no se mantiene hoy en su primitiva pureza de estilo esta joya artística, porque se renovó siendo gobernador del obispado D. Pedro de Salazar y Góngora en el año 1735, y entonces sin duda alguna se le añadieron algunas piezas de mal gusto que es lástima la desfiguren. No se terminó esta obra en vida de D. Martin Fernandez de Angulo, pero dejó este piadoso prelado en su testamento, otorgado á 20 de junio de 1516 (que existe en el Archivo, caj. I, núm. 133, legajo 5), 500 ducados para que se acabase.

En el Archivo (Caj. M, leg. 9, núm. 230) se contiene un instrumento curioso sobre cierto lance ocurrido entre el cabildo y los religiosos del convento de S. Pablo del órden de Sto. Domingo. «En 31 de octubre de 1510 el cabildo de esta santa iglesia celebró capítulo espresando que despues de muchas honras, así espirituales como temporales que habia hecho á los priores y religiosos del convento de S. Pablo, ingratos y desconocidos á dichos beneficios, habian tenido atrevimiento de procurar con todas sus fuerzas en los tiempos pasados y presentes algunas ofensas en menosprecio de dicho cabildo y su prelado sin tener para ello razon ni justicia; y especialmente contra el Illmo. Sr. D. Juan Daza, obispo de esta santa iglesia, ejerciendo su oficio pastoral en la villa de D.ª Mencia de esta diócesis, donde la iglesia parroquial está inclusa en un monasterio de la órden. Queriendo visitar el Sagrario y las otras cosas conforme á un proceso y sentencia determinada por el Sr. D. Iñigo Manrique, obispo que asímismo fué desta ciudad, en menosprecio de su dignidad procedieron por censuras, hasta querer poner entredicho no solo en las iglesias, sino tambien por las plazas, y despues porque el procurador del cabildo pidió los diezmos á Maria y Catalina Ortiz, beatas, que se decian de la dicha órden ser terceras, el prior y los religiosos de ella las defendian por usurpar los diezmos. Siguieron las referidas censuras con invocacion del brazo seglar contra el cabildo, y viendo no poderlo conseguir se quejaron de él ante S. M., quien declaró por nulas dichas sentencias. Y lo peor era que los citados religiosos decian no eran obligados á guardar los entredichos que esta iglesia matriz conserva y guarda, en cuyo menosprecio admitian los descomulgados que ella repelia, á la suya y á los divinos oficios, por lo que, y para que no fuese adelante su osadía, deliberó el cabildo que sus capitulares se apartasen de la conversacion y trato con dichos religiosos, y que la procesion general que el cabildo hacia el dia 1.º de las letanías en S. Pablo, se hiciese de allí adelante en la iglesia de S. Pedro; ni menos vaya el cabildo en procesion á dicho convento ni á sus religiosos se les encomiende sermon alguno así de tabla como de otros. Lo que se guardase en todo tiempo.»

1512. Habiendo ofrecido el chantre D. Pedro Ponce de Leon 10000 ladrillos y 600 cahices de cal para la fábrica del nuevo hospital de S. Sebastian, con otras rentas vitalicias que gozaba, resolvió el cabildo á 13 de febrero que se hiciese dicha fábrica nueva, y nombró al referido chantre para cuidar de ella: lo que se hizo con gran magnificencia.

1513. En ocasion de hallarse predicando de ceniza Fr. Luis Collado, guardian de S. Francisco, y celebrando la Misa el arcediano de Pedroche, invadió el pueblo la catedral clamando que se iban de la ciudad los frailes predicadores del convento de S. Pablo. Suspendió el orador su sermon para pedir al cabildo, al provisor del obispo y á todos los presentes, que saliesen á remediar aquel escándalo, y muchos prebendados fueron con el provisor á contener á los religiosos. Ibanse estos en efecto con sus talegas y báculos, precedidos de un religioso con la cruz cubierta de negro, cantando el salmo In exitu Israel; y era el motivo que el corregidor Hernan Duque de Estrada, llevado de la ojeriza y mala voluntad que les tenia, por haber castigado con demasiado rigor á un sobrino suyo fraile de la misma órden, habia mandado no se les vendiesen los comestibles necesarios: de manera que sitiados por hambre los buenos frailes no tenian mas arbitrio que abandonar la ciudad. Consiguieron detenerlos en el campo de la Verdad, y luego por mediacion de personas piadosas y prudentes se logró que volviesen á Córdoba y que el corregidor cesase en su tema.

1515. Habiendo querido visitar el obispo el hospital de S. Sebastian y el santuario de la Fuensanta, se opuso el cabildo como patrono y fundador. Insistió el obispo y llevo á cabo su propósito, y en señal de haberlos visitado se llevó un cáliz de S. Sebastian y una lámpara del santuario. El cabildo apeló y se quejó al Papa, y en agosto de 1519 obtuvo sentencia favorable.

En 19 de marzo se presentó en cabildo la Bula de Leon X concediendo al rey D. Fernando la gracia de la Cruzada para que mantuviese las plazas tomadas en Africa é hiciese al turco la guerra que intentaba. El cabildo la celebró mucho y mandó que el dia 21, fiesta de S. Benito, se trajese en procesion la Bula desde el Salvador por los beneficiados y religiosos de S. Pablo, S. Francisco, Trinidad, S. Agustin, Merced, y S. Acisclo y Victoria; y que el cabildo saliese á la puerta del Perdon á recibirla; pero que si no venian las seis religiones en la procesion, solo saliese hasta el arco que dá al patio de los Naranjos.

1516. Murió á 23 de enero el rey D. Fernando el Católico en Madrigalejo, y dejó mandado se le sepultase en Granada. Al pasar su cadáver por Córdoba, salieron a recibirle el obispo, el cabildo, las religiones, la ciudad y los caballeros con todo el pueblo, y el marqués de Priego, conde de Cabra, y otros grandes señores, le condujeron en hombros hasta la catedral, donde se celebraron suntuosas exequias.

En este mismo año murió el obispo, volviendo de acompañar el cadáver del rey á Granada. Se le sepultó al lado izquierdo del sepulcro de D. Iñigo Manrique en el coro viejo. Dejó á la iglesia su pontifical y su librería, que era muy numerosa y selecta, especialmente en manuscritos. Tambien dejó algunos legados para la obra de la iglesia, y así se ven en algunas partes del templo las armas de este prelado.

Nombrado y consagrado sucesor en el obispado D. Alonso Manrique, tomó en su-nombre posesion el licenciado Pedro de Buezo en 9 de diciembre. Hallábase D. Alonso en Flandes acompañando al príncipe D. Cárlos con grande estimacion, y en su corte se mantuvo hasta la muerte del rey D. Fernando, siendo él quien dijo la Misa en Bruselas en las exequias que se le hicieron, y quien bendijo el estoque real cuando D. Cárlos fué aclamado por rey con su madre D.ª Juana en la misma ciudad.

1517. Llegó el obispo D. Alonso á España, y el rey le mandó llevar á Portugal á su hermana la infanta D.ª Leonor, que casó con el rey D. Manuel, en cuya corte permaneció el prelado como embajador hasta fin de 1518.

1518. El dia del Corpus de este año salió por primera vez en la procesion la custodia que hemos descrito arriba.

Por este tiempo se habia introducido un nuevo género de resigna de las prebendas y beneficios, con reserva de todos los frutos, asiento, voz y nombre ad vitam resignantis: y así solamente gozaba el resignatario del derecho de suceder. Pero en este año, á 7 de setiembre, Francisco de Simancas, de edad de 8 años, presentó en cabildo unas Bulas en que mandaba el Papa darle la posesion del arcedianato de Córdoba y de una racion que habia resignado en él su tio D. Francisco de Simancas con las mismas reservas; pero que, consintiendo su tio, pudiese asistir al coro y cabildo y llamarse arcediano: en lo que luego al punto consintió el arcediano viejo. Así en realidad vino á ser este niño el primer coadjutor que hubo en la iglesia, y de 8 años tuvo voto en cabildo con las demas preeminencias y honores. Tanta era la facilidad de conceder Bulas y despachos en la curia romana, que era raro el prebendado que no padecia molestias sobre su prebenda.

1519. El 22 de enero por la tarde entró en Córdoba el obispo D. Alonso y se dirigió en derechura á la iglesia, donde fué recibido con todas las cruces á la puerta del Perdon, y despues de haber jurado guardar los Estatutos y costumbres de la misma, fué conducido cantando el Te-Deum á la capilla mayor, donde oró y dió a todos la bendicion. Se retiró á su palacio ya de noche, y el cabildo le hizo un gran regalo de aves, jamones y cabritos, al estilo de aquel tiempo. A 27 del mismo mes volvió al cabildo á dar las gracias y razon de su venida, y habló muy copioso, y bien dicho, con mucho halago.

En este año puso dos veces S. S. entredicho y cesacion à divinis en Córdoba y otras ciudades, primero por haber rehusado dar posesion á Gonzalo de Carvajal de la Encomienda de Frejenal de la órden de S. Juan, y despues por resistir el pago de una décima del estado eclesiástico á favor del rey D. Cárlos: entredicho que se llevó á cabo con grande escándalo de todo el reino, pues en el tiempo que duró no se celebraron los oficios divinos aunque ocurrieron las festividades de Espíritu Santo y Corpus. El obispo sin embargo determinó con el cabildo que se predicase en las iglesias en este tiempo para que no careciesen los fieles de todo pasto espiritual, ya que faltaban los oficios divinos, el Sacrificio y los Sacramentos.

1521. En atencion á la grande esterilidad que se padeció este año, el cabildo y la ciudad idearon muchas providencias para mantener á los pobres y ayudar á los labradores. Habiéndose hallado tres niños muertos de frio en la Corredera, determinó el cabildo que se juntasen un beneficiado y el rector de cada collacion y visitasen con el jurado de la misma todos los hospitales, haciendo que en cada uno se recibiesen todos los necesitados que se pudieran. La obra pia del chantre Aguayo daba cada dia á los pobres dos fanegas de pan.

Habiendo vacado la dignidad de inquisidor general por ascenso del cardenal de Tortosa á la silla de S. Pedro, nombró el emperador para ella al obispo D. Alonso.

En este mismo año se celebró por varias ciudades y villas de Andalucía la santa y real confederacion de la paz contra los comuneros en obediencia del emperador. Los capítulos que en ella se estipularon y juraron se hicieron saber á la ciudad de Córdoba á 1.º de febrero, y existen en el Archivo, caj. I, leg. 10, núm 391.

[373] Véase la pág. 177.

[374] La imprudencia de un predicador de gran fama, cual era el P. Presentado Fr. Cristóbal de Torres, habia dado ocasion en el año de 1614 á grandes ruidos y escándalos que despues trascendieron por todo el reino. El dia de la Concepcion de nuestra Señora predicó en la catedral contra la inmunidad de la culpa original, tan desembozadamente, que el cabildo y auditorio quedaron escandalizados de su atrevimiento. Alborotóse el concurso, dió cuenta el cabildo á su prelado, y el obispo reprendió públicamente con aspereza al predicador prometiendo que no volveria á oirse su voz en la iglesia. El padre, irritado, atrajo y encendió á otros, de forma que no se oian en la ciudad mas que porfiadas disputas y temosos altercados sobre la pureza original de nuestra Señora, con general escándalo que en breve cundió por toda España. El obispo Mardones mandó publicar un edicto prohibiendo que se celebrasen juntas para tratar y discutir esta materia; pero no agradó al cabildo el silencio de la opinion pia, y así apeló del mandamiento del obispo para ante S. S. y su Santa Sede. En la espectativa de la declaracion de S. S. acordó y votó una solemnísima fiesta á la Concepcion de nuestra Señora, á que convocó á la ciudad y pueblo para demostrar su ardiente devocion á misterio tan pio: con cuya ocasion se señaló mucho el Dr. D. Alvaro Pizaño de Palacios, canónigo lectoral, porque imprimió en Sevilla (año de 1615) dos discursos en defensa del sagrado misterio. Ya la Inmaculada Concepcion tenia fiesta dotada en la catedral desde el año 1350 por obra del obispo D. Fernando de Cabrera. El Pontífice mandó á 3 de agosto de 1617 que en actos públicos ninguno pudiese decir que la Santísima Virgen habia sido concebida con mancha de pecado original, con lo cual cesaron en parte las disputas y escándalos. Despues publicaron sus decretos favorables Gregorio XV á 24 de mayo de 1622, Alejandro VII á 8 de diciembre de 1661, y otros pontífices hasta Benedicto XIII. No consta en qué año antes del 1350 se empezó á celebrar en la iglesia de Córdoba la fiesta de la Concepcion; por el Breviario antiguo de la misma se sabe que tenia octava, procesion y seis capas; pero desde el año 1615 se empezó á celebrar con repiques desde primeras vísperas, luminarias en la torre, asistencia de la ciudad, y procesion general por el patio de los Naranjos, que es la mayor solemnidad que se acostumbra en las grandes festividades.

La capilla mayor antigua se habia destinado á la imágen maravillosa de Villaviciosa, y en ausencia de esta se colocaba allí otra de nuestra Señora. Ahora se aplicó á una imágen de la Concepcion Inmaculada, y se determinó que todos los sábados despues de completas fuese el coro á cantarle una antífona y oracion. Con tanto fervor tomó el cabildo de Córdoba la veneracion y culto de este sagrado misterio.

[375] De las interesantes notas con que ilustró Cean Bermudez los apuntes de Llaguno sobre los arquitectos y arquitectura de España, sacamos la siguiente noticia: Cuando el obispo Mardones intentó hacer el retablo de la catedral nueva de Córdoba, le inclinaron á que fuese de madera y dorado, como son casi todos los de las demas catedrales de España, diciéndole que seria menos costoso y se ejecutaria mas presto. El Hermano Matías, para persuadirle á que le hiciese de jaspes y bronces, escribió dos largos papeles, probando todo lo contrario. Ellos convencieron de tal modo al obispo y al cabildo, que acordaron se construyese el retablo como proponia el Hermano Alonso, y prefiriendo la traza que habia hecho á otras que tambien se habian presentado, le nombraron superintendente de la obra con 1500 reales al año y 500 para vestuario, pagándole además los gastos de los viajes á las canteras y de disponer la conduccion de las piedras. Aunque se empezó á tratar de hacer el retablo en 1614, no se comenzó á trabajar en él hasta el año 1618; y á poco tiempo de estar principiado, escribió el Hermano Matías otro papel sobre el modo de ejecutarle. Cansado el cabildo con las repetidas y largas ausencias del superintendente á causa de las contínuas obras de su Instituto, en que le ocupaba la obediencia de sus superiores, y despues de haberle reclamado en balde con repetidas cartas, se vió en la necesidad de nombrar en 19 de marzo de 1626 á Juan de Aranda Salazar para que dirigiese la obra; y desde entonces cesó el Hermano Alonso de asistir del todo á ella. Se concluyó el retablo el dia 27 de abril de 1628, y los diputados del cabildo mandaron gratificar á Aranda con 150 ducados por lo bien que lo habia hecho, por la priesa que se habia dado, y por la satisfaccion que el cabildo tenia en verle concluido.

Entre los documentos pertenecientes al Hermano Matías publicó el mismo anotador de Llaguno los papeles de que se ha hecho mérito; son dos representaciones dirigidas al obispo para persuadirle á que mandase labrar el retablo de jaspes y bronces, y demostrarle que podria hacerse mas presto y mas barato que de madera, y una esposicion sobre el modo y economía con que se debia trabajar dicha obra: documentos del mayor interés por las noticias que contienen sobre los inconvenientes que se ofrecen en los retablos dorados, sobre el modo de dividir y ajustar la obra manual en aquel tiempo, sobre los precios corrientes de las labores en talla de madera y en mármol, y sobre otros muchos objetos propios del arte, con prevenciones utilísimas acerca del modo de contratar la obra, de lo que se ha de dar á los artífices, y de las obligaciones de estos.

[376] Véase en comprobacion la sabia y juiciosa crítica que hace Mr. Viollet-le-Duc de la restauracion de la catedral de Reims verificada en tiempo de Luis XI. Dictionnaire raisonné de l'architecture etc. Art. Architecte.

[377] Enrique Egas es el autor del colegio mayor de Sta. Cruz de Valladolid y del hospital de niños espósitos de Toledo, ambas fundaciones del cardenal de España D. Pedro Gonzalez de Mendoza, terminadas la primera en 1492 y la segunda en 1514. Pedro de Ibarra construyó en 1521 para el obispo D. Alonso de Fonseca el colegio mayor de Santiago el Zevedeo de Salamanca. Estas obras, de estilo del Renacimiento español, que Ponz llama plateresco, son anteriores al célebre palacio de Ecouen, que construyó para el condestable de Montmorency el arquitecto francés Juan Bullant, primero que en su pais practicó para la arquitectura civil el estilo italiano por los años de 1540. El colegio de Cuenca, la casa de las Salinas, la puerta de Zamora y otros edificios construidos en Salamanca por este tiempo, son tambien semi-góticos ó platerescos. Finalmente, son asímismo anteriores á la citada obra de Bullant, y de carácter greco-romano ya mas decidido, el palacio de Cárlos V en la Alhambra, edificado por Pedro de Machuca en 1527, la catedral de Granada comenzada por Diego de Siloe en 1529, la capilla de los Reyes nuevos de Toledo trazada por Alonso de Covarrubias, y otros edificios que podriamos añadir á estos.

[378] No atreviéndose á despojar repentinamente sus fábricas de aquella infinidad y prolijidad de adornos (dice en uno de sus artículos del Artista el Sr. Carderera resumiendo perfectamente los caractéres de este nuevo estilo), y pareciendo por una costumbre de tantos años pobre y austera la arquitectura greco-romana á causa de su noble sencillez, adoptaron el medio término de reducir las dimensiones de esta; aumentaban los cuerpos de arquitectura, multiplicaban las columnitas, balaustradas, recargando los frisos y pedestales de labores y demas adornos caprichosos de que tanto abundaba la decoracion gótica. A esta clase de arquitectura mixta, que estuvo muy en boga en España por todo el reinado de Cárlos V, se ha dado en Italia y en Francia el nombre conveniente de arquitectura del renacimiento. Entre nosotros se ha llamado arquitectura plateresca, quizá por el gran número de obras en este género que en aquella edad de opulencia emprendieron nuestros plateros, tanto de objetos para el culto, como de vasos, jarrones y otras alhajas para príncipes y particulares ricos que se cincelaban con suma inteligencia y pericia.

[379] Véase la lámina que representa el Interior de la catedral.

[380] Recordará el lector que Diego de Praves fué llamado á Córdoba por el obispo Reinoso en 1597 para que diese su opinion sobre el modo de concluir la fábrica. Este arquitecto fué el encargado de las obras del palacio y de la catedral de Valladolid, trazadas por Francisco de Mora y por Juan de Herrera, cuando se trasladó la corte de aquella ciudad á Madrid. Llaguno le iguala en mérito, y lo mismo á su hijo Francisco, con el citado Mora, y segun esto parece muy probable que sea de traza suya la fachada de que hacemos mencion, que en su género es indudablemente de lo mas correcto que puede verse.

[381] Debe tenerse presente que aunque la decoracion de la catedral en su presbiterio, crucero y coro, sea del siglo XVII, hay fuera de estas partes otras que se exornaron con mucha anterioridad. Ya queda dicho, pág.ª 279 y 280, que el obispo D. Leopoldo de Austria fué el que embovedó á mediados del siglo XVI las naves que rodean la obra alta, construyendo además los dos pilarones que sufren el empuje de la bóveda del coro y trascoro al pié de la catedral. Estas obras se sabe positivamente que son suyas, porque así lo atestiguan historias manuscritas y los escudos que en ellas campean. Pero deben serlo tambien otras de que no hacen mencion los analistas, y que sin embargo manifiestan el mismo carácter: tales son aquellos miembros en que se ven mezclados, bajo bóveda ojival de caprichosos enlaces, todos los medios de ornamentacion del gótico-florido y del plateresco. Conviene hacer notar esta semejanza: la decoracion de los pilarones arriba mencionados se compone de medallones de alto relieve en la base, en el cuerpo medio repisas y marquesinas como en disposicion de recibir estatuitas de santos; luego cenefas y anchas fajas de follages, niños y animales; y en el cuerpo alto cornisa con mascarones y cabezas de ariete. El intrados del grande arco que une al primer pilaron con el macho angular N-O. del coro, está cuajado de primorosos arabescos del estilo italiano del mil quinientos. El pilar N-O. del gran rectángulo de la catedral está decorado de una manera análoga: presenta su ornato dos zonas, de filetes formando enrejados, con circulitos, fajas y cenefas horizontales de follagería. La bóveda gótica que rodea toda la obra alta, lleva en los tímpanos ojivales formados por el arranque de sus nervios, grandes bajo-relieves, y todos los pilares del lado del norte que la sostienen estan decorados con filetes formando enrejados, cenefas de circulitos, losanges y otras combinaciones. Ahora bien, esta misma amalgama se advierte en la decoracion del trasaltar. Los bajo-relieves de los tímpanos de la bóveda son medallones á la manera italiana, con bustos de tan alto relieve que parecen los personages esculpidos asomados á los marcos en que se contienen. Cada tímpano presenta dos de estos medallones, y en medio un nicho con su repisa gótica destinada al parecer á una imágen. De tal manera llevan todas las construcciones de D. Leopoldo de Austria el carácter de su época, que no es posible desconocerlas; pero el que dude de esta verdad coteje la ornamentacion de estos tímpanos con la de los que estan enfrente, en la arquería árabe que conservó el prelado al tender la bóveda del trasaltar, y se convencerá de que todo es de un mismo tiempo. Alli son medallones y nichos, y aqui relieves con anchas fajas de grotescos, follages, figuras y cabecitas prominentes; pero todo es obra del egregio prelado de la sangre real de Austria.

[382] Véase la lámina que representa este interior.

[383] El actual embovedado se construyó desde el año 1713 al 1723, costeando generosamente muchos prebendados las bóvedas de algunas naves.

[384] Véase la lámina que representa la Puerta de las Palmas desde el patio.

[385] De estos obispos hermanos, naturales de Córdoba, escribió Gil Gonzalez en el teatro de sus iglesias; y D. Nicolás Antonio hizo memoria de las obras escelentes del obispo D. Diego.

[386] Véanse pág.ª 222 y 223.

[387] Es histórico. Habia dispuesto la ciudad tres arcos triunfales, «el uno de los cuales era la misma Puerta Real de piedra... En el primero estaban las figuras de los emperadores Maximiliano, y Cárlos, y el rey D. Fernando el Santo, y el rey nuestro señor. Habia otras pinturas de mucho entendimiento. Encima de este arco estaba fingido el monte Parnaso con la fuente Helicona que manaba agua de azahar.—Sobre este monte parescieron nueve hermosísimas doncellas que representaban las nueve musas, cantando y tañendo muy suavemente, etc.» M. S. contemporáneo de la coleccion del Sr. D. Valentin Carderera.

[388] Este consejo fué instituido por el severo duque de Alba en Flandes. Los franceses le dieron el nombre de consejo de revueltas (conseil des troubles); los holandeses el de consejo de sangre (bloed-raed).

[389] Tomamos todos estos curiosos pormenores, hasta ahora desconocidos, de una interesante coleccion de m. ss. de la época, que reunió en un tomo el diligente Ambrosio de Morales, y que hoy es propiedad de nuestro buen amigo el Sr. D. Valentin Carderera, quien generosamente nos la ha franqueado.—Las noticias que vamos dando se hallan en una carta que un vecino de Córdoba, relacionado al parecer con las primeras notabilidades de la corte que allí acudieron, escribe á un personage, refiriéndole la entrada del rey en la ciudad.

[390] El órden que guardaba la comitiva del rey era segun la carta citada el siguiente:

«Venia delante de su S. M. tanta gente de á caballo y tan bien apuesta, que era maravilla, y al fin los señores de título, y al fin los grandes, y tras ellos cuatro maceros á caballo, y cuatro hombres de armas, y seguia luego á pié la ciudad, y cerca del palio D. Antonio de Toledo con el estoque.»

[391] Véase pág. 280.

[392] Otra carta de la referida coleccion m. s. del Sr. Carderera, fechada en Córdoba á 14 de abril de este año de 1570, dice así: «El de Medinasidonia entró ayer por la puente á las cinco horas de la tarde, por delante de las ventanas del cardenal, el cual estaba tras una gelosía con el Sr. D. R.º de Castro. Precedieron ciento tres acémilas buenas y bien aderezadas de reposteros nuevos de lana; las seis que traían la recámara se cubrian con reposteros de terciopelo morado bordados de plata y oro con sus armas. Después comenzó á entrar la caballería de Córdoba, dellos de camino y dellos de rua. Luego la corte toda de camino, y entre ella el de Cuenca y el de Jaen echando bendiciones; y á cabo de rato. porque la gente era mucha, llegó Ruy Gomez, y á su lado izquierdo el prior D. Antonio. Luego el de Moudejar y marqués de Aguilar. Despues el nuevo cortesano, en medio del de Nájera que venia al lado izquierdo, y el de Feria con su guarda que venia al derecho. Detrás venian cincuenta pages en buenos caballos; despues entraron tras ellos doscientos ginetes en muy buenos caballos, con seis trompetas, y estandartes en ellas de damasco carmesí, labradas de plata y oro las armas del duque, y luego un estandarte grande de lo mesmo y con la mesma divisa. Delante cuatro cornetas de las cuatro capitanías, de dos en dos. Los cuatro capitanes entraron muy bizarros en ricos caballos y con marlotas de brocado verde. Todos los demas ginetes, trompetas y oficiales de las cuatro compañías, traían marlotas de terciopelo verde aforradas en tafetan blanco, con cercos de una trenza de plata y seda, y caperuzas de lo mismo, y banderas de las mesmas colores en las lanzas, y muy buenas adargas: debajo traían muy buenas armas todos, espadas y dagas plateadas, vainas de terciopelo verde y talabartes bayos. Parecieron tan bien, que no se puede encarecer, así por el buen órden y aderezos, como por ser buena gente toda y escogida. Tráelos el duque para ofrecellos á S. M.; no se sabe si ha querido dárselos pagados. Apeóse en palacio, el rey le recibió bien aunque porfió en no darle la mano, pero no se quiso levantar hasta haberla besado. Halló su casa bien aderezada de muchos brocados y muy rico aparador en ella. La cena fué mucha y buena, y serian de mesa hasta ciento, y porque no la vi no sabré decir los personages della: bien se podria creer que Ruy Gomez y la princesa estarian con mucho contentamiento desta solemnidad, que en Córdoba se ha celebrado bien por las pecas que en ella ha habido desta manera, aunque se debe todo á los ginetes, que cierto fueron lucidos. Olvidóseme decir que los garrotes y las chapas de la frente y ojos de las seis acémilas eran de plata.»

[393] Pág. 276.

[394] La pintura habia hecho casi todo el gasto en la decoracion de la capilla del Sagrario. «Desde su puerta hasta la inmediata de la iglesia, dice Casas-Deza, en la bóveda y arcos estaban pintados al fresco diferentes pasages de la Historia Sagrada y figuras alusivas al Santísimo Sacramento, que habia ejecutado Antonio Mohedano, ayudado de Juan Francisco y Esteban Perola, cuyas pinturas se han ido deteriorando con el tiempo hasta nuestros dias, en que lo poco que quedaba ha sido destruido sin consideracion alguna.»

[395] D. José Caveda: Ensayo histórico sobre los diferentes géneros de arquitectura empleados en España.

[396] Tambien son muy característicos de este estilo los flecos y cortinones.

[397] Ejemplo, el mismo retablo citado, con sus cornisas interrumpidas y volutadas que denuncian á la legua la inutilidad de los esfuerzos del Hermano Matías por conservar las líneas rectas del greco-romano puro.

[398] Para completar el cuadro histórico de este insigne monumento, museo de todos cuantos estilos arquitectónicos se han sucedido en España, creemos conveniente continuar el resúmen de sus anales; los cuales por otra parte contribuirán á esplicar mejor la fiel correspondencia entre el arte y la situacion social de cada época. Es siempre muy curioso, y mas que curioso útil, el ir cotejando las vicisitudes de la arquitectura con las vicisitudes de las ideas, creencias y vida pública de un pueblo.

Memorias notables relativas á la historia de la catedral desde la conclusion del nuevo crucero hasta las últimas obras hechas en ella.
(Del 1624 al 1777.)

Año 1625. Las muchas guerras que se movieron contra el reino y las necesidades de su defensa, obligaron al rey D. Felipe IV á solicitar un donativo voluntario, sobre lo cual recibió el cabildo de Córdoba una carta del presidente de Castilla y confesor de S. M., en cuya vista y la de causa tan justificada ofreció en 7 de febrero un subsidio de 12000 ducados, determinando al mismo tiempo hacer contínuas rogativas por el pronto término de las revueltas que afligian á la monarquía y á la fé católica en Europa, Asia y Africa.

El 8 de diciembre de este mismo año se celebraron con accion de gracias y procesion general los prósperos resultados obtenidos por las armas y la política de España.

A 2 de octubre de este año, á peticion del obispo D. Cristóbal de Lobera, celebró el cabildo honras públicas al cardenal duque de Lerma en el altar mayor y coro antiguo.

1626. El 11 de enero estuvo espuesto el Santísimo desde la hora de prima, se celebró la misa con sermon y hubo procesion por la tarde, en accion de gracias rogada por el rey, por haberse salvado de manos de los ingleses y holandeses los galeones y flota de España en noviembre del año último.

Empezó este año con tan fuertes temporales y lluvias tan copiosas, que el Guadalquivir salió de madre, llegó casi á cerrar los arcos del puente, cubrió los molinos, y en varias calles de la ciudad anduvieron barcos para socorrer á los vecinos. El 10 de febrero, á súplica del cabildo y ciudad, fué el obispo á la iglesia, y acabadas las horas se vistió de pontifical, y en procesion con todas las reliquias, cantando las letanías, subió á lo alto y descubierto de la capilla mayor, y conjuró los aires y nubes volviendo el rostro á todas partes. En la capilla mayor se cantó una antífona y se dió la bendicion al pueblo. En esta ocasion descubrieron las aguas á la otra parte del rio vestigios de edificios antiguos, sobre lo que escribió D. Pedro Diaz de Rivas una curiosa y erudita carta al abad de Rute D. Francisco Fernandez de Córdoba.

1627. A 22 de mayo murió el célebre racionero D. Luis de Góngora y Argote, que fué considerado por su ingenio, erudicion y poesía, como el fénix de su siglo.

1629. Dió á la iglesia el obispo Lobera el 8 de setiembre la hermosa lámpara de plata que pende en el presbiterio. Esta alhaja cayó al suelo por un descuido en el año 1728 y se maltrató mucho, de resultas de lo cual hubo que renovarla. Su peso actual es de 16 arrobas, 18 libras, 10 onzas y 5 reales de plata; dá idea de su hechura la lámina en que está representado el interior de la catedral.

A 22 de noviembre, habiéndose presentado en cabildo á nombre del rey, D. Alonso de Cabrera de su consejo y cámara, solicitando con una carta de S. M. un donativo para socorro de las grandes y urgentes necesidades del Estado, combatido de las muchas guerras que por todas partes se fomentaban, determinó aquel que se diesen 12000 ducados de la mesa capitular y préstamos de las prebendas, pagados á plazos.

1630. El dia 13 de octubre se llevaron á la catedral con procesion general las reliquias de los santos mártires que conserva la iglesia de S. Pedro, para celebrarles fiestas por ocho dias consecutivos. Se manifestó el Santísimo en el Sagrario, y se hicieron plegarias y rogativas. Hacíase esto por la salud del reino, y porque Dios le libertase de la terrible peste que á la sazon se padecia en Italia, y que el ignorante vulgo creía originada de los llamados polvos de Milán con que personas malignas inficionáran las aguas.

1631. En este año y en el siguiente fueron contínuas en la catedral las rogativas por la felicidad de las armas católicas contra el rey de Suecia y los hereges de Alemania.

1633. En la cuaresma de este año se introdujo cantar en el campo santo un Miserere á que concurria de noche gran muchedumbre de ambos sexos, originándose de aquí algunos desórdenes. Era costumbre asímismo acudir allí la gente los dias de fiesta á pasear en coche y á caballo, profanando aquel lugar sagrado con escándalo de los devotos que visitaban las cruces. Deseoso el cabildo de poner á todo remedio, encargó al Dr. Alderete, provisor á la sazon, que lo prohibiese con el mas suave modo; pero habiendo una noche la gente derribado y hecho pedazos las cruces, para desagravio de tamaña injuria determinó el cabildo, que bien compuestas y engalanadas, las pusiesen en el trofeo que en honor de los mártires habia erigido Ambrosio de Morales, y que de allí se llevasen en procesion á la catedral para colocarlas en la capilla mayor al lado del Evangelio.

Así se hizo el 17 de abril, iluminando por la noche la torre, y al dia siguiente se celebró misa muy solemne del triunfo de la Cruz, á que asistió la ciudad, predicando el famoso orador de la Compañía de Jesus P. Figueroa. Por la tarde se llevaron las cruces otra vez al campo santo en solemne procesion de todo el clero, religiones y cofradías, llevándolas sacerdotes con capas pluviales carmesíes, y conduciendo los prebendados y capellanes de la iglesia, debajo de un palio que llevaban los veinticuatros, la cruz grande del obispo Mardones. Salió la procesion por la puerta del Dean y dió vuelta á la iglesia, y al regresar del campo santo entró por la puerta del Perdon.

1637. El obispo D. Fr. Domingo Pimentel á su vuelta de Italia, regaló á la catedral dos magníficos blandones de plata de 7 arrobas de peso y 4-1/2 varas de altura, primorosamente trabajadas en Roma por Faustino Taglieto. «No se halla en otra iglesia de España, dice Bravo, otra semejante dádiva.» Otros dos blandones de 9 cuartas de altura regaló el cardenal arzobispo de Toledo D. Pascual de Aragon; y con doce iguales de bronce dorado hacen magestuosa la capilla mayor en las festividades clásicas.

1638. El domingo 26 de setiembre hizo el cabildo una fiesta solemne á nuestra Señora de Villaviciosa, á cuya intercesion atribuía la victoria que de los franceses acababa de conseguir España en Fuenterrabía.

1639. El obispo Pimentel llevó personalmente el Santísimo en la procesion del Corpus, dentro de un hermoso sol que mandó hacer en lugar de custodia. En esta ocasion, imitando la gran devocion del prelado al augusto Misterio, se introdujo en la catedral la costumbre, seguida despues en las demas iglesias de España, de decir los predicadores despues de la salutacion y el Ave-María: Alabado sea el Santísimo Sacramento, y la Inmaculada Concepcion de la Vírgen nuestra Señora sin pecado original.

1640. Quitó el cabildo á peticion de este obispo las completas que se decian con música los sábados de cuaresma por varias profanaciones de la gente de ambos sexos que concurria por via de recreacion al templo.

Fué este año infausto para la monarquía por el levantamiento y guerra de Cataluña; la iglesia de Córdoba resolvió implorar la clemencia divina poniendo por medianeros á sus santos mártires, y sus reliquias fueron llevadas con procesion general á la catedral, donde se les hizo fiesta ocho días seguidos, desde el 23 de febrero hasta el 3 de marzo.

1642. Continuaban en la catedral las oraciones y plegarias por los felices sucesos de las armas católicas. Fué año de grandes calamidades: ganó el rey de Francia á Perpiñan y otras plazas en el Rosellon y Cataluña, y el Brasil y las Islas Terceras se entregaron á los portugueses. A esto se agregó la gran baja de la moneda de vellon, que publicada en Córdoba á 15 de setiembre ocasionó tumultos entre el pueblo. El desgraciado Felipe IV, tan miope para los errores de su política como perspicaz para el decaimiento de la fé religiosa, atribuyendo sus reveses á la falta de devocion hácia el Arcángel S. Miguel, deseaba que se le hiciesen demostraciones públicas de afectuoso culto, y que se le admitiese por patrono del reino. Esta insinuacion no fué bien recibida: la iglesia de Córdoba declaró no admitir patronato ni compañía con el único patron de España Santiago, y no volvió á tratarse de este negocio.

1643. El domingo cuarto de cuaresma, hallándose el Tribunal de la Inquisicion en la catedral para hacer la publicacion del Anatema, y ausente el obispo, hubo durante los divinos oficios grande alboroto y escándalo, con motivo de no haber acuerdo sobre á quién debia pedir la venia el predicador al comenzar el sermon. Esta cuestion de pura etiqueta fué causa de que el presidente del coro mandase cesar el sermon y continuar la misa, intimando por su parte el tribunal censuras á los del altar. Redújose la funcion á una confusa babilonia: ambas partes acudieron al rey, y una junta de ministros resolvió que cuando no estuviese el prelado presente, el predicador solo hiciese la venia al Santísimo.

1644. Pidió el rey al cabildo un donativo de 1000 fanegas de trigo y otras 1000 de cebada para mantener los ejércitos. Sin embargo de ser gravísima la necesidad del reino con la guerra, fué concedido. Muchas familias en Córdoba quedaban desamparadas por irse á campaña los que cuidaban de sustentarlas: en esta ocasion fué tanta la caridad del obispo, que los niños cantaban por las calles:

«D. Domingo Pimentel,
obispo de esta ciudad,
sustenta cinco mil niños
á media libra de pan.»

1645. Los apuros del Estado eran cada dia mayores, y el rey puso toda la plata de su servicio en la casa de la moneda. El cabildo de Córdoba movido del ejemplo le sirvió con 6000 fanegas de trigo y 2000 ducados á 9 de noviembre. El prelado le hizo aun mayor donativo. La ciudad contribuyó tambien.

1647. Hubo en otoño del año anterior tan terribles temporales y tales avenidas, que se perdieron las siembras, y en este año sufrió la ciudad gran carestía. Sin embargo vinieron cartas del rey pidiendo nuevos donativos para poder resistir la fiera invasion del príncipe de Condé en Cataluña; pero nada pudo dar el cabildo.

1648. Hubo en Madrid congregacion de las iglesias del reino con motivo del breve de Inocencio X concediendo á Felipe IV la gracia de exigir de ellas hasta 800000 ducados para los grandes apuros de su reino. Esta gracia se redujo á 500000. Iban á venderse los baldíos de Córdoba con grave perjuicio del comun y de los pobres, y los dos cabildos eclesiástico y de ciudad recurrieron al obispo para que lo impidiese. El buen prelado, animado de fervoroso celo, hizo tan eficaces representaciones al rey y á sus ministros, que no se llevó á efecto aquella medida.

En el mes de octubre de este mismo año se celebró Sínodo para corregir y renovar algunas constituciones. Empezó el domingo 18 celebrando de pontifical el obispo en la capilla mayor y continuaron las sesiones en la de S. Clemente.

A 19 de noviembre murió el famoso arcediano de Castro D. Andrés de Rueda y fué enterrado en su capilla de S. Eulogio.

1649. Fué este año muy funesto para Córdoba porque en él la invadió la peste. Con este triste motivo se hicieron en la catedral muchas rogativas, fiestas y procesiones, implorando la proteccion de Nuestra Señora de Villaviciosa y de los Santos Mártires.

1650. Enfervorizados los feligreses de la catedral con el ejemplo de la insigne caridad de su obispo D. Fr. Pedro de Tapia, dieron una espléndida comida á todos los que habian sido atacados de la peste y sobrevivido á esta gran calamidad; llevaron en procesion las santas imágenes de J. C. crucificado y de S. Sebastian que se veneran en el altar del Punto, y á la vuelta las colocaron en la capilla del Sagrario, donde celebraron fiestas y rogativas por nueve dias. En esta ocasion se introdujo por la primera vez el uso de que el obispo predicase desde un sitial puesto sobre un tablado en la capilla mayor.

Tambien en este año se hizo por la primera vez con gran solemnidad el voto de defender la Inmaculada Concepcion de Nuestra Señora. Dió principio á este acto, el domingo 11 de setiembre despues del Evangelio, el obispo, prestando su juramento sobre un misal preparado en la capilla mayor. Sentado luego en una silla, fueron por su órden llegando los prebendados, capellanes, corregidor y veinticuatros, y juraron lo mismo en sus manos.

1652. En el mes de mayo hubo grande alboroto en la ciudad por la falta de pan, motivada en parte por la inhumanidad de algunos logreros que monopolizaban las harinas, de lo cual se siguieron graves desórdenes y atropellos. El pueblo se aquietó por la benéfica y paternal mediacion del obispo, á quien tomó por su gobernador gritando mueras á su corregidor el vizconde de Peñaparda, que tuvo que refugiarse al convento de la Trinidad. Estuvo espuesto el Santísimo, y el cabildo eclesiástico veló algunas noches por la pública tranquilidad. A consecuencia del motin referido se fundó en Córdoba un pósito de trigo, al que contribuyeron con gran número de fanegas el obispo y el cabildo.

En la catedral se tributaron á Dios solemnes gracias por la recuperacion de Barcelona ocurrida el 13 de octubre.

Este obispo Tapia hizo á la catedral el donativo de dos fuentes grandes y dos aguamaniles de plata, con motivo de despedirse de su cabildo para ir á tomar posesion del arzobispado de Sevilla.

1657. Con motivo del nacimiento del infante D. Felipe Próspero á 28 de noviembre tuvieron la ciudad y el cabildo catedral grandes fiestas, que duraron hasta el año siguiente; pero la temprana muerte de este príncipe trocó en desconsuelo la pública alegría.

El real erario, siempre exhausto, exigia nuevos impuestos. Los recaudadores de las provincias las agoviaban con sus exacciones, y para defender la inmunidad eclesiástica tuvo el cabildo que proceder con censuras.

1658. Descuidada la guerra de Portugal por no poder atender á un mismo tiempo á esta y á la de Cataluña, pusieron sitio á Badajoz los portugueses. El rey recurrió al obispo y cabildo pidiéndoles un donativo, y á 12 de agosto le asistieron con 2000 ducados del caudal de Cabeza de rentas. Socorrida la plaza, levantó el enemigo el sitio el 10 de octubre: recibióse la noticia en Córdoba el 17, y se celebró en la catedral solemnemente.

1659. Resucitó en este año el proyecto formado en 1637 de fabricar una nueva Capilla Real suntuosa adonde se trasladasen los cuerpos de D. Fernando IV y D. Alonso XI. Para este objeto cedió secretamente el obispo Alarcon á los capellanes reales la nave de Villaviciosa ó coro antiguo; súpolo el cabildo, y á fuer de perjudicado en el derecho que siempre habia ejercido de conceder sitio para labrar capillas, se opuso á la nueva obra en 1.º de octubre. Penetrado el rey de la dificultad, promovióse un acuerdo para que la Capilla Real se hiciese en otro sitio; mas tambien para esto surgieron luego inconvenientes. Convino entonces S. M. en que se edificase en el patio de los Naranjos, segun habia ya antes propuesto el Dr. Alderete; pero no llegó el caso de mudarse la capilla hasta muy entrado el siglo XVIII, en el cual se incorporó á la colegiata de S. Hipólito.

1660. Hizo el cabildo en el mes de mayo rogativas por la feliz conclusion de la guerra entre España y Francia, y por la prosperidad de la paz que parecian inaugurar las bodas de la infanta D.ª María Teresa con el rey Luis XIV: paz que se malogró con los sucesos adversos de los años siguientes.

Prosiguió el obispo Alarcon la obra de la torre de la catedral, que no estaba acabada, mandó hacer el órgano del lado del Evangelio, las rejas de bronce del coro, capilla mayor y crucero (que costaron 7000 ducados), y unas bancas forradas de terciopelo para el cabildo durante los sermones. Tambien en su tiempo se enderezó una danza de arcos junto á la capilla de S. Clemente por el arquitecto Juan Francisco Hidalgo, maestro mayor de la iglesia.

1662. Se recibió en Córdoba á 14 de enero el breve de Alejandro VII á favor de la Inmaculada Concepcion, y se celebró en la catedral con fiestas, lo mismo que en todas las comunidades, iglesias y ermitas.

En junio se celebró Sínodo y se tuvieron las sesiones en el palacio episcopal á causa de los grandes calores. Despues no han vuelto á celebrarlo los obispos sucesores, limitándose á vigilar la observancia de este, y procurando estirpar los abusos y corruptelas con sus decretos y visitas.

El obispo y cabildo asistieron al rey, siempre necesitado, con buena cantidad de granos para la prosecucion de la guerra de Portugal, que ahora felizmente era próspera.

1665. Murió á 17 de setiembre Felipe IV y fué aclamado por rey á 14 de octubre su hijo D. Cárlos II. La ciudad trajo el pendon real á la catedral, y el obispo, revestido de pontifical, le bendijo, llevándose luego al cabildo á su palacio, donde tenia prevenido mirador para que viese la aclamacion que se hacia en la torre del Homenage del alcázar.

1667. Falleció la piadosa D.ª Elvira Ana de Córdoba, marquesa de los Trujillos, dejando á la catedral un gran brasero de plata para que en la octava del Santísimo se pusiese con perfumes en la capilla mayor; y una lámpara dotada á Nuestra Señora de Villaviciosa.

1671. Se celebró en la catedral con toda clase de demostraciones festivas la canonizacion del rey S. Fernando, y en la capilla de Villaviciosa se le erigió altar.

A 27 de octubre hizo tambien fiesta la catedral por la canonizacion de S. Francisco de Borja, en memoria de haber predicado el santo en ella. Los padres jesuitas, acompañados de las religiones, trajeron el santo el dia antes hasta el arco de las Bendiciones, y le llevaron los prebendados á la capilla mayor. Por la noche se iluminó la torre, y al dia siguiente se celebró la misa, presentes los PP. que tuvieron su asiento en el presbiterio.

1673. La misma fiesta que á S. Francisco de Borja se hizo este año á S. Pedro Pascual, cuya imágen llevó á la catedral el convento de la Merced.

1675. El cardenal Aragon, arzobispo de Toledo, regaló á la catedral de Córdoba en el mes de octubre dos blandones de plata y un cáliz, con su patena, vinageras y salvilla para el culto divino en los dias clásicos.

1677. En este año se hicieron rogativas por causa de la peste que padecian Cartagena y otros pueblos, y habiendo pedido el rey trigo para socorrer la plaza de Orán, se le facilitaron 400 fanegas.

1678. Dieron á la iglesia, el arcediano de Córdoba D. Juan de Esquivel un gran brasero de plata para que sirviese en las Pascuas en la capilla mayor; y el Dr. Bañuelos un frontal de la misma materia para las festividades del Santísimo Sacramento.

En este año volvió á pedir el rey dinero á las iglesias para los gastos de la guerra de Sicilia.

1679. El rey Cárlos II participó al cabildo las bodas con la princesa María Luisa de Orleans, y en la catedral se celebró este suceso haciendo solemnes deprecaciones por la felicidad del reino.

1680 y siguientes. Fueron años de grandes calamidades para toda España y particularmente para Córdoba, de manera que no cesaron en la catedral, lo mismo que en las otras iglesias, las rogativas, las procesiones, las deprecaciones, las fiestas á Nuestra Señora de Villaviciosa, al Santísimo, á las santas reliquias de los mártires, etc. Ocurrió primero la baja de la moneda de oro y plata; hubo un espantoso terremoto el 9 de octubre de 1680, dia de S. Dionisio; hubo gran sequía, y luego lluvias incesantes y tremendas avenidas, una de las cuales se llevó dos arcos del puente; por último un contagio mortífero que duró largo tiempo. A pesar de tan calamitosos tiempos halló medio el obispo Salizanes de repartir grandes cantidades de dinero y de trigo, de erigir á Nuestra Señora de la Concepcion una suntuosa capilla, de vestir lujosamente á los niños de coro, de dotar doncellas huérfanas, de instituir aniversarios, de hacer fundaciones pías grandes y costosas, de regalar á su catedral reliquias, cálices, ornamentos, misales, blandones, lámparas y otras alhajas de plata, y de socorrer toda clase de necesidades.

La rota de los turcos en Viena por las armas católicas fué el único suceso próspero de estos años.

1693. Se hicieron en la catedral piadosas rogativas para que Dios concediese sucesion al rey en su segunda mujer D.ª María Ana de Neuburg.

1694. Siendo muy estrecha la sacristía de la catedral para la cómoda custodia de los ornamentos y vasos sagrados, por lo cual no correspondia á la grandeza de la Fábrica, determinó el cardenal Salazar hacer otra mas capaz, para cuyo objeto destinó el solar de las tres capillas de S. Martin, S. Andrés y Sta. Bárbara.

1695. El famoso cardenal Belluga regaló al cabildo desde Roma, como memoria de su afecto, un riquísimo terno bordado en tela blanca.

1696. Hizo el cabildo rogativas por el restablecimiento de la salud del rey.

1698. Celebráronse nuevas rogativas por causa da la gran sequía que afligia á la provincia, con fiestas á Nuestra Señora de Villaviciosa. Desde este tiempo ha permanecido la milagrosa imágen en la catedral.

1700. Murió Cárlos II, y su sucesor D. Felipe V fué aclamado en Córdoba á 3 de diciembre. El cardenal Salazar acompañado del cabildo, recibió á la ciudad y bendijo el estandarte real. Debia hacerse la proclamacion en la torre del Homenage como era costumbre; pero por haber puesto el Tribunal de la Inquisicion dosel en el Campo Santo, contra el uso de ponerlo en las funciones celebradas con aparato de real representacion, tuvo lugar aquel acto en la Plaza de la Corredera. Este suceso pareció tan mal en la corte, que el inquisidor fué desterrado de los dominios de España.

1701. Pidió Felipe V un donativo para socorrer á Ceuta, sitiada por el rey de Mequinez, y obtuvo del cabildo 1000 pesos escudos.

1702. A peticion del cardenal Salazar fué declarado en Roma S. Januario patrono menos principal de España, pero se suspendió este asunto por intervencion de la iglesia de Santiago.

En este año imploró el cabildo con rogativas el socorro divino contra el desembarco de los ingleses en Andalucía, y ofreció donativos á la reina gobernadora para repelerlos: lo que tuvo feliz resultado con la cooperacion de todas las personas notables de la provincia.

1704. Se hicieron rogativas para el feliz suceso de la campaña de Portugal; mas para el objeto de recuperar á Gibraltar perdido hubo que auxiliar al rey, y el cabildo de Córdoba le ofreció 800 fanegas de trigo.

1705. Favoreció la fortuna á los ingleses, y fué menester levantar el sitio de Gibraltar constituyéndose en la defensiva. Los enemigos interceptaron la comunicacion entre Andalucía y Castilla, y á propuesta del marqués de Villadarias, capitan general de las Costas, que pidió gente y caudales para defenderlas, tuvieron que aprontar recursos el cardenal, el cabildo y la ciudad. Al cabildo le correspondió dar 4000 ducados. Estas grandes turbaciones agravaron los habituales achaques del cardenal y le ocasionaron la muerte.

1706. Con la feliz victoria de Almansa y el nacimiento de un príncipe real, recobró el reino la esperanza de alcanzar dias mas bonancibles. La iglesia de Córdoba celebró repetidas fiestas de accion de gracias en la catedral y en el célebre santuario de la Fuen-Santa.

Por las grandes urgencias de la guerra pidió el rey un anticipo de dos millones de escudos al estado eclesiástico á cuenta del subsidio y escusado, y el obispo Bonilla sin esperar la aprobacion de S. S. facilitó los 778449 reales que correspondian á la iglesia de Córdoba.

1708. Volvió á pedir el rey un nuevo subsidio, y el cabildo ofreció 150 doblones. Desagradaron en Roma el anticipo y el donativo, y les negó el Papa su aprobacion; pero al propio tiempo concedió al rey católico un donativo honesto, con lo cual se agravó la dificultad. Por parte de las iglesias catedrales del reino se recurrió á la sagrada congregacion de inmunidad: en vista de su declaracion, el rey y los ministros instaron á los cabildos para que sostuviesen su prerogativa de dar ellos el consentimiento. Nada se decidió sin embargo.

1709. A 2 de julio prohibió Felipe V todo comercio con la corte de Roma por causa del referido altercado.

En este año se trajo en procesion á la catedral una reliquia de S. Zoilo á 17 de junio. El obispo mandó hacer para ella un relicario de gran riqueza. Se mantuvo en la catedral hasta el 14 de abril de 1714, en que se llevó á la iglesia de S. Miguel.

Hubo en este año algunos dias de luto en los cuales se consideró perdido el reino con los grandes progresos que volvió á hacer el enemigo. Entonces todas las provincias acudieron al rey con donativos, y entre el cabildo de Córdoba y su obispo le dieron 1000 fanegas de trigo y gran cantidad de dinero. A 10 de diciembre consiguieron las armas reales la famosa victoria de Viruega, que mudó el semblante de la guerra y aseguró á Felipe V la corona.

1710. Se hicieron obras de consideracion en la capilla de Villaviciosa: se hizo altar á Sto. Tomás, otro nuevo á S. Fernando, y se renovó completamente el principal de Nuestra Señora.

1711. Mientras se hacia esta última obra fueron robadas en la noche del 3 al 4 de marzo todas las alhajas de la sagrada imágen de Villaviciosa, que estaba provisionalmente depositada en la capilla de S. Pablo. Le quitaron un rico pectoral de esmeraldas, otra joya de la misma piedra, y un gran clavo de perlas. Además se llevaron otros objetos preciosos de la capilla y cinco lámparas de plata. El obispo Bonilla cedió á la santa imágen otro pectoral de esmeraldas que casualmente tenia, y otros devotos le ofrecieron dos lámparas de plata.

1712. Deseoso de hacer los últimos esfuerzos para asegurar una paz ventajosa, resolvió el rey levantar un ejército muy poderoso, á cuyo fin en 26 de abril escribió al cabildo que le auxiliase con lo que fuese de su agrado. En esta ocasion la iglesia de Córdoba sirvió á S. M. con 800 fanegas de trigo.

A 20 de julio dió al cabildo el canónigo Cruz y Jimena una preciosa estátua de plata de Santiago, patron de España, á caballo. El cabildo mandó que todos los años se pusiese en el altar mayor en la festividad del glorioso apóstol desde la víspera.

1713. El pintor D. Antonio Palomino, natural de Córdoba, ejecutó los lienzos de la Asuncion y de los mártires del retablo de la capilla mayor, y los de la sacristía que hizo el cardenal Salazar. Empezó en Córdoba, y los acabó en Madrid.

En este año se empezó la custodia nueva para esponer el Santísimo en las octavas del Corpus y Concepcion.

Tambien en este año se hicieron las bóvedas de las naves de la iglesia, obra que continuó hasta el 1723.

1716. Murió el 13 de octubre el obispo D. Francisco Solís, y fué enterrado en la nave de Villaviciosa, poniéndole en su sepultura un largo y pomposo epitáfio.

1717. Reconciliadas ya las cortes de España y Roma, habia renovado S. S. por otro quinquenio las gracias del subsidio y escusado cumplidas en 1712. Celebróse congregacion de iglesias en la corte para ponerse de acuerdo con S. M. y remediar algunos perjuicios, y tuvo principio á 17 de agosto de este año de 1717. Pero en las sesiones de la congregacion se agriaron tanto los ánimos, que hubo que disolverla, con gran sentimiento del cabildo de Córdoba y otros que deseaban sinceramente la union.

1724. Determinó el obispo Siuri acabar la custodia comenzada en 1713 y suspendida por haber faltado la plata: llevóla á su palacio, allí la terminaron, y se estrenó en la octava del Corpus de este año. Gastó en ella 10000 pesos, y pesaba 800 marcos de plata.

Este mismo prelado habia dado el año anterior á la catedral 12000 ducados para redimir un censo en que estaba empeñado para continuar las bóvedas.

El rey D. Luis I, aclamado en Córdoba á 20 de febrero con las solemnidades acostumbradas, murió el 31 de agosto. Su padre D. Felipe volvió á reinar sin preceder segunda aclamacion.

1727. Hubo el dia de S. Bartolomé una horrible tempestad, durante la cual cayó en la torre un rayo que la causó notable daño: derribó algunas de sus pirámides y chapiteles, arrebatándolos con tal brio, que sus piedras maltrataron las casas vecinas.

1728. Concedió el Pontífice la union de la Capilla Real con la iglesia colegial de S. Hipólito. Los cuerpos reales se mantuvieron en la capilla hasta el 8 de agosto de 1736 en que fueron trasladados á la colegial entre dos y tres de la mañana.

1729. Los infantes D. Luis y D.ª María Teresa, que iban á Sevilla, fueron á su paso por Córdoba agasajados con festivas demostraciones. El dia 5 de mayo el obispo y el cabildo los recibieron por la tarde en la puerta de Sta. Catalina, de donde los llevaron por el arco de las Bendiciones á la capilla mayor. Cantó muy bien la música mientras hacian oracion, el obispo les dió á besar las reliquias, y vieron despues toda la iglesia y las alhajas. Fué muy notado en la ciudad que el infantito D. Luis, que despues fué arzobispo de Toledo, al recibir la visita del prelado, se apoderó de su sombrero y no se le quiso entregar.

1738. El obispo D. Pedro de Salazar, sobrino del célebre cardenal del mismo nombre y continuador de su rica capilla de Sta. Teresa, agrandó la capilla de S. Lorenzo y puso en ella altar á S. Pedro dotándole con lámparas de plata, vasos, alhajas y ornamentos, y una sacristanía con su competente cóngrua.

1740. Se hicieron obras de consideracion en el antiguo acueducto de la catedral, con lo cual aumentaron las aguas y se embelleció el patio de los Naranjos.

Las magníficas cañerías y atageas construidas por los sarracenos fueron siempre objeto de muy especial atencion para la ciudad y el cabildo de la iglesia mayor. Puede en rigor decirse que el agua de la mezquita era la que abastecia á toda la poblacion. El cabildo eclesiástico era propietario por concesion del rey S. Fernando de toda el agua de las dos huertas de la Sierra denominadas de Sta. María y del Hierro. Habiéndola conservado siempre cuidadosamente, ayudado en gran parte de las contribuciones que para este efecto se habian impuesto desde el tiempo de D. Alonso el Sabio (Arch.: libro de las tablas, caj. N, núm. 271, fol. 17; caj. Q, núm. 379), se halló en el siglo XVII en situacion de vender mucha agua á los particulares, como en efecto lo verificó. En el año 1752 mandó formar un libro que describe minuciosamente todas las cañerías del cabildo y contiene un gran mapa iluminado que manifiesta por dónde va la atagea del agua de la huerta de Sta. María y dónde comienzan los encañados (Caj. Q, núm. 334). Al folio 7 de dicho libro se esplica el repartimiento que se hace en el arca próxima al convento de la Merced. Segun los diversos conductos por donde llega el agua, así varía de nombre: hay agua de Sta. Clara, agua de la Albayda ó de la Fábrica, agua del Arroyo del Moro, agua del Arroyo de Pedroche; y aun se cree que hay en la campiña otras aguas perdidas, de las que en tiempo de los árabes fertilizaban sus hoy áridas llanuras. En el citado caj. Q del archivo, bajo los números 40, 321, 359, 379, 380 y 390, hallará el curioso muy interesantes noticias acerca de esto.

1742. Murió el obispo Salazar y dejó á la catedral una imágen grande de plata de S. Sebastian valuada en mas de 800 pesos, y á su capilla de S. Pedro (que como dejamos dicho estaba incorporada con la de S. Lorenzo) un lagar muy productivo en la Sierra. Fué enterrado en su fundacion y tiene en una losa de jaspe negro un buen epitáfio.

1748. Empezó á construirse en este año la sillería del coro nuevo, obra del escultor D. Pedro Cornejo, toda de rica caoba, que duró nueve años y se estrenó en 17 de setiembre de 1757. Es en su línea, y prescindiendo de su estilo, la primer sillería de España por el primor de su talla en medallones, estátuas y demas escultura. Contribuyeron á costearla el obispo Cebrian, y su testamentaría despues, con 417091 reales; el cabildo con 60000; la fábrica con 276796; el arcediano Recalde con 120000; la obra pia del Sr. Mardones con 40000. Su autor fué sepultado en la catedral honoríficamente.

1750. Fué este año de grande esterilidad y hambre en toda Andalucía. Estimulado el cabildo de Córdoba con los ejemplos de la caridad insigne de su obispo Cebrian, á las muchas limosnas individuales unió las colectivas, formó un acervo comun de varias distribuciones que le pertenecian y de algunas obras pias de su patronato, y habiendo así reunido un copioso depósito, acabadas las vísperas de los santos patronos niños Acisclo y Victoria, vistió en la catedral hasta 1000 niños, la mitad de cada sexo, dedicándolos á estos santos. Formada así una procesion que llenó de ternura y lágrimas al gran gentío que habia acudido á verlos, fueron cantando la letanía á la capilla de Nuestra Señora de Villaviciosa, conducidos de los mismos capitulares que por sus propias manos los habian vestido. Los trages eran talares, con divisa azul que distinguia á los varones de las hembras. Desde aquel dia cada capitular abrió su casa á un número determinado de niños, los que concurriendo allí una hora antes de mediodia, recibian del prebendado y de sus criados una leccion de doctrina cristiana, y despues la comida, que se reducia á un cuarteron de buen pan y una porcelana de acemite: limosna que duró hasta la nueva cosecha.

1755. El sábado 1.º de noviembre, dia de Todos Santos, fué el gran terremoto, y el mas violento y general que se esperimentó jamás en España. Empezó en Córdoba á las 10 dadas de la mañana con un estruendo terrible. Estaban en la catedral celebrándose los divinos oficios, con un inmenso concurso de fieles: acababa el sermon, y empezaron de repente sordos estampidos, el crujir de los retablos y de las bóvedas, el repetido vibrar de las paredes y columnas, el golpear de los sillares que caían desprendidos de la torre y el de los remites que se desgajaban del crucero. Las gentes aterradas se dieron a huir sin tino, unos hácia el presbiterio, otros al Sagrario, los mas á las calles inmediatas. La mayor parte de los capitulares y ministros del coro huyeron tambien sobrecogidos de pavor. El preste asistido de los diáconos, que acababa de entonar el Credo, viendo la continuacion del terrible fenómeno sacó del depósito el Santísimo y lo espuso al corto número de personas que habian quedado presentes, sin que hubiese para esta sagrada ceremonia otro cántico que los clamores de los presentes. Dos veces se repitió durante el sacrificio esta tremenda al par que memorable escena: dos veces el preste espuso el Santísimo permaneciendo impávido en el altar como su leal ministro, dispuesto á dejarse sepultar bajo la desquiciada mole del templo, mientras todo á su alrededor era terror de muerte, tropel y gritería. El crucero y coro quedaron muy quebrantados: la torre sufrió tales vaivenes, que despues de haberse desplomado de ella una gran cornisa, un barandal de piedra y diferentes piezas de su adorno, se abrió por los cuatro frentes de su segundo cuerpo y destejió todas las claves de sus arcos, claraboyas y ventanas.

Con motivo de este gran terremoto creció la devocion al arcángel custodio de Córdoba S. Rafael, determinando el cabildo que se hiciese todos los años procesion á la ermita de su advocacion el dia 7 de mayo, en que se celebra la aparicion del santo patrono.

1756. La plaga de la langosta afligia á muchas provincias de España, por lo cual determinó S. M. que fuese llevada la cabeza de S. Gregorio Ostiense, abogado especial contra aquel azote, por todos los paises que lo padecian, conducida por cuatro cofrades del Santo, tren eclesiásticos y uno seglar á expensas de su real hacienda. Llegaron los comisionados á Córdoba en enero de 1757 con la santa reliquia: salió á recibirla una diputacion de la ciudad, y encaminada derechamente á la catedral la recibió otra del cabildo, compuesta de ocho capitulares, que la condujeron á la sacristía mayor en procesion, asistidos de muchos capellanes y de la música. A la tarde siguiente la trajo el cabildo al altar mayor, y se dijeron vísperas solemnes, y al siguiente dia se celebró con todo aparato misa, asistiendo la ciudad, y á la tarde se hizo la bendicion. Llevóse en procesion general al campo de la Verdad, conduciéndola en medio del cabildo los capellanes de la veintena en andas, á que seguia el prelado D. Martin de Barcía de capa magna, y cerraba la ciudad. Al costado izquierdo de la iglesia del Espíritu Santo, mirando á poniente, se habia formado un gran retablo y altar con sus ornamentos, donde el obispo de pontifical hizo la bendicion del agua con inmersion de la santa cabeza, y despues la de los campos, formando los dos cabildos en el teatro dos alas: hecho lo cual volvió á llevarse la reliquia á la catedral y á colocársela en el altar mayor, y aquella noche fué devuelta á los comisionados, á quienes el cabildo y la ciudad dieron buenas limosnas en dinero y el prelado un rico ornamento con cáliz y patena.

1761. Con motivo de la consagracion del magistral de esta catedral para obispo de Canarias, se estrenó un riquísimo terno regalado al cabildo por el mismo D. Martin de Barcía. Habialo este prelado mandado hacer en Roma á toda costa, y se componia de capa pluvial, casulla, dalmáticas, dos paños de púlpito y seis capas, todo de lama de plata bordada de oro, con las correspondientes albas de esquisitos encajes, á que acompañaban sacras de plata de moderna hechura, trabajadas tambien en Roma.

1766. En este año murió la reina madre D.ª Isabel Farnesio, y en la catedral se hicieron las correspondientes demostraciones fúnebres.

Este mismo año se trató de hacer nuevos púlpitos, á cuyo fin por disposicion del obispo Barcía se compraron caobas, se formaron proyectos y se entregó al obrero mayor libramiento de 4000 fanegas de trigo, que produjeron 8000 pesos. Depositóse esta suma para asegurar en todo tiempo la conclusion de la obra, y para los gastos de esta iba dando libranzas la tesorería. Murió el obispo Barcía sin verlos concluidos, y el continuador anónimo de Gomez Bravo que puso fin á su Apéndice en 1777, espresa que aun se seguia trabajando en ellos cuando él escribia: de aquí deducimos que debió esta obra sufrir largas interrupciones, porque de otra manera no se concibe que pudiese durar mas de once años.

[399] D. Francisco Sanchez de Feria en su obra inédita Descripcion moderna y antigua de Córdoba, que hemos citado otras veces, dice solamente que era propia del vínculo que poseía en su tiempo D. Manuel Serrano de Rivas, abogado de los Reales Consejos.

[400] Véase pág. 225.

[401] Nada dice de esta restauracion el minucioso Bravo en su Catálogo de los obispos, etc. Solo nos hablan de ella el capellan Moreno en su obra inédita ya citada Antigüedad y grandezas, etc., y el Sr. Casas-Deza en su Indicador cordobés, quien no nos dice de dónde ha tomado tal noticia. Conviene advertir que la obra de Moreno, como escrita muy á la ligera, contiene varias inexactitudes; sin embargo, hay una circunstancia que en el caso presente puede dar fuerza á su aserto, y es, el añadir que en la clave del arco principal de la referida capilla mayor antigua se hallan esculpidas las armas del obispo D. Iñigo. Nuestro descuido en verificar este hecho cuando visitamos la catedral, nos impide sacar al lector de dudas.

[402] Hemos tenido la curiosidad de contar las veces que para impetrar del cielo lluvias ó serenidad fué llevada la Vírgen de Villaviciosa desde su ermita á la iglesia mayor solo en el decurso de los 170 años que median del 1529 al 1699; y resulta que esta traslacion tuvo lugar una vez bajo el reinado de Cárlos V, nueve veces bajo el de Felipe II, dos en tiempo de Felipe III, doce reinando Felipe IV, y cinco durante el reinado de Cárlos II, en cuyo último año de vida se hizo la postrera traslacion.

[403] Véanse las pág.ª 199 y siguientes.

[404] Ahlu-dh-dhimmah era el nombre que daban los sarracenos á los cristianos y judíos mozárabes, y significa pueblo constituido en patrocinio ó protegido.

[405] Escribiéronle, enviando tambien cartas para los obispos y próceres de aquel reino. La dirigida al rey llevaba, segun los Anales Bertinianos, la data del año 847.

[406] No era dificil que estos concilios fuesen autorizados con metropolitanos, porque estos estaban bajo la jurisdiccion del rey de Córdoba, como lo esplica Florez, España Sagrada, trat. 33, cap. 10.

[407] Acaeció este hecho memorable el año 883 con motivo de la irrupcion que hicieron en los dominios cristianos los ejércitos sarracenos, bajo el califato de Almundhyr, cumplida la tregua pactada entre D. Alfonso y Mohammed.

[408] La basílica ó iglesia de S. Jorge, de que habla el moro Rasis, debia ser una de estas, atendidas las robustas presunciones que hay de que fuese el actual monasterio de religiosas de Sta. Clara aquel templo fuerte donde se defendieron por espacio de tres meses los cristianos de Córdoba contra las huestes sitiadoras de Mugueith, despues de la muerte de D. Rodrigo. Véase la nota de la pág. 91, al final.

[409] Salviato en la Vida de S. Martin de Soure, y el árabe Al-Makkarí en su Historia tantas veces citada; ambos hacen memoria de una iglesia dedicada á la Vírgen María, que no nombran S. Eulogio, ni Alvaro, ni el abad Sanson.

[410] Son de esta opinion el P. Roa, el Dr. Gomez Bravo, y otros diligentes conservadores de las memorias sagradas de Córdoba. Pero no son solo razones de autoridad las que nos inclinan á su sentir. La sana crítica no buscará en vano fundamentos que persuadan la grande antigüedad de los referidos templos. Sea el primero esa como marca ó señal gloriosa que parece providencialmente conservada en ellos para que puedan en todo tiempo ser reconocidos; á saber, el desmoche ó demolicion de sus torres acaecido bajo las sangrientas persecuciones de Mohammed, hecho singularmente notable que S. Eulogio testifica en dos de sus obras. Han trascurrido siglos y siglos; pudo la brillante época de S. Fernando haber erigido en su lugar nuevas torres, y aun parecia necesario hacerlo; las basílicas sin embargo han subsistido con sus torres desmochadas, como en memoria de aquella tempestad terrible suscitada contra la verdadera fé que tronchó los sagrados mástiles de las naves del Pescador sin sumergir estas; y si alguna se ha reedificado, ha sido, como la de S. Lorenzo, en tiempos muy posteriores, sin temor de que atribuya nadie á una época misma el cuerpo de la iglesia y su torre.

Otro fundamento es la clase de construccion que en los muros maestros de dichas parroquias se advierte, donde por rara casualidad la ha dejado descubierta la manía rebocadora de los señores rectores y obreros que de tiempos atrás se han venido sucediendo, la cual cubre hoy indistintamente con una capa de cal y ocre de medio pié de espesor así los rústicos y lisos paredones, como las antiguas, menudas y prolijas esculturas de las archivoltas, capiteles, cenefillas, repisas, etc. Este género de construccion es por hiladas de sillares, en las que alternan uno por largo y otro ú otros dos como de canto; y el escrupuloso observador Diaz de Rivas lo hace peculiar de las fábricas arábigas. Adviértese en S. Lorenzo, de la cual hay tradicion que ocupa el sitio mismo de la basílica erigida en 262 por escitacion de S. Sixto II en el solar donde habia nacido el santo mártir. Ahora bien, si esta práctica es una importacion de los árabes, ¿cómo suponer que estuviese en uso en tiempo de la reconquista, esto es, cuando ya apenas quedaba en Córdoba un puñado de mudéjares, y cuando el nuevo estilo occidental triunfante tenia mas proporcion de ostentar sus medios particulares? ¿No es mas natural y sencillo colegir que los cristianos mozárabes la aprendieron de sus dominadores, y la introdujeron en sus construcciones con todas las otras innovaciones de carácter oriental que tambien tomaron de ellos?

Otro fundamento por fin pudiera ser la ornamentacion arquitectónica de las citadas parroquias, no como hoy se manifiestan al primer golpe de vista, sino despues de buscar y contemplar sus partes mas antiguas. Porque sucede con frecuencia hallar un edificio de estos medio encubierto por defuera con miembros en diversos tiempos añadidos, dejando apenas ver por encima de un tejado, ó donde menos se esperaba, los indicios de una fachada inutilizada, los restos de un primitivo ábside semicircular, ó cosas semejantes. Dicha ornamentacion es por sí misma motivo de grandes dudas en Andalucía; no lo seria en cualquiera de las provincias del norte ó del centro de España. Aquellas portadas de una porcion de archivoltas concéntricas, de molduras grandemente rehundidas, formando arco abocinado, y revestidas de dientes de sierra, de puntas de diamante, de zig-zags, de graciosos pometados y de menudísima follagería que deja modestamente campear las líneas sin encubrirlas; aquellos capitelitos en forma de dados, aquellos lisos y sencillos fustes que son como la prolongacion misma de los gruesos resaltos ó molduras de la archivolta; aquellos cordones ó funículos que á manera de collarines ciñen los fustes por debajo de los capitelillos, sin interrumpirse de una á otra esbelta columnilla; aquellas lindas repisas, todas trabajosamente esculpidas con caras, ó figurillas, ó follage, que suelen ser el sosten de otros capitelillos intermedios que forman con los de las columnas una faja contínua y apretada de preciosos dados; finalmente, aquellos rústicos tejaroces que coronan las antiguas portadas, y cuyos caprichosos y variados canes, á veces de espantables monstruos, á veces de lisas y toscas molduras horizontales, casi nunca caen simétricamente sobre las puertas: todos estos son caractéres inequívocos del mas puro gusto bizantino segun se practicó en España desde los tiempos de los sucesores de Carlomagno hasta fines del siglo XIII. Pero son sumamente equívocos en toda Andalucía, dominada y aleccionada por las gentes de levante, primero en el siglo VI por el vergonzoso pacto de Athanagildo, luego desde el VIII en adelante por el gran desastre de que fué causa la sensualidad de D. Rodrigo. Cabalmente en ambas épocas despedia la mas codiciada luz, difundiéndola hasta las gélidas regiones septentrionales, la escuela artística de Bizancio: Justiniano y los Porfirogénitos fueron en ellas verdaderos faros para los otros reyes de Europa. Ahora bien, si esta ornamentacion, cuyos caractéres todos son neo-griegos, sin mas mezcla en apariencia occidental que el arco levemente apuntado (que vimos en la catedral empleado tambien por los arquitectos árabes como mero motivo de decoracion mucho antes de formularse el gran sistema ojival en Occidente); si esta ornamentacion, repetimos, era la que se usaba, tomada de Oriente, por los españoles andaluces del siglo de S. Eulogio; en este caso, no habria inconveniente para contar entre las antiguas basílicas mozárabes las cuatro de que vamos hablando. Y no solamente estas cuatro, sino tambien la que es hoy parroquia de Santiago, donde se observa el mismo estilo decorativo que hemos ligeramente bosquejado.

Es cierto que el estilo que hemos denominado bizantino y neo-griego, y que otros llaman románico y romano-bizantino, no empezó á prevalecer en la generalidad de los Estados europeos hasta el XI siglo, perpetuándose despues, en unos hasta fines del XII, en otros hasta el último tercio del siglo XIII, como sucedió en muchas provincias de España. Pero ¿quién negará por eso que las provincias del mediodia de nuestra península pudieron bajo la influencia arábiga adelantarse en las prácticas del estilo bizantino mas de dos siglos á las demas naciones de Europa, apegadas á sus usos antiguos? ¿Se ignora por ventura que Córdoba y Bizancio daban leyes de cultura y buen gusto al Occidente todavía semi-bárbaro en la época floreciente de Abde-r-rahman el Grande? Nótese que el siglo de S. Eulogio fué aquel en que el arte arábigo, hijo primogénito del bizantino, segun queda latamente demostrado en el capítulo anterior, alcanzó su mayor grado de esplendor; y que el arte mozárabe, cualquiera que fuese, no podia permanecer estraño á sus atractivos.

Pero supongamos que se mantuviese puro é incontaminado en sus antiguas prácticas romanas: todavia quedan en pié los dos primeros fundamentos que hemos esplanado para persuadir la antigüedad de las cuatro parroquias referidas; y en este caso lo único que concederemos será, que esa ornamentacion bizantina (practicada en casi toda España durante el siglo XIII juntamente con la ojival primaria) ha sido añadida despues de la reconquista para engalanar mas las basílicas ó parroquias que ya existian. De todas maneras, cualquiera que compare la portada de la fachada antigua de Santiago con la lateral de Sta. Marina publicada en este tomo, advertirá desde luego una gran diferencia: la de Santiago con sus capitelitos cúbicos esculpidos, con aquel funículo corrido que sirve de astrágalo á los fustes de las columnillas, con aquella rusticidad de canes fantásticos colocados sin ninguna simetría, revela al primer golpe de vista una época muy anterior á la de la reconquista. La de Sta. Marina al contrario está pregonando su orígen septentrional: las columnillas que sostienen la sencilla archivolta llevan esbeltos capiteles de follages como los que se ven en las construcciones ojivales del siglo XIII, y la portada se corona con un alto y agudo gablete, muy sencillo y muy saliente, flanqueado de dos estribos á modo de agujas que rematan en una especie de flor de lis, formando un conjunto que constituye una muestra perfecta del primer estilo ojival implantado en España. Esta sí que es una restauracion hecha en la basílica antigua despues de la reconquista.

Pero ¿quién se atreverá hoy á clasificar con seguridad la arquitectura de las interesantísimas parroquias de Córdoba? El indiferentismo artístico, y las mas de las veces una crasa ignorancia, oponen dificultades inmensas al observador concienzudo para reconocer, desenmascarar y examinar cómoda y detenidamente sus partes. A los señores rector y beneficiados poco les importa que su iglesia sea ó no visitada y elogiada por los arqueólogos. Con tal que esté bien enjalvegada por fuera, y por dentro bien blanqueada y clara, les es de todo punto indiferente que se vean ó no los antiguos ornatos esculpidos; que pueda ó no estudiarse en ella el aparato de la construccion, su corte de piedras, etc.; que se le atribuya ó no una remota antigüedad (cuando no es para ellos esta antigüedad la causa misma de su indiferencia). ¡Como si fuera negocio de poca monta y sin influencia para avivar el celo religioso de sus feligreses, el saber de positivo que esas mismas paredes y ese mismo recinto habian albergado en otro tiempo á aquellos ilustres mártires de los siglos IX y X, y resonado con los himnos de dolor y de júbilo de la desgraciada grey mozárabe, unas veces atribulada por las persecuciones, otras regida en paz y justicia al cesar aquellas!

[411] D. Francisco Sanchez Feria en su obra inédita citada: Descripcion moderna y antigua de la ciudad de Córdoba, pág. 40.

[412] Dos iglesias hay en la villa ó parte alta muy curiosas por lo claramente que indican haber servido de mezquitas: es la una aquella misma iglesia de S. Jorge, hoy monasterio de Sta. Clara, en cuya torre se advierte por la parte inferior la manera de construir de los árabes, con sillares alternados á lo largo y de canto; otra es la iglesia de S. Miguel, que conserva de estilo morisco una lindísima fachada lateral con portada de ojiva túmida, ceñida por un arrabá de bellas fajas esculpidas, y flanqueada de esbeltas columnillas con capiteles bizantinos; y además una magnífica claraboya de arquitos de herradura sobre columnitas que parten del centro como otros tantos radios.

[413] Lo demuestra el sabio anticuario romano Ciampini en varias obras de grande erudicion, una de las cuales se titula Vetera monimenta: en dos tomos en folio.

[414] L. May: Des temples anciens et modernes.

[415] El pueblo longobardo, que era menos civilizado que el nuestro, vió en el siglo VI, en tiempo de su reina Teodelinda, cubrir de pinturas las paredes de la basílica de Monza, representando las proezas de todos los reyes de aquella raza hasta Agilulfo. Paul. Diac. Historia de los longobardos, cap. 23, lib. 4.º

[416] Habia particulares que fundaban iglesias y monasterios, y los dotaban, y estos conservaban en la España mozárabe los mismos derechos de patronato que les habian reconocido las leyes visigodas. Como ejemplos de monasterios fundados por particulares, solo en la Sierra de Córdoba y sin salir del IX siglo, podemos citar dos: el Tabanense y el de Peñamelaria, costeados, el primero por los piadosos cónyuges Jeremias é Isabel, y el segundo por los padres de la mártir Sta. Pomposa.

[417] En cuanto á esta dependencia subsistia el mismo régimen de la España goda. El obispo era el principal administrador de todas las rentas eclesiásticas, que se componian: de los diezmos y oblaciones gratuitas de los fieles, y del producto de las haciendas y demas inmuebles. Cuidaba de ellas un ecónomo, nombrado por el obispo. Los diezmos y oblaciones se dividian en tres partes: una para el prelado, otra para los presbíteros y diáconos, otra para los subdiáconos y demas clérigos. Otras tres partes se hacian del rendimiento de los inmuebles: la primera para el obispo, la segunda para los beneficiados, la tercera para la manutencion y conservacion de la iglesia de que procedian, estando particularmente prevenido que si alguna parroquia necesitaba hacer obra y no tenia bastante dinero, la costease el obispo. Para impedir que los prelados se apoderasen de cosa alguna de la iglesia, ó apropiasen á su catedral lo que era de las parroquias ó monasterios, estaba mandado que todo obispo despues de su consagracion se hiciese cargo con inventario formal y delante de cinco testigos de lo que se le entregaba en bienes raices y muebles, y en su archivo tuviese nota auténtica de las haciendas y haberes de todas las iglesias de su diócesi.

[418] «Cada cura, dice Masdeu (Hist. crít. etc., tomo XI, España goda, lib. III), tenia para el servicio del coro y de su iglesia un número de clérigos á proporcion de las rentas, pues con estas debia vestirlos y mantenerlos con la debida decencia, teniendo derecho al mismo tiempo para castigarlos y aun azotarlos si no cumplian con su obligacion.» Esta costumbre de la España goda persistió bajo la dominacion sarracena, y en todas las iglesias, fuesen ó no monasterios, hacia el clero vida regular y conventual bajo la direccion de su cura ó rector, llamado tambien abad. Así lo aseveran Morales y otros diligentes historiadores.

[419] Véase pág. 95, nota 3.

[420] Ibid., nota 2.

[421] S. Isidoro: Operum, tomo 2. De Ecclesiasticis officiis, lib. II, cap. 2.

[422] Esta creemos sea la interpretacion que deba darse al pasage en que S. Eulogio refiere (Mentor. Sanctor., lib. II, cap. 10) que los Stos. Aurelio y Félix resolvieron declarar abiertamente su fé haciendo que sus esposas fuesen á la iglesia sin llevar cubierto el rostro. Es claro que esta mera circunstancia las hacia aparecer cristianas, puesto que todas las mujeres entre los sarracenos, casadas, solteras y viudas, llevaban tapado el rostro con solos los ojos descubiertos.

[423] En la Galia Narbonense, menos modestos, solian los clérigos cubrirse de púrpura, distintivo de los magistrados. Los nuestros no incurrieron jamás en semejante vanidad, si bien fué necesario que el presbítero Leovigildo con su libro de habitu clericorum pusiese correctivo á ciertos abusos en no mantener como era debido la insignia de los órdenes mayores.

[424] Los legos dejaban crecer la barba; los eclesiásticos la raían segun la costumbre antigua del clero de Occidente, contraria á la del clero griego; así lo afirma S. Gregorio VII, lib. 8, Epist.

[425] Cerca del pueblo de Trasierra, que pertenecia al antiguo condado de Espiel, se encontró limpiando un pozo una campana del tiempo de que vamos hablando. Era un donativo ofrecido por el célebre abad Sanson, rector de la basílica de S. Zoil y abad del monasterio pinamelariense, á una iglesia titulada de S. Sebastian, de la cual no queda hoy mas memoria sino que estaba en la Sierra de Córdoba á tres leguas de la ciudad. Consérvase esta campana en el Museo provincial de la misma: es de bronce, tiene un solo palmo de diámetro y no tanto de alto; por de fuera es próximamente hemisférica, y tiene en su borde una inscripcion grabada con muchas abreviaturas, que dice así: Offert hoc munus Sanson abbatis in domum Sancti Sabastiani martyris Christi. Era DCCCC et XIII. Esta campana singular, que se conserva sin badajo, de seguro no tiene mas sonido que un buen cencerro de los llamados zumbones, y es materialmente imposible que pudiese servir para el oficio que hoy entre nosotros tienen las campanas, no estando acompañada de otras varias y formando con ellas una cosa parecida al juego de repique que los franceses llaman carrillon.

[426] Alvaro: Indículo luminoso, núm. 3.

[427] Así lo testifica S. Eulogio en su Epist. 2.ª á Alvaro.

[428] La legacía de S. Juan Gorziense es uno de los sucesos mas curiosos que puede presentar la historia diplomática de la edad media. Labbe, Mabillon y Pagi nos dan de ella estensas noticias, que hallará el lector habilmente recopiladas en Gomez Bravo, Catálogo de los obispos, etc., tomo I, pág.ª 206 y siguientes.

[429] Llamábase monasterio dúplice ó mixto aquel en que hacian vida reglada y monástica personas de ambos sexos, si bien con la debida separacion interior, la cual era sumamente rigurosa, como se verá mas adelante. Estos monasterios fueron muy comunes en la Bética, y aun en toda España, desde que se introdujo la vida monacal en ella. En el concilio segundo hispalense celebrado bajo el reinado de Sisebuto, esto es, en el primer tercio del siglo VII, se dictaron reglas muy prudentes sobre esta clase de monasterios.

[430] Véase pág. 142.

[431] Ibid., nota 1.

[432] «Vastissimam horret inter deserta montium solitudinem.» (S. Eulogio. Memor. Sanctor., lib. II, cap. IV.) Ambrosio de Morales en sus escolios á esta obra dice que cerca de este antiguo monasterio se edificó despues el de S. Francisco del Monte, distante veinticuatro millas de Córdoba, á la márgen del Guadamellato. Bien advierte Florez en su España Sagrada que esta distancia no concuerda con la de treinta millas, que es la que asigna S. Eulogio al monasterio Armilatense; pero haciéndose cargo de que podria tal vez haber error en los números, añade «que aunque el lugar no sea idéntico, es tan notable la observancia de los venerables padres franciscanos en aquella soledad, que pueden decirse herederos del espíritu y vigor de los antiguos.»

[433] Acerca del sitio que ocupaba este insigne monasterio nada se sabe de positivo. Hay tradicion de que estuvo en el mismo lugar donde floreció despues otro famoso santuario, titulado de Sta. María de las Huertas, que existia en pié cuando la ciudad fué conquistada por S. Fernando en 1236, y que adquirió tierras en el ruedo ó repartimiento hecho por este rey, segun puede verse en Gomez Bravo, Catálogo de los obispos, etc., al año 1250. No todos los que han escrito de antigüedades cordobesas se acomodan con esta tradicion. Morales, Gomez Bravo y otros la sostienen; D. Bartolomé Sanchez Feria en su Palestra Sagrada (nota 2 al dia 7 de junio) la impugna; y despues de esplicar la inteligencia que debe darse al breve texto de S. Eulogio que sirve á aquellos de fundamento: in vico Cuteclara non longe ab urbe in parte occidentali enitescit: concluye que Cuteclara estuvo donde hoy Córdoba la vieja. Esta conclusion de Sanchez Feria es errónea, porque, como mas adelante veremos en el capítulo sobre Medina Az-zahra, ni Córdoba la vieja está al occidente de Córdoba, ni hubo jamás en ese terreno otras construcciones que las de aquel famoso palacio árabe cuyas ruinas se ven todavía. D. Pedro de Cárdenas y Angulo (Vida del ermitaño Francisco de Sta. Ana), describiendo el sitio de la Albayda, dice: Aquí fué el antiguo convento de Sta. María de Cuteclara. Tambien esta aseveracion es equivocada: en primer lugar la Albayda está al norte de la ciudad, no al occidente, como era menester que estuviese para dejar ileso el texto de S. Eulogio; en segundo lugar, en la Albayda no se han descubierto jamás rastros de edificacion que puedan suponerse de aquella fecha. Allí no hay mas edificio que un castillo, hoy propiedad del conde de Hornachuelos, cuya construccion es moderna comparativamente á la época de que se trata, aunque en él se descubran cimientos y muros del tiempo de los árabes.

A falta, pues, de mas sólidas razones con que destruir la piadosa tradicion, séanos dado seguirla.

El santuario de las Huertas y la imágen que en él se veneraba eran objeto de una muy asídua y particular devocion de parte de los cordobeses al tiempo de la reconquista, y de este culto hay abundantes memorias en los siglos siguientes, así en mandas de testamentos, como en procesiones y plegarias motivadas por varias necesidades públicas. De uno de estos instrumentos, que es la disposicion testamentaria del dean D. Ruy Perez otorgada en 1391, se colige que el santuario de la Vírgen de las Huertas, sin mudar su título, se habia convertido ya en beaterio y clausura de mujeres devotas, que llamaban emparedadas; y así se le nombra constantemente en otros testamentos posteriores. Luego vemos establecida en este santuario una cofradía con el título de Nuestra Señora de Roque-Amador ó Rocamador, fundada en época incierta. Ultimamente, en 1510, por donacion hecha á los religiosos de S. Francisco de Paula ó de la Victoria, de esta santa casa con todas sus pertenencias, la cofradía de Rocamador se trasladó al hospital de S. Hipólito, dentro de la ciudad, hoy ermita de Nuestra Señora de la Alegría; las emparedadas pasaron tambien á otra casa, y la iglesia del antiguo santuario se conservó unida á modo de capilla al nuevo templo que los religiosos de la Victoria levantaron. Tienen este templo y convento de Mínimos, ya desierto, su situacion extramuros de la ciudad, cerca de la puerta Gallegos y Almodovar, y en la escritura de donacion á que debió su existencia se lée la condicion de que habia de titularse Monasterium Sanctæ Mariæ de Victoria de hortis, para que se perpetuase la memoria de santuario tan antiguo. Así pues, segun la piadosa tradicion, la iglesia del antiguo y célebre monasterio cuteclarense habia estado donde estaba ahora la del nuevo convento.

Hasta la entrada de los franceses en el presente siglo subsistió al lado del altar de S. Francisco de Paula, donde se habia colocado tambien la antigua imágen de Nuestra Señora, una tabla que á la letra decia así: «Por la mucha humedad y oscuridad de la capilla que está á espaldas de esta obra, y por el poco culto y escasa decencia con que en ella se servian el depósito del Santísimo Sacramento y las sagradas imágenes de Nuestra Señora de las Huertas ó de Cuteclara, y de nuestro glorioso padre S. Francisco de Paula, se sacaron y colocaron en este retablo y altar, que se les construyó el año de 1715.» Al cerrarse esta iglesia al culto con la supresion de los regulares, la imágen de Nuestra Señora fué llevada á la colegial de S. Hipólito y puesta en el altar de Jesus Crucificado.—Nosotros hemos tenido ocasion de contemplarla de cerca y detenidamente en la sacristía del referido templo, donde se hallaba no sabemos por qué motivo; y observamos en ella algunas de las incorrecciones que caracterizan las obras de escultura de los mas remotos siglos de la edad media. Estremos grandes y desproporcionados, formas cuadradas y sin esbeltez, miembros cortos y abultados que hacen aparecer las figuras enanas, pliegues en cuya disposicion se advierten reminiscencias del clásico antiguo, y por lo tanto mucho mas correctos que los de la escultura de los siglos X, XI y XII, puramente convencionales y bárbaros: todas estas son facciones propias de una creacion goda, y confirman hasta cierto punto la tradicion de ser aquella imágen la misma que veneraron los santos mártires del monasterio cuteclarense. Es de piedra, está sentada con el niño Jesus en el regazo, en el cual por cierto se halla el divino infante como hundido; y parece escusado añadir que ambas figuras han sido repetidamente acariciadas en estos últimos siglos por las brochas de los pintadores.

[434] Así lo atestiguan Beda y Mabillon.

[435] Véase Flores, España Sagrada; Masdeu, Hist. crít., etc.

[436] Véase el comentario á los cánones ó capítulos del concilio de Aquisgran que publicó Yepes al fin del tomo III de su interesante Crónica de S. Benito: en el cual se citan de contínuo ejemplos de prácticas y usos observados en los monasterios de España, en especial en el de S. Benito de Valladolid, en cumplimiento de lo preceptuado en dichas constituciones.

[437] Téngase presente que una cosa es la regla de S. Benito y otra cosa las constituciones y reglamentos particulares de cada congregacion. En el siglo de que vamos hablando no existian aun aquellas famosas abadías matrices de Cluni y del Cister, que por efecto de la inmensa importancia política y religiosa que adquirieron, no pueden en manera alguna compararse con los monasterios anteriores á la primera reformacion. Fuera de España sin embargo hubo abadías de gran cuenta desde el tiempo de Carlomagno hasta el X siglo; pero las mayores nuestras no llegaron al apogeo de su poderio feudal hasta despues de adoptada en ellas la reforma cluniacense. Esto se esplica facilmente: las gentes que habitan á la parte de acá del Danubio y del Rhin, la Suiza, la Baviera, la Alsacia, el Austria occidental, las provincias de Colonia y Tréveris, y toda la tierra baja de Flandes, vivian sin industria y sin artes, casi puede decirse sin poblaciones fijas, y mucho mas por consiguiente sin centros de cultivo cientifico y literario, cuando los monges benedictinos empezaron á evangelizarlas. Las pocas ciudades que en esta parte de Alemania habia, estaban destruidas con las irrupciones continuas de otros bárbaros bajados del Septentrion. Asi como la de Salisburgo tuvo principio en el monasterio de S. Pedro erigido por el monge S. Ruperto, y las de Argentina y Worms por los que edificó S. Amando favorecido del rey Dagoberto; del mismo modo otros monasterios de la regla de S. Benito fueron el principio de la restauracion de otras ciudades, y como el núcleo de las principales que en Alemania se fundaron de nuevo. A la parte de allá de los dos citados rios, y al otro lado del Báltico, donde la gente era todavia mas bárbara é inculta, se fueron asimismo agrupando en torno de los monasterios benedictinos muchas poblaciones, que andando los tiempos llegaron á un alto grado de esplendor y riqueza. Suevia, Turingia, Sajonia, Dania, Gocia, Suecia, Noruega, Polonia, Rusia, deben sus mas famosas universidades y sus ciudades mas opulentas á los monasterios. Quien dude de este aserto puede consultar á Beato Renano en su libro II de las cosas de Alemania, á Alberto Crancio en su Metrópoli, á Jorge Braun en su Teatro de las ciudades, á Munstero en su Geografía, á Bocio en su libro 22 de las Señales, á nuestro P. Yepes en su Crónica de S. Benito, centuria 2.ª al año 640, y en otros muchos escritores tan respetables como estos. Fulda, Escafusa, Lucerna, San Galo, Wisemburgo, Sechingen, Amerbaquio, Campidonia, Blamberg, se glorían de su orígen monástico; y la insigne ciudad de Muster ha querido perpetuar la memoria de él en su propio nombre, que en lengua alemana significa monasterio. Ahora bien, como estos centros religiosos no solo enseñaban á aquellas gentes la doctrina de Jesucristo, sino tambien todas las ciencias y artes de utilidad, las matemáticas, la astronomía, la aritmética, la música, la retórica, las lenguas sabias, la poesía, etc.; como ellos, además de difundir la luz de la civilizacion en aquellas regiones, eran los defensores de los intereses legítimos de los reyes, de los grandes y de los pueblos en medio del caos espantoso que habia sucedido á la caida del imperio romano de Occidente; los únicos que sabian desarmar la petulancia de los magnates oponiendo la resistencia moral á la fuerza bruta, y contener la ferocidad de las hordas hambrientas con la mansedumbre y la caridad, y hacer prosperar la causa de los reyes con el ejemplo de una sociedad sabiamente ordenada y tranquila; no debe estrañarse que estos grandes servicios alcanzasen su recompensa, y que desde el siglo IX hubiese en Europa establecimientos monásticos espléndidamente enriquecidos con donaciones de tierras, libertades, exenciones, privilegios especiales, y oblaciones de todo género. Los que habian enseñado á la Europa septentrional á sacudir la corteza de la barbarie roturando tierras, desecando pantanos, desmontando bosques, regularizando las corrientes, construyendo hornos, abriendo escuelas y talleres, merecian bien de todas las clases y gerarquías: ellos daban ejemplos de abnegacion, protegian á los débiles, socorrian á los necesitados, respetaban á sus semejantes; á ellos son debidos los primeros gérmenes de libertad é independencia; á ellos se debieron despues los primeros bosquejos de organizacion central que en los siglos posteriores adoptaron los reyes. Muy natural era, pues, que la gran familia benedictina alcanzase mayores beneficios allí donde mas servicios habia prestado, y que en las naciones de Europa mencionadas llegase á haber monasterios como el de S. Galo, el de Fulda, el de Murbaquio, el de Campidonia, el de Wisemburgo, el de Hirsfelden, etc., que mas que casas conventuales pareciesen, á semejanza de la de Monte Casino, verdaderas ciudades. La abadía de S. Galo conserva aun en los archivos de su suprimido monasterio el plano que para el mismo edificio se supone trazó por los años de 820 el famoso Eginhardo, á peticion del piadoso abad Gozberto que la gobernaba. Este plano, que publicaron Mabillon en sus Anales Benedictinos, t. II, p. 571, y recientemente M. Fr. Keller con una memoria descriptiva, que puede verse en las Instrucciones sobre la arquitectura monástica de M. Albert Lenoir, dá una idea cabal de lo que era una abadía de la órden de S. Benito en la primera mitad del siglo IX. Es pues este documento un grande auxiliar para nosotros. La iglesia ocupa en él un grande espacio: presenta dos abaides, uno á oriente y otro á poniente, perfectamente semicirculares; dos exedras, dos coros, gran número de altares aislados en las naves principal y colaterales; ambones como en las primitivas basílicas para leer la Epístola y el Evangelio; la pila bautismal en la nave mayor, junio al coro de occidente; sacristía á la derecha del coro de oriente; sala para los escribas á la izquierda del mismo coro, con biblioteca en la parte superior; narthex á la entrada destinada al pueblo; vestíbulo para los familiares del convento; otro vestíbulo para los huéspedes y estudiantes; y por último varios departamentos pegados al muro del norte de la iglesia para los maestros de las escuelas, y para asilo de los refugiados en ellas. El templo está por todas partes rodeado de edificios; aquí se ve la escuela, con sus patios á la manera del impluvium de los romanos y sus cátedras repartidas en las cuatro bandas; mas alla otro edificio en que se comprenden la cillerezía, la panadería y las cocinas de los huéspedes; al mediodia del templo el refectorio, con el vestuario encima; allí cerca la despensa; luego baños; luego el dormitorio pegado á la pared de mediodia del crucero, con sus letrinas; luego las cocinas de la comunidad en comunicacion con el refectorio y con los lugares escusados (por medio de corredores sabiamente trazados en planta angular para impedir el paso á los malos olores); últimamente una oficina esclusivamente consagrada á la elaboracion del pan azimo para el Sacrificio. Añádanse á estas dependencias una huerta, en cuyas divisiones se indican los nombres de las verduras que allí se cultivan, la casa para el hortelano, el huerto de los árboles frutales, el edificio para noviciado y enfermería, con sus capillas, claustros y salas separadas, los gallineros y corrales con habitacion para el que cuida de ellos, el alojamiento del médico, un jardinillo de plantas medicinales, la botica, el aposento del abad, con cocina, baños, y cuartos para sus domésticos; hospedería, con cuadras y cochiqueras y habitaciones para criados, pastores, porqueros y demas sirvientes; un edificio separado para toneleros, cordeleros, boyeros, etc., con sus cobertizos y establos; graneros, oficinas para tostar grano y fabricar cerveza; departamento para los esclavos, talleres para zapateros, cojineros, armeros, torneros, guarnicioneros, plateros, cerrageros, etc.; lagar, molino, habitaciones para peregrinos y mendigos, cocina y refectorio para los mismos.

Todo esto comprendia una abadía de las principales en el siglo IX. Es claro que en España, donde la órden de S. Benito, aunque muy favorecida de los Alfonsos y Ordoños, preponderó menos, quizas por no haber sido como en los Estados de Alemania la única maestra de la civilizacion del pais en aquella ominosa edad de hierro, no serian tan poderosas las abadías, ni tan numerosas sus oficinas y dependencias. Los derechos señoriales y feudales de nuestros abades son muy posteriores á la época por cuya zona discurrimos; al paso que los abades franceses, italianos y alemanes, ya entonces habian comenzado á adquirir aquella prodigiosa influencia, que despues desde el siglo X fué la causa principal de la decadencia de la disciplina monástica. No busquemos pues en nuestros anales eclesiásticos memorias de grandes abadías émulas de las que hemos nombrado; todo por el contrario induce á creer que para citar algo de lo conocido que dé una idea aproximada de lo que podrian ser los monasterios nuestros en las provincias dominadas por los infieles, en la época misma en que se trazaba el suntuoso plano de la abadía de S. Galo, habria que acudir á las primeras casas de la reforma cisterciense, en las cuales, prescindiendo de toda constitucion y reglamento particular, se vivia estrictamente segun la regla de S. Benito, consagrando el dia á la oracion, al estudio y al trabajo corporal, labrando los monges la tierra por sus propias manos, y empleándose personalmente en toda clase de faenas dentro y fuera de la casa, sufriendo las inclemencias de las estaciones, sin criados y familiares que les llevasen la pesada carga del servicio cotidiano y mecánico. No habia en España en la época á que nos referimos abadías de las que se llamaron luego inmediatas á la Sede Apostólica por no reconocer mas superior que el Papa, y tener libertad plena en la eleccion de abad sin sujetarse á la jurisdiccion del obispo. Todas dependian de sus respectivos prelados, y las grandes mercedes hechas por los monarcas á aquellas célebres casas de Compludo, de S. Pedro de Montes, del real monasterio de Sahagun y otras por el estilo, se reducen generalmente á donaciones de tierras, que suelen ser cotos redondos con montes, valles y heredades, deslindados por sus términos y mojones; y de vasos sagrados, relicarios, cruces, coronas, ornamentos y frontales, y otros objetos á este tenor, todos los cuales se especifican menudamente. Algunas veces los monarcas reedificaban á su costa estas cosas y adornaban sus templos con columnas, mármoles y jaspes; pero es preciso llegar al siglo X por lo menos para hallar documentos en que se conceda á los monasterios jurisdiccion feudal sobre las villas y pueblos del contorno. Véase la historia del monasterio de Sahagun que bosqueja Yepes en su Crónica (centuria 3.ª, fol.º 167 y siguientes), donde se corrige la fecha que atribuye Morales al famoso privilegio concedido por D. Alfonso el Magno á esta grande abadía.

[438] Así se espresan las referidas constituciones de la órden del Cister, escritas en el año 1119 por Hugo de Macon, S. Bernardo y otros diez abades benedictinos, al tratar de la fábrica de los templos.

[439] De un hermano del rey Pipino y tio de Carlomagno, refiere Leon Hostiense que hacia en el monasterio de Monte Casino el oficio de mozo de cocina, ayudando en los ministerios mas viles que allí habia. Véase su historia de aquella célebre abadía, lib. I, cap. 7. Suponemos que para los niños ofrecidos, llamados por otro nombre oblatos, habria mas laxa disciplina, y mas adelante tendremos ocasion de señalar alguna de las consideraciones que con ellos se tenian por razon de su tierna edad.

[440] De aquí el haber llamado á los benedictinos por espacio de muchos siglos, los monges negros.

[441] Es curioso el cánon 22 del concilio de Aquisgran, que previene todo lo que constituye el vestuario del monge. Encárgase en él al abad que dé á cada religioso los efectos siguientes: dos camisas, dos túnicas, dos cogullas, dos escapularios, cuatro pares de calzas, dos de calzoncillos, dos de zapatos. Hasta aqui todo es conforme con el capitulo 55 de la Regla; pero añade el cánon, sin duda haciéndose cargo de la inclemencia de algunas regiones, que se les dé tambien un ropon de pieles largo hasta los talones, dos cintos, guantes forrados y sin forro, para el invierno y para el verano (lo cual, segun la edicion de Plantino, solo debia entenderse respecto de los que iban de camino; dos pares de calzado de dia, y dos de chinelas para la noche (subtalares), con las cuales acudian al rezo de maitines para no detenerse en mudar de calzado; zuecos en invierno; y jabon para lavarse ellos mismos su ropa.

El citado capítulo 55 de la Regla esplica el objeto y uso particular del escapulario y de la cogulla: «Bastará á cada uno de los monges, dice, una cogulla y una saya (túnica); la cogulla sea en el invierno vellosa, en verano raida ó vieja, y un escapulario para los trabajos.» De modo que el escapulario venia á ser como una cogulla ó capa abreviada. La palabra cogulla viene de la latina cuculla, que propiamente significa capilla: esta es la parte principal del hábito, y de tal manera que no se daba á los religiosos hasta profesar; entonces el que recibia sus votos, que era el abad, al ponérsela en la cabeza se la sujetaba con unas puntadas debajo de la barba como si le amortajase, y el nuevo profeso no podia quitársela por espacio de tres dias, al cabo de los cuales recibia la comunion, y el que se la administraba le soltaba la cogulla.

[442] Acerca del tiempo que duraba el noviciado tenemos alguna duda. S. Gregorio el Magno (Epíst., lib. VIII), escribiendo á Fortunato, obispo de Nápoles, dá á entender que se estendia á dos años con estas palabras: prius quam biennium in conversatione compleant, nullomodo audeant tonsurare; que es decir: no se abran corona hasta cumplir dos años en la religion. Aplicando Yepes este pasage á los usos prescritos para los novicios ó conversos, que es todo uno, concluye que las coronas se hacian al profesar, esto es, al terminarse el noviciado. Pero el mismo cronista, esplicando luego el cánon 34 del concilio de Aquisgran, dice que lo que dejó ordenado S. Benito, y lo que se practicó por trescientos años, fué que los religiosos tuviesen un año de probacion antes de profesar: segun lo cual parece reconocer que el noviciado era de un año, y no de dos. Si la probacion y el noviciado no eran una cosa misma, la dificultad desaparece. En efecto, podia el noviciado ser de un año, y sin embargo continuar el religioso sin tonsura y con el mismo hábito de noviciado hasta que se cumpliese otro año de probacion. De esta manera puede esplicarse el cánon 34 citado que manda no se dé fácil ingreso á los novicios en el monasterio, y que no se abran coronas ni cambien de vestimenta hasta hacer profesion terminado el año de prueba.

[443] Solo era permitido comer carne á los muy ancianos, y á los niños que tambien vivian en los monasterios como oblatos ú ofrecidos por sus padres, menores de catorce años.

[444] Son estos religiosos de la congregacion de S. Pablo, primer ermitaño, y viven ejemplarmente siguiendo la primitiva regla, reformada por el venerable Juan de Dios de S. Antonino, en una de las montañas de la Sierra al norte y á una legua escasa de Córdoba. Este instituto existe desde los tiempos de Osio, aunque en Córdoba no se introdujo hasta el año de 1309. «Fueron los primeros (dice D. Francisco Sanchez de Feria en su obra inédita ya en otras ocasiones citada: Descripcion antigua y moderna, etc.) unos soldados castellanos, esforzados y valientes, que cansados de padecer trabajos en las dilatadas guerras sobre Algeciras, y desengañados de las cosas del mundo, desampararon las banderas del rey D. Fernando el IV por lo desabrido que estaba con él todo el ejército, y se resolvieron á militar por el reino del cielo; para lo que se ocultaron en las malezas de los montes cordobeses á hacer vida solitaria. Unos habitaban en cuevas, otros en chozas, otros en ermitas que fabricaban... Unos residian en tierra de Ribera la alta, en un cerro eminente de dificil subida, cerca del arroyo del Gato, no lejos del rio Guadamellato... Otros se situaron en las montañas del Bañuelo, donde permanecen arruinadas sus ermitas... Y otros ocupaban los montes del Albayda... Y habiéndose fundado en 1417 el observantísimo y religiosísimo convento del órden de S. Francisco en el sitio ó pago de la Arrizafa, dícese se juntaron unos y otros ermitaños en sus inmediaciones... para gozar del pasto espiritual del convento.» De nuestro Diario de viaje sacamos los siguientes pormenores descriptivos. La situacion de estas ermitas es en sumo grado pintoresca: desde el mirador que hay á su entrada se divisan, á la derecha, y como á la mitad de la vertiente de la montaña, la quinta de la Albayda, antiguo Castillo Blanco, propiedad hoy del conde de Hornachuelos; mas lejos el castillo de Almodovar, cuya masa cenicienta descuella confusa en la eminencia de un cerro entre los vapores que se levantan de la campiña. Hácia la falda del monte que me sirve de atalaya veo á vuelo de pájaro la Ruzafa, antigua casa de recreo de Abde-r-rahman I, luego convento de padres franciscanos... ¡ahora parador, y fonda casi siempre cerrada! Viven en estas ermitas, bajo la proteccion del señor obispo de Córdoba, diez y siete ermitaños profesos, y un solo novicio. Observan riguroso silencio, é incomunicacion completa entre sí la mayor parte del dia. Reúnense solamente en la capilla, en la lectura que sigue á la misa, y en el refectorio. Cada cual tiene su celdilla, y hace su almuerzo y cena en su cocina: para la comida hay refectorio en la casa principal. Emplean en el trabajo manual y corporal cinco horas diarias. A las horas de oracion cada cual debe tocar su campana en oyendo sonar la de la capilla; é incurre en grave falta el que no lo hace. Visten hábito y escapulario con capilla de paño pardo. Hay casa de novicios, separada de las celdas de los profesos, las cuales estan aisladas y diseminadas por toda la tierra que abraza el Santo Yermo. El noviciado dura seis meses. En una de las peñas mas avanzadas de esta montaña han labrado los ermitaños para el obispo un cómodo sillon, desde el cual se goza una de las perspectivas mas bellas que pueden imaginarse. Descúbrese toda la campiña al frente, haciendo fondo á la ciudad las sierras de Cabra y de Granada con sus azulados festones de crestas, y sobresaliendo al sudeste el pico de Alcaudete: por detrás de la ciudad se desliza culebreando el magestuoso Guadalquivir.

[445] En su famosa carta al obispo de Pamplona Wiliesindo.

[446] Era S. Eulogio, dice su condiscípulo Paulo Alvaro, tan pequeño de cuerpo como grande de alma.

[447] «Vé, carta, y sal con mucha priesa, volando por selvas y collados: atraviesa con apresurado curso los valles y busca los sagrados edificios del amado de Dios Benedicto. Allí siempre hallan reposo los que llegan fatigados: dáseles con abundancia verduras, pan y peces. Hay allí alegre amor, y culto á Jesucristo á todas horas: piadosa paz, entendimiento humilde y hermosa conformidad entre los hermanos. Dirás al abad y á sus compañeros: ¡Dios os guarde, vivid felices!» Trae estos versos Leon Hostiense en el lib. I, c. 17 de su Hist. de Monte Casino.

[448] «Jubet ecclesias nuper structas diruere, et quidquid novo cultu in antiquis basilicis splendebat, fueratque temporibus arabum rudi formatione adiectum elidere, etc.» Memor. Sanctor., lib. III, Destructio basilicarum, cap. 3.

[449] Verificóse aquella en el año 853, y cinco años despues vemos al célebre Sanson hallarse de abad en el monasterio Peñamelariense, cuando vinieron á Córdoba por los cuerpos de los santos mártires Jorge y Aurelio los dos monges Usuardo y Olivardo de la abadía de S. German de Paris.

[450] Almundhyr sin embargo, mas inclinado á la paz que á la guerra, medió eficazmente para restablecer la concordia entre su padre Mohammed y el rey D. Alfonso. Con este motivo pasó á Córdoba el presbítero toledano Dulcidio, el cual cumplió su embajada tan á satisfaccion de ambos, que de vuelta á los estados de D. Alfonso se llevó consigo los cuerpos de S. Eulogio y Sta. Leocricia. El piadoso presbítero salió alegre de Córdoba con las santas reliquias en diciembre de aquel mismo año (883), y en enero del siguiente llegó á Oviedo, donde las recibieron con devocion suma y solemne pompa el rey, el arzobispo Hermenegildo y toda la corte.

[451] En este intérvalo florecieron pacíficamente los condes Adulfo y Guyfredo, á quienes celebró en sus epígramas latinos el arcipreste Ciprian: al primero por la biblioteca que habia regalado á la basílica de S. Acisclo (que tampoco habia sido destruida); y al segundo con motivo de un abanico ofrecido á la condesa Guysinda, su esposa.

[452] Consta de una lápida que en tiempo de Felipe II fué descubierta en el sitio llamado los Marmolejos, descifrada por Ambrosio de Morales, y colocada en el que era convento de S. Pablo.

[453] El rey de Leon D. Sancho, que acudió á Córdoba á curarse una hidropesía calificada de incurable.

[454] El mismo D. Sancho, que se hallaba desposeido de su trono; su abuela la reina Theuda; el rey de Navarra, su hijo; Ordoño IV, rey de Galicia; la condesa de Galicia, madre del conde Rodrigo Velascon; el conde D. Vela y sus hijos, etc.: todos los cuales fueron alojados, mantenidos con gran decencia, y espléndidamente agasajados por An-nasír y Alhakem, que se preciaban de ser el amparo y refugio de los príncipes estrangeros.

[455] El monge aleman Gerberto, que despues llegó á ser pontífice con el nombre de Silvestre II. Vino á Córdoba, dice en su Crónica el monge Ademaro, causa sophiæ, pues rivalizando en el cultivo de las ciencias y de la literatura los árabes, los cristianos y los judíos, llegó verdaderamente esta ciudad á convertirse en una nueva Atenas. Quien desee formarse alguna idea del amor que Alhakem II profesaba á las ciencias, y de los muchos hombres célebres que florecieron bajo su reinado, puede ver el cap. 6 del lib. VI de la Hist. de Al-Makkarí.

[456] Tambien resulta del acta del martirio de esta santa que permanecia en pié la basílica de los santos Fausto, Januario y Marcial. Otro tanto se infiere respecto de la basílica de S. Andrés de una lápida de mármol blanco, sumamente curiosa, que aun conserva la parroquia del mismo nombre en la haz interior de su pared septentrional. Dícese en ella en ocho elegantes versos yámbicos latinos, estar allí enterradas Speciosa y su hija Tranquila, vírgen consagrada á Dios, y que la hija murió en la Era 965 (A-D. 927), muriendo la madre despues en la Era 1004 (A-D. 966). De aquí tambien se deduce la grande antigüedad de esta basílica, puesto que, no siendo verosimil que fuese construida en los tiempos de desolacion y pobreza que siguieron al martirio de S. Eulogio, debe racionalmente creerse que existia ya en tiempo de este santo, y para conservarse en pié durante el reinado de Mohammed, debia ya contar mas de trescientos años de existencia segun el edicto del mismo arriba mencionado. De consiguiente la basílica de S. Andrés debió ser fundacion por lo menos del siglo VI de la Iglesia. Esto no se opone á que pudieran restaurarla despues los mozárabes segun su peculiar arquitectura; pero de todos modos la lápida referida, que cubre en aquel muro un sepulcro nunca violado, es prueba evidente de que dicho muro y la fábrica principal del templo estaban en pié á mediados del siglo X. El arqueólogo debe tener esto presente al visitar dicha iglesia en su parte antigua por dentro y fuera (pues el antiguo templo miraba á oriente y tenia su nave central en lo que es hoy crucero), y al comparar su ábside primitivo y su portada, que aun se conservan, con los de las parroquias que hemos designado como de mas remota edad.

Pegado á este ábside por la parte del mediodia hay un edificio que tambien indica grande antigüedad. Puede haber sido dependencia de la parroquia; pudiera quizás tambien haber servido de asilo á algunas religiosas ahuyentadas de su monasterio de la Sierra cuando las del monasterio Tabanense, entregado á las llamas, se refugiaron asimismo en una casa contigua á la basílica de S. Cipriano. En tal caso viviria la vírgen Tranquila con su madre junto á esta parroquia, como vivian unidas á la otra Sta. Columba y su hermana Isabel.

[457] Distinguiendo al propio tiempo con crecidos estipendios á los mozárabes que militaban bajo sus banderas. «Almanzor autem... ita sibi Christianos alicere satagebat, ut Christianos arabibus ostenderet chariores,» dice el arzobispo D. Rodrigo, lib. 5. Hist. cap. 14.

[458] Hoy todavía se ven las ruinas del famoso castillo de este nombre en el centro de la Sierra, á cuatro leguas de Córdoba y á la derecha del camino que sube desde Trasierra hácia Espiel. Son evidentemente restos de un grande edificio árabe.

[459] Tronco y principio de la ilustre casa de los Manriques de Lara.

[460] Aunque Almanzor era solamente hagib ó primer ministro del verdadero califa, Hixem II, mandaba de hecho como rey, y por tal le tenia el pueblo castellano. Véase pág. 189.

[461] Ambrosio de Morales, Crón. lib. XVI, cap. 45.

[462] S. Zoil y S. Félix, que llevó al famoso monasterio de Carrion.

[463] Así sucederia con las reliquias de diversos mártires que se veneran en la iglesia de los santos Fausto, Januario y Marcial, hoy parroquia de S. Pedro, y que no fueron descubiertas hasta el año 1575, por hallarse debajo de tierra, en una urna de piedra franca; otro tanto puede conjeturarse respecto de las imágenes de Nuestra Señora de la Alegría, que solo reapareció por los años de 1640 al hundir un tabique en la ermita de Rocamador del hospital de S. Hipólito: de Nuestra Señora de los Remedios, que fué hallada al tiempo de la reconquista por unos cautivos cristianos en una heredad de la Sierra, y cedida por el rey S. Fernando al convento de Trinitarios calzados; y de algunas otras.

[464] En la misma parroquia de S. Andrés, arriba mencionada, hay una lápida, cuya inscripcion copiada á la letra con toda su bárbara sencillez dice así: Fino don Pero Perez Villammar alcalde del rey en Cordoba en diez e siete dias de febrero. E. MCC doys feria sexta. Maestre Daniel me fecit. Deus lo bendiga. Amen. Esta lápida, que corresponde al año de Cristo de 1164, está colocada en la haz del muro á la parte esterior junto á la portada de la iglesia, á unos cinco piés sobre el terreno que fué antiguo cementerio de la misma; y prueba dos cosas: 1.º que en 1164 y bajo el imperio de los almohades, aun duraba la grey mozárabe en Córdoba, con algunas de sus basílicas y con sus autoridades privativas; 2.º que la decoracion arquitectónica de esta parroquia es anterior á aquel tiempo, puesto que para colocar la lápida allí hubo que encajarla con gran trabajo en la sillería que acompaña á la portada, cortando hasta cuatro sillares á cincel y á boca de escoda; lo que seguramente no se hubiera hecho si aquella fachada fuera posterior al epitáfio.

[465] S. Martin de Soure, cautivado en Portugal, murió entonces (año 1147) en una mazmorra de Córdoba, donde estaba con otros varios cautivos. Los mozárabes le enterraron en la basílica de Sta. María. Esta basílica cree Gomez Bravo fuese la que hoy se conserva junto á la Corredera con el nombre de Nuestra Señora del Socorro; y añade «que se mantendria á espensas de los cautivos cristianos.» No vemos la razon por qué habian de mantener los cautivos esta iglesia habiendo en la ciudad cristianos libres que podian hacerlo; pues á pesar de la gran persecucion tenian en los años posteriores, como acabamos de demostrar, otras basílicas para el culto, alcaldes nombrados por el rey castellano, y libertad suficiente para consagrarles honrosas lápidas conmemoraticias.

Sirva esta nota de ilustracion complementaria á la que estendimos al pié de la página 209, de la cual pudieran algunos colegir que con la persecucion del año 1125 no habia quedado en pié mas basílica que la de Sta. María.

Esta basílica, dice Al-Makkarí (t. I, lib. III, cap. IV), era la principal de los cristianos, y á ella acudian peregrinos de lejanas tierras. El poeta árabe Ibn Shoheyd entró una noche en ella, vióla toda engalanada, llena de luces, cubierto el pavimento de ramas de mirto, en el momento de celebrarse en ella alguna solemne funcion, y salió escandalizado de las sagradas ceremonias de que habia sido testigo. Cuáles fueran estas no podemos decirlo, porque su narracion parece referirse al Santo Sacrificio, y al mismo tiempo habla de una funcion nocturna. «Estaban, dice, revestidos los sacerdotes con ricas vestiduras de seda, de varios y alegres colores, y adelantábanse á adorar á Jesus; y si se encaminaban hácia la marmórea fuente, era solo para sacar agua de ella en el hueco de la mano. Levantóse luego uno de ellos y se colocó en medio, y tomando el cáliz se dispuso á consagrar el vino; aplicó al licor sus ardientes labios, rojos como los de una doncella, y su fragancia le cautivó el sentido; pero cuando libó la deliciosa copa, su dulzura y suavidad le sumergieron en un profundo arrobamiento.»

[466] La de la catedral.

[467] Córdoba, tan afamada en otros tiempos por sus joyantes sederías, por sus vistosos guadamecíes, por sus delicadas obras de platería, por la abundante esportacion que hacia de sus mercaderías, de sus granos, aceites y otros frutos, á Italia, á Flandes, á las Indias, ve hoy arruinadas su industria y su agricultura, y no esporta mas que barriles de aceitunas, jabon, cordelería, cintas, zapatos y sombreros para las ferias de Andalucía y Estremadura.

[468] Entiéndase de la época de Fernando VII.

[469] Dos de estas recordamos, la de la puerta de Sevilla, y otra que se halla entre la puerta de Almodovar y la de Gallegos, frente al convento que fué de la Victoria.

[470] Supónese que se abrió aquel postigo para introducir ganado en la ciudad durante el cerco que le tenia puesto S. Fernando, y que habiendo logrado algunos soldados cristianos meterse entre el ganado, contribuyendo luego á que se tomase la Ajarquía, el rey moro cuando lo supo esclamó: ¡bien escusada era allí aquella puerta! (Memorias de la ciudad de Córdoba, M. S. de la Real Academia de la Hist. D. 129, relato 1.º)

[471] Historia general de la M. N. y M. L. Ciudad de Córdoba y de sus nobilísimas familias, atribuida al Dr. Andrés de Morales. Lib. VI, cap. I.—M. S. de la Real Academia de la Historia.

[472] Véase su lámina, donde por equivocacion se estampó el nombre de puerta de Sevilla. Sobre su dovelage hay un cartelon de mediano gusto con una inscripcion que dice: Reinando la sacra, católica y real magestad del rey D. Felipe nuestro señor, segundo de este nombre.

[473] Hoy ermita de Sta. Quiteria, en la calle de los Judíos. Véase la pág. 223.

[474] De las puertas interiores de la ciudad que dividian la Almedina y la Ajarquía señala tres Ambrosio de Morales, además de la del Sol y de la del Rincon: el portillo de la calle de la Feria, el de la Fuenseca, y la puerta del Hierro. De esta última hallamos mencion en Al-Makkarí y en Ben Adzarí bajo el mismo nombre (babu-l-hadid), y en algunos documentos posteriores á la reconquista. La puerta del Hierro se designa en la donacion de S. Fernando á los religiosos de Sto. Domingo como punto próximo al solar que se les adjudica para fundar el convento de S. Pablo; y por el mismo instrumento se comprueba que la huerta enclavada en el mismo se llamaba del Almezo y se estendia á toda la manzana. Feria. M. S. cit. fol. 32.

[475] Sin duda empezó á tener origen esta tradicion cuando estaba ya formada la falsa creencia de haber tenido la ciudad otro asiento distinto del que hoy tiene, al pié de la Sierra, en el campo vulgarmente llamado de Córdoba la vieja. Estractaremos el relato que de ella hace Al-Makkarí.

«Habitaba en la fortaleza de Almodovar un rey, que yendo un dia de caza, soltó tras una perdiz un halcon muy querido que tenia, en una floresta donde despues andando el tiempo vino á formarse la ciudad de Córdoba. La perdiz acosada se metió en un espeso zarzal: el halcon persiguiéndola se entró tambien en él; pero viendo el rey al cabo de largo rato que su pajaro favorito no parecia, mandó á sus monteros cortar aquella maleza y sacarlo. Al practicar esta operacion aparecieron los chapiteles de un grande edificio soterrado, y el rey, que era hombre entendido y emprendedor, mandó que inmediatamente se desmontára todo el terreno que le cubria. Hiciéronse las escavaciones con felicidad, y salió á luz un soberbio palacio, cuyos fundamentos se internaban en el agua sobre un sólido cimiento de argamasa puesto segun el arte de los antiguos. El rey lleno de gozo lo hizo restaurar con arreglo á su forma primitiva; residió en él largas temporadas, y poco á poco fueron al rededor levantándose otros edificios, principio y núcleo de la ciudad de Córdoba, donde permaneció la descubierta maravilla como morada perpétua de los reyes que le sucedieron.»

[476] El historiador Aben Hayyán (fol. 14) menciona además la puerta cerrada (bábo-s-suddá), en cuyo arco se pusieron en tiempo de Abde-r-rahman III garfios ó escarpias para clavar las cabezas de los criminales y reos de lesa magestad.

[477] El palacio episcopal fué reedificado á mediados del siglo XV por el obispo D. Sancho de Rojas y Sandoval, y entonces subsistió el pasadizo, y por consiguiente el muro de donde arrancaba. D. Alonso de Aguilar lo incendió pocos años despues, y vuelto á reedificar por el obispo D. Pedro Solier, dejó el pasadizo intacto. Hácia la mitad del siglo XVI lo amplió D. Leopoldo de Austria, sin demoler dicho muro. En 1622 el obispo Mardones lo prolongó con una nueva y suntuosa edificacion hácia el norte, y entonces se demolió el pasadizo árabe dejando en pié el muro primitivo.

Segun la descripcion que hace Aben Hayyán (fol. 26) puede creerse que este muro del palacio episcopal servia al alcázar árabe como de muralla por levante. «Abdalla, dice, hizo abrir una puerta nueva fuera de su alcázar y próxima á él, á la cual concurrian las gentes en dias marcados á reclamar justicia (bábo-l-ádal). Entre ella y el alcázar mandó construír una galería de piedra sillería, cubierta de cristales, la cual... comunicaba por fin con la maksurah de la gran mezquita.» Así pues, la galería ó pasadizo se componia de dos trozos, uno del alcázar á la puerta de la Justicia, y otro de esta puerta á la mezquita; y este segundo trozo sería probablemente el que se conservó hasta el siglo XVII. Y la puerta de la Justicia estaria en el muro que es hoy fachada del palacio del Obispo.

[478] Despues de arrojado al rio el cadáver de S. Eulogio, estaba por la noche de centinela en la torre de la Vela un soldado de Ecija, el cual, acosado de la sed, se pasó á beber al caz que por encima del muro llevaba el agua á los baños del Califa; y estando allí vió en el rio una gran claridad, y observó que encima del cuerpo del santo mártir, que sobrenadaba, se hallaban como suspensos en el aire unos ángeles con blancas vestiduras sacerdotales, salmodiando dulcemente. ¡Qué asunto para un artista de fé! Véase la vida y muerte de S. Eulogio escrita por Paulo Alvaro.

[479] Habiamos pensado dar al lector un estrado de las piezas referentes á la causa formada al célebre inquisidor Luzero con motivo de sus sanguinarios escesos; pero nos vemos precisados á retirarlo por su escesivo volúmen. Debidas á la bondad de los señores canónigos de Córdoba, que nos las permitieron copiar en el archivo de la santa iglesia catedral, las conservamos por si se presenta ocasion de darles cabida entre las memorias de la santa iglesia de Sevilla referentes al arzobispo que se hallaba de inquisidor general de España en tiempo de Luzero, canónigo tambien de aquella catedral. Las cartas que ambos cabildos secular y eclesiástico escribieron á reyes y personages de estos reinos y de fuera de ellos implorando su proteccion contra aquel monstruo de iniquidad, forman en el libro de las Tablas de dicho Archivo una coleccion sumamente curiosa (Caj. A). No lo son menos los documentos del Caj. I, leg.ª 7 y 10, entre los cuales hay un memorial entregado á los condes de Cabra á nombre de diferentes personas que habian los agentes de Luzero llevado presas á los alcázares para que declarasen crímenes de que jamás habian tenido ni remota idea. En un libretillo (núm. 296) se hacen al rey bajo la forma de memorial interesantes revelaciones: se le dice que el alcázar estaba hecho cueva de traiciones y maldades, y despues de referirle los atentados que en él cometian Luzero, el licenciado Lafuente, y otros, se suplica con el mayor ahinco á S. A. vaya á Córdoba á poner remedio, seguros los que esponen de que si el rey accediese á ello, habia de mandar que en el sitio del Marrubial, donde aquellos inicuos jueces habian hecho quemar á ciento siete cristianos inocentes, y luego á otros veintisiete mas, se hiciese casca de mártires.

[480] El sencillo monumento erigido por Ambrosio de Morales en el Campillo desapareció en tiempo de la invasion francesa. El P. Roa y otros escritores han publicado los versos que á los mártires de Córdoba consagró en él el famoso cronista de Felipe II, y recientemente ha publicado un periódico de Madrid la version que de los mismos ha hecho en elegantes endecasílabos castellanos nuestro buen amigo el Sr. D. Francisco de Borja Pavon, natural y vecino de aquella ciudad, anticuario tan erudito cuanto modesto.

[481] El anónimo parisiense (códice de mucha autoridad entre los arabistas) dice que cuando Moguen tomó á Córdoba no habia ya puente, y hubo que vadear el rio, ó pasarlo á nado; que As-samh ben Malek edificó el que hoy existe, con autorizacion del califa Omar, el cual le permitió emplear en su construccion los sillares de la antigua muralla; y que las brechas abiertas en esta se rellenaron con ladrillo por no haberse hallado á mano piedra á propósito (Año 101 de la Egira.).

[482] Véase la lámina Córdoba desde el castillo de la Carraola.

[483] De aquí vino el llamarse despues Campo de la verdad aquel gran llano que está al otro lado del rio al mediodia de la ciudad. Historia de Córdoba, M. S. citado de la Real Academia de la Historia, H. 12, tomo II, pág. 343 y siguientes.

[484] La de los santos mártires Fausto, Januario y Marcial, que se llamó luego de S. Pedro; la de los santos patronos de Córdoba Acisclo y Victoria, y la de Sta. Olalla extramuros de la ciudad.

[485] Asi debió suceder con las de S. Andrés, Sta. Marina, la Magdalena, S. Lorenzo, Santiago, S. Nicolás de la villa, y las demas que creemos existían antes de la reconquista.

[486] Véase la lámina Iglesia de Sta. Marina.

[487] Véase la lámina Iglesia de S. Lorenzo.

[488] Véase la nota de la pág. 349 en sus últimos párrafos.

[489] Véase en la lámina de Detalles correspondiente el Roseton de S. Miguel.

[490] Esta torre fué edificada por el obispo D. Iñigo Manrique, comenzada segun tradicion en 1494, y terminada, segun la inscripcion gótica que se puso en ella, en 1496. La tradicion refiere que el alcaide de los Donceles D. Diego Fernandez de Córdoba, cuya casa, vecina á esta iglesia, recibia molestias de los albañiles que fabricaban la torre, despues de haber inútilmente reclamado del obispo la suspension de la obra, fué una noche con sus criados y peones, y hundió todo lo que los operarios tenian fabricado. Sabedor el prelado del caso, mandó levantar la fábrica de nuevo. Cuanto trabajaban los albañiles de dia, otro tanto deshacian por la noche el caballero y su gente. Mediaron conminaciones, y viendo D. Iñigo Manrique que el alcaide no hacia caso, le declaró descomulgado. Hubo recurso al rey, luego al consejo con demanda formal interpuesta por el caballero; y durante su resolucion la obra estuvo parada. Concluido el pleito, se dió sentencia á favor del obispo, y mandó el tribunal se siguiese la fábrica de la torre, previniendo á los maestros que la dirigian que se pusiesen en las ochavas de su cuerpo principal, mirando á la casa de D. Diego Fernandez de Córdoba, dos efigies en ademan de postradas, cargando sobre sus espaldas el peso de la fábrica restante, y que debajo de ellas se grabasen estas palabras: á un lado Paciencia, y al otro Obediencia: dando á entender al caballero y á sus sucesores la paciencia que habian de prestar en sufrir las vistas de la nueva torre, y la obediencia debida á la Iglesia.

Así se cumplió. Hoy se ven las referidas figuras en aquellas dos esquinas, sirviendo como de remate á dos medias pirámides que arrancan de la base de las mismas ochavas; y para mayor efecto las pintan de colores. Véase la lámina Torre de S. Nicolás de la villa.

[491] No desagradará al lector una noticia sumaria de los principales conventos y casas de las órdenes militares establecidos en Córdoba despues de la reconquista, con espresion de los años en que se fundaron, sitios en que se establecieron, y personages que á ello cooperaron.

Fueron antes que otros atendidos los padres de Sto. Domingo, que acompañaban al ejército del santo rey confesando y auxiliando en todo á los soldados. Dióseles en 1236 solar espacioso junto á la puerta del Hierro para fundar el convento de S. Pablo.

Siguieron los padres de S. Francisco, instalados por el mismo rey, no se sabe en qué año, fuera del antiguo muro divisorio (cerca de la puerta de la Pescadería, dice Feria. M. S. citado), no lejos del convento de S. Pablo en la misma calle de la Feria.

Luego los Trinitarios Calzados (en 1236). Dióles el rey, además del solar donde permanece hoy todo desfigurado su convento, la milagrosa imágen de Nuestra Señora de los Remedios, hallada por los mozárabes cautivos.

Vienen despues: Nuestra Señora de la Merced, de época incierta, fundado extramuros en la antigua ermita de Sta. Eulalia.—S. Agustin, establecido en 1296 en los Visos; luego por bula pontificia (en 1312) entraron sus religiosos en la ciudad, y estuvieron en el alcázar hasta el 1325, en que D. Alfonso XI para ampliar su palacio los estableció donde se ve su convento ahora.—Los santos mártires Acisclo y Victoria, monasterio de benedictinos erigido sobre la basílica antigua de los mismos santos (en 1297) por el P. Fr. Rodrigo de Ordoñez, conventual del de S. Pedro de Gumiel. Contribuyó á su fábrica el rey D. Fernando IV. Desierto desde el año 1527 por haber ido faltando los Cistercienses que lo poblaban, fué cedido en 1530 á los padres Dominicos del monasterio de Scala Cœli, los cuales lo reedificaron. El rey Felipe II, noticioso de que su iglesia amenazaba ruina, dió una copiosa limosna para restaurarla. Eran sus patronos los condes de Torres-Cabrera.—S. Francisco de la Arrizafa, fundado en 1417 por D. Fernando de Rueda, extramuros de la ciudad, al pié de la Sierra, en la famosa Ruzafa de Abde-r-rahman I. Eran sus patronos los condes de Hornachuelos, señores de la Albayda.—S. Gerónimo de la Sierra, erigido por el obispo Gonzalez Deza (en 1408) en el Alcor de la Sierra, en el sitio llamado Valparaiso, en terreno cedido sobre el campo de Córdoba la vieja por D. Martin Fernandez de Córdoba, alcaide de los Donceles, y su piadosa madre D.ª Inés de Pontevedra. La ciudad de Córdoba dió á los padres Gerónimos las ruinas del castillo de Córdoba la vieja para que las aprovechasen en la edificacion de su monasterio.—S. Francisco del Monte, fundado (en 1394) en la Sierra por Martin Fernandez de Andújar, caballero de Córdoba, en una heredad suya, á peticion de D. Enrique III y la reina D.ª Catalina; y trasladado al sitio que hoy ocupa en 1413. En uno de los altares de su iglesia se veneraba la imágen de Nuestra Señora de la Esperanza hallada entre las ruinas del famoso y antiguo monasterio Armilatense. El arco de la portería de este convento estaba sostenido por dos columnas de jaspe blanco que segun tradicion fueron sacadas de las mismas ruinas.—Y siguen otros de no poca importancia fundados en los siglos XVI y XVII.

Las órdenes militares se instalaron en Córdoba en el año 1237. La de S. Juan de Jerusalen en una mezquita de la Almedina (hoy S. Juan de los Caballeros):—la de Santiago en un solar de la calle de Sta. Ana (tambien en la Almedina). No sabemos cuál sea;—la de Calatrava en las Tendillas de Calatrava (hoy casa de la Encomienda, donde se conservan preciosos fragmentos arábigos); la de Alcántara en las casas de Séneca (hoy religiosas del Corpus Christi), en la Almedina, cerca del muro divisorio. Se fundó como convento hospital y oratorio de la regla de S. Benito, y conserva hoy su memoria la cuesta de este nombre;—el Orden Teutónico en la calle de la Madera, en la Almedina. Se estinguió este órden en España en 1310, y en el año 1481 su casa convento de Córdoba estaba ya arruinada;—el Temple en la Ajarquía, en un solar contiguo á la parroquia de Santiago. De sus casas solo existen insignificantes reliquias en la calle llamada del Claustro.

Los conventos de religiosas mas notables eran: el de S. Clemente, fundado por D. Alonso X en 1261 en una huerta suya, en la Ajarquía, y luego por el mismo rey trasladado á Sevilla;—el de Sta. Clara, fundado en 1264 por el arcediano Diaz Sandoval en la iglesia de Sta. Catalina (antigua basílica de S. Jorge: luego mezquita). Para ampliacion de su fábrica compró el fundador al infante D. Luis, las casas labradas por su padre S. Fernando para Juana de Poitiers;—el de Sta. María de las Dueñas, del Cister, fundado en 1372 por el señor de Luque D. Egas Venegas en sus casas propias (colacion del Salvador);—el de Sta. Cruz, fundado en 1465 en las casas de su morada (colacion de S. Pedro) por el P. Fr. Francisco Miranda en nombre de los señores Pedro Gutierrez de los Rios, veinticuatro de Córdoba, y Teresa Zurita, su mujer; quienes ofrecieron costearlo para que Dios sacase con vida al Pedro Gutierrez de las justas que iba á mantener con Suero de Quiñones sobre el paso de los peregrinos por el puente de Orbigo;—el de Sta. Marta, edificado en 1468 por el P. Fr. Pedro de Córdoba en las casas de Cárdenas (donde aun subsiste).

[492] Véanse las láminas Hospital de Espósitos, y Detalles de la fachada del mismo.

[493] Véase la lámina Capilla del hospital del cardenal.

[494] Cada uno en una calle de las que llevan el nombre del Baño (alta y baja).

[495] Véase acerca de esta diferencia la pág. 299.

[496] Véase la lámina que la representa.

[497] En la calle de Carniceros, casa núm. 7, en la de las Cabezas, núm. 16, en la de la Pierna, en la plaza de S. Andrés: ejemplos que recordamos en este momento; lo que equivale á citar uno entre mil.

[498] Afranc, propiamente Francia; pero los árabes aplicaban este nombre á todos los dominios cristianos que caían al norte de sus provincias en España; así como llamaban Andalús á toda la tierra que ellos aquí enseñoreaban.

[499] Ya hemos tenido alguna vez ocasion de advertir que la prohibicion alcoránica de aplicar las artes plásticas á la representacion de seres animados se infringia muy á menudo en esta época tan brillante del califado.

En la descripcion de Azzahra que emprendemos, seguimos fielmente las noticias que hemos recogido en las historias compiladas por Al-Makkarí, en la Historia de Almagreb de Ben Adzarí, y en estractos de otras que bondadosamente nos ha comunicado el Sr. Gayangos. De todas ellas hemos formado un conjunto, descartando las especies en que hay contradicciones. Parecerá exagerado este relato, pero si se observa que otras descripciones de aquellas historias (las de la mezquita de Córdoba, por ejemplo) han resultado exactas, tal vez el lector depondrá su incredulidad para admirar solamente tanta grandeza.

[500] Las rentas del estado cordobés eran: 5,480,000 dinares de oro de las contribuciones de las provincias; 765,000 de los zocos y mercados de Córdoba; el quinto del botin cogido al enemigo, y las capitaciones impuestas á los mozárabes y judíos, que duplicaban aquellos ingresos.

[501] Véase en Al-Makkarí la curiosa descripcion de la que envió el emperador Constantino á Abde-r-rahman III.

[502] Ben Hayyán dice que An-nasír recibió al enviado de Constantino en el pabellon embovedado, lo cual induce á creer que no habia mas que un pabellon con bóveda, que probablemente seria el central, llamado tambien pabellon circular, pabellon dorado, y salon de los califas.

[503] La carta de Constantino al califa (dice Ben Hayyán) venia escrita en vitela azul celeste con caractéres de oro: dentro de ella, en caractéres de plata, una lista de los presentes que enviaba el emperador. La carta tenia un sello de oro de cuatro mitcales de peso, con la imágen del Mesías en un lado, y los retratos de Constantino y su hijo en el otro. Estaba metida en una bolsa de tejido de plata, y esta en una caja de oro con el retrato de Constantino admirablemente esmaltado: todo encerrado en un estuche con funda de seda y oro.

[504] Este cementerio estaba en el recinto de los alcázares de Córdoba.

[505] No nos ha sido posible rastrear el verdadero nombre de este obispo, pues entre los prelados toledanos tampoco hallamos ninguno con el nombre esencialmente arábigo de Kasím. Otro tanto podemos decir del obispo que trajo de Asia las dos célebres fuentes del palacio que vamos describiendo, á quien los historiadores árabes llaman Rabí. Véase la nota 3 de la pág. 173.

[506] El hagib de quien hablamos no era el primer ministro del meznar ó consejo del califa, sino simplemente uno de sus camareros. Este cargo se alteró bajo los últimos Umeyas, cada uno de los cuales tenia un gran número de hagibes.

[507] Durante el reinado de su hijo Al-hakem (del 961 al 976 de J. C.) se hicieron en Medina-Azzahra otras muchas construcciones; pero en los alcázares y jardines no habia nada que hacer.

[508] Azzahra viene de la palabra árabe zahra, que significa flor.

[509] D. Alfonso VI, conquistador de Toledo.

[510] Dicen los historiadores árabes que la peticion del rey D. Alfonso fué sugerida por los obispos y eclesiásticos que le acompañaban, por considerar que el alumbramiento de la reina sería mas meritorio á los ojos de Dios en aquel lugar, que habia sido antiguamente basílica cristiana.

[511] En el referido repartimiento el rey retuvo para sí el campo de Córdoba la vieja, y en una donacion hecha por el mismo monarca á 20 de febrero de la Era 1279 (A-D. 1241), que cita Gomez Bravo (t. 1.º, pág. 4), se dice: contra Cordubam la vieja.

[512] El P. Fr. Vasco.

[513] Ambrosio de Morales.

[514] El licenciado D. Pedro Diaz de Rivas.

[515] Estuvo el ciervo en el convento de S. Gerónimo de la Sierra hasta hace pocos años. Ahora se halla en el Museo provincial. Es de alto poco mas de un pié: el carácter de su forma es puramente ornamental, segun la tradicion del arte antiguo, como el de los colosales mitos de Nínive, como el de los toros, leones y monstruos fantásticos de Persépolis, como el de los famosos leones de la Alhambra. Tiene la cabeza algo levantada y la boca abierta como en disposicion de arrojar por ella un caño de agua. La cierva, de la misma materia y tamaño, fué llevada al monasterio de Nuestra Señora de Guadalupe. No sabemos si se conserva.

[516] Ambrosio de Morales en sus Antigüedades se esforzó vanamente en persuadir que Córdoba la vieja era la Colonia patricia fundada por Marcelo. No se hizo cargo de los fragmentos de arquitectura decorativa, puramente neo-griega, por allí diseminados, ni conoció el estilo arábigo del ciervo de bronce que le estuvo una porcion de años vertiendo el agua en la pila del claustro de S. Gerónimo, cuando él hacia vida de monge.

[517] El citado D. Pedro Diaz de Rivas. Véase el Discurso primero de sus Antigüedades de Córdoba. Siguieron su opinion el P. Roa (De Cordubæ in Hispania Betica principatu), Gomez Bravo (obra citada), y otros.

[518] D. José Antonio Conde en su Historia de la dominacion de los árabes, etc.

[519] Dice que se hallaba á cinco millas de Córdoba, Guadalquivir abajo.

[520] Es esta dehesa propiedad de los marqueses de Guadalcázar, no sabemos desde cuándo.

[521] Nuestro citado amigo D. Pascual de Gayangos, que tradujo del árabe en correcto idioma inglés la historia de Al-Makkarí para la Sociedad asiática de Lóndres. Salió á luz este interesante trabajo en 1840.

[522] Véase la lámina Fragmentos del palacio de Medina-Azzahra.

[523] No habiendo podido proporcionarme ninguno de los capiteles de Medina-Azzahra que yacen en la huerta del monasterio de S. Gerónimo, no me es dado ofrecer al lector mas que los dibujos de los otros fragmentos que en mi poder conservo. Sin embargo, por el capitel árabe-bizantino que se publica en la correspondiente lámina de detalles juntamente con otro de estilo africano sacado de la capilla de Villaviciosa, se formará una idea exacta de los otros que no ha sido posible ni dibujar siquiera. El espresado capitel árabe-bizantino es obra mandada ejecutar por el mismo califa que fundó los alcázares de Azzahra, y se conserva hoy en Córdoba en el patio de la casa llamada de las Encomiendas, donde lo ha dibujado para remitírnoslo nuestro bondadoso amigo D. José Saló, profesor de pintura y vecino de aquella ciudad.

Las hojas que le adornan son de acanto silvestre, como las que empleó Calimaco al introducir entre los órdenes griegos el bello capitel corintio; y su disposicion en todo conforme con la que se observaba en los mejores tiempos del arte, así en Grecia como en Roma, en los siglos de Pericles y de Augusto. Fáltanle solamente los caulículos que se adhieren á las volutas por la parte inferior; pero estan felizmente sustituidos con esbeltas espadañas que ciñéndose á la voluta terminan en el ábaco del capitel. La inscripcion esculpida en este, traducida por el Sr. Gayangos, dice así: «En el nombre de Alá: la bendicion de parte de Alá sea sobre el príncipe de los creyentes (Alargue Alá su permanencia en la tierra) Abde-r-rahman ben Mohammad. Esto es de lo que mandó labrar por manos de Xenif su page. Hizo esto Fatah el marmolista.» La cruz esculpida en sus volutas pudiera ser quizás obra de cristianos posterior á la reconquista.

Al considerar estos preciosos indicios de la gran pureza á que llegó el arte bajo los reinados de Abde-r-rahman III y de su hijo Al-hakem II, casi se atreve uno á creer que los árabes-españoles sintieron mejor que los bizantinos la belleza del arte helénico, y que muchos elementos de la arquitectura griega de los buenos tiempos revivieron en el arte andaluz de los siglos IX y X hallándose casi proscritos por la arquitectura de Bizancio.

Nótese en el capitel africano del tiempo de Almanzor cuán brevemente pasó la ornamentacion del garbo á los primores, del brio á la timidez, del franco y libre perfilar al prolijo y nímio afiligranado, en cuyo minucioso ejercicio se perdió lastimosamente en las épocas sucesivas aquel gusto varonil que prometia al Occidente un renacimiento dichoso del arte antiguo seis siglos antes de venir al mundo los grandes genios del tiempo de Leon X.

[524] Véanse las descripciones que en sus citadas obras hacen de los vestigios de Córdoba la vieja. Estas descripciones pueden hoy servir de utilísima guia para una esploracion detenida de aquel campo, pues en ellas se indican con gran minuciosidad los parages que ocupaban algunos curiosos objetos, torres, cisternas, etc., que hoy ya no se ven, y que sin duda ha cubierto la marea de la llanura.

[525] Siendo esta superior á mis medios como particular, tuve el honor de escitar al gobierno en diciembre de 1853 á que hiciese una esploracion arqueológica en la referida dehesa de Córdoba la vieja, reservándose el emprender escavaciones en regla si aquel prévio reconocimiento prometia algun resultado útil á la historia del arte. No puedo quejarme de haber sido recibido con indiferencia; al contrario, mis indicaciones, el relato fiel de lo que en aquel campo habia yo visto, y la mera inspeccion de los fragmentos por mí recogidos, despertaron en el Sr. D. Agustin Esteban Collantes, á la sazon ministro de Fomento, el mas plausible entusiasmo: nombró inmediatamente en Córdoba una comision que entendiese en los trabajos de esploracion, y facilitó el pequeño fondo que se creyó suficiente para llevarlos á cabo. Confiósenos al Sr. Gayangos y á mí el cargo de dirigir á los comisionados de Córdoba, los cuales por su parte animados del mejor celo dieron desde luego señales de actividad. Los Sres. D. Ramon Aguilar Fernandez de Córdoba, D. Francisco de Borja Pavon y D. José Saló, fueron los comisionados: hicieron de su parte cuanto era de apetecer para el logro del objeto principal de las instrucciones que les fueron remitidas, que era cerciorarse de si habia ó nó edificacion soterrada en aquella planicie ó plaza elevada rectangular de que dejo hecho mérito. Por causas imprevistas no pudieron comenzar los trabajos hasta mediados de mayo de 1854, pero en cuanto los principiaron aparecieron al abrir una zanja en la planicie referida vestigios de muros y un enlosado con una canal que forma un ángulo recto, dispuesta al parecer para conducir aguas. Desgraciadamente el Sr. marqués de Guadalcázar, dueño de la dehesa, al otorgar su consentimiento para dicha esploracion, habia impuesto á los comisionados de Córdoba dos condiciones que ignorábamos en Madrid, y que imposibilitaban la continuacion de la tarea comenzada, á saber: que la escavacion habia de suspenderse á fin de mayo, y que no habia de poderse cortar ni quemar árbol, arbusto ni mata de ninguna especie. Cabalmente el desmonte de la gran mata silvestre que obstruye el hueco ó caverna del declive meridional de la plaza alta, era una de las primeras instrucciones que habiamos dirigido á la comision de Córdoba; y por otra parte el vaciado de la escavacion practicada no podia ampliarse útilmente en siete dias que faltaban hasta fin de mayo no cortando matas ó arbustos. Es pues escusado añadir que la esploracion quedó desde entonces paralizada.

[526] El Sr. D. José Caveda en su escelente Ensayo histórico, ya otra vez citado, se lamenta con sentidas frases de que no se conserve siquiera un solo vestigio que nos indique hoy el lugar que ocuparon los palacios de Azzahra.

[527] Ambrosio de Morales deduce la gran fertilidad de la Campiña de la riqueza que en su tiempo gozaban sus lugares, citando algunas aldeas, como Santaella, la Rambla y otras, que tenian hasta 2000 y 3000 vecinos, sin otra industria que la labranza y la ganadería.

[528] En la silva del nacimiento de Lucano.

[529] Llamábase municipio Mellariense: dió una fuente nombre al lugar, y á ambos la grande abundancia de miel que se recoge por allí. Debió ser de bastante importancia, puesto que erigia estátuas á los varones beneméritos, como lo prueba la inscripcion que se conserva en la puerta de su fortaleza, hoy iglesia parroquial, y que publicó en sus Antigüedades Ambrosio de Morales.

[530] El castillo de Belalcázar es propiedad del duque de Osuna por la incorporacion del condado en la casa de Benavente.

El hecho que acabamos de referir está sacado de la Historia m. s. de la ciudad de Córdoba atribuída á D. Andrés Morales que posee la Real Academia de la Historia, Tomo II. pág. 1474 y siguientes.

[531] Otro Nuño de Lara (D. Francisco), capitan retirado, prestó tambien grandes servicios á Montoro en la guerra de la Independencia. Con los tiradores de la villa causó daños considerables al ejército de Dupont, y lejos de intimidarse con la derrota de las Ventas de Alcolea, le tuvo en contínua alarma.

[532] Así constaba de una lápida de alabastro que estaba en el mismo castillo (segun afirma Garibay en sus Genealogías m. ss., tomo 9.º, lib. 54, fol. 259), que decia lo siguiente: En el nombre de Dios. Amen. Esta obra mandó facer Garci-Mendez de Sotomayor, señor de Jodar: e fízole maestre Mohammad; e fué obrero Ruy Cil, e fízose en la Era de 1363. Christus vincit: Christus regnat: Christus imperat.

[533] El erudito Llaguno y Amírola dejó unos curiosos apuntes sobre la navegacion del Guadalquivir y del Genil, estractos de las noticias que traen sobre la misma materia Zúñiga, Roa y Ambrosio de Morales. Resulta de este estudio que la navegacion desde Sevilla á Córdoba, y vice-versa, se mantenia espedita en tiempo de S. Fernando; que despues del reinado de D. Alonso el Sabio, atropellando intereses particulares al público, empezaron á entorpecer aquella libre navegacion con azudas para molinos, que, aunque dejaban canales para el paso de los barcos, causaban grandes molestias á los traficantes y barqueros; que reinando D. Pedro el Cruel se quejaron los barqueros de Sevilla del daño que les hacian los dueños de aquellos molinos cerrando las canales por donde pasaban antes los barcos, y el rey dió auto poniendo remedio, en cuya virtud el alcalde mayor de Córdoba, para que constase siempre en adelante el ancho que habian de tener las canales de las presas, tomó la medida en el arco de las bendiciones de la catedral, y la dió por norma para la anchura referida, señalando de fondo dos varas; que la navegacion se abandonó despues por los robos que con sus entradas hacian en los pasajeros los moros de Granada; que por los años de 1524, habiendo vuelto de Paris el maestro Fernan Perez de Oliva, se agitó nuevamente este asunto con mucho calor en el cabildo de Córdoba, en una de cuyas sesiones propuso aquel sabio economista, que dejando el antiguo y mezquino modo de navegar con barquillos traidos á remo, se estableciese la navegacion á la sírga, tan fácil y productiva, como se practicaba en muchos rios de Italia, Francia y Flandes con barcas de suelo llano que cargaban mas de 200 carros de peso y calaban menos de una braza de agua; finalmente, que en 1561 se volvió á tratar este importante negocio, hizo el rey Felipe II reconocer el rio por personas entendidas, é informado de que la navegacion del Guadalquivir ofrecia dificultades nada insuperables, resolvió S. M. fuese restablecida en cuanto se acabasen las obras para dejar corriente la del Tajo, donde por la singular industria y grande ánimo de Juan Bautista Antonelli se estaban venciendo obstáculos mucho mayores. Sin embargo de tan buenas esperanzas nada llegó á hacerse entonces: luego, en 1629, volvió á resucitar el proyecto, y nuevamente quedó abandonado.

[534] Existe en las casas de Ayuntamiento. Fué hallada entre las ruinas de la ermita de Sta. Sofía y tiene esta inscripcion: Sacrata domus Augusto.

[535] Véase la página 244, nota 1.

[536] Los condes de Alcaudete, cuyo estado fundó el adelantado D. Alonso Fernandez de Córdoba, hijo de D. Martin Alonso.

[537] Fueron sus primeros señores los Aguilares, por donacion que hizo el rey S. Fernando á D. Gonzalo Ibañez, que le mudó el nombre de Poley por el de Aguilar.

[538] Cuando los últimos Aguilares señores de la villa murieron en Algeciras sin dejar descendencia masculina, el rey D. Alonso XI incorporó el estado de Aguilar á la corona, y á los descendientes por hembra D. Bernardo vizconde de Cabrera y D. Alonso Fernandez Coronel, los contentó con la Puebla de Alcocer y Capilla. D. Alonso Coronel no obstante obtuvo del rey D. Pedro, por mediacion de D. Juan Alfonso de Alburquerque, el estado de Aguilar reteniendo á Capilla.

[539] Despues de muerto D. Alonso Coronel, su estado fué incorporado á la corona; y muerto el rey D. Pedro, D. Enrique II dió la villa de Aguilar á D. Gonzalo Fernandez de Córdoba, de quien se derivó á sus descendientes los marqueses de Priego.

[540] En la parte de esta Sierra colindante con las de Priego, Luque y Carcabuey, se crian muchos vegetales preciosos para la medicina: hay tambien canteras de jaspe rojo de muchas especies, mármoles, piedra blanca, alabastro y piedra comun, que beneficiaban los árabes.

[541] De la famosa Nava de Cabra dice el moro Rasis estas palabras en su historia: «Tiene Cabra en su término un monte que llaman Selva, y es tan alto que contiende con las nubes. En aquel monte hay muchas flores y de muy buenos olores, y además yerbas de todas virtudes.»

[542] La Sima de Cabra, que tanto llamó la atencion de Cervantes, se abre á un lado de aquella sierra en el llano que hay á la espalda del tajo que llaman de Camarena. Las generaciones unas á otras han ido desde una época muy remota legándose maravillosas tradiciones y consejas que la hacen objeto de pavor entre la gente sencilla. Rasis decia que era una de las puertas de la caverna de los vientos. En el año 1841 se practicó en ella un reconocimiento por un profesor de ciencias y otras personas entendidas: resultó haber á la distancia de unas 140 varas de su boca una esplanada bastante capaz, ensanchando desde la entrada sus paredes sin guardar regularidad y en diversos tramos. Desde su mitad ó algo más ensancha desproporcionadamente, y en su fondo tienen las paredes musgo y humedad. Solo se encontraron ranas en lo profundo de la Sima.

No sin fundamento la mira con espanto el vulgo, porque el puntilloso honor andaluz la escogió algunas veces para sepultura de los infelices autores de sus mancillas. Cuéntase de un título cordobés que sacrificando á la reparacion de su honor ofendido los vínculos mas tiernos de la naturaleza, precipitó en ella á una hija suya que vivia amancebada con un jóven de oscuro linage. Sirviéronle en este acto de cómplices dos hermanos de la víctima: fingieron una huelga campestre diciendo que iban á ver á un pariente muy ilustre, aderezóse todo lo necesario, y la pobre señora creyéndolo se compuso lo mejor que pudo y con sus mas costosos aderezos. Metida en una litera con muy honrado acompañamiento, fueron caminando por sendas estraviadas, y llegado que hubieron cerca de la Sima de Cabra se apearon todos. Despues de merendar, mientras merendaban los criados, apartáronse el padre, la hija y sus dos hermanos, fingiendo ellos ir divertidos con varias razones, y al llegar á la Sima dió uno de ellos un empellon á la desgraciada mujer y la echó dentro. Hecho esto se volvieron, y emprendieron el viaje de retorno para su tierra, muy satisfechos de haber dejado sepultada en la Sima la causa de su deshonra. Libro de cosas notables que han sucedido en la ciudad de Córdoba, M. S. de la Real Academia de la Historia, caso 44, fol. 103.

[543] El nombre romano de Egabrum que llevó, parece derivarse del griego Aigagros, que se interpreta Cabra montés ó silvestre.

[544] Tiene en su clave el arco principal esta inscripcion: Diego de Bernuí, regidor de Burgos, pobló á Benamexí, y edificó esta puente á su costa, año 1556.

[545] Aunque el Sr. Pí y Margall, que comenzó este tomo escribiendo sus primeras 64 páginas, se habia propuesto incluir en él las tres provincias de Córdoba, Sevilla y Cádiz, al emprender nosotros su continuacion creimos tan grande la importancia de la historia monumental de CÓRDOBA, que resolvimos desde luego consagrarlo á ella esclusivamente. El lector juzgará ahora en vista del desempeño de nuestra tarea, si hemos hecho bien en estendernos tanto en consideraciones sobre las instituciones islamitas y sobre la historia general de la arquitectura, que nos parecieron indispensables para apreciar debidamente el espíritu y significacion de la grande obra que simboliza todas las glorias del Califado. Si aplaude nuestra determinacion, facilmente nos perdonará que no le hayamos aun conducido á la márgen opuesta del Genil; si la desaprueba, sírvanos de disculpa la buena intencion con que hemos procedido.

barra decorativa







End of the Project Gutenberg EBook of Recuerdos y bellezas de España; Córdoba, by 
Pedro D. Madrazo

*** END OF THIS PROJECT GUTENBERG EBOOK RECUERDOS Y BELLEZAS DE ESPA¤A ***

***** This file should be named 37590-h.htm or 37590-h.zip *****
This and all associated files of various formats will be found in:
        http://www.gutenberg.org/3/7/5/9/37590/

Produced by Chuck Greif and the Online Distributed
Proofreading Team at http://www.pgdp.net (This book was
produced from scanned images of public domain material
from the Google Print project.)


Updated editions will replace the previous one--the old editions
will be renamed.

Creating the works from public domain print editions means that no
one owns a United States copyright in these works, so the Foundation
(and you!) can copy and distribute it in the United States without
permission and without paying copyright royalties.  Special rules,
set forth in the General Terms of Use part of this license, apply to
copying and distributing Project Gutenberg-tm electronic works to
protect the PROJECT GUTENBERG-tm concept and trademark.  Project
Gutenberg is a registered trademark, and may not be used if you
charge for the eBooks, unless you receive specific permission.  If you
do not charge anything for copies of this eBook, complying with the
rules is very easy.  You may use this eBook for nearly any purpose
such as creation of derivative works, reports, performances and
research.  They may be modified and printed and given away--you may do
practically ANYTHING with public domain eBooks.  Redistribution is
subject to the trademark license, especially commercial
redistribution.



*** START: FULL LICENSE ***

THE FULL PROJECT GUTENBERG LICENSE
PLEASE READ THIS BEFORE YOU DISTRIBUTE OR USE THIS WORK

To protect the Project Gutenberg-tm mission of promoting the free
distribution of electronic works, by using or distributing this work
(or any other work associated in any way with the phrase "Project
Gutenberg"), you agree to comply with all the terms of the Full Project
Gutenberg-tm License (available with this file or online at
http://gutenberg.org/license).


Section 1.  General Terms of Use and Redistributing Project Gutenberg-tm
electronic works

1.A.  By reading or using any part of this Project Gutenberg-tm
electronic work, you indicate that you have read, understand, agree to
and accept all the terms of this license and intellectual property
(trademark/copyright) agreement.  If you do not agree to abide by all
the terms of this agreement, you must cease using and return or destroy
all copies of Project Gutenberg-tm electronic works in your possession.
If you paid a fee for obtaining a copy of or access to a Project
Gutenberg-tm electronic work and you do not agree to be bound by the
terms of this agreement, you may obtain a refund from the person or
entity to whom you paid the fee as set forth in paragraph 1.E.8.

1.B.  "Project Gutenberg" is a registered trademark.  It may only be
used on or associated in any way with an electronic work by people who
agree to be bound by the terms of this agreement.  There are a few
things that you can do with most Project Gutenberg-tm electronic works
even without complying with the full terms of this agreement.  See
paragraph 1.C below.  There are a lot of things you can do with Project
Gutenberg-tm electronic works if you follow the terms of this agreement
and help preserve free future access to Project Gutenberg-tm electronic
works.  See paragraph 1.E below.

1.C.  The Project Gutenberg Literary Archive Foundation ("the Foundation"
or PGLAF), owns a compilation copyright in the collection of Project
Gutenberg-tm electronic works.  Nearly all the individual works in the
collection are in the public domain in the United States.  If an
individual work is in the public domain in the United States and you are
located in the United States, we do not claim a right to prevent you from
copying, distributing, performing, displaying or creating derivative
works based on the work as long as all references to Project Gutenberg
are removed.  Of course, we hope that you will support the Project
Gutenberg-tm mission of promoting free access to electronic works by
freely sharing Project Gutenberg-tm works in compliance with the terms of
this agreement for keeping the Project Gutenberg-tm name associated with
the work.  You can easily comply with the terms of this agreement by
keeping this work in the same format with its attached full Project
Gutenberg-tm License when you share it without charge with others.

1.D.  The copyright laws of the place where you are located also govern
what you can do with this work.  Copyright laws in most countries are in
a constant state of change.  If you are outside the United States, check
the laws of your country in addition to the terms of this agreement
before downloading, copying, displaying, performing, distributing or
creating derivative works based on this work or any other Project
Gutenberg-tm work.  The Foundation makes no representations concerning
the copyright status of any work in any country outside the United
States.

1.E.  Unless you have removed all references to Project Gutenberg:

1.E.1.  The following sentence, with active links to, or other immediate
access to, the full Project Gutenberg-tm License must appear prominently
whenever any copy of a Project Gutenberg-tm work (any work on which the
phrase "Project Gutenberg" appears, or with which the phrase "Project
Gutenberg" is associated) is accessed, displayed, performed, viewed,
copied or distributed:

This eBook is for the use of anyone anywhere at no cost and with
almost no restrictions whatsoever.  You may copy it, give it away or
re-use it under the terms of the Project Gutenberg License included
with this eBook or online at www.gutenberg.org

1.E.2.  If an individual Project Gutenberg-tm electronic work is derived
from the public domain (does not contain a notice indicating that it is
posted with permission of the copyright holder), the work can be copied
and distributed to anyone in the United States without paying any fees
or charges.  If you are redistributing or providing access to a work
with the phrase "Project Gutenberg" associated with or appearing on the
work, you must comply either with the requirements of paragraphs 1.E.1
through 1.E.7 or obtain permission for the use of the work and the
Project Gutenberg-tm trademark as set forth in paragraphs 1.E.8 or
1.E.9.

1.E.3.  If an individual Project Gutenberg-tm electronic work is posted
with the permission of the copyright holder, your use and distribution
must comply with both paragraphs 1.E.1 through 1.E.7 and any additional
terms imposed by the copyright holder.  Additional terms will be linked
to the Project Gutenberg-tm License for all works posted with the
permission of the copyright holder found at the beginning of this work.

1.E.4.  Do not unlink or detach or remove the full Project Gutenberg-tm
License terms from this work, or any files containing a part of this
work or any other work associated with Project Gutenberg-tm.

1.E.5.  Do not copy, display, perform, distribute or redistribute this
electronic work, or any part of this electronic work, without
prominently displaying the sentence set forth in paragraph 1.E.1 with
active links or immediate access to the full terms of the Project
Gutenberg-tm License.

1.E.6.  You may convert to and distribute this work in any binary,
compressed, marked up, nonproprietary or proprietary form, including any
word processing or hypertext form.  However, if you provide access to or
distribute copies of a Project Gutenberg-tm work in a format other than
"Plain Vanilla ASCII" or other format used in the official version
posted on the official Project Gutenberg-tm web site (www.gutenberg.org),
you must, at no additional cost, fee or expense to the user, provide a
copy, a means of exporting a copy, or a means of obtaining a copy upon
request, of the work in its original "Plain Vanilla ASCII" or other
form.  Any alternate format must include the full Project Gutenberg-tm
License as specified in paragraph 1.E.1.

1.E.7.  Do not charge a fee for access to, viewing, displaying,
performing, copying or distributing any Project Gutenberg-tm works
unless you comply with paragraph 1.E.8 or 1.E.9.

1.E.8.  You may charge a reasonable fee for copies of or providing
access to or distributing Project Gutenberg-tm electronic works provided
that

- You pay a royalty fee of 20% of the gross profits you derive from
     the use of Project Gutenberg-tm works calculated using the method
     you already use to calculate your applicable taxes.  The fee is
     owed to the owner of the Project Gutenberg-tm trademark, but he
     has agreed to donate royalties under this paragraph to the
     Project Gutenberg Literary Archive Foundation.  Royalty payments
     must be paid within 60 days following each date on which you
     prepare (or are legally required to prepare) your periodic tax
     returns.  Royalty payments should be clearly marked as such and
     sent to the Project Gutenberg Literary Archive Foundation at the
     address specified in Section 4, "Information about donations to
     the Project Gutenberg Literary Archive Foundation."

- You provide a full refund of any money paid by a user who notifies
     you in writing (or by e-mail) within 30 days of receipt that s/he
     does not agree to the terms of the full Project Gutenberg-tm
     License.  You must require such a user to return or
     destroy all copies of the works possessed in a physical medium
     and discontinue all use of and all access to other copies of
     Project Gutenberg-tm works.

- You provide, in accordance with paragraph 1.F.3, a full refund of any
     money paid for a work or a replacement copy, if a defect in the
     electronic work is discovered and reported to you within 90 days
     of receipt of the work.

- You comply with all other terms of this agreement for free
     distribution of Project Gutenberg-tm works.

1.E.9.  If you wish to charge a fee or distribute a Project Gutenberg-tm
electronic work or group of works on different terms than are set
forth in this agreement, you must obtain permission in writing from
both the Project Gutenberg Literary Archive Foundation and Michael
Hart, the owner of the Project Gutenberg-tm trademark.  Contact the
Foundation as set forth in Section 3 below.

1.F.

1.F.1.  Project Gutenberg volunteers and employees expend considerable
effort to identify, do copyright research on, transcribe and proofread
public domain works in creating the Project Gutenberg-tm
collection.  Despite these efforts, Project Gutenberg-tm electronic
works, and the medium on which they may be stored, may contain
"Defects," such as, but not limited to, incomplete, inaccurate or
corrupt data, transcription errors, a copyright or other intellectual
property infringement, a defective or damaged disk or other medium, a
computer virus, or computer codes that damage or cannot be read by
your equipment.

1.F.2.  LIMITED WARRANTY, DISCLAIMER OF DAMAGES - Except for the "Right
of Replacement or Refund" described in paragraph 1.F.3, the Project
Gutenberg Literary Archive Foundation, the owner of the Project
Gutenberg-tm trademark, and any other party distributing a Project
Gutenberg-tm electronic work under this agreement, disclaim all
liability to you for damages, costs and expenses, including legal
fees.  YOU AGREE THAT YOU HAVE NO REMEDIES FOR NEGLIGENCE, STRICT
LIABILITY, BREACH OF WARRANTY OR BREACH OF CONTRACT EXCEPT THOSE
PROVIDED IN PARAGRAPH F3.  YOU AGREE THAT THE FOUNDATION, THE
TRADEMARK OWNER, AND ANY DISTRIBUTOR UNDER THIS AGREEMENT WILL NOT BE
LIABLE TO YOU FOR ACTUAL, DIRECT, INDIRECT, CONSEQUENTIAL, PUNITIVE OR
INCIDENTAL DAMAGES EVEN IF YOU GIVE NOTICE OF THE POSSIBILITY OF SUCH
DAMAGE.

1.F.3.  LIMITED RIGHT OF REPLACEMENT OR REFUND - If you discover a
defect in this electronic work within 90 days of receiving it, you can
receive a refund of the money (if any) you paid for it by sending a
written explanation to the person you received the work from.  If you
received the work on a physical medium, you must return the medium with
your written explanation.  The person or entity that provided you with
the defective work may elect to provide a replacement copy in lieu of a
refund.  If you received the work electronically, the person or entity
providing it to you may choose to give you a second opportunity to
receive the work electronically in lieu of a refund.  If the second copy
is also defective, you may demand a refund in writing without further
opportunities to fix the problem.

1.F.4.  Except for the limited right of replacement or refund set forth
in paragraph 1.F.3, this work is provided to you 'AS-IS' WITH NO OTHER
WARRANTIES OF ANY KIND, EXPRESS OR IMPLIED, INCLUDING BUT NOT LIMITED TO
WARRANTIES OF MERCHANTIBILITY OR FITNESS FOR ANY PURPOSE.

1.F.5.  Some states do not allow disclaimers of certain implied
warranties or the exclusion or limitation of certain types of damages.
If any disclaimer or limitation set forth in this agreement violates the
law of the state applicable to this agreement, the agreement shall be
interpreted to make the maximum disclaimer or limitation permitted by
the applicable state law.  The invalidity or unenforceability of any
provision of this agreement shall not void the remaining provisions.

1.F.6.  INDEMNITY - You agree to indemnify and hold the Foundation, the
trademark owner, any agent or employee of the Foundation, anyone
providing copies of Project Gutenberg-tm electronic works in accordance
with this agreement, and any volunteers associated with the production,
promotion and distribution of Project Gutenberg-tm electronic works,
harmless from all liability, costs and expenses, including legal fees,
that arise directly or indirectly from any of the following which you do
or cause to occur: (a) distribution of this or any Project Gutenberg-tm
work, (b) alteration, modification, or additions or deletions to any
Project Gutenberg-tm work, and (c) any Defect you cause.


Section  2.  Information about the Mission of Project Gutenberg-tm

Project Gutenberg-tm is synonymous with the free distribution of
electronic works in formats readable by the widest variety of computers
including obsolete, old, middle-aged and new computers.  It exists
because of the efforts of hundreds of volunteers and donations from
people in all walks of life.

Volunteers and financial support to provide volunteers with the
assistance they need, are critical to reaching Project Gutenberg-tm's
goals and ensuring that the Project Gutenberg-tm collection will
remain freely available for generations to come.  In 2001, the Project
Gutenberg Literary Archive Foundation was created to provide a secure
and permanent future for Project Gutenberg-tm and future generations.
To learn more about the Project Gutenberg Literary Archive Foundation
and how your efforts and donations can help, see Sections 3 and 4
and the Foundation web page at http://www.pglaf.org.


Section 3.  Information about the Project Gutenberg Literary Archive
Foundation

The Project Gutenberg Literary Archive Foundation is a non profit
501(c)(3) educational corporation organized under the laws of the
state of Mississippi and granted tax exempt status by the Internal
Revenue Service.  The Foundation's EIN or federal tax identification
number is 64-6221541.  Its 501(c)(3) letter is posted at
http://pglaf.org/fundraising.  Contributions to the Project Gutenberg
Literary Archive Foundation are tax deductible to the full extent
permitted by U.S. federal laws and your state's laws.

The Foundation's principal office is located at 4557 Melan Dr. S.
Fairbanks, AK, 99712., but its volunteers and employees are scattered
throughout numerous locations.  Its business office is located at
809 North 1500 West, Salt Lake City, UT 84116, (801) 596-1887, email
business@pglaf.org.  Email contact links and up to date contact
information can be found at the Foundation's web site and official
page at http://pglaf.org

For additional contact information:
     Dr. Gregory B. Newby
     Chief Executive and Director
     gbnewby@pglaf.org


Section 4.  Information about Donations to the Project Gutenberg
Literary Archive Foundation

Project Gutenberg-tm depends upon and cannot survive without wide
spread public support and donations to carry out its mission of
increasing the number of public domain and licensed works that can be
freely distributed in machine readable form accessible by the widest
array of equipment including outdated equipment.  Many small donations
($1 to $5,000) are particularly important to maintaining tax exempt
status with the IRS.

The Foundation is committed to complying with the laws regulating
charities and charitable donations in all 50 states of the United
States.  Compliance requirements are not uniform and it takes a
considerable effort, much paperwork and many fees to meet and keep up
with these requirements.  We do not solicit donations in locations
where we have not received written confirmation of compliance.  To
SEND DONATIONS or determine the status of compliance for any
particular state visit http://pglaf.org

While we cannot and do not solicit contributions from states where we
have not met the solicitation requirements, we know of no prohibition
against accepting unsolicited donations from donors in such states who
approach us with offers to donate.

International donations are gratefully accepted, but we cannot make
any statements concerning tax treatment of donations received from
outside the United States.  U.S. laws alone swamp our small staff.

Please check the Project Gutenberg Web pages for current donation
methods and addresses.  Donations are accepted in a number of other
ways including checks, online payments and credit card donations.
To donate, please visit: http://pglaf.org/donate


Section 5.  General Information About Project Gutenberg-tm electronic
works.

Professor Michael S. Hart is the originator of the Project Gutenberg-tm
concept of a library of electronic works that could be freely shared
with anyone.  For thirty years, he produced and distributed Project
Gutenberg-tm eBooks with only a loose network of volunteer support.


Project Gutenberg-tm eBooks are often created from several printed
editions, all of which are confirmed as Public Domain in the U.S.
unless a copyright notice is included.  Thus, we do not necessarily
keep eBooks in compliance with any particular paper edition.


Most people start at our Web site which has the main PG search facility:

     http://www.gutenberg.org

This Web site includes information about Project Gutenberg-tm,
including how to make donations to the Project Gutenberg Literary
Archive Foundation, how to help produce our new eBooks, and how to
subscribe to our email newsletter to hear about new eBooks.